Скачать Типовой проект 705-1-142 Альбом I. Пояснительная записка. Технологические чертежиДата актуализации: 01.01.2021
|
| Обозначение: | Типовой проект 705-1-142 |
| Обозначение англ: | 705-1-142 |
| Статус: | не действует |
| Название рус.: | Альбом I. Пояснительная записка. Технологические чертежи |
| Дата добавления в базу: | 01.09.2013 |
| Дата актуализации: | 01.01.2021 |
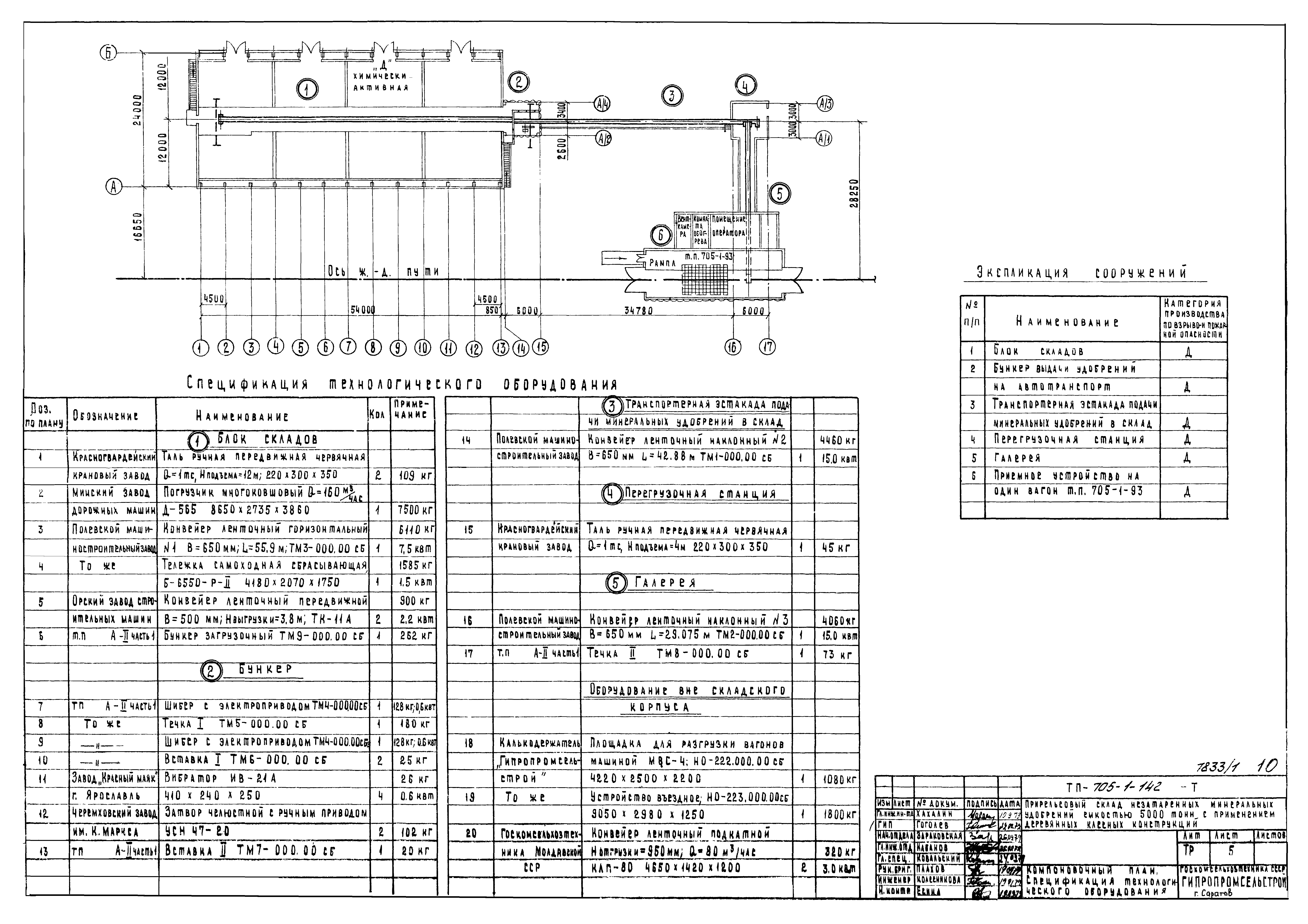
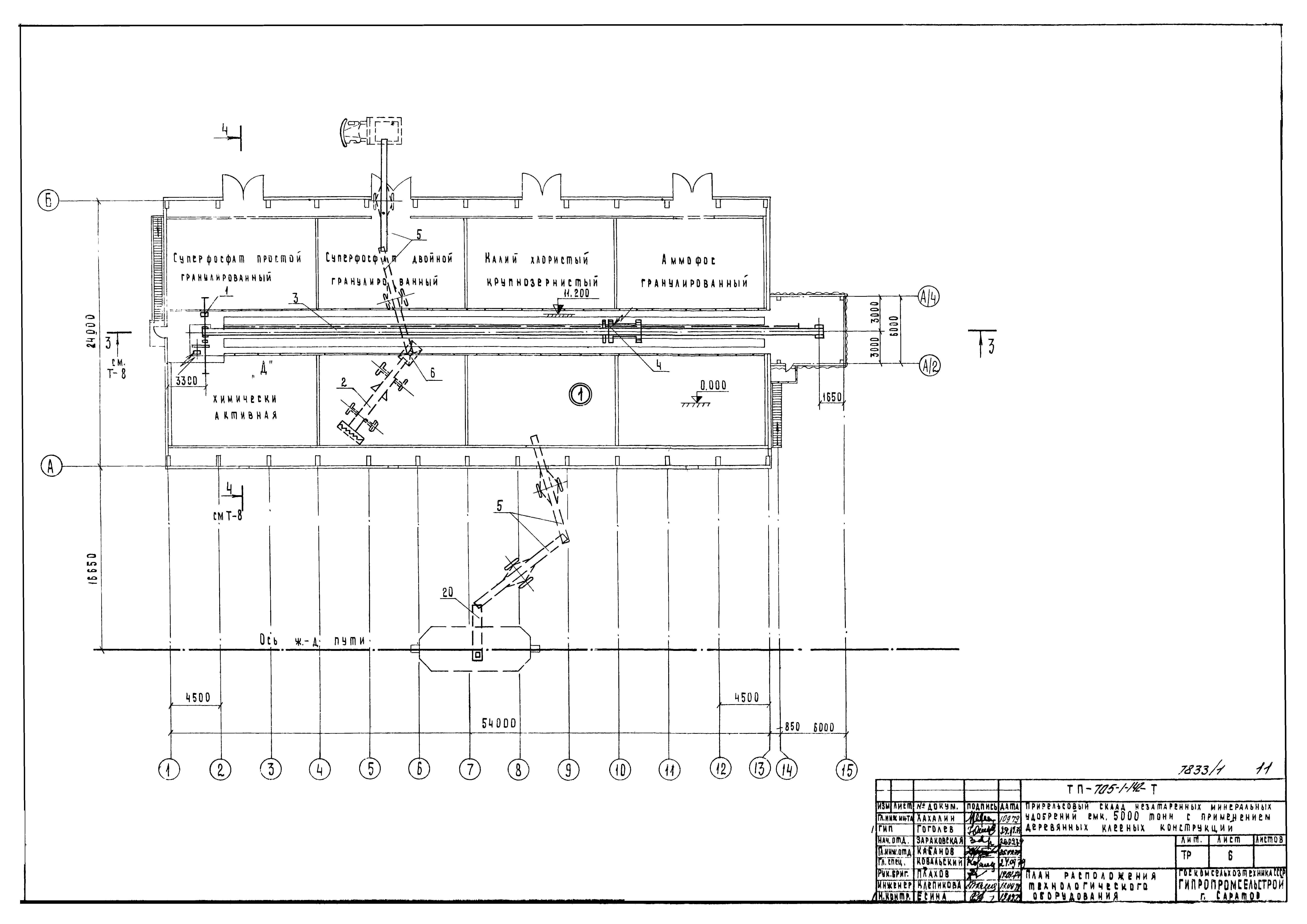
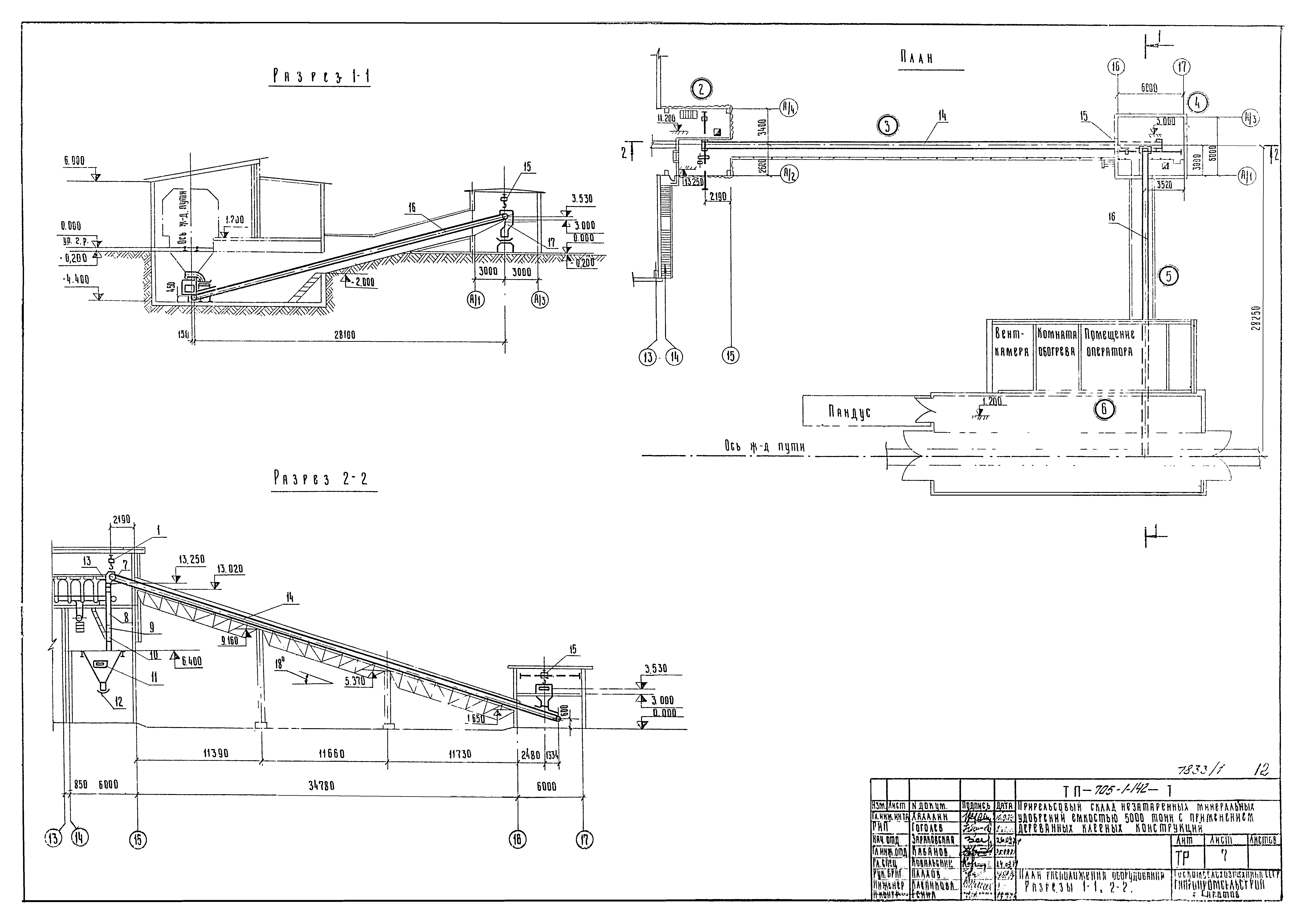
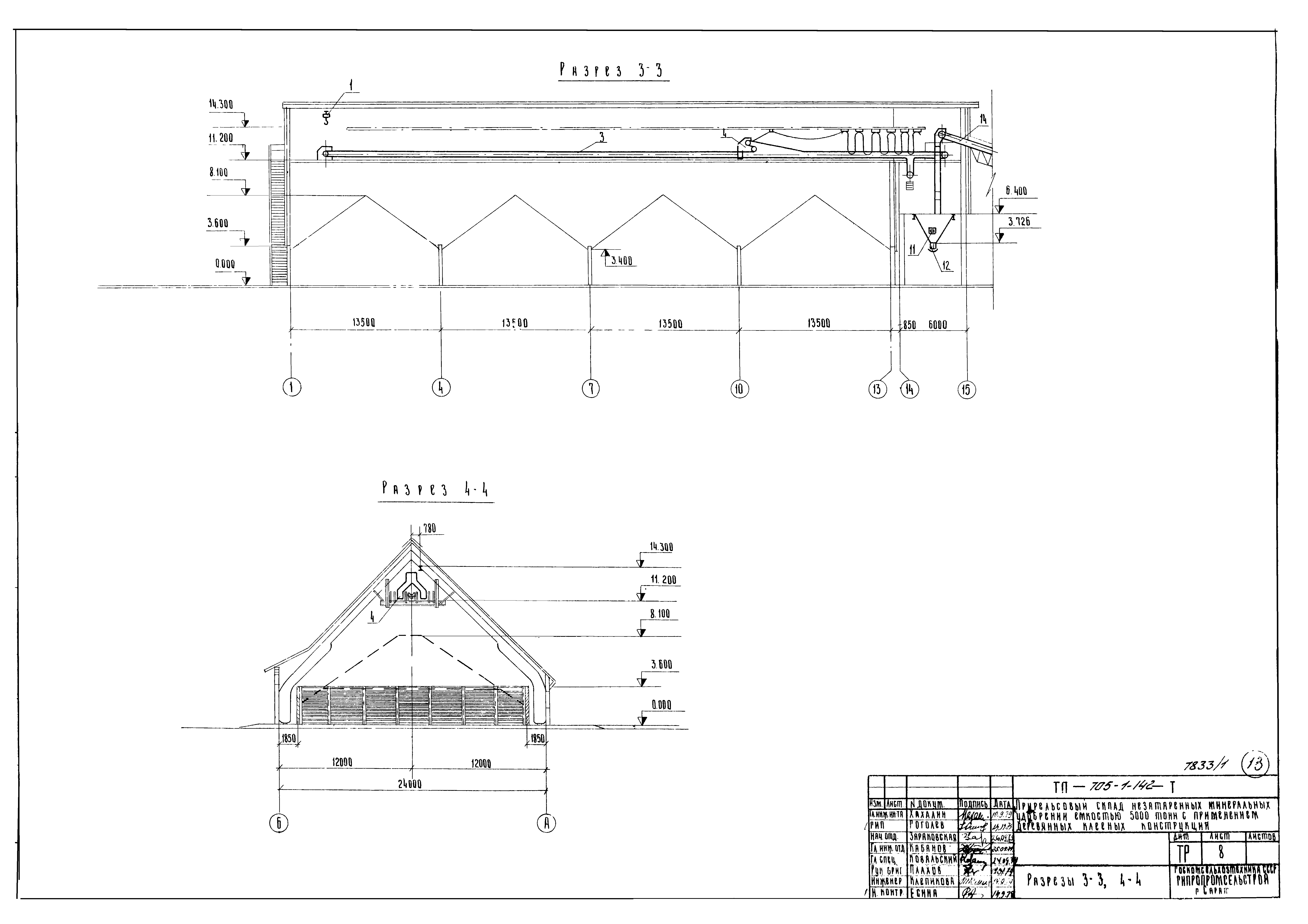
| Оглавление: | ТП 705-1-142-СА-1 Содержание альбома ТП 705-1-142-О-1 Пояснительная записка ТП 705-1-142-О-2 Пояснительная записка ТП 705-1-142-ГП-1 Схема генерального плана ТП 705-1-142-Т Технологические решения ТП 705-1-142-Т-1 Общие данные (начало) ТП 705-1-142-Т-2,3 Общие данные (продолжение) ТП 705-1-142-Т-4 Общие данные (окончание) ТП 705-1-142-Т-5 Компоновочный план. Спецификация технологического оборудования ТП 705-1-142-Т-6 План расположения технологического оборудования ТП 705-1-142-Т-7 План расположения оборудования. Разрезы 1-1,2-2 ТП 705-1-142-Т-8 Разрезы 3-3,4-4 |
| Разработан: | Гипропромсельстрой |
| Утверждён: | 28.09.1979 Госкомсельхозтехника СССР (82) |














