Скачать Типовой проект 705-1-142 Альбом II. Технолого-механические чертежиДата актуализации: 01.01.2021
|
| Обозначение: | Типовой проект 705-1-142 |
| Обозначение англ: | 705-1-142 |
| Статус: | не действует |
| Название рус.: | Альбом II. Технолого-механические чертежи |
| Дата добавления в базу: | 01.09.2013 |
| Дата актуализации: | 01.01.2021 |
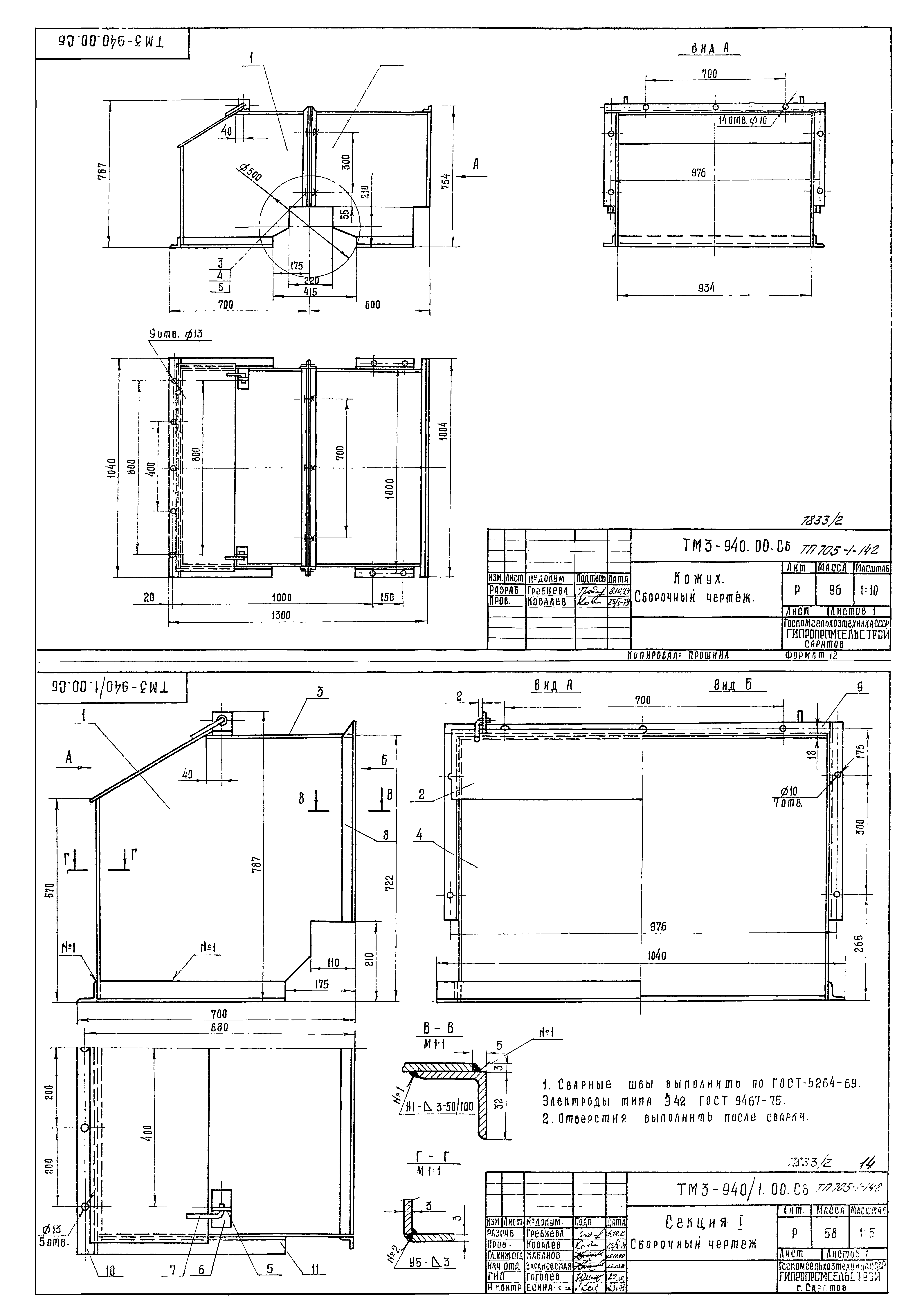
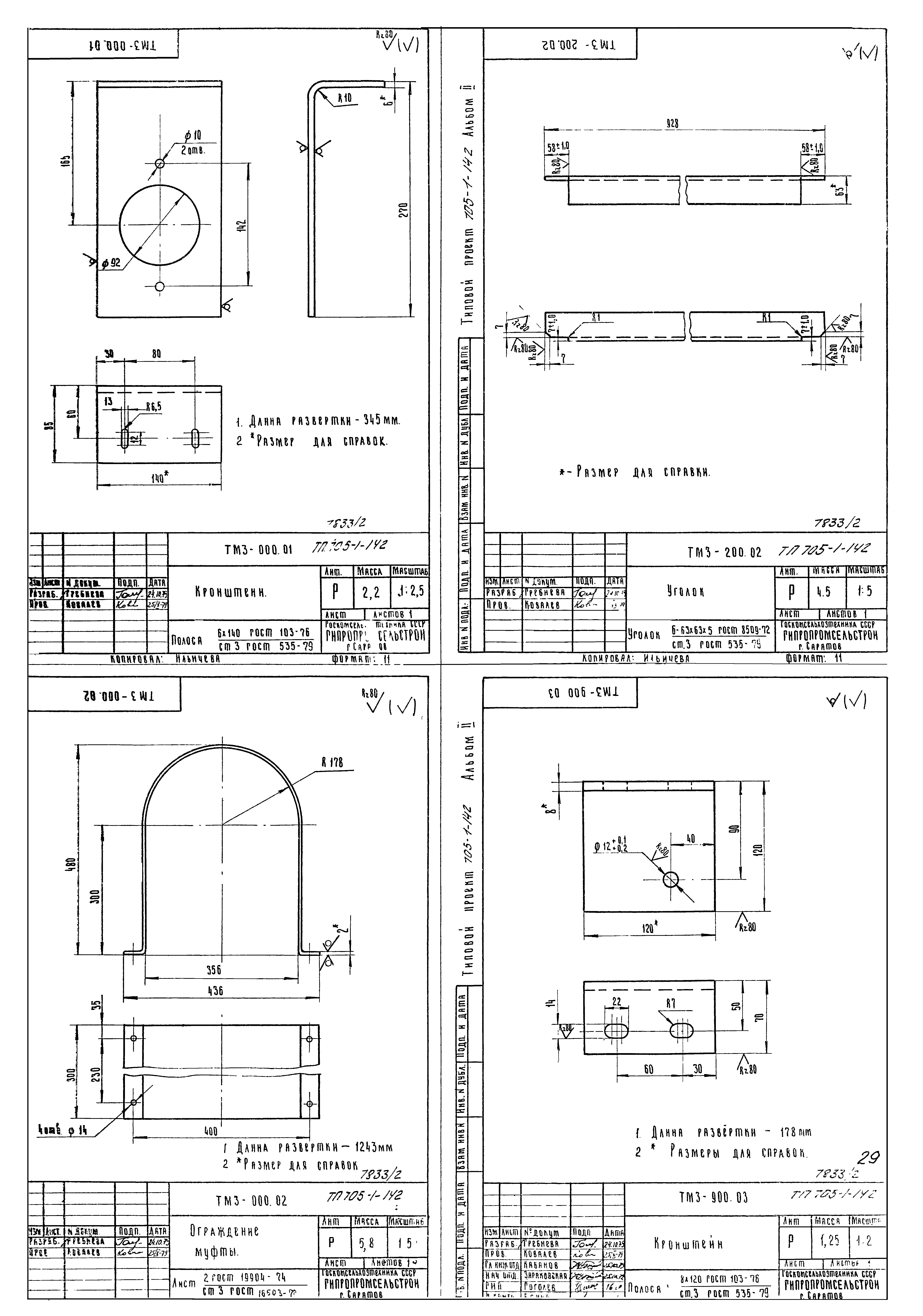
| Оглавление: | ТП 705-1-142 ТМ0-000.00 СА Содержание альбома ТП 705-1-142 ТМ0-000.00 ТУ Технические условия ТП 705-1-142 ТМ3-000.00 ВП Конвейер ленточный горизонтальный № 1. Ведомость покупных изделий ТП 705-1-142 ТМ3-000.00 ВС Конвейер ленточный горизонтальный № 1. Ведомость спецификаций ТП 705-1-142 ТМ3-000.00 Конвейер ленточный горизонтальный № 1. Спецификация ТП 705-1-142 ТМ3-000.00 СБ Конвейер ленточный горизонтальный № 1. Сборочный чертеж ТП 705-1-142 ТМ3-100.00 СБ Установка приводного барабана. Сборочный чертеж ТП 705-1-142 ТМ3-100.00 Установка приводного барабана. Спецификация ТП 705-1-142 ТМ3-110.00 СБ Рама приводного барабана. Сборочный чертеж ТП 705-1-142 ТМ3-930.00 СБ Воронка. Сборочный чертеж ТП 705-1-142 ТМ3-930.00 Воронка. Спецификация ТП 705-1-142 ТМ3-930.07 Стенка левая ТП 705-1-142 ТМ3-930.05 Стенка правая ТП 705-1-142 ТМ3-930.02 Стенка прямая ТП 705-1-142 ТМ3-930.01 Стенка наклонная ТП 705-1-142 ТМ3-000.03 Ограждение муфты ТП 705-1-142 ТМ3-940.00 СБ Кожух. Сборочный чертеж ТП 705-1-142 ТМ3-940/1.00 СБ Секция 1. Сборочный чертеж ТП 705-1-142 ТМ3-940.00 Кожух. Спецификация ТП 705-1-142 ТМ3-940/1.00 Секция 1. Спецификация ТП 705-1-142 ТМ3-940/1.01 Лист боковой ТП 705-1-142 ТМ3-940/1.05 Ушко ТП 705-1-142 ТМ3-940/2.00 СБ Секция 2. Сборочный чертеж ТП 705-1-142 ТМ3-940/2.00 Секция 2. Спецификация ТП 705-1-142 ТМ3-940/2.02 Лист боковой ТП 705-1-142 ТМ3-110.00 Рама приводного барабана. Спецификация ТП 705-1-142 ТМ3-200.00 СБ Рама головная. Сборочный чертеж ТП 705-1-142 ТМ3-200.00 Рама головная. Спецификация ТП 705-1-142 ТМ3-300.00 СБ Рама концевая. Сборочный чертеж ТП 705-1-142 ТМ3-400.05 Уголок ТП 705-1-142 ТМ3-400.00 СБ Рама концевого барабана. Сборочный чертеж ТП 705-1-142 ТМ3-400.00 Рама концевого барабана. Спецификация ТП 705-1-142 ТМ3-500.00 СБ Натяжное устройство. Сборочный чертеж ТП 705-1-142 ТМ3-510.00 СБ Рама натяжного устройства. Сборочный чертеж ТП 705-1-142 ТМ3-510.00 Рама натяжного устройства. Спецификация ТП 705-1-142 ТМ3-500.00 Натяжное устройство. Спецификация ТП 705-1-142 ТМ3-600.00 СБ Лоток направляющий. Сборочный чертеж ТП 705-1-142 ТМ3-600.00 Лоток направляющий. Спецификация ТП 705-1-142 ТМ3-600.01 Завеса ТП 705-1-142 ТМ3-600.02 Полоса ТП 705-1-142 ТМ3-600.03 Стойка ТП 705-1-142 ТМ3-620.04 Пластина ТП 705-1-142 ТМ3-610.00 СБ Стенка боковая. Сборочный чертеж ТП 705-1-142 ТМ3-610.00 Стенка боковая. Спецификация ТП 705-1-142 ТМ3-610.01 Пластина ТП 705-1-142 ТМ3-620.01 Стенка ТП 705-1-142 ТМ3-620.02 Стенка ТП 705-1-142 ТМ3-620.00 СБ Стенка торцевая. Сборочный чертеж ТП 705-1-142 ТМ3-620.00 Стенка торцевая. Спецификация ТП 705-1-142 ТМ3-700.00 СБ Рама привода. Сборочный чертеж ТП 705-1-142 ТМ3-700.00 Рама привода. Спецификация ТП 705-1-142 ТМ3-800.00 Установка тросового выключающего устройства. Спецификация ТП 705-1-142 ТМ3-800.00 СБ Установка тросового выключающего устройства. Сборочный чертеж ТП 705-1-142 ТМ3-900.00 СБ Кронштейн. Сборочный чертеж ТП 705-1-142 ТМ3-900.00 Кронштейн. Спецификация ТП 705-1-142 ТМ3-1000.00 СБ Кронштейн. Сборочный чертеж ТП 705-1-142 ТМ3-1000.00 Кронштейн. Спецификация ТП 705-1-142 ТМ3-200.02 Уголок ТП 705-1-142 ТМ3-000.01 Кронштейн ТП 705-1-142 ТМ3-000.02 Ограждение муфты ТП 705-1-142 ТМ3-900.03 Кронштейн ТП 705-1-142 ТМ3-300.00 Рама концевая. Спецификация ТП 705-1-142 ТМ3-300.07 Косынка ТП 705-1-142 ТМ3-600.04 Полоса ТП 705-1-142 ТМ3-700.01 Связь ТП 705-1-142 ОВ-15.000.00 СБ Лючок (200х100) для чистки круглых воздуховодов. Сборочный чертеж ТП 705-1-142 ОВ-15.000.00 Лючок (200х100) для чистки круглых воздуховодов. Спецификация ТП 705-1-142 ОВ-15.000.01 Рычаг ТП 705-1-142 ОВ-15.000.02 Ушко ТП 705-1-142 ОВ-15.000.06 Ось ТП 705-1-142 ОВ-15.000.05 Ушко ТП 705-1-142 ОВ-15.000.04 Распорка ТП 705-1-142 ОВ-16.000.00 СБ Лючок для замера воздуха. Сборочный чертеж ТП 705-1-142 ОВ-16.000.00 Лючок для замера воздуха. Спецификация ТП 705-1-142 ОВ-16.000.03 Шайба ТП 705-1-142 ОВ-16.000.02 Пружина ТП 705-1-142 ОВ-16.000.04 Прокладка ТП 705-1-142 ОВ-16.000.01 Палец ТП 705-1-142 ОВ-16.000.03 Ушко |
| Разработан: | Гипропромсельстрой |
| Утверждён: | 28.09.1979 Госкомсельхозтехника СССР (82) |



































