Скачать Типовой проект 705-1-142 Альбом III. Архитектурно-строительные чертежи. Чертежи по вентиляцииДата актуализации: 01.01.2021
|
| Обозначение: | Типовой проект 705-1-142 |
| Обозначение англ: | 705-1-142 |
| Статус: | не действует |
| Название рус.: | Альбом III. Архитектурно-строительные чертежи. Чертежи по вентиляции |
| Дата добавления в базу: | 01.09.2013 |
| Дата актуализации: | 01.01.2021 |
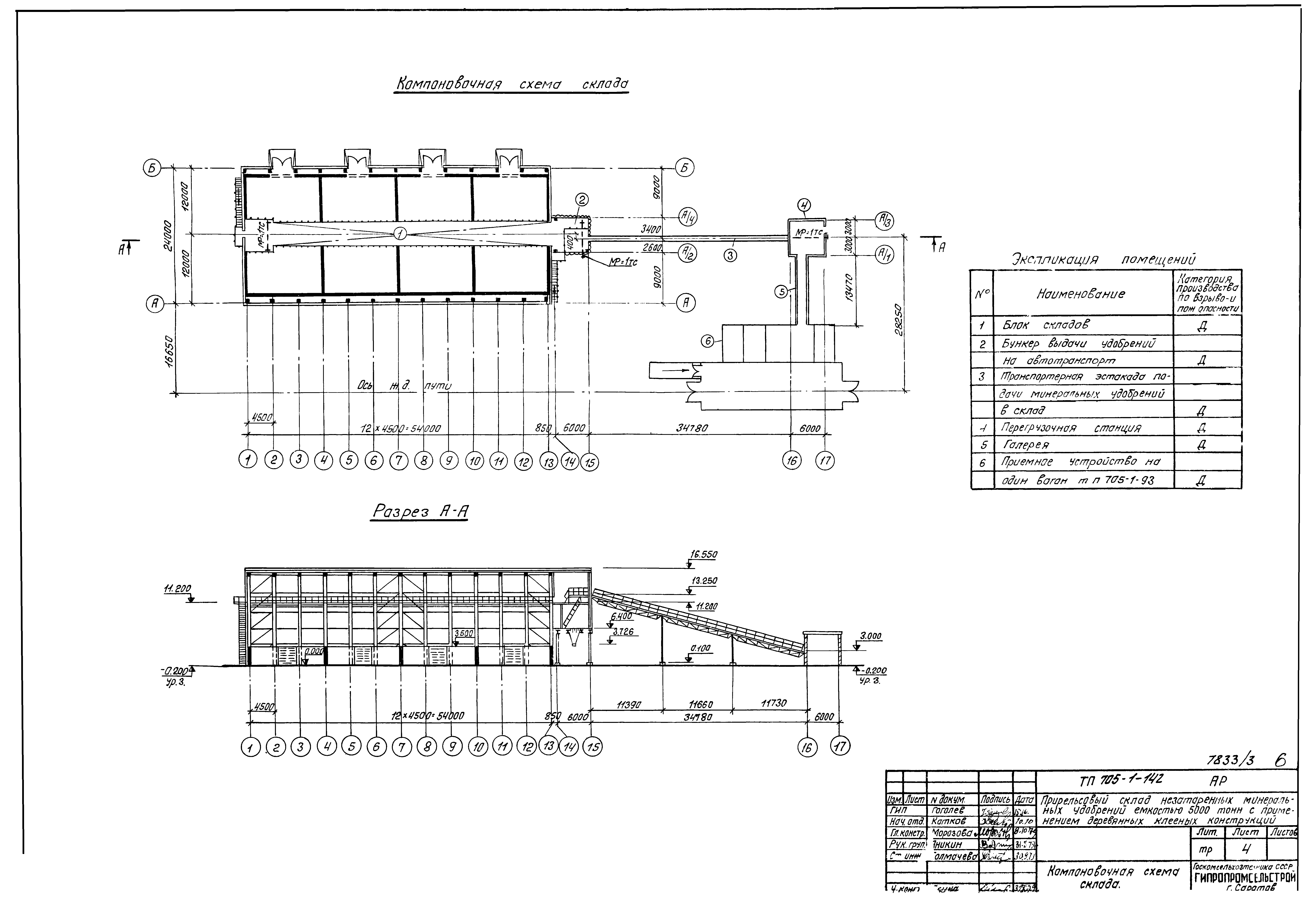
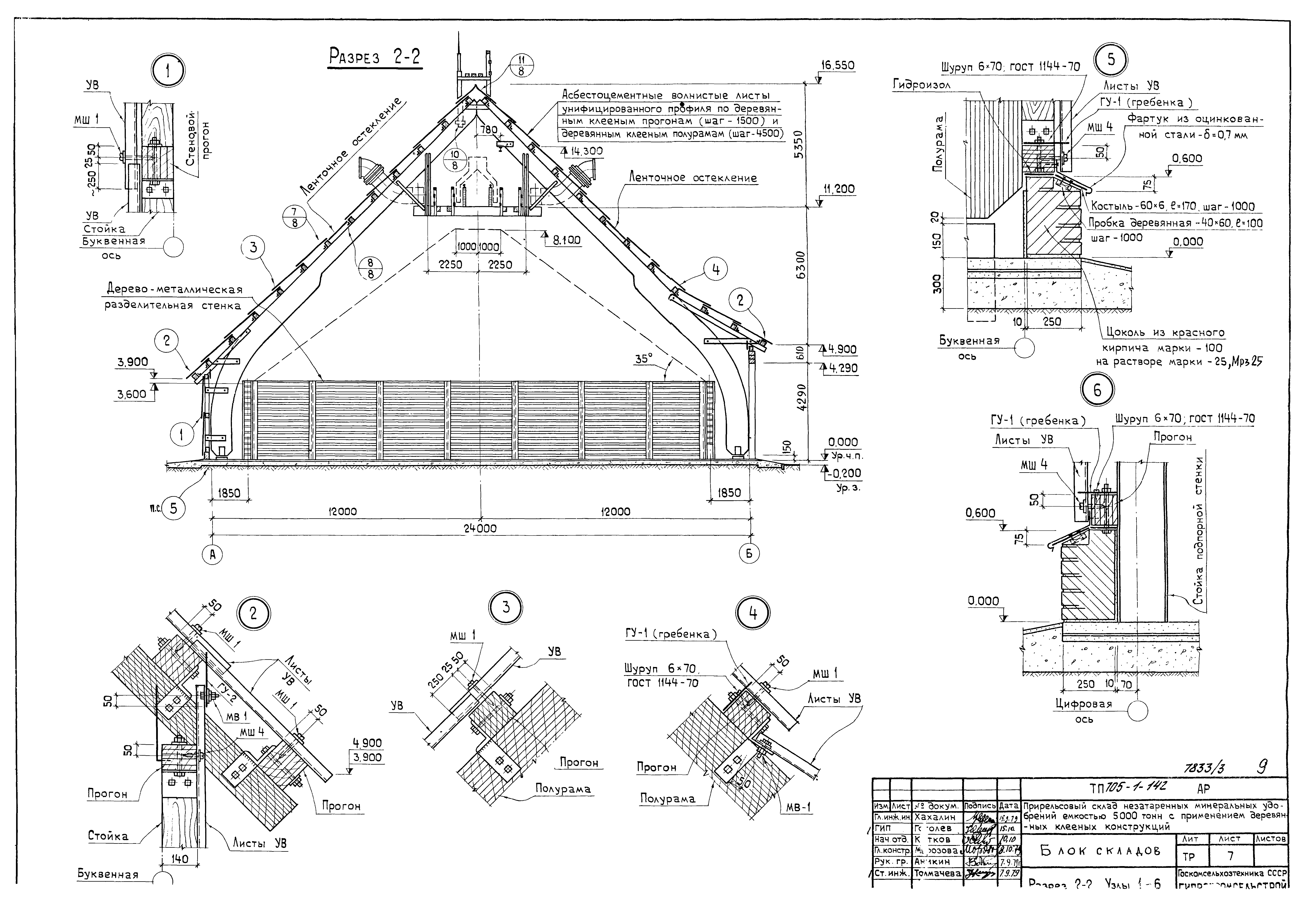
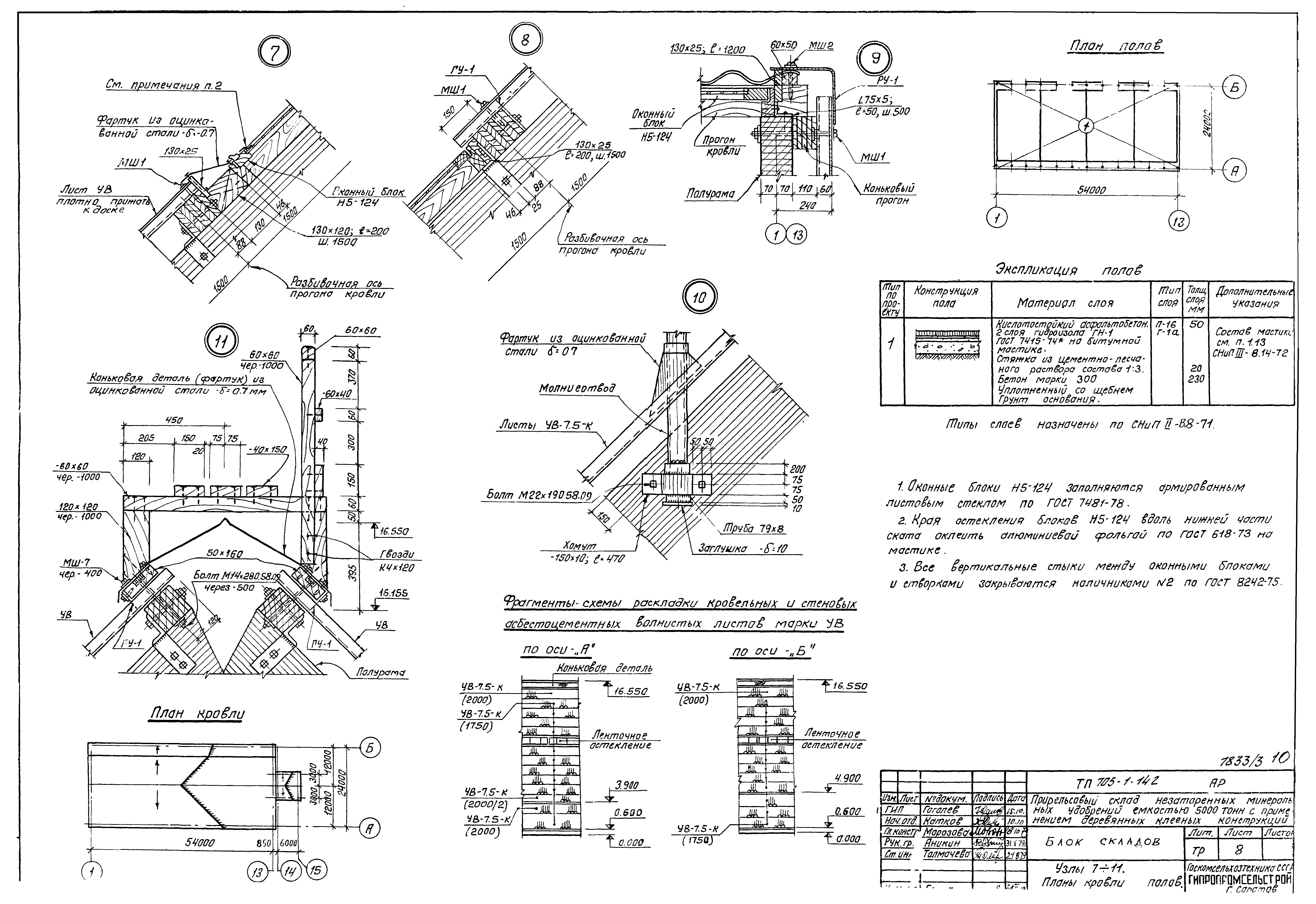
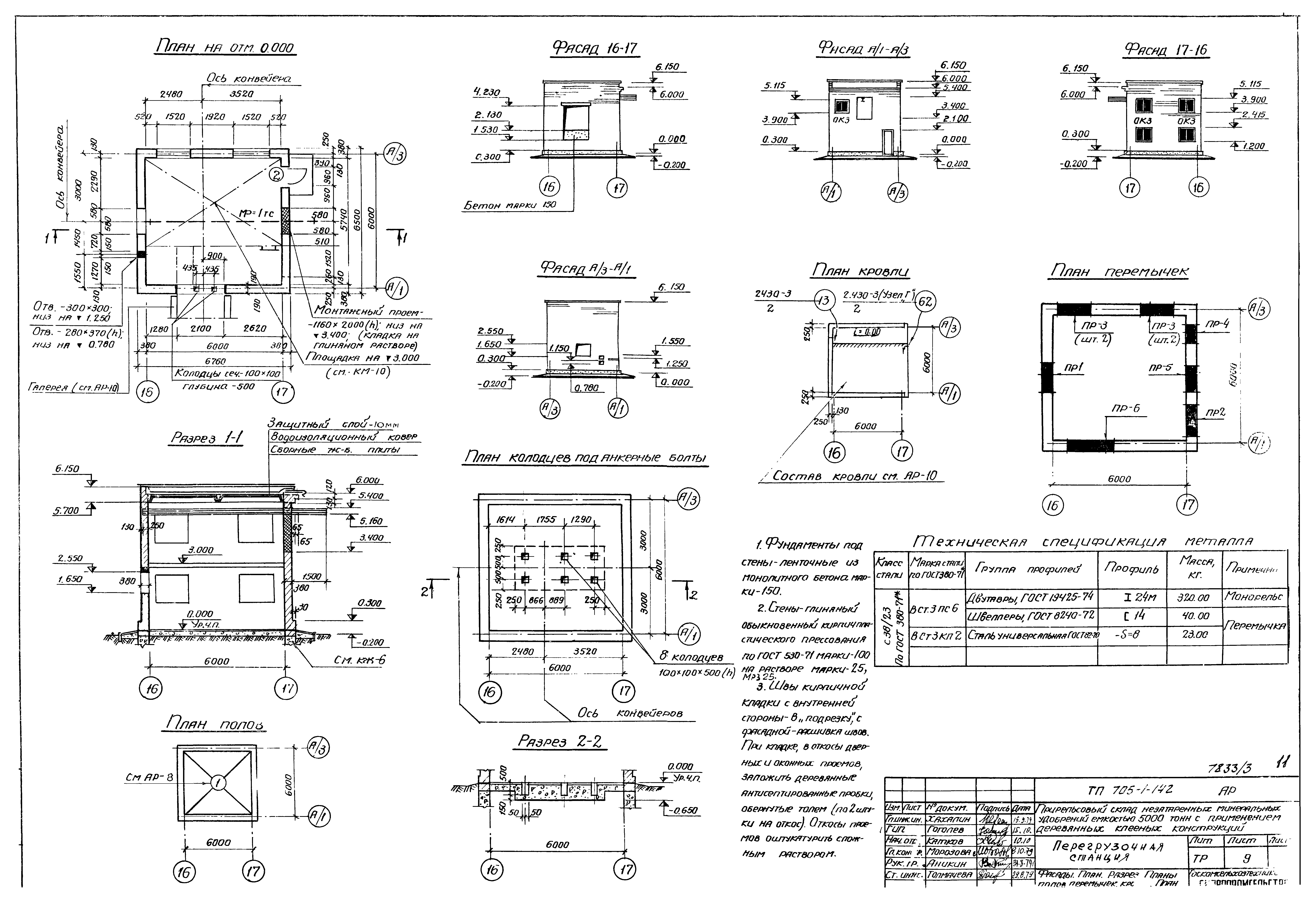
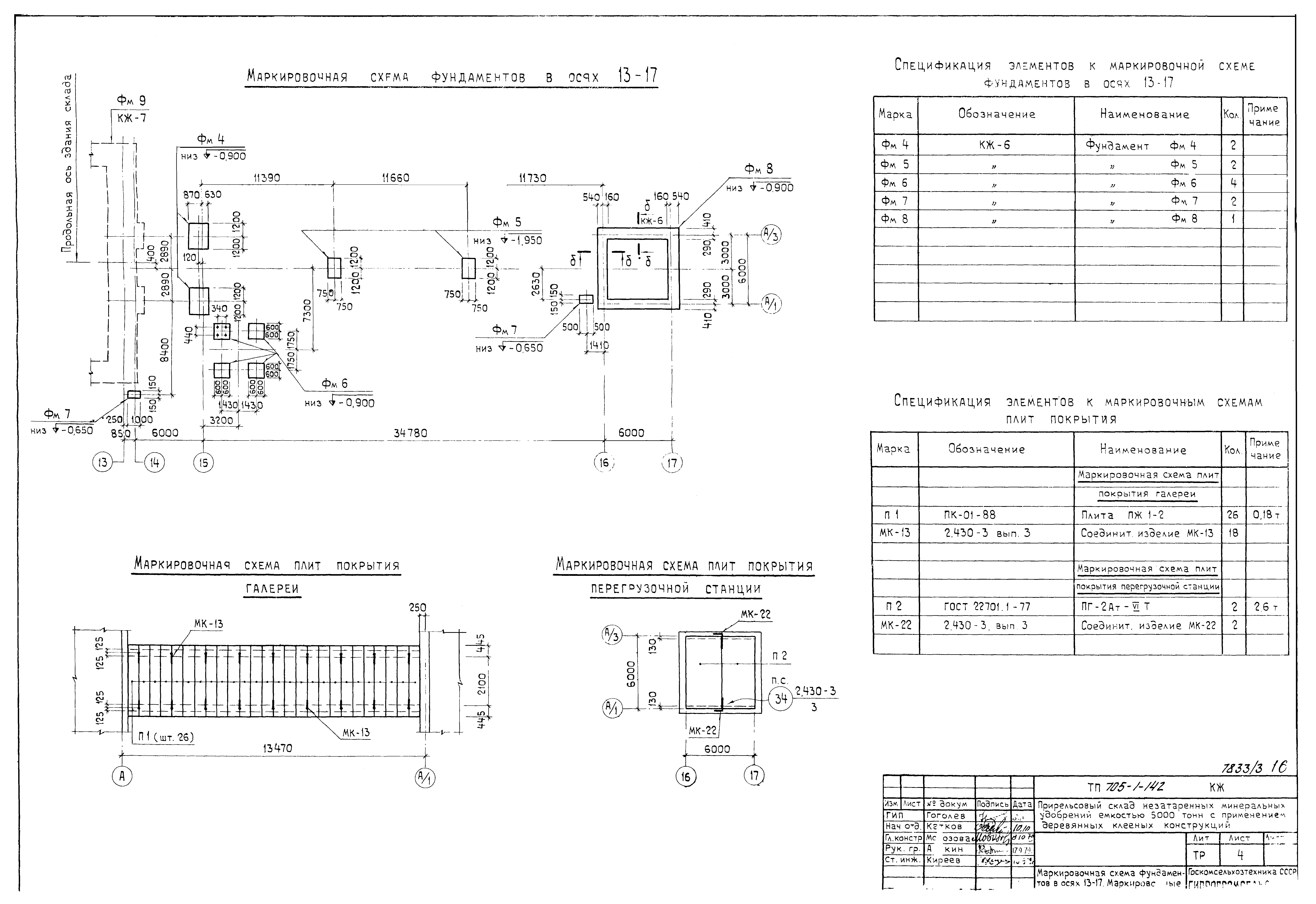
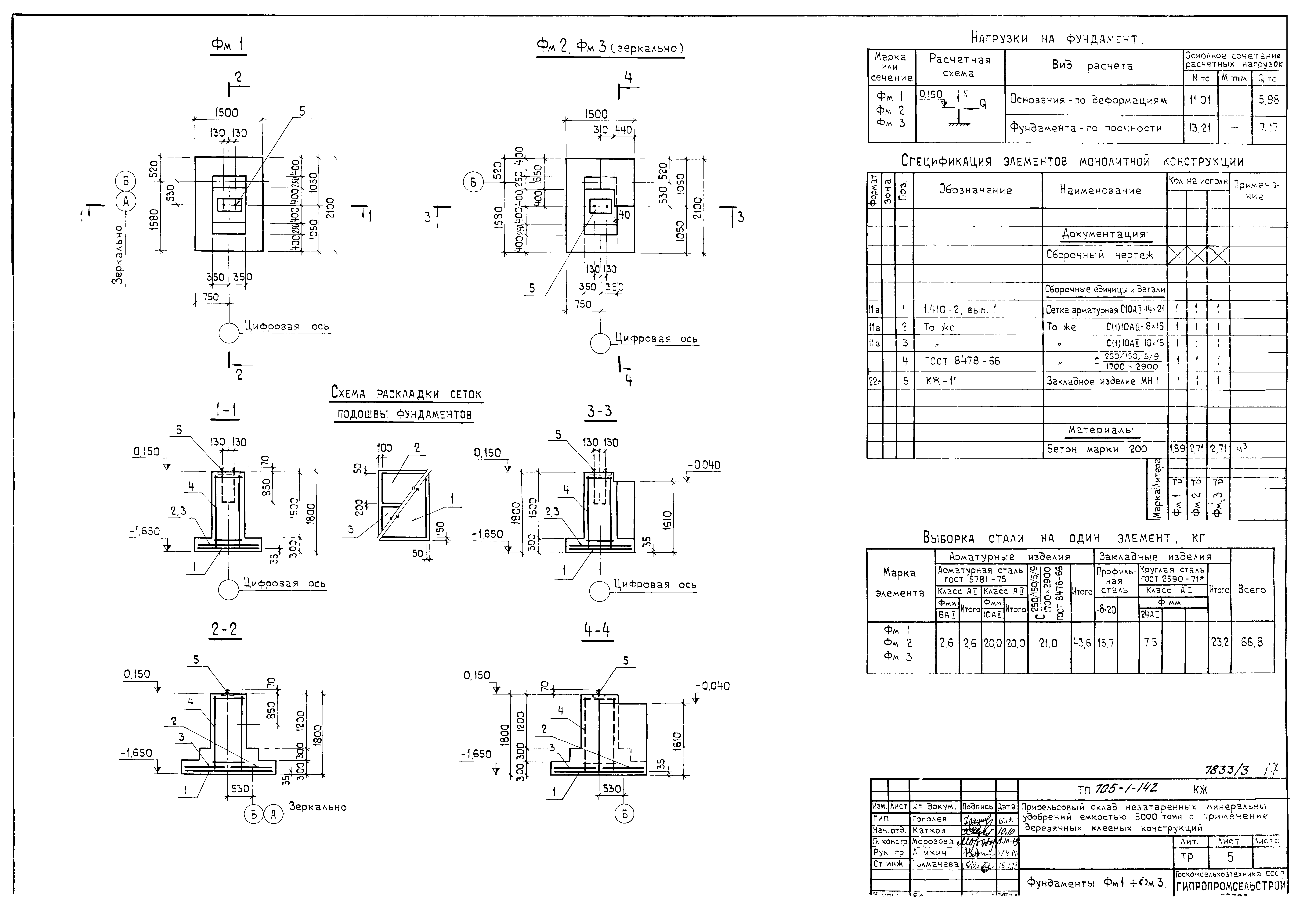
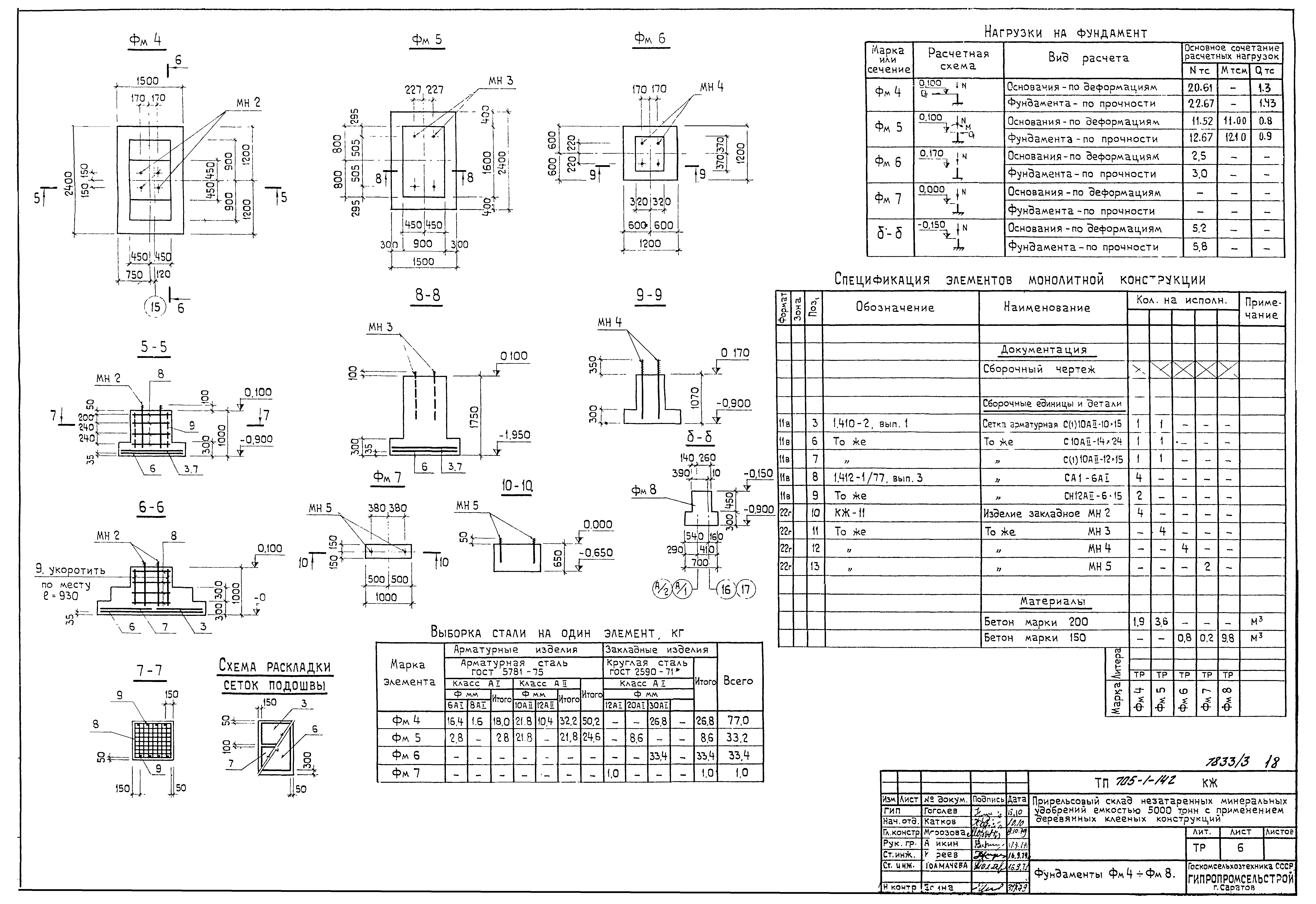
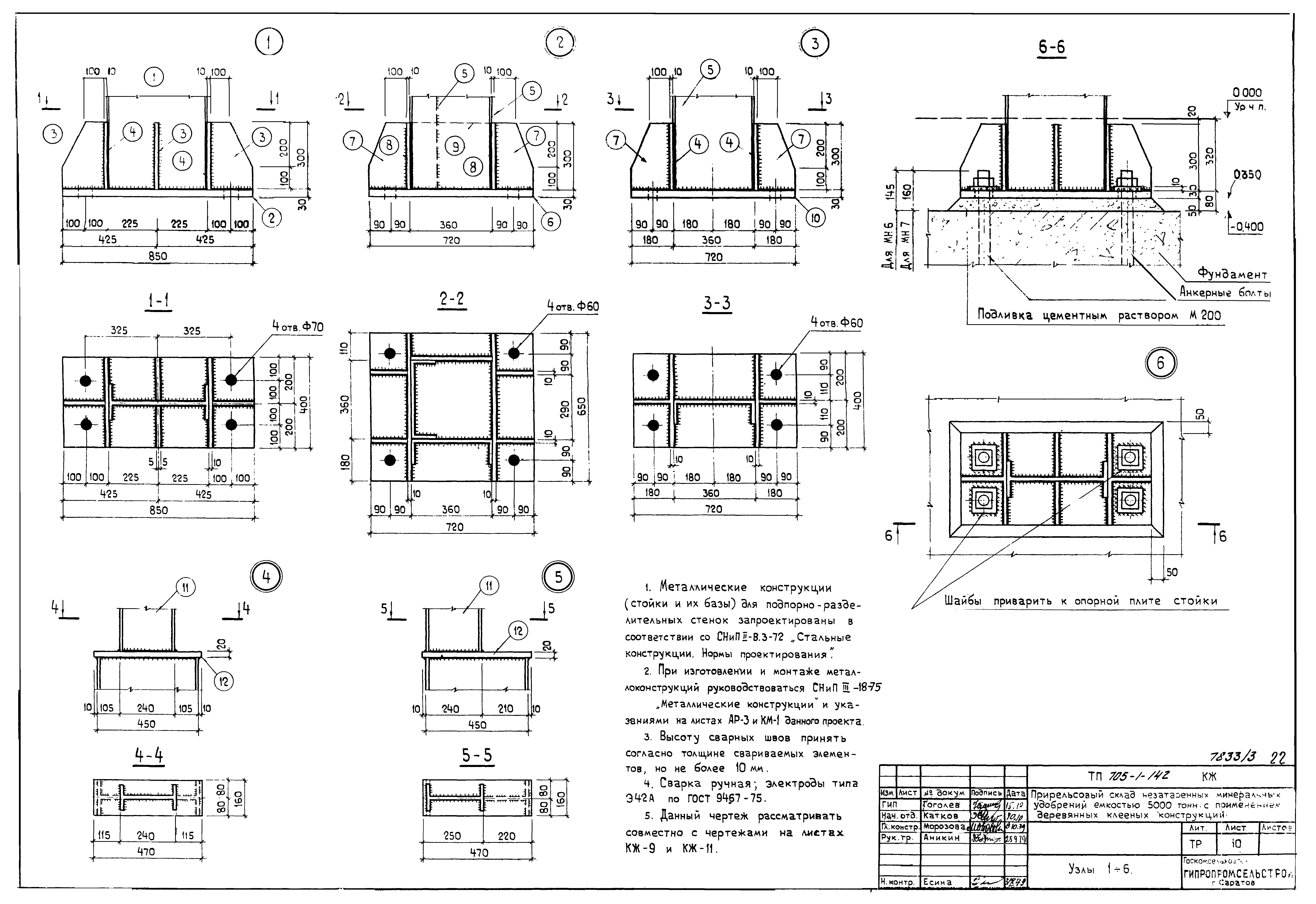
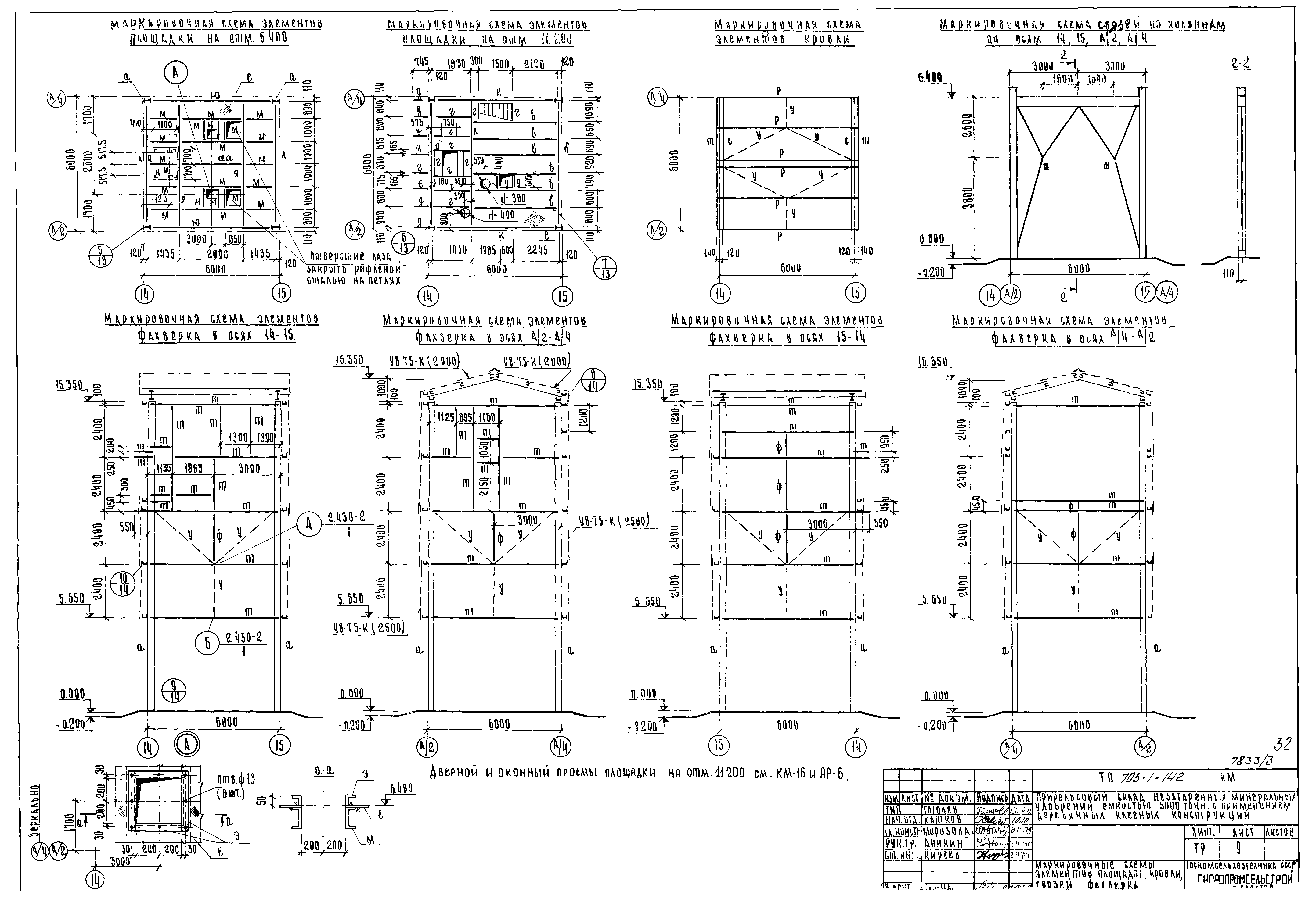
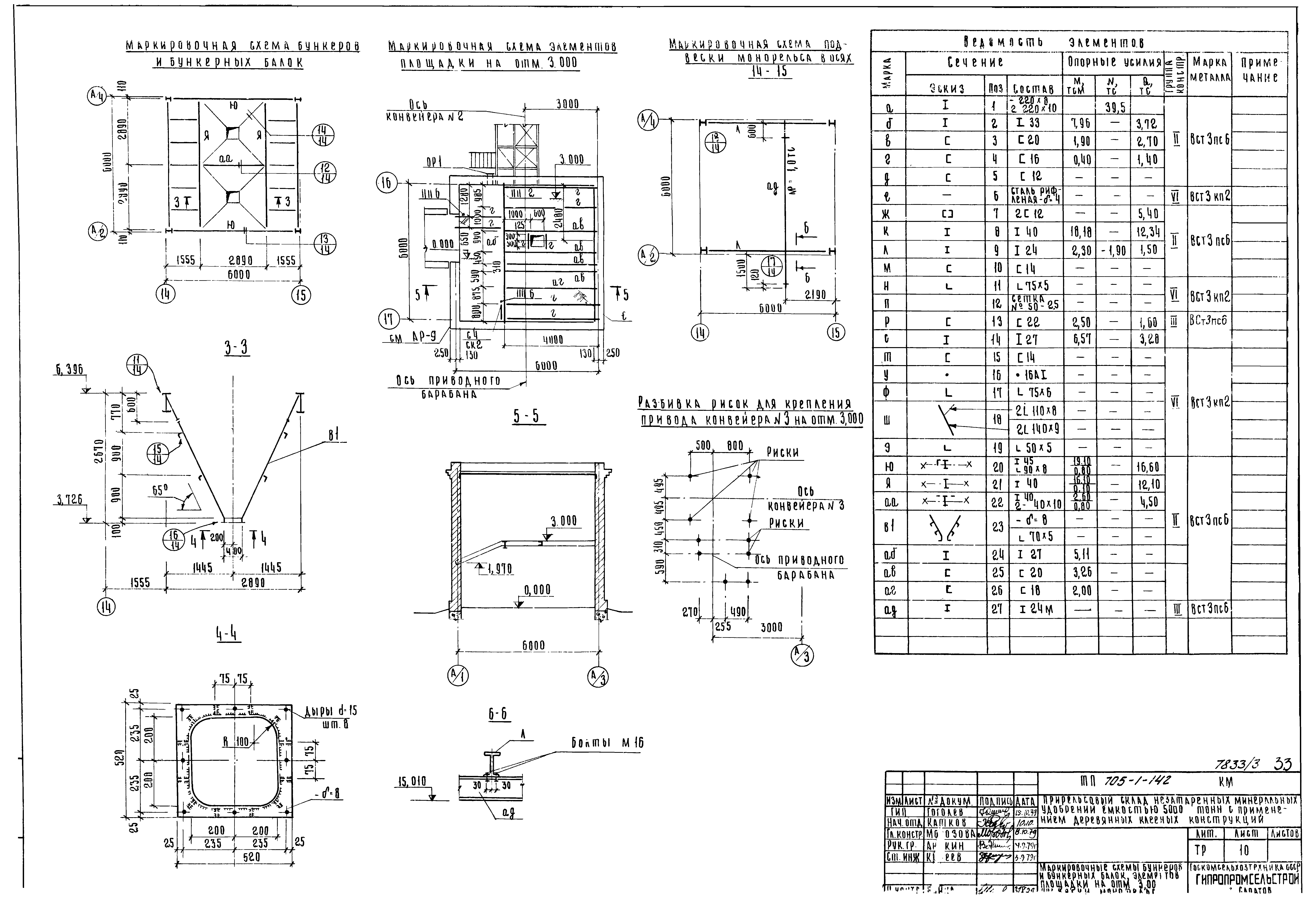
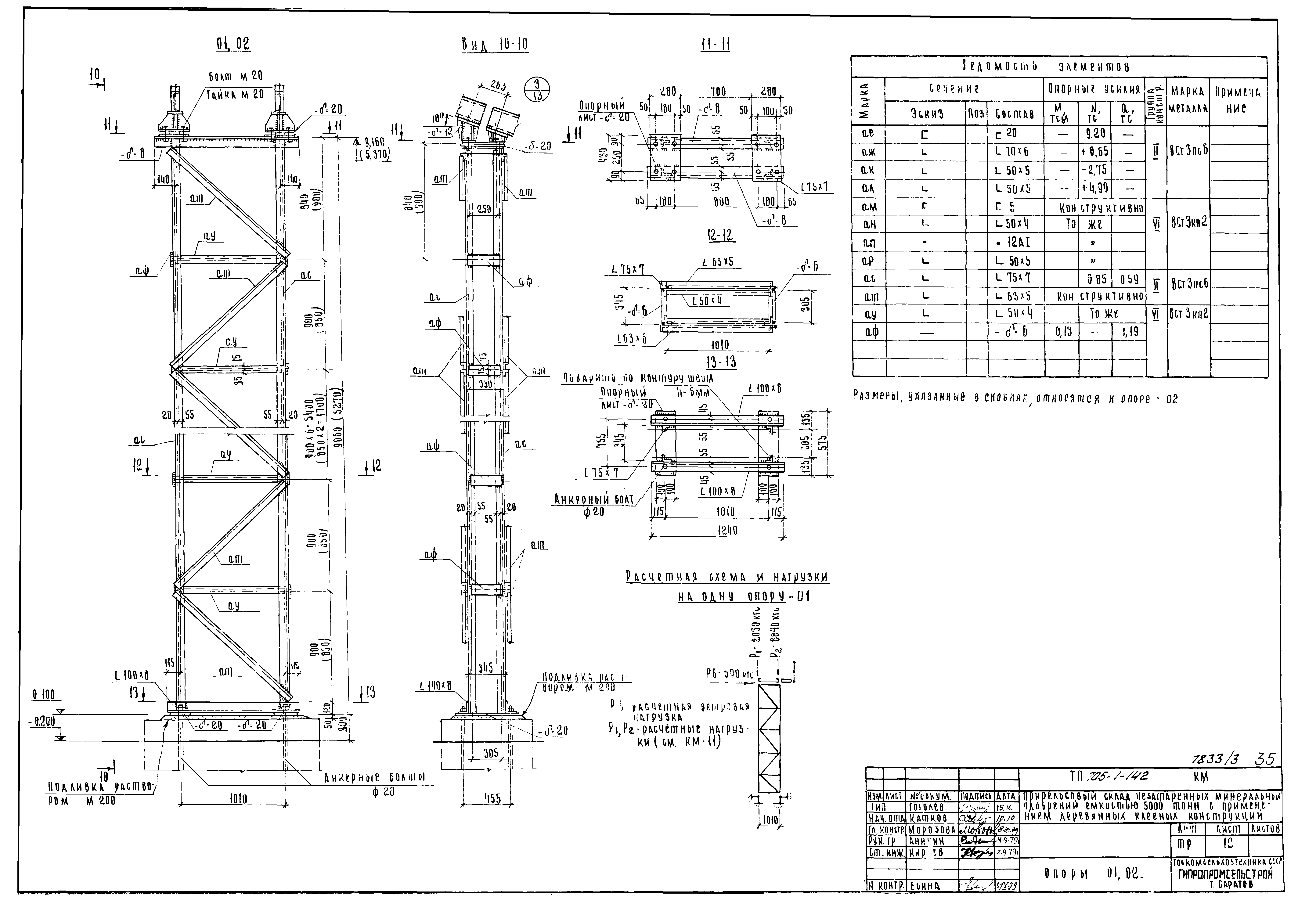
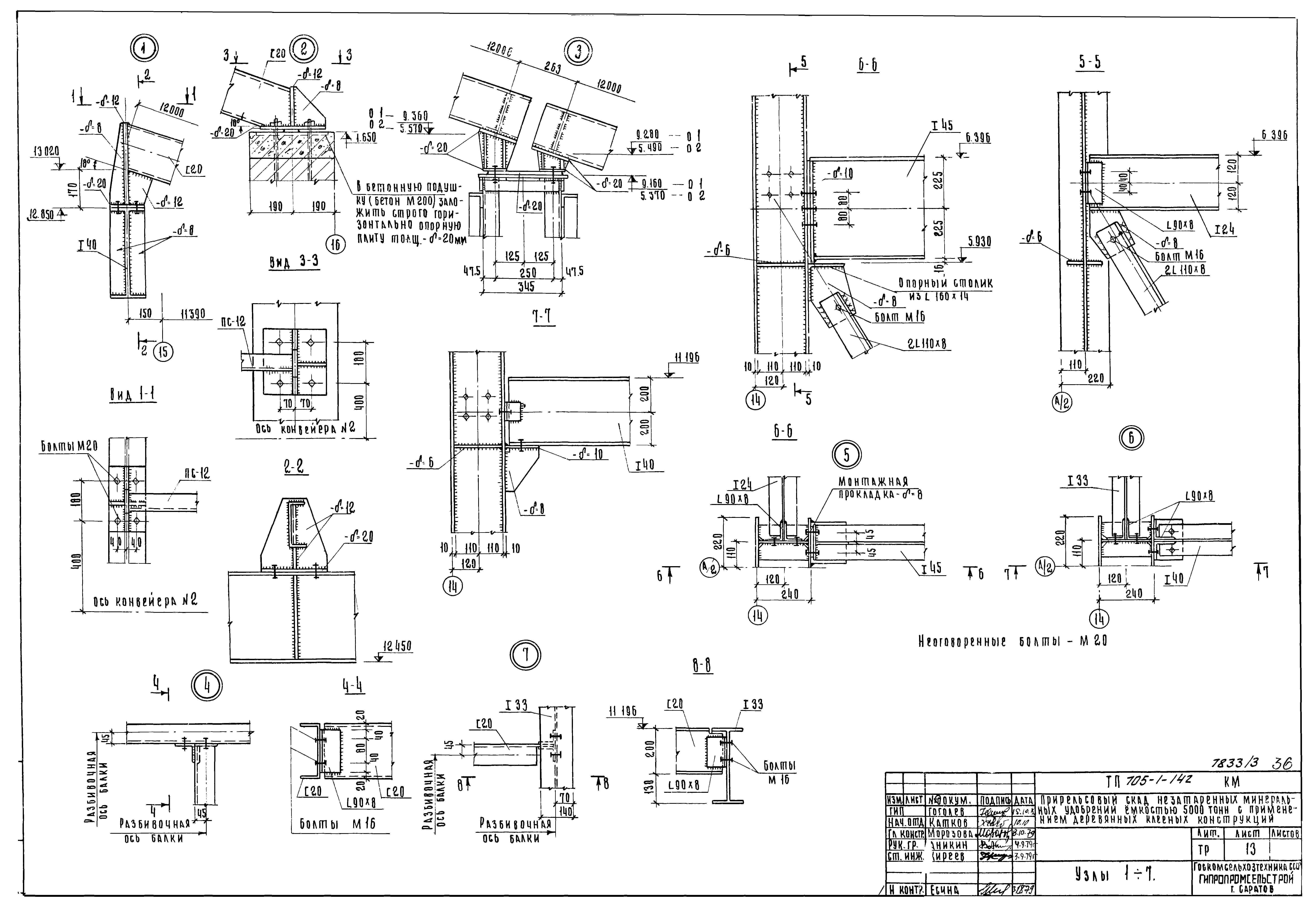
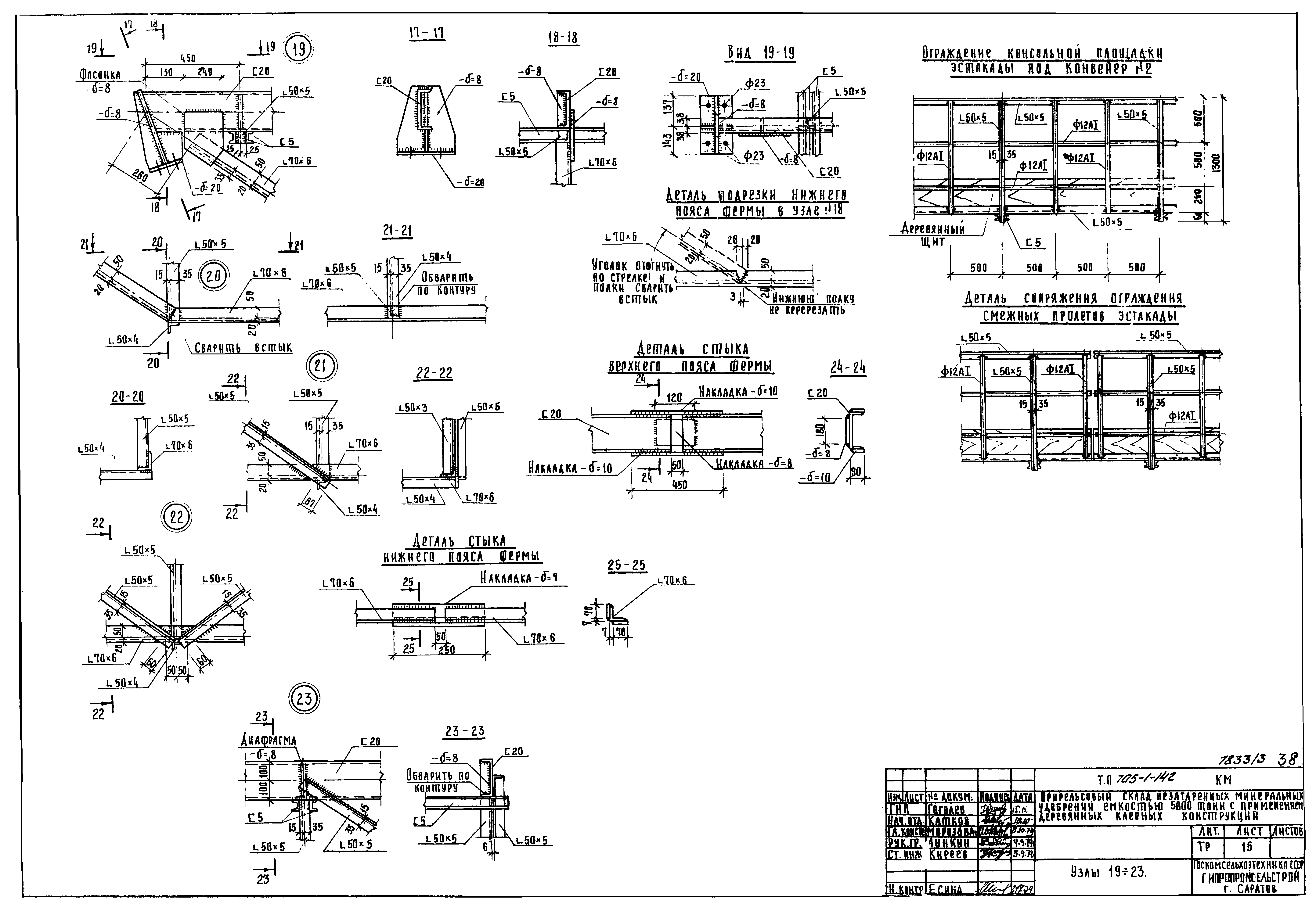
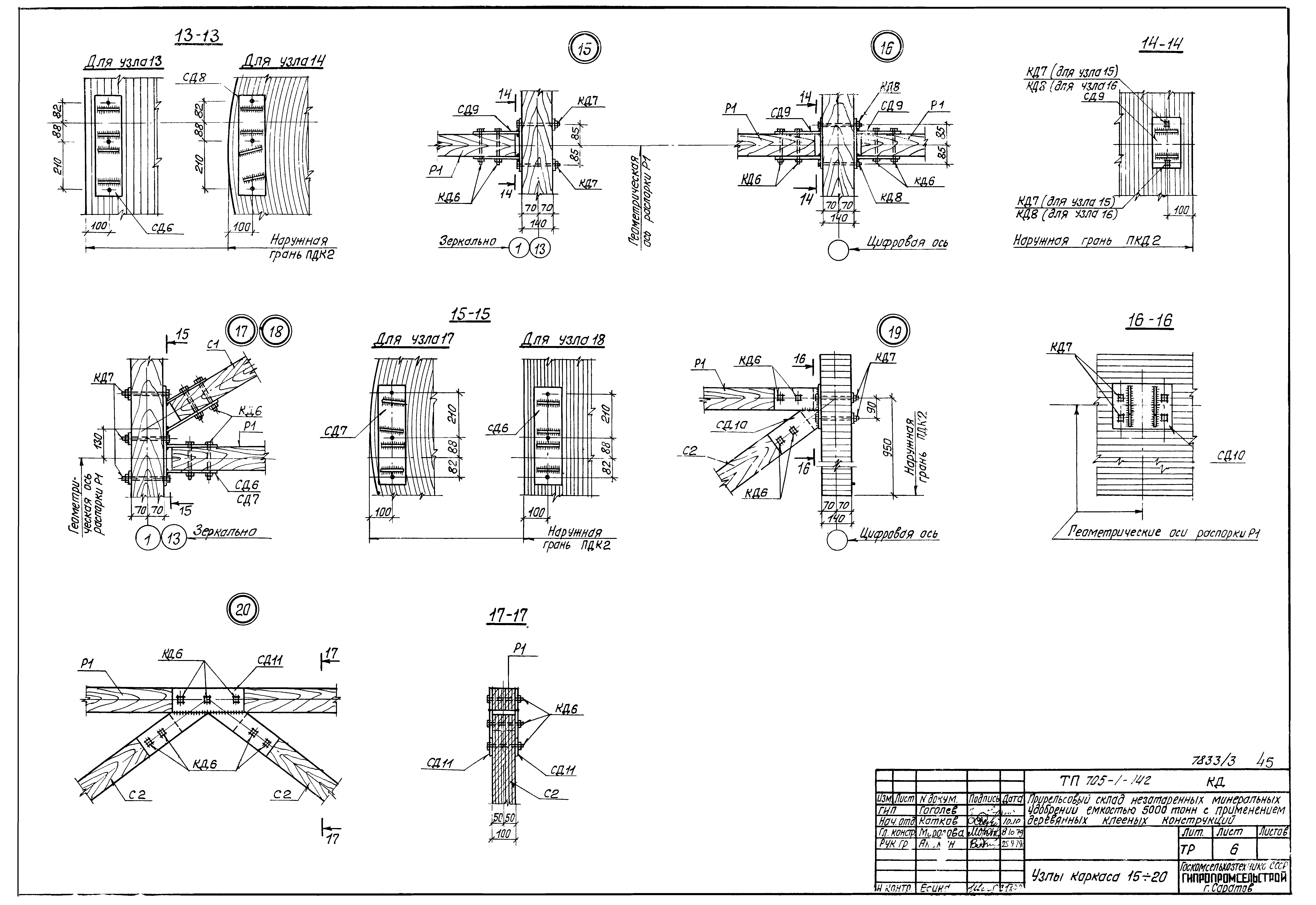
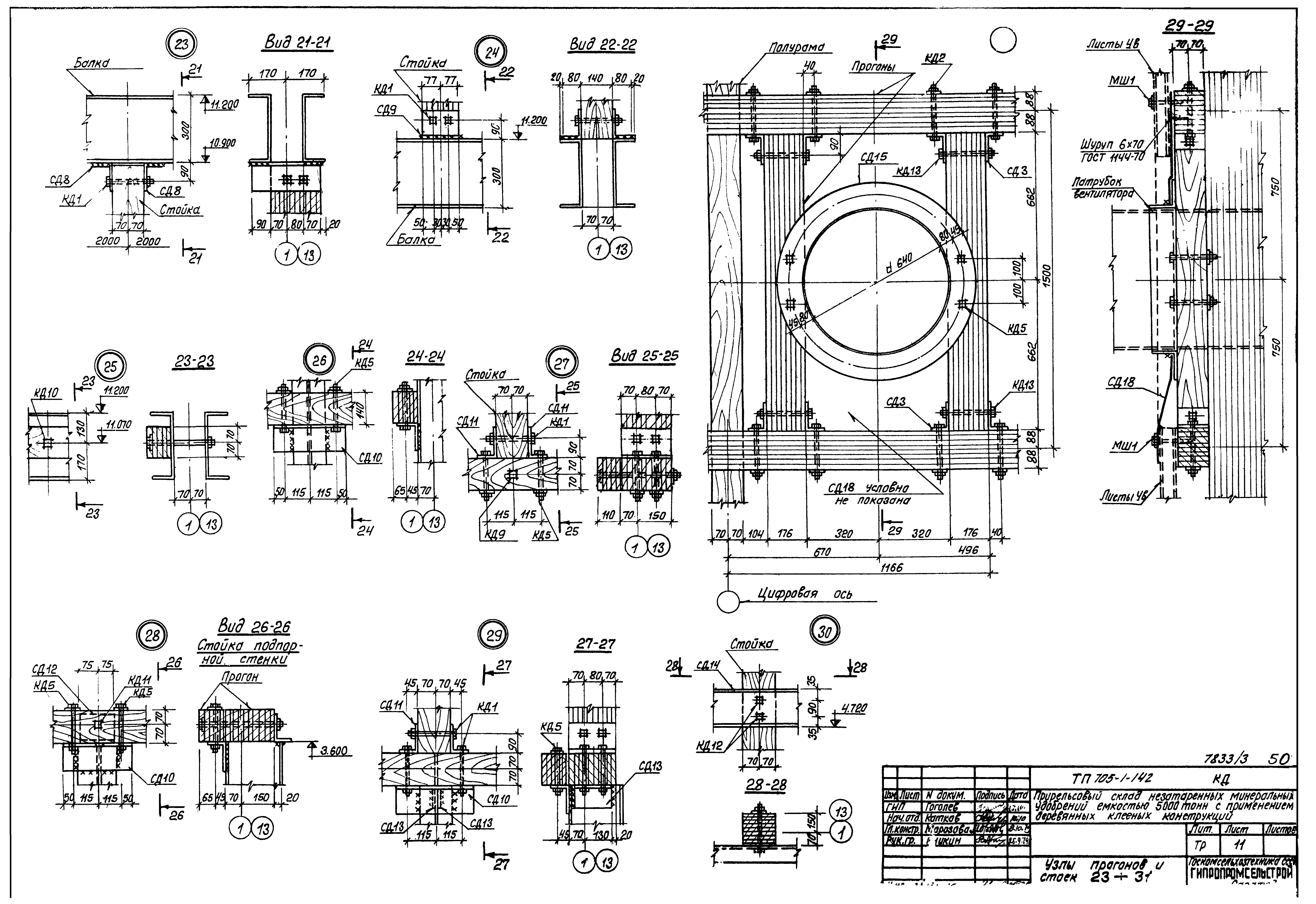
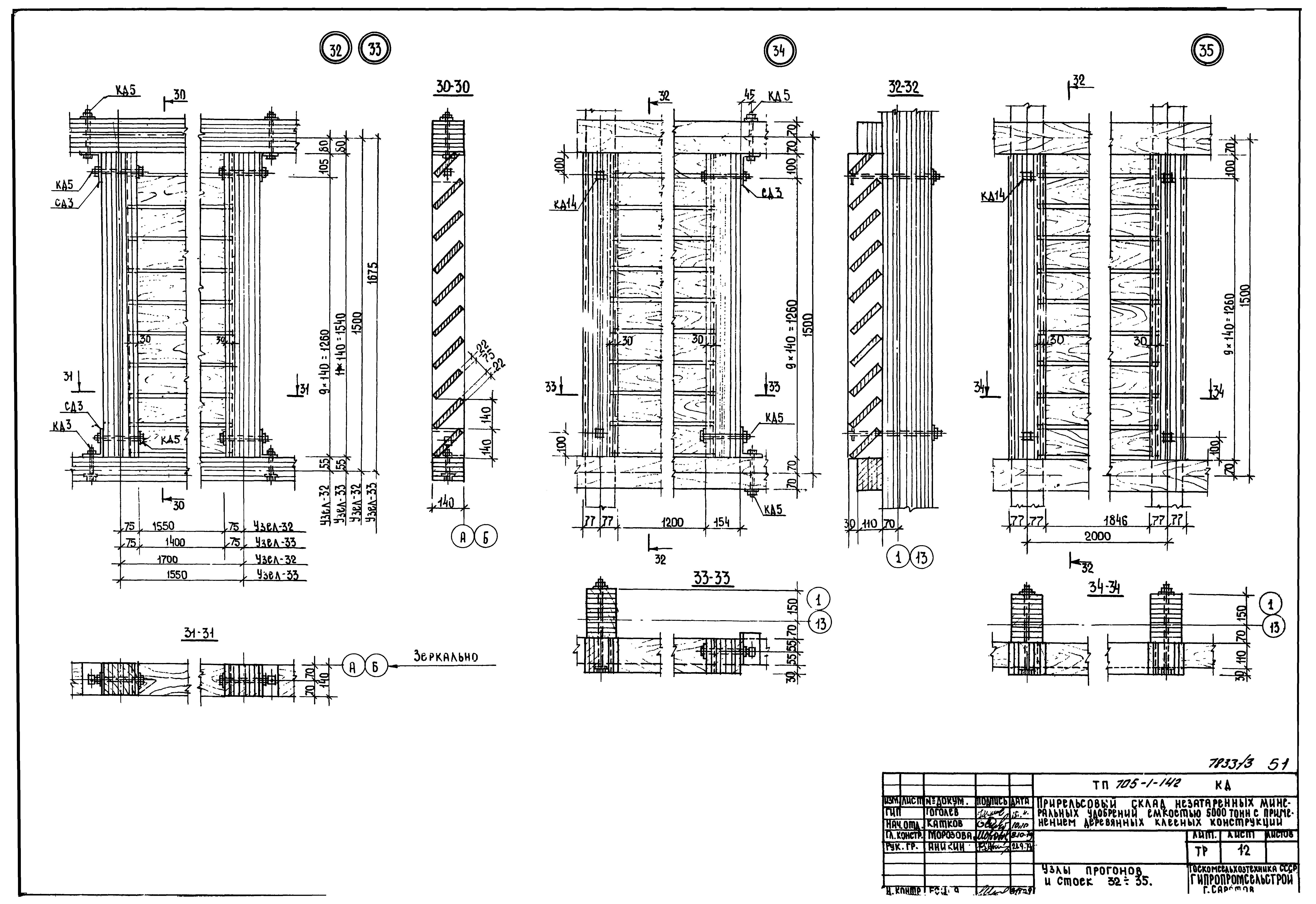
| Оглавление: | ТП 705-1-142-СА-1 Содержание альбома ТП 705-1-142-АР Архитектурно-строительные решения ТП 705-1-142-АР-1-3 Общие данные ТП 705-1-142-АР-4 Компоновочная схема склада ТП 705-1-142 Блок складов ОВ ТП 705-1-142-АР-5 План на отм. 0.000. Разрез 1-1 ТП 705-1-142-АР-6 Фасады 1-15,15-1,А-Б,Б-А ТП 705-1-142-АР-7 Разрез 2-2. Узлы 1-6 ТП 705-1-142-АР-8 Узлы 7-11. Планы кровли и полов ТП 705-1-142 Перегрузочная станция ТП 705-1-142-АР-9 Фасады. План. Разрез. Планы полов, перемычек, кровли. План колодцев под анкерные болты ТП 705-1-142 Галерея ТП 705-1-142-АР-10 Фасады. План. Разрезы. Планы полов, перемычек, кровли. План колодцев под анкерные болты ТП 705-1-142-КЖ Конструкции железобетонные ТП 705-1-142-КЖ-1-2 Общие данные ТП 705-1-142-КЖ-3 Маркировочная схема фундаментов в осях 1-13 ТП 705-1-142-КЖ-4 Маркировочная схема фундаментов в осях 13-17. Маркировочные схемы плит покрытия ТП 705-1-142-КЖ-5 Фундаменты ФМ1-ФМ3 ТП 705-1-142-КЖ-6 Фундаменты ФМ4-ФМ8 ТП 705-1-142-КЖ-7 Фундамент ФМ9 ТП 705-1-142-КЖ-8 Маркировочная схема подпорно-разделительных стенок ТП 705-1-142-КЖ-9 Маркировочная схема стоек подпорно-разделительных стенок ТП 705-1-142-КЖ-10 Узлы 1-6 ТП 705-1-142-КЖ-11 Закладные изделия МН1-МН7 ТП 705-1-142-КМ Конструкции металлические ТП 705-1-142-КМ-1-7 Общие данные ТП 705-1-142-КМ-8 Отгрузочный бункер с транспортерной эстакадой под конвейер № 2 ТП 705-1-142-КМ-9 Маркировочные схемы элементов площадок, кровли, связей, фахверка ТП 705-1-142-КМ-10 Маркировочные схемы бункеров и бункерных балок, элементов площадки на отм. 3.00, подвески монорельса ТП 705-1-142-КМ-11 Пролетное строение ПС12 ТП 705-1-142-КМ-12 Опоры 01,02 ТП 705-1-142-КМ-13 Узлы 1-7 ТП 705-1-142-КМ-14 Узлы 8-18 ТП 705-1-142-КМ-15 Узлы 19-23 ТП 705-1-142-КМ-16 Маркировочные схемы лестниц ЛМ1-ЛМ6. Решетка ОР1 ТП 705-1-142-КД Конструкции деревянные ТП 705-1-142-КД-1-2 Общие данные ТП 705-1-142-КД-3 Маркировочная схема каркаса. Разрез 1-1 ТП 705-1-142-КД-4 Разрезы 2-2 и 3-3. Сечение а-а. Узлы каркаса 1-5 ТП 705-1-142-КД-5 Узлы каркаса 6-14 ТП 705-1-142-КД-6 Узлы каркаса 15-20 ТП 705-1-142-КД-7 Маркировочные схемы прогонов и стоек ТП 705-1-142-КД-8 Маркировочные схемы прогонов и стоек торцевых фахверков. Разрез 1-1. Узлы 1-4 ТП 705-1-142-КД-9 Узлы прогонов и стоек 5-13 ТП 705-1-142-КД-10 Узлы прогонов и стоек 14-22 ТП 705-1-142-КД-11 Узлы прогонов и стоек 23-31 ТП 705-1-142-КД-12 Узлы прогонов и стоек 32-35 ТП 705-1-142-КД-13 Маркировочная схема транспортерной галереи на отм. 11.200. Разрез 1-1. Узлы 1-5 ТП 705-1-142-КД-14 Узлы 6-13 к маркировочной схеме транспортерной галереи на отм. 11.200 ТП 705-1-142-КД-15 Заготовительные деревянные клееные изделия для маркировочной схемы каркаса ТП 705-1-142-КД-16 Заготовительные деревянные клееные изделия для маркировочных схем прогонов и стоек ТП 705-1-142-КД-17 Заготовительные деревянные клееные изделия для маркировочной схемы транспортерной галереи на отм 11.200 ТП 705-1-142-КД-18-20 Заготовительные стальные изделия для маркировочной схемы каркаса ТП 705-1-142-КД-21-22 Заготовительные стальные изделия для маркировочных схем прогонов и стоек ТП 705-1-142-КД-23-24 Заготовительные стальные изделия для маркировочной схемы транспортерной галереи на отм 11.200 ТП 705-1-142-ОВ Решения по вентиляции ТП 705-1-142-ОВ-1 Общие данные (начало) ТП 705-1-142-ОВ-2 Общие данные (окончание) ТП 705-1-142-ОВ-3 План. Разрез 1-1. Сводная спецификация систем вентиляции ТП 705-1-142-ОВ-4 План на отм. 6.400. Разрезы 2-2,3-3. Схему АТУ-1 выхлопной патрубок вентилятора. Местные отсосы от оборудования |
| Разработан: | Гипропромсельстрой |
| Утверждён: | 28.09.1979 Госкомсельхозтехника СССР (82) |




































































