Скачать Типовой проект 705-1-142 Альбом IV. Электротехнические чертежи. Чертежи по связи и сигнализации. Чертежи задания заводу-изготовителюДата актуализации: 01.01.2021
|
| Обозначение: | Типовой проект 705-1-142 |
| Обозначение англ: | 705-1-142 |
| Статус: | не действует |
| Название рус.: | Альбом IV. Электротехнические чертежи. Чертежи по связи и сигнализации. Чертежи задания заводу-изготовителю |
| Дата добавления в базу: | 01.09.2013 |
| Дата актуализации: | 01.01.2021 |
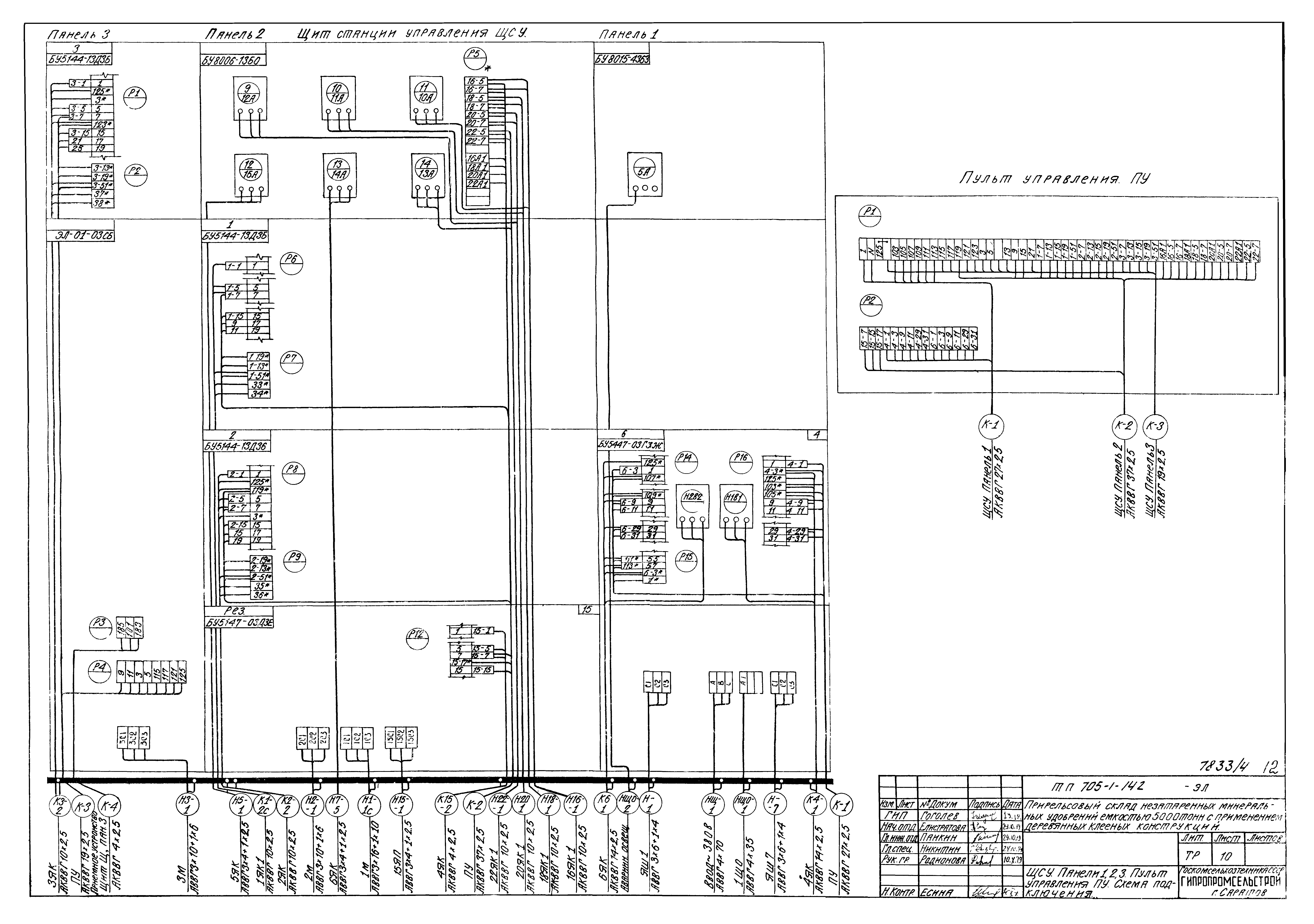
| Оглавление: | ТП 705-1-142-СА Содержание альбома ТП 705-1-142-ЭЛ Электротехнические устройства ТП 705-1-142-ЭЛ-1...ЭЛ-4 Общие данные ТП 705-1-142-ЭЛ-5,ЭЛ-6 Принципиальная однолинейная схема ТП 705-1-142-ЭЛ-7 Схемы: электрическая принципиальная, функциональная, блокировочных зависимостей ТП 705-1-142-ЭЛ-8 Схемы: электрическая принципиальная, сигнализации ТП 705-1-142-ЭЛ-9 Шибер 4(6). Аспирация 15. Вентиляторы 16,17 (18...23). Вибратор 7(8). Схема электрическая принципиальная ТП 705-1-142-ЭЛ-10 ЩСУ. Панели 1,2,3. Пульт управления ПУ. Схема подключений ТП 705-1-142-ЭЛ-11 Вентиляторы 16...23. Шибер 6. Вибраторы 7,8. Аспирация 15. Шибер 4. Конвейеры 1,2,3. Схемы подключения ТП 705-1-142-ЭЛ-12 Схема расположения. Компоновочная схема склада ТП 705-1-142-ЭЛ-13 Помещение склада. Схема расположения. План на отм. 11.200 ТП 705-1-142-ЭЛ-14,ЭЛ-15 Кабельный журнал ТП 705-1-142-ЭЛ Электроосвещение ТП 705-1-142-ЭЛ-16 План на отм. 0.000. Комплектные узлы ТП 705-1-142-ЭЛ-17 Планы на отм. 0.000;6.400;11.200;13.250. Таблица пунктов и щитков. Разрез 1-1 ТП 705-1-142-ЭЛ Силовое электрооборудование ТП 705-1-142-ЭЛ-18 План магистралей заземления. Схема молниезащиты ТП 705-1-142 Устройство связи ТП 705-1-142-СУ-1 Общие данные. План на отм. 0.000 ТП 705-1-142 Задание заводу-изготовителю ТП 705-1-142-ЭЛ-00-00 Перечень чертежей ТП 705-1-142-ЭЛ-01-00 СБ Щит управления крупноблочный в шкафах ЩСУ. Общий вид ТП 705-1-142-ЭЛ-01-00-1 Щит управления крупноблочный в шкафах ЩСУ. Технические данные электрооборудования ТП 705-1-142-ЭЛ-01-00-2 Щит управления крупноблочный в шкафах ЩСУ. Перечень надписей ТП 705-1-142-ЭЛ-01-03 СБ Щит управления крупноблочный в шкафах ЩСУ. Панель 3. Блок релейный. Общий вид ТП 705-1-142-ЭЛ-01-03-1 Щит управления крупноблочный в шкафах ЩСУ. Панель 3. Блок релейный. Технические данные электрооборудования ТП 705-1-142-ЭЛ-01-00СХ1 Щит управления крупноблочный в шкафах ЩСУ. Панель 1. Схема соединений ТП 705-1-142-ЭЛ-01-00СХ2 Щит управления крупноблочный в шкафах ЩСУ. Панель 2. Схема соединений ТП 705-1-142-ЭЛ-01-03СХ Щит управления крупноблочный в шкафах ЩСУ. Панель 3. Схема соединений ТП 705-1-142-ЭЛ-02-00 СБ Пульт управления ПУ. Общий вид ТП 705-1-142-ЭЛ-02-00-1 Пульт управления ПУ. Технические данные электрооборудования ТП 705-1-142-ЭЛ-02-00-2 Пульт управления ПУ. Перечень надписей ТП 705-1-142-ЭЛ-02-00СХ Пульт управления ПУ. Схема соединений |
| Разработан: | Гипропромсельстрой |
| Утверждён: | 28.09.1979 Госкомсельхозтехника СССР (82) |





























