Скачать Типовой проект 705-1-143 Альбом I. Пояснительная записка. Технологические чертежиДата актуализации: 01.01.2021
|
| Обозначение: | Типовой проект 705-1-143 |
| Обозначение англ: | 705-1-143 |
| Статус: | не действует |
| Название рус.: | Альбом I. Пояснительная записка. Технологические чертежи |
| Дата добавления в базу: | 01.09.2013 |
| Дата актуализации: | 01.01.2021 |
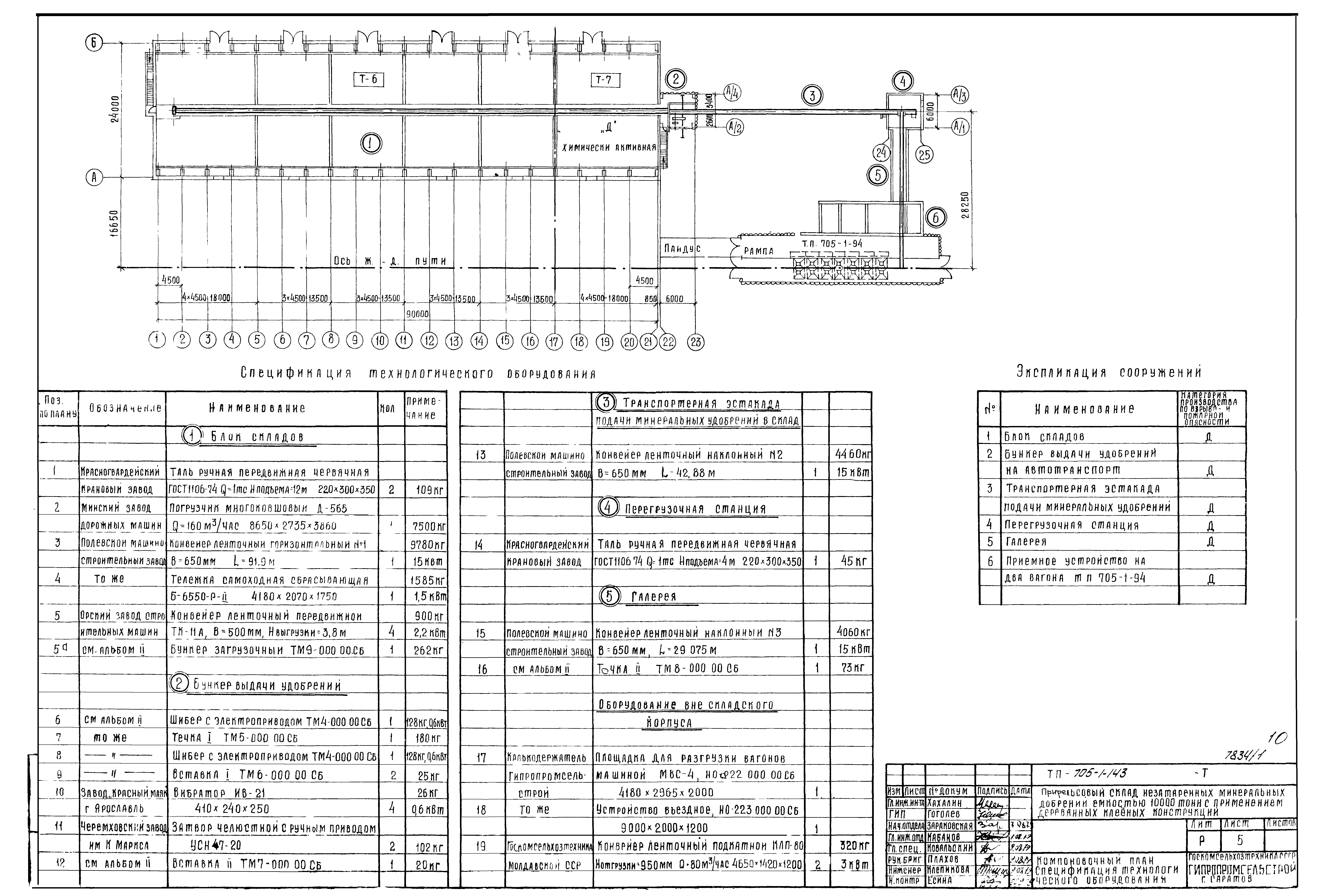
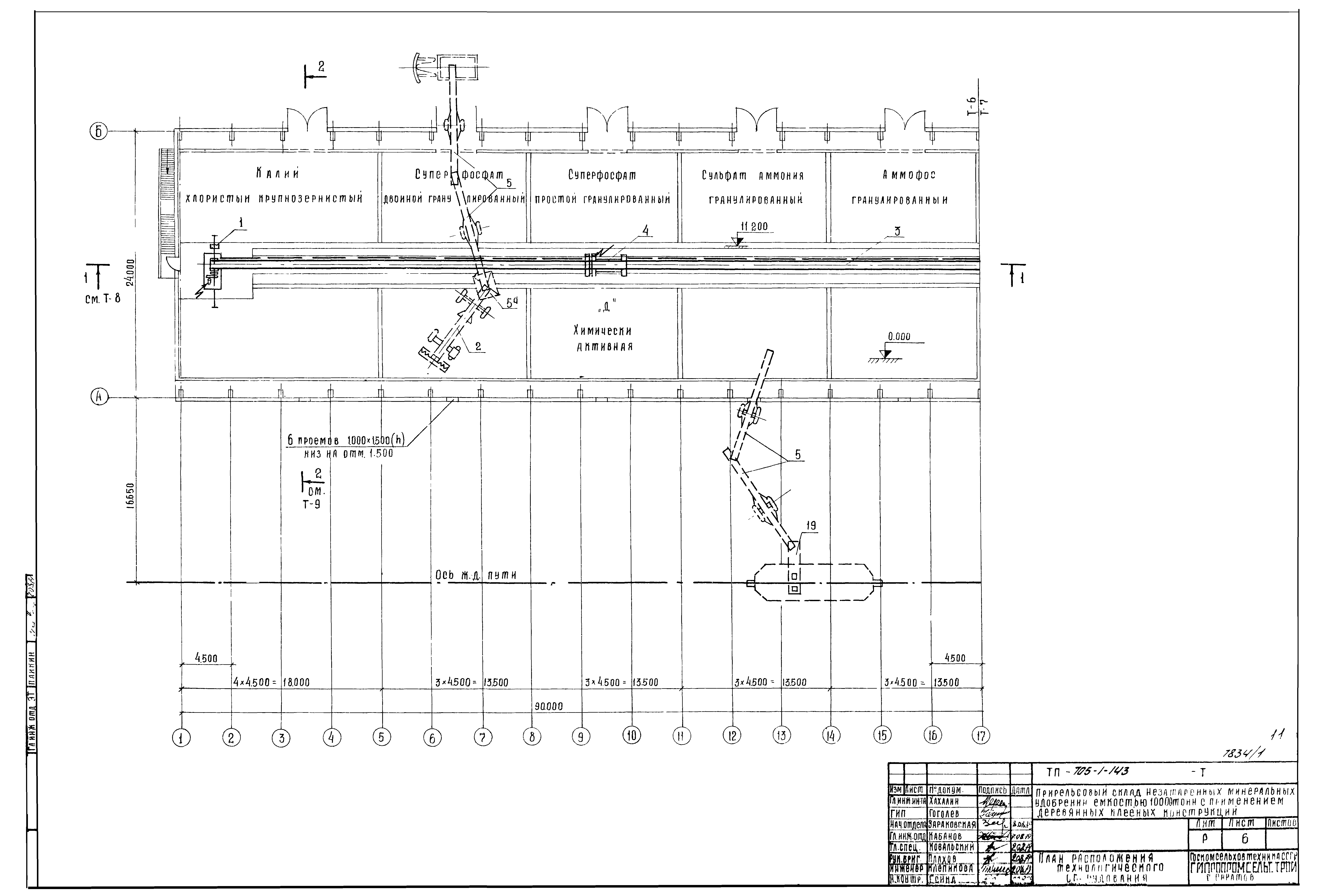
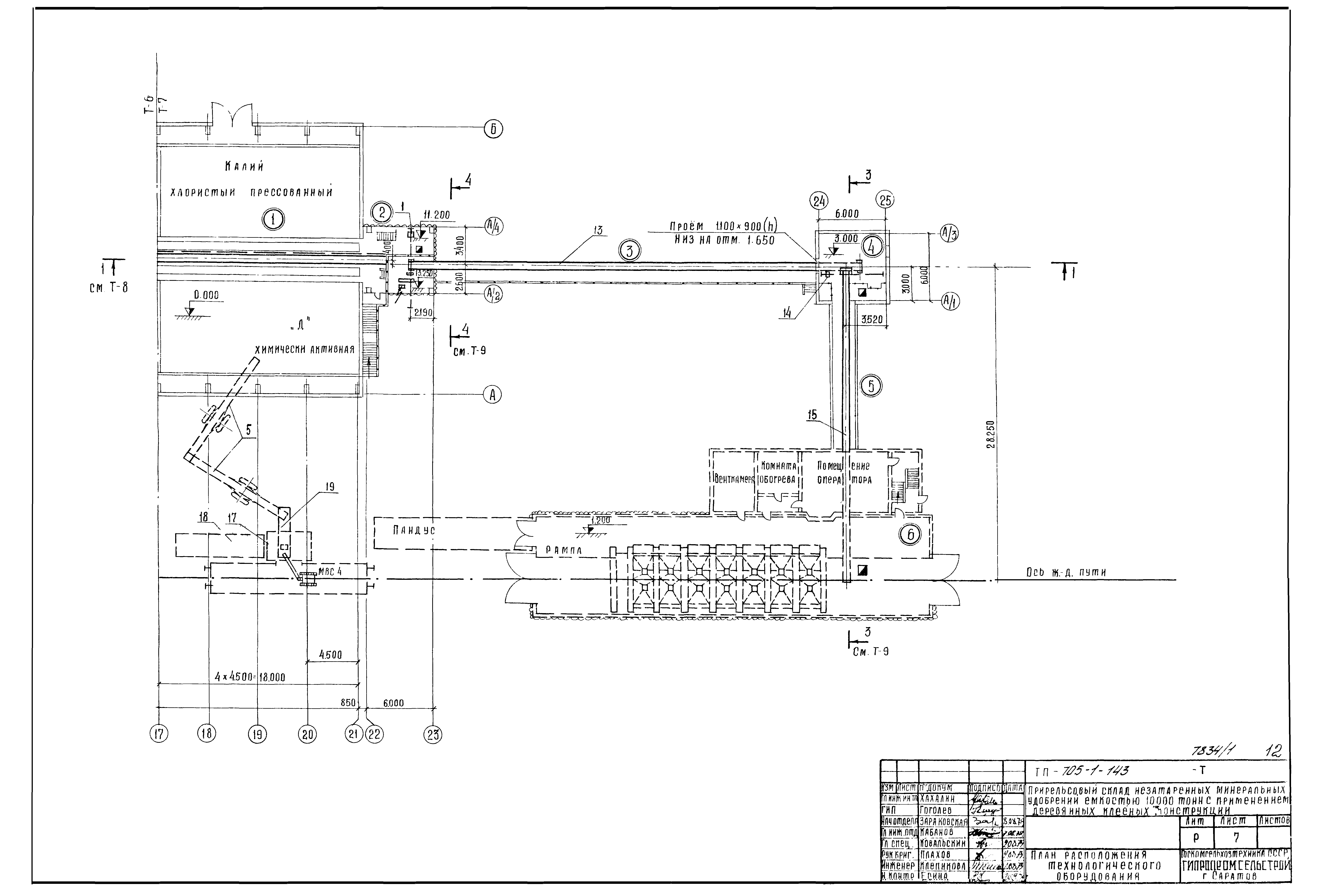
| Оглавление: | ТП 705-1-143-СА-1 Содержание альбома ТП 705-1-143-0-1 Пояснительная записка ТП 705-1-143-0-2 Пояснительная записка ТП 705-1-143-ГП-1 Схема генерального плана ТП 705-1-143-Т Технологические решения ТП 705-1-143-Т1 Общие данные (начало) ТП 705-1-143-Т-4 Общие данные (окончание) ТП 705-1-143-Т-5 Компоновочный план и спецификация технологического оборудования ТП 705-1-143-Т-6-Т-7 План расположения технологического оборудования ТП 705-1-143-Т-8 Разрез 1-1 ТП 705-1-143-Т-9 Разрез 2-2,3-3. Вид 4-4 |
| Разработан: | Гипропромсельстрой |
| Утверждён: | 28.09.1979 Госкомсельхозтехника СССР (82) |














