Скачать Типовой проект 705-1-143 Альбом II. Часть 1. Технолого-механические чертежиДата актуализации: 01.01.2021
|
| Обозначение: | Типовой проект 705-1-143 |
| Обозначение англ: | 705-1-143 |
| Статус: | не действует |
| Название рус.: | Альбом II. Часть 1. Технолого-механические чертежи |
| Дата добавления в базу: | 01.09.2013 |
| Дата актуализации: | 01.01.2021 |
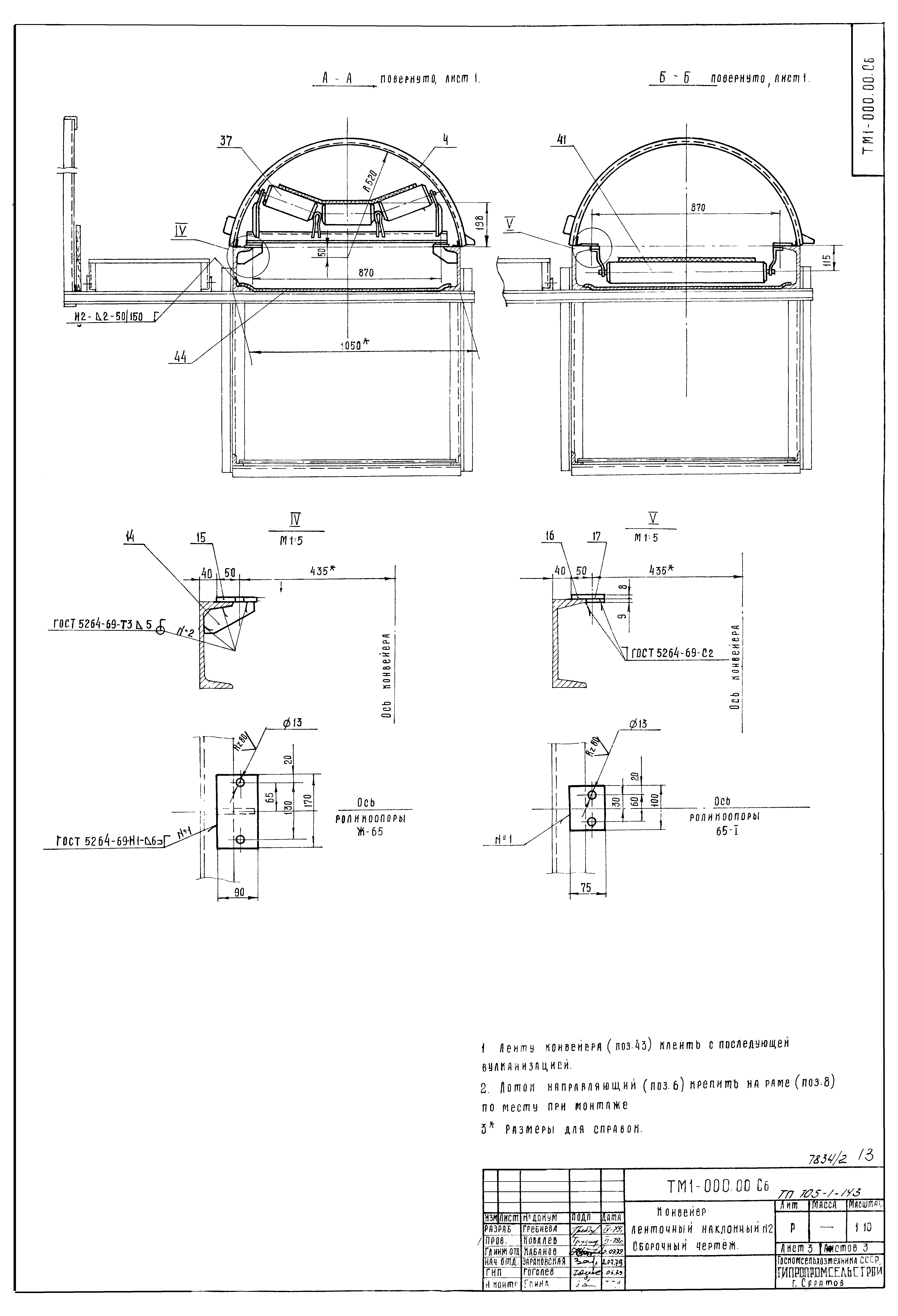
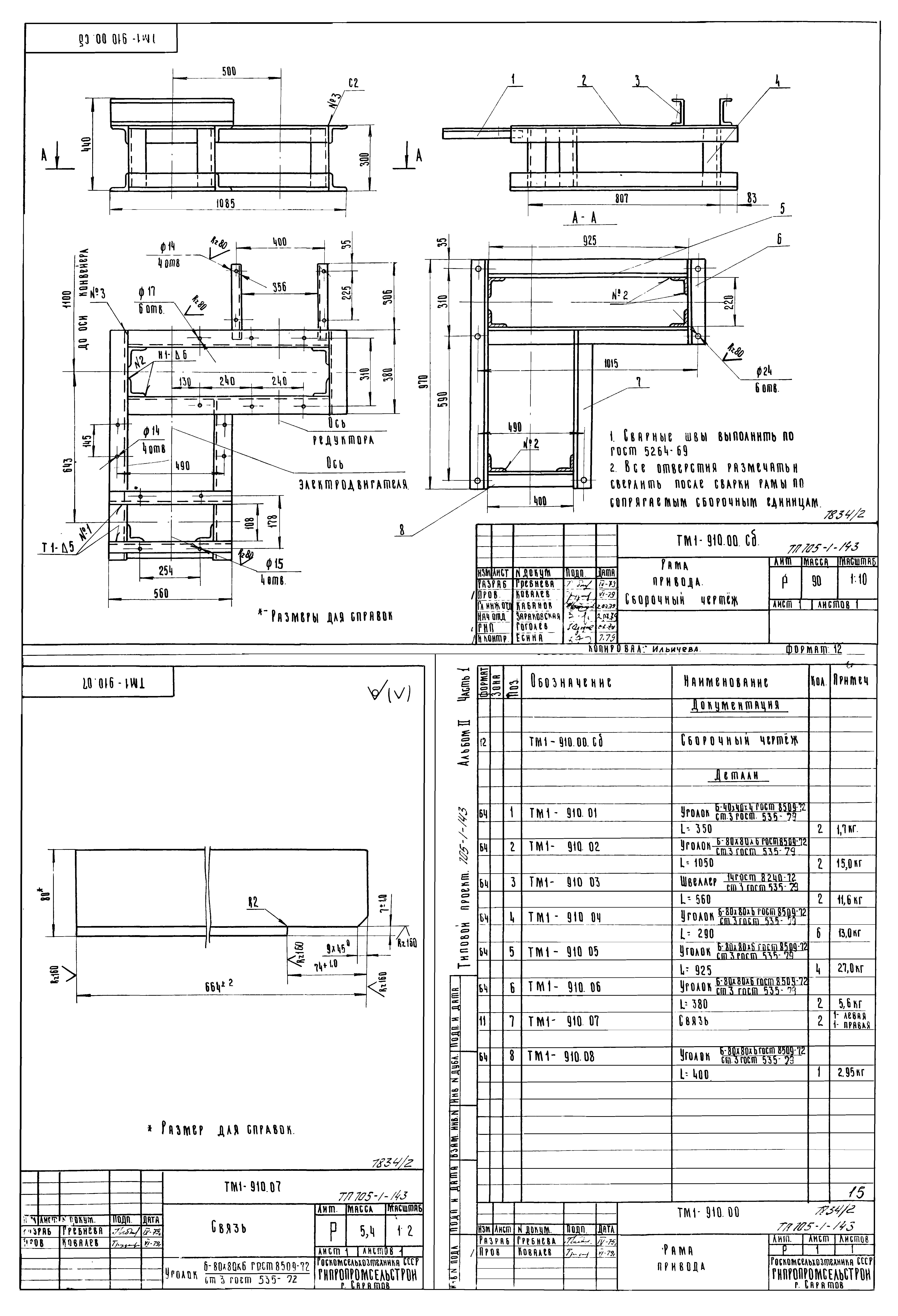
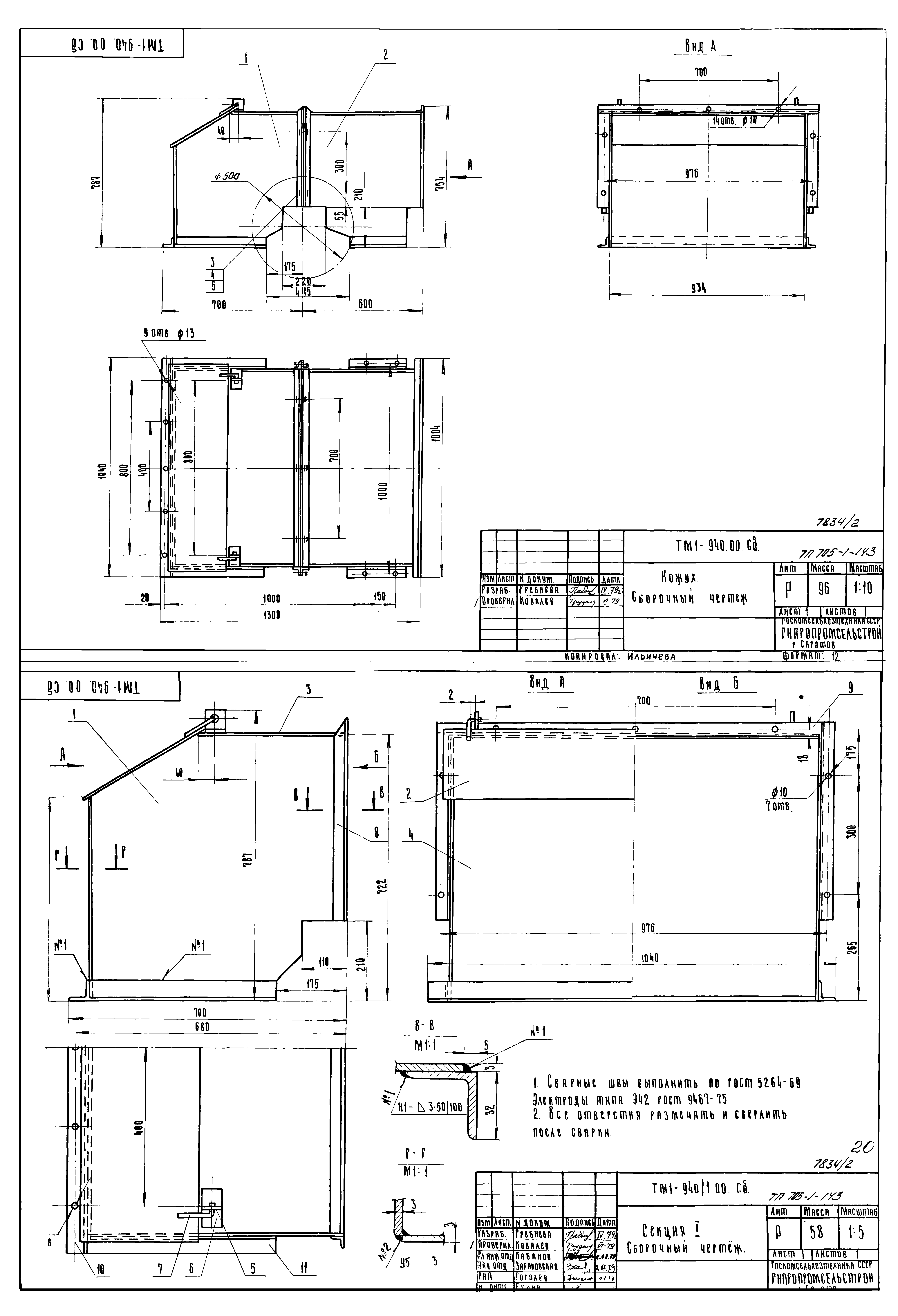
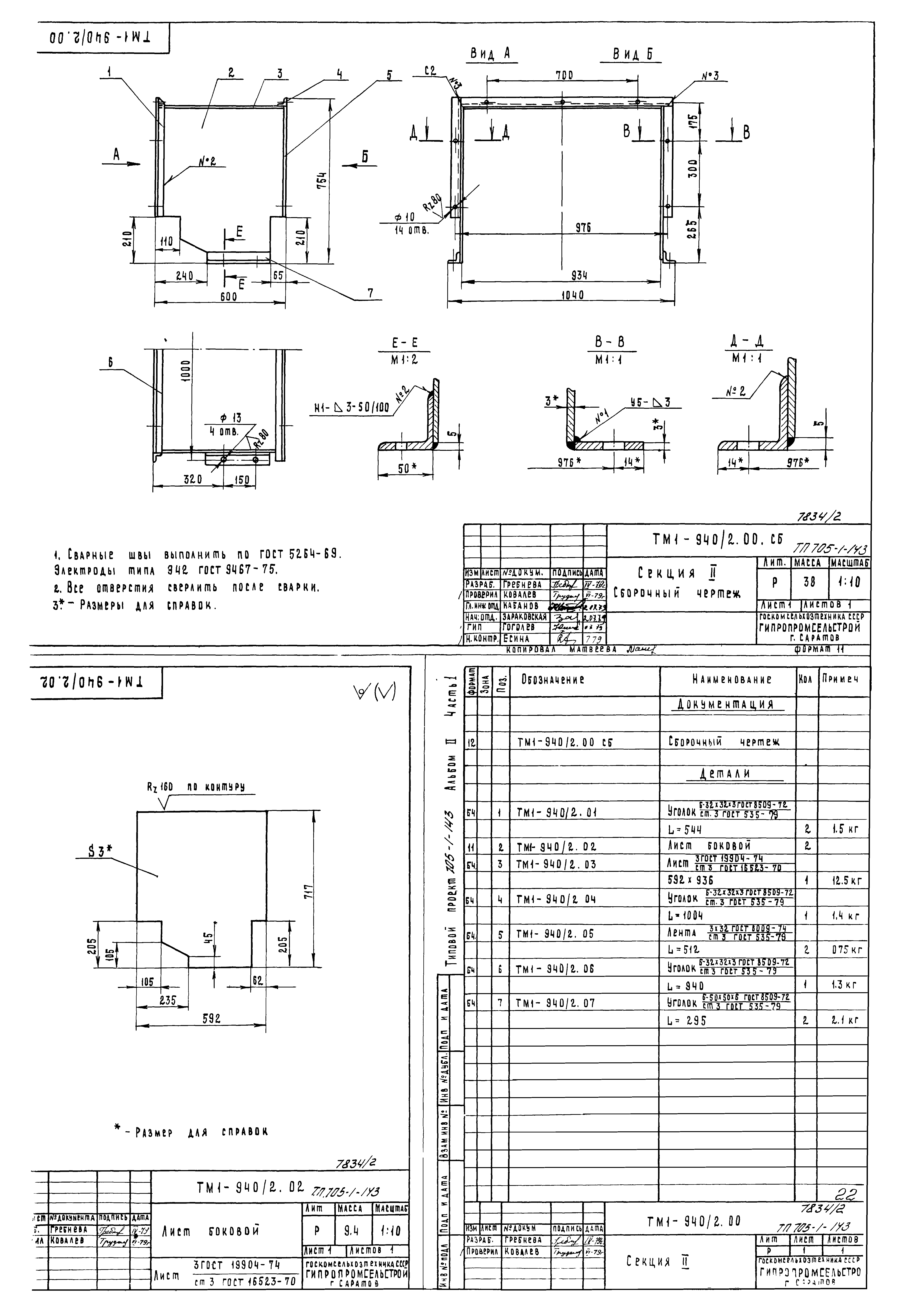
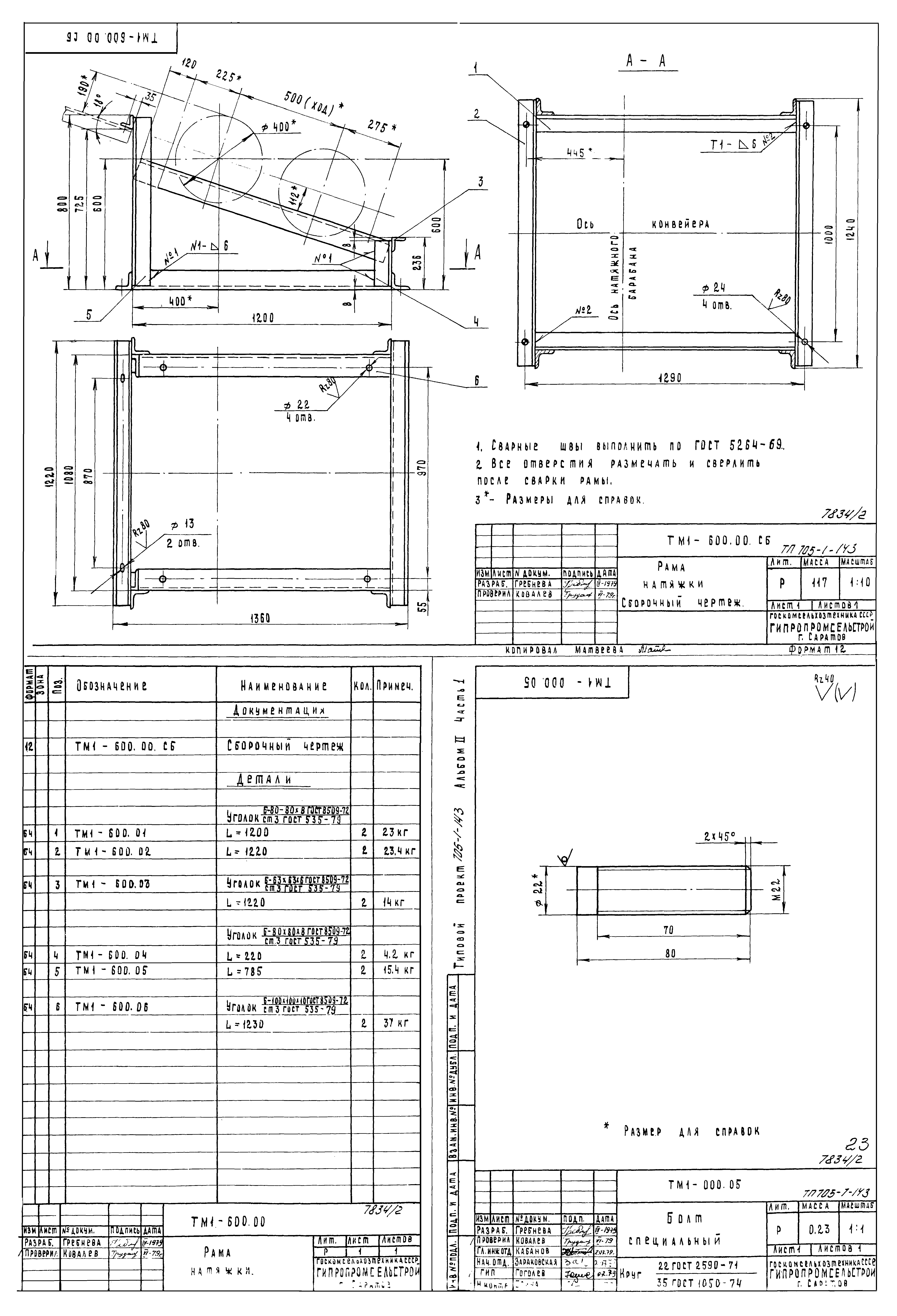
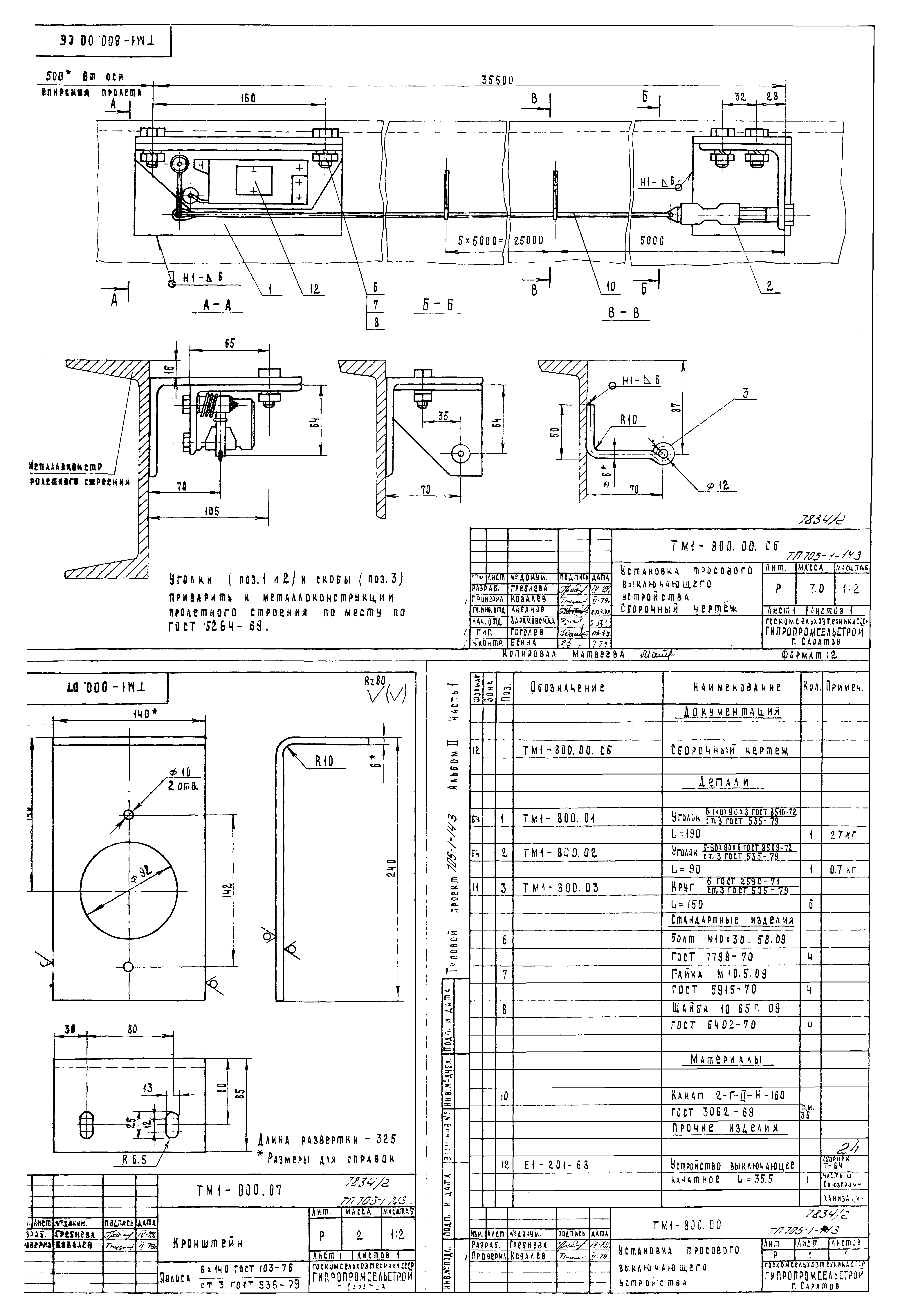
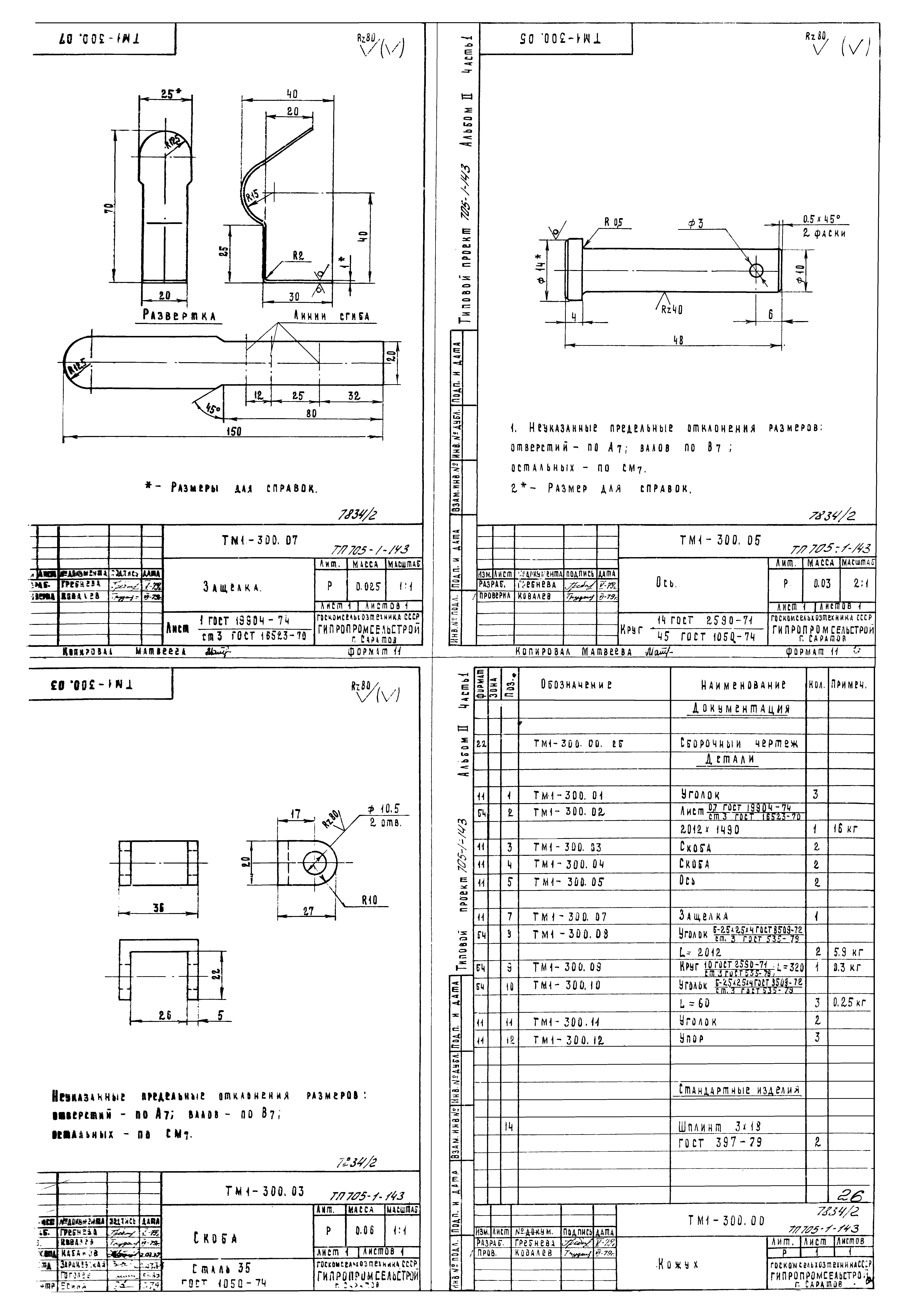
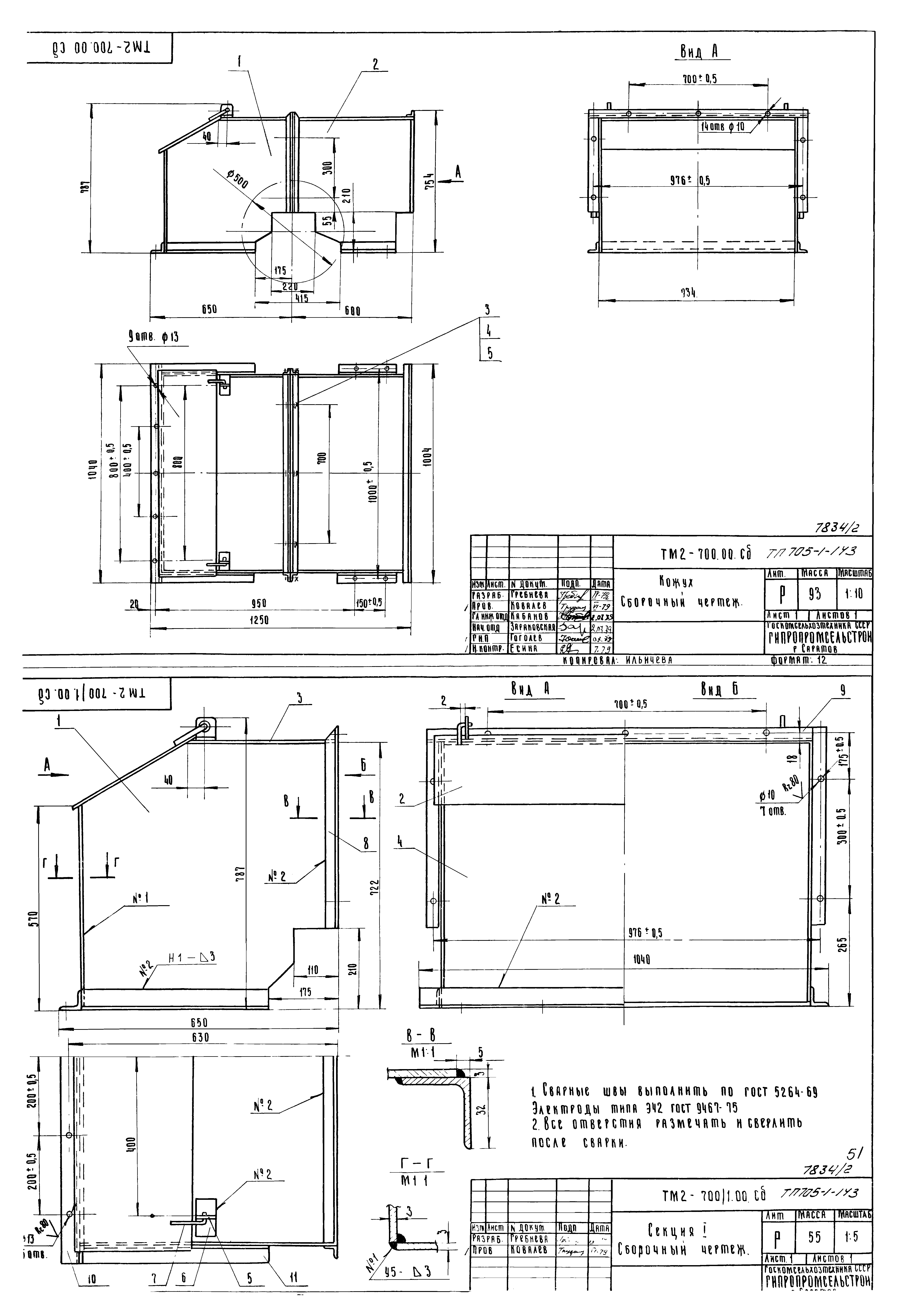
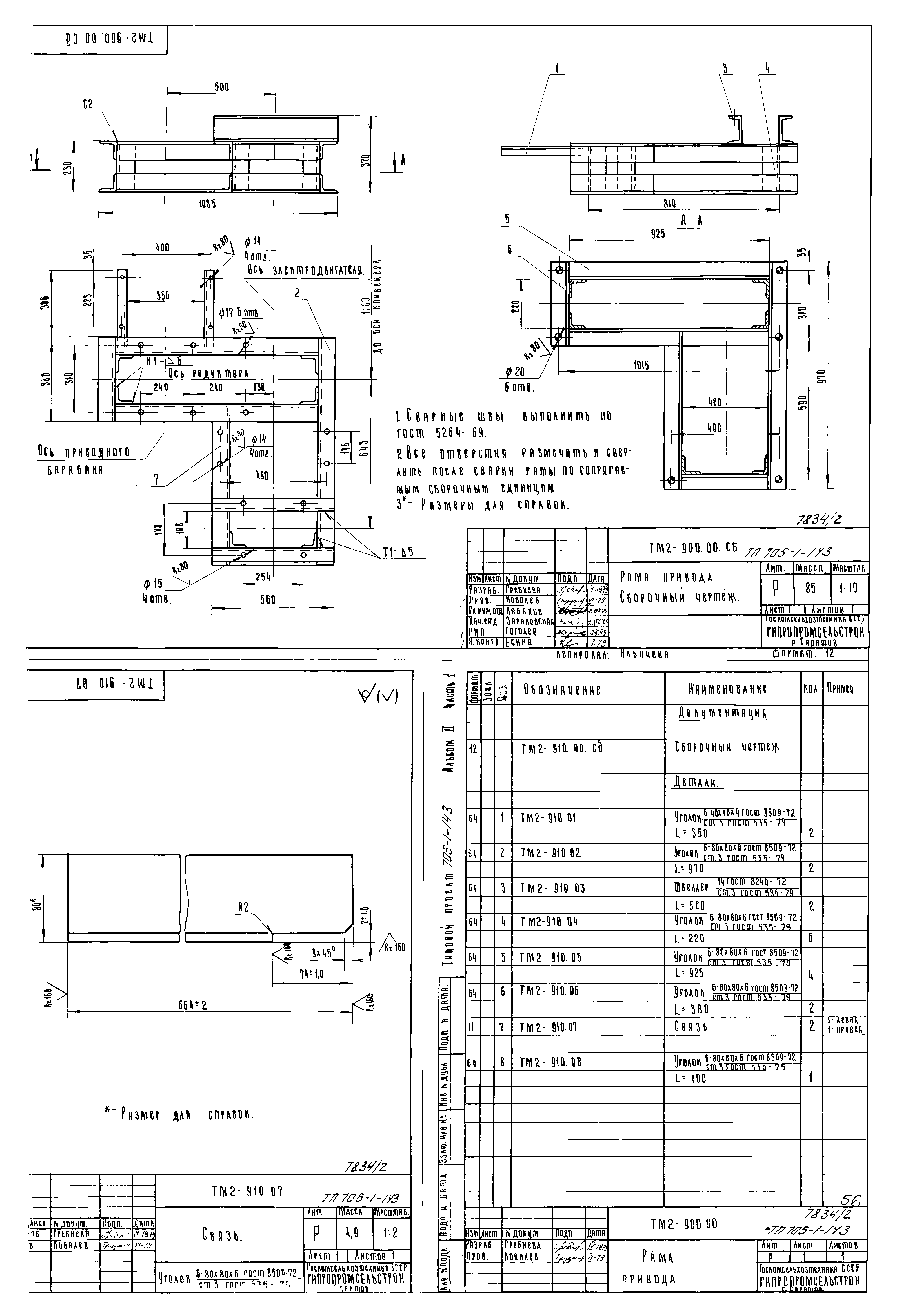
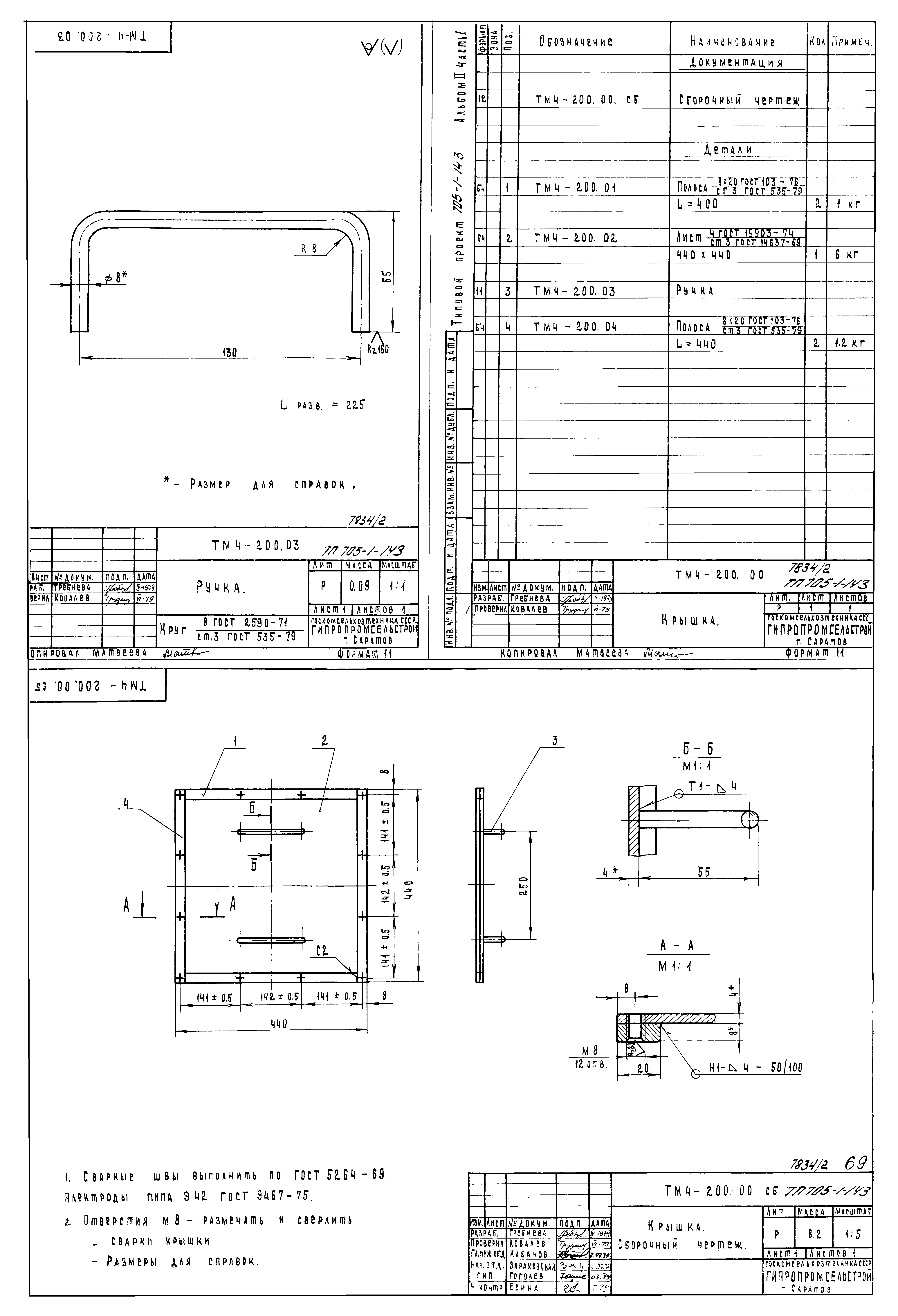
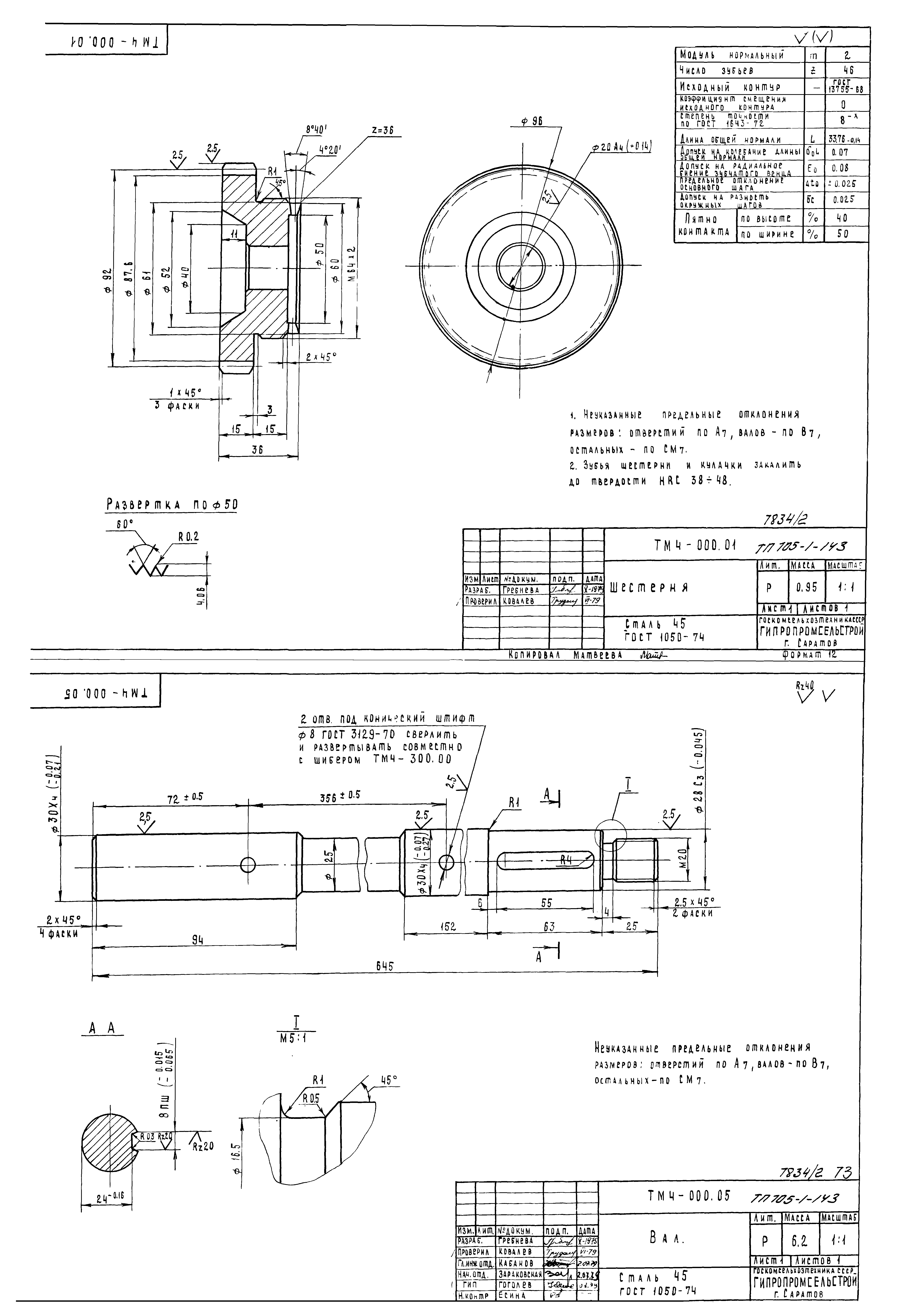
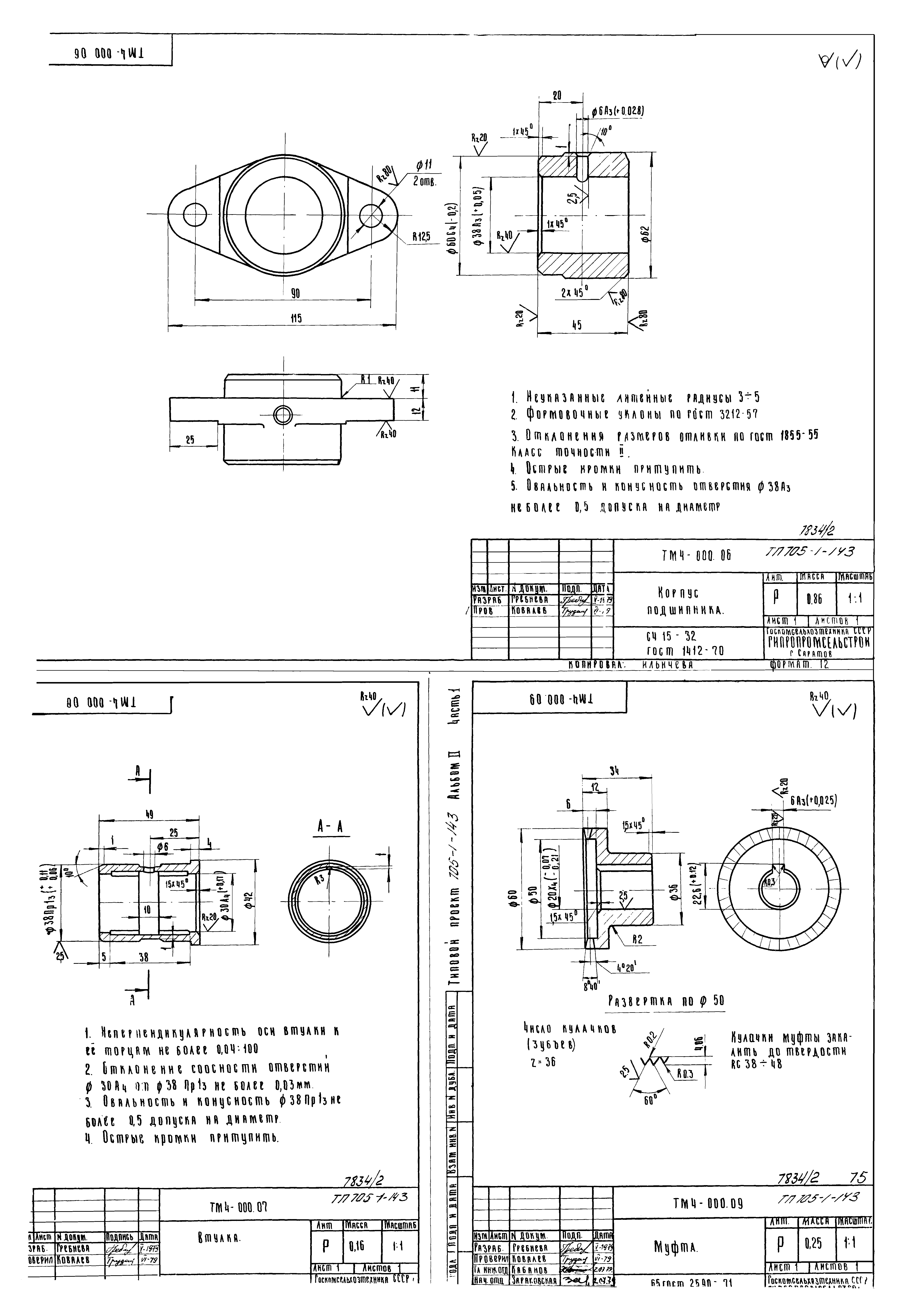
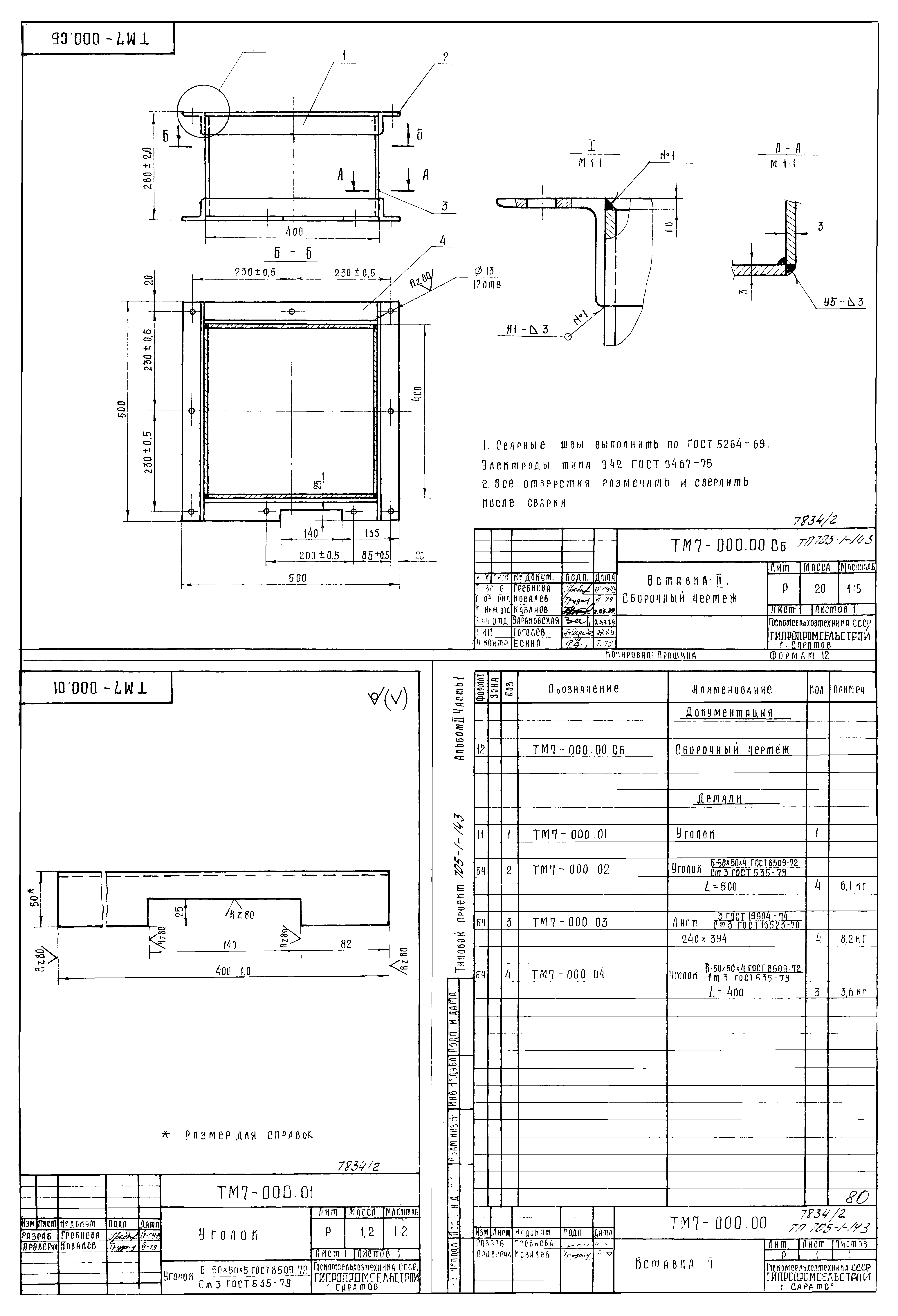
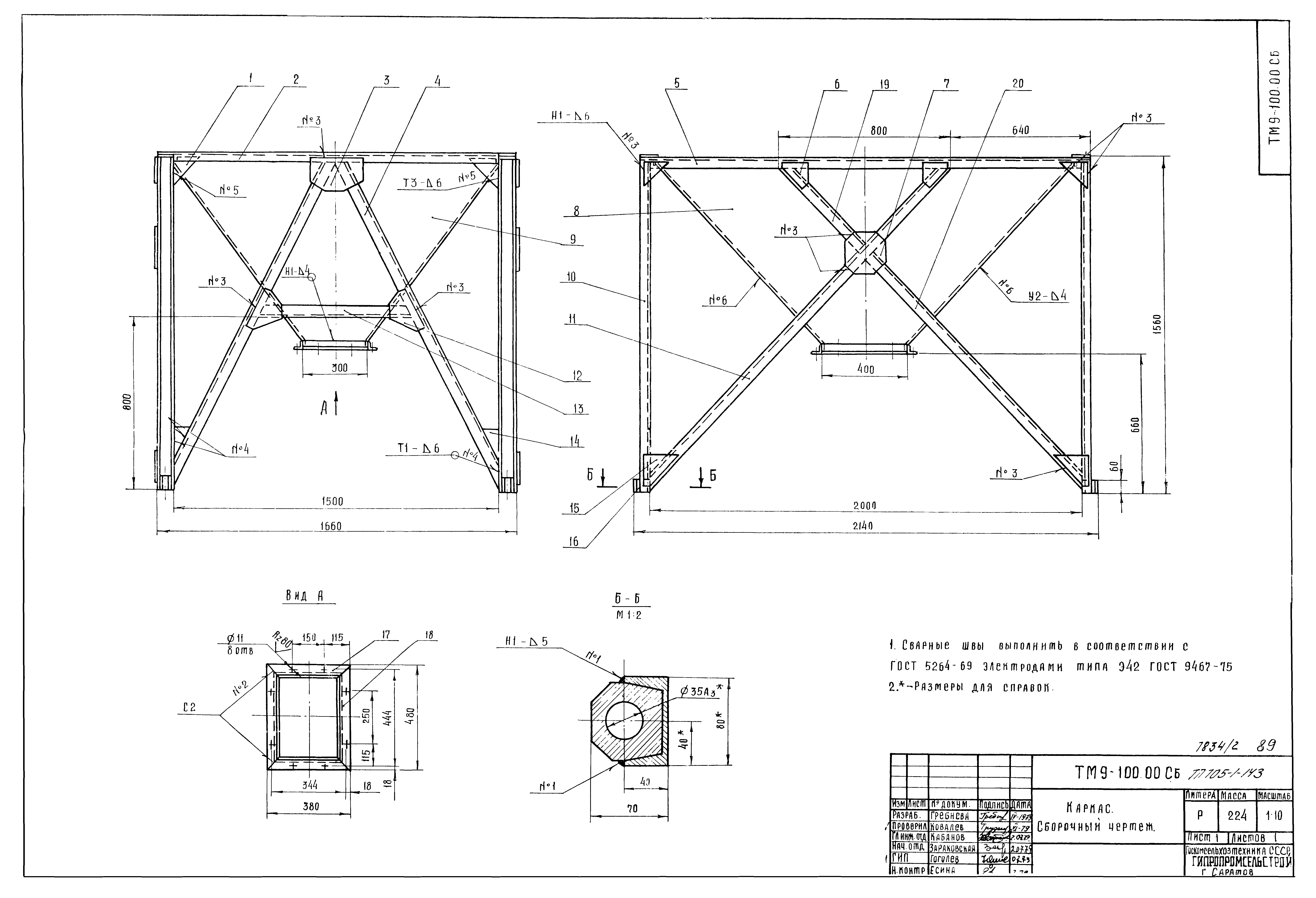
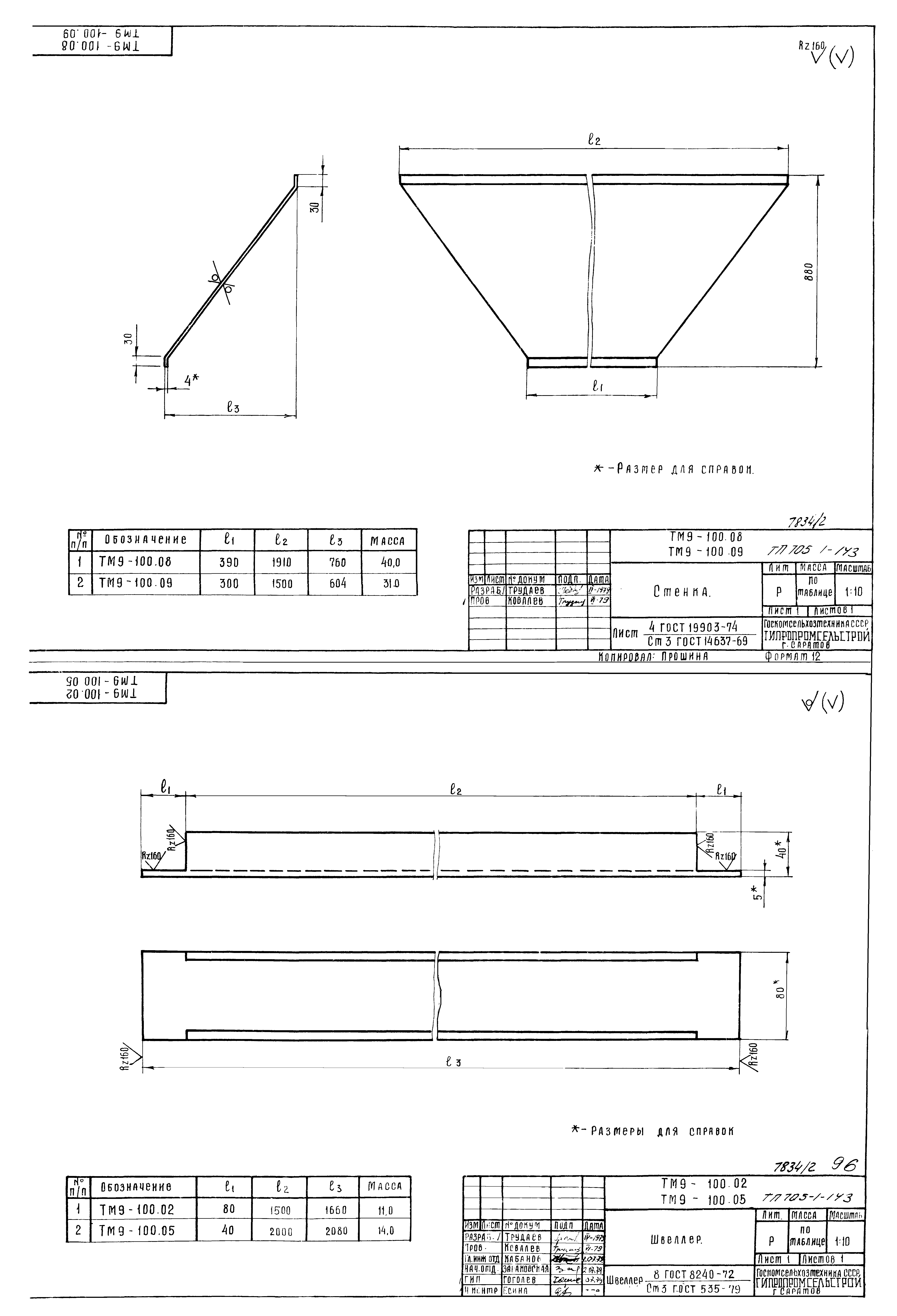
| Оглавление: | ТП 705-1-143 ТМ0-000.00 СА Содержание альбома Часть 1 ТП 705-1-143 ТИ0-000.00 ТУ Технические условия ТП 705-1-143 ТМ1-000.00 Конвейер ленточный наклонный № 2. Спецификация ТП 705-1-143 ТМ1-510.03 Косынка ТП 705-1-143 ТМ1-000.00 ВП Конвейер ленточный наклонный № 2. Ведомость покупных изделий ТП 705-1-143 ТМ1-000.00 ВС Конвейер ленточный наклонный № 2. Ведомость спецификаций ТП 705-1-143 ТМ1-000.00 СБ Конвейер ленточный наклонный № 2. Сборочный чертеж ТП 705-1-143 ТМ1-900.00 СБ Станция приводная. Сборочный чертеж ТП 705-1-143 ТМ1-900.00 Станция приводная. Спецификация ТП 705-1-143 ТМ1-910.00 СБ Рама привода. Сборочный чертеж ТП 705-1-143 ТМ1-910.00 Рама привода. Спецификация ТП 705-1-143 ТМ1-910.07 Связь ТП 705-1-143 ТМ1-920.00 СБ Рама приводного барабана. Сборочный чертеж ТП 705-1-143 ТМ1-920.00 Рама приводного барабана. Спецификация ТП 705-1-143 ТМ1-900.01 Ограждение муфты ТП 705-1-143 ТМ1-900.03 Кронштейн ТП 705-1-143 ТМ1-900.02 Ограждение муфты ТП 705-1-143 ТМ1-930.00 СБ Воронка. Сборочный чертеж ТП 705-1-143 ТМ1-930.00 Воронка. Спецификация ТП 705-1-143 ТМ1-930.07 Стенка левая ТП 705-1-143 ТМ1-930.05 Стенка Правая ТП 705-1-143 ТМ1-930.02 Стенка прямая ТП 705-1-143 ТМ1-930.01 Стенка наклонная ТП 705-1-143 ТМ1-000.01 Ребро ТП 705-1-143 ТМ1-940.00 СБ Кожух. Сборочный чертеж ТП 705-1-143 ТМ1-940/1.00 СБ Секция 1. Сборочный чертеж ТП 705-1-143 ТМ1-940.00 Кожух. Спецификация ТП 705-1-143 ТМ1-940/1.00 Секция 1. Спецификация ТП 705-1-143 ТМ1-940/1.01 Лист боковой ТП 705-1-143 ТМ1-940/1.05 Ушко ТП 705-1-143 ТМ1-940/2.00 СБ Секция 2. Сборочный чертеж ТП 705-1-143 ТМ1-940/2.00 Секция 2. Спецификация ТП 705-1-143 ТМ1-940/2.02 Лист боковой ТП 705-1-143 ТМ1-600.00 СБ Рама натяжки. Сборочный чертеж ТП 705-1-143 ТМ1-600.00 Рама натяжки. Спецификация ТП 705-1-143 ТМ1-600.05 Болт специальный ТП 705-1-143 ТМ1-800.00 СБ Установка троссового выключающего устройства. Сборочный чертеж ТП 705-1-143 ТМ1-800.00 Установка троссового выключающего устройства. Спецификация ТП 705-1-143 ТМ1-000.07 Кронштейн ТП 705-1-143 ТМ1-300.00 СБ Кожух. Сборочный чертеж ТП 705-1-143 ТМ1-300.00 Кожух. Спецификация ТП 705-1-143 ТМ1-300.05 Ось ТП 705-1-143 ТМ1-300.07 Защелка ТП 705-1-143 ТМ1-300.03 Скоба ТП 705-1-143 ТМ1-300.01 Уголок ТП 705-1-143 ТМ1-300.11 Уголок ТП 705-1-143 ТМ1-300.04 Скоба ТП 705-1-143 ТМ1-300.12 Упор ТП 705-1-143 ТМ1-400.00 СБ Установка датчика контроля наличия материала на ленте. Сборочный чертеж ТП 705-1-143 ТМ1-400.00 Установка датчика контроля наличия материала на ленте. Спецификация ТП 705-1-143 ТМ1-400.01 Косынка ТП 705-1-143 ТМ1-1000.00 СБ Кронштейн. Сборочный чертеж ТП 705-1-143 ТМ1-1000.00 Кронштейн. Спецификация ТП 705-1-143 ТМ1-000.06 Болт фундаментный ТП 705-1-143 ТМ1-700.00 СБ Рама концевая. Сборочный чертеж ТП 705-1-143 ТМ1-700.03 Связка ТП 705-1-143 ТМ1-700.05 Стойка ТП 705-1-143 ТМ1-700.04 Подкос ТП 705-1-143 ТМ1-700.00 Рама концевая. Спецификация ТП 705-1-143 ТМ1-200.00 СБ Рама головная. Сборочный чертеж ТП 705-1-143 ТМ1-200.00 Рама головная. Спецификация ТП 705-1-143 ТМ1-700.08 Косынка ТП 705-1-143 ТМ1-500.00 СБ Лоток направляющий. Сборочный чертеж ТП 705-1-143 ТМ1-500.00 Лоток направляющий. Спецификация ТП 705-1-143 ТМ1-520.02 Щека ТП 705-1-143 ТМ1-520.01 Стенка ТП 705-1-143 ТМ1-520.00 СБ Стенка торцевая. Сборочный чертеж ТП 705-1-143 ТМ1-520.00 Стенка торцевая. Спецификация ТП 705-1-143 ТМ1-500.01 Полоса ТП 705-1-143 ТМ1-510.00 Стенка боковая. Спецификация ТП 705-1-143 ТМ1-510.00 СБ Стенка боковая. Сборочный чертеж ТП 705-1-143 ТМ1-500.04 Завеса ТП 705-1-143 ТМ1-500.05 Полоса ТП 705-1-143 ТМ1-520.03 Полоса ТП 705-1-143 ТМ1-500.02 Стойка ТП 705-1-143 ТМ1-500.03 Стойка ТП 705-1-143 ТМ2-000.00 ВП Конвейер ленточный наклонный № 3. Ведомость покупных изделий ТП 705-1-143 ТМ2-000.00 ВС Конвейер ленточный наклонный № 3. Ведомость спецификации ТП 705-1-143 ТМ2-000.00 СБ Конвейер ленточный наклонный № 3. Сборочный чертеж ТП 705-1-143 ТМ2-000.00 Конвейер ленточный наклонный № 3. Спецификация ТП 705-1-143 ТМ2-100.00 СБ Рама натяжки. Сборочный чертеж ТП 705-1-143 ТМ2-200.00 СБ Рама концевая. Сборочный чертеж ТП 705-1-143 ТМ2-200.01 Связка ТП 705-1-143 ТМ2-200.00 Рама концевая. Спецификация ТП 705-1-143 ТМ2-400.00 Рама приводного барабана. Спецификация ТП 705-1-143 ТМ2-300.00 Рама средняя. Спецификация ТП 705-1-143 ТМ2-300.00 СБ Рама средняя. Сборочный чертеж ТП 705-1-143 ТМ2-400.00 СБ Рама приводного барабана. Сборочный чертеж ТП 705-1-143 ТМ2-500.00 СБ Рама головная. Сборочный чертеж ТП 705-1-143 ТМ2-500.00 Рама головная. Спецификация ТП 705-1-143 ТМ2-100.00 Рама натяжки. Спецификация ТП 705-1-143 ТМ2-600.00 СБ Лоток направляющий. Сборочный чертеж ТП 705-1-143 ТМ2-600.00 Лоток направляющий. Спецификация ТП 705-1-143 ТМ2-610.00 СБ Стенка боковая. Сборочный чертеж ТП 705-1-143 ТМ2-610.00 Стенка боковая. Спецификация ТП 705-1-143 ТМ2-610.01 Пластина ТП 705-1-143 ТМ2-600.01 Завеса ТП 705-1-143 ТМ2-600.02 Полоса ТП 705-1-143 ТМ2-600.03 Стойка ТП 705-1-143 ТМ2-620.04 Пластина ТП 705-1-143 ТМ2-620.00 СБ Стенка торцевая. Сборочный чертеж ТП 705-1-143 ТМ2-620.00 Стенка торцевая. Спецификация ТП 705-1-143 ТМ2-620.01 Стенка ТП 705-1-143 ТМ2-620.02 Стенка ТП 705-1-143 ТМ2-700.00 СБ Кожух. Сборочный чертеж ТП 705-1-143 ТМ2-700/1.00 СБ Секция 1. Сборочный чертеж ТП 705-1-143 ТМ2-700/1.01 Лист боковой ТП 705-1-143 ТМ2-700/1.05 Ушко ТП 705-1-143 ТМ2-700.00 Кожух. Спецификация ТП 705-1-143 ТМ2-700/1.00 Секция 1. Спецификация ТП 705-1-143 ТМ2-700/2.00 СБ Секция 2. Сборочный чертеж ТП 705-1-143 ТМ2-700/2.00 Секция 2. Спецификация ТП 705-1-143 ТМ2-700/2.02 Лист боковой ТП 705-1-143 ТМ2-800.00 СБ Воронка. Сборочный чертеж ТП 705-1-143 ТМ2-800.00 Воронка. Спецификация ТП 705-1-143 ТМ2-800.07 Стенка левая ТП 705-1-143 ТМ2-800.05 Стенка правая ТП 705-1-143 ТМ2-800.02 Стенка прямая ТП 705-1-143 ТМ2-800.01 Стенка наклонная ТП 705-1-143 ТМ2-700/1.07 Скоба ТП 705-1-143 ТМ2-900.00 СБ Рама привода. Сборочный чертеж ТП 705-1-143 ТМ2-900.00 Рама привода. Спецификация ТП 705-1-143 ТМ2-900.07 Связь ТП 705-1-143 ТМ2-900.01 Уголок ТП 705-1-143 ТМ2-900.02 Уголок ТП 705-1-143 ТМ2-900.03 Уголок ТП 705-1-143 ТМ2-900.04 Уголок ТП 705-1-143 ТМ2-600.04 Полоса ТП 705-1-143 ТМ2-900.05 Уголок ТП 705-1-143 ТМ2-900.06 Уголок ТП 705-1-143 ТМ2-900.07 Уголок ТП 705-1-143 ТМ2-1000.00 СБ Установка тросового выключающего устройства. Сборочный чертеж ТП 705-1-143 ТМ2-1000.00 Установка тросового выключающего устройства. Спецификация ТП 705-1-143 ТМ2-000.01/1 Кронштейн ТП 705-1-143 ТМ2-000.08 Болт фундаментный ТП 705-1-143 ТМ2-1100.00 СБ Стойка 1. Сборочный чертеж ТП 705-1-143 ТМ2-1500.00 СБ Стойка 5. Сборочный чертеж ТП 705-1-143 ТМ2-1600.00 СБ Стойка 6. Сборочный чертеж ТП 705-1-143 ТМ2-1100.00 Стойка 1. Спецификация ТП 705-1-143 ТМ2-1500.00 Стойка 5. Спецификация ТП 705-1-143 ТМ2-1600.00 Стойка 6. Спецификация ТП 705-1-143 ТМ2-1200.00 СБ Стойка 2. Сборочный чертеж ТП 705-1-143 ТМ2-1300.00 СБ Стойка 3. Сборочный чертеж ТП 705-1-143 ТМ2-1400.00 СБ Стойка 4. Сборочный чертеж ТП 705-1-143 ТМ2-000.07 Кронштейн ТП 705-1-143 ТМ2-1200.00 Стойка 2. Спецификация ТП 705-1-143 ТМ2-1300.00 Стойка 3. Спецификация ТП 705-1-143 ТМ2-1400.00 Стойка 4. Спецификация ТП 705-1-143 ТМ2-000.09 Болт специальный ТП 705-1-143 ТМ2-000.10 Подкос 7 ТП 705-1-143 ТМ2-000.11 Подкос 8 ТП 705-1-143 ТМ2-000.01;ТМ2-000.05;ТМ2-000.06 Подкос 1,5,6 ТП 705-1-143 ТМ2-000.02;ТМ2-000.03;ТМ2-000.04 Подкос 2,3,4 ТП 705-1-143 ТМ2-1700.00 СБ Воронка. Сборочный чертеж ТП 705-1-143 ТМ2-1700.00 Воронка. Спецификация ТП 705-1-143 ТМ2-1700.01 Боковина ТП 705-1-143 ТМ4-000.00 ВП Шибер с электроприводом. Ведомость покупных изделий ТП 705-1-143 ТМ4-000.00 ВС Шибер с электроприводом. Ведомость спецификаций ТП 705-1-143 ТМ4-000.00 СБ Шибер с электроприводом. Сборочный чертеж ТП 705-1-143 ТМ4-000.00 Шибер с электроприводом. Спецификация ТП 705-1-143 ТМ4-100.00 СБ Течка. Сборочный чертеж ТП 705-1-143 ТМ4-100.00 Течка. Спецификация ТП 705-1-143 ТМ4-100.02 Ребро ТП 705-1-143 ТМ4-100.06 Стенка ТП 705-1-143 ТМ4-100.03 Ребро ТП 705-1-143 ТМ4-200.00 СБ Крышка. Сборочный чертеж ТП 705-1-143 ТМ4-200.00 Крышка. Спецификация ТП 705-1-143 ТМ4-200.03 Ручка ТП 705-1-143 ТМ4-300.00 СБ Шибер. Сборочный чертеж ТП 705-1-143 ТМ4-300.00 Шибер. Спецификация ТП 705-1-143 ТМ4-300.01 Боковина ТП 705-1-143 ТМ4-400.00 СБ Сектор зубчатый. Сборочный чертеж ТП 705-1-143 ТМ4-400.00 Сектор зубчатый. Спецификация ТП 705-1-143 ТМ4-400.04 Ребро ТП 705-1-143 ТМ4-400.03 Ребро ТП 705-1-143 ТМ4-400.02 Сектор ТП 705-1-143 ТМ4-400.01 Венец ТП 705-1-143 ТМ4-400.05 Ступица ТП 705-1-143 ТМ4-000.01 Шестерня ТП 705-1-143 ТМ4-000.05 Вал ТП 705-1-143 ТМ4-000.12 Шайба ТП 705-1-143 ТМ4-000.02 Прокладка ТП 705-1-143 ТМ4-000.08 Стакан ТП 705-1-143 ТМ4-000.04 Прокладка ТП 705-1-143 ТМ4-000.06 Корпус подшипника ТП 705-1-143 ТМ4-000.07 Втулка ТП 705-1-143 ТМ4-000.09 Муфта ТП 705-1-143 ТМ4-000.11 Шайба ТП 705-1-143 ТМ4-000.03 Прокладка ТП 705-1-143 ТМ4-000.10 Пружина ТП 705-1-143 ТМ5-000.00 СБ Течка 1. Сборочный чертеж ТП 705-1-143 ТМ5-000.00 Течка 1. Спецификация ТП 705-1-143 ТМ5-000.01 Прокладка ТП 705-1-143 ТМ5-100.00 СБ Секция 1. Сборочный чертеж ТП 705-1-143 ТМ5-200.00 СБ Секция 2. Сборочный чертеж ТП 705-1-143 ТМ5-100.00 Секция 1. Спецификация ТП 705-1-143 ТМ5-200.00 Секция 2. Спецификация ТП 705-1-143 ТМ5-200.01 Стенка ТП 705-1-143 ТМ5-200.02 Уголок ТП 705-1-143 ТМ6-000.00 СБ Вставка 1. Сборочный чертеж ТП 705-1-143 ТМ6-000.00 Вставка 1. Спецификация ТП 705-1-143 ТМ7-000.00 СБ Вставка 2. Сборочный чертеж ТП 705-1-143 ТМ7-000.00 Вставка 2. Спецификация ТП 705-1-143 ТМ7-000.01 Уголок ТП 705-1-143 ТМ8-000.00 СБ Течка 2. Сборочный чертеж ТП 705-1-143 ТМ8-000.00 Течка 2. Спецификация ТП 705-1-143 ТМ8-000.01 Прокладка ТП 705-1-143 ТМ8-300.03 Лист боковой ТП 705-1-143 ТМ8-300.01 Уголок ТП 705-1-143 ТМ8-300.00 СБ Секция 3. Сборочный чертеж ТП 705-1-143 ТМ8-300.00 Секция 3. Спецификация ТП 705-1-143 ТМ8-200.01 Лист наклонный ТП 705-1-143 ТМ8-200.00 СБ Секция 2. Сборочный чертеж ТП 705-1-143 ТМ8-200.00 Секция 2. Спецификация ТП 705-1-143 ТМ8-200.03 Лист боковой ТП 705-1-143 ТМ8-100.00 СБ Секция 1. Сборочный чертеж ТП 705-1-143 ТМ8-100.00 Секция 1. Спецификация ТП 705-1-143 ТМ9-000.00 ВС Бункер загрузочный. Ведомость спецификаций ТП 705-1-143 ТМ9-000.00 ВП Бункер загрузочный. Ведомость покупных изделий ТП 705-1-143 ТМ9-000.00 СБ Бункер загрузочный. Сборочный чертеж ТП 705-1-143 ТМ9-000.00 Бункер загрузочный. Спецификация ТП 705-1-143 ТМ9-200.03 Уголок ТП 705-1-143 ТМ9-200.04 Уголок ТП 705-1-143 ТМ9-200.00 СБ Течка. Сборочный чертеж ТП 705-1-143 ТМ9-200.00 Течка. Спецификация ТП 705-1-143 ТМ9-300.00 СБ Колесо в сборе. Сборочный чертеж ТП 705-1-143 ТМ9-300.00 Колесо в сборе. Спецификация ТП 705-1-143 ТМ9-300.03 Шайба ТП 705-1-143 ТМ9-100.00 СБ Каркас. Сборочный чертеж ТП 705-1-143 ТМ9-100.00 Каркас. Спецификация ТП 705-1-143 ТМ9-300.07 Планка ТП 705-1-143 ТМ9-300.05 Колесо ТП 705-1-143 ТМ9-300.01 Кольцо стопорное ТП 705-1-143 ТМ9-300.06 Ребро ТП 705-1-143 ТМ9-300.08 Ось ТП 705-1-143 ТМ9-300.02 Ось ТП 705-1-143 ТМ9-100.03 Косынка 2 ТП 705-1-143 ТМ9-100.14 Косынка 6 ТП 705-1-143 ТМ9-300.04 Вилка ТП 705-1-143 ТМ9-100.12 Косынка 5 ТП 705-1-143 ТМ9-100.16 Бобышка ТП 705-1-143 ТМ9-100.11 Подкос ТП 705-1-143 ТМ9-100.06 Косынка 3 ТП 705-1-143 ТМ9-100.17 Уголок ТП 705-1-143 ТМ9-100.18 Уголок ТП 705-1-143 ТМ9-100.04 Подкос ТП 705-1-143 ТМ9-100.01 Косынка 1 ТП 705-1-143 ТМ9-100.15 Косынка 7 ТП 705-1-143 ТМ9-100.13 Распорка ТП 705-1-143 ТМ9-100.07 Косынка 4 ТП 705-1-143 ТМ9-100.08 Стенка ТП 705-1-143 ТМ9-100.09 Стенка ТП 705-1-143 ТМ9-100.02 Швеллер ТП 705-1-143 ТМ9-100.05 Швеллер ТП 705-1-143 ОВ-15.000.00 СБ Лючок (200х100) для чистки круглых воздуховодов. Сборочный чертеж ТП 705-1-143 ОВ-15.000.00 Лючок (200х100) для чистки круглых воздуховодов. Спецификация ТП 705-1-143 ОВ-15.000.01 Рычаг ТП 705-1-143 ОВ-15.000.02 Ушко ТП 705-1-143 ОВ-15.000.06 Ось ТП 705-1-143 ОВ-15.000.05 Ушко ТП 705-1-143 ОВ-15.000.04 Распорка ТП 705-1-143 ОВ-16.000.00 СБ Лючок для замера воздуха. Сборочный чертеж ТП 705-1-143 ОВ-16.000.00 Лючок для замера воздуха. Спецификация ТП 705-1-143 ОВ-16.000.03 Шайба ТП 705-1-143 ОВ-16.000.02 Пружина ТП 705-1-143 ОВ-16.000.04 Прокладка ТП 705-1-143 ОВ-16.000.01 Палец ТП 705-1-143 ОВ-16.000.03 Ушко |
| Разработан: | Гипропромсельстрой |
| Утверждён: | 28.09.1979 Госкомсельхозтехника СССР (82) |



































































































