Скачать Типовой проект 705-1-148 Альбом I. Технологическая и электротехническая частиДата актуализации: 01.01.2021
|
| Обозначение: | Типовой проект 705-1-148 |
| Обозначение англ: | 705-1-148 |
| Статус: | действует |
| Название рус.: | Альбом I. Технологическая и электротехническая части |
| Дата добавления в базу: | 01.09.2013 |
| Дата актуализации: | 01.01.2021 |
| Дата введения: | 09.11.1981 |
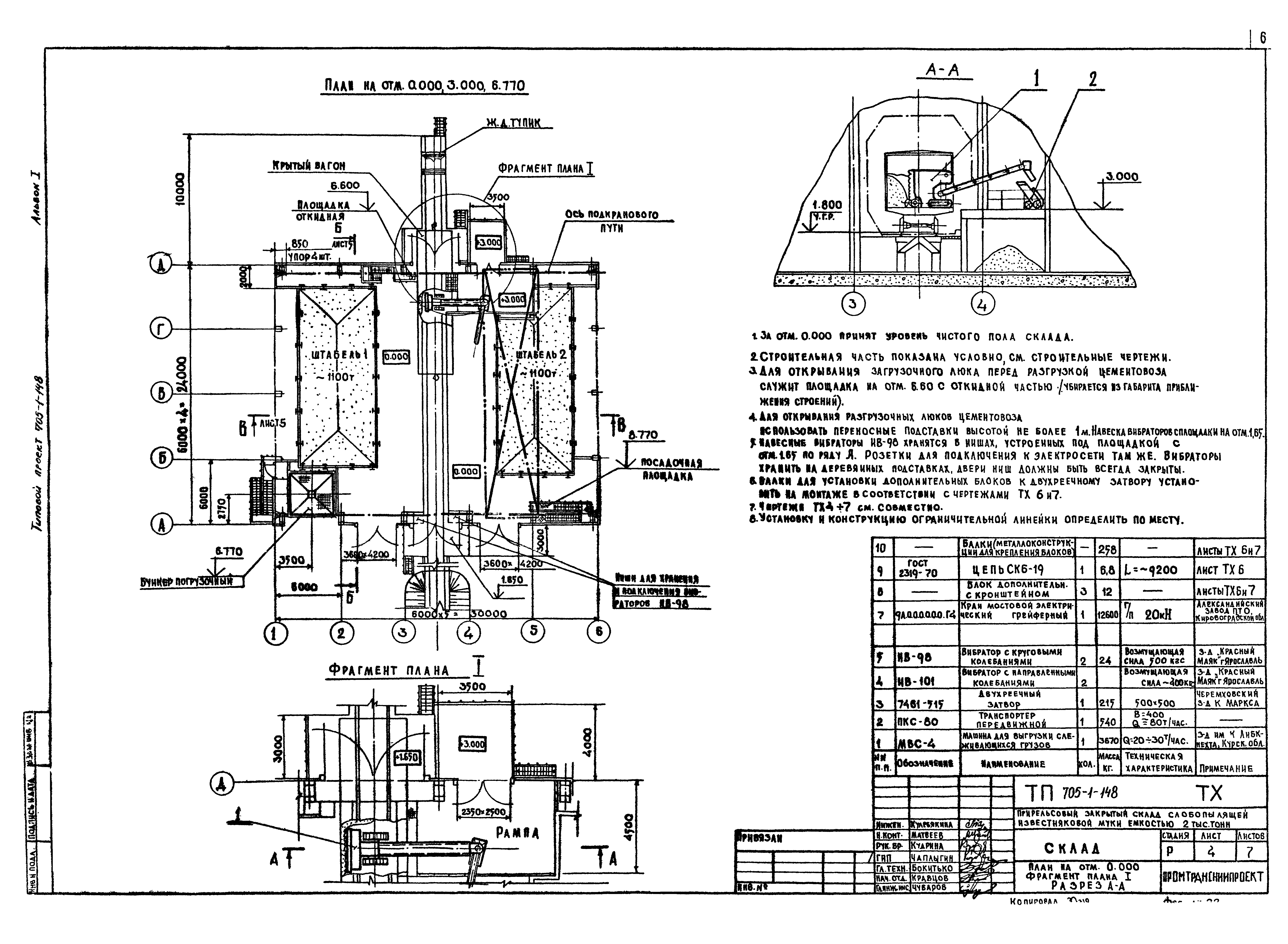
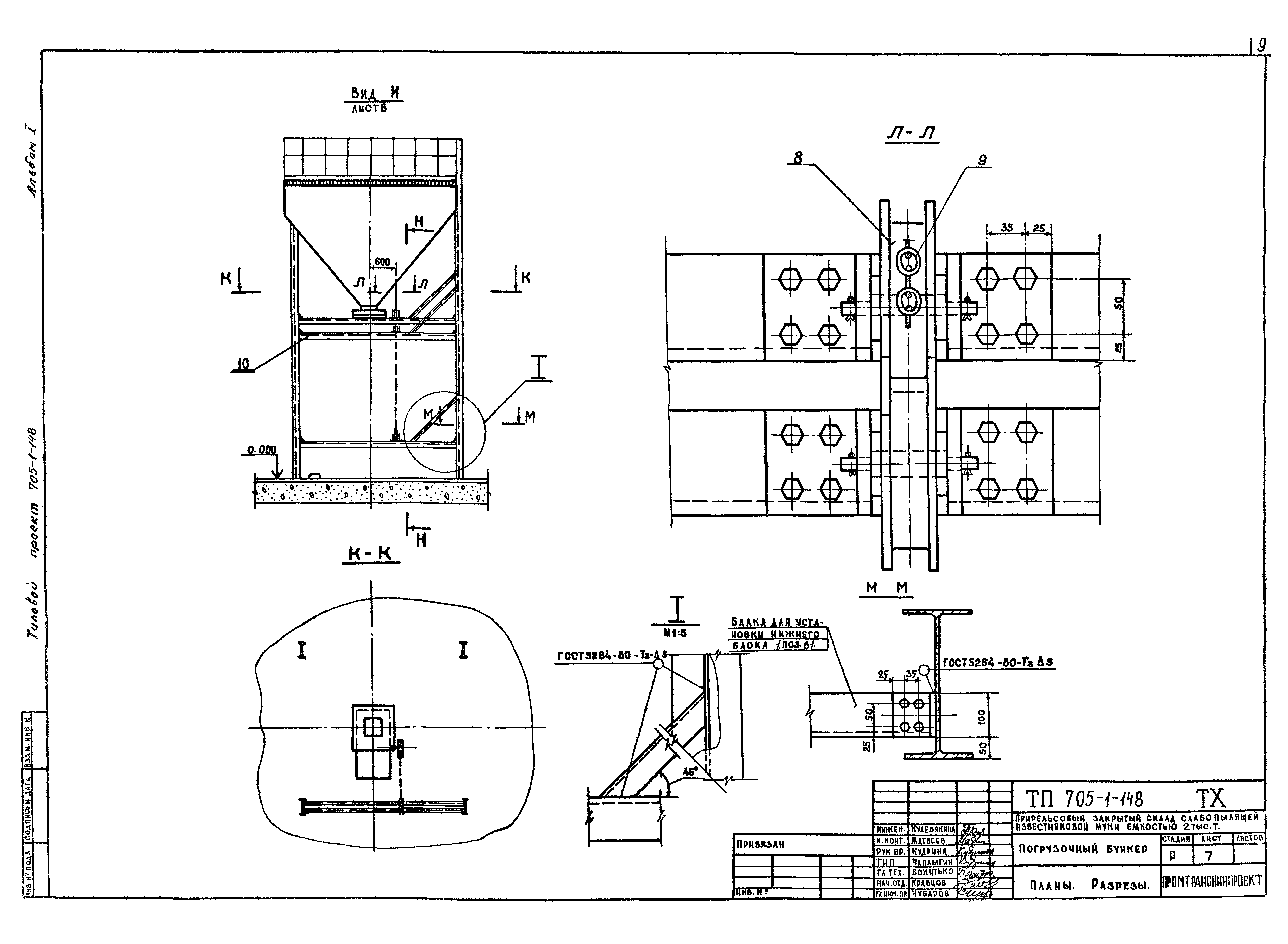
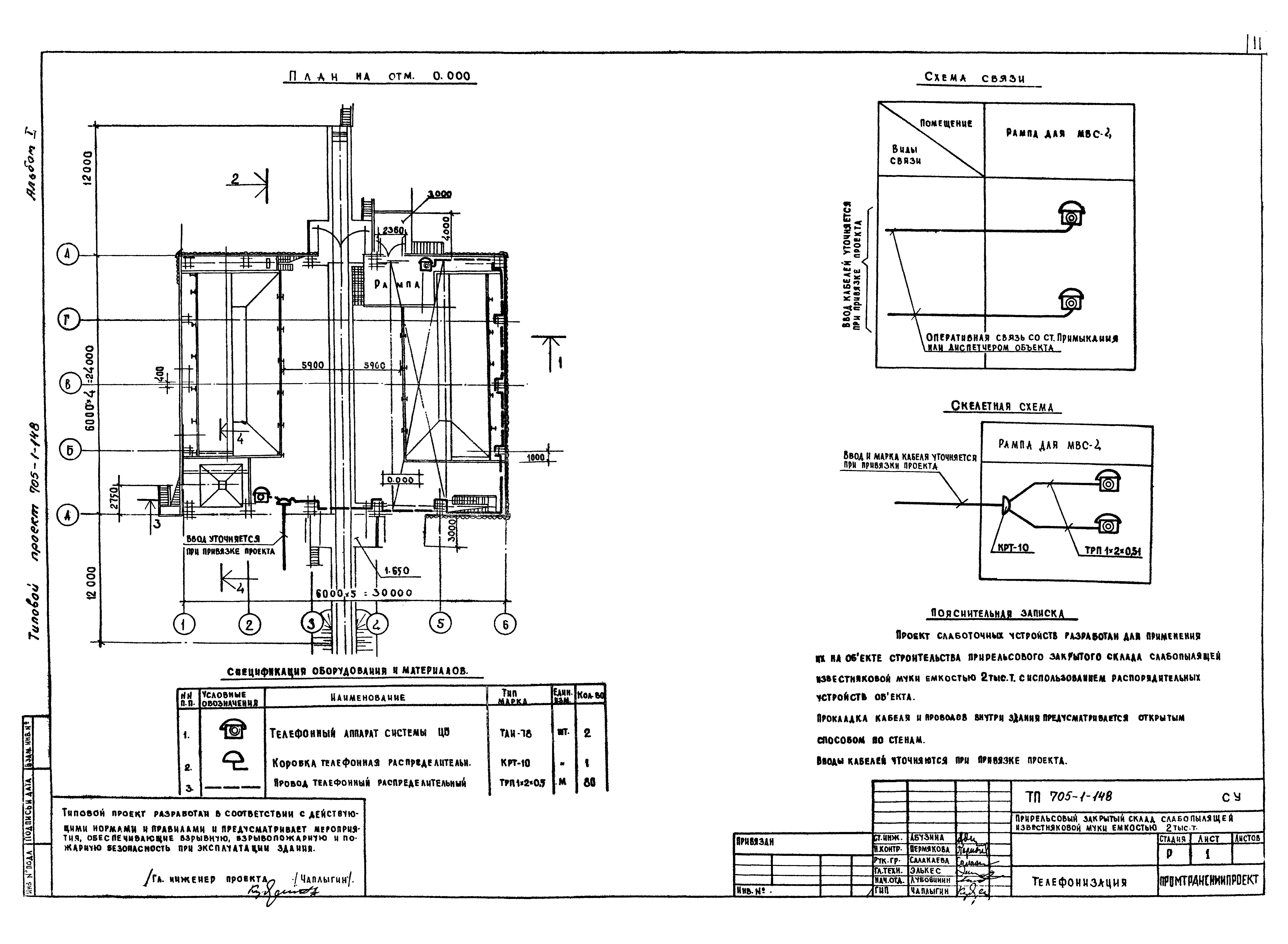
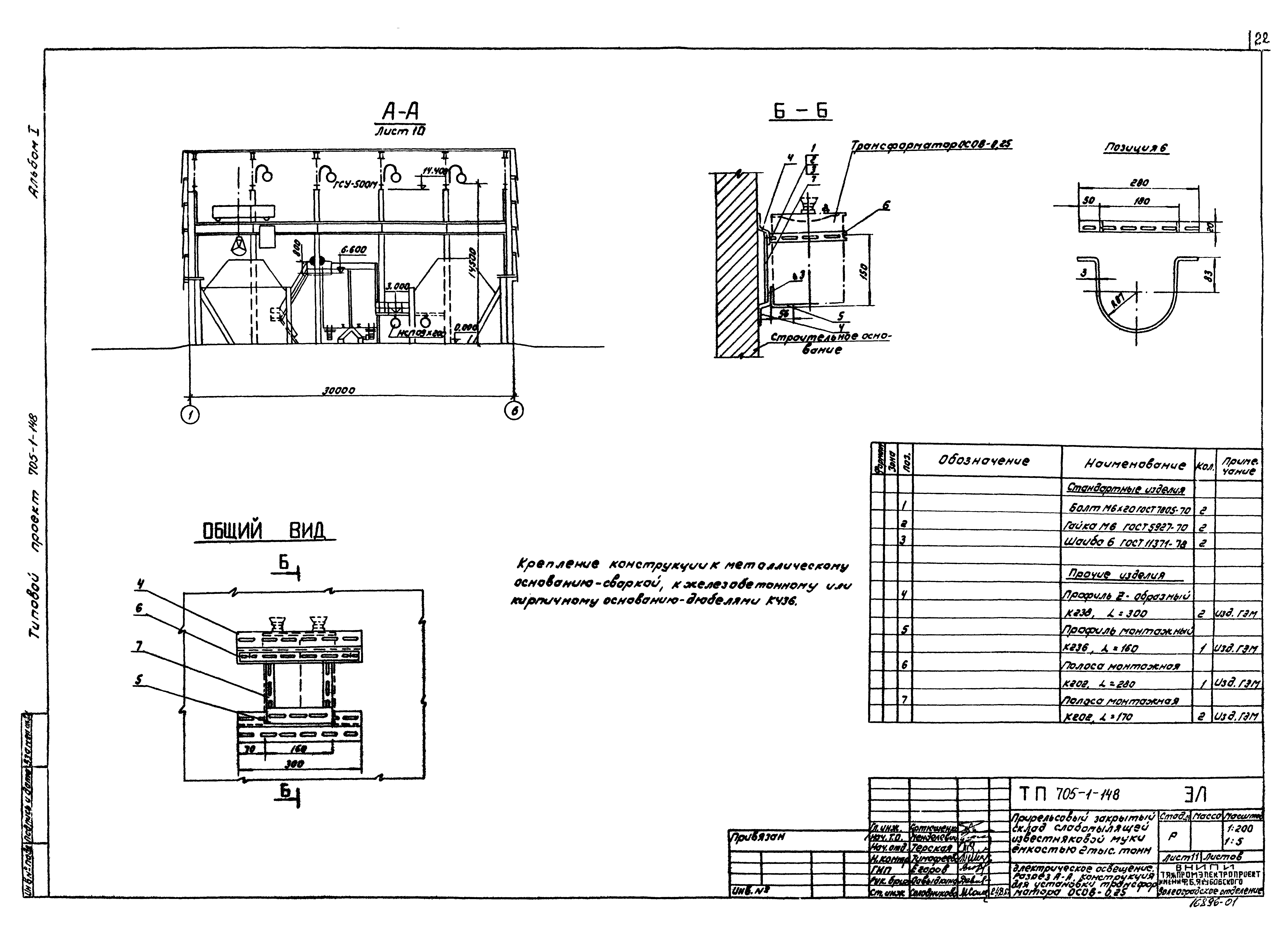
| Оглавление: | ТП 705-1-148-ТХ-1 Общие данные по рабочим чертежам (начало) ТП 705-1-148-ТХ-2 Общие данные по рабочим чертежам (продолжение). Пояснительная записка к технологическим чертежам ТП 705-1-148-ТХ-3 Общие данные по рабочим чертежам (окончание). Пояснительная записка к технологическим чертежам ТП 705-1-148-ТХ-4 Склад. План на отм. 0.000. Фрагмент плана 1. Разрез А-А ТП 705-1-148-ТХ-5 Склад. Разрезы Б-Б;В-В;Г-Г. Узел установки ограничительной линейки ТП 705-1-148-ТХ-6 Склад. Погрузочный бункер. Разрезы Д-Д;Е-Е;Н-Н;П-П;Ж-Ж. План на отм. 6.770 ТП 705-1-148-ТХ-7 Склад. Погрузочный бункер. Планы. Разрезы ТП 705-1-148-ТХ-8 Опросный лист ТП 705-1-148-СУ-1 Склад. Телефонизация ТП 705-1-148-ЭЛ-1 Склад. Общие данные (начало) ТП 705-1-148-ЭЛ-2 Склад. Общие данные (продолжение) ТП 705-1-148-ЭЛ-3 Склад. Общие данные (продолжение) ТП 705-1-148-ЭЛ-4 Склад. Общие данные (продолжение) ТП 705-1-148-ЭЛ-5 Склад. Общие данные (окончание) ТП 705-1-148-ЭЛ-6 Склад. Шкаф распределительный 1 шт. Принципиальная однолинейная схема ТП 705-1-148-ЭЛ-7 Склад. Кабельный журнал ТП 705-1-148-ЭЛ-8 Склад. План на отм. 0.000. Установка электрооборудования. Прокладка труб и кабелей. Вид А ТП 705-1-148-ЭЛ-9 Склад. Установка электрооборудования, прокладка труб и кабелей. Виды Б,В ТП 705-1-148-ЭЛ-10 Склад. Электрическое освещение. Планы ТП 705-1-148-ЭЛ-11 Склад. Электрическое освещение. Разрез А-А. Конструкция для установки трансформатора ОСОВ-0,25 ТП 705-1-148-ЭЛ-12 Склад. Установка светильника для наружного освещения на кронштейне |
| Разработан: | ВНИПИ Тяжпромэлектропроект Промтрансниипроект |
| Утверждён: | 07.08.1980 ВНПО Союзсельхозхимия (4) |
























