Скачать Типовой проект 705-1-148 Альбом II. Архитектурно-строительная и санитарно-техническая частиДата актуализации: 01.01.2021
|
| Обозначение: | Типовой проект 705-1-148 |
| Обозначение англ: | 705-1-148 |
| Статус: | действует |
| Название рус.: | Альбом II. Архитектурно-строительная и санитарно-техническая части |
| Дата добавления в базу: | 01.09.2013 |
| Дата актуализации: | 01.01.2021 |
| Дата введения: | 09.11.1981 |
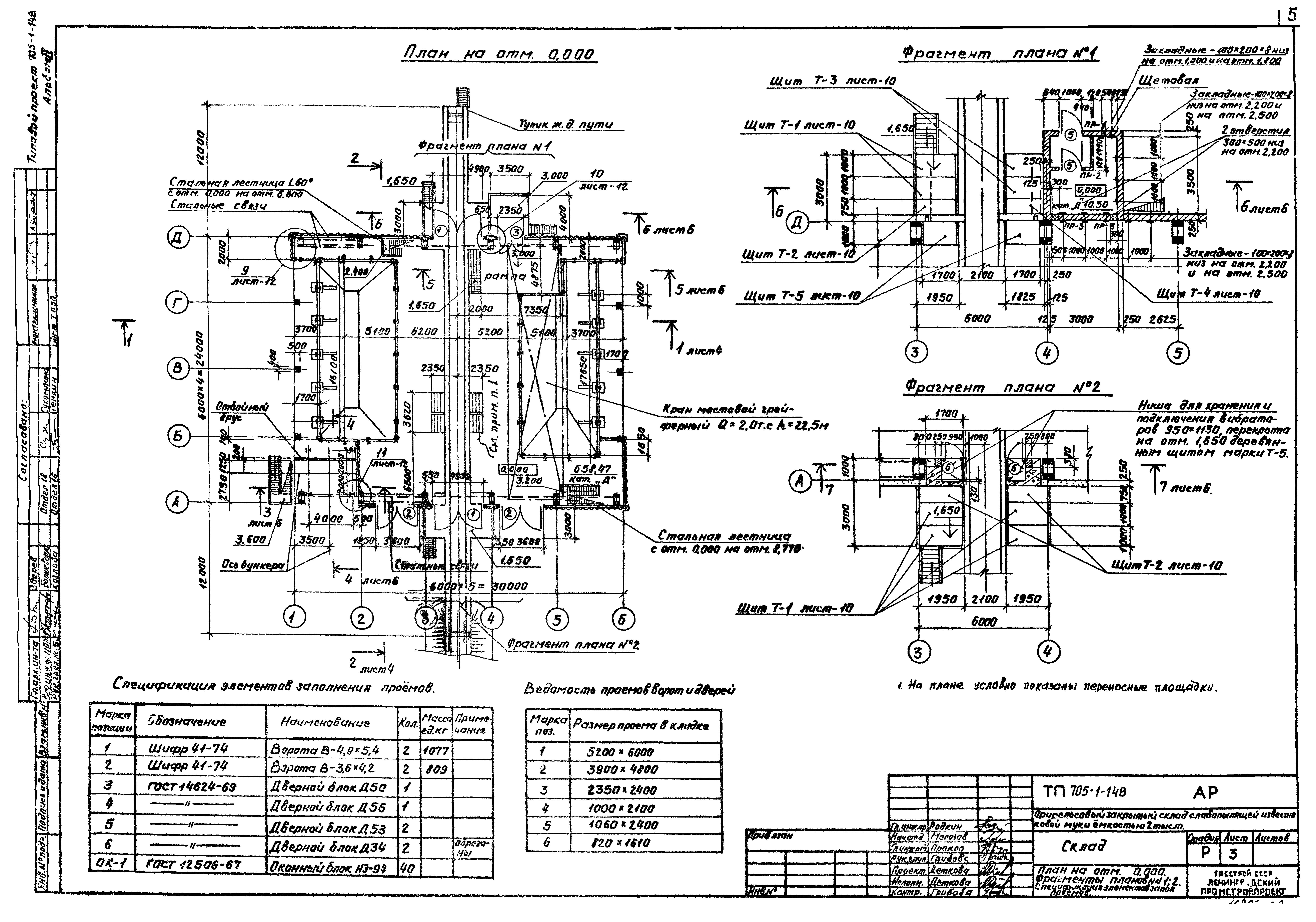
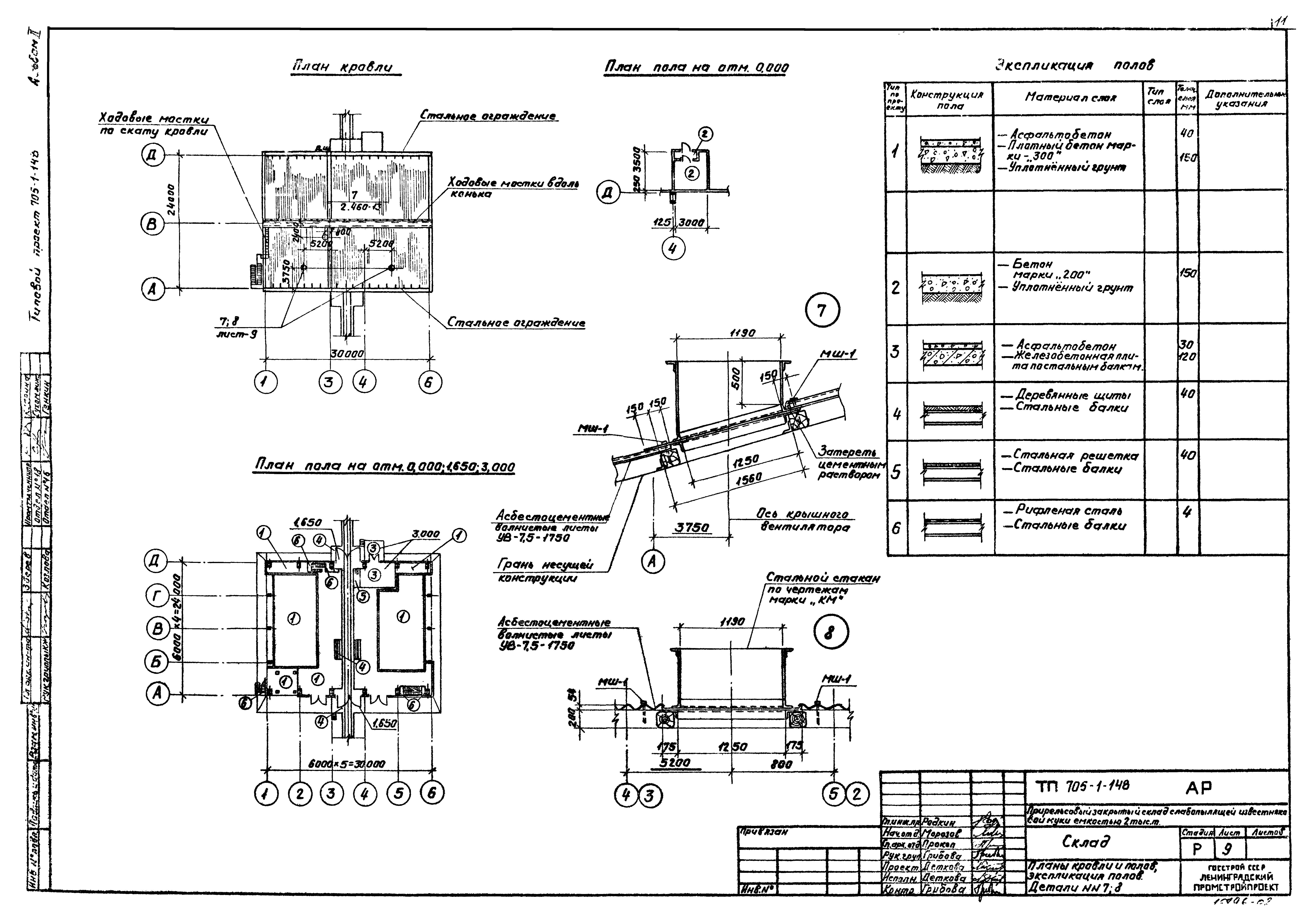
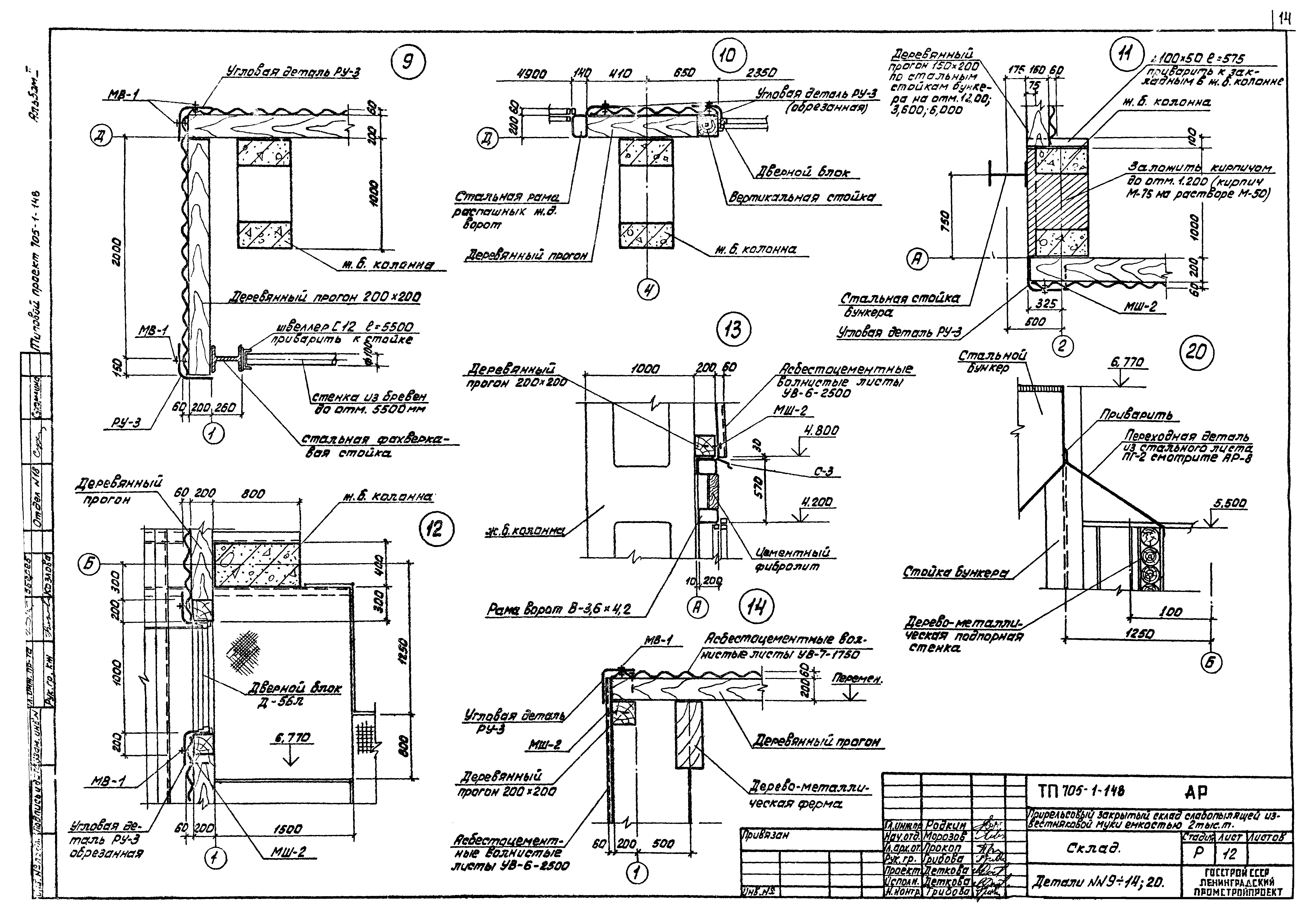
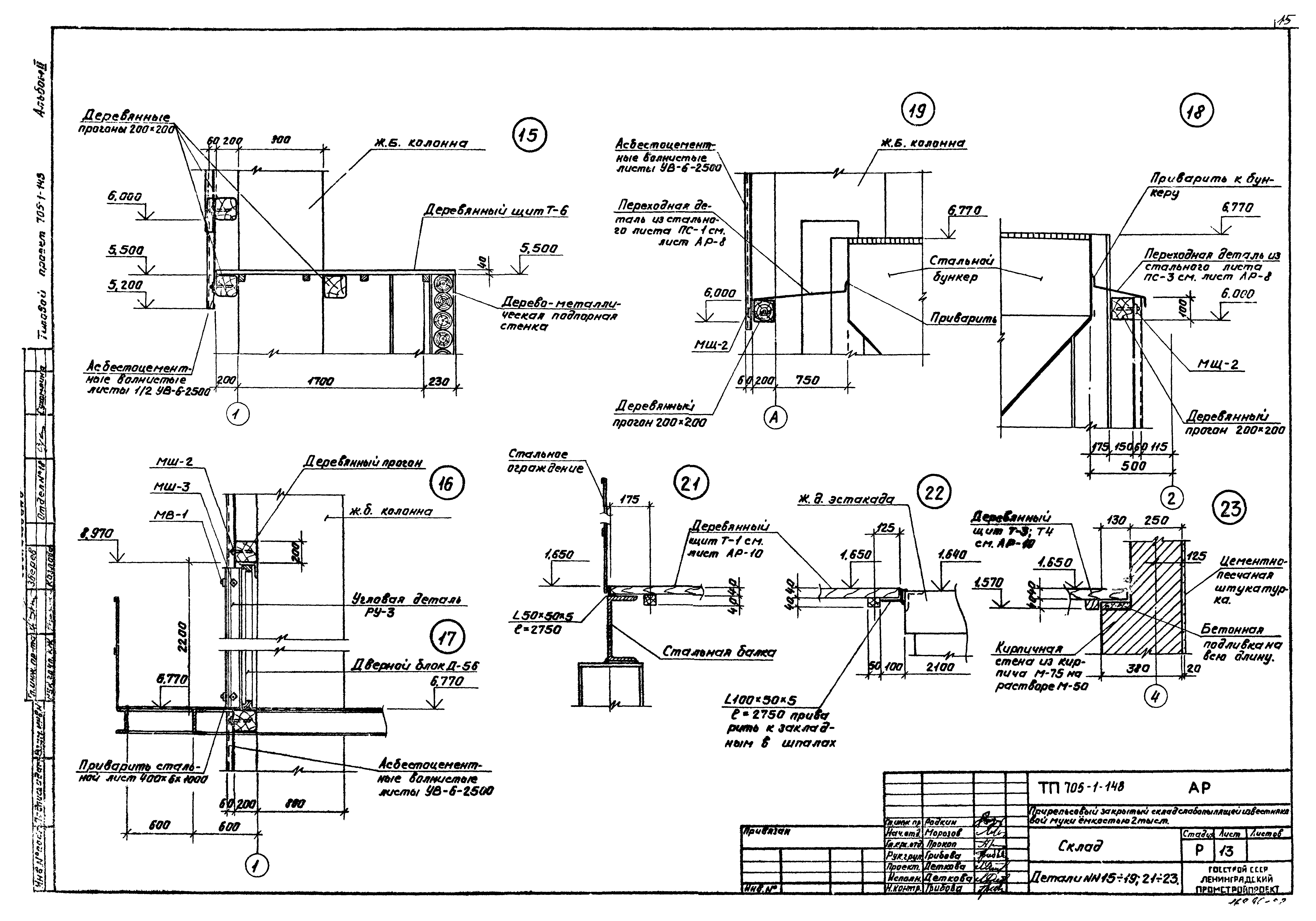
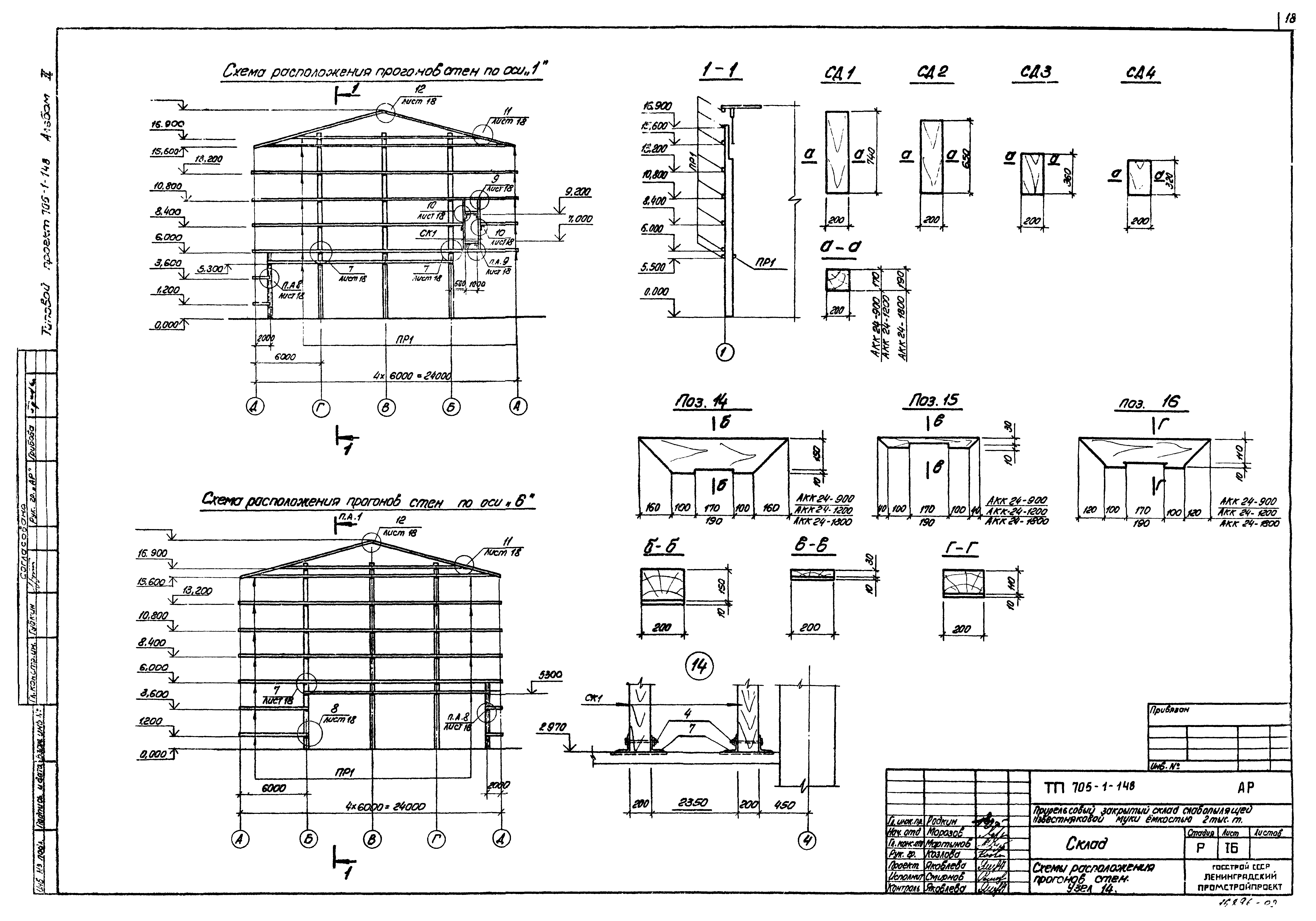
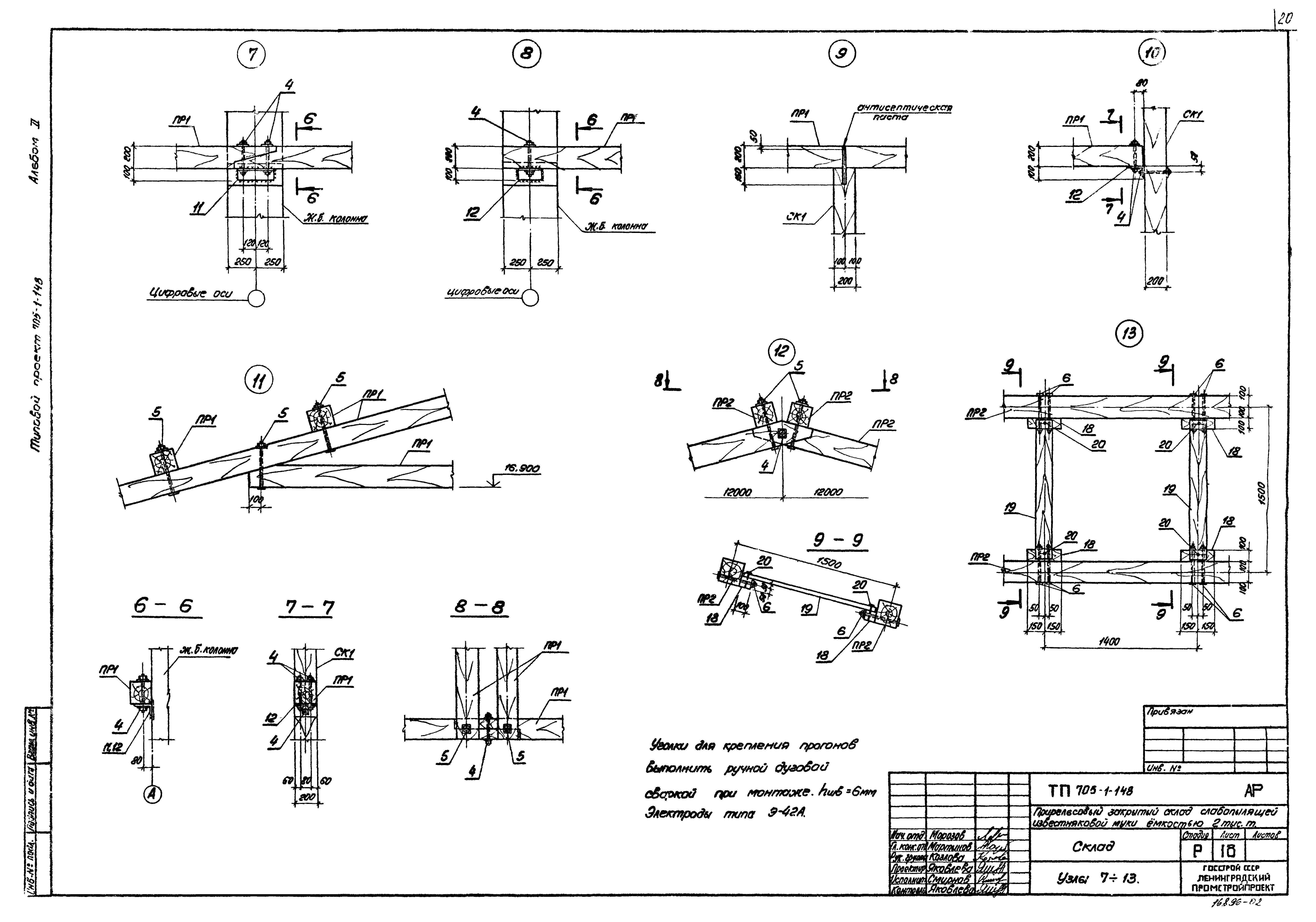
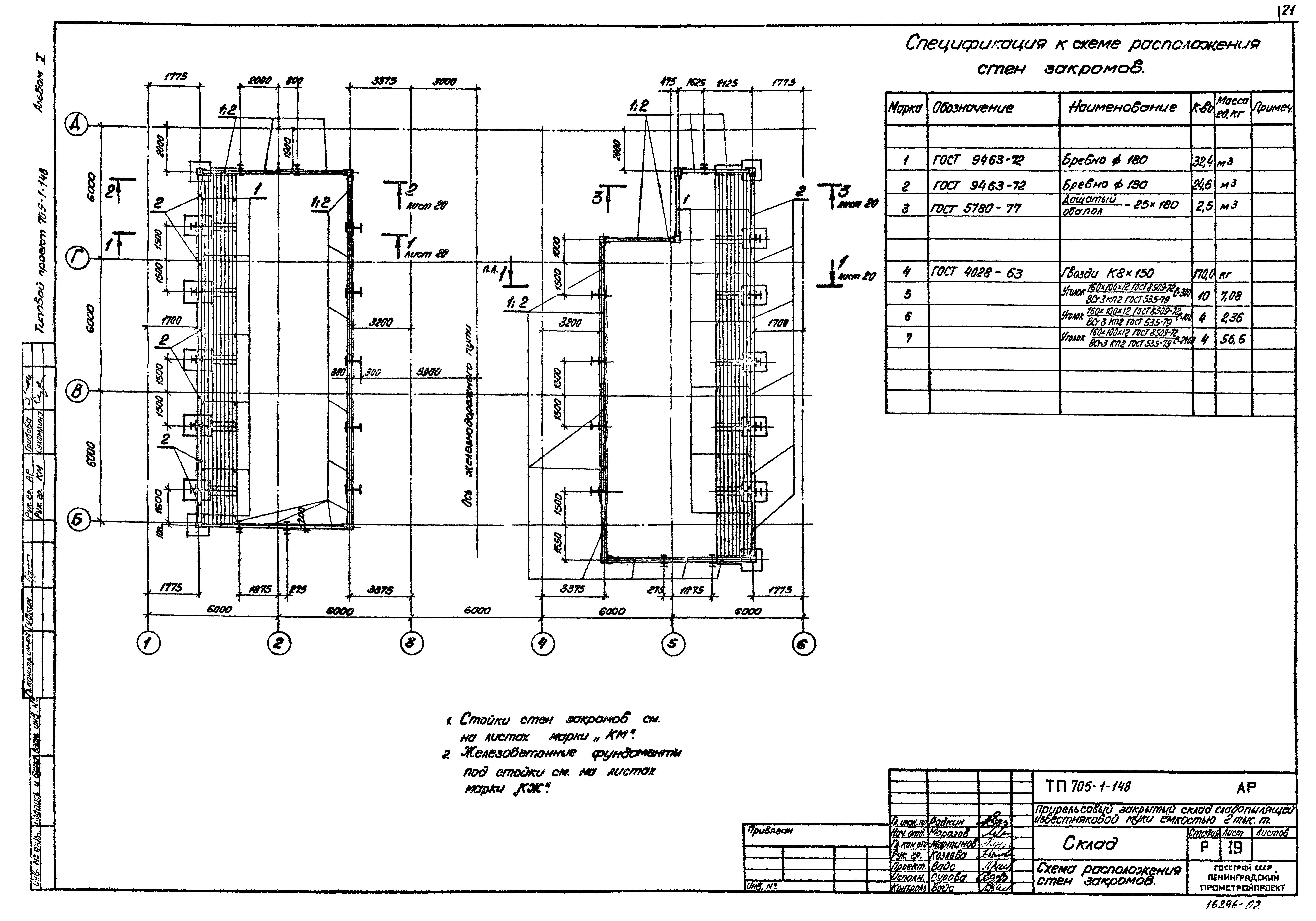
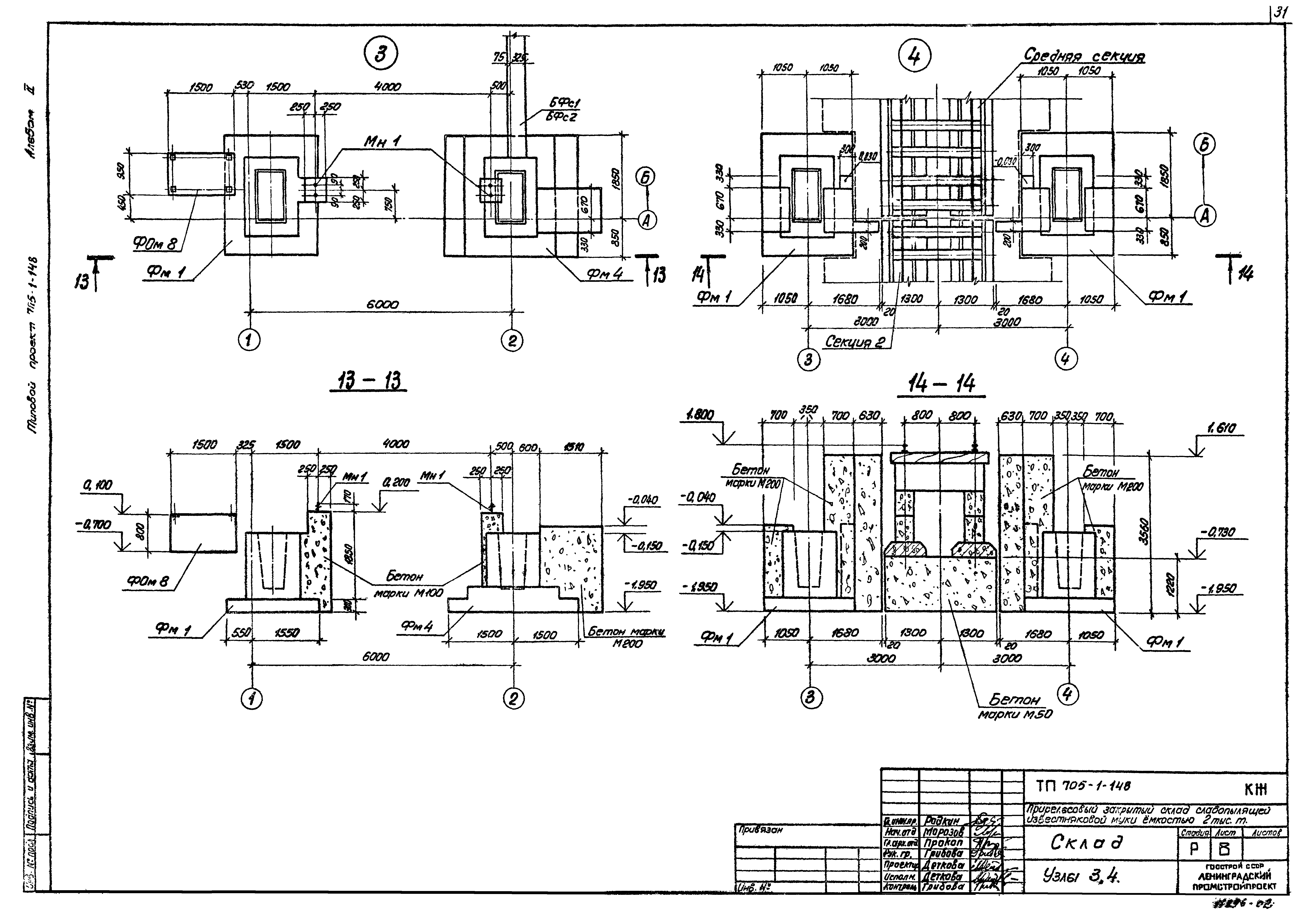
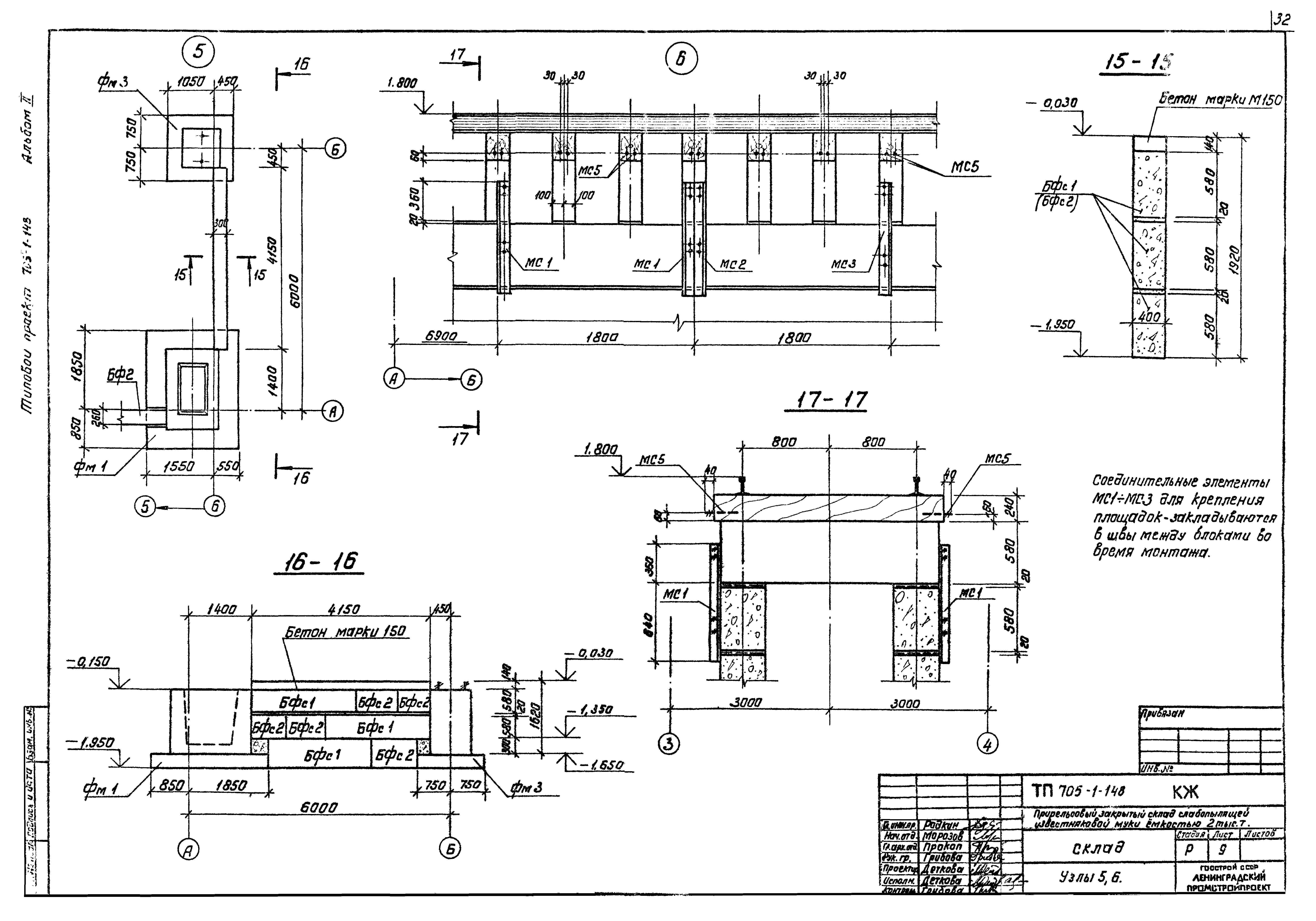
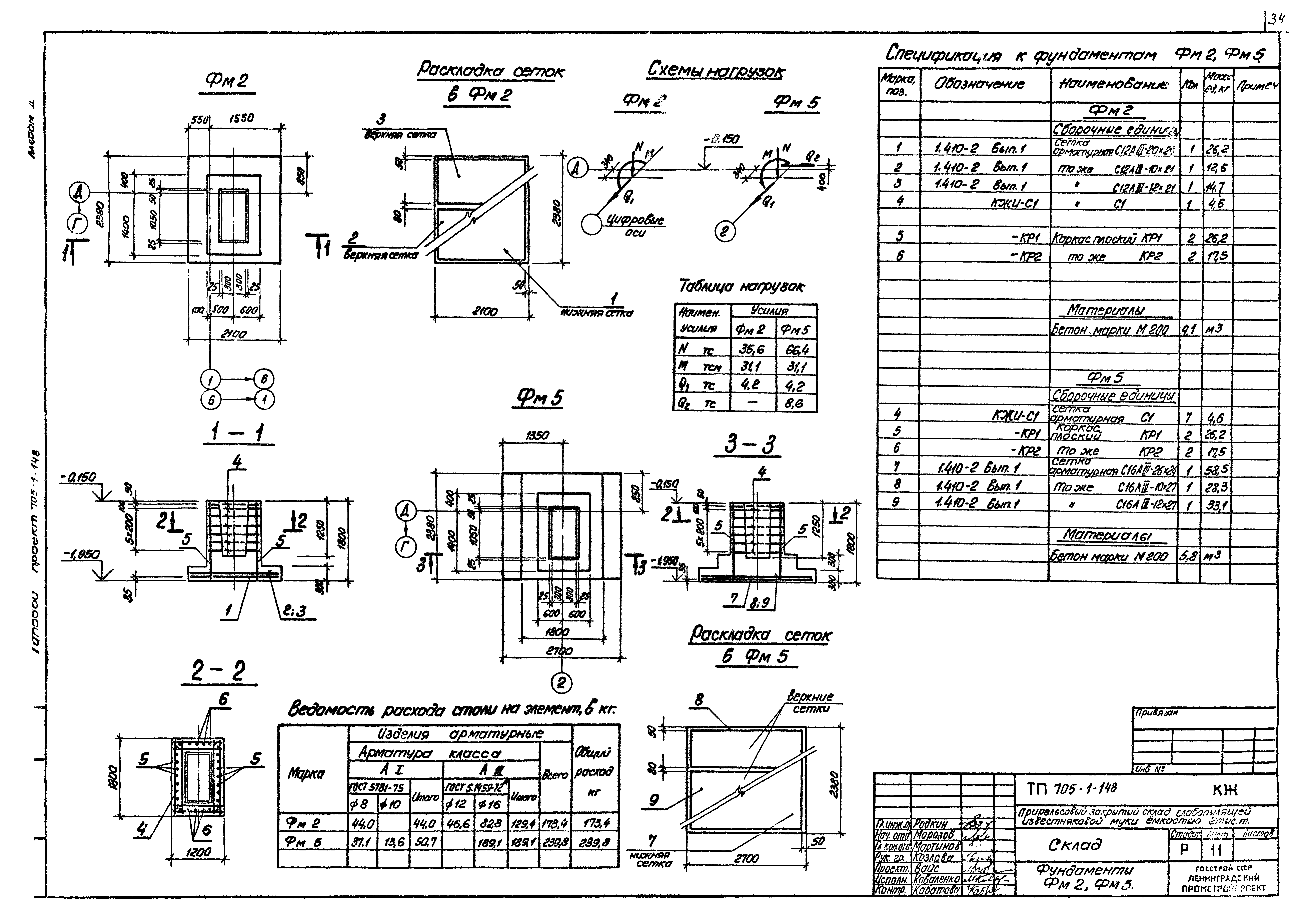
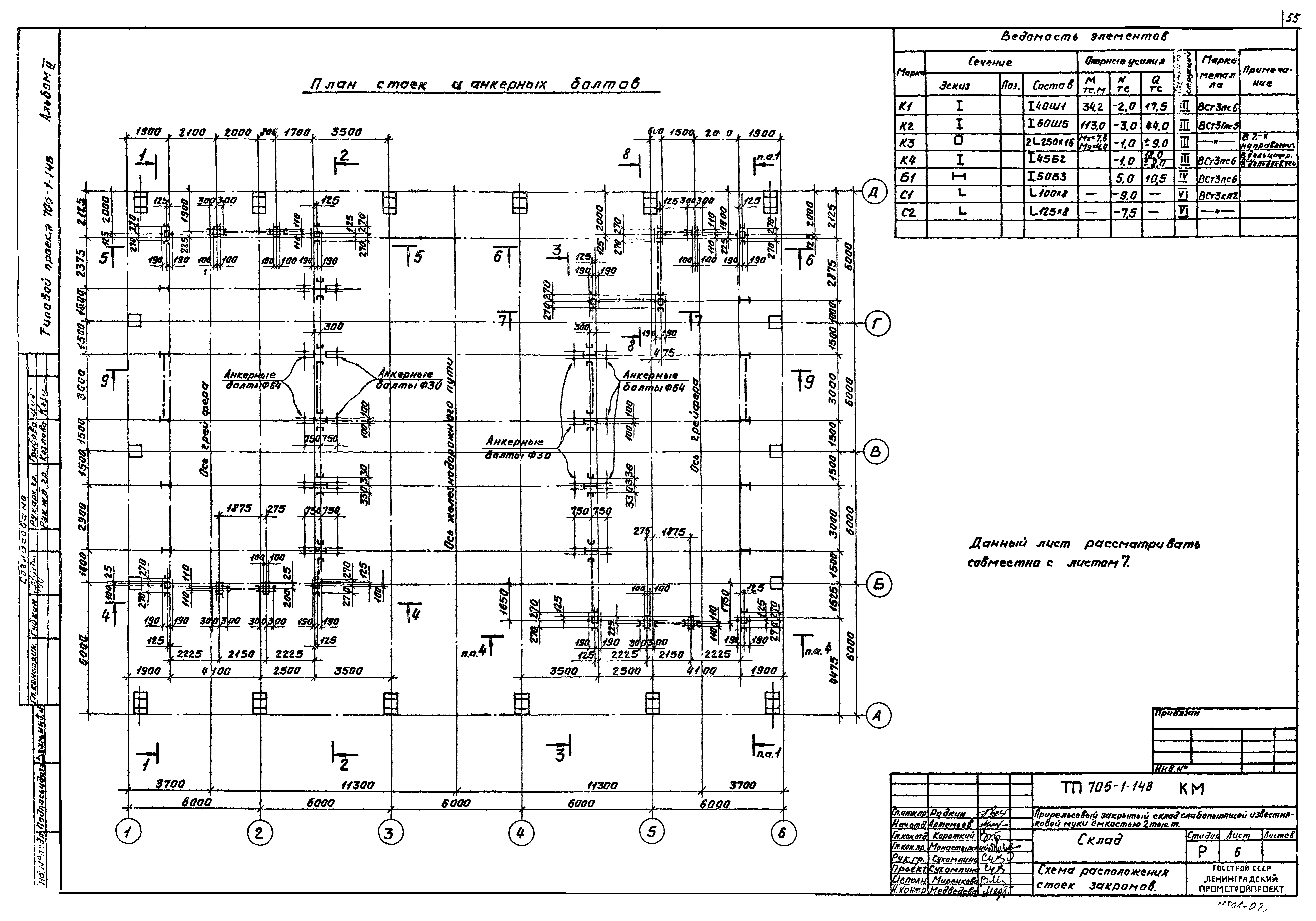
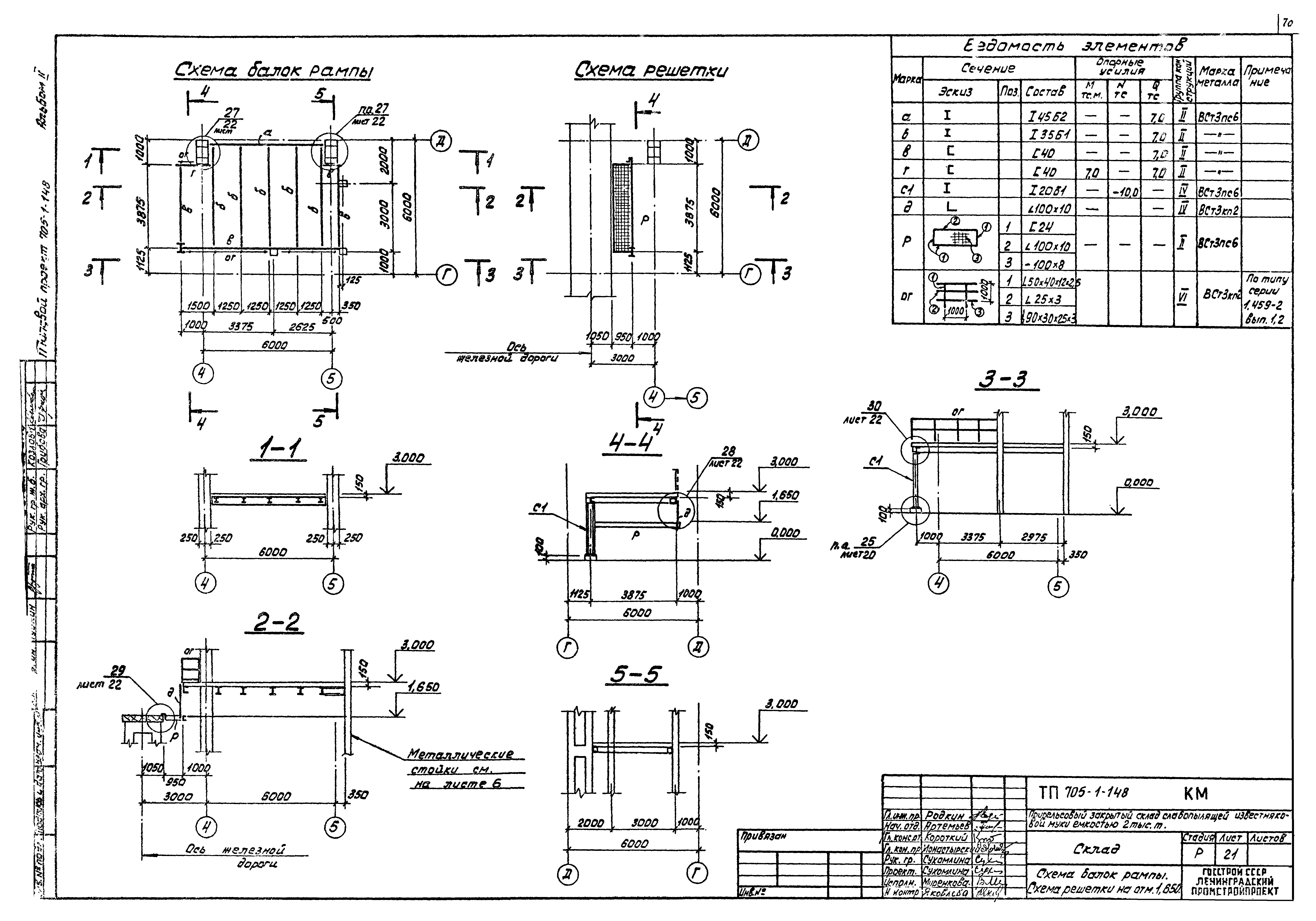
| Оглавление: | ТП 705-1-148 Содержание альбома ТП 705-1-148-АР Архитектурно-строительные решения ТП 705-1-148-АР-1 Общие данные (начало) ТП 705-1-148-АР-2 Общие данные (окончание) ТП 705-1-148-АР-3 План на отм. 0.000. Фрагменты планов №№1 и 2. Спецификация элементов заполнения проемов ТП 705-1-148-АР-4 Разрезы 1-1;202. Планы площадок на отм.6.600 и 8.770 ТП 705-1-148-АР-5 Планы на отм. 5.540 и 6.770 ТП 705-1-148-АР-6 Сечения 3-3;4-4;5-5;6-6;7-7 ТП 705-1-148-АР-7 Фасады 1-6;6-1. Спецификации асбестоцементных листов и элементов крепления перемычек, заполнение оконных проемов ТП 705-1-148-АР-8 Фасады А-Д;Д-А. Спецификация элементов замаркированных на листах АР ТП 705-1-148-АР-9 Планы кровли и полов, экспликация полов. Детали №№ 7,8 ТП 705-1-148-АР-10 Деревянные щиты Т-1÷Т-6;Т-8 ТП 705-1-148-АР-11 Деревянные щиты Т-7;Т-9÷Т-11. Спецификация деревянных щитов ТП 705-1-148-АР-12 Детали №№9-14;20 ТП 705-1-148-АР-13 Детали №№15-19;21-23 ТП 705-1-148-АР-14 Схема расположения прогонов кровли ТП 705-1-148-АР-15 Схема расположения прогонов стен по осям "А" и "Д". Спецификации ТП 705-1-148-АР-16 Схема расположения прогонов стен по осям "1" и "Б" ТП 705-1-148-АР-17 Узлы 1-6 ТП 705-1-148-АР-18 Узлы 7-13 ТП 705-1-148-АР-19 Схема расположения стен закромов ТП 705-1-148-АР-20 Разрезы 1-1÷3-3 ТП 705-1-148-АР-21 Узлы 1;2;3;4 ТП 705-1-148-КЖ Конструкции железобетонные ТП 705-1-148-КЖ-1 Общие данные (начало) ТП 705-1-148-КЖ-2 Общие данные (окончание) ТП 705-1-148-КЖ-3 Схема расположения фундаментов, фундаментных балок. Спецификация ТП 705-1-148-КЖ-4 Разрезы 1-1÷4-4. Спецификация к схеме расположения ТП 705-1-148-КЖ-5 Узел 1. Разрез 5-5 ТП 705-1-148-КЖ-6 Узел 2 (начало) ТП 705-1-148-КЖ-7 Узел 2 (окончание). Узел 7. Разрез 6-6 ТП 705-1-148-КЖ-8 Узлы 3,4 ТП 705-1-148-КЖ-9 Узлы 5,6 ТП 705-1-148-КЖ-10 Фундаменты ФМ1;ФОМ7;ФОМ8 ТП 705-1-148-КЖ-11 Фундаменты ФМ2;ФМ5 ТП 705-1-148-КЖ-12 Фундаменты ФМ3;ФМ4;ФОМ9 ТП 705-1-148-КЖ-13 Фундамент ФОМ1 ТП 705-1-148-КЖ-14 Фундамент ФОМ2 (начало) ТП 705-1-148-КЖ-15 Фундамент ФОМ2 (окончание) ТП 705-1-148-КЖ-16 Фундамент ФОМ3 (начало) ТП 705-1-148-КЖ-17 Фундамент ФОМ3 (окончание) ТП 705-1-148-КЖ-18 Фундамент ФОМ4 (начало) ТП 705-1-148-КЖ-19 Фундамент ФОМ4 (окончание) ТП 705-1-148-КЖ-20 Фундамент ФОМ5 (начало) ТП 705-1-148-КЖ-21 Фундамент ФОМ5 (окончание) ТП 705-1-148-КЖ-22 Фундамент ФОМ6 (начало) ТП 705-1-148-КЖ-23 Фундамент ФОМ6 (окончание). ФОМ10;ФОМ11 ТП 705-1-148-КЖ-24 Плиты монолитные ПМ1;ПМ2. Фундамент ФЛМ1 ТП 705-1-148-КЖ-25 Схема расположения колонн, подкрановых балок и связей. Спецификация ТП 705-1-148-КЖ-26 Схема расположения арок блоков связей, распорок вертикальных связей. Спецификация ТП 705-1-148-КМ Конструкции металлические ТП 705-1-148-КМ-1 Ведомость чертежей комплекта КМ, таблица нагрузок, условные обозначения ТП 705-1-148-КМ-2 Общие указания ТП 705-1-148-КМ-3 Техническая спецификация стали (начало) ТП 705-1-148-КМ-4 Техническая спецификация стали (продолжение) ТП 705-1-148-КМ-5 Техническая спецификация стали (окончание) ТП 705-1-148-КМ-6 Схема расположения стоек закромов ТП 705-1-148-КМ-7 Разрезы к листу 6 ТП 705-1-148-КМ-8 Узлы 1,2 ТП 705-1-148-КМ-9 Узлы 3,4 ТП 705-1-148-КМ-10 Узлы 5,6 ТП 705-1-148-КМ-11 Схема вертикальных связей по железобетонным колоннам ТП 705-1-148-КМ-12 Узлы 7-10 ТП 705-1-148-КМ-13 Узлы 11-14 ТП 705-1-148-КМ-14 Схема бункера ТП 705-1-148-КМ-15 Разрезы к листу 14. Схема элементов фахверка. Узел 15 ТП 705-1-148-КМ-16 Схема решеток бункера. Узел 16 ТП 705-1-148-КМ-17 Узлы 17-19 ТП 705-1-148-КМ-18 Узлы 20-22 ТП 705-1-148-КМ-19 Схема площадок на отм. 8.770 и 6.600 ТП 705-1-148-КМ-20 Узлы 23-26 ТП 705-1-148-КМ-21 Схема балок рампы. Схема решетки на отм. 1.650 ТП 705-1-148-КМ-22 Узлы 27-31 ТП 705-1-148-КМ-23 Схема площадок на отм. 1.650 ТП 705-1-148-КМ-24 Узлы 32-35 ТП 705-1-148-ОВ Отопление и вентиляция ТП 705-1-148-ОВ-1 Общие данные ТП 705-1-148-ОВ-2 План на отм. 0.000. Разрез 1-1;2-2. Схемы систем В1;В2 ТП 705-1-148-ОР Основные положения по организации строительства ТП 705-1-148-ОР-1 Заглавный лист. Схема стройгенплана ТП 705-1-148-ОР-2 Пояснительная записка ТП 705-1-148-ОР-3 Схема монтажа сварных конструкций ТП 705-1-148-ОР-4 Календарный график работ |
| Разработан: | Ленинградский Промстройпроект |
| Утверждён: | 07.08.1980 ВНПО Союзсельхозхимия (4) |
















































































