Скачать Серия 3.904-19 Виброизолированные постаменты под тягодутьевые машины. Рабочие чертежиДата актуализации: 01.01.2021
|
| Обозначение: | Серия 3.904-19 |
| Обозначение англ: | Series 3.904-19 |
| Статус: | не действует |
| Название рус.: | Виброизолированные постаменты под тягодутьевые машины. Рабочие чертежи |
| Дата добавления в базу: | 01.09.2013 |
| Дата актуализации: | 01.01.2021 |
| Дата введения: | 01.07.1979 |
| Дата окончания срока действия: | 01.12.1991 |
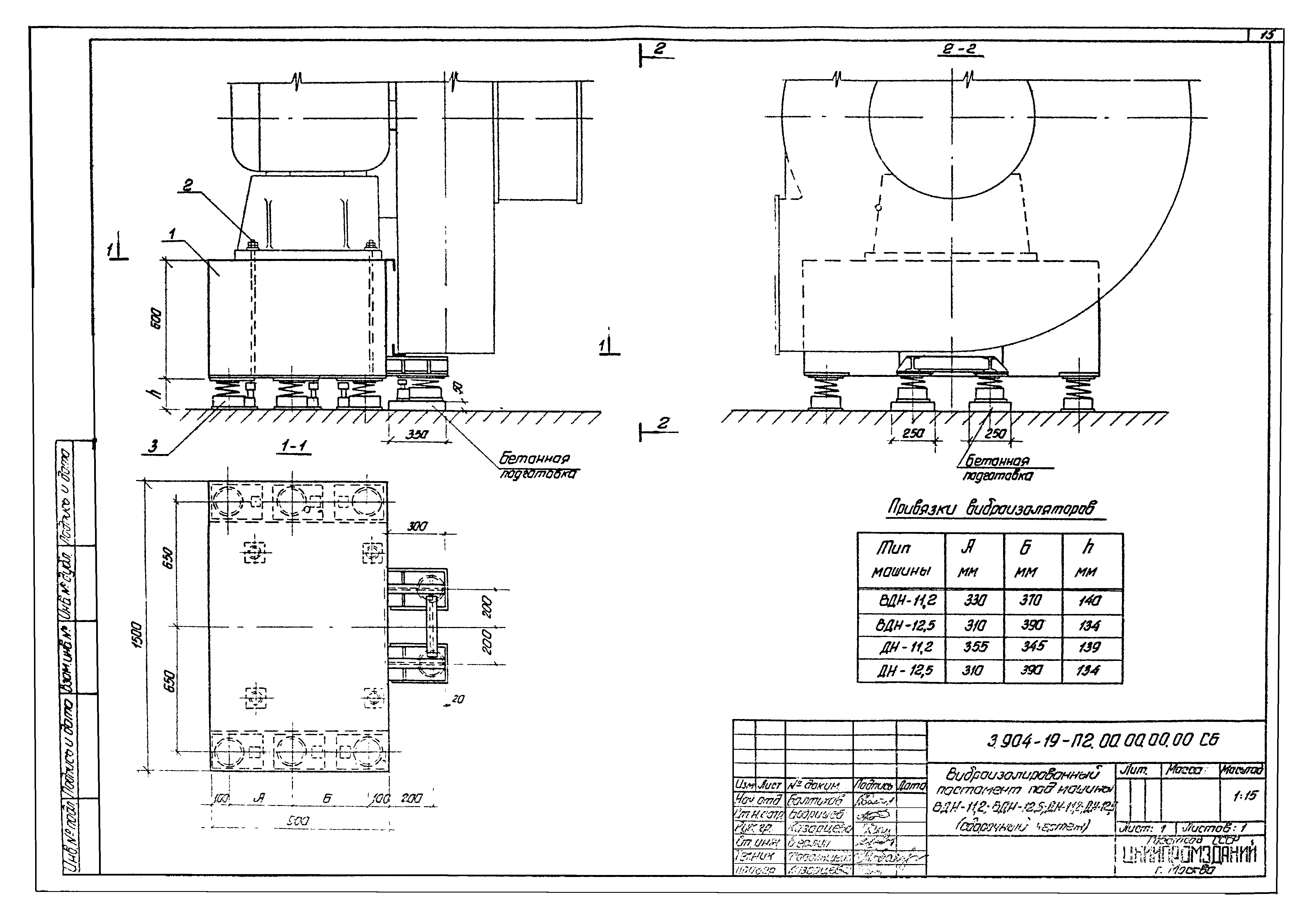
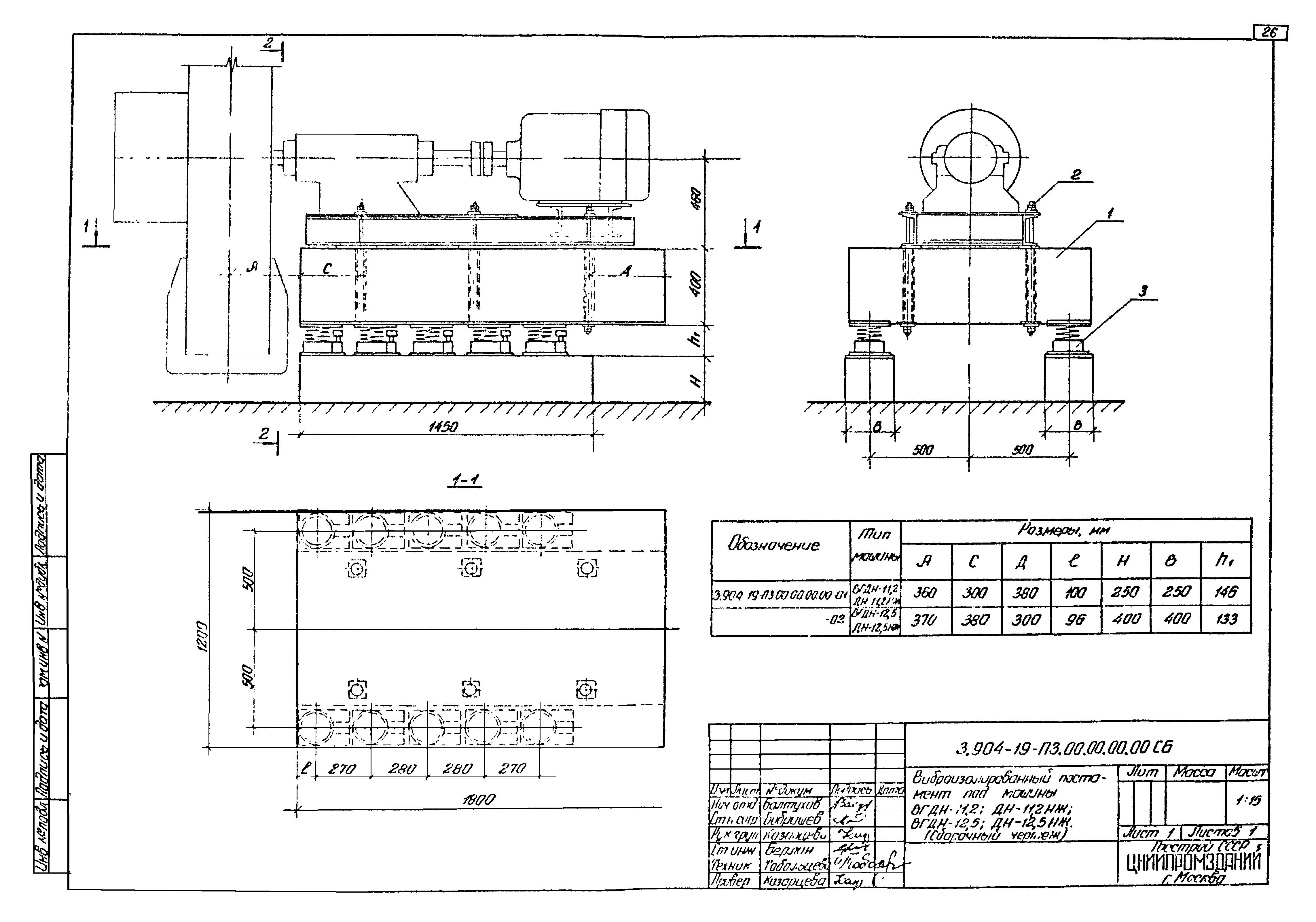
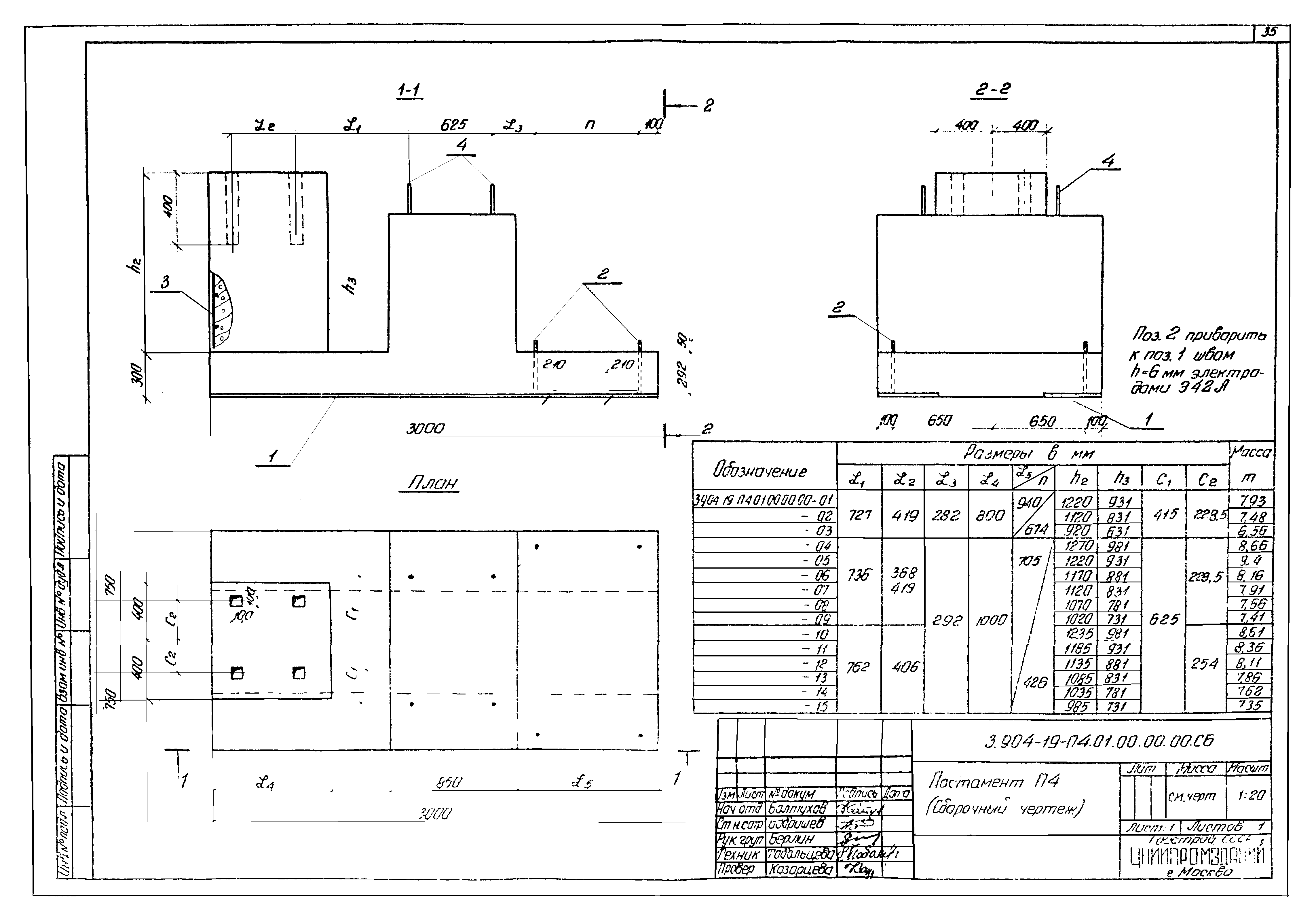
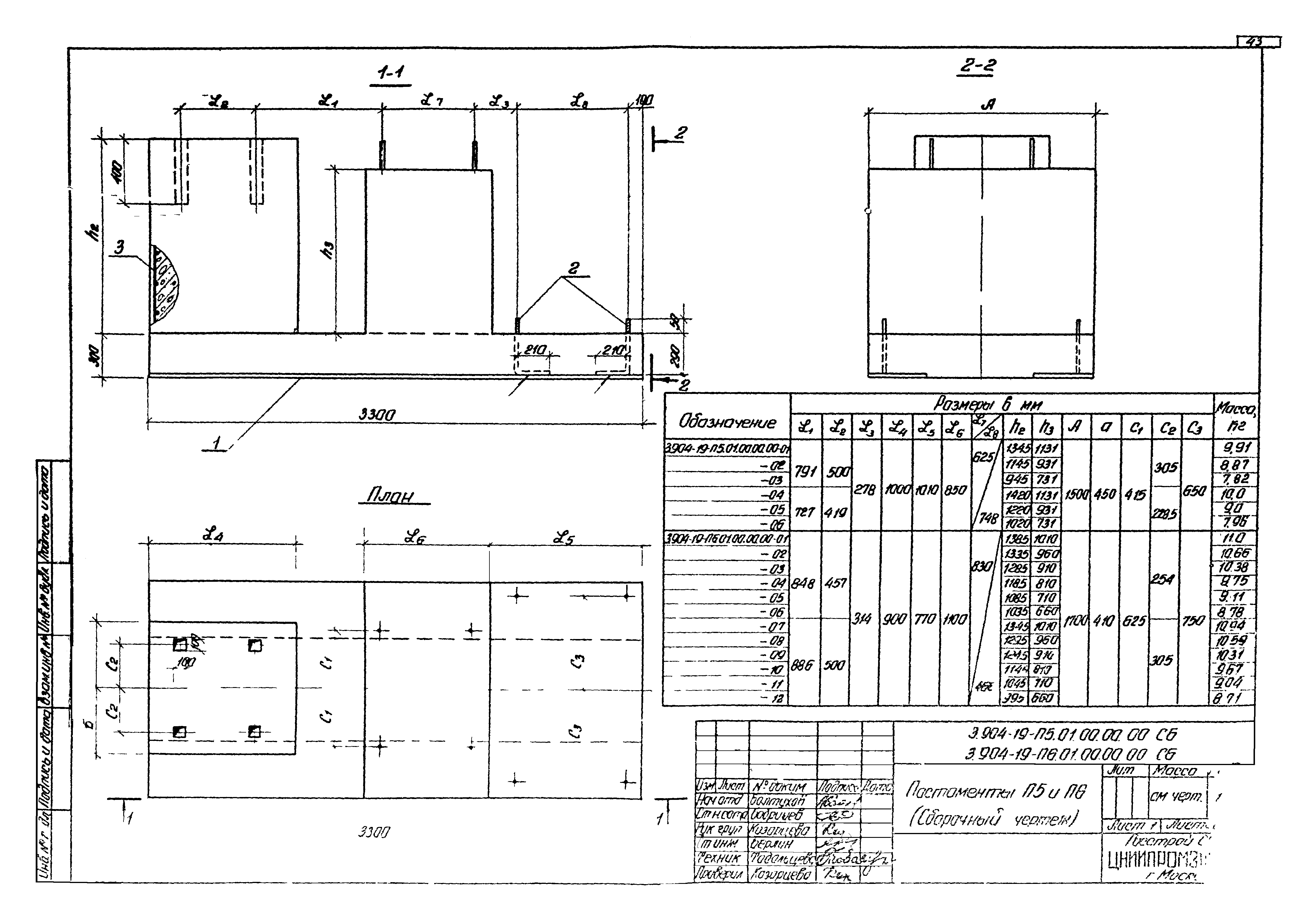
| Оглавление: | 3.904-19-П.00.00.00.00 С Содержание 3.904-19-П.00.00.00.00 ПЗ Пояснительная записка 3.904-19-П.00.00.00.00 ТХ Технические характеристики тягодутьевых машин 3.904-19-П.00.00.00.00 ХВ Характеристики виброизолированных тягодутьевых машин 3.904-19-П.01.00.00.00 СН Схемы статических и динамических нагрузок от машин ВДН-8,ВБН-9,ВДН-10,ДН-9,ДН-10,ВДН-11,2,ВДН-12,5,ДН-11,2,ДН-12,5 3.904-19-П.02.00.00.00 СН Схемы статических и динамических нагрузок от машин ВГДН-11,2,ВГДН-12,5,ДН-11,2НЖ,ДН-12,5НЖ,ВДН-15,ВДН-17,ДН-15,ДН-17,ВМ-15,ВМ-17 3.904-19-П.00.00.00.00 РН Наибольшие расчетные нагрузки на перекрытие 3.904-19-П1.00.00.00.00 Виброизолированный постамент под машины ВДН-8,ВДН-9,ВДН-10,ДН-9,ДН-10 3.904-19-П1.00.00.00.00 СБ Виброизолированный постамент под машины ВДН-8,ВДН-9,ВДН-10,ДН-9,ДН-10. Сборочный чертеж 3.904-19-П2.00.00.00.00 Виброизолированный постамент под машины ВДН-11,2,ВДН-12,5,ДН-11,2,ДН-12,5 3.904-19-П2.00.00.00.00 СБ Виброизолированный постамент под машины ВДН-11,2,ВДН-12,5,ДН-11,2,ДН-12,5. Сборочный чертеж 3.904-19-П1.02.00.00.00 СБ Анкерный болт. Сборочный чертеж 3.904-19-П1.01.00.00.00 Постамент П1 3.904-19-П2.01.00.00.00 Постамент П2 3.904-19-П1.01.00.00.00 СБ; 3.904-19-П2.01.00.00.00 СБ Постаменты П1,П2. Сборочный чертеж 3.904-19-П1.01.01.00.00; 3.904-19-П2.01.01.00.00 Закладная деталь М1 3.904-19-П1.01.01.00.00 СБ; 3.904-19-П2.01.01.00.00 СБ Закладная деталь М1. Сборочный чертеж 3.904-19-П1.01.02.00.00 СБ Закладная деталь М2. Сборочный чертеж 3.904-19-П1.01.03.00.00 СБ Закладная деталь М3. Сборочный чертеж 3.904-19-П1.01.04.00.00 СБ Закладная деталь М4. Сборочный чертеж 3.904-19-П1.01.05.00.00 Армирование постаментов П1 и П2 3.904-19-П1.01.05.00.00 СБ Армирование постаментов П1 и П2. Сборочный чертеж 3.904-19-П1.01.05.01.00 СБ Сетка С1. Сборочный чертеж 3.904-19-П1.01.05.02.00 СБ Сетка С2. Сборочный чертеж 3.904-19-П1.01.05.03.00 СБ Сетка С3. Сборочный чертеж 3.904-19-П1.01.05.04.00 СБ Сетка С4. Сборочный чертеж 3.904-19-П3.00.00.00.00 Виброизолированный постамент под машины ВГДН-11,2,ДН-11,2НЖ,ВГДН-12,5,ДН-12,5НЖ 3.904-19-П3.00.00.00.00 СБ Виброизолированный постамент под машины ВГДН-11,2,ДН-11,2НЖ,ВГДН-12,5,ДН-12,5НЖ. Сборочный чертеж 3.904-19-П3.02.00.00.00 СБ Анкерный болт. Сборочный чертеж 3.904-19-П3.01.00.00.00 Постамент П3 3.904-19-П3.01.00.00.00 СБ Постамент П3. Сборочный чертеж 3.904-19-П3.01.01.00.00 СБ Закладная деталь М1. Сборочный чертеж 3.904-19-П3.01.02.00.00 СБ Закладная деталь М2. Сборочный чертеж 3.904-19-П3.01.03.00.00 Армирование постамента П3 3.904-19-П3.01.03.00.00 СБ Армирование постамента П3. Сборочный чертеж 3.904-19-П3.01.03.01.00 СБ Сетка С1. Сборочный чертеж 3.904-19-П3.01.03.02.00 СБ Сетка С2. Сборочный чертеж 3.904-19-П3.01.03.03.00 СБ Сетка С3. Сборочный чертеж 3.904-19-П4.00.00.00.00 Виброизолированный постамент под машины ВДН-15,ДН-15,ВМ-15 3.904-19-П4.00.00.00.00 СБ Виброизолированный постамент под машины ВДН-15,ДН-15,ВМ-15. Сборочный чертеж 3.904-19-П4.01.00.00.00 Постамент 4 3.904-19-П4.01.00.00.00 СБ Постамент 4. Сборочный чертеж 3.904-19-П4.01.01.00.00 СБ Закладная деталь М1. Сборочный чертеж 3.904-19-П4.01.03.00.00 Армирование постамента П4 3.904-19-П4.01.03.00.00 СБ Армирование постамента П4. Сборочный чертеж 3.904-19-П4.01.03.01.00 СБ Сетка С1. Сборочный чертеж 3.904-19-П4.01.03.02.00 СБ Сетка С2. Сборочный чертеж 3.904-19-П4.01.03.03.00 СБ Сетка С3. Сборочный чертеж 3.904-19-П4.01.03.04.00 СБ Сетка С4. Сборочный чертеж 3.904-19-П4.01.03.05.00 СБ Сетка С5. Сборочный чертеж 3.904-19-П4.01.03.06.00 СБ Сетка С6. Сборочный чертеж 3.904-19-П4.01.03.07.00 СБ Сетка С7. Сборочный чертеж 3.904-19-П5.00.00.00.00; 3.904-19-П6.00.00.00.00 Виброизолированные постаменты под машины ВДН-17,ДН-17,ВМ-17 3.904-19-П5.00.00.00.00 СБ; 3.904-19-П6.00.00.00.00 СБ Виброизолированные постаменты под машины ВДН-17,ДН-17,ВМ-17. Сборочный чертеж 3.904-19-П5.01.00.00.00; 3.904-19-П6.01.00.00.00 Постаменты П5 и П6 3.904-19-П5.01.00.00.00 СБ; 3.904-19-П6.01.00.00.00 СБ Постаменты П5 и П6. Сборочный чертеж 3.904-19-П5.01.01.00.00 СБ; 3.904-19-П6.01.01.00.00 СБ Закладная деталь М1. Сборочный чертеж 3.904-19-П5.01.03.00.00; 3.904-19-П6.01.03.00.00 Армирование постаментов П5 и П6 3.904-19-П5.01.03.00.00 СБ; 3.904-19-П6.01.03.00.00 СБ Армирование постаментов П5 и П6. Сборочный чертеж 3.904-19-П5.01.03.01.00 СБ; 3.904-19-П6.01.03.01.00 СБ Сетка С1. Сборочный чертеж 3.904-19-П5.01.03.02.00 СБ; 3.904-19-П6.01.03.02.00 СБ Сетка С2. Сборочный чертеж 3.904-19-П5.01.03.03.00 СБ; 3.904-19-П6.01.03.03.00 СБ Сетка С3. Сборочный чертеж 3.904-19-П5.01.03.04.00 СБ; 3.904-19-П6.01.03.04.00 СБ Сетка С4. Сборочный чертеж 3.904-19-П5.01.03.05.00 СБ; 3.904-19-П6.01.03.05.00 СБ Сетка С5. Сборочный чертеж 3.904-19-П5.01.03.06.00 СБ; 3.904-19-П6.01.03.06.00 СБ Сетка С6. Сборочный чертеж 3.904-19-П5.01.03.07.00 СБ; 3.904-19-П6.01.03.07.00 СБ Сетка С7. Сборочный чертеж 3.904-19-П.00.00.00.00 ВС Выборка стали |
| Разработан: | ЦНИИпромзданий |
| Утверждён: | 23.03.1979 Госстрой СССР (Государственный комитет Совета Министров СССР по делам строительства) (USSR Gosstroy 38) Госстрой СССР (Государственный комитет Совета Министров СССР по делам строительства) (USSR Gosstroy ) |


















































