Скачать Типовой проект 503-313 Альбом I. Пояснительная записка. Технические чертежи. Архитектурно-строительные чертежи. Чертежи санитарно-технических систем и устройствДата актуализации: 01.01.2021
|
| Обозначение: | Типовой проект 503-313 |
| Обозначение англ: | 503-313 |
| Статус: | не действует |
| Название рус.: | Альбом I. Пояснительная записка. Технические чертежи. Архитектурно-строительные чертежи. Чертежи санитарно-технических систем и устройств |
| Дата добавления в базу: | 01.09.2013 |
| Дата актуализации: | 01.01.2021 |
| Дата введения: | 30.04.1979 |
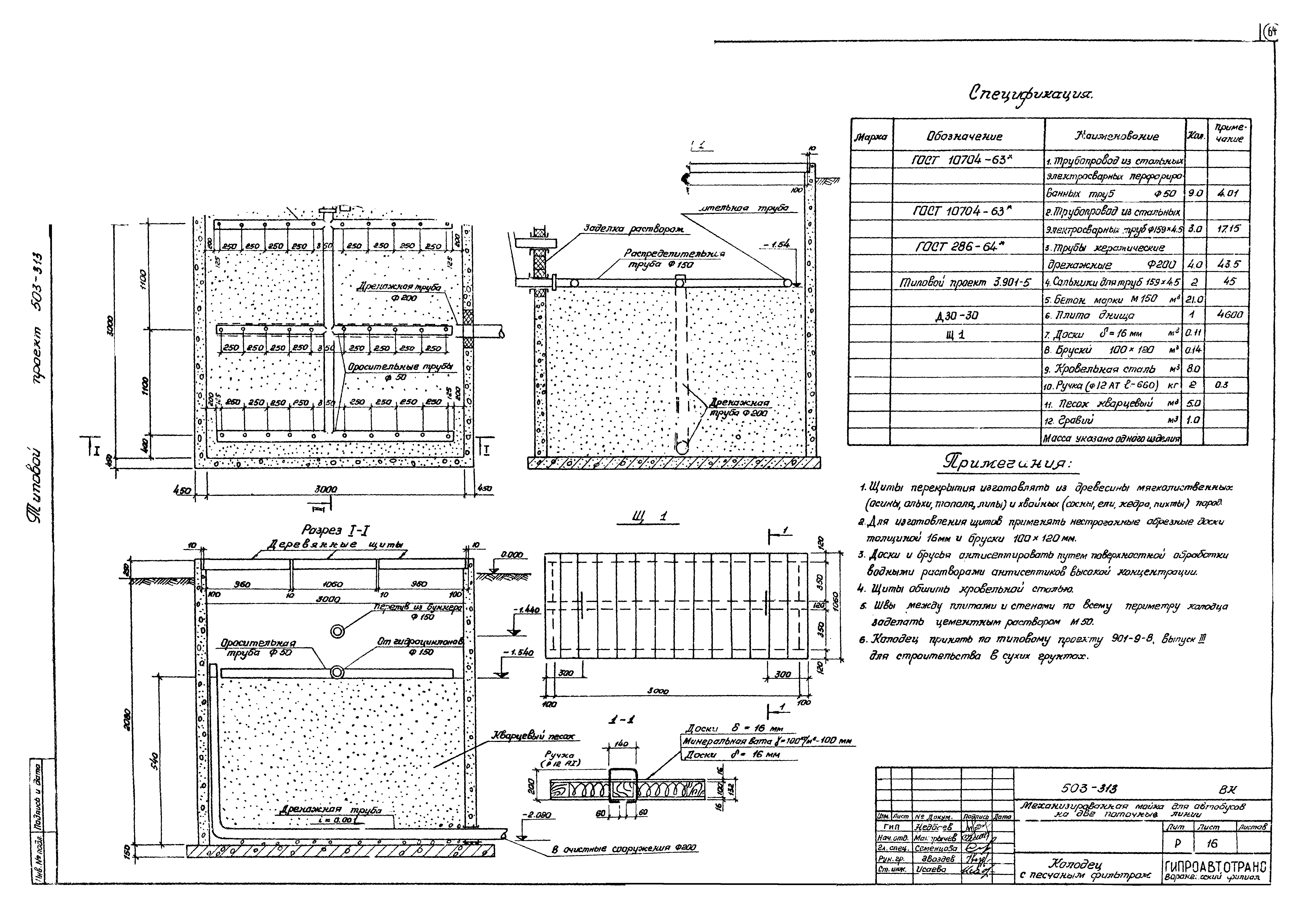
| Оглавление: | ТП 503-313 Содержание ТП 503-313 Общие данные (начало) ТП 503-313 Общие данные (продолжение) ТП 503-313 Общие данные (окончание) ТП 503-313-ТХ-1 Общие данные ТП 503-313-ТХ-2 План на отм. 0.000. Разрез 1-1. Спецификация ТП 503-313-ТХ-3 План и схема разводки трубопроводов сжатого воздуха. Расход сжатого воздуха ТП 503-313-ТХ-4 План и схема разводки трубопроводов обеззараживающих растворов ТП 503-313-АР-1 Общие данные (начало) ТП 503-313-АР-2 Общие данные (окончание) ТП 503-313-АР-3 Маркировочная схема подземных конструкций. Фундаменты ФОМ2,ФОМ3. Канал 1. Приямок 1 ТП 503-313-АР-4 Фундамент ФОМ1. План на отм. 0.000 (начало). Компоновочный план ТП 503-313-АР-5 Фундамент ФОМ1. План на отм. 0.000 (окончание). Узлы 1-5 ТП 503-313-АР-6 Фундамент ФОМ1. Сечения 1-1÷4-4 ТП 503-313-АР-7 Фундамент ФОМ1. Сечения 5-5÷12-12 ТП 503-313-АР-8 План на отм. 0.000. Антресоль на отм. 3.000. Разрез 1-1 ТП 503-313-АР-9 Фрагмент плана 1 ТП 503-313-АР-10 План отверстий в перегородках на отм. 0.000. Фрагменты плана 2,3,4 ТП 503-313-АР-11 Фасады. Схемы заполнения оконных проемов ТП 503-313-АР-12 Маркировочные схемы армирования стен под плитами покрытия и перекрытия ТП 503-313-АР-13 План кровли. План полов ТП 503-313-АР-14 Площадка ПМ1. Схемы балок и отверстий площадок ПМ1. Лестницы Л1,Л2,Л3 ТП 503-313-АР-15 Узлы 12-21 ТП 503-313-АР-16 Схема щитов операторской. Узлы 22-28 ТП 503-313-КЖ-1 Общие данные ТП 503-313-КЖ-2 План фундаментов ТП 503-313-КЖ-3 Маркировочная схема плит покрытия, балок и опорных подушек. Разрез 1-1 ТП 503-313-КЖ-4 Маркировочная схема плит перекрытия. Узлы 1-3 ТП 503-313-ОВ-1 Общие данные (начало) ТП 503-313-ОВ-2 Общие данные (продолжение) ТП 503-313-ОВ-3 Общие данные (продолжение) ТП 503-313-ОВ-4 Общие данные (продолжение) ТП 503-313-ОВ-5 Общие данные (продолжение) ТП 503-313-ОВ-6 Общие данные (продолжение) ТП 503-313-ОВ-7 Общие данные (окончание) ТП 503-313-ОВ-8 План на отм. 0.000 и фрагмент плана на отм. 3.000 ТП 503-313-ОВ-9 Схемы систем У1-У8,П1-П5,В4-В6,ВЕ1-ВЕ10 ТП 503-313-ОВ-10 Система отопления ТП 503-313-ОВ-11 Система теплоснабжения отопительно-вентиляционных установок. Узлы 1,10 ТП 503-313-ОВ-12 Узлы 2-9 ТП 503-313-ОВ-13 Установки систем П1-П5,В4-В6. Разрез 1-1 ТП 503-313-ОВ-14 Спецификация отопительно-вентиляционных установок П1-П5,В4-В6 ТП 503-313-ОВ-15 Тепловой пункт. Вариант 1. План. Разрезы 1-1,2-2,3-3 ТП 503-313-ОВ-16 Тепловой пункт. Вариант 1. Принципиальная схема. Детали ТП 503-313-ОВ-17 Тепловой пункт. Вариант 2. План. Разрезы 1-1,2-2,3-3 ТП 503-313-ОВ-18 Тепловой пункт. Вариант 2. Принципиальная схема. Детали ТП 503-313-ВК-1 Общие данные (начало) ТП 503-313-ВК-2 Общие данные (продолжение) ТП 503-313-ВК-3 Общие данные (продолжение) ТП 503-313-ВК-4 Общие данные (продолжение) ТП 503-313-ВК-5 Общие данные (продолжение) ТП 503-313-ВК-6 Общие данные (окончание) ТП 503-313-ВК-7 План на отметке 0.000. Экспликация технологического оборудования. Вариант 1 ТП 503-313-ВК-8 План на отметке 0.000. Экспликация технологического оборудования. Вариант 2 ТП 503-313-ВК-9 Схема системы В-1. Вариант 1 ТП 503-313-ВК-10 Схемы систем В-1,В-9. Вариант 2 ТП 503-313-ВК-11 Схемы систем Т-31,Т-32. Вариант 1 ТП 503-313-ВК-12 Схемы систем Т-31,Т-32. Вариант 2 ТП 503-313-ВК-13 Бак запаса воды. Спецификация. Смеситель. Схема системы Т-33. Фрагмент плана на отм. 3.000 ТП 503-313-ВК-14 Схемы систем К-1,К-4 и В-5 ТП 503-313-ВК-15 Схемы систем К-6,К-8,К-13,К-14,К-15 ТП 503-313-ВК-16 Колодец с песчаным фильтром |
| Разработан: | Воронежский филиал Гипроавтотранс |
| Утверждён: | 14.08.1978 Минавтотранс РСФСР (Russian Federation Minavtotrans 56) |
| Чем заменён: |

































































