Скачать Типовые проектные решения 901-09-9 Альбом II. Строительные решения переходовДата актуализации: 01.01.2021
|
| Обозначение: | Типовые проектные решения 901-09-9 |
| Обозначение англ: | 901-09-9 |
| Статус: | заменен |
| Название рус.: | Альбом II. Строительные решения переходов |
| Дата добавления в базу: | 01.09.2013 |
| Дата актуализации: | 01.01.2021 |
| Дата окончания срока действия: | 01.09.1987 |
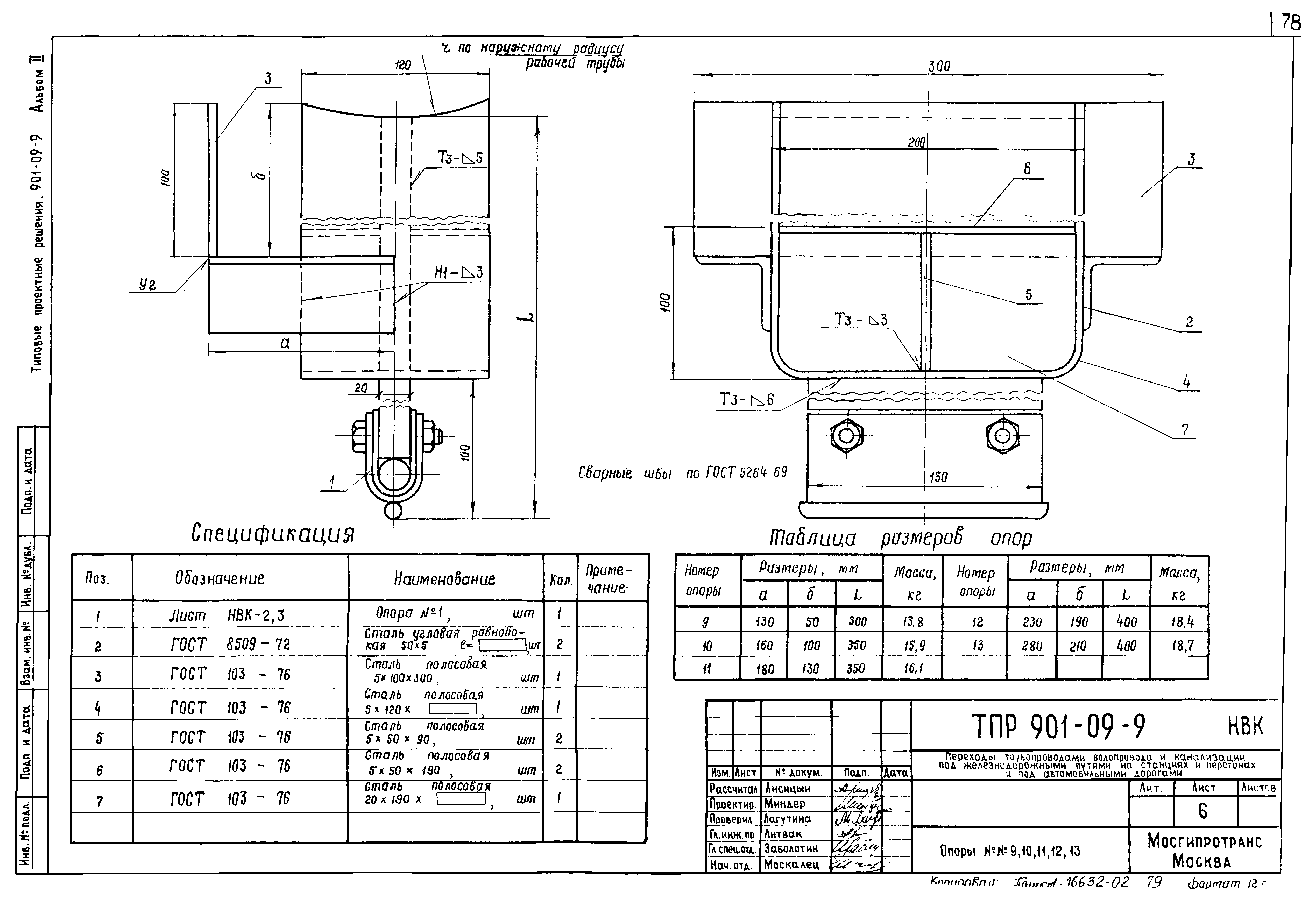
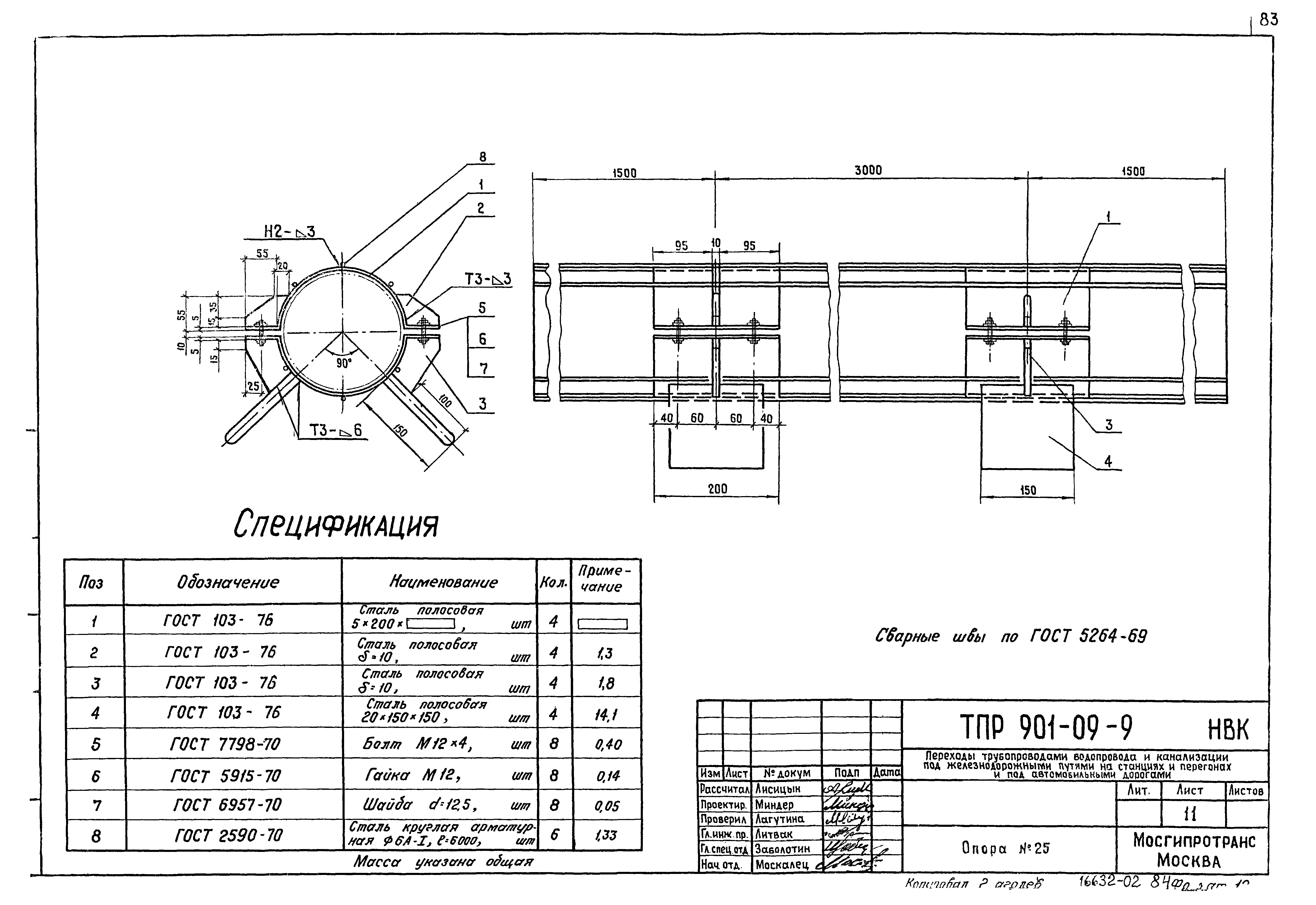
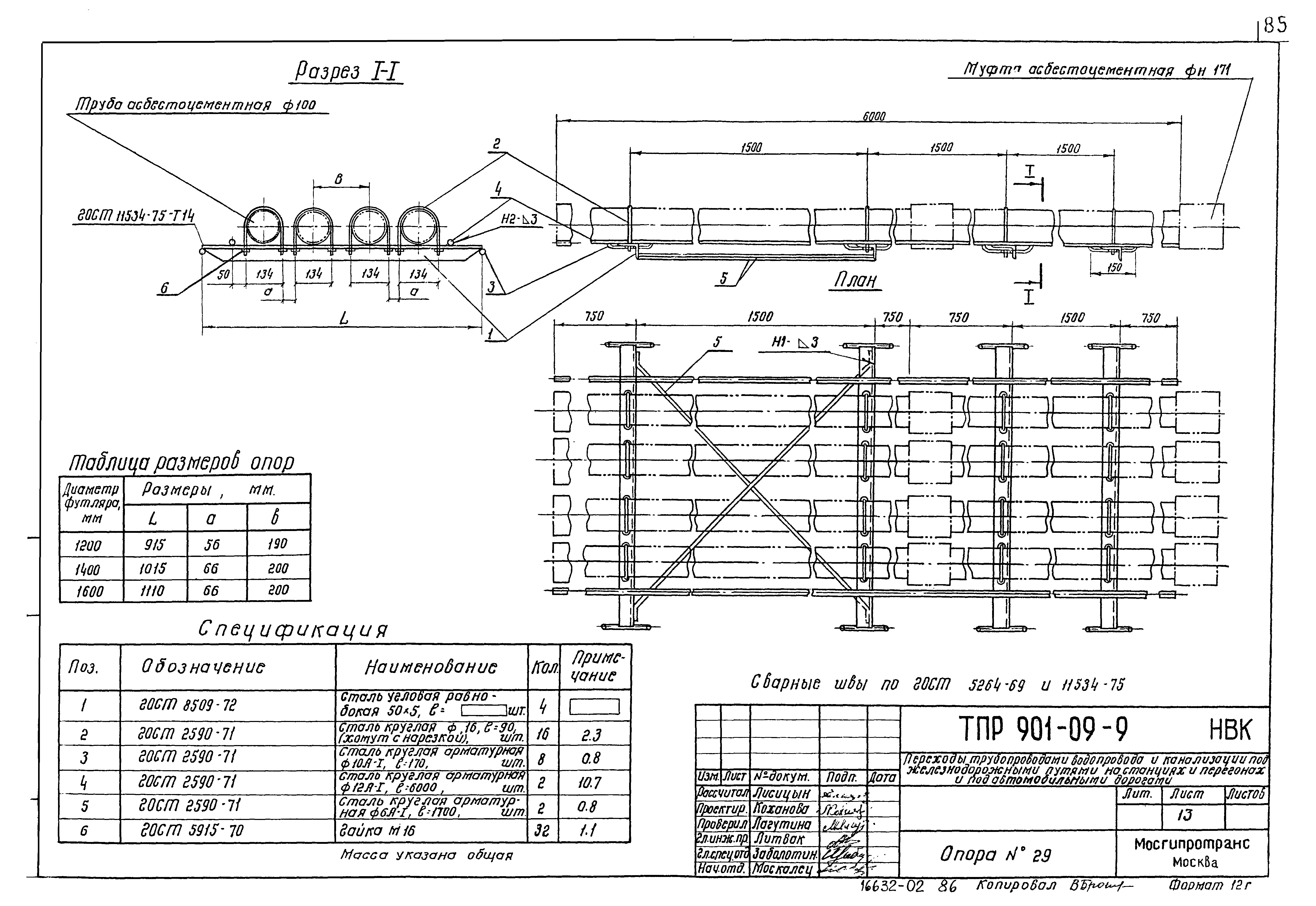
| Оглавление: | ТПР 901-09-9 Обложка ТПР 901-09-9 Титульный лист ТПР 901-09-9 Содержание ТПР 901-09-9-НВ-1 Общие данные. Начало и окончание ТПР 901-09-9-НВ-2 Водопровод под ж/д путями на станции ТПР 901-09-9-НВ-3 Водопровод под ж/д путями на насыпи высотой до 6 м на перегоне ТПР 901-09-9-НВ-4 Водопровод под ж/д путями в выемке глубиной до 4 м на перегоне ТПР 901-09-9-НВ-5 Водопровод под ж/д путями на станции в вечномерзлых грунтах, подземный ТПР 901-09-9-НВ-6 Водопровод над ж/д путями на станции в вечномерзлых грунтах, надземный по эстакаде ТПР 901-09-9-НВ-7 Водопровод под ж/д путями на перегоне в вечномерзлых грунтах, подземный ТПР 901-09-9-НВ-8 Водопровод над ж/д путями на перегоне в вечномерзлых грунтах, надземный по эстакаде ТПР 901-09-9-НВ-9 Водопровод под ж/д путями на насыпе на перегоне в вечномерзлых грунтах, надземный ТПР 901-09-9-НВ-10 Водопровод под автодорогой на насыпи высотой до 6 м ТПР 901-09-9-НВ-11 Водопровод под автодорогой на насыпи обтекаемого профиля высотой до 1.5 м ТПР 901-09-9-НВ-12 Водопровод под автодорогой на насыпи необтекаемого профиля высотой до 0.6 м ТПР 901-09-9-НВ-13 Водопровод под автодорогой в выемке глубиной до 4 м ТПР 901-09-9-НВ-14 Водопровод под автодорогой на насыпи в вечномерзлых грунтах, подземный ТПР 901-09-9-НВ-15 Водопровод над автодорогой на насыпи в вечномерзлых грунтах, надземный по эстакаде ТПР 901-09-9-НВ-16 Водопровод под автодорогой в выемке в вечномерзлых грунтах, подземный ТПР 901-09-9-НВ-17 Водопровод над автодорогой в выемке в вечномерзлых грунтах, надземный по эстакаде ТПР 901-09-9-НВ-18 Водопровод под автодорогой на насыпи в вечномерзлых грунтах, наземный ТПР 901-09-9-НВ-19 Оборудование футляров. Тип 1 ТПР 901-09-9-НВ-20 Оборудование футляров. Тип 1-А ТПР 901-09-9-НВ-21 Оборудование футляров. Тип 2 ТПР 901-09-9-НВ-22 Оборудование футляров. Тип 2-А ТПР 901-09-9-НВ-23 Оборудование футляров. Тип 2-Б ТПР 901-09-9-НВ-24 Оборудование футляров. Тип 2-В ТПР 901-09-9-НВ-25 Оборудование футляров. Тип 3 ТПР 901-09-9-НВ-26 Оборудование футляров. Тип 3-А ТПР 901-09-9-НВ-27 Оборудование футляров. Тип 4 ТПР 901-09-9-НВ-28 Оборудование футляров. Тип 4-А ТПР 901-09-9-НВ-29 Оборудование футляров. Тип 5 ТПР 901-09-9-НВ-30 Оборудование футляров. Тип 5-А ТПР 901-09-9-НВ-31 Оборудование футляров. Тип 6 ТПР 901-09-9-НВ-32 Оборудование футляров. Тип 6-А ТПР 901-09-9-НК-1 Общие данные ТПР 901-09-9-НК-2 Канализация под ж/д путями на станции ТПР 901-09-9-НК-3 Канализация под ж/д путями на насыпи. Высотой до 6 м на перегоне ТПР 901-09-9-НК-4 Канализация под ж/д путями в выемке глубиной до 4 м на перегоне ТПР 901-09-9-НК-5 Канализация под ж/д путями на деповской территории ТПР 901-09-9-НК-6 Канализация под ж/д путями на деповской территории с устройством лотка в футляре ТПР 901-09-9-НК-7 Канализация под ж/д путями на станции в вечномерзлых грунтах ТПР 901-09-9-НК-8 Канализация под ж/д путями на перегоне в вечномерзлых грунтах ТПР 901-09-9-НК-9 Канализация под ж/д путями на насыпи на перегоне в вечномерзлых грунтах, наземная ТПР 901-09-9-НК-10 Канализация под автодорогой на насыпи высотой до 6 м ТПР 901-09-9-НК-11 Канализация под автодорогой на насыпи обтекаемого профиля высотой до 1.5 м ТПР 901-09-9-НК-12 Канализация под автодорогой на насыпи необтекаемого профиля высотой до 0.6 м ТПР 901-09-9-НК-13 Канализация под автодорогой в выемке глубиной до 4 м ТПР 901-09-9-НК-14 Канализация под автодорогой на насыпи в вечномерзлых грунтах ТПР 901-09-9-НК-15 Канализация под автодорогой в выемке в вечномерзлых грунтах ТПР 901-09-9-НК-16 Канализация под автодорогой на насыпи высотой до 6 м в вечномерзлых грунтах, наземная ТПР 901-09-9-НК-17 Оборудование футляров. Тип 7 ТПР 901-09-9-НК-18 Оборудование футляров. Тип 7-А ТПР 901-09-9-НК-19 Оборудование футляров. Тип 8 ТПР 901-09-9-НК-20 Оборудование футляров. Тип 9 ТПР 901-09-9-НК-21 Оборудование футляров. Тип 9-А ТПР 901-09-9-НК-22 Оборудование футляров. Тип 10 ТПР 901-09-9-НК-23 Оборудование футляров. Тип 10-А ТПР 901-09-9-НК-24 Оборудование футляров. Тип 11 ТПР 901-09-9-НК-25 Оборудование футляров. Тип 11-А ТПР 901-09-9-НК-26 Оборудование футляров. Типы 12 и 13 ТПР 901-09-9-НК-27 Оборудование футляров. Тип 14 ТПР 901-09-9-НК-28 Оборудование футляров. Тип 14-А ТПР 901-09-9-НК-29 Оборудование футляров. Тип 15 ТПР 901-09-9-НК-30 Оборудование футляров. Тип 15-А ТПР 901-09-9-НК-31 Оборудование футляров. Тип 16 ТПР 901-09-9-НК-32 Оборудование футляров. Тип 16-А ТПР 901-09-9-НК-33 Оборудование футляров. Тип 17 ТПР 901-09-9-НК-34 Оборудование футляров. Тип 17-А ТПР 901-09-9-НВК-1 Общие данные ТПР 901-09-9-НВК-2 Опоры №1,2,3. Диэлектрик-паронит ТПР 901-09-9-НВК-3 Опоры №1,2,3. Диэлектрик-текстолит ТПР 901-09-9-НВК-4 Опоры №4,5 ТПР 901-09-9-НВК-5 Опоры №6,7,8 ТПР 901-09-9-НВК-6 Опоры №9,10,11,12,13 ТПР 901-09-9-НВК-7 Опоры №14,15,16 ТПР 901-09-9-НВК-8 Опоры №17,18 ТПР 901-09-9-НВК-9 Опоры №19,20,21,22,23 ТПР 901-09-9-НВК-10 Опора №24 ТПР 901-09-9-НВК-11 Опора №25 ТПР 901-09-9-НВК-12 Опоры №26,27,28 ТПР 901-09-9-НВК-13 Опора №29 ТПР 901-09-9-НВК-14 Ручка ТПР 901-09-9-АР-1 Общие данные ТПР 901-09-9-АР-2 Схема эстакады длиной до 40 м из элементов типовых светофорных мостиков (без неподвижной опоры под трубы) ТПР 901-09-9-АР-3 Примеры размещения коммуникаций на эстакадах из светофорных мостиков и допустимые нагрузки (область применения) ТПР 901-09-9-АР-4 Конструкции фундаментов опор эстакад из элементов светофорных мостиков ТПР 901-09-9-АР-5 Поперечное соединение эстакад из двух светофорных мостиков и общий вид оголовка стоек (средняя опора) ТПР 901-09-9-АР-6 Поперечное соединение эстакад из двух светофорных мостиков (крайняя опора) ТПР 901-09-9-АР-7 Поперечное соединение эстакад из трех светофорных мостиков (крайняя опора) ТПР 901-09-9-АР-8 Поперечное соединение эстакад из элементов светофорных мостиков (ведомость швеллеров) ТПР 901-09-9-АР-9 Расположение и ведомость двутавров под подвижные опоры труб ТПР 901-09-9-АР-10 Прикрепление двутавров и опорных листов на эстакадах из элементов светофорных мостиков ТПР 901-09-9-АР-11 Конструкция настила на эстакадах из элементов светофорных мостиков ТПР 901-09-9-АР-12 Ведомости металла настила на эстакадах из элементов светофорных мостиков ТПР 901-09-9-АР-13 Схема эстакады длиной до 40 м с использованием элементов типовых железобетонных пешеходных мостиков (без неподвижной опоры) ТПР 901-09-9-АР-14 Схема эстакады длиной от 40 до 80 м с использованием элементов типовых железобетонных мостов (с неподвижной опоры) ТПР 901-09-9-АР-15 Лестницы на эстакадах с использованием конструкции пешеходных мостов (общий вид) ТПР 901-09-9-АР-16 Лестницы на эстакадах с использованием конструкции пешеходных мостов (детали, ведомость элементов) ТПР 901-09-9-АК-1 Общие данные ТПР 901-09-9-АК-2 Размещение протекторов параллельно оси перехода. План и разрезы ТПР 901-09-9-АК-3 Размещение протекторов перпендикулярно оси перехода. План и разрезы ТПР 901-09-9-АК-4 Групповая установка протекторов. Схемы и узлы ТПР 901-09-9-АК-5 Размещение протекторов в скважинах. План и разрезы ТПР 901-09-9-АК-6 Групповая установка протекторов в скважинах. Схемы и узлы |
| Разработан: | Мосгипротранс |
| Утверждён: | 28.11.1979 Министерство путей сообщения СССР (USSR Ministry of Railroads М-44998) |
| Заменяет собой: | |
| Чем заменён: |














































































































