Скачать Типовой проект 902-1-59 Альбом II. Архитектурно-строительные решения (глубина заложения подводящего коллектора 4,0; 5,5 и 7,0 м). Надземная часть. Общие чертежи, узлы и деталиДата актуализации: 01.01.2021
|
| Обозначение: | Типовой проект 902-1-59 |
| Обозначение англ: | 902-1-59 |
| Статус: | действует |
| Название рус.: | Альбом II. Архитектурно-строительные решения (глубина заложения подводящего коллектора 4,0; 5,5 и 7,0 м). Надземная часть. Общие чертежи, узлы и детали |
| Дата добавления в базу: | 01.09.2013 |
| Дата актуализации: | 01.01.2021 |
| Дата введения: | 01.02.1981 |
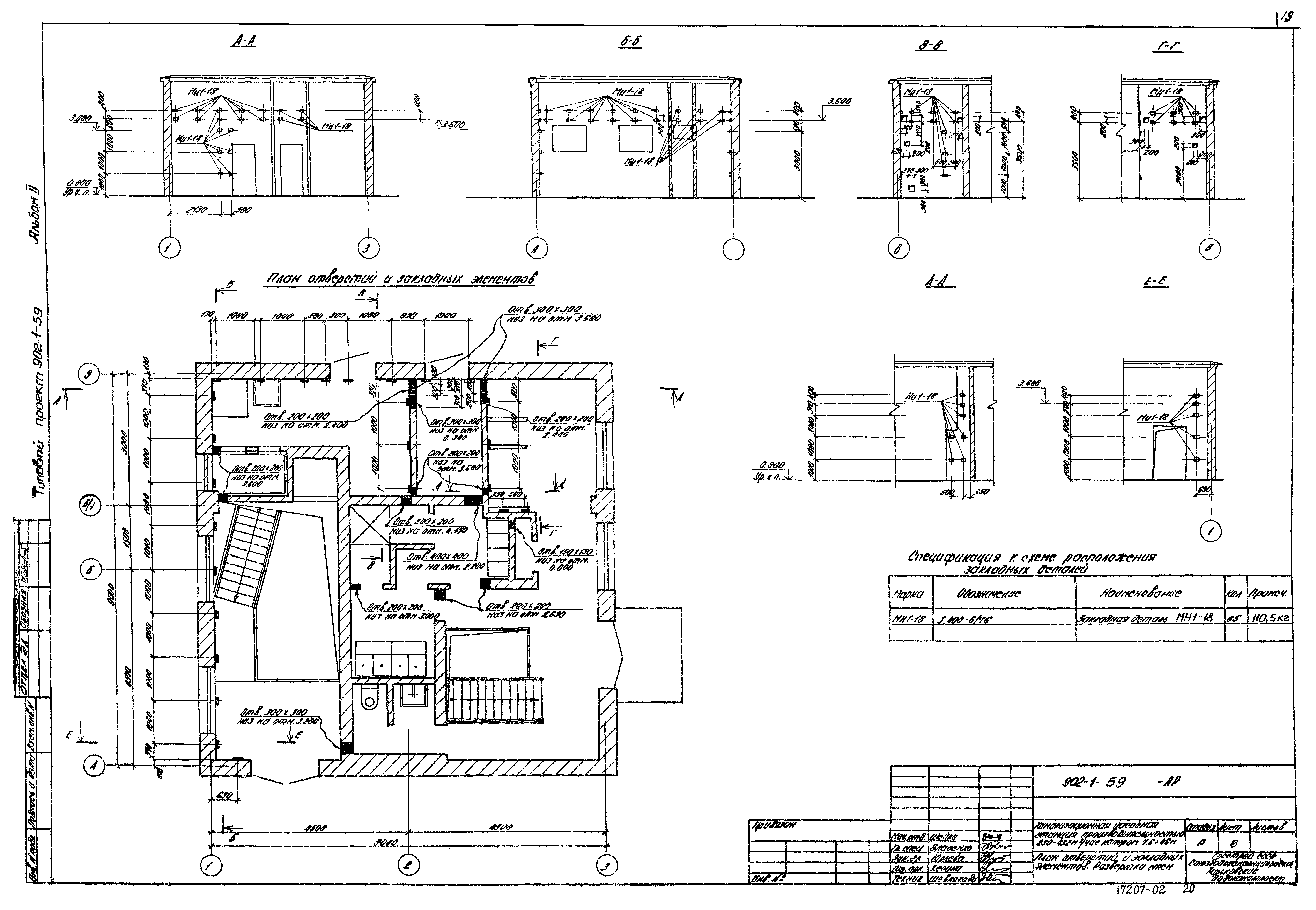
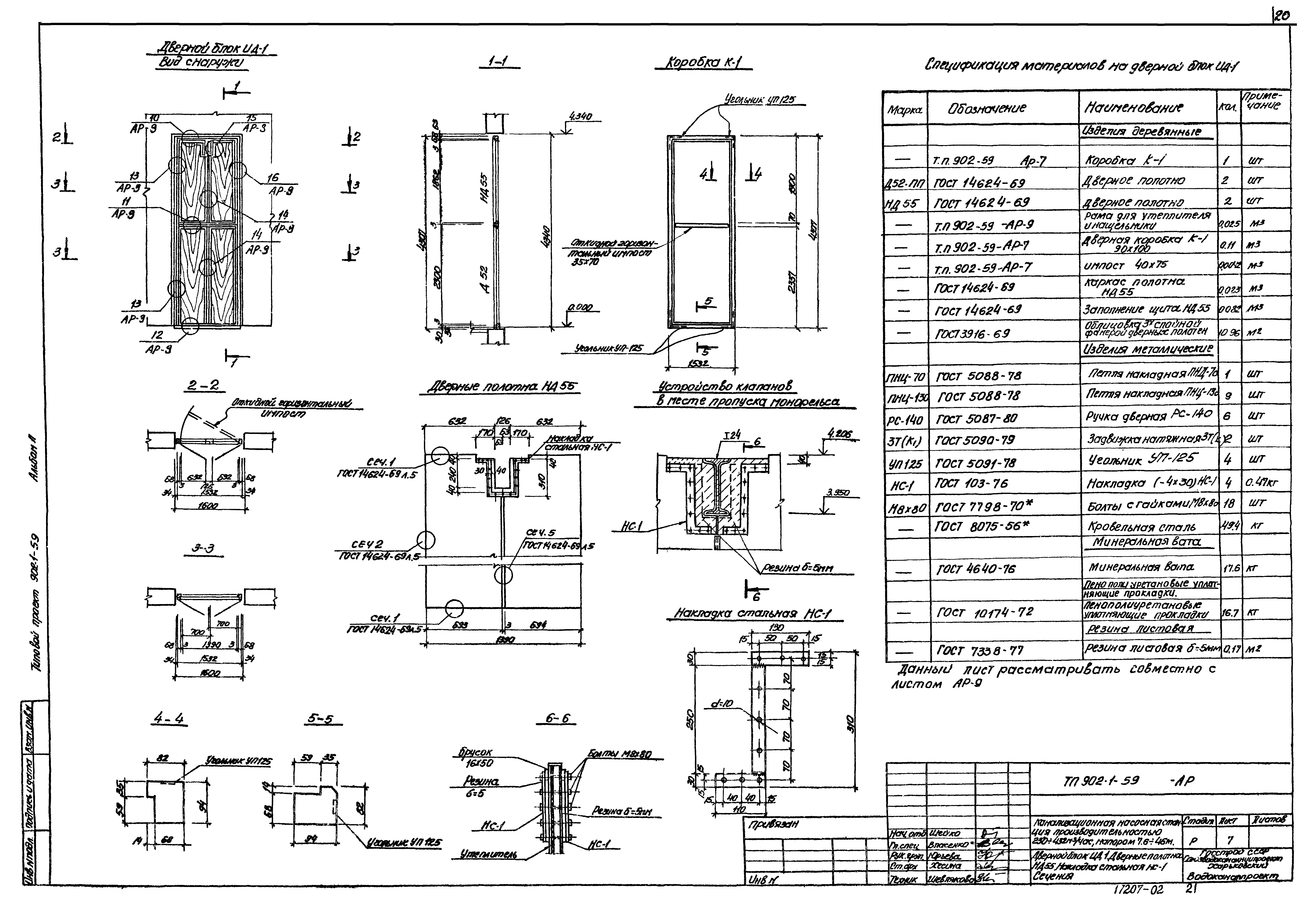
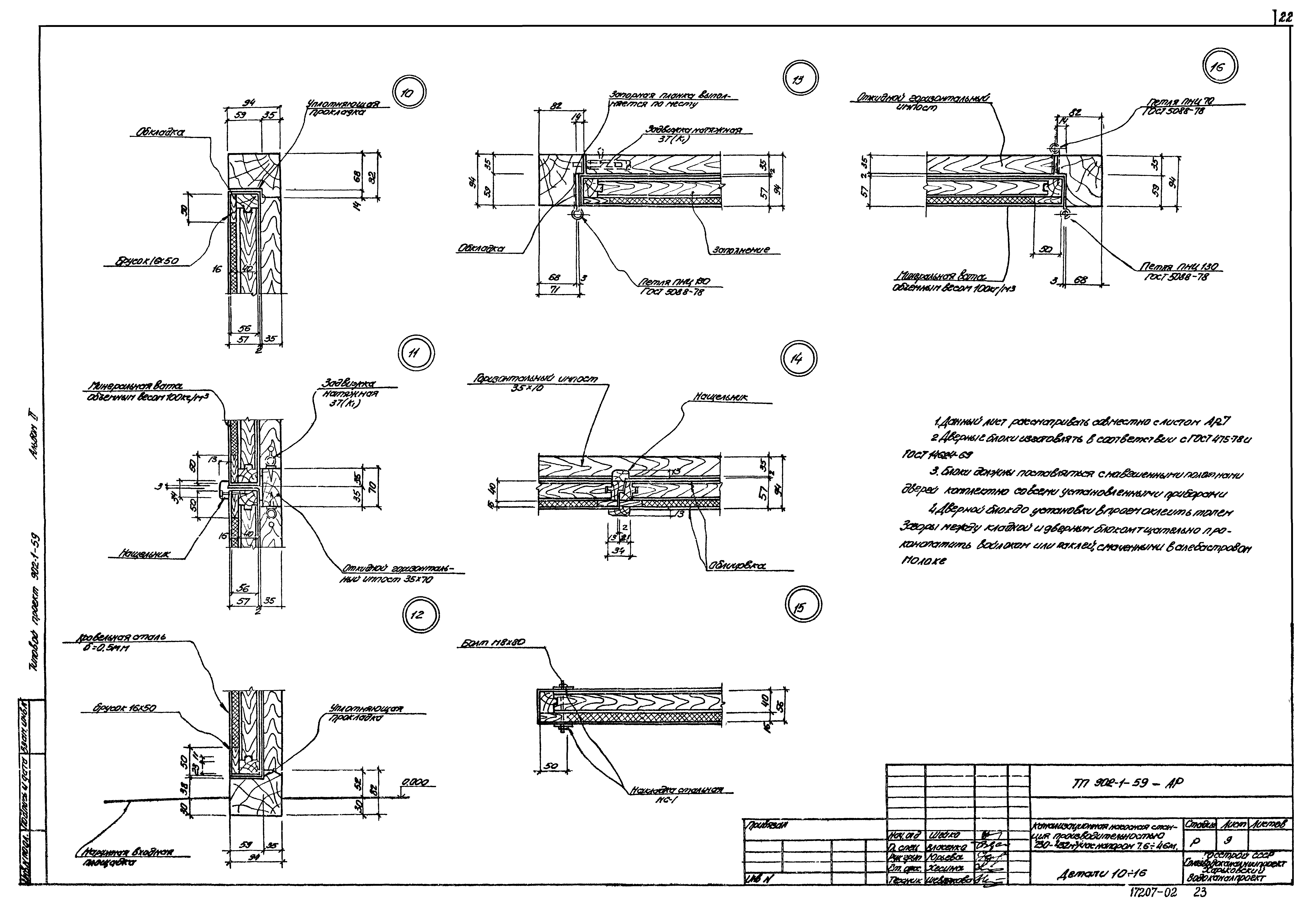
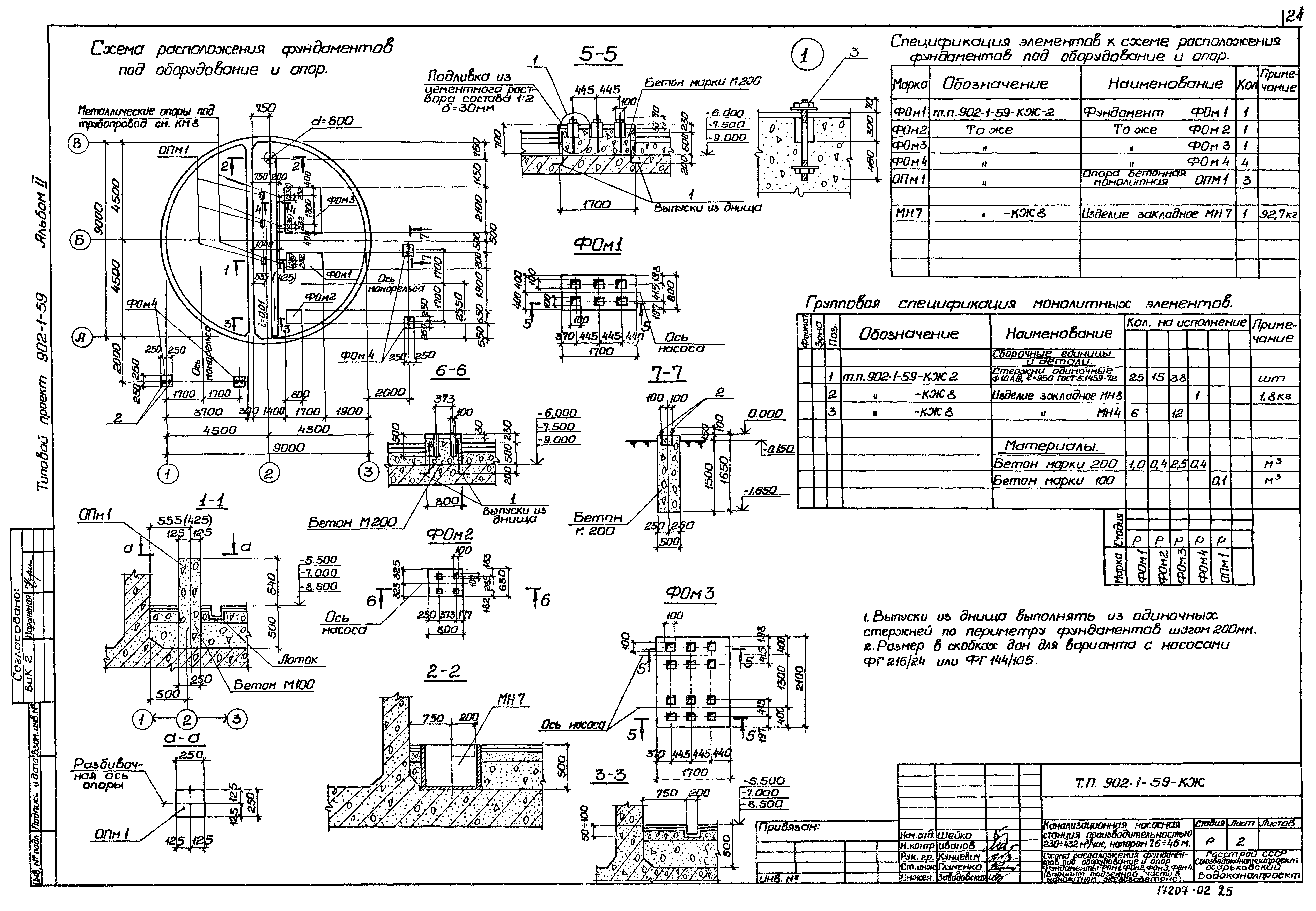
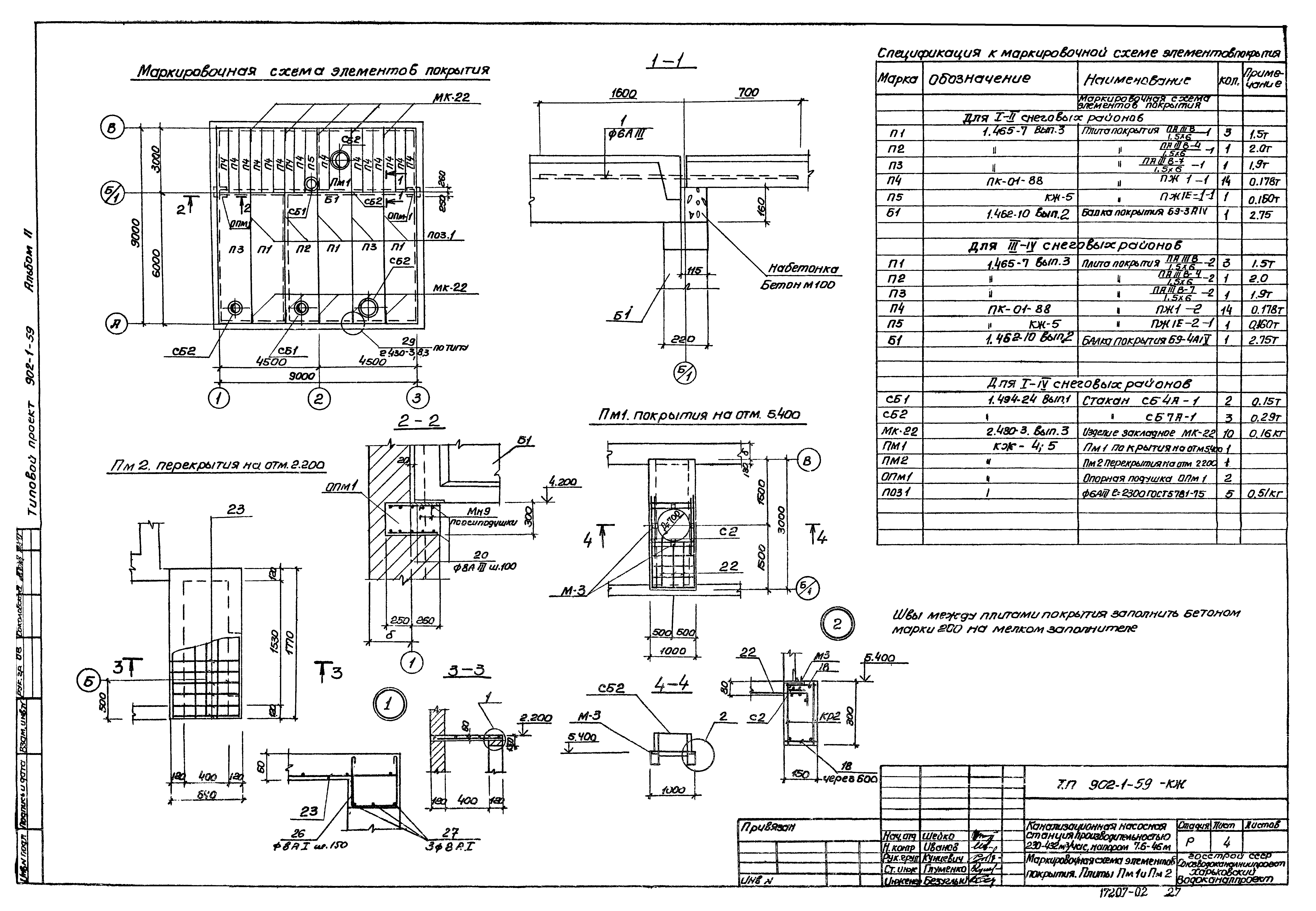
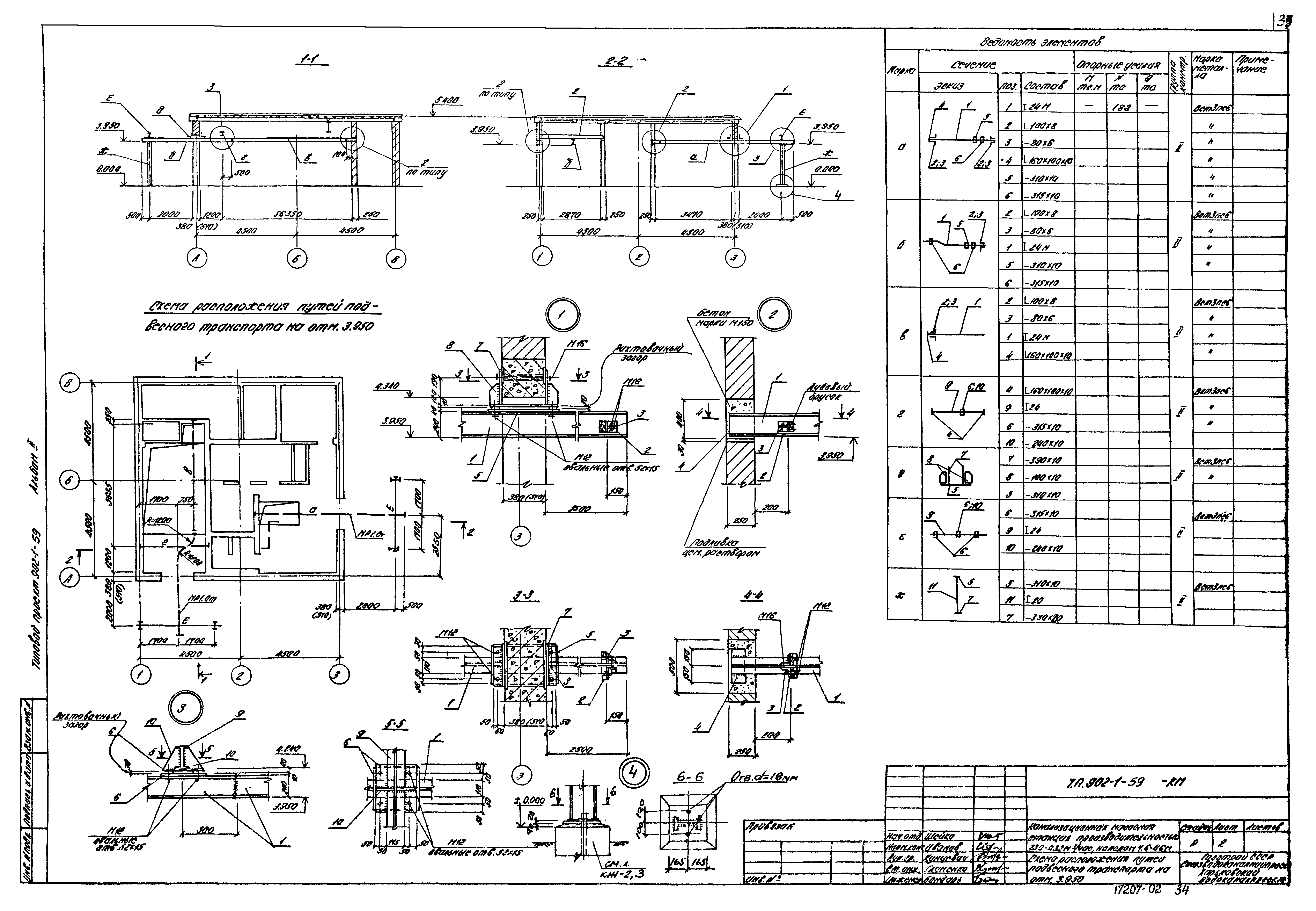
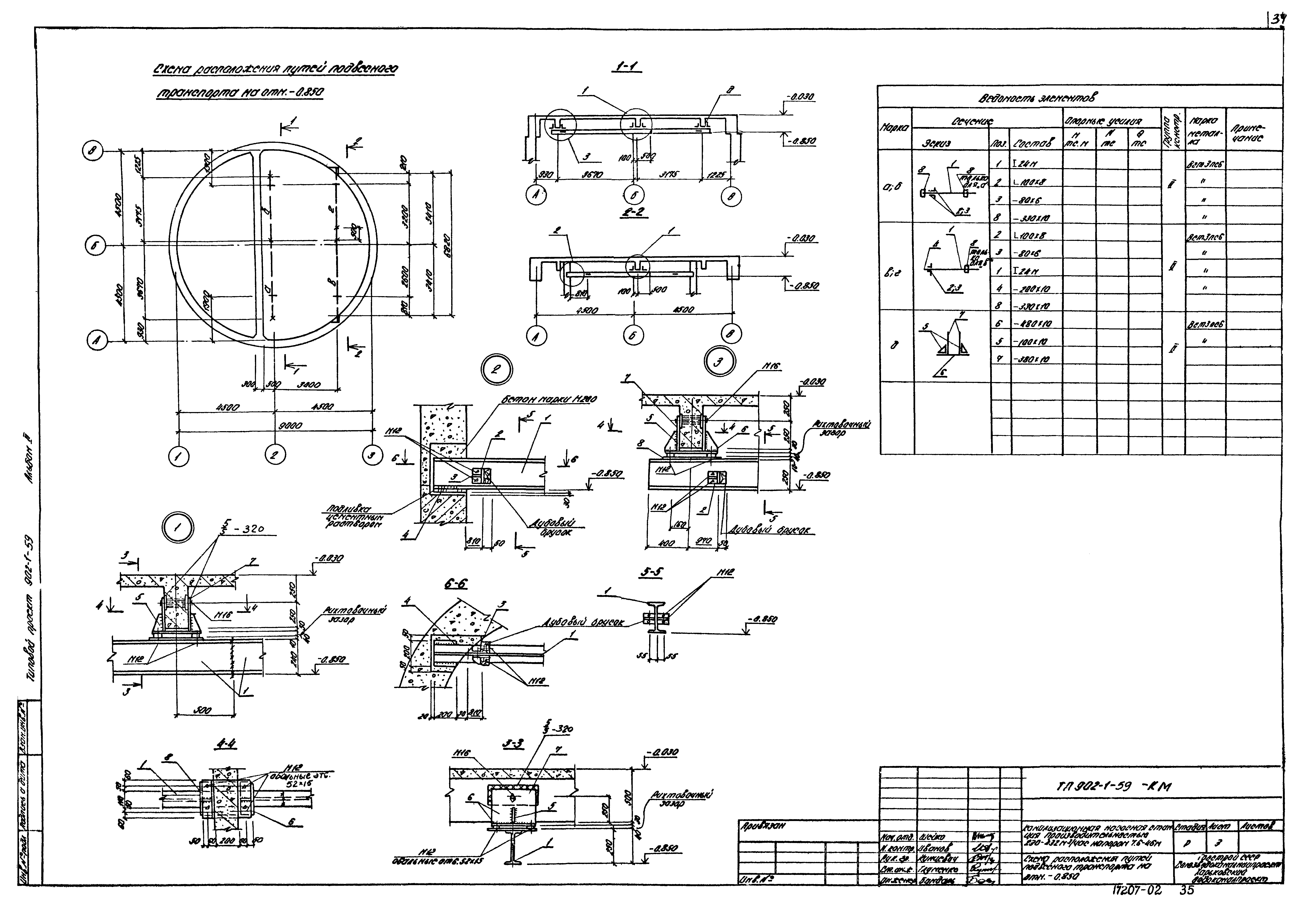
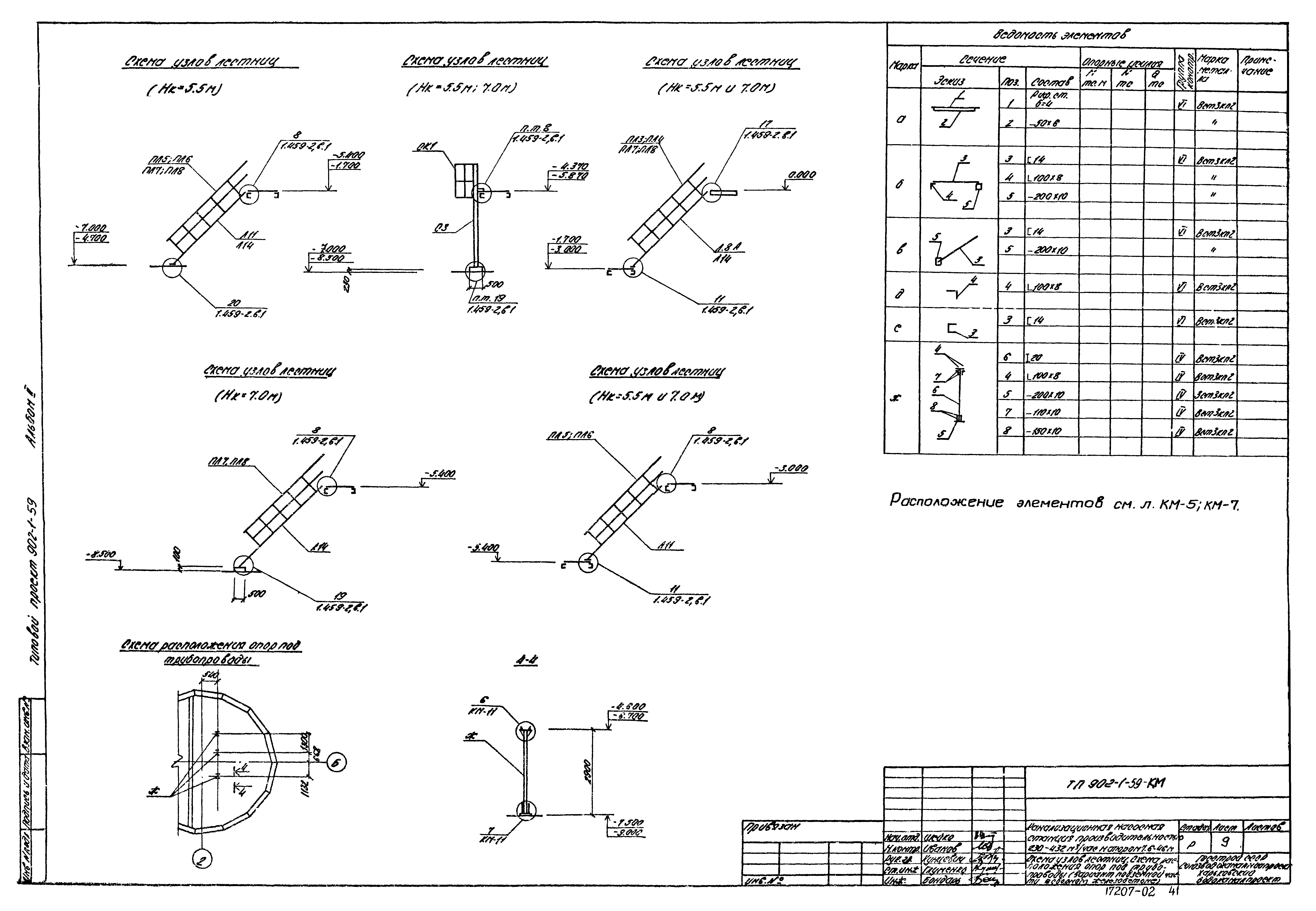
| Оглавление: | ТП 902-1-59 Содержание ТП 902-1-59-АР Основной комплект АР ТП 902-1-59-АР-1 Общие данные ТП 902-1-59-АР-2 План на отм. 0.000. Разрезы 1-1 и 2-2 ТП 902-1-59-АР-3 Фасады. Фасад декоративной кладки. Схема заполнения оконных проемов ТП 902-1-59-АР-4 Планы кровли и полов. Экспликация полов и состав кровли ТП 902-1-59-АР-5 Фрагмент плана 1. Разрезы. Узлы. Деталь крепления утеплителя ТП 902-1-59-АР-6 План отверстий и закладных элементов. Развертки стен ТП 902-1-59-АР-7 Дверной блок ИД-1. Дверные полотна НД55. Накладка стальная НС-1. Сечения ТП 902-1-59-АР-8 Детали 1-9 ТП 902-1-59-АР-9 Детали 10-16 ТП 902-1-59-КЖ Основной комплект КЖ ТП 902-1-59-КЖ-1 Общие данные ТП 902-1-59-КЖ-2 Схема расположения фундаментов под оборудование и опор. Фундаменты ФОМ1,ФОМ2,ФОМ3,ФОМ4 (вариант подземной части в монолитном железобетоне) ТП 902-1-59-КЖ-3 Схема расположения фундаментов под оборудование и опор. Фундаменты ФОМ1,ФОМ2,ФОМ3,ФОМ4 (вариант подземной части в сборном железобетоне) ТП 902-1-59-КЖ-4 Маркировочная схема элементов покрытия. Плиты ПМ1 и ПМ2 ТП 902-1-59-КЖ-5 Плиты покрытия ПЖ1Е-1-1;ПЖ1Е-2-1. Перемычки МП1 и МП-1А. Сетки и каркасы ТП 902-1-59-КЖ-6 Схема расположения форшахты ФШМ1 (вариант подземной части в монолитном железобетоне) ТП 902-1-59-КЖ-7 Схема расположения опорных блоков и форшахты ФШМ1 (вариант подземной части в сборном железобетоне) ТП 902-1-59-КЖ-8 Изделия закладные МН1-МН9 ТП 902-1-59-КЖ-9 Изделие закладное МН10. Деталь установки ТП 902-1-59-КМ Основной комплект КМ ТП 902-1-59-КМ-1 Общие данные ТП 902-1-59-КМ-2 Схема расположения путей подвесного транспорта на отм. 3.950 ТП 902-1-59-КМ-3 Схема расположения путей подвесного транспорта на отм. -0.850 ТП 902-1-59-КМ-4 Схема расположения лестниц и лестничных площадок (Нк=4.0 м и Нк=5.5 м). Схема расположения металлических щитов (вариант подземной части в монолитном железобетоне) ТП 902-1-59-КМ-5 Схема расположения лестниц и лестничных площадок (Нк=5.5 м). Схема расположения металлических щитов (вариант подземной части в сборном железобетоне) ТП 902-1-59-КМ-6 Схема расположения лестниц и лестничных площадок (Нк=5.5 м,Нк=7.0 м) (вариант подземной части в монолитном железобетоне) ТП 902-1-59-КМ-7 Схема расположения лестниц и лестничных площадок (Нк=7.0 м) (вариант подземной части в сборном железобетоне) ТП 902-1-59-КМ-8 Схемы узлов лестниц. Схема расположения опор под трубопроводы (вариант подземной части в монолитном железобетоне) ТП 902-1-59-КМ-9 Схемы узлов лестниц. Схема расположения опор под трубопроводы (вариант подземной части в сборном железобетоне) ТП 902-1-59-КМ-10 Схемы расположения площадки на отм. -2.870;-4.370;-5.870;-3.000. Узлы (вариант подземной части в монолитном железобетоне) ТП 902-1-59-КМ-11 Схемы расположения площадки на отм. -4.370;-5.870;-3.000. Узлы (вариант подземной части в сборном железобетоне) |
| Разработан: | Харьковский Водоканалпроект |
| Утверждён: | 24.10.1980 Союзводоканалпроект (Soyuzvodokanalproject 65) |











































