Скачать Типовой проект 902-1-59 Альбом III. Строительные решения (глубина заложения подводящего коллектора 4,0 м). Подземная часть (вариант из монолитного железобетона)Дата актуализации: 01.01.2021
|
| Обозначение: | Типовой проект 902-1-59 |
| Обозначение англ: | 902-1-59 |
| Статус: | действует |
| Название рус.: | Альбом III. Строительные решения (глубина заложения подводящего коллектора 4,0 м). Подземная часть (вариант из монолитного железобетона) |
| Дата добавления в базу: | 01.09.2013 |
| Дата актуализации: | 01.01.2021 |
| Дата введения: | 01.02.1981 |
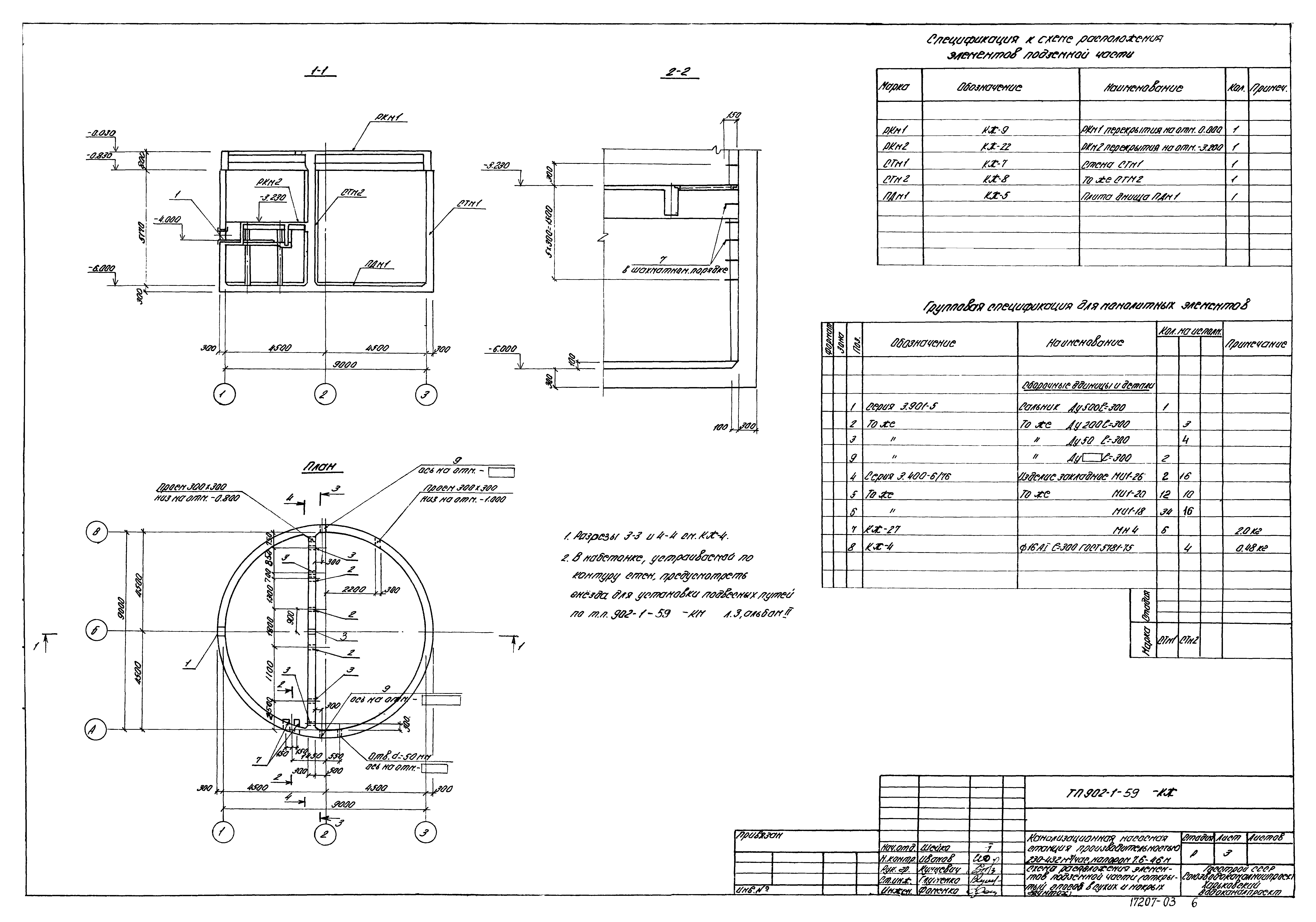
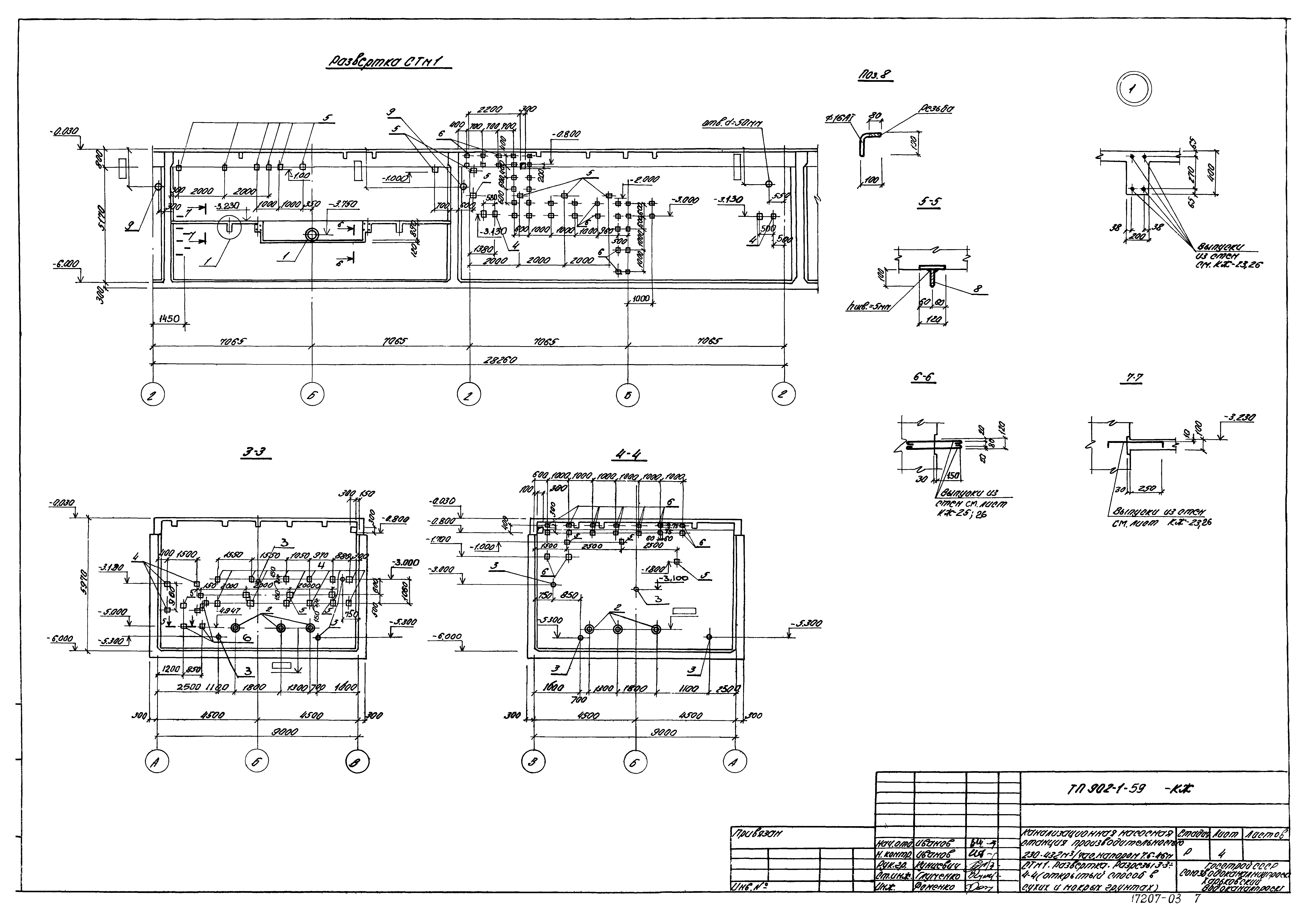
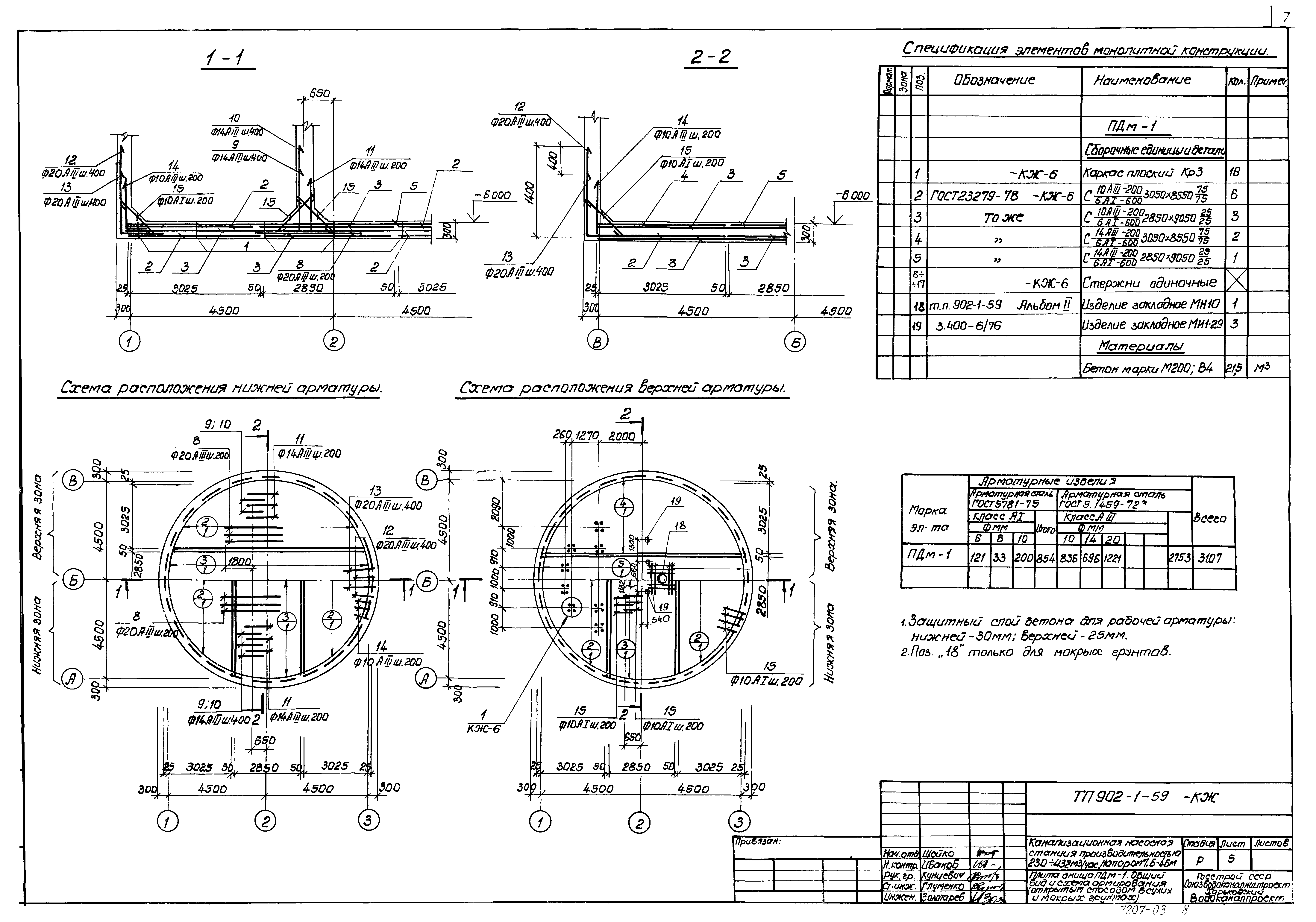
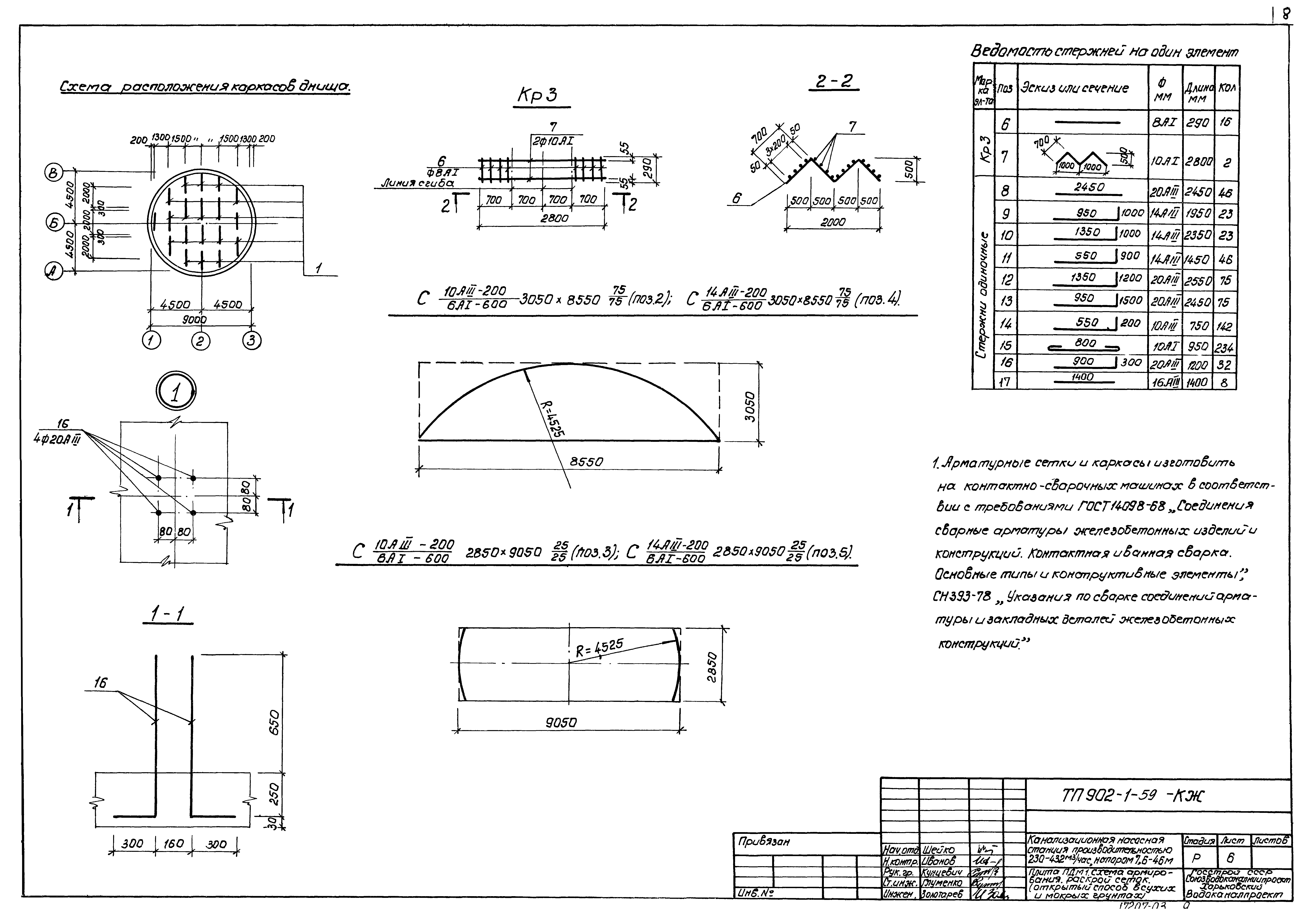
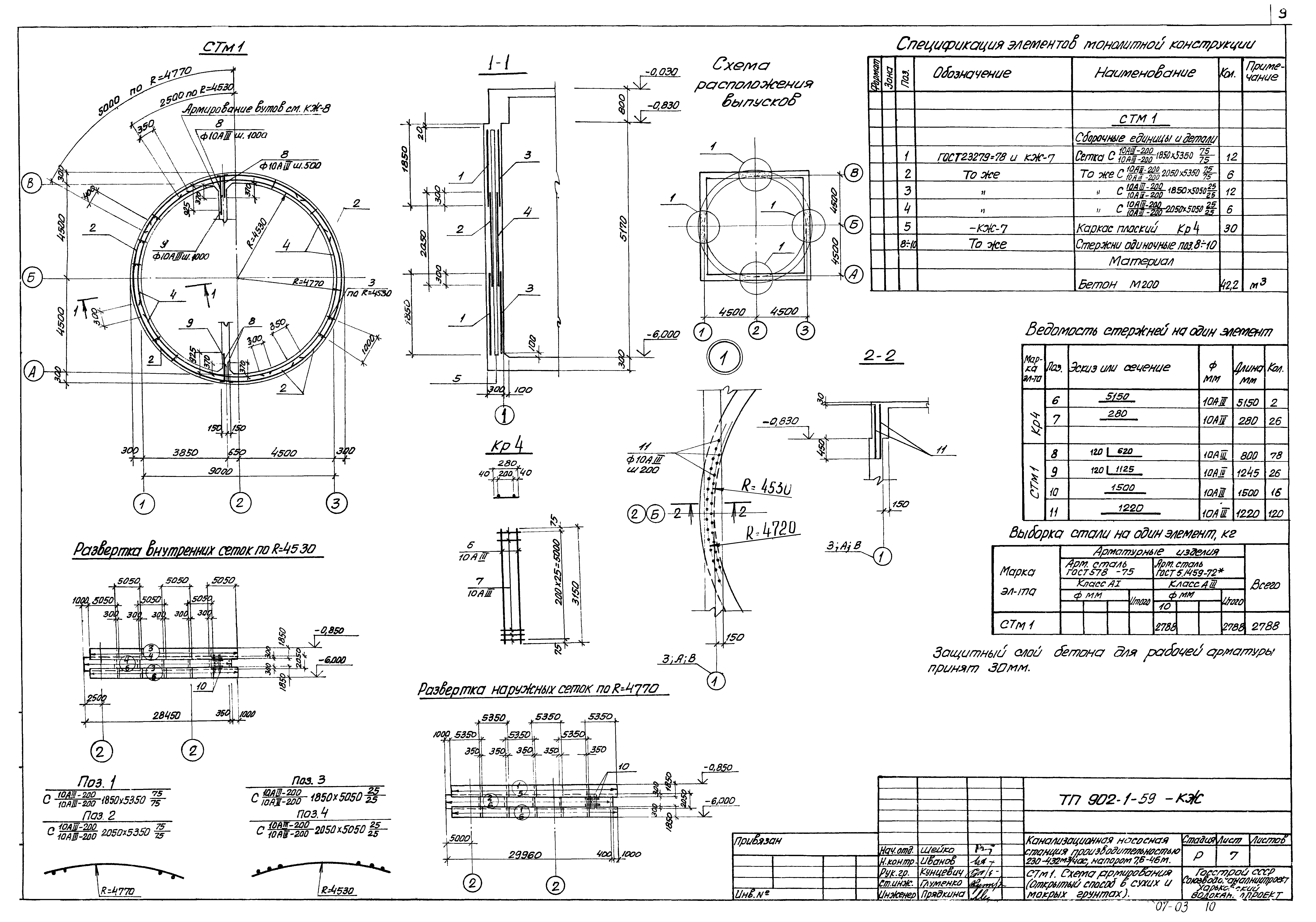
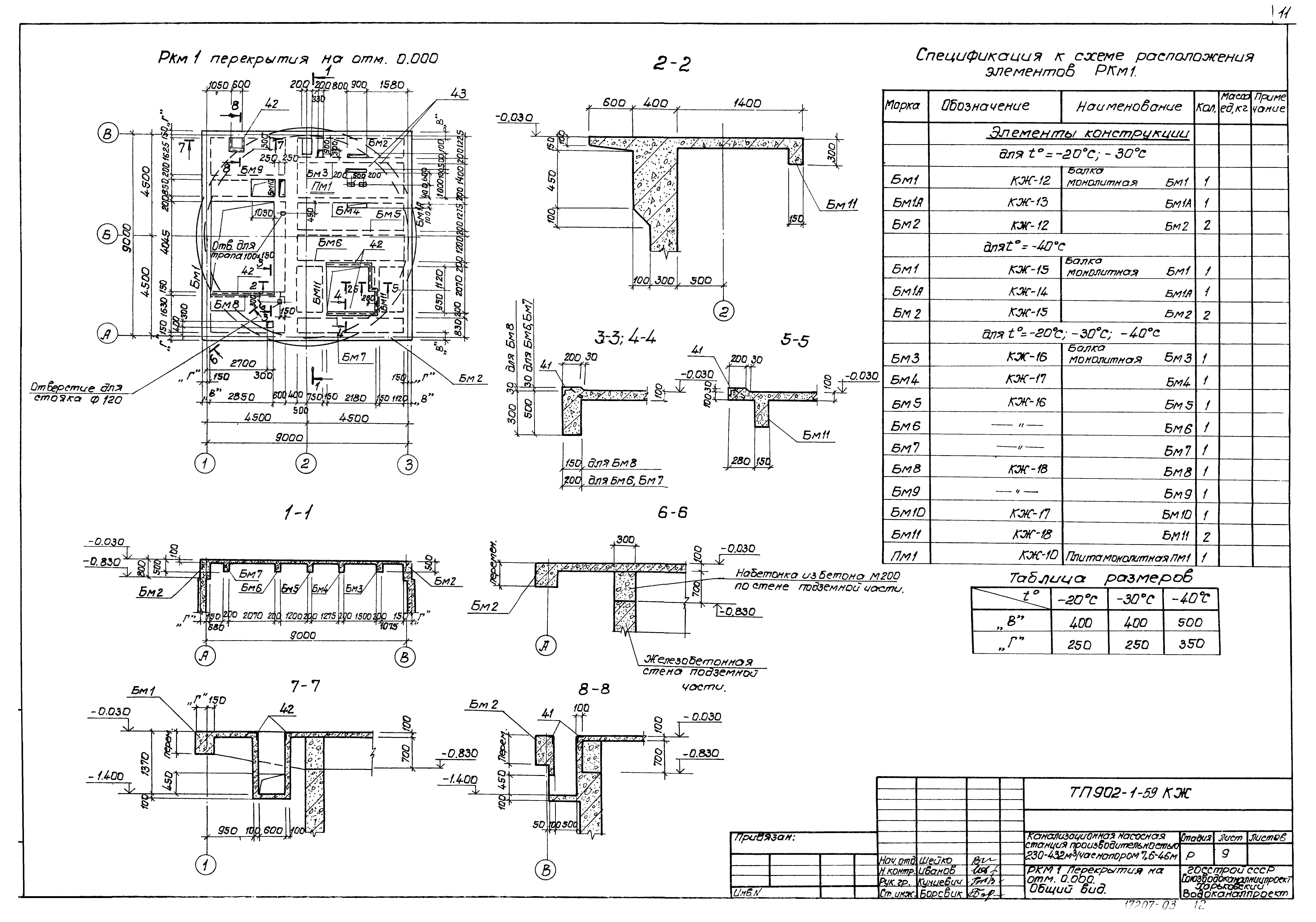
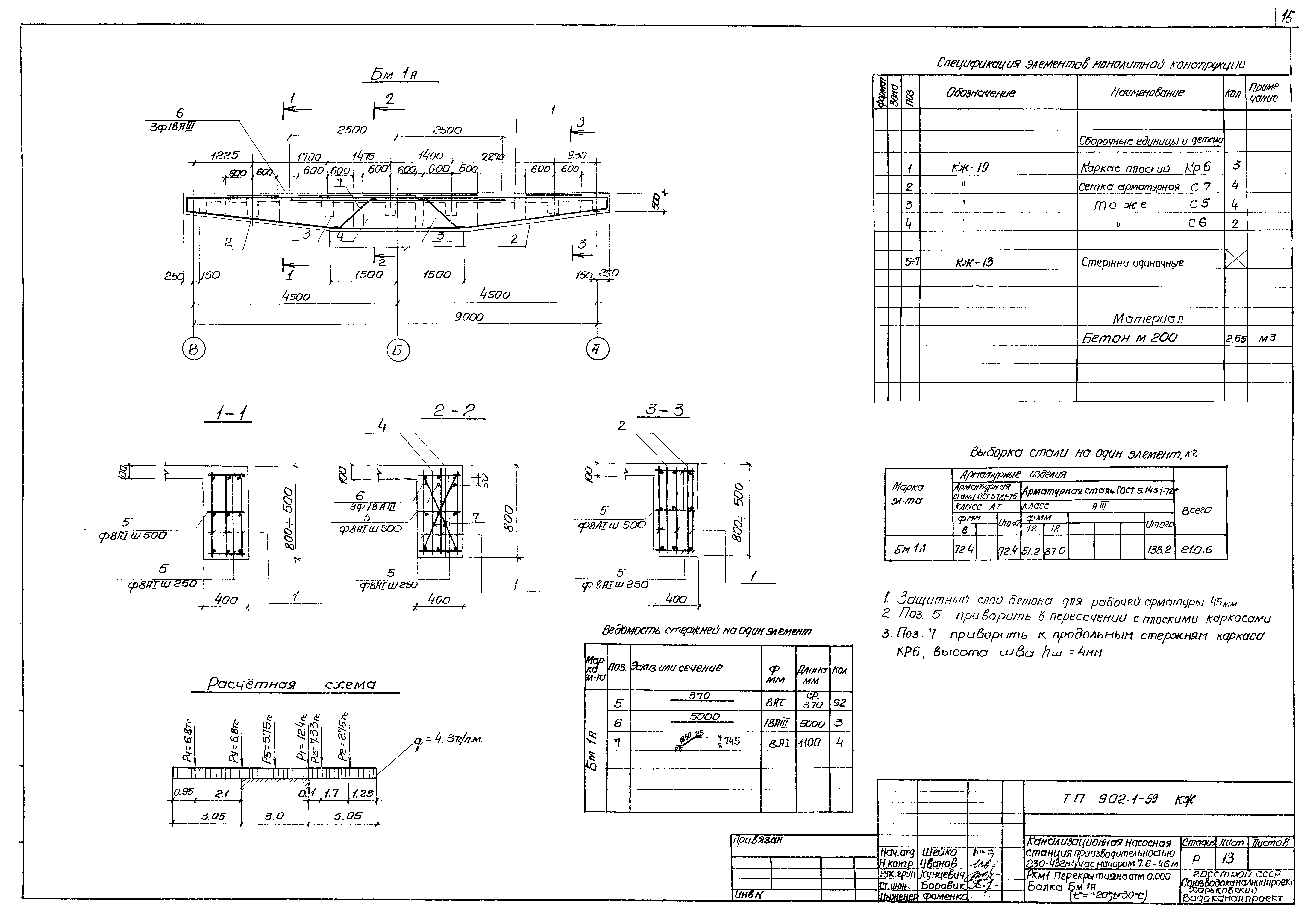
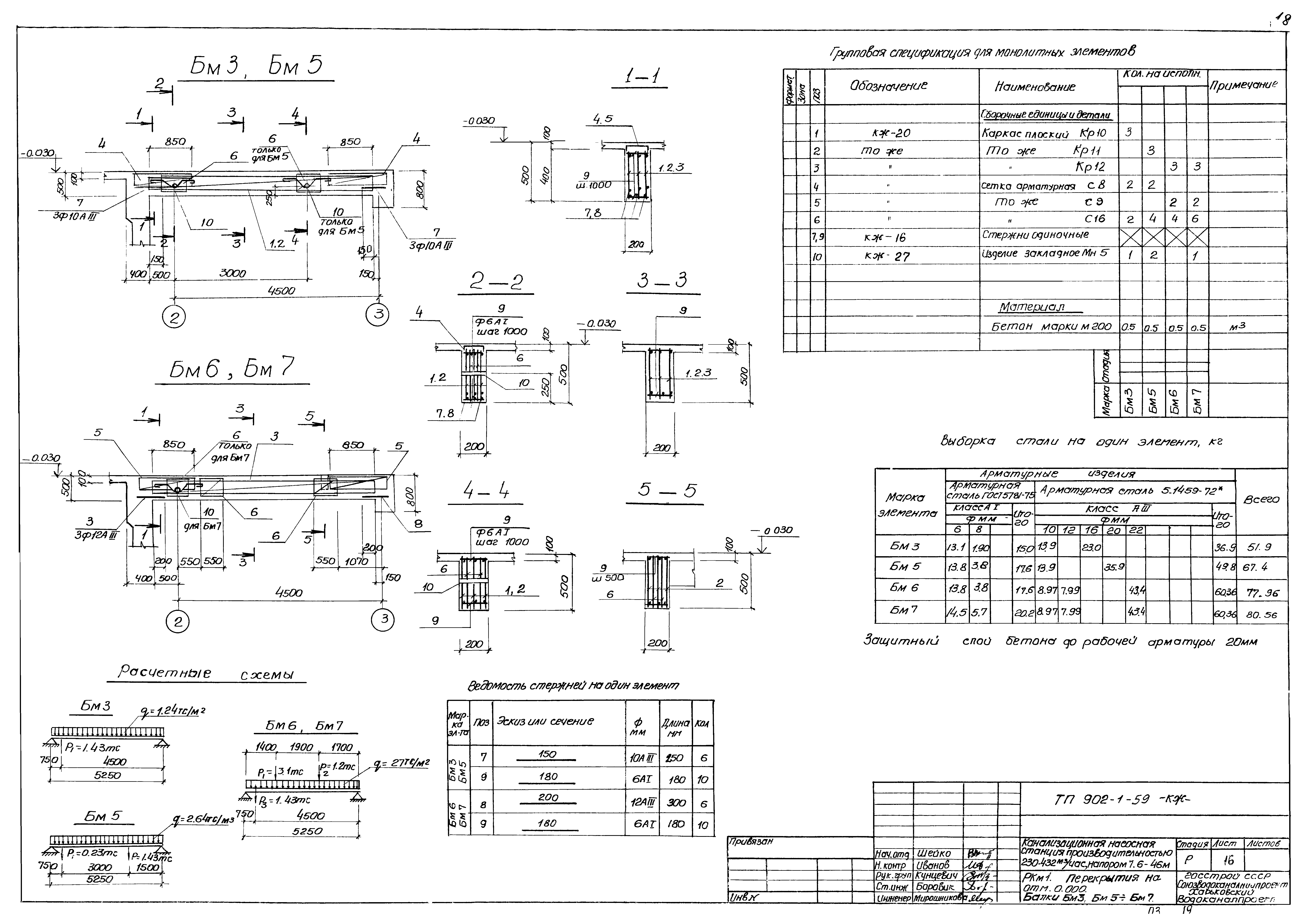
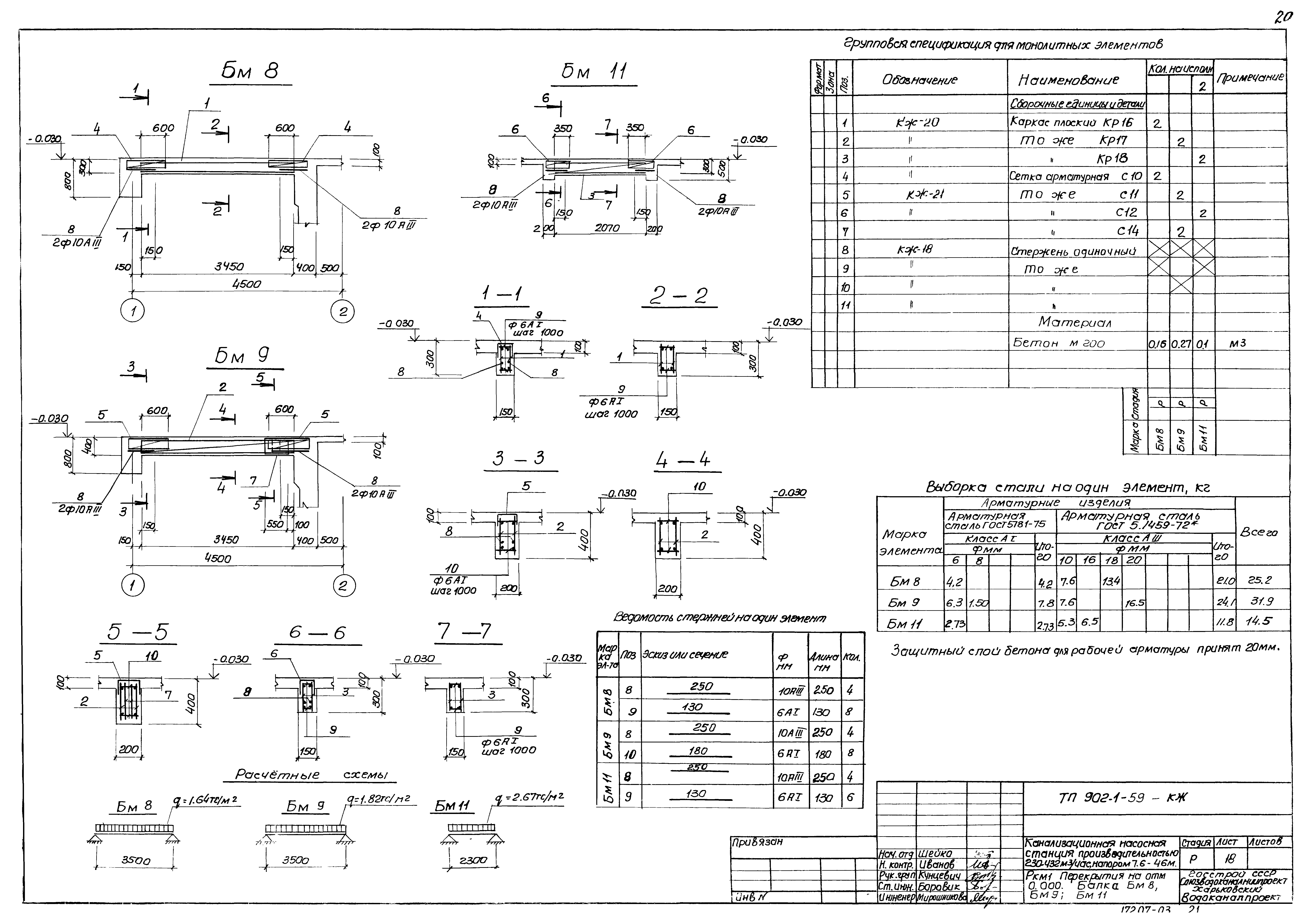
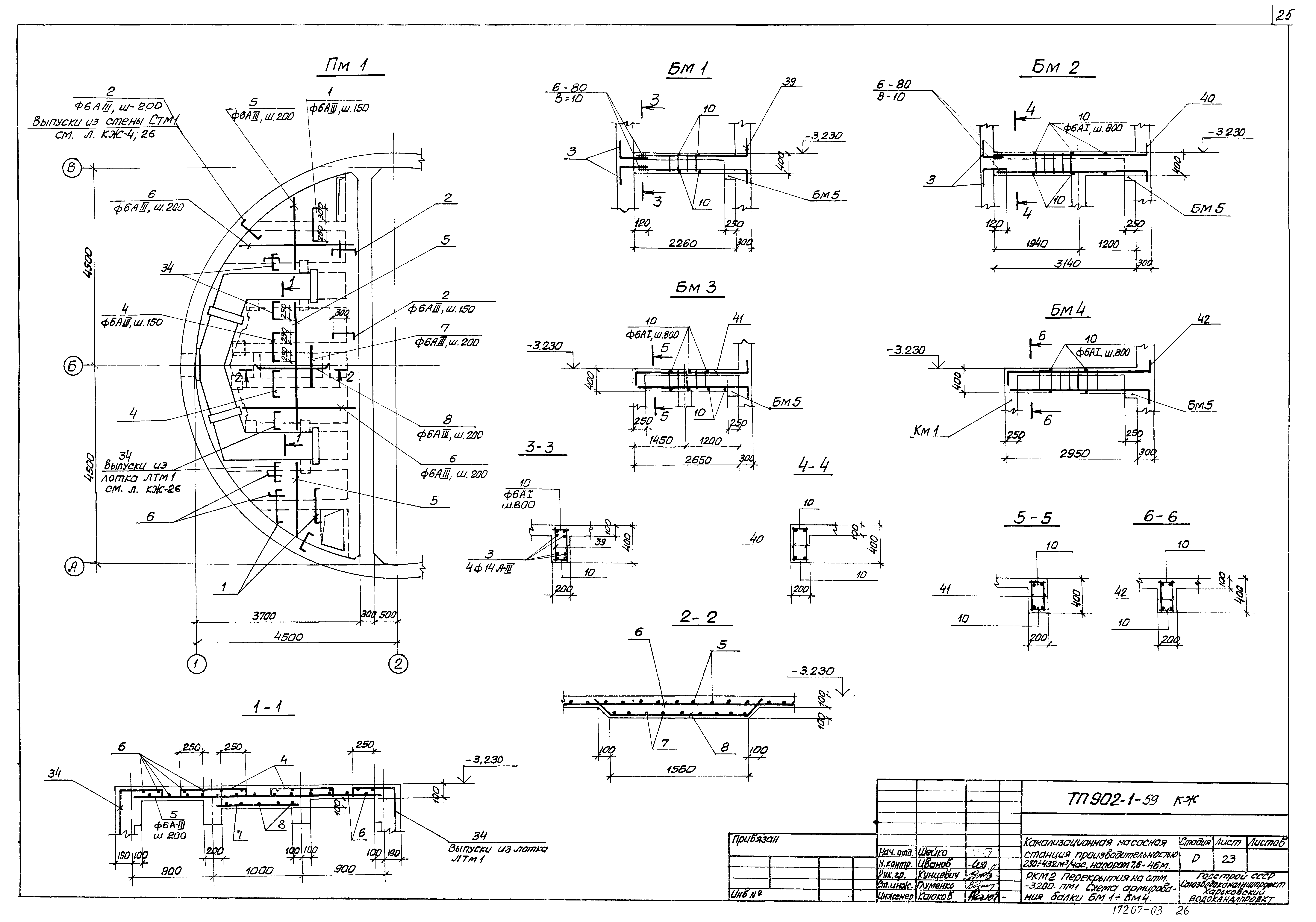
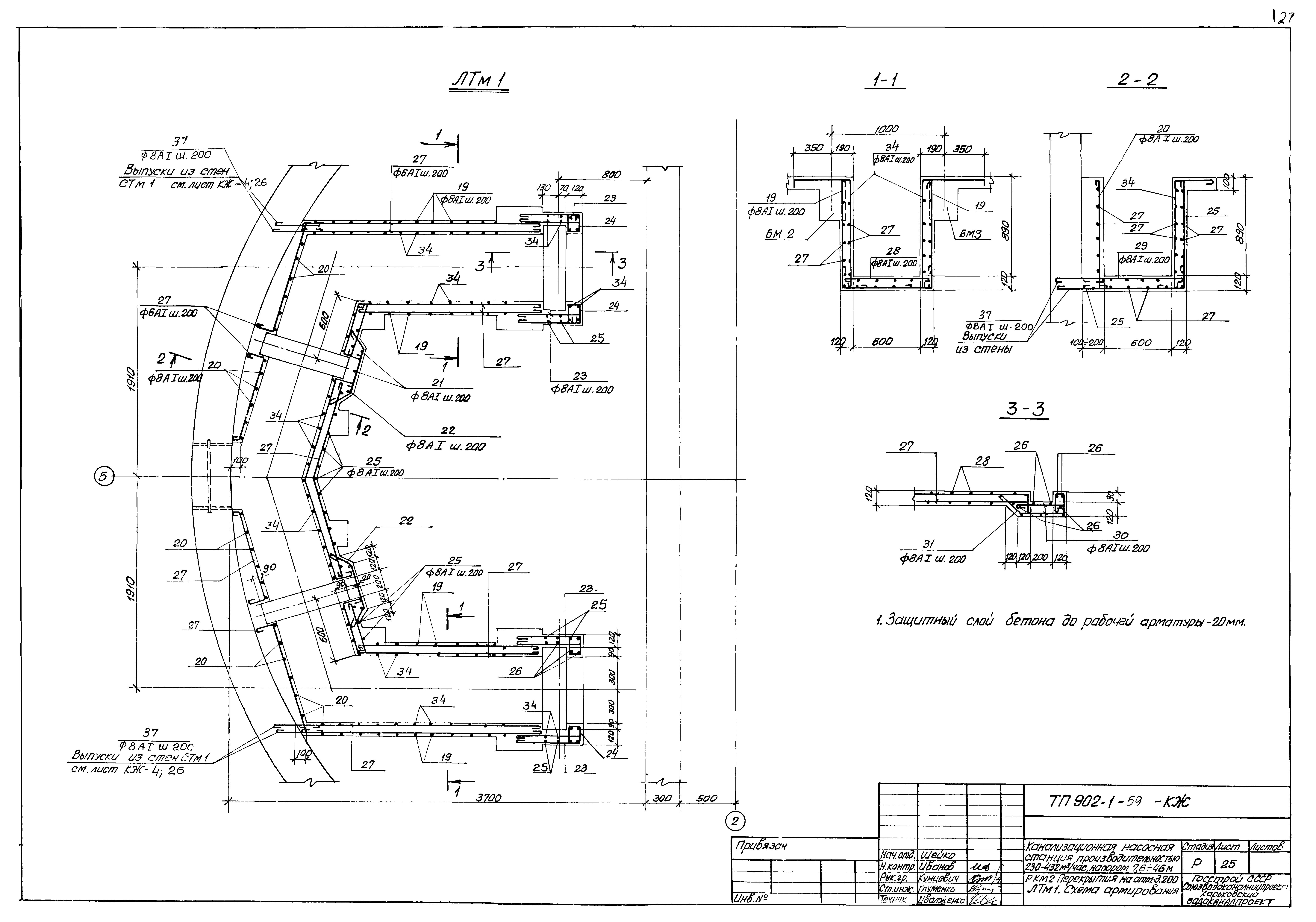
| Оглавление: | ТП 902-1-59 Содержание ТП 902-1-59-КЖ-1 Общие данные ТП 902-1-59-КЖ-2 Планы на отм. -3.200 и 5.500. Разрезы (открытый способ в сухих и мокрых грунтах) ТП 902-1-59-КЖ-3 Схема расположения элементов подземной части (открытый способ в сухих и мокрых грунтах) ТП 902-1-59-КЖ-4 СТМ1. Развертка. Разрезы 3-3,4-4 (открытый способ в сухих и мокрых грунтах) ТП 902-1-59-КЖ-5 Плита днища ПДМ1. Общий вид и схема армирования (открытый способ в сухих и мокрых грунтах) ТП 902-1-59-КЖ-6 Плита днища ПДМ1. Схема армирования. Раскрой сеток (открытый способ в сухих и мокрых грунтах) ТП 902-1-59-КЖ-7 СТМ1. Схема армирования (открытый способ в сухих и мокрых грунтах) ТП 902-1-59-КЖ-8 СТМ2. Схема армирования ТП 902-1-59-КЖ-9 РКМ1. Перекрытия на отм. 0.000. Общий вид ТП 902-1-59-КЖ-10 РКМ1. Перекрытия на отм. 0.000. ПМ1. Схема армирования ТП 902-1-59-КЖ-11 РКМ1. Перекрытия на отм. 0.000. ПМ1. Схема армирования. Разрезы 2-2÷8-8. Узел 1 ТП 902-1-59-КЖ-12 РКМ1. Перекрытия на отм. 0.000. Балка БМ1,БМ2 (t=-20ºС,t=-30ºС) ТП 902-1-59-КЖ-13 РКМ1. Перекрытия на отм. 0.000. Балка БМ1А (t=-20ºС,t=-30ºС) ТП 902-1-59-КЖ-14 РКМ1. Перекрытия на отм. 0.000. Балка БМ1А (t=-40ºС) ТП 902-1-59-КЖ-15 РКМ1. Перекрытия на отм. 0.000. Балка БМ1,БМ2 (t=-40ºС) ТП 902-1-59-КЖ-16 РКМ1. Перекрытия на отм. 0.000. Балка БМ3,БМ5-БМ7 ТП 902-1-59-КЖ-17 РКМ1. Перекрытия на отм. 0.000. Балка БМ4,БМ10 ТП 902-1-59-КЖ-18 РКМ1. Перекрытия на отм. 0.000. Балка БМ8,БМ9,БМ11 ТП 902-1-59-КЖ-19 РКМ1. Перекрытия на отм. 0.000. Каркас плоский КР6-КР9. Сетка С3-С7 ТП 902-1-59-КЖ-20 РКМ1. Перекрытия на отм. 0.000. Сетки С8,С9. Каркасы КР10-КР18 ТП 902-1-59-КЖ-21 РКМ1. Перекрытия на отм. 0.000. Сетки С10-С17 ТП 902-1-59-КЖ-22 РКМ2. Перекрытия на отм. -3.200. Общий вид ТП 902-1-59-КЖ-23 РКМ2. Перекрытия на отм. -3.200. ПМ1. Схема армирования. Балки БМ1-БМ4 ТП 902-1-59-КЖ-24 РКМ2. Перекрытия на отм. -3.200. Балка БМ5. Колонна КМ1 ТП 902-1-59-КЖ-25 РКМ2. Перекрытия на отм. -3.200. ЛТМ1. Схема армирования ТП 902-1-59-КЖ-26 РКМ2. Перекрытия на отм. -3.200. Каркасы КР19-КР23. Ведомость стержней ТП 902-1-59-КЖ-27 Закладные изделия МН1-МН5 |
| Разработан: | Харьковский Водоканалпроект |
| Утверждён: | 24.10.1980 Союзводоканалпроект (Soyuzvodokanalproject 65) |






























