Скачать Типовой проект 902-1-59 Альбом V. Строительные решения (глубина заложения подводящего коллектора 7,0 м). Подземная часть (вариант из монолитного железобетона)Дата актуализации: 01.01.2021
|
| Обозначение: | Типовой проект 902-1-59 |
| Обозначение англ: | 902-1-59 |
| Статус: | действует |
| Название рус.: | Альбом V. Строительные решения (глубина заложения подводящего коллектора 7,0 м). Подземная часть (вариант из монолитного железобетона) |
| Дата добавления в базу: | 01.09.2013 |
| Дата актуализации: | 01.01.2021 |
| Дата введения: | 01.02.1981 |
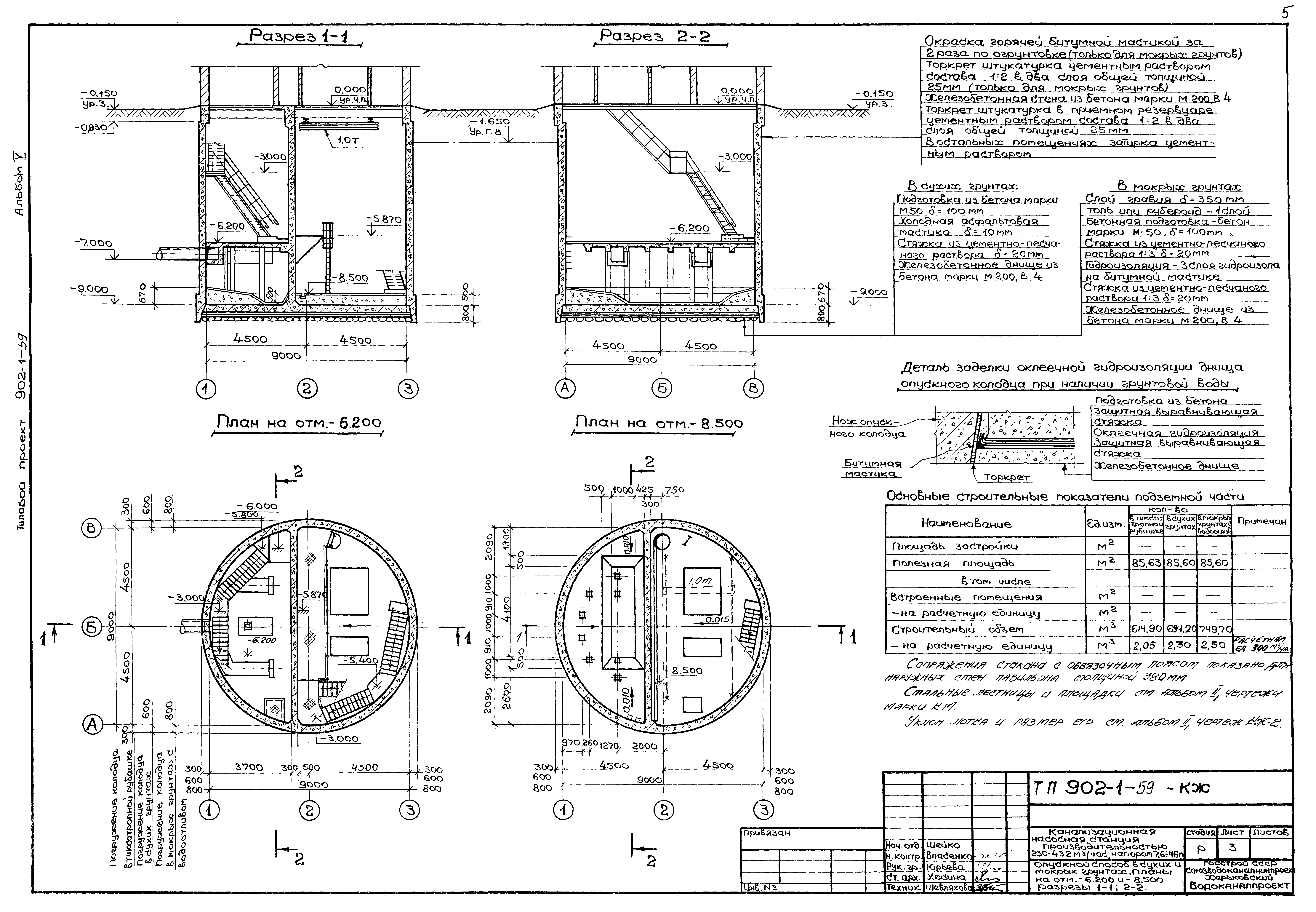
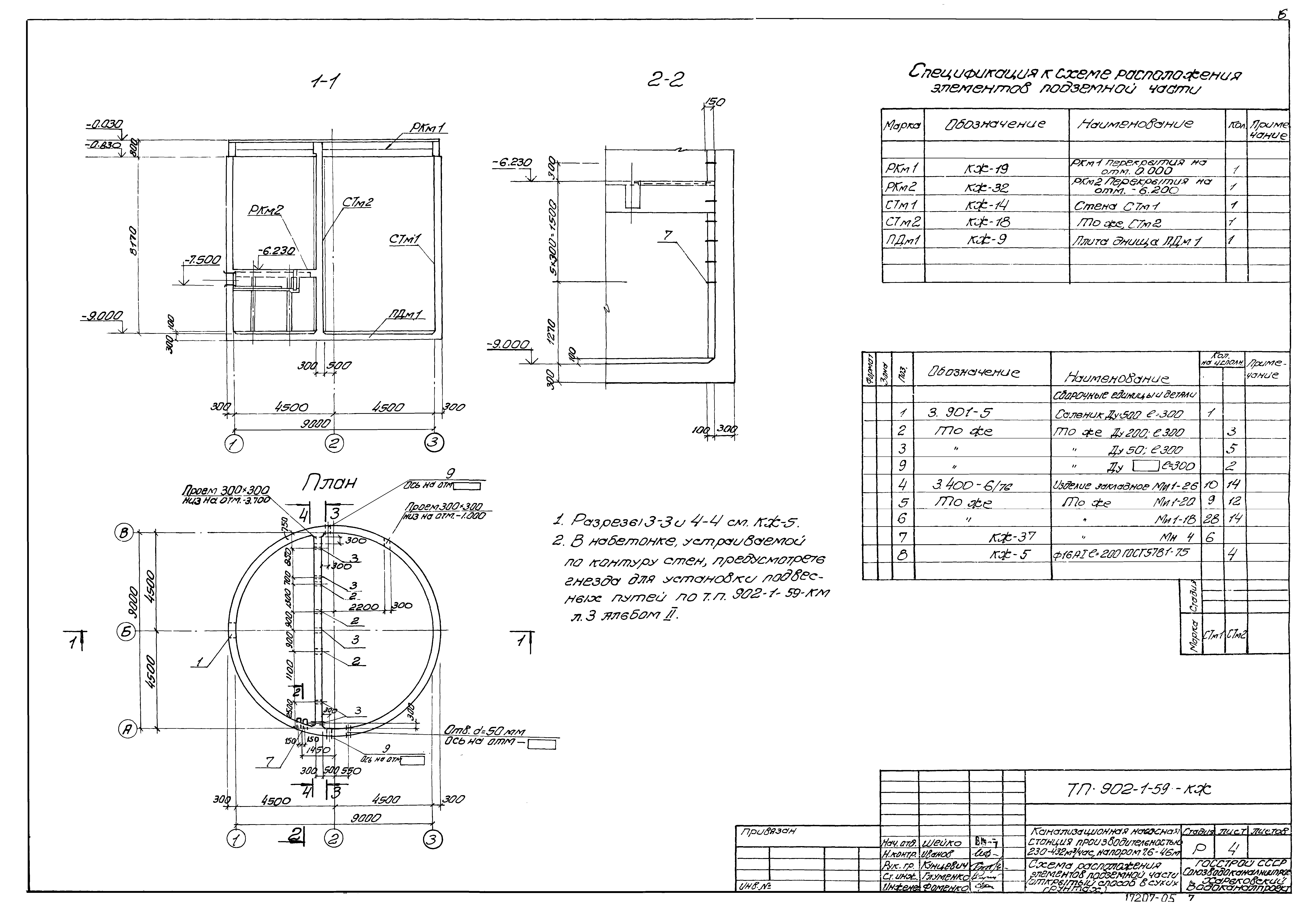
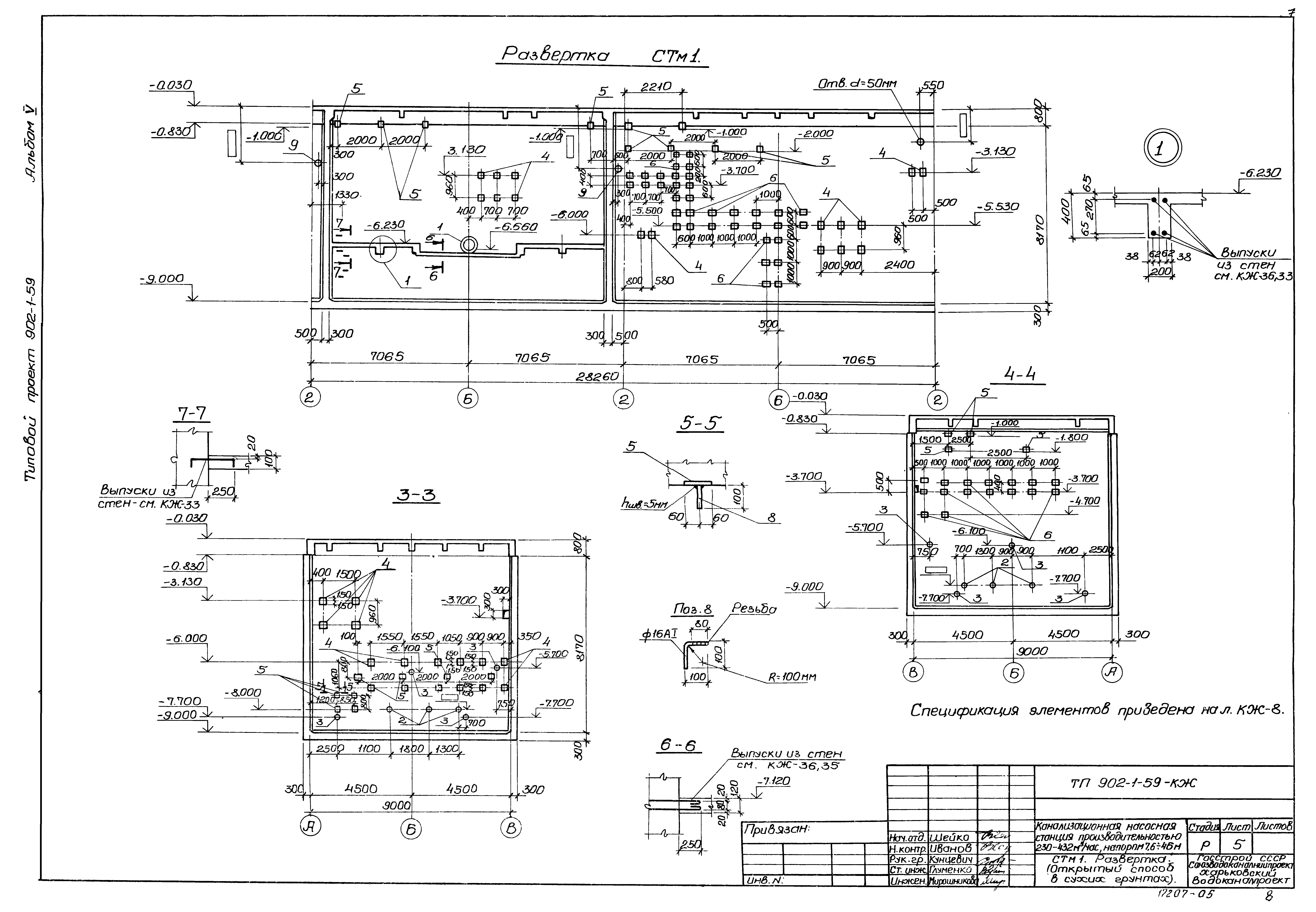
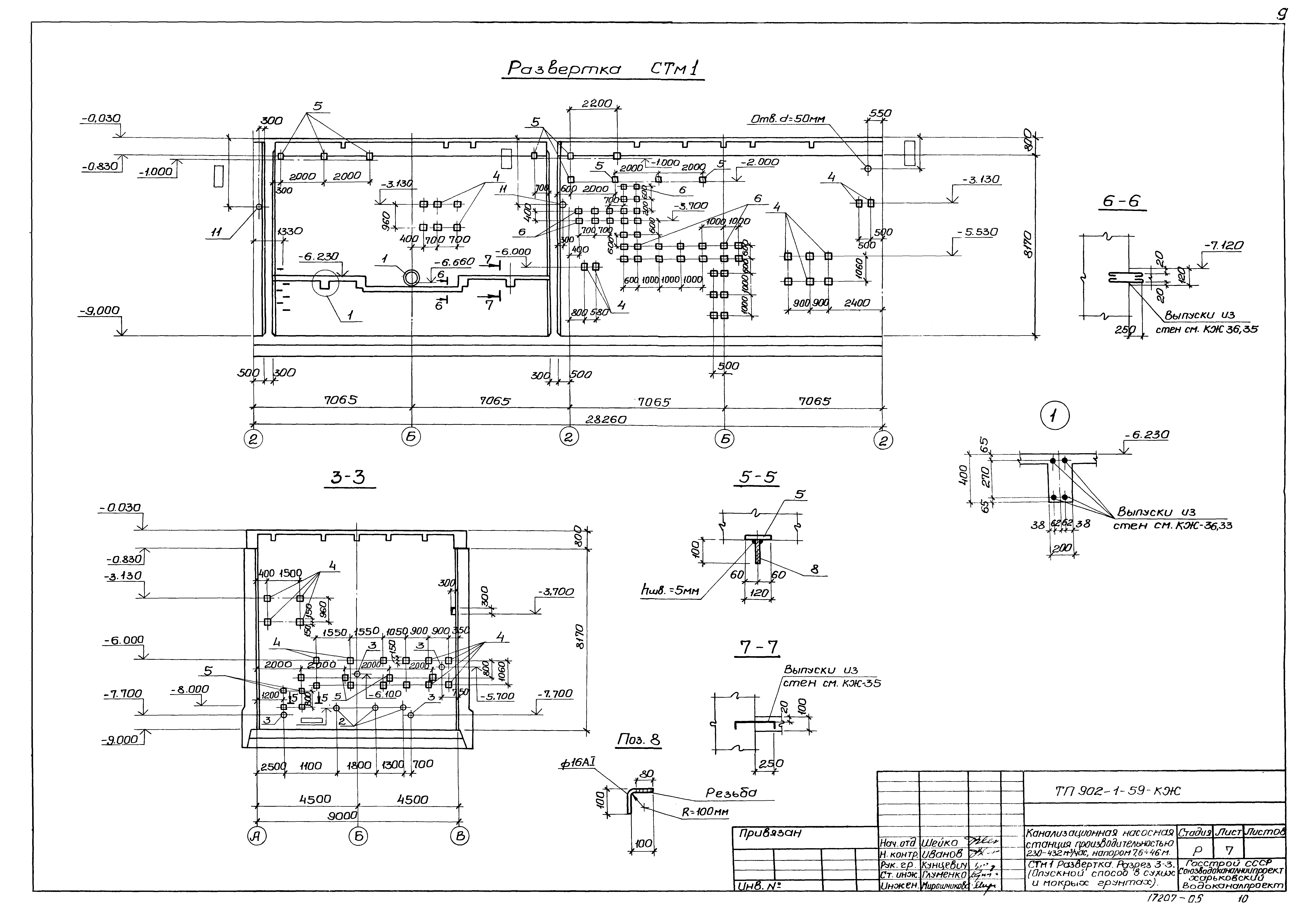
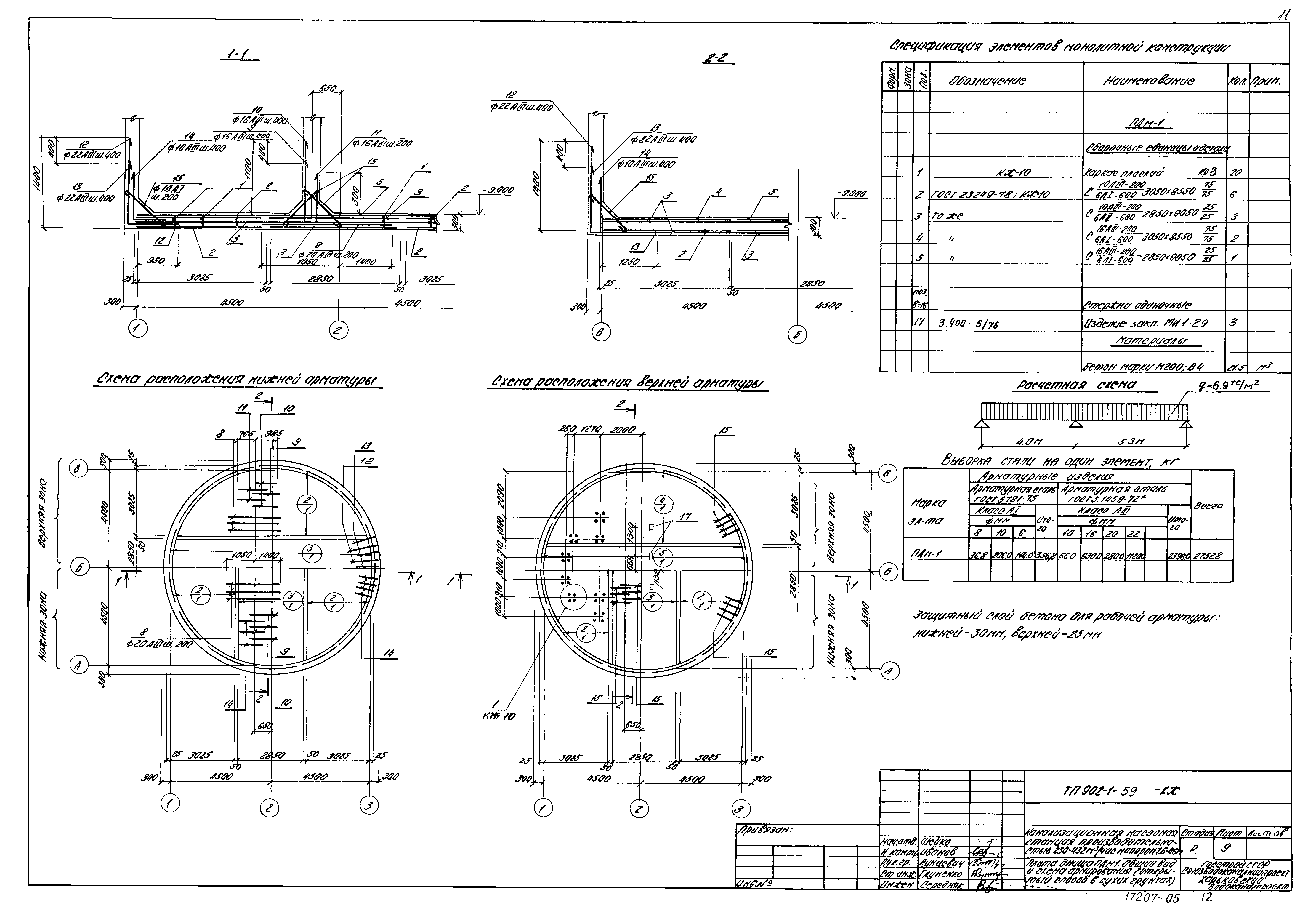
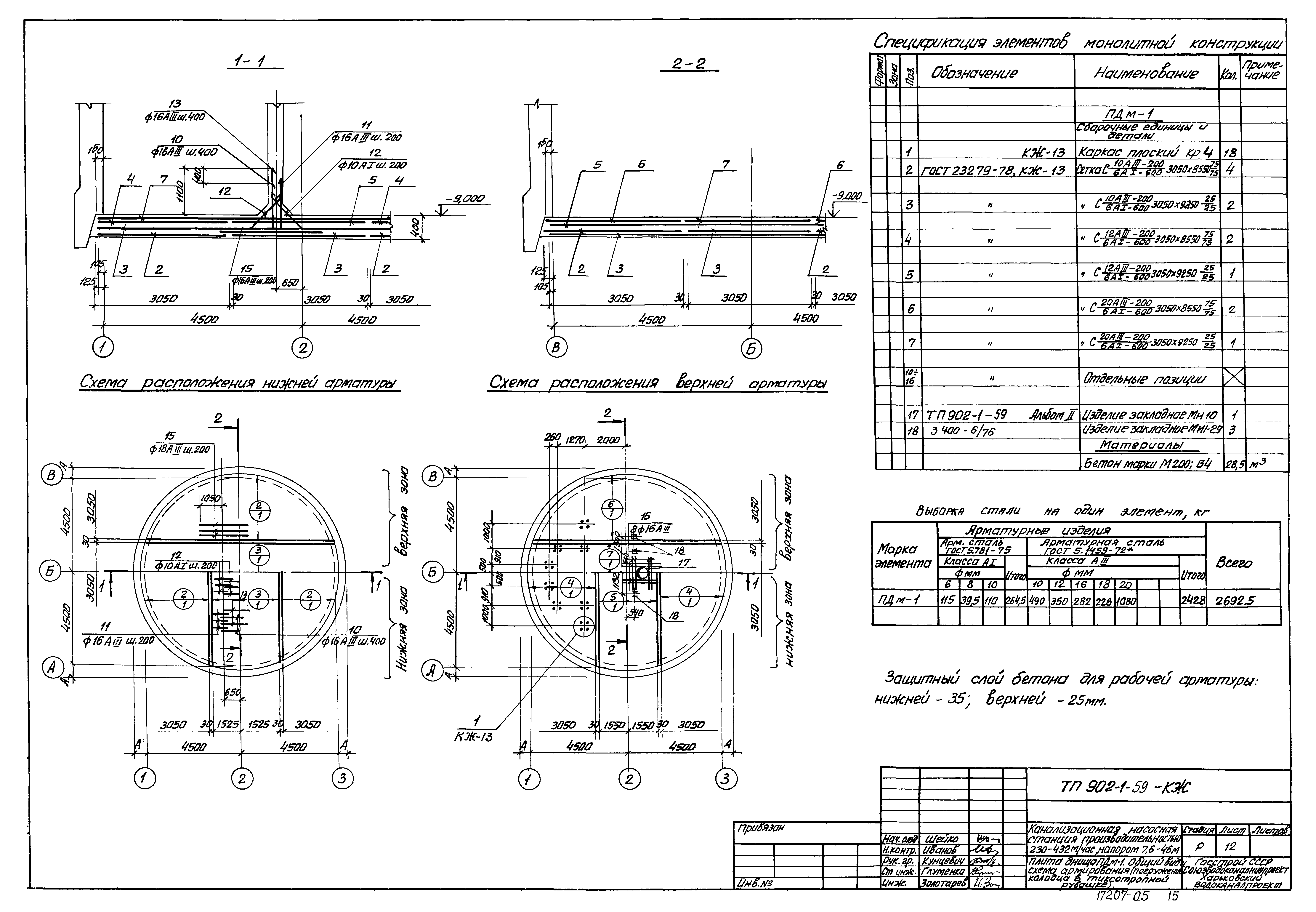
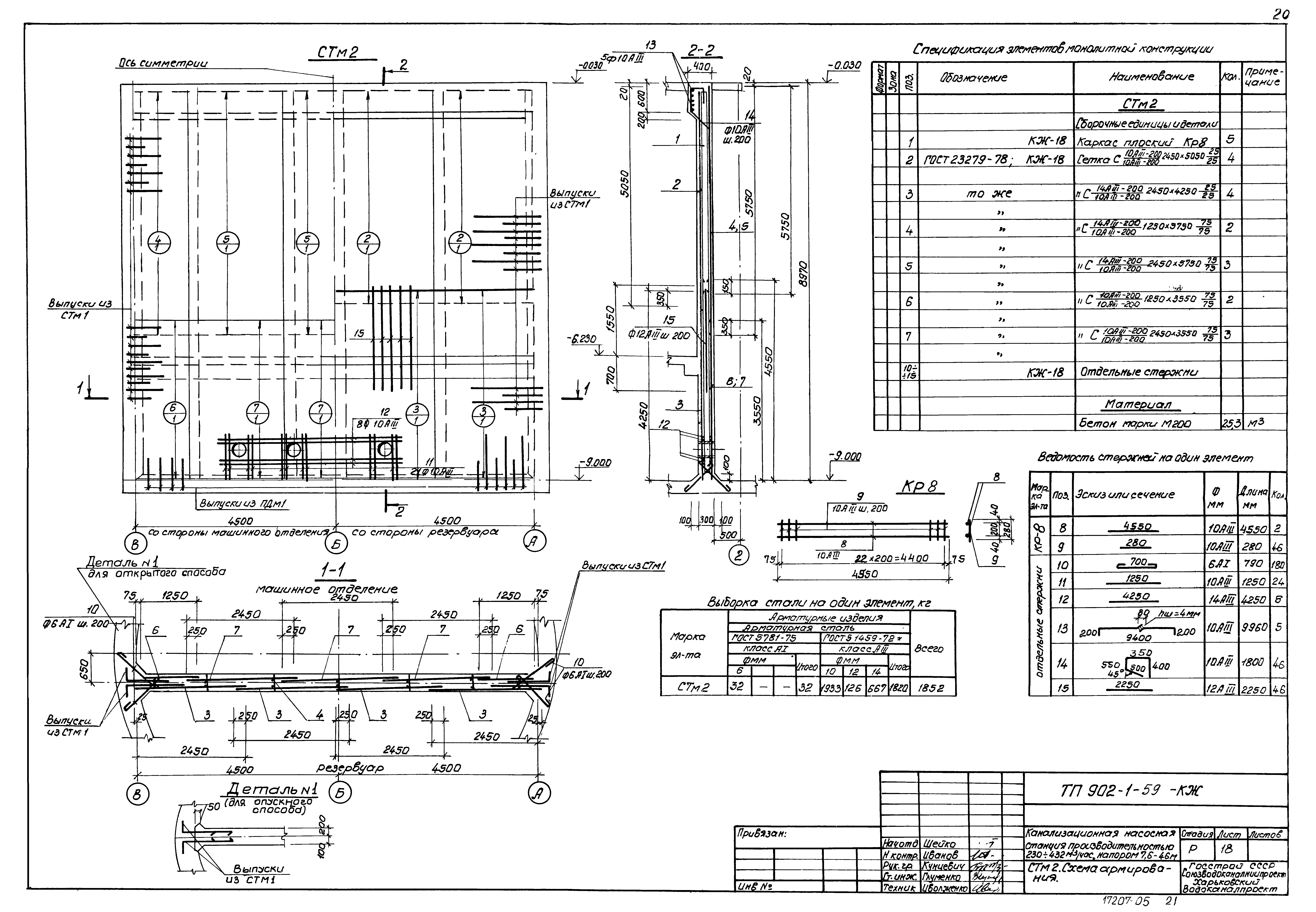
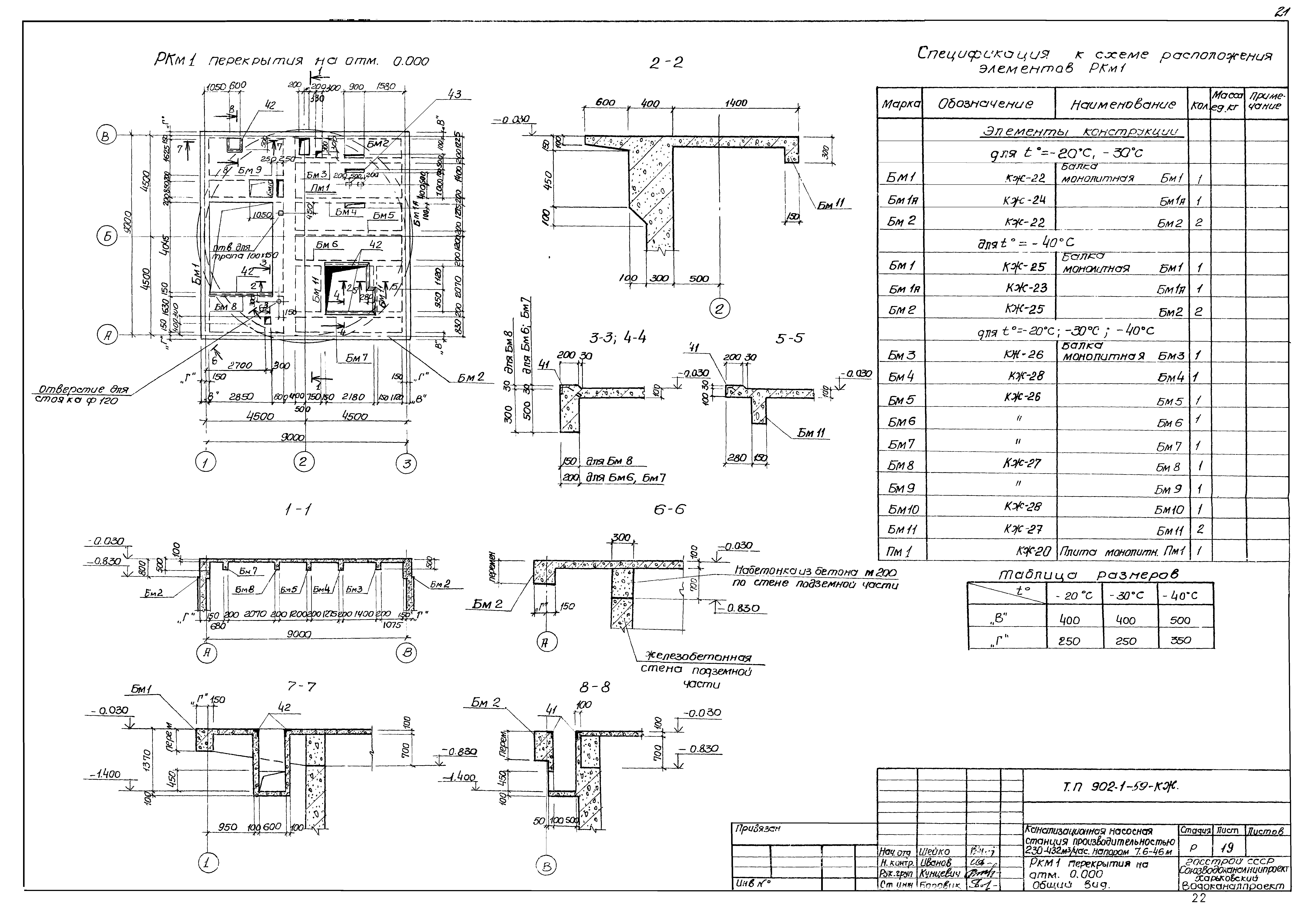
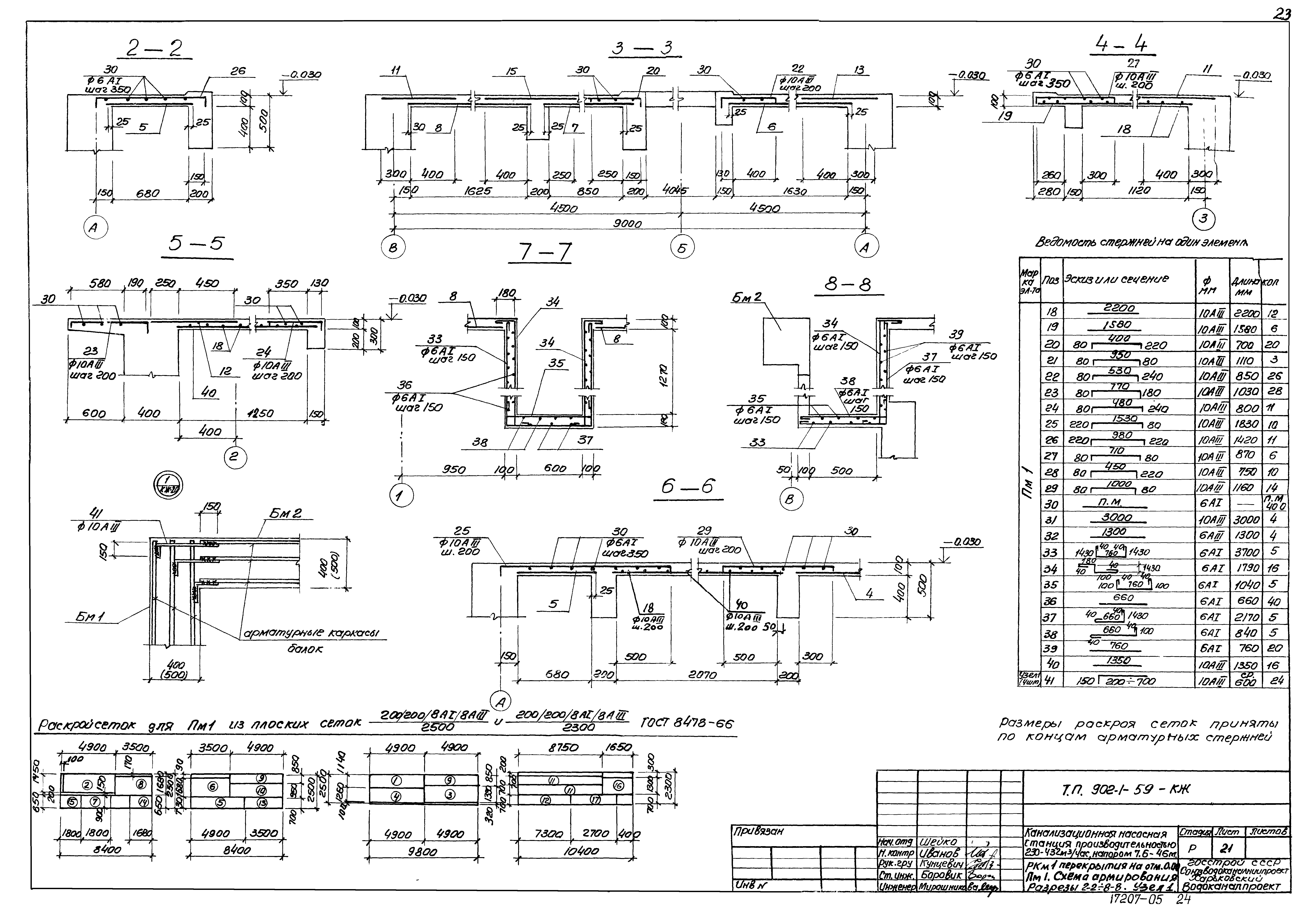
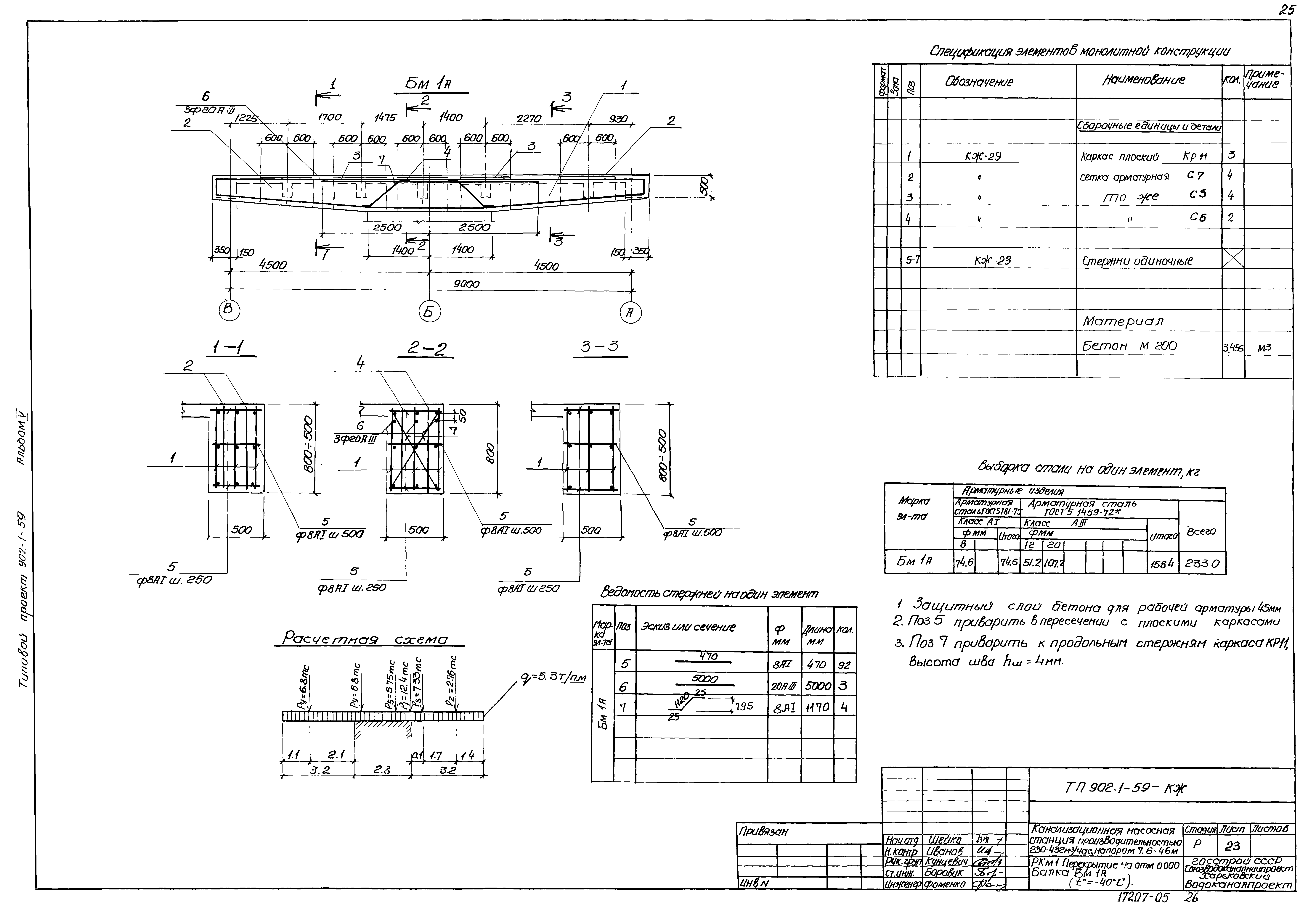
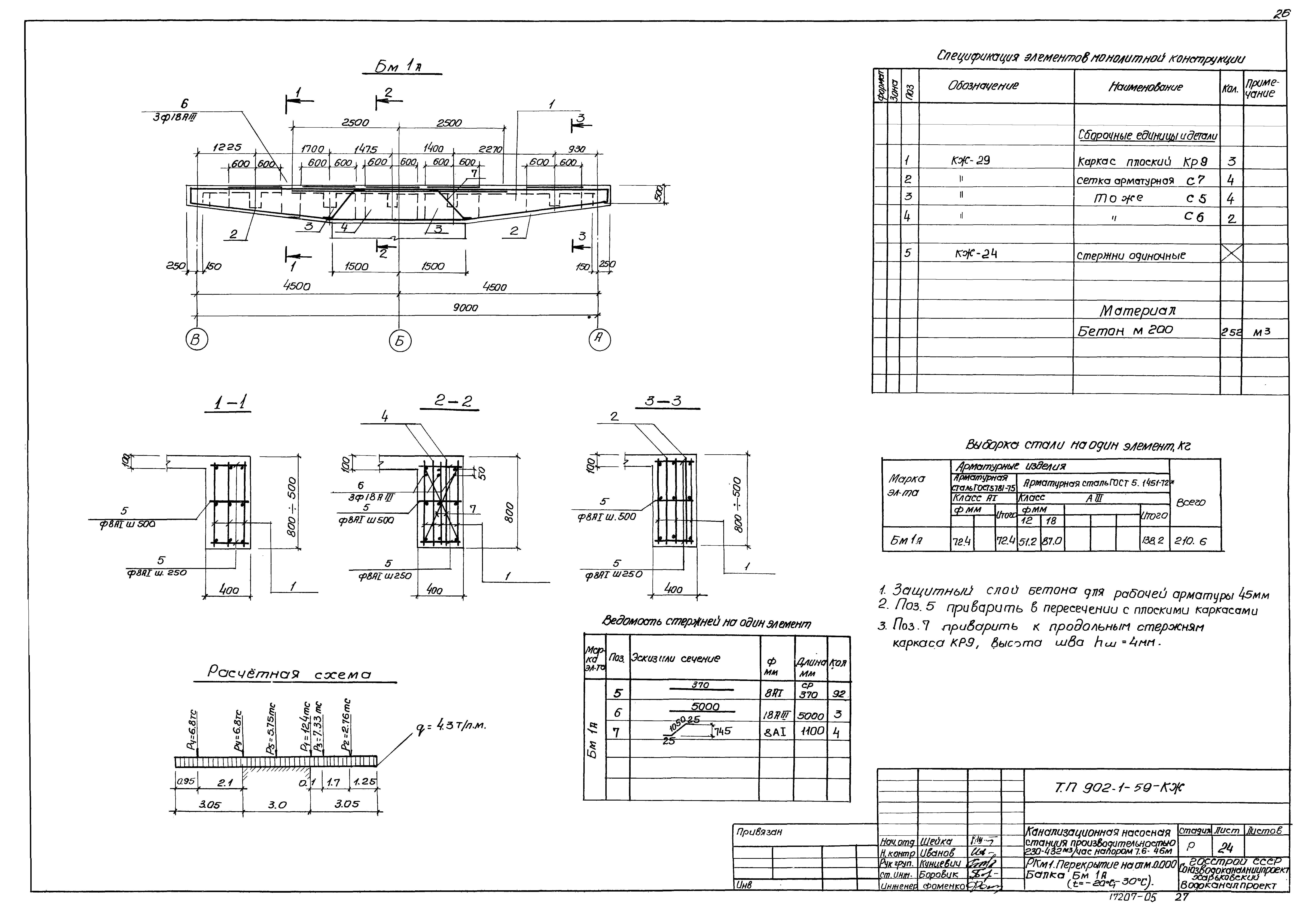
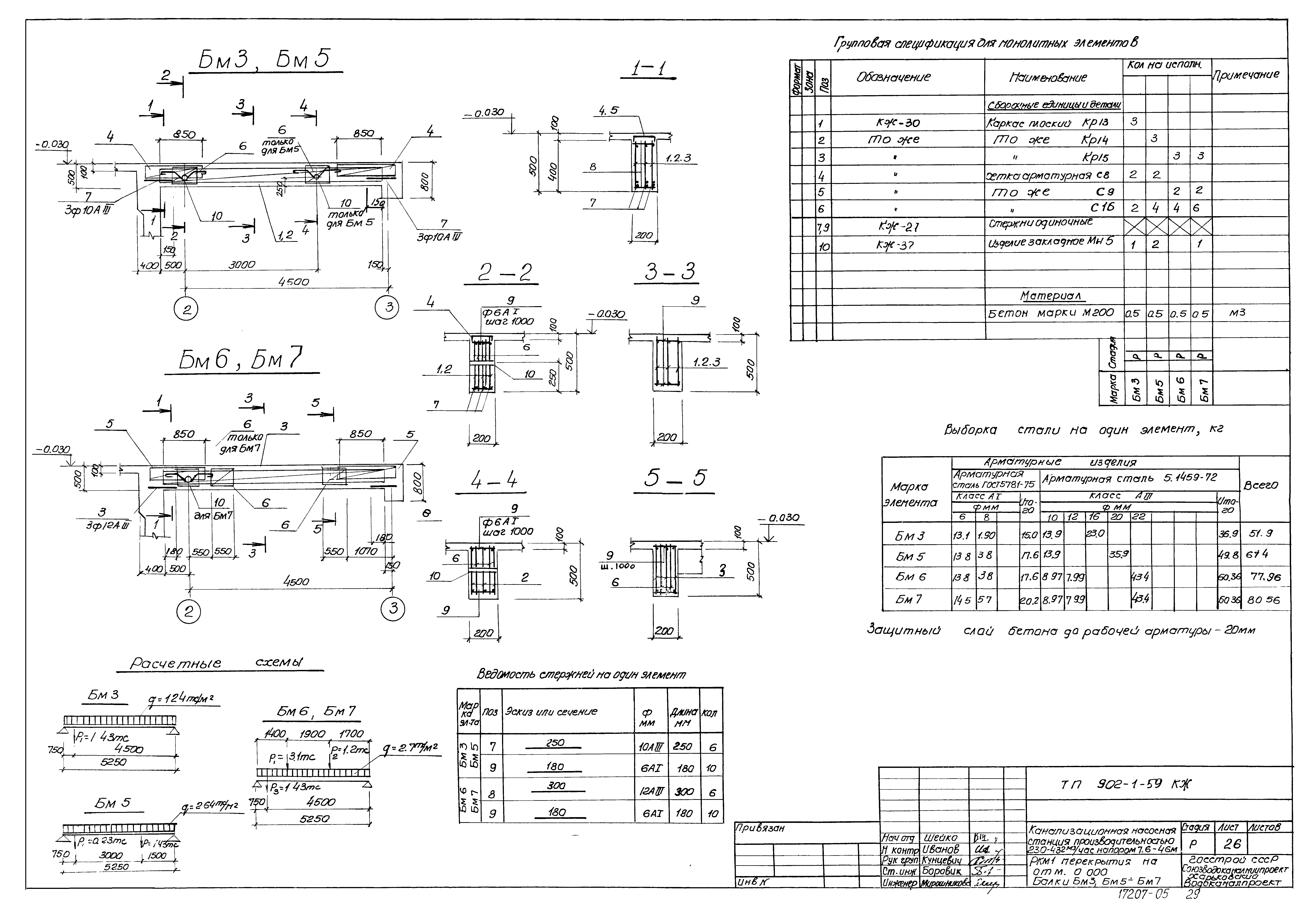
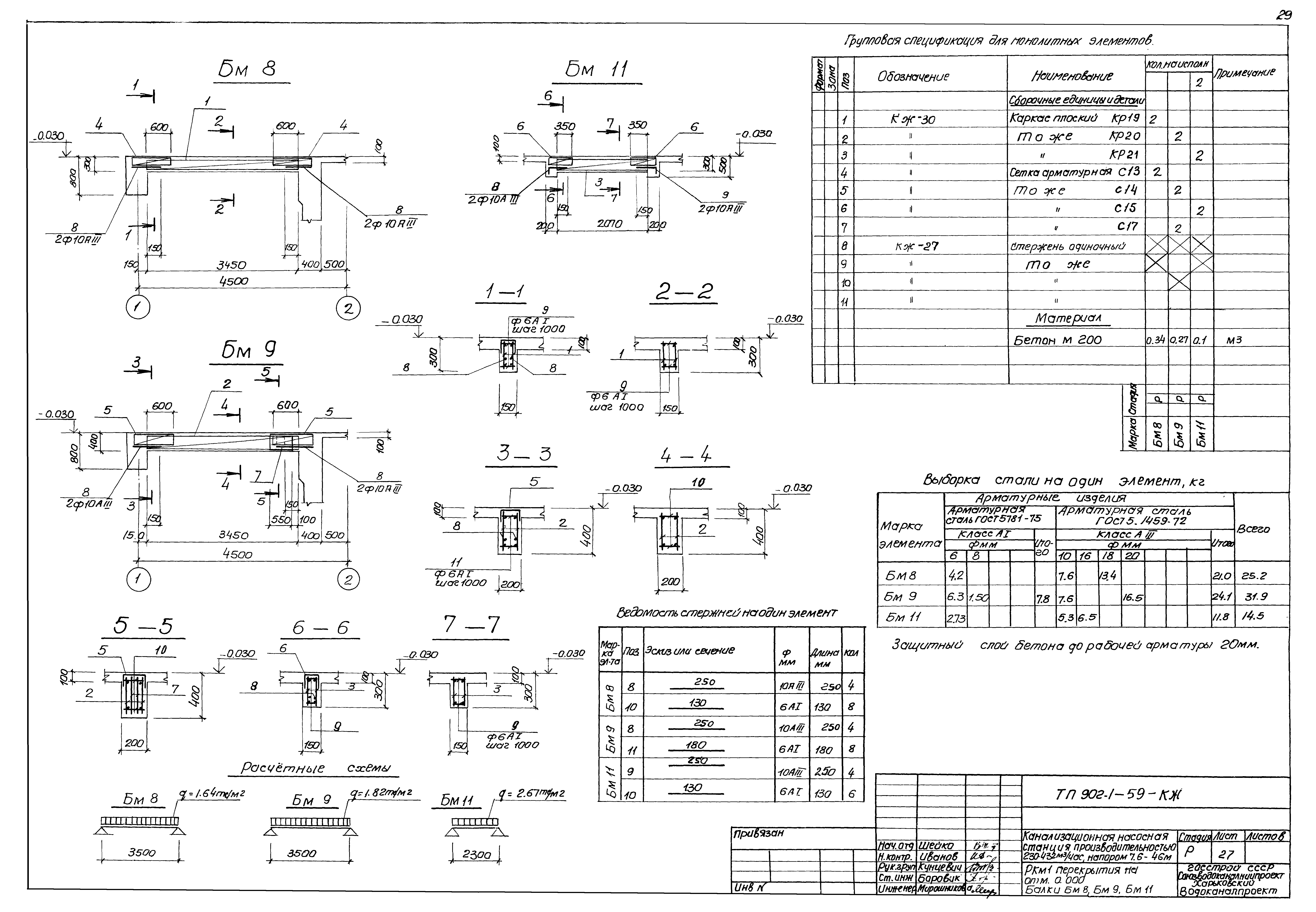
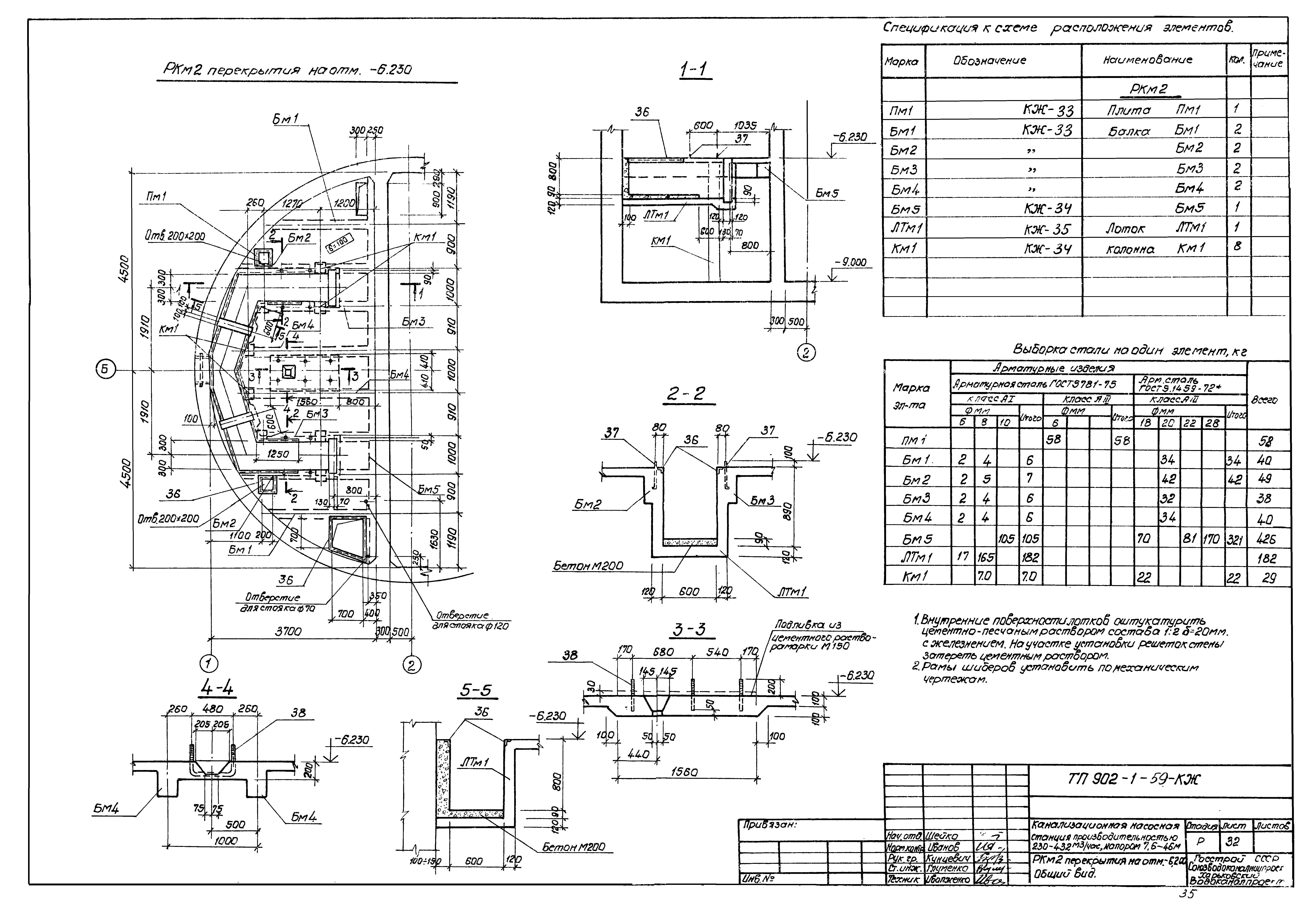
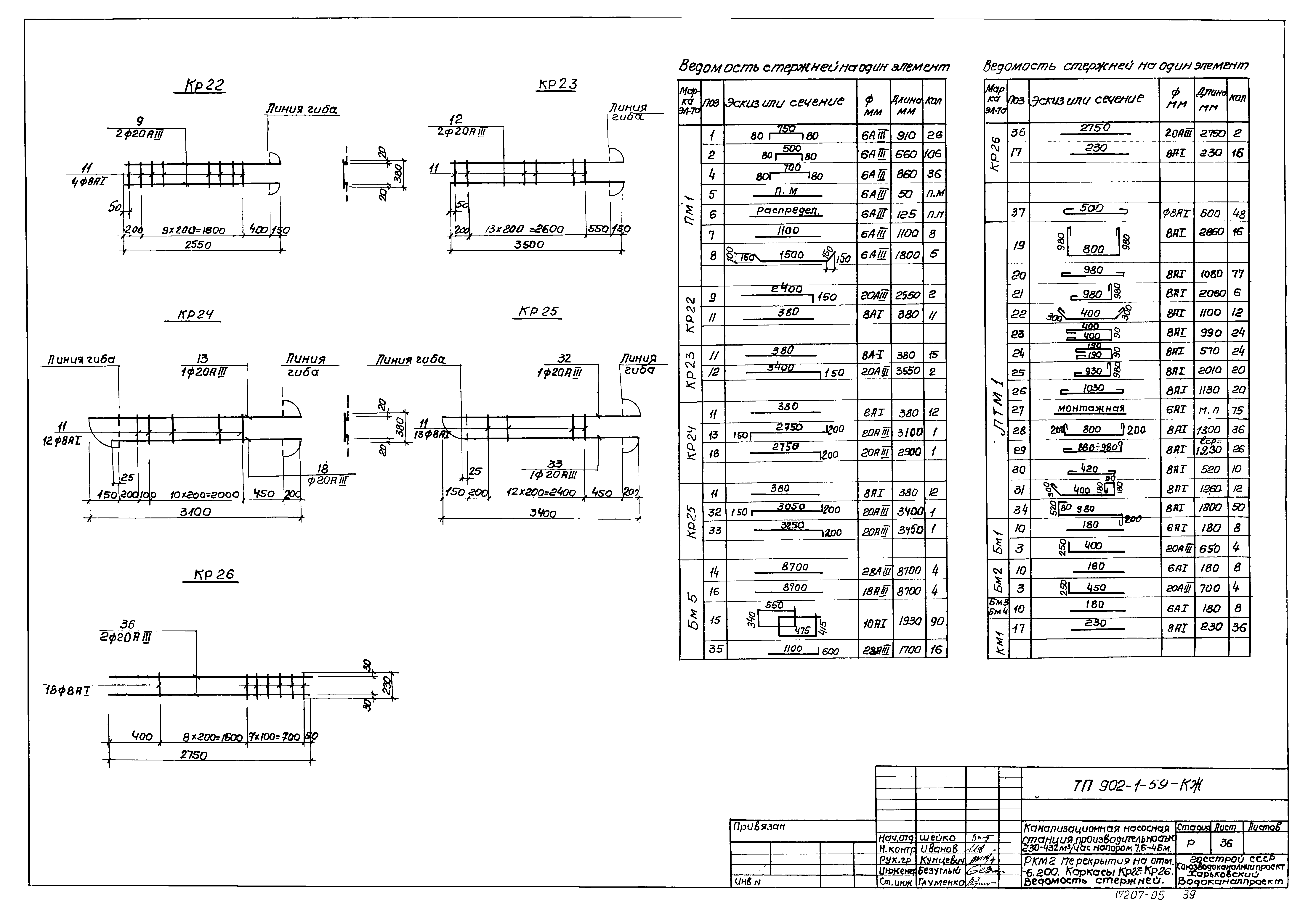
| Оглавление: | ТП 902-1-59 Содержание ТП 902-1-59-КЖ-1 Общие данные ТП 902-1-59-КЖ-2 Открытый способ в сухих грунтах. Планы на отм. -6.200 и -8.500. Разрезы 1-1,2-2 ТП 902-1-59-КЖ-3 Открытый способ в сухих и мокрых грунтах. Планы на отм. -6.200 и -8.500. Разрезы 1-1,2-2 ТП 902-1-59-КЖ-4 Схема расположения элементов подземной части (открытый способ в сухих грунтах) ТП 902-1-59-КЖ-5 СТМ1. Развертка (открытый способ в сухих грунтах) ТП 902-1-59-КЖ-6 Схема расположения элементов подземной части (опускной способ в сухих и мокрых грунтах) ТП 902-1-59-КЖ-7 СТМ1. Развертка. Разрез 3-3 (опускной способ в сухих и мокрых грунтах) ТП 902-1-59-КЖ-8 СТМ1. Разрез 4-4 (опускной способ в сухих и мокрых грунтах) ТП 902-1-59-КЖ-9 Плита днища ПДМ1. Общий вид и схема армирования (открытый способ в сухих грунтах) ТП 902-1-59-КЖ-10 Плита днища ПДМ1. Армирование. Раскрой сеток (открытый способ в сухих грунтах) ТП 902-1-59-КЖ-11 Плита днища ПДМ1. Общий вид и схема армирования (опускной способ в сухих и мокрых грунтах с водоотливом) ТП 902-1-59-КЖ-12 Плита днища ПДМ1. Общий вид и схема армирования (погружение колодца в тиксотропной рубашке) ТП 902-1-59-КЖ-13 Плита днища ПДМ1. Армирование. Сетки. Ведомость стержней ТП 902-1-59-КЖ-14 СТМ1. Схема армирования (открытый способ в сухих грунтах) ТП 902-1-59-КЖ-15 СТМ1. Схема армирования (открытый способ в сухих и мокрых грунтах с водоотливом) ТП 902-1-59-КЖ-16 СТМ1. Схема армирования (погружение колодца в тиксотропной рубашке) ТП 902-1-59-КЖ-17 СТМ1. Схема армирования. Сетки. Каркас КР6,КР7 (погружение в сухих и мокрых грунтах и в тиксотропной рубашке) ТП 902-1-59-КЖ-18 СТМ2. Схема армирования ТП 902-1-59-КЖ-19 РКМ1. Перекрытия на отм. 0.000. Общий вид ТП 902-1-59-КЖ-20 РКМ1. Перекрытия на отм. 0.000. ПМ1. Схема армирования ТП 902-1-59-КЖ-21 РКМ1. Перекрытия на отм. 0.000. ПМ1. Схема армирования. Разрезы 2-2÷8-8. Узел 1 ТП 902-1-59-КЖ-22 РКМ1. Перекрытия на отм. 0.000. Балки БМ1,БМ2 (t=-20ºС,-30ºС) ТП 902-1-59-КЖ-23 РКМ1. Перекрытия на отм. 0.000. Балка БМ1А (t=-40ºС) ТП 902-1-59-КЖ-24 РКМ1. Перекрытия на отм. 0.000. Балка БМ1А (t=-20ºС,t=-30ºС) ТП 902-1-59-КЖ-25 РКМ1. Перекрытия на отм. 0.000. Балки БМ1,БМ2 (t=-40ºС) ТП 902-1-59-КЖ-26 РКМ1. Перекрытия на отм. 0.000. Балки БМ3,БМ5-БМ7 ТП 902-1-59-КЖ-27 РКМ1. Перекрытия на отм. 0.000. Балки БМ8,БМ9,БМ11 ТП 902-1-59-КЖ-28 РКМ1. Перекрытия на отм. 0.000. Балки БМ4,БМ10 ТП 902-1-59-КЖ-29 РКМ1. Перекрытия на отм. 0.000. Каркасы плоские КР9-КР12. Сетки арматурные С3-С7 ТП 902-1-59-КЖ-30 РКМ1. Перекрытия на отм. 0.000. Сетки С8,С9. Каркасы КР13-КР21 ТП 902-1-59-КЖ-31 РКМ1. Перекрытия на отм. 0.000. Сетки С10-С17 ТП 902-1-59-КЖ-32 РКМ2. Перекрытия на отм. -6.200. Общий вид ТП 902-1-59-КЖ-33 РКМ2. Перекрытия на отм. -6.200. ПМ1. Схема армирования. Балки БМ1-БМ4 ТП 902-1-59-КЖ-34 РКМ2. Перекрытия на отм. -6.200. Балка БМ9. Колонна КМ1 ТП 902-1-59-КЖ-35 РКМ2. Перекрытия на отм. -6.200. ЛТМ1. Схема армирования ТП 902-1-59-КЖ-36 РКМ2. Перекрытия на отм. -6.200. Каркасы КР22-КР26. Ведомость стержней ТП 902-1-59-КЖ-37 Закладные изделия МН1-МН7 |
| Разработан: | Харьковский Водоканалпроект |
| Утверждён: | 24.10.1980 Союзводоканалпроект (Soyuzvodokanalproject 65) |








































