Скачать Типовой проект 902-1-59 Альбом XII. Электрооборудование, автоматизация и технологический контроль. Чертежи монтажной зоныДата актуализации: 01.01.2021
|
| Обозначение: | Типовой проект 902-1-59 |
| Обозначение англ: | 902-1-59 |
| Статус: | действует |
| Название рус.: | Альбом XII. Электрооборудование, автоматизация и технологический контроль. Чертежи монтажной зоны |
| Дата добавления в базу: | 01.09.2013 |
| Дата актуализации: | 01.01.2021 |
| Дата введения: | 01.02.1981 |
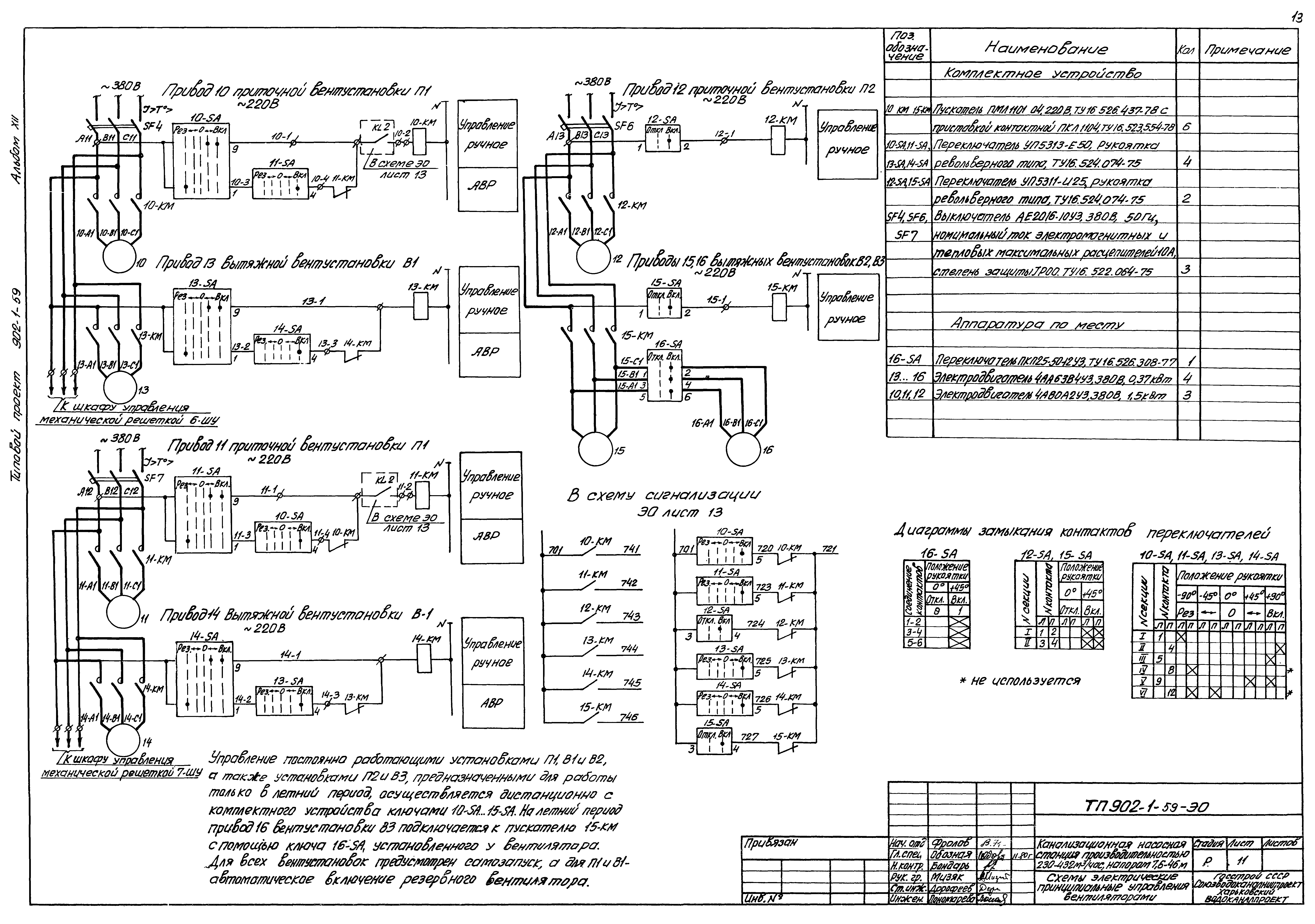
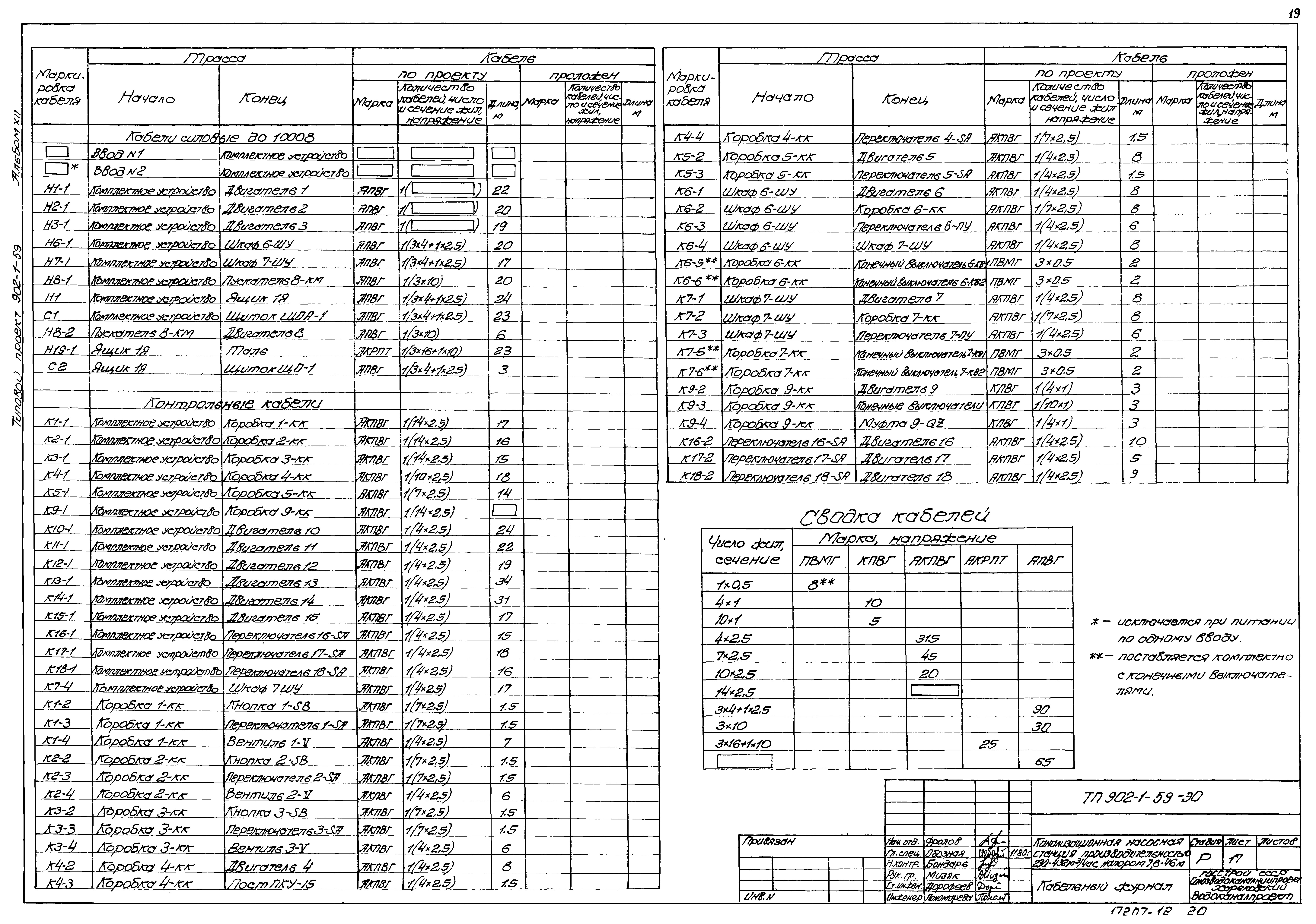
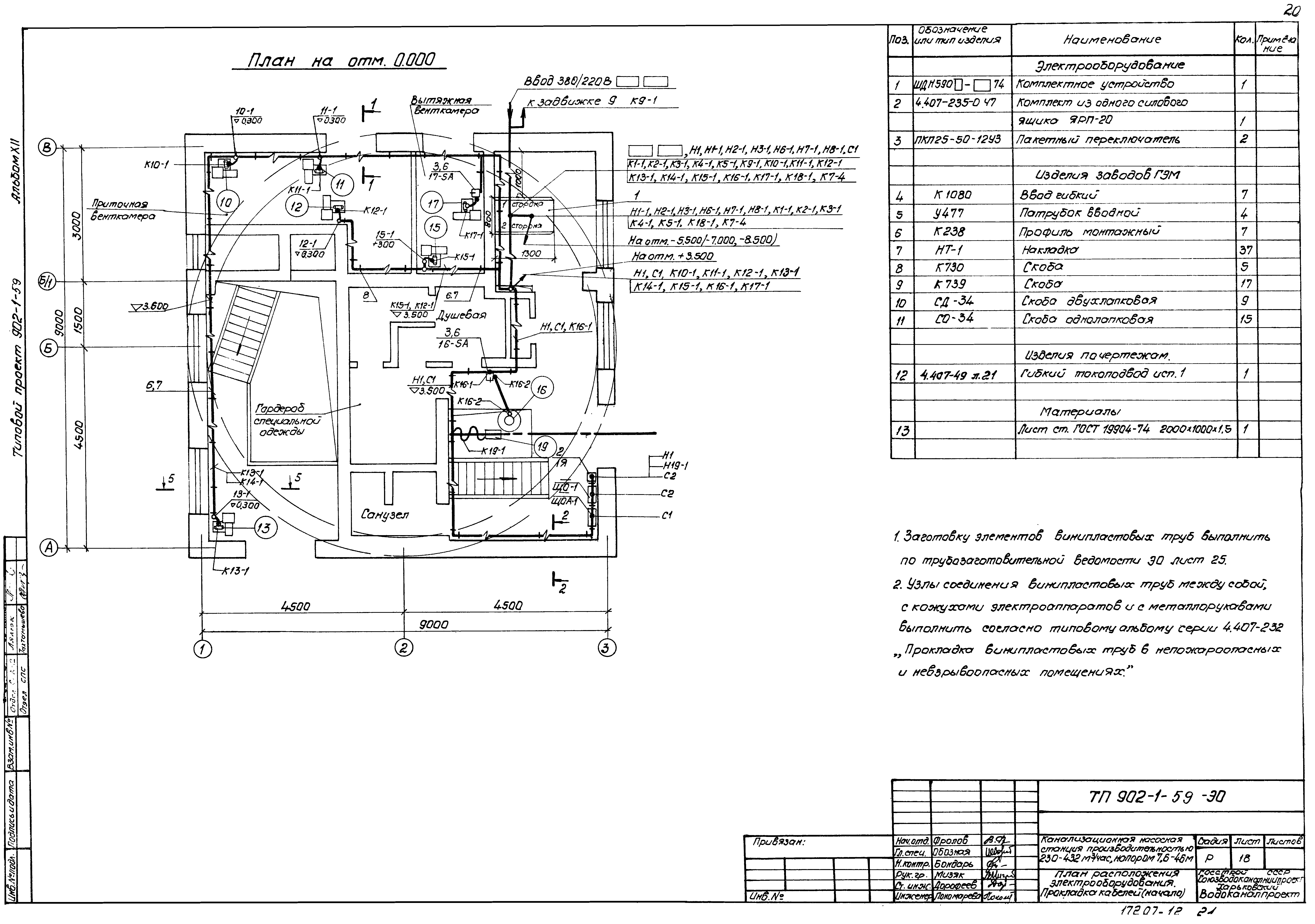
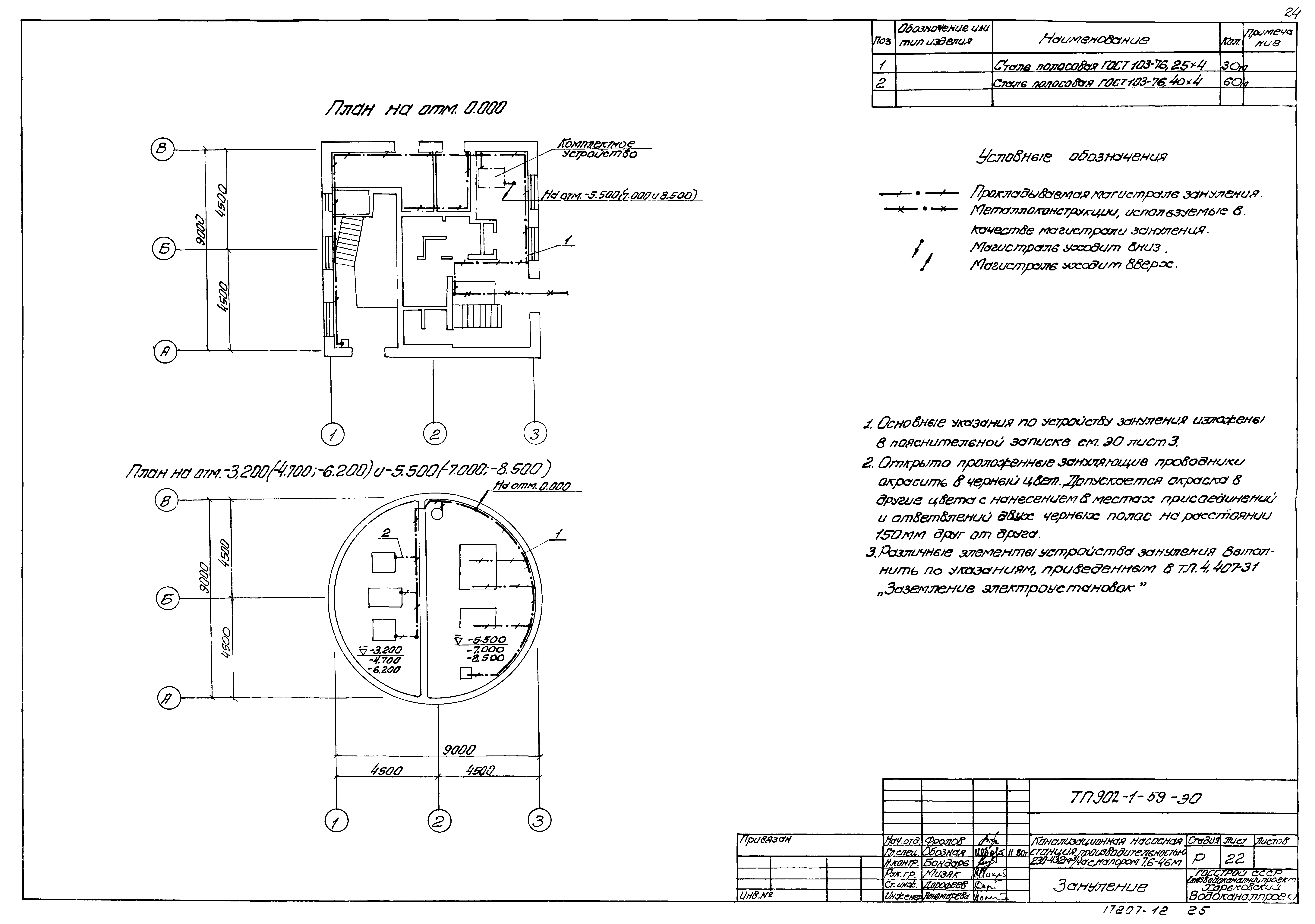
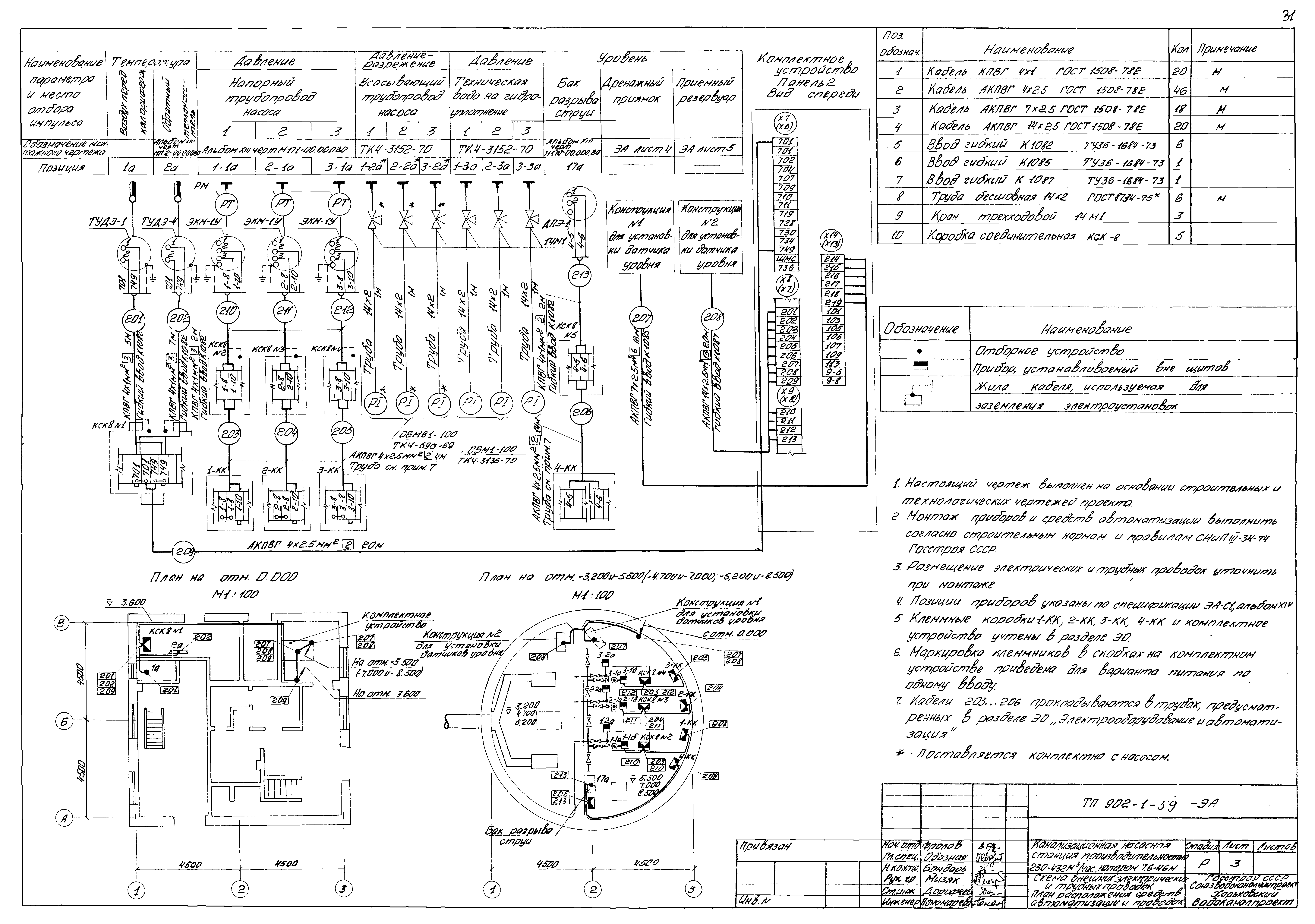
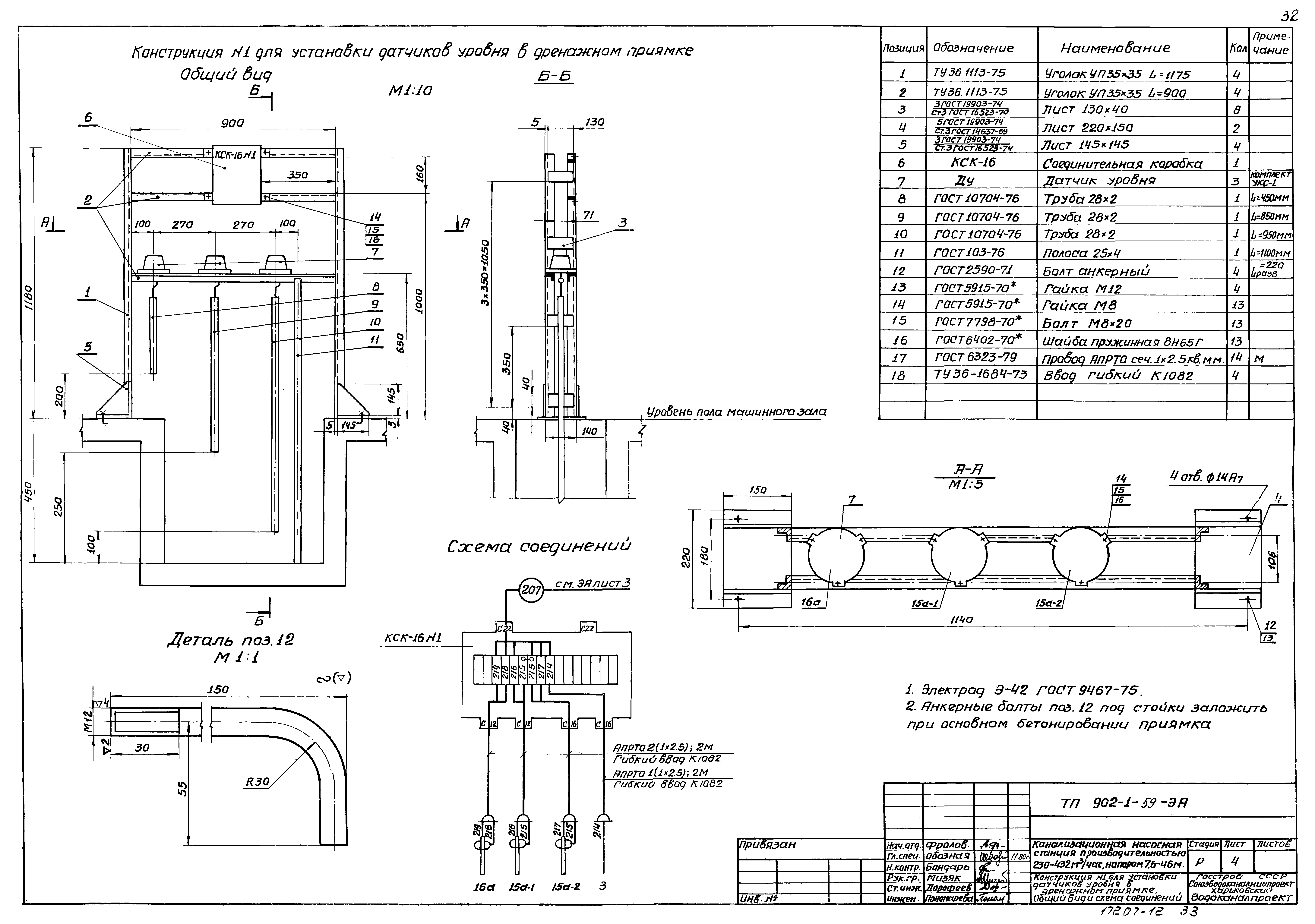
| Оглавление: | ТП 902-1-59 Содержание альбома ХII ТП 902-1-59-ЭО Электрооборудование и автоматизация ТП 902-1-59-ЭО-1 Общие данные (начало) ТП 902-1-59-ЭО-2 Общие данные (продолжение) ТП 902-1-59-ЭО-3 Общие данные (окончание) ТП 902-1-59-ЭО-4 Схема электрическая принципиальная однолинейная распределительной сети 380/220 В (с двумя вводами) ТП 902-1-59-ЭО-5 Схема электрическая принципиальная однолинейная распределительной сети 380/220 В (с одним вводом) (начало) ТП 902-1-59-ЭО-6 Схема электрическая принципиальная однолинейная распределительной сети 380/220 В (с одним вводом) (окончание) ТП 902-1-59-ЭО-7 Схемы электрические принципиальные переключения 3 секции, АВР оперативного тока и учета электроэнергии (с двумя вводами) ТП 902-1-59-ЭО-8 Схема электрическая принципиальная управления насосами перекачки стоков ТП 902-1-59-ЭО-9 Схема электрическая принципиальная управления задвижкой на подводящем коллекторе ТП 902-1-59-ЭО-10 Схемы электрические принципиальные управления насосами гидроуплотнения, дренажным насосом и решетками ТП 902-1-59-ЭО-11 Схемы электрические принципиальные управления вентиляторами ТП 902-1-59-ЭО-12 Схемы электрические принципиальные контроля уровней ТП 902-1-59-ЭО-13 Схемы электрические принципиальные сигнализации ТП 902-1-59-ЭО-14 Схема подключения электрооборудования ТП 902-1-59-ЭО-15 Схема подключения комплектного устройства ШДН-5903 (с двумя вводами) ТП 902-1-59-ЭО-16 Схема подключения комплектного устройства ШДН-5902 (с одним вводом) ТП 902-1-59-ЭО-17 Кабельный журнал ТП 902-1-59-ЭО-18 План расположения электрооборудования. Прокладка кабелей (начало) ТП 902-1-59-ЭО-19 План расположения электрооборудования. Прокладка кабелей (продолжение) ТП 902-1-59-ЭО-20 План расположения электрооборудования. Прокладка кабелей (окончание) ТП 902-1-59-ЭО-21 Электроосвещение ТП 902-1-59-ЭО-22 Зануление ТП 902-1-59-ЭО-23 Уточненные ведомости и ведомости объемов электромонтажных работ (начало) ТП 902-1-59-ЭО-24 Уточненные ведомости и ведомости объемов электромонтажных работ (окончание) ТП 902-1-59-ЭО-25 Задание МЭЗ ТП 902-1-59-ЭО-26 Комплектные устройства. Общие виды. Перечни надписей (чертеж для справок) ТП 902-1-59-ЭА Технологический контроль ТП 902-1-59-ЭА-1 Общие данные ТП 902-1-59-ЭА-2 Схема функциональная технологического контроля ТП 902-1-59-ЭА-3 Схема внешних электрических и трубных проводок. План расположения средств автоматизации и проводок ТП 902-1-59-ЭА-4 Конструкция № 1 для установки датчиков уровня в дренажном приямке. Общий вид и схема соединений ТП 902-1-59-ЭА-5 Конструкция № 2 для установки датчиков уровня в приемном резервуаре. Общий вид и схема соединений |
| Разработан: | Харьковский Водоканалпроект |
| Утверждён: | 24.10.1980 Союзводоканалпроект (Soyuzvodokanalproject 65) |


































