Скачать Типовой проект 903-1-52/70 Альбом I/2. Типы 1, 2, 3. Архитектурно-строительная часть. Общие чертежи. Здание с кирпичными стенами (из ТП 903-1-51/70)Дата актуализации: 01.01.2021
|
| Обозначение: | Типовой проект 903-1-52/70 |
| Обозначение англ: | 903-1-52/70 |
| Статус: | действует |
| Название рус.: | Альбом I/2. Типы 1, 2, 3. Архитектурно-строительная часть. Общие чертежи. Здание с кирпичными стенами (из ТП 903-1-51/70) |
| Дата добавления в базу: | 01.09.2013 |
| Дата актуализации: | 01.01.2021 |
| Дата введения: | 31.07.1970 |
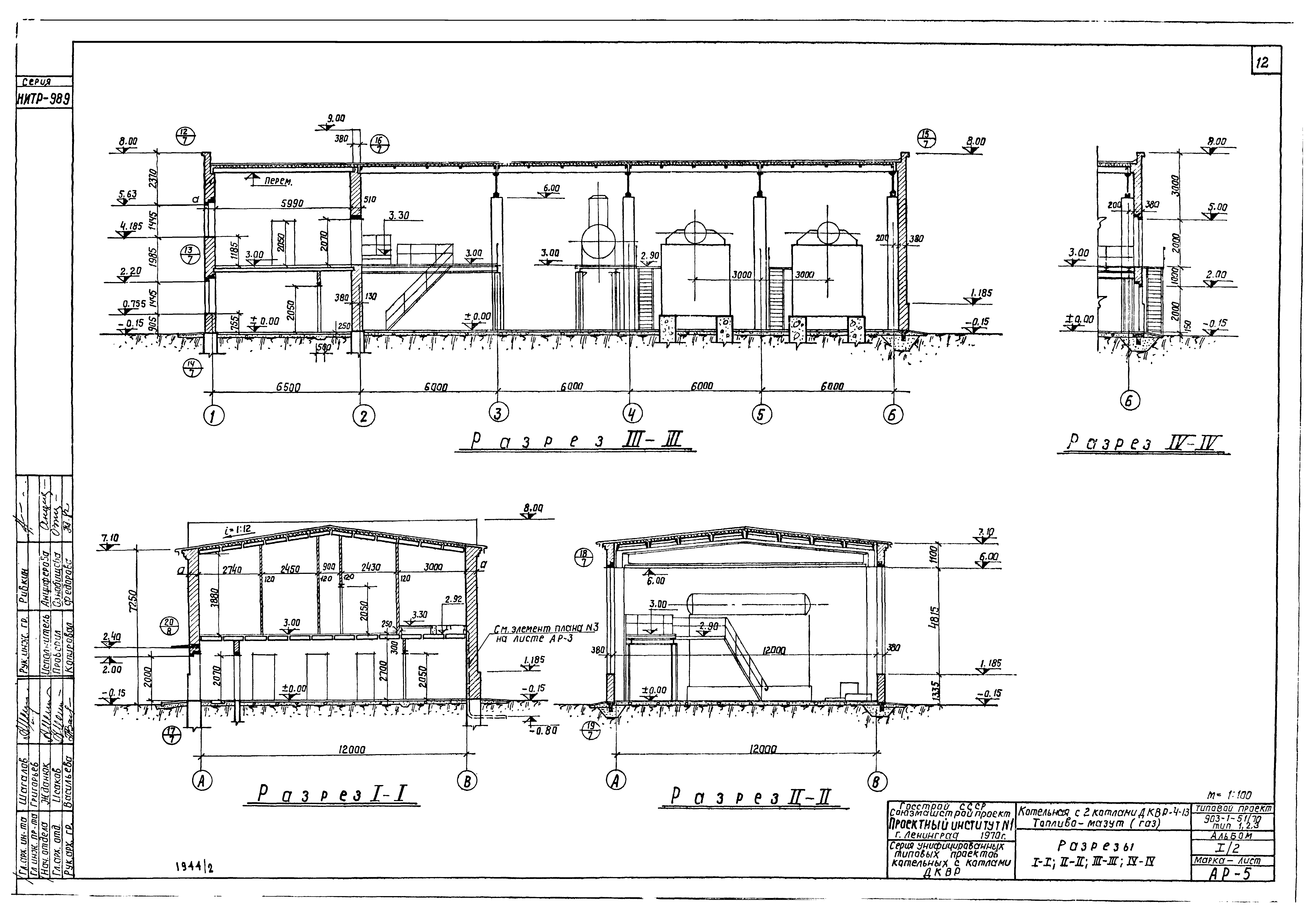
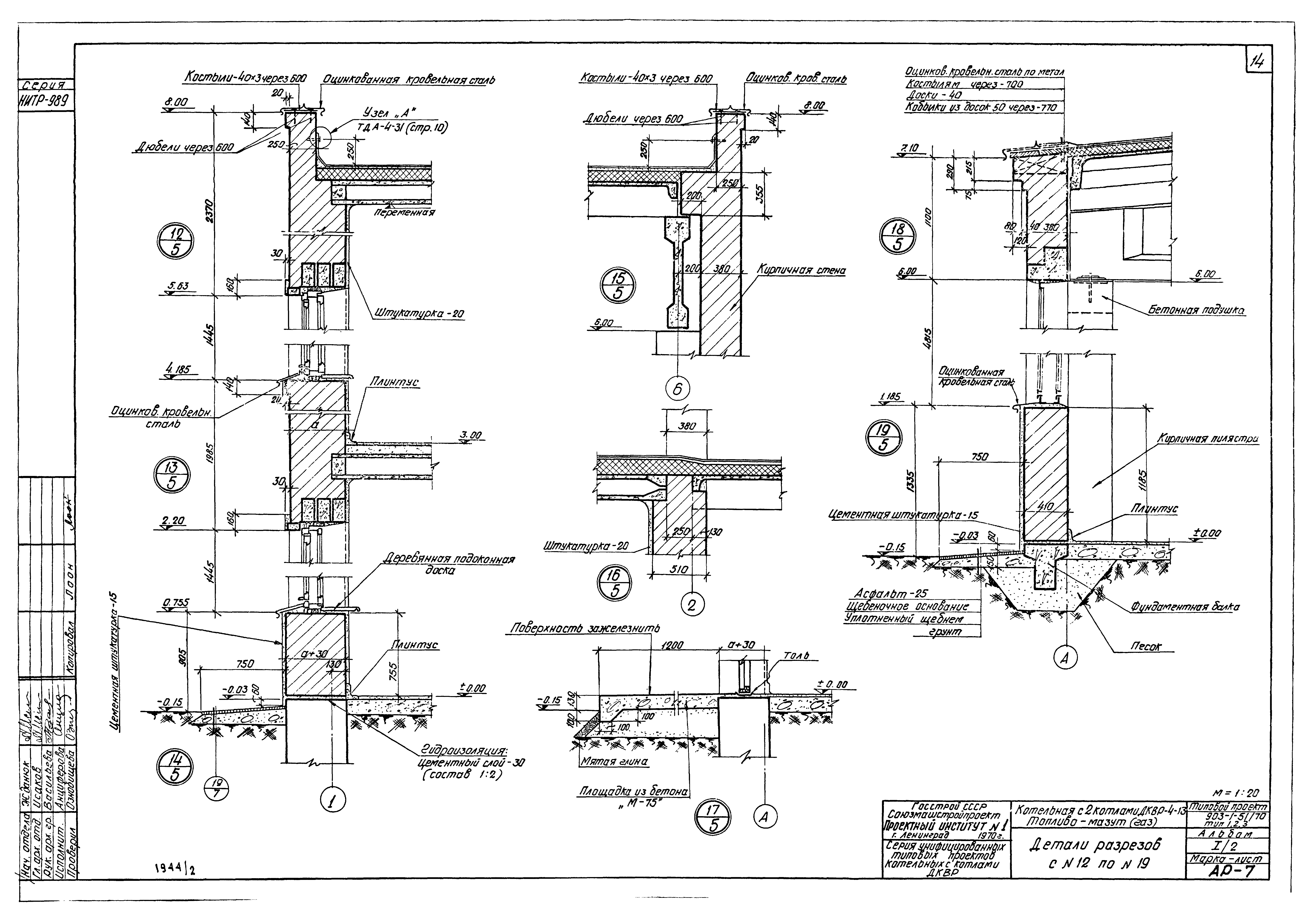
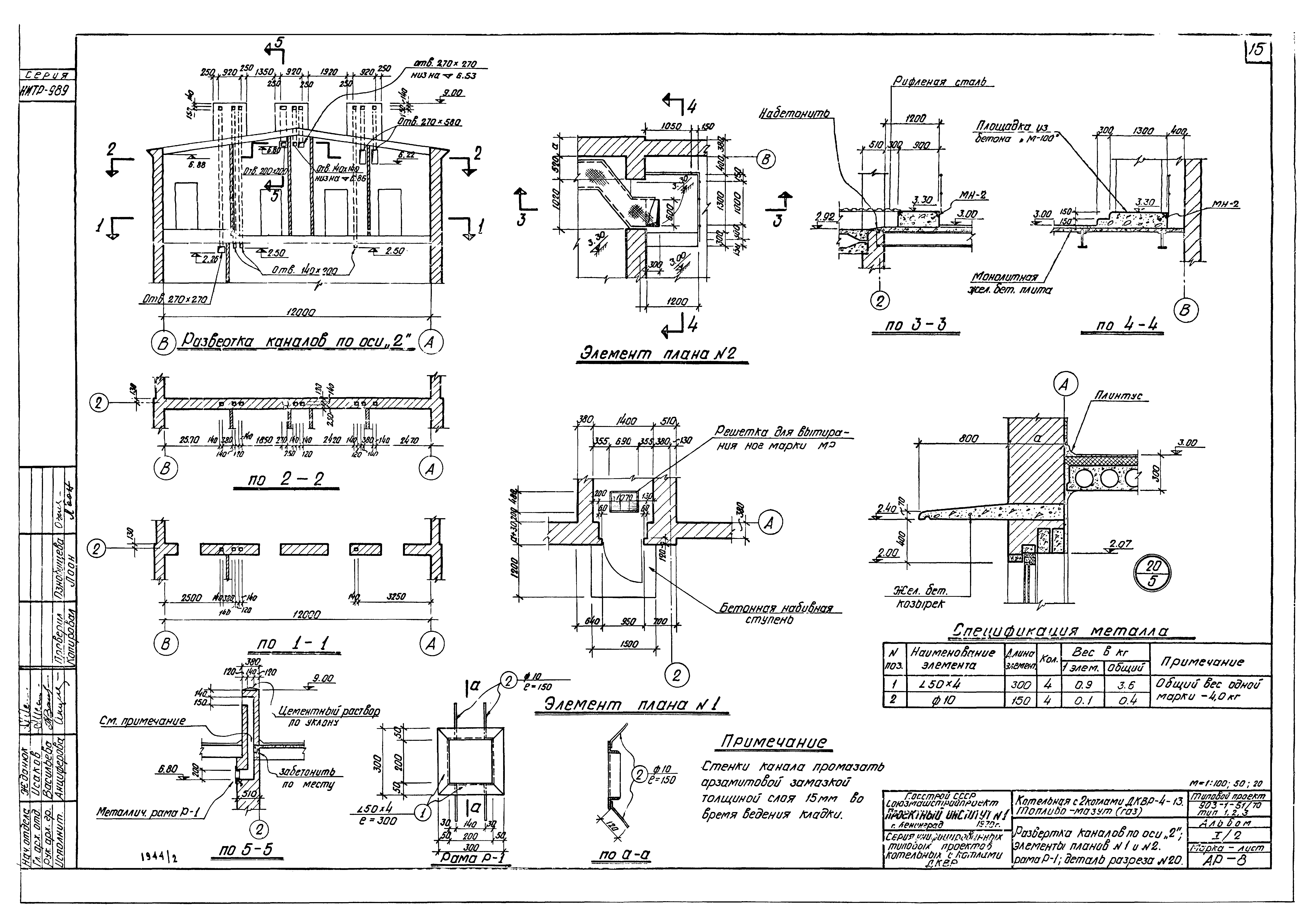
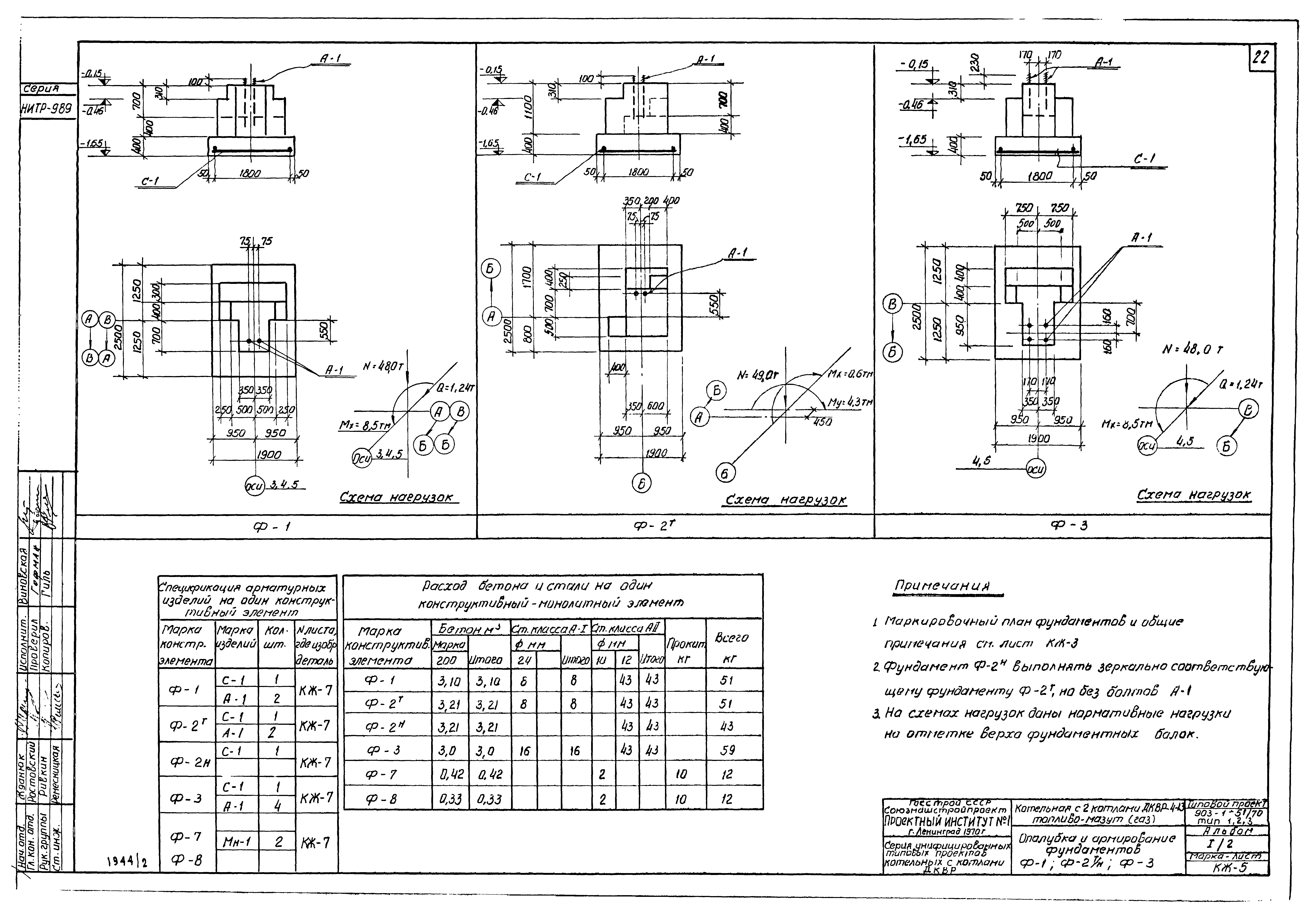
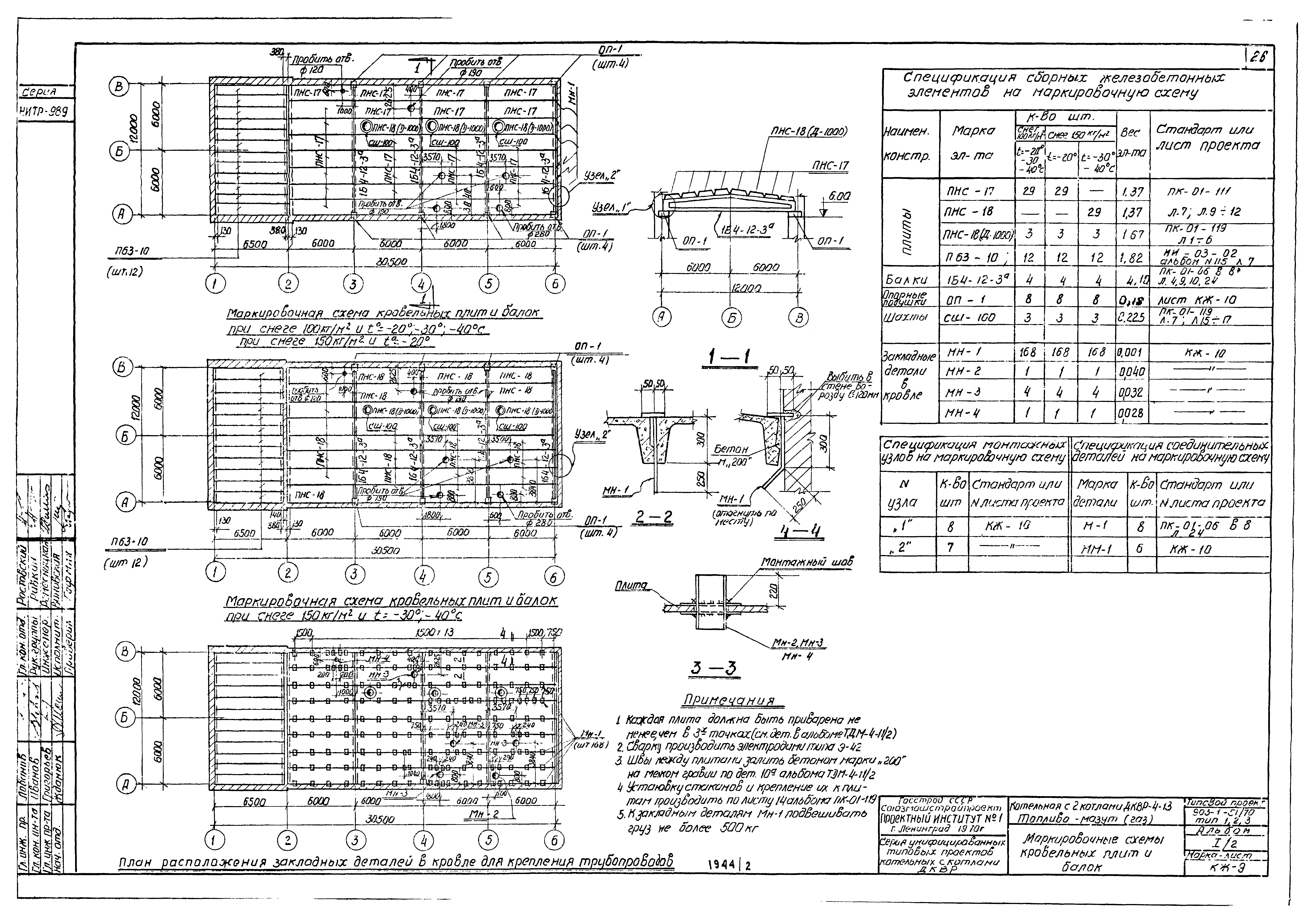
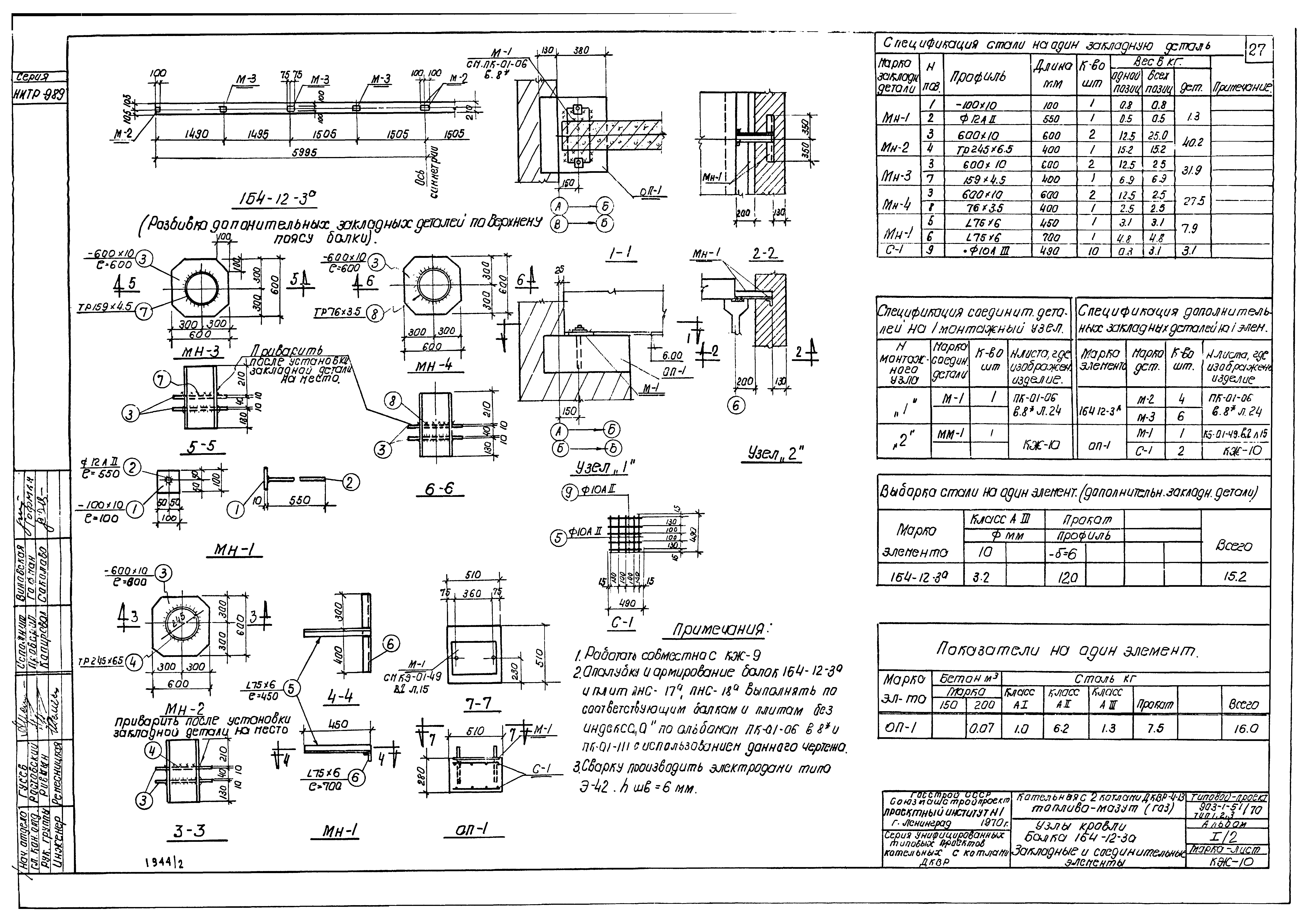
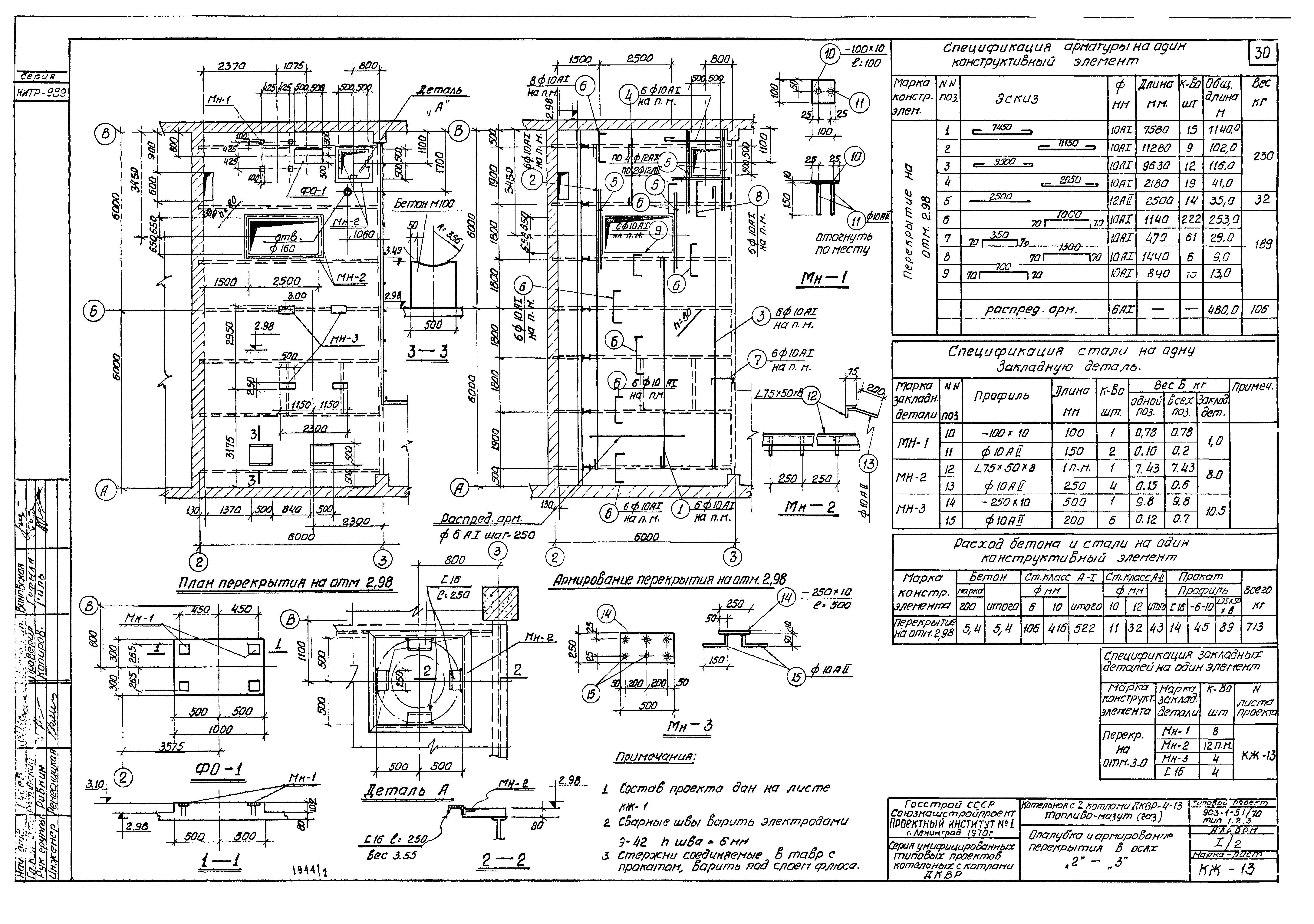
| Оглавление: | ТП 903-1-51/70;903-1-52/70 Титульный лист ТП 903-1-51/70;903-1-52/70 Перспектив ТП 903-1-51/70;903-1-52/70 Содержание альбома 1/2 ТП 903-1-51/70;903-1-52/70 Пояснительная записка ТП 903-1-51/70;903-1-52/70-ГП-1 Примерные схемы генплана ТП 903-1-51/70;903-1-52/70-АР Архитектурно-строительные чертежи ТП 903-1-51/70;903-1-52/70-АР-1 Заглавный лист архитектурных чертежей ТП 903-1-51/70;903-1-52/70-АР-2 План полов и кровли, конструкции и примечания ТП 903-1-51/70;903-1-52/70-АР-3 План на ±0.00. Детали плана с № 8 по № 10 ТП 903-1-51/70;903-1-52/70-АР-4 План на 3.00 и 3.30. Детали и спецификация дверей ТП 903-1-51/70;903-1-52/70-АР-5 Разрезы 1-1,2-2,3-3,4-4 ТП 903-1-51/70;903-1-52/70-АР-6 Фасады, фрагмент № 1 и сечения ТП 903-1-51/70;903-1-52/70-АР-7 Детали разрезов с № 12 по № 19 ТП 903-1-51/70;903-1-52/70-АР-8 Развертка каналов по оси "2". Элементы планов № 1 и № 2. Схемы заполнения оконных проемов и деталь разреза № 20 ТП 903-1-51/70;903-1-52/70-АР-9 Заполнение оконного проема Т-1 стеклоблоками ТП 903-1-51/70;903-1-52/70-АР-10 Пожарная лестница № 1. Схема и детали ТП 903-1-51/70;903-1-52/70-КЖ Чертежи железобетонных конструкций ТП 903-1-51/70;903-1-52/70-КЖ-1 Заглавный лист ТП 903-1-51/70;903-1-52/70-КЖ-2 Сводные спецификации железобетонных и стальных элементов, расход бетона и стали на здание ТП 903-1-51/70;903-1-52/70-КЖ-3 Маркировочный план фундаментов и фундаментных балок ТП 903-1-51/70;903-1-52/70-КЖ-4 Элемент плана фундаментов "1"-"7". Фундаменты Ф-7,Ф-8. Сечение 3-3 ТП 903-1-51/70;903-1-52/70-КЖ-5 Опалубка и армирование фундаментов Ф-1,Ф-2т/н,Ф-3 ТП 903-1-51/70;903-1-52/70-КЖ-6 Опалубка и армирование фундаментов Ф-4÷Ф-6 ТП 903-1-51/70;903-1-52/70-КЖ-7 Сетки, каркасы и закладные детали фундаментов ТП 903-1-51/70;903-1-52/70-КЖ-8 Таблица нагрузок на фундаменты ТП 903-1-51/70;903-1-52/70-КЖ-9 Маркировочные схемы кровельных плит и балок ТП 903-1-51/70;903-1-52/70-КЖ-10 Узлы кровли балки 1Б4-12-3А. Закладные и соединительные элементы ТП 903-1-51/70;903-1-52/70-КЖ-11 Маркировочные схемы перемычек ТП 903-1-51/70;903-1-52/70-КЖ-12 Перемычка НБУ-16. Козырьки НК-1,НК-2,НК-3. Опалубка и армирование ТП 903-1-51/70;903-1-52/70-КЖ-13 Опалубка и армирование перекрытия в осях "2"-"3" ТП 903-1-51/70;903-1-52/70-КЖ-14 Монтажная схема перекрытий в осях "1"-"2". На отм. 2.90,3.30. Сечения, узлы ТП 903-1-51/70;903-1-52/70-КМ Чертежи металлических конструкций ТП 903-1-51/70;903-1-52/70-КМ-1 Заглавный лист ТП 903-1-51/70;903-1-52/70-КМ-2 План балок площадки на 3.00. Разрез 1-1. Таблицы ТП 903-1-51/70;903-1-52/70-КМ-3 Площадки на 3.00. Разрезы 2-2÷4-4 и узлы "1","2" ТП 903-1-51/70;903-1-52/70-КМ-4 Площадки на 3.00 и наружная лестница. Узлы "1","3"-"6" ТП 903-1-51/70;903-1-52/70-КМ-5 Площадка под деаэратор ТП 903-1-51/70;903-1-52/70-КМ-6 План рам и узлы у ряда "В" на 220 ТП 903-1-51/70;903-1-52/70-КМ-7 Наружная лестница в осях "А","Б". Сеточное ограждение в осях "2"-"3", "А-Б" ТП 903-1-51/70;903-1-52/70-КМ-8 Схемы оконных проемов. Таблицы ТП 903-1-51/70;903-1-52/70-КМ-9 Схемы заполнения оконных проемов. Разрезы 1-1÷4-4. Узлы 1-3 |
| Разработан: | Проектный институт № 1 Госстроя СССР |
| Утверждён: | 31.07.1970 Госстрой СССР (Государственный комитет Совета Министров СССР по делам строительства) (USSR Gosstroy 255) |







































