Скачать Типовой проект 903-1-52/70 Альбом V. Типы 1, 2, 3. Часть тепломеханическая. Блок деаэрационно-питательной установки (из ТП 903-1-51/70)Дата актуализации: 01.01.2021
|
| Обозначение: | Типовой проект 903-1-52/70 |
| Обозначение англ: | 903-1-52/70 |
| Статус: | действует |
| Название рус.: | Альбом V. Типы 1, 2, 3. Часть тепломеханическая. Блок деаэрационно-питательной установки (из ТП 903-1-51/70) |
| Дата добавления в базу: | 01.09.2013 |
| Дата актуализации: | 01.01.2021 |
| Дата введения: | 31.07.1970 |
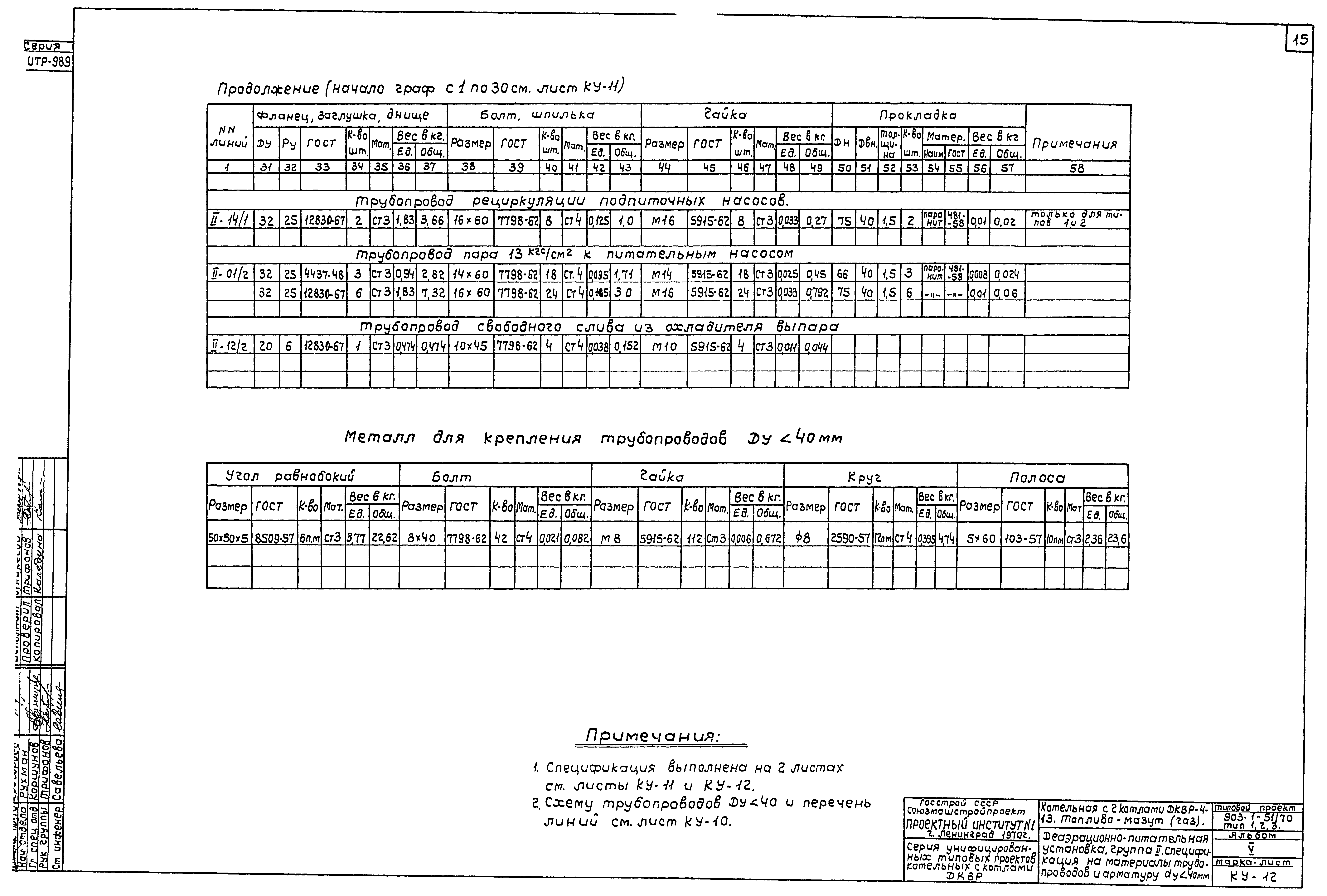
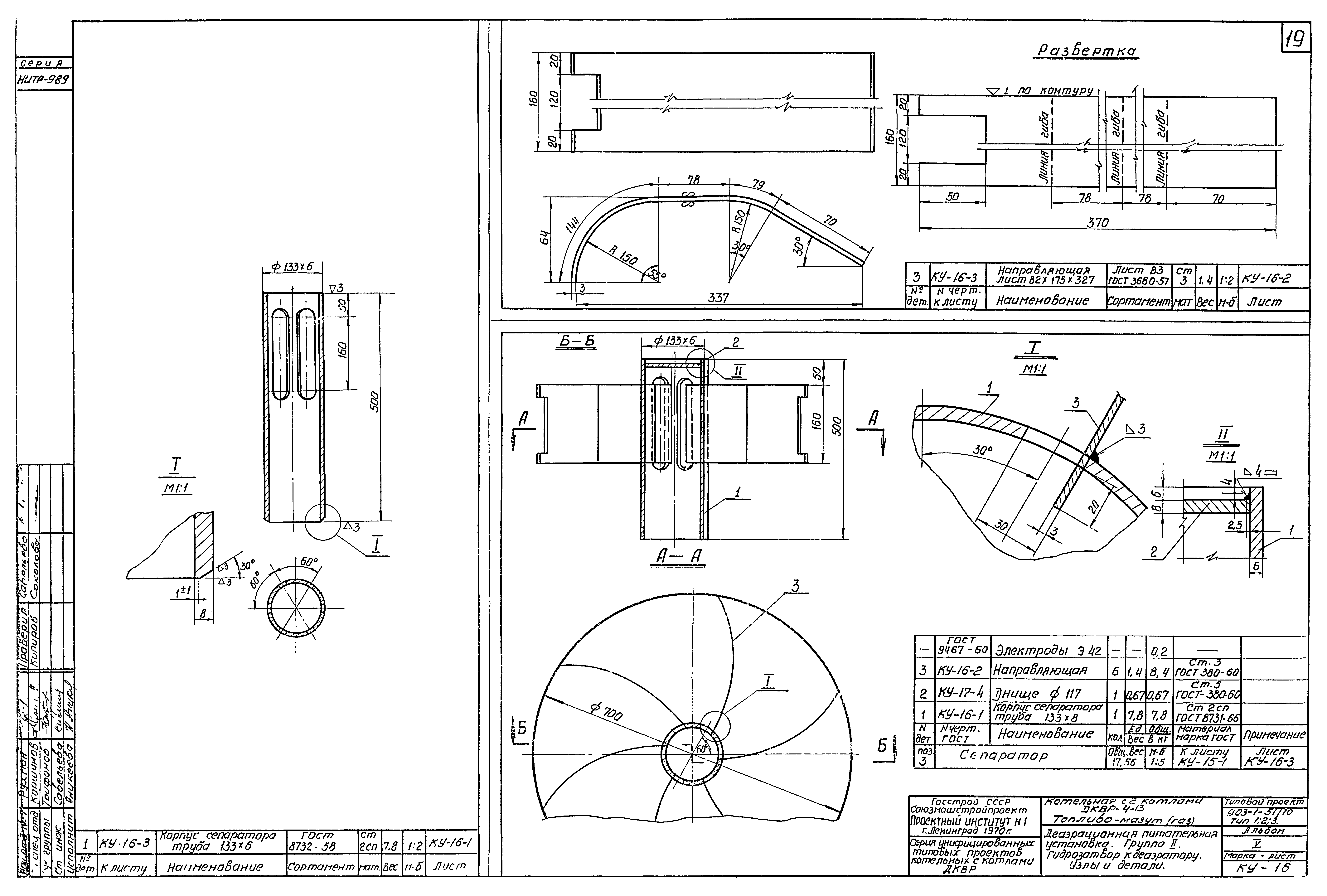
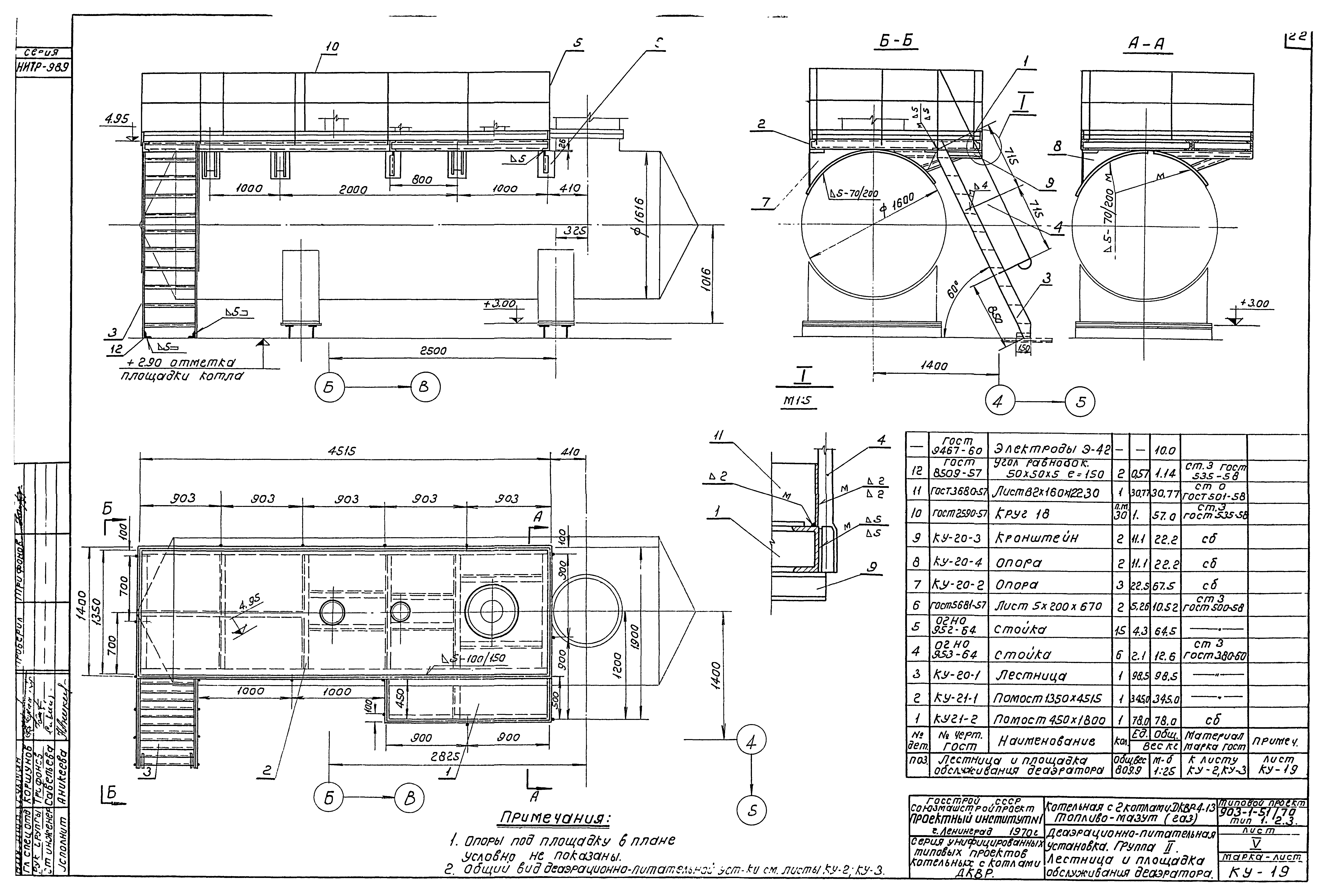
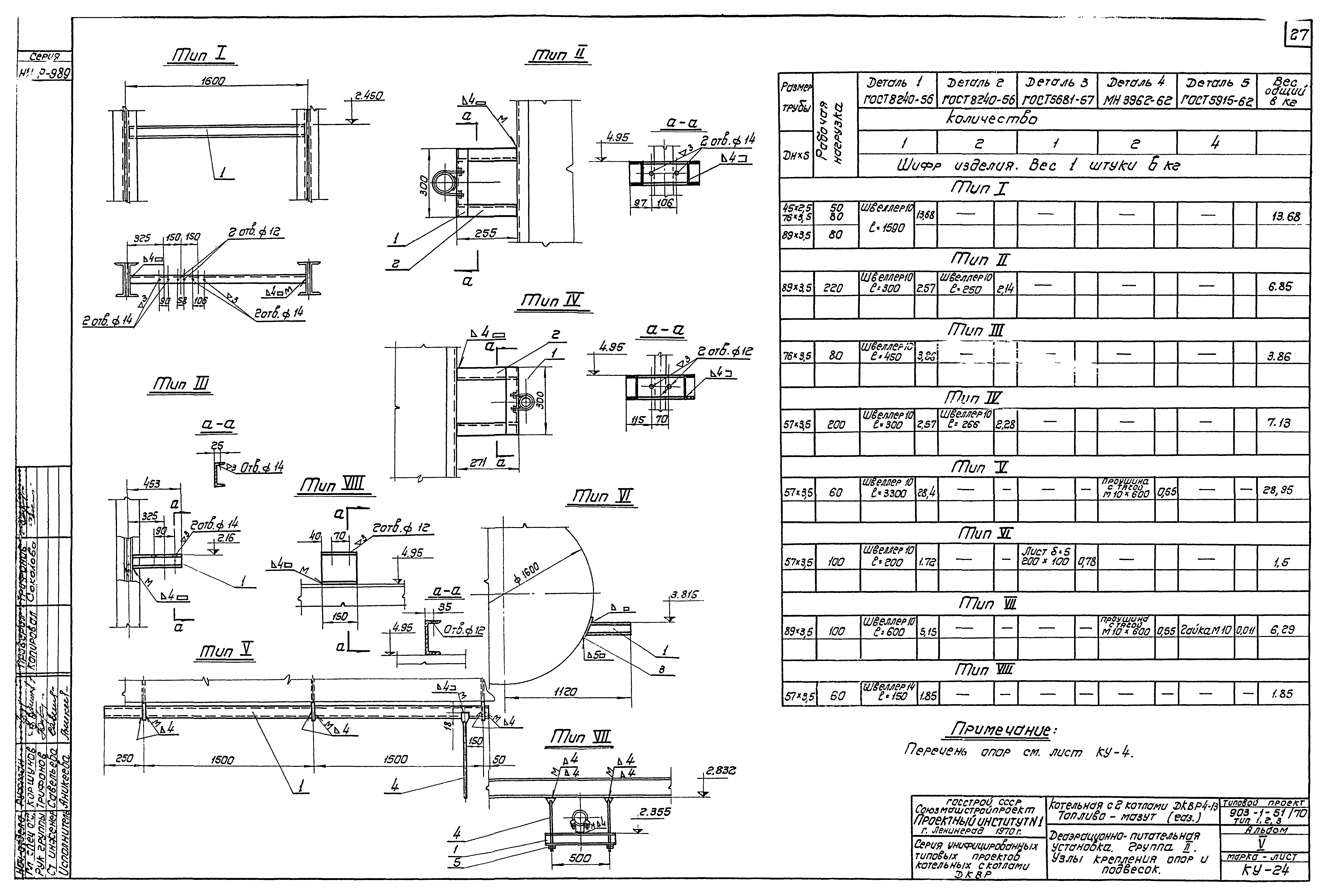
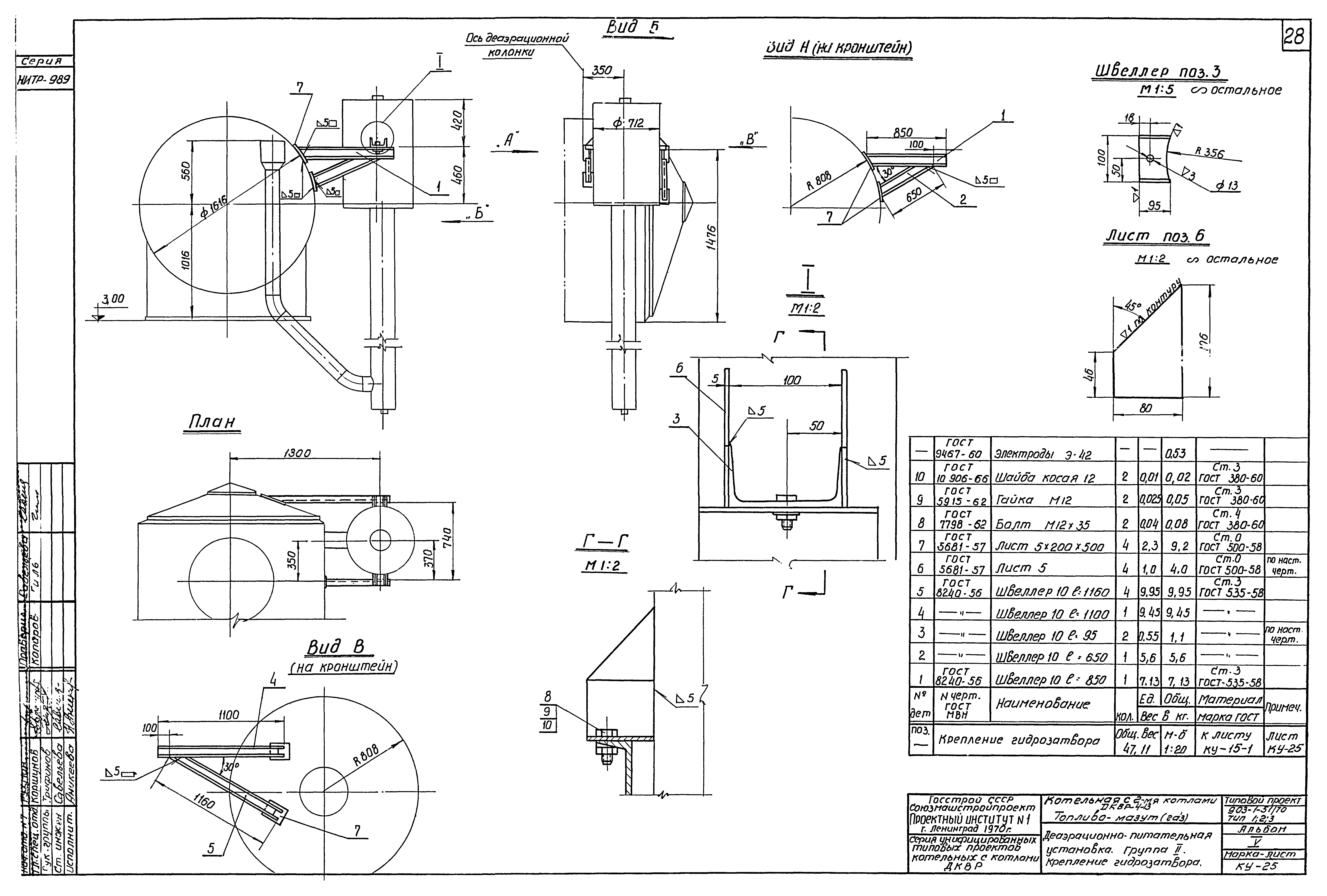
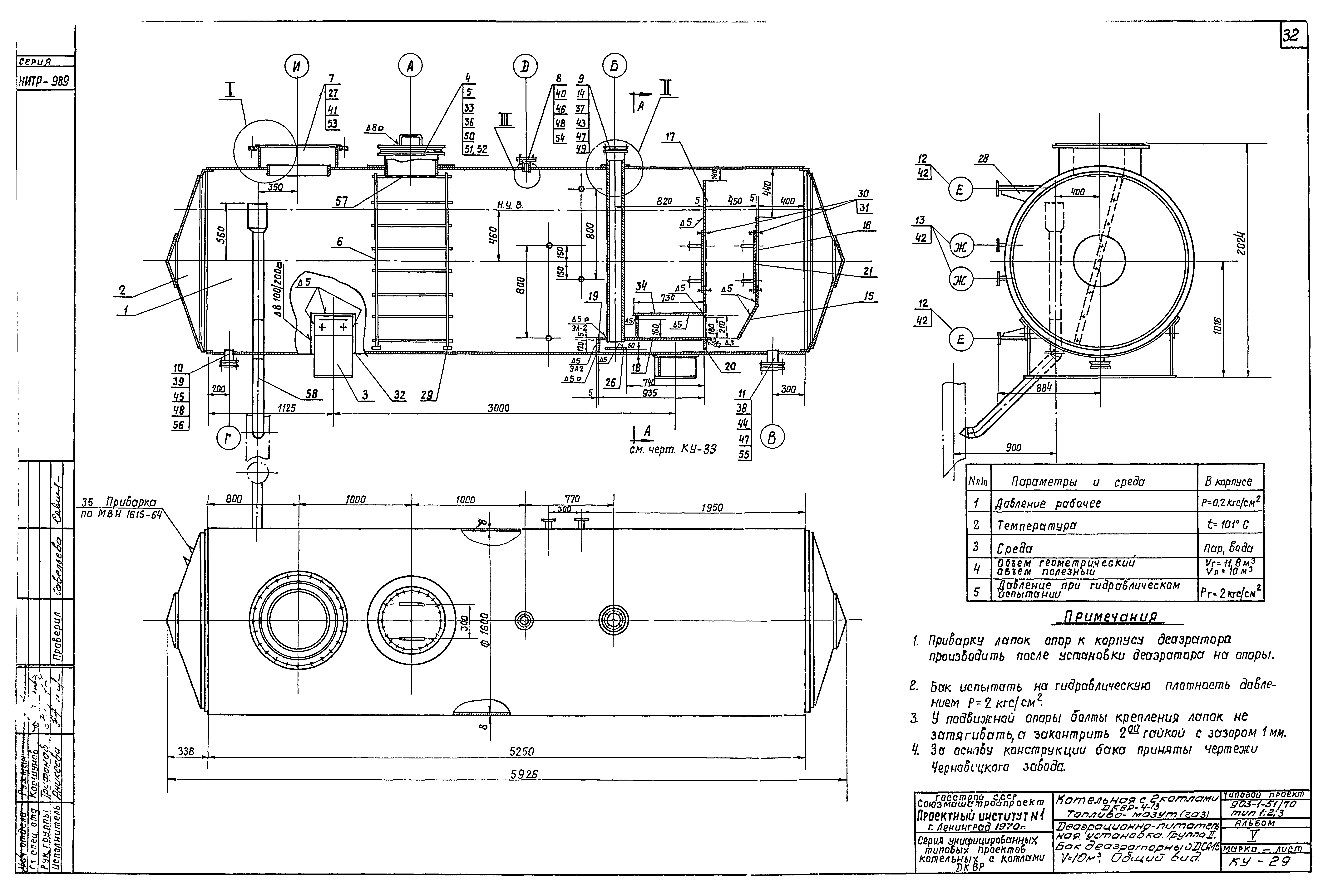
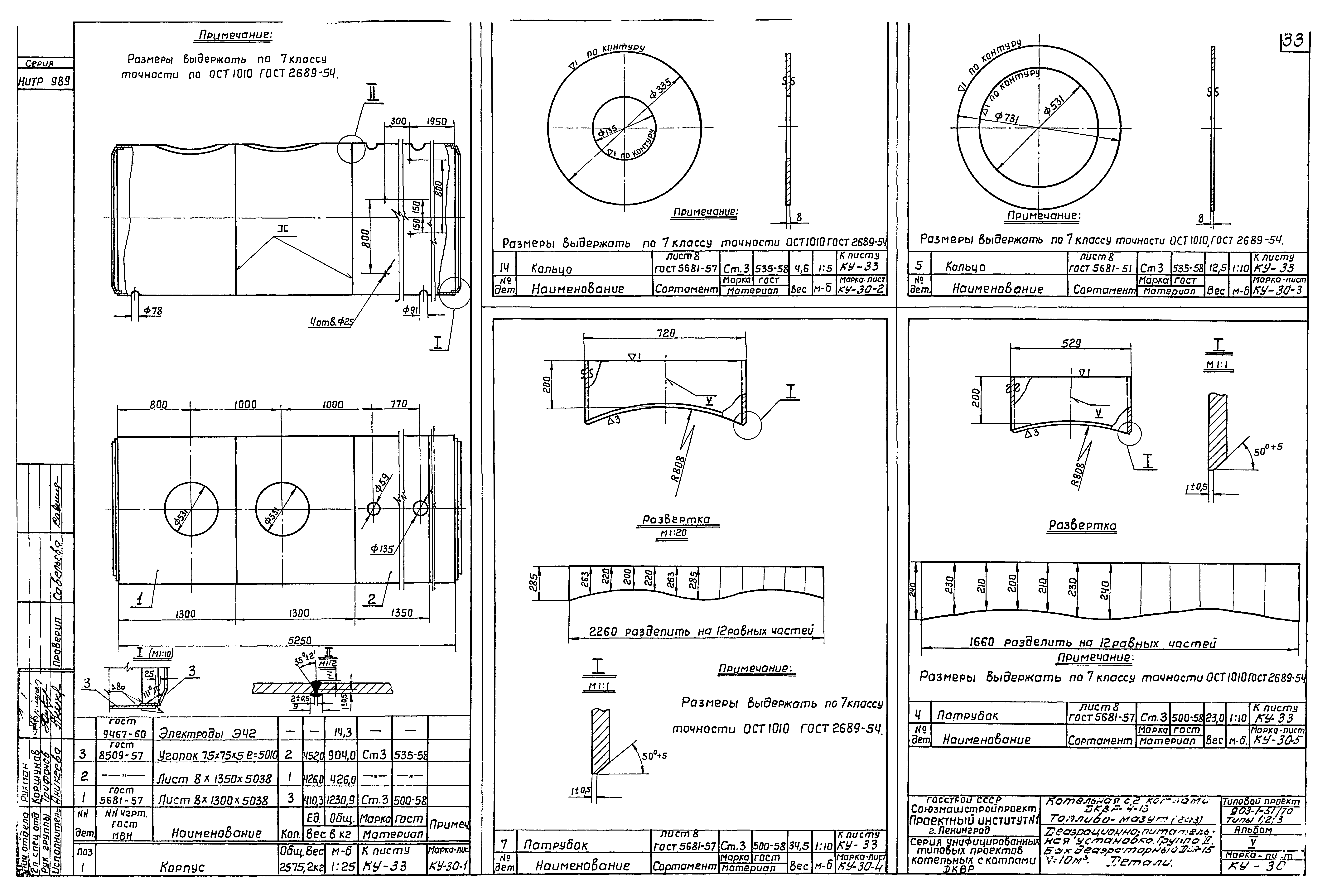
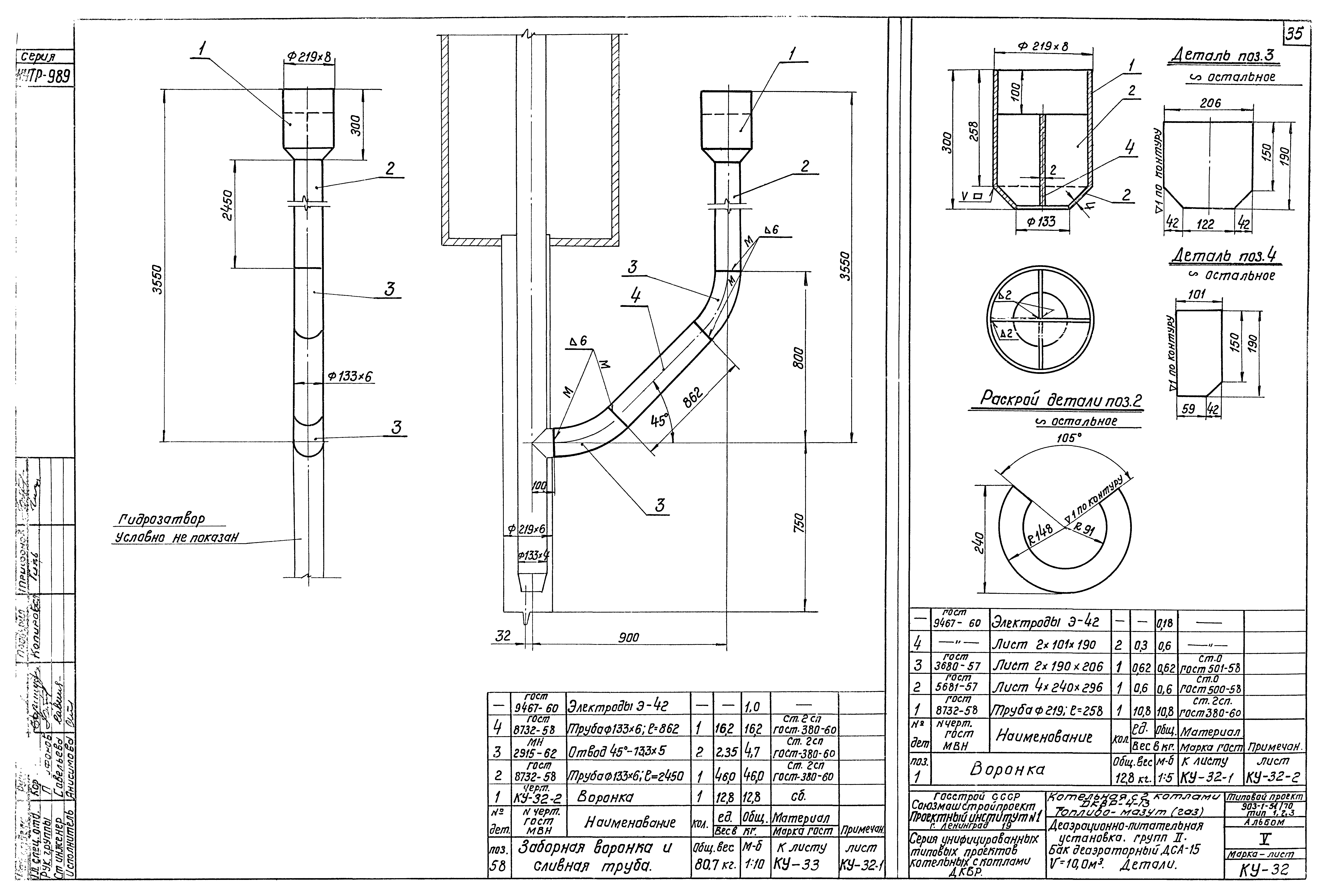
| Оглавление: | ТП 903-1-51/70;903-1-52/70 Содержание альбома. Перечень примененных стандартов и нормалей ТП 903-1-51/70;903-1-52/70 Деаэрационно-питательная установка. Пояснительная записка. Группа 2 ТП 903-1-51/70;903-1-52/70-КУ-1 Деаэрационно-питательная установка. Схема трубопроводов. Группа 2 ТП 903-1-51/70;903-1-52/70-КУ-2 Деаэрационно-питательная установка. Группа 2. План на отметке ±0.00. План на отметке +3.00;+4.95. Разрез В-В ТП 903-1-51/70;903-1-52/70-КУ-3 Деаэрационно-питательная установка. Группа 2. Разрезы А-А,Б-Б ТП 903-1-51/70;903-1-52/70-КУ-4 Деаэрационно-питательная установка. Группа 2. Перечень линий. Перечень опор ТП 903-1-51/70;903-1-52/70-КУ-5 Деаэрационно-питательная установка. Группа 2. Спецификация на трубопроводы и арматуру диаметром больше 40 мм ТП 903-1-51/70;903-1-52/70-КУ-6 Деаэрационно-питательная установка. Группа 2. Спецификация на трубопроводы и арматуру диаметром больше 40 мм ТП 903-1-51/70;903-1-52/70-КУ-7 Деаэрационно-питательная установка. Группа 2. Спецификация на трубопроводы и арматуру диаметром больше 40 мм ТП 903-1-51/70;903-1-52/70-КУ-8 Деаэрационно-питательная установка. Группа 2. Спецификация на трубопроводы и арматуру диаметром больше 40 мм ТП 903-1-51/70;903-1-52/70-КУ-9 Деаэрационно-питательная установка. Группа 2. Спецификация на трубопроводы и арматуру диаметром больше 40 мм ТП 903-1-51/70;903-1-52/70-КУ-10 Деаэрационно-питательная установка. Группа 2. Схема трубопроводов меньше 40 мм ТП 903-1-51/70;903-1-52/70-КУ-11 Деаэрационно-питательная установка. Группа 2. Спецификация на трубопроводы и арматуру диаметром меньше 40 мм ТП 903-1-51/70;903-1-52/70-КУ-12 Деаэрационно-питательная установка. Группа 2. Спецификация на трубопроводы и арматуру диаметром меньше 40 мм ТП 903-1-51/70;903-1-52/70-КУ-13 Деаэрационно-питательная установка. Группа 2. Сводная спецификация на материалы трубопроводов и арматуру ТП 903-1-51/70;903-1-52/70-КУ-14 Деаэрационно-питательная установка. Группа 2. Сводная спецификация на крепежные изделия, прокладки и опоры трубопроводов ТП 903-1-51/70;903-1-52/70-КУ-15 Деаэрационно-питательная установка. Группа 2. Гидрозатвор к деаэратору. Детали ТП 903-1-51/70;903-1-52/70-КУ-16 Деаэрационно-питательная установка. Группа 2. Гидрозатвор к деаэратору. Детали ТП 903-1-51/70;903-1-52/70-КУ-17 Деаэрационно-питательная установка. Группа 2. Гидрозатвор к деаэратору. Детали ТП 903-1-51/70;903-1-52/70-КУ-18 Деаэрационно-питательная установка. Группа 2. Гидрозатвор к деаэратору. Детали ТП 903-1-51/70;903-1-52/70-КУ-19 Деаэрационно-питательная установка. Группа 2. Лестница и площадка обслуживания деаэратора ТП 903-1-51/70;903-1-52/70-КУ-20 Деаэрационно-питательная установка. Группа 2. Детали ТП 903-1-51/70;903-1-52/70-КУ-21 Деаэрационно-питательная установка. Группа 2. Помосты ТП 903-1-51/70;903-1-52/70-КУ-22 Деаэрационно-питательная установка. Группа 2. Установка парового питательного насоса ПДВ16/20 ТП 903-1-51/70;903-1-52/70-КУ-23 Деаэрационно-питательная установка. Группа 2. Опоры и подвески ТП 903-1-51/70;903-1-52/70-КУ-24 Деаэрационно-питательная установка. Группа 2. Узлы крепления опор и подвесок ТП 903-1-51/70;903-1-52/70-КУ-25 Деаэрационно-питательная установка. Группа 2. Крепление гидрозатвора ТП 903-1-51/70;903-1-52/70-КУ-26 Пояснительная записка по тепловой изоляции трубопроводов и оборудования ТП 903-1-51/70;903-1-52/70-КУ-27 Техномонтажная ведомость на изоляцию оборудования и арматуры ТП 903-1-51/70;903-1-52/70-КУ-28 Техномонтажная ведомость на изоляцию оборудования и арматуры ТП 903-1-51/70;903-1-52/70-КУ-29 Деаэрационно-питательная установка. Группа 2. Бак деаэрационный ДСА-15, V=10 м³. Общий вид ТП 903-1-51/70;903-1-52/70-КУ-30 Деаэрационно-питательная установка. Детали ТП 903-1-51/70;903-1-52/70-КУ-31 Деаэрационно-питательная установка. Детали ТП 903-1-51/70;903-1-52/70-КУ-32 Деаэрационно-питательная установка. Детали ТП 903-1-51/70;903-1-52/70-КУ-33 Деаэрационно-питательная установка. Спецификация, узлы, экспликация оборудования. План расположения |
| Разработан: | Проектный институт № 1 Госстроя СССР |
| Утверждён: | 31.07.1970 Госстрой СССР (Государственный комитет Совета Министров СССР по делам строительства) (USSR Gosstroy 255) |
| Издан: | ЦИТП Госстроя СССР (CITP, Gosstroy (USSR) 1974 г. ) |




































