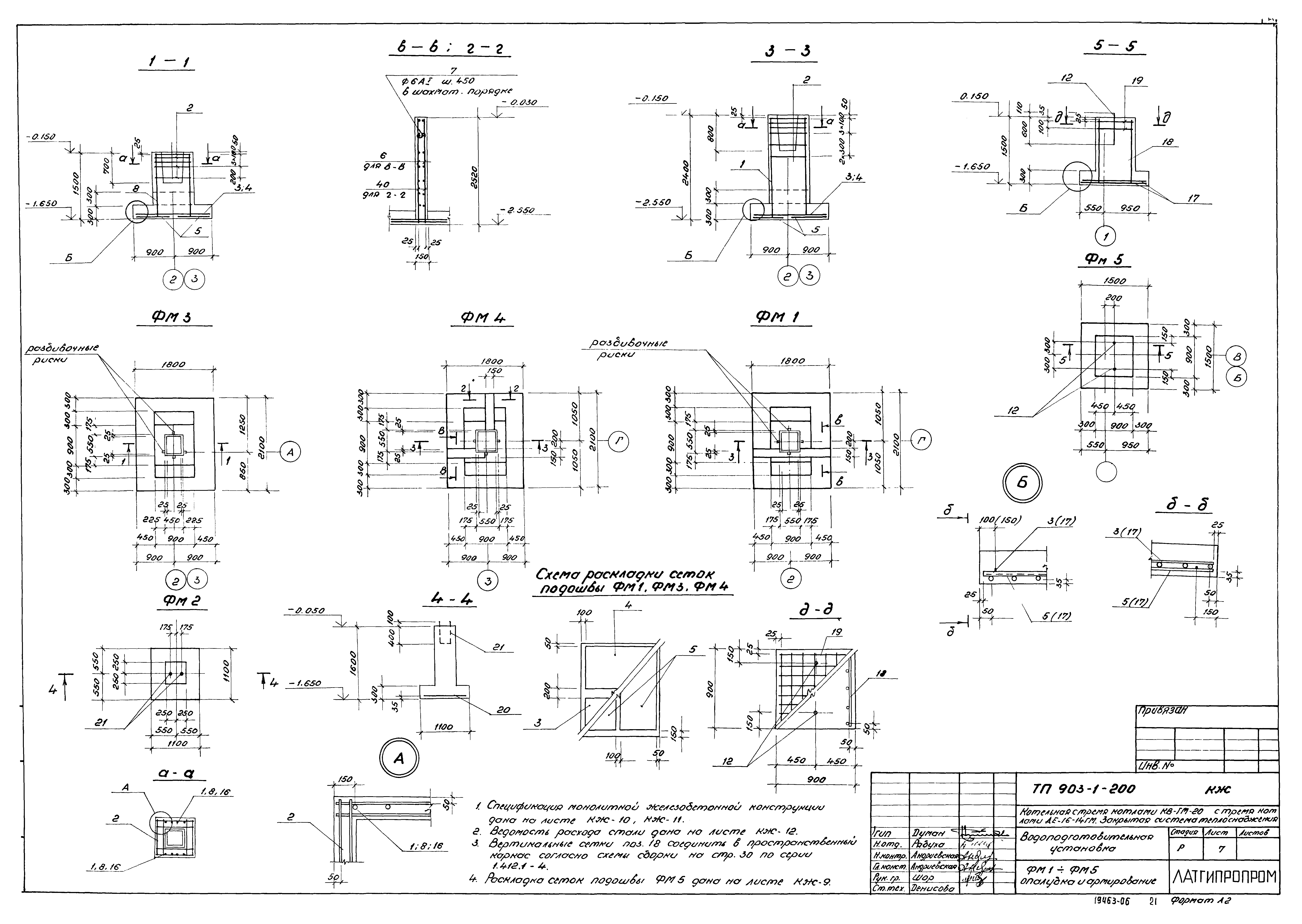
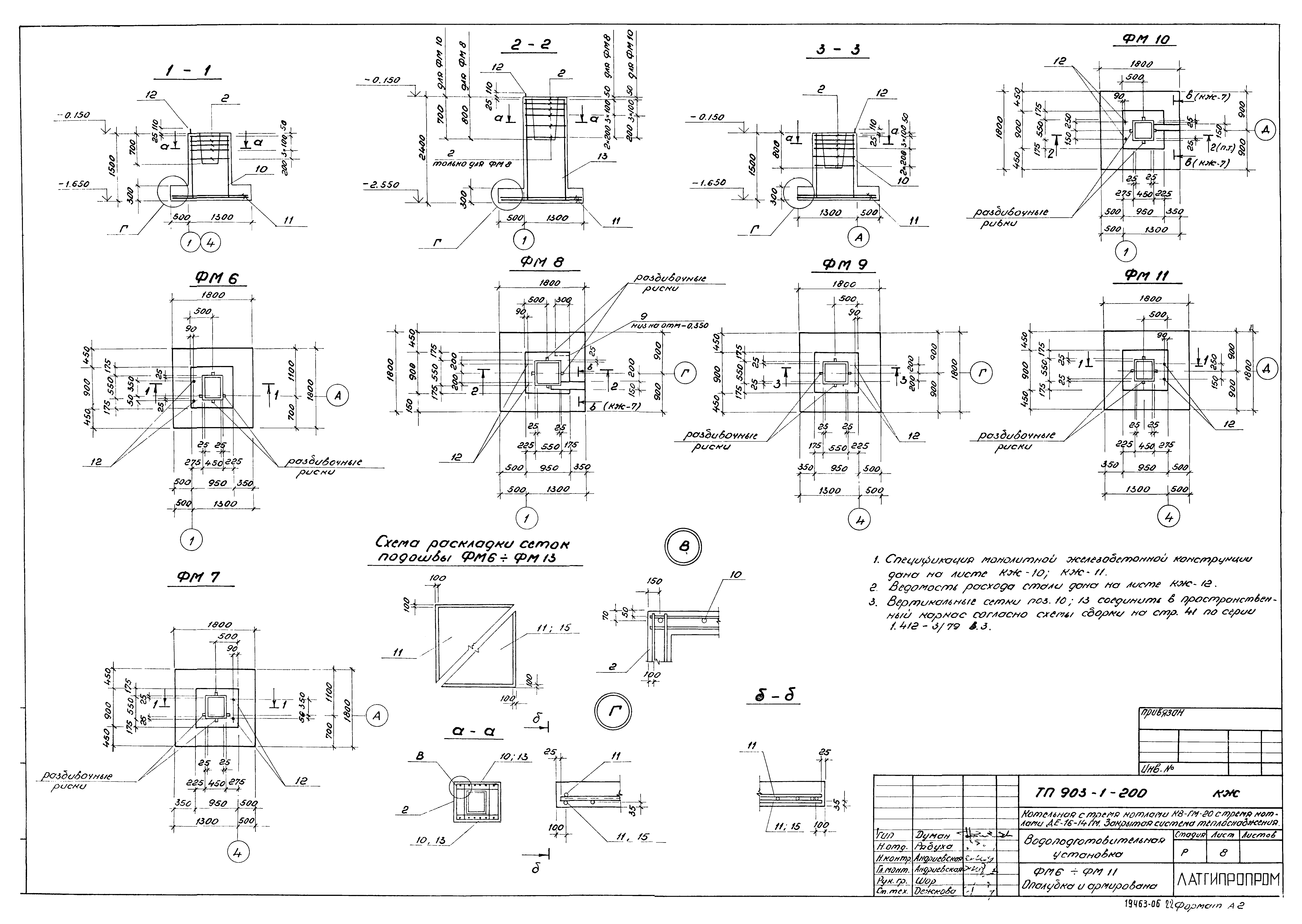
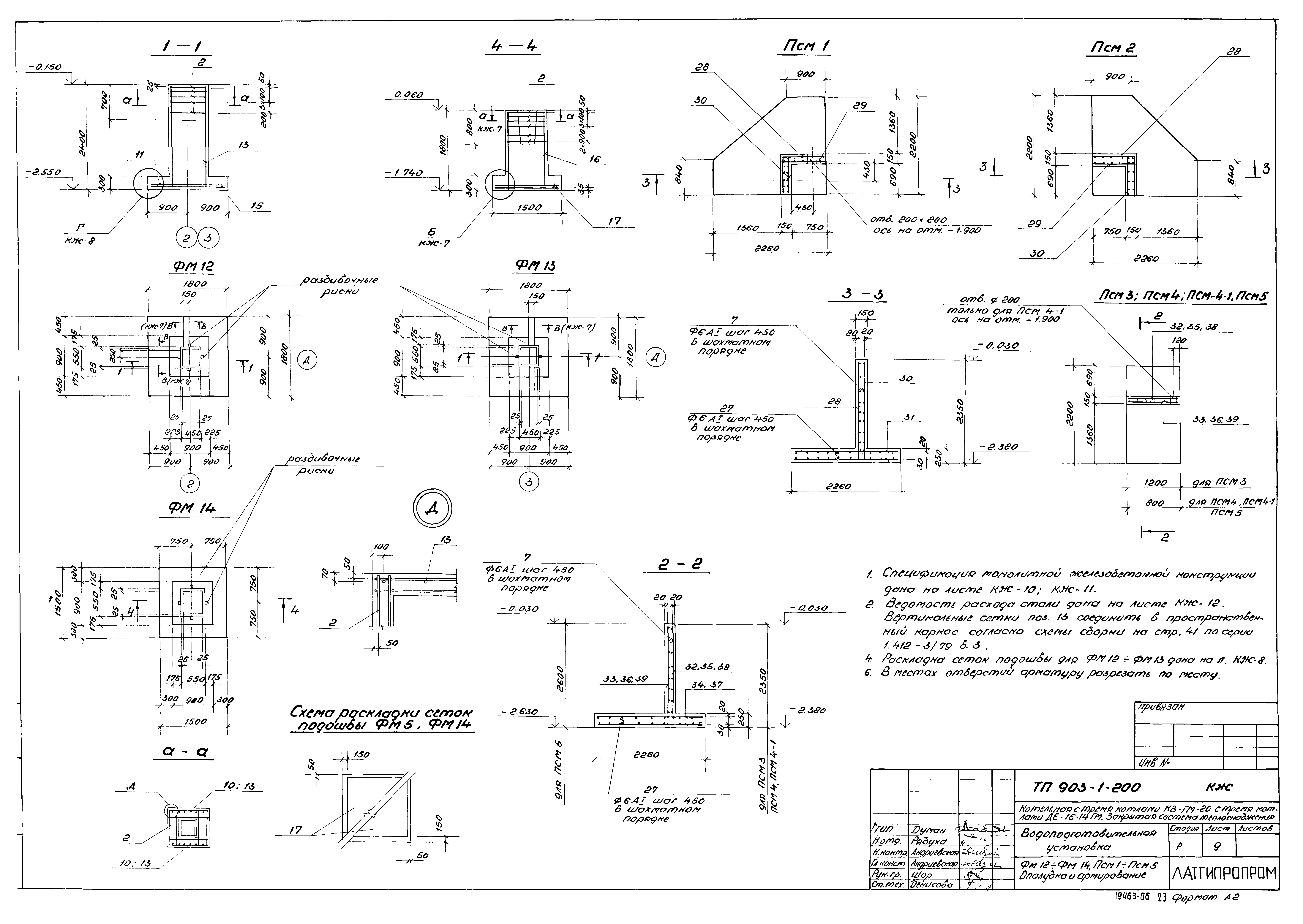
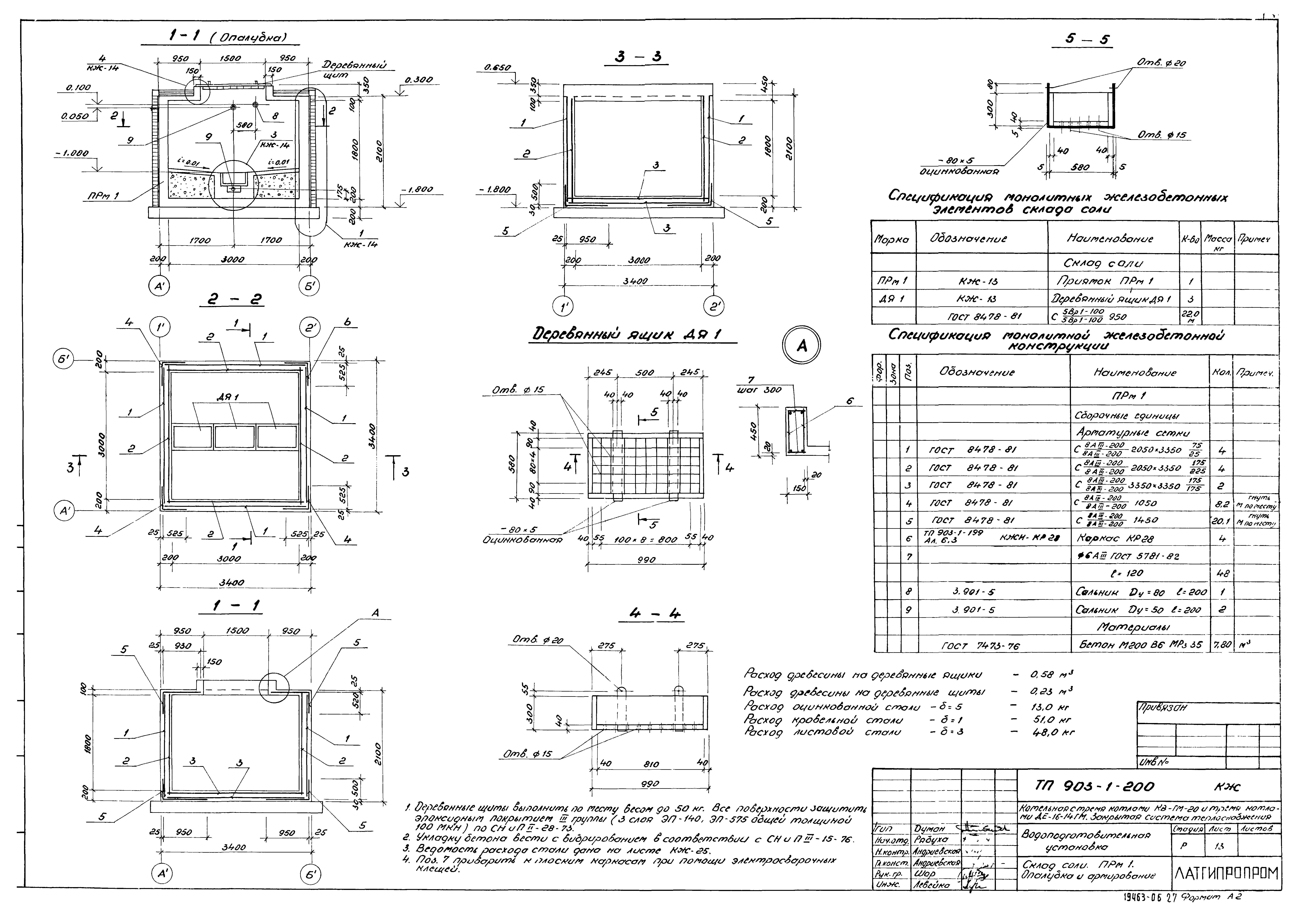
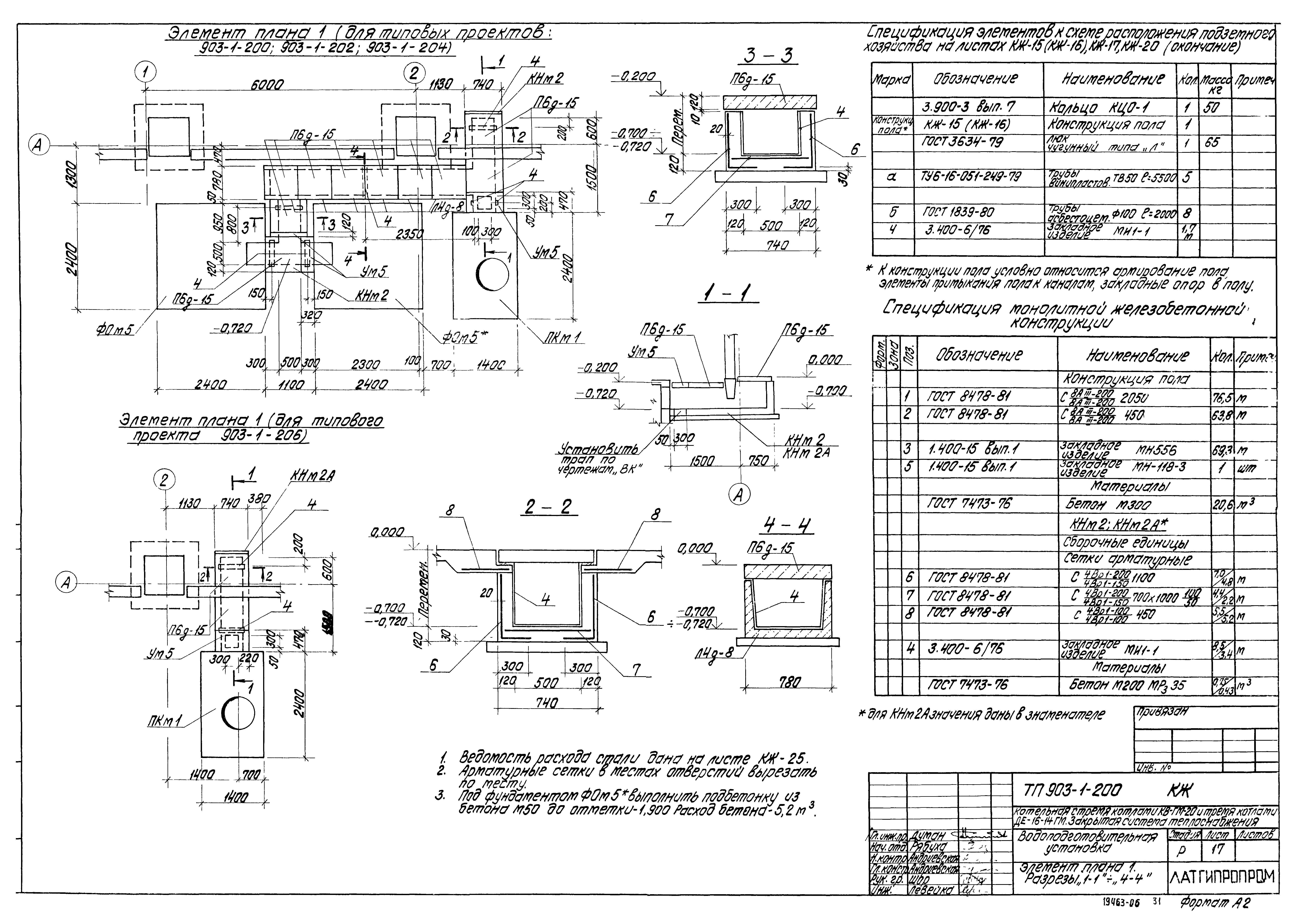
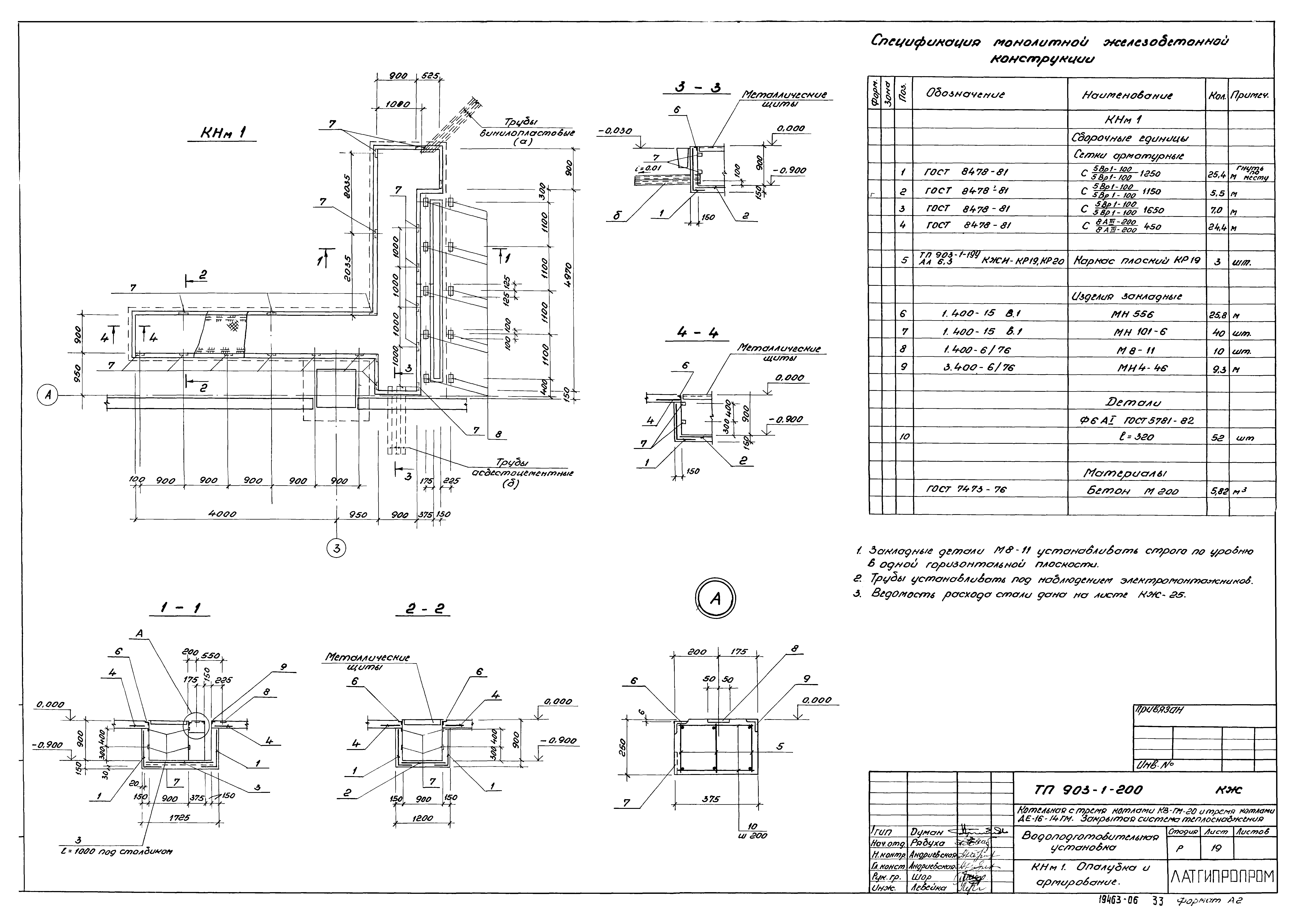
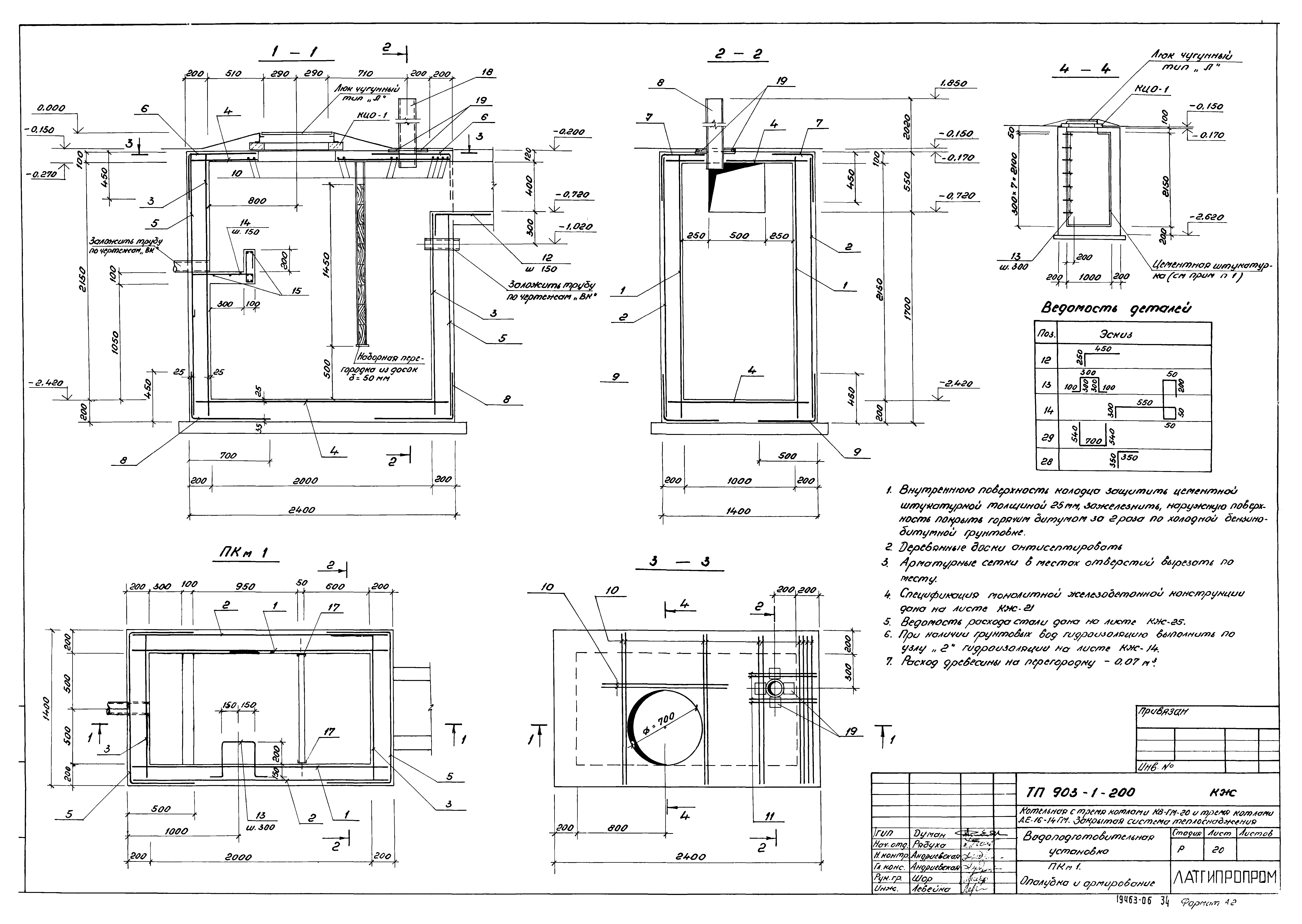
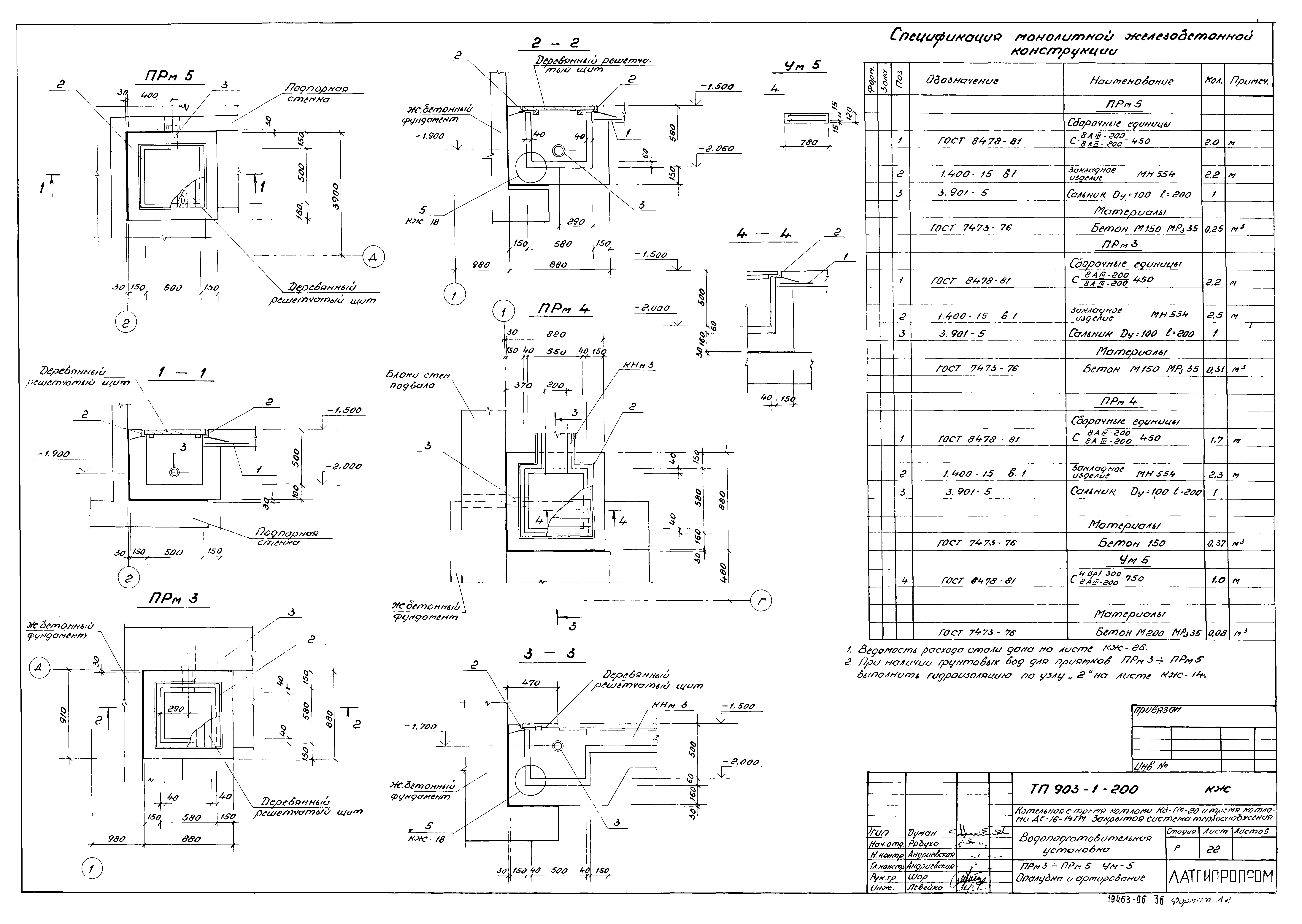
Скачать Типовой проект 903-1-206 Альбом 6.2. Водоподготовительная установка. Архитектурно-строительная часть. Общие чертежи (из ТП 903-1-200)Дата актуализации: 01.01.2021 Типовой проект 903-1-206
Альбом 6.2. Водоподготовительная установка. Архитектурно-строительная часть. Общие чертежи (из ТП 903-1-200)| Обозначение: | Типовой проект 903-1-206 | | Обозначение англ: | 903-1-206 | | Статус: | действует | | Название рус.: | Альбом 6.2. Водоподготовительная установка. Архитектурно-строительная часть. Общие чертежи (из ТП 903-1-200) | | Дата добавления в базу: | 01.09.2013 | | Дата актуализации: | 01.01.2021 | | Дата введения: | 01.07.1984 | | Разработан: | Латгипропром
| | Утверждён: | 10.11.1983 Главпромстройпроект Госстроя СССР (41)
|
                                                       
|