Скачать Типовой проект 2БКТП-1000 Альбом 3. Блокировка 2. Архитектурно-строительные решенияДата актуализации: 01.01.2021
|
| Обозначение: | Типовой проект 2БКТП-1000 |
| Обозначение англ: | 2БКТП-1000 |
| Статус: | не определен законодательством |
| Название рус.: | Альбом 3. Блокировка 2. Архитектурно-строительные решения |
| Дата добавления в базу: | 01.09.2013 |
| Дата актуализации: | 01.01.2021 |
| Дата введения: | 12.12.2007 |
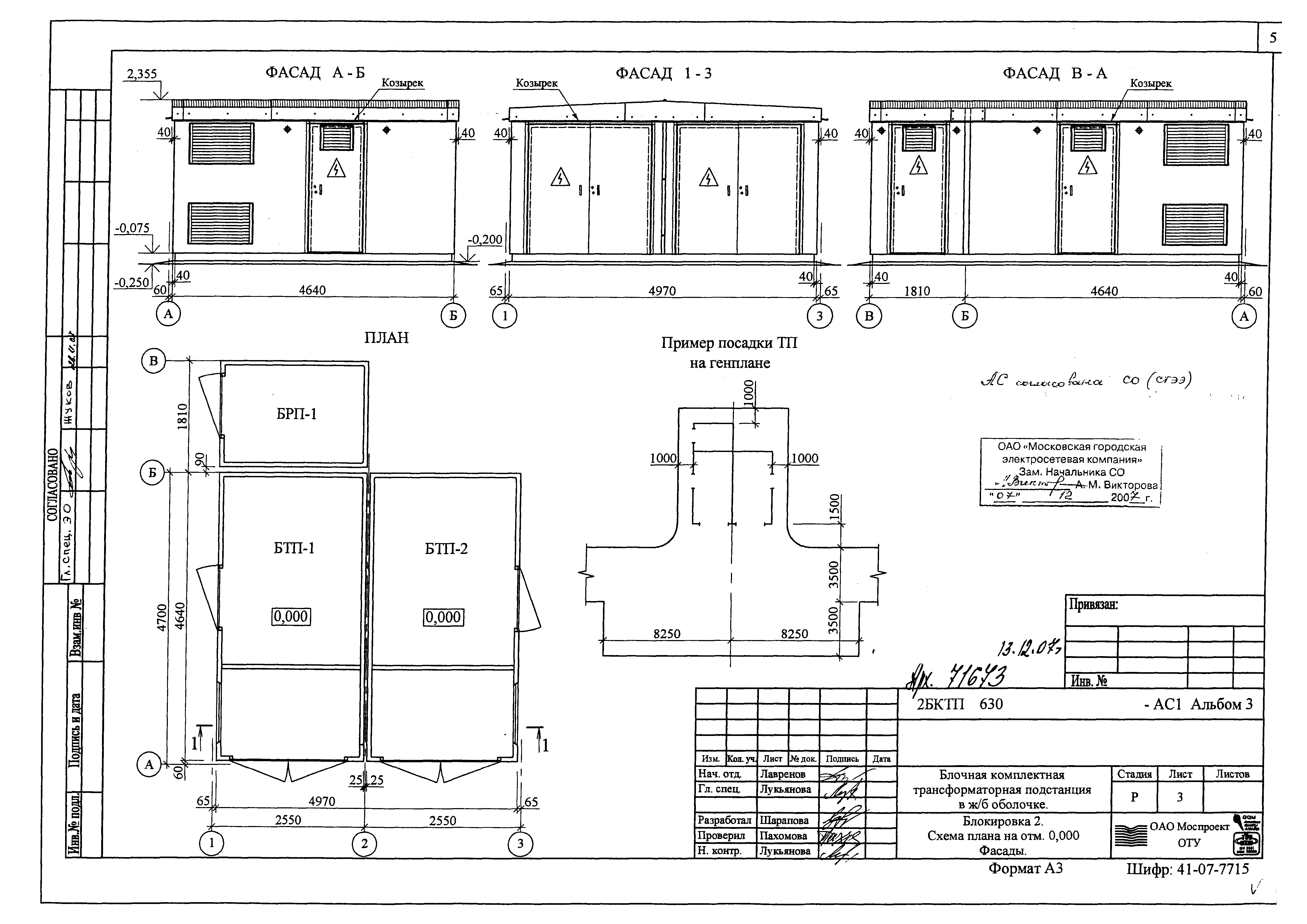
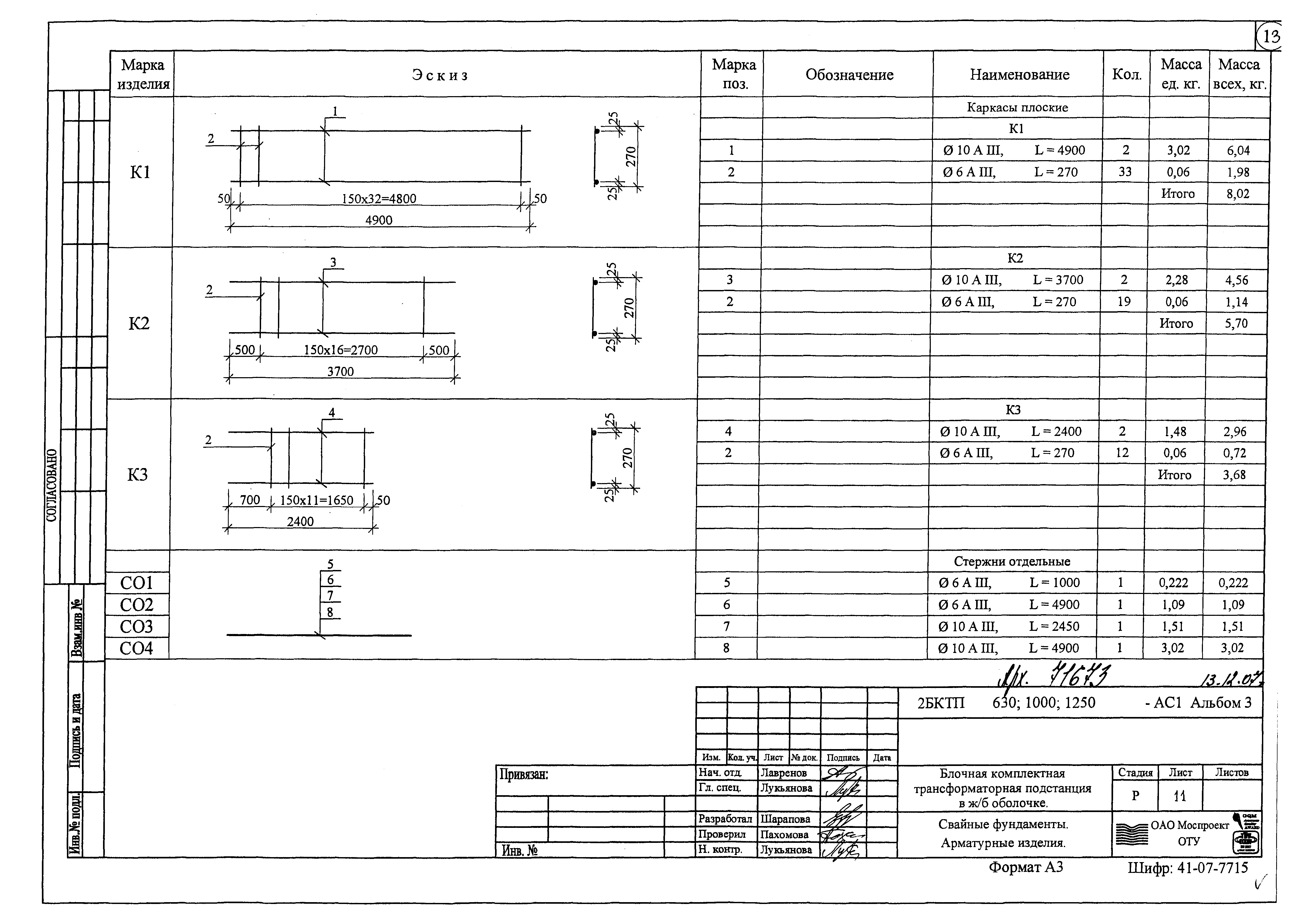
| Оглавление: | 2БКТП 630;1000;1250-АС1-1 Общие данные (начало). Спецификация изделий. 2БКТП 630;1000;1250-АС1-2 Общие данные (окончание). 2БКТП 630;1000;1250-АС1-3 2БКТП 630. Схема плана на отм. 0,000. Фасады. 2БКТП 630;1000;1250-АС1-4 2БКТП 1000. Схема плана на отм. 0,000. Фасады. 2БКТП 630;1000;1250-АС1-5 2БКТП 1250. Схема плана на отм. 0,000. Фасады. 2БКТП 630;1000;1250-АС1-6 План на отм. -1,145. Сечения. 2БКТП 630;1000;1250-АС1-7 Разрез 1-1. 2БКТП 630;1000;1250-АС1-8 Естественное основание. Плита монолитная. 2БКТП 630;1000;1250-АС1-9 Свайные фундаменты. Схема расположения свай. Опалубка, армирование. 2БКТП 630;1000;1250-АС1-10 Свайные фундаменты. Разрезы, сечения. 2БКТП 630;1000;1250-АС1-11 Свайные фундаменты. Арматурные изделия. |
| Разработан: | ОАО Моспроект |
| Утверждён: | 12.12.2007 ОАО Моспроект (Mosproject OAO 1105) |












