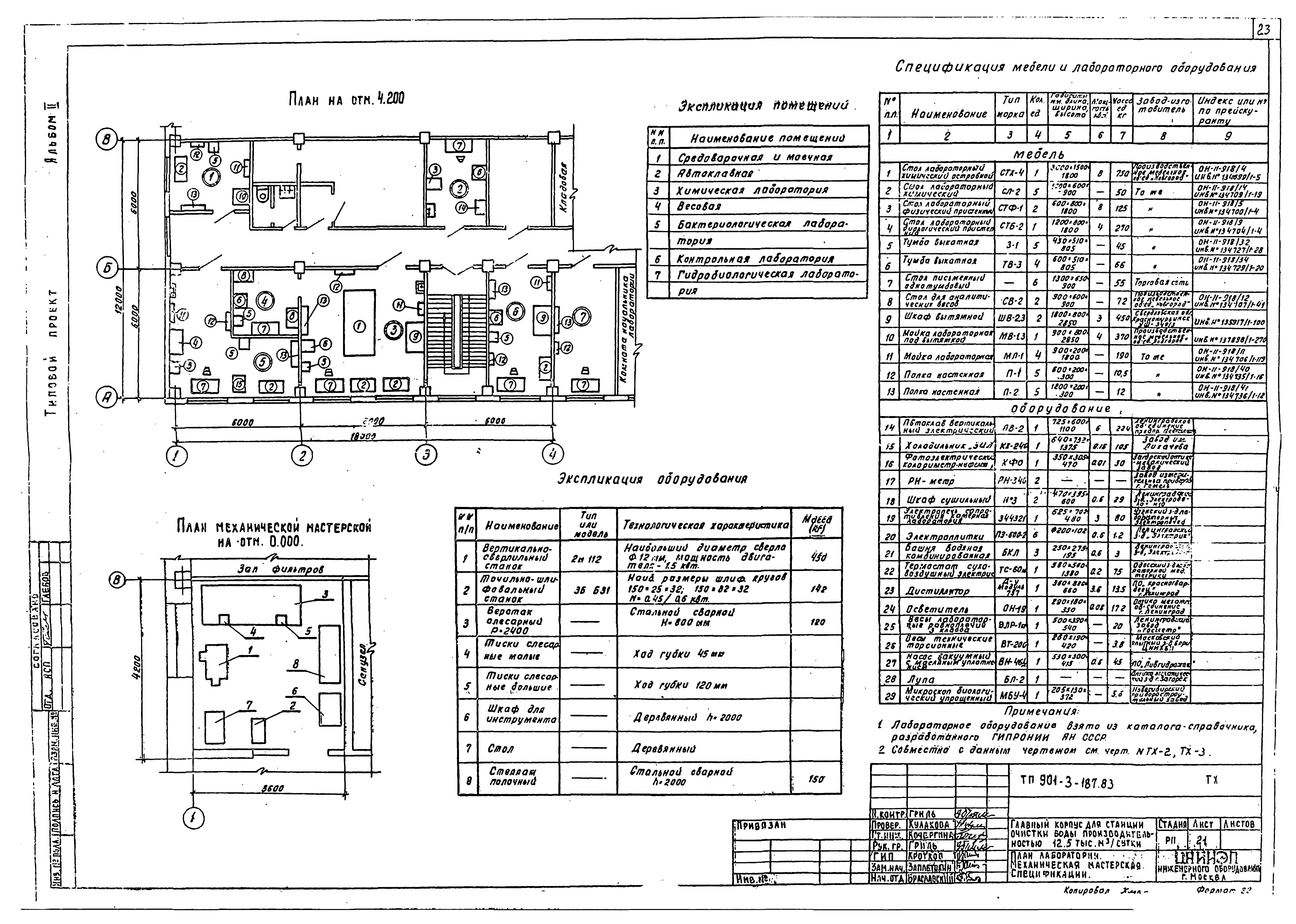
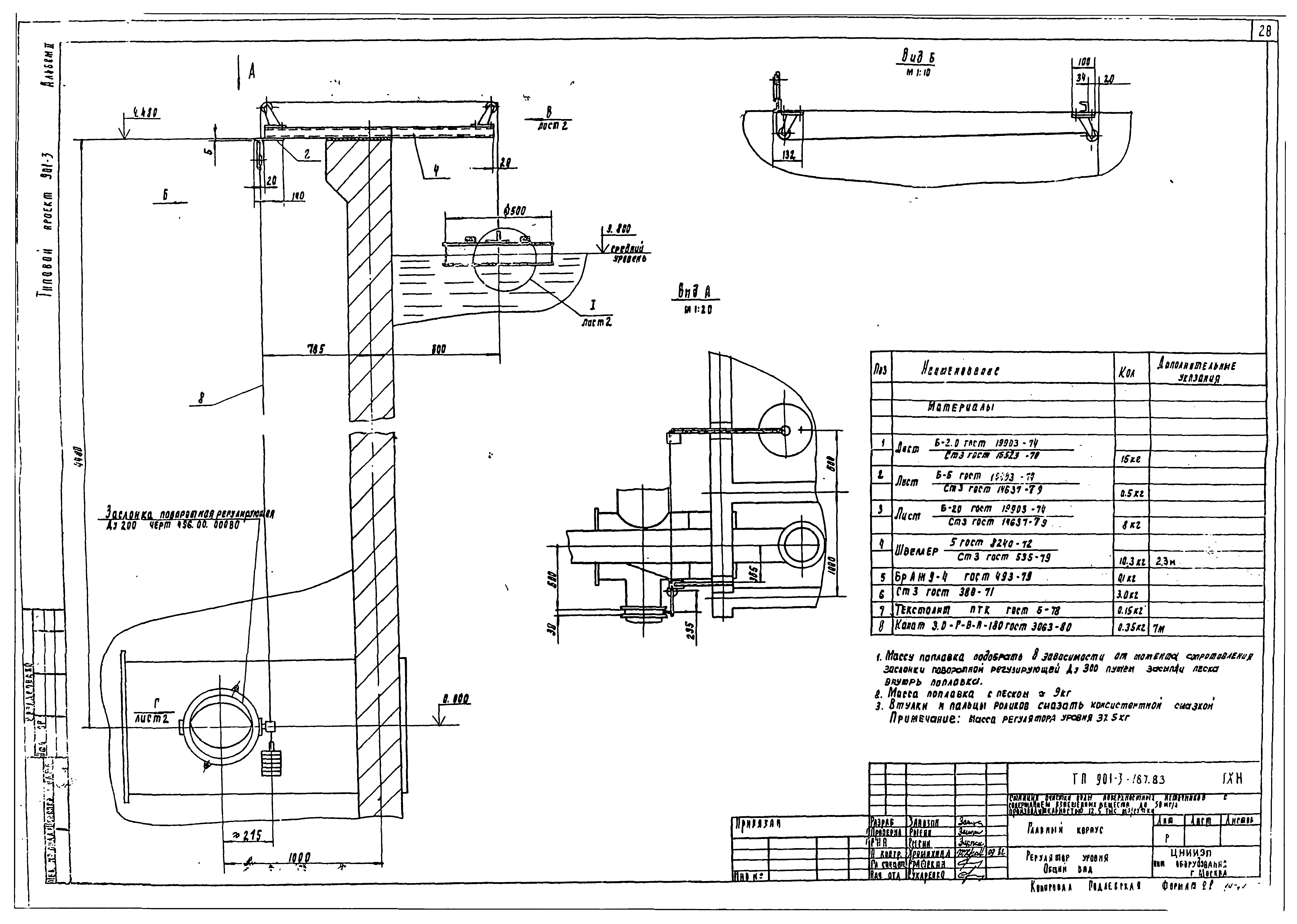
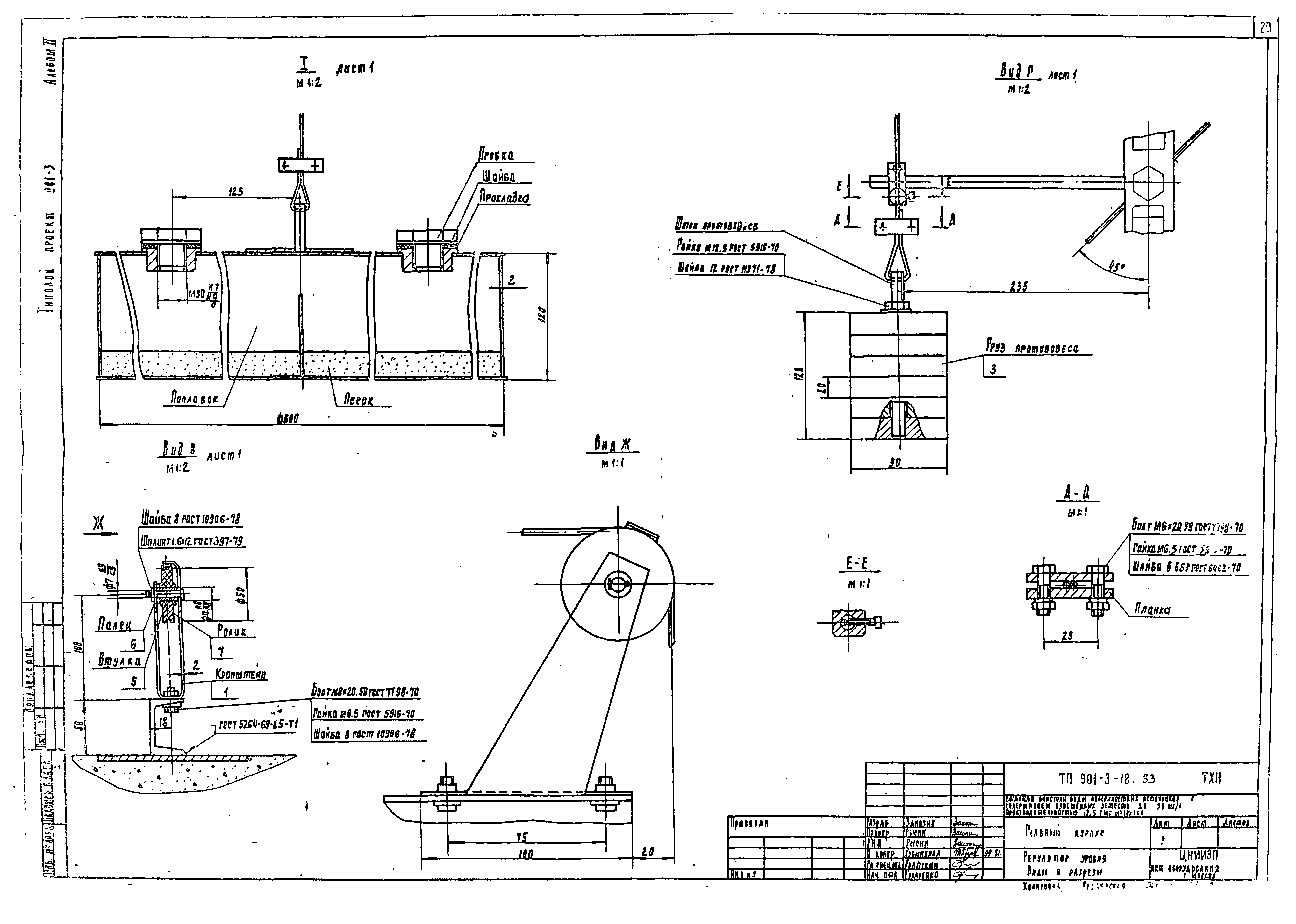
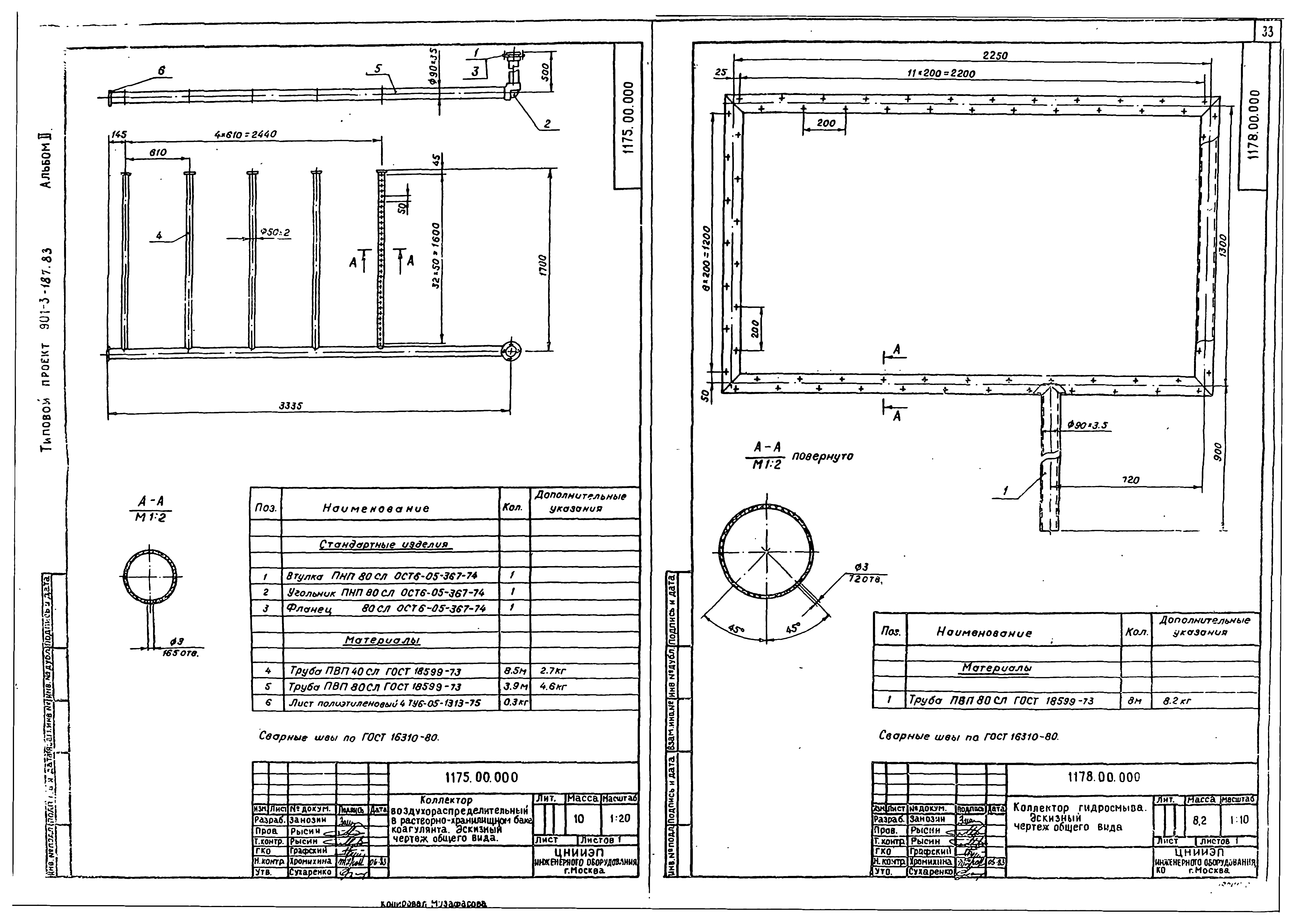
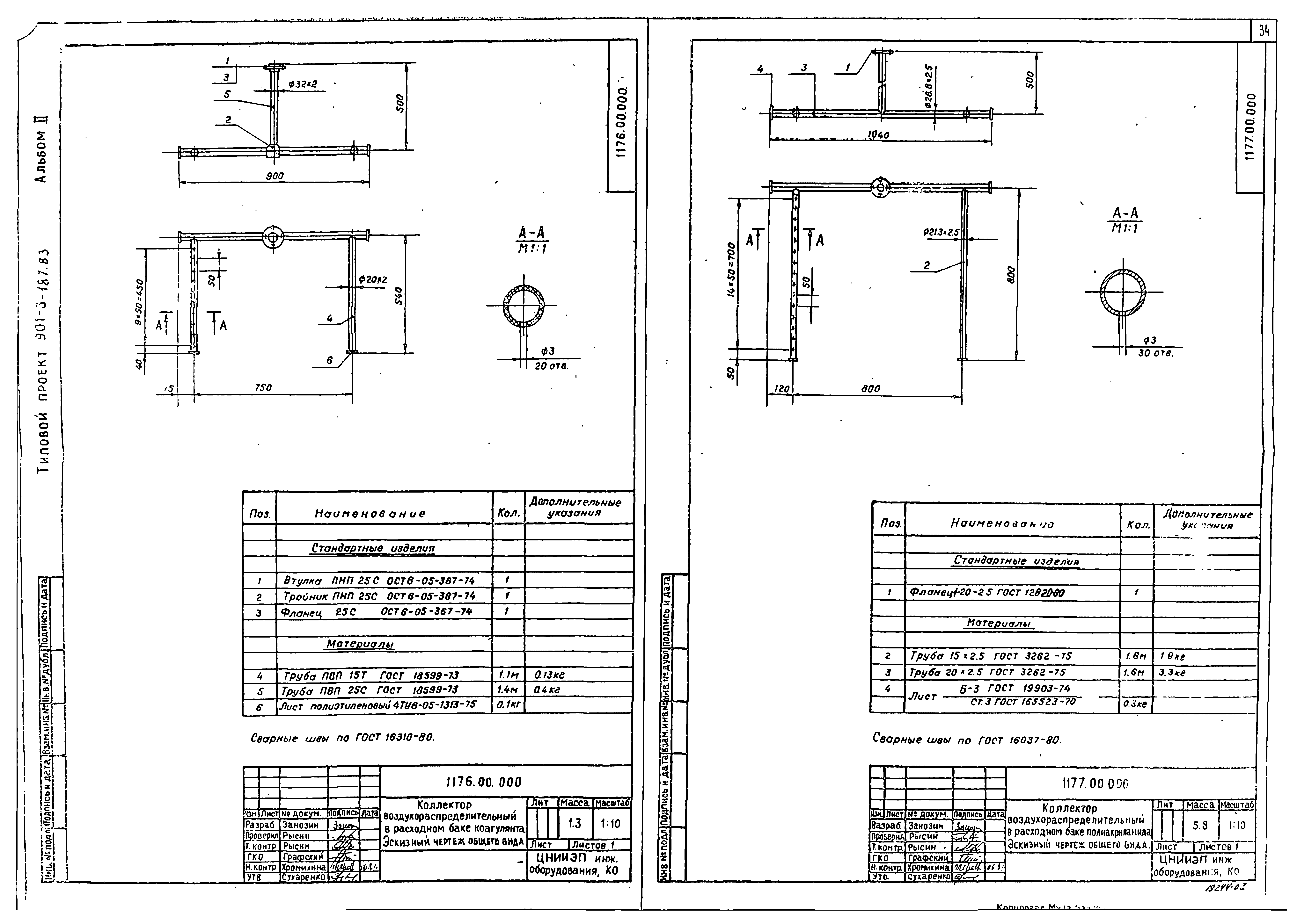
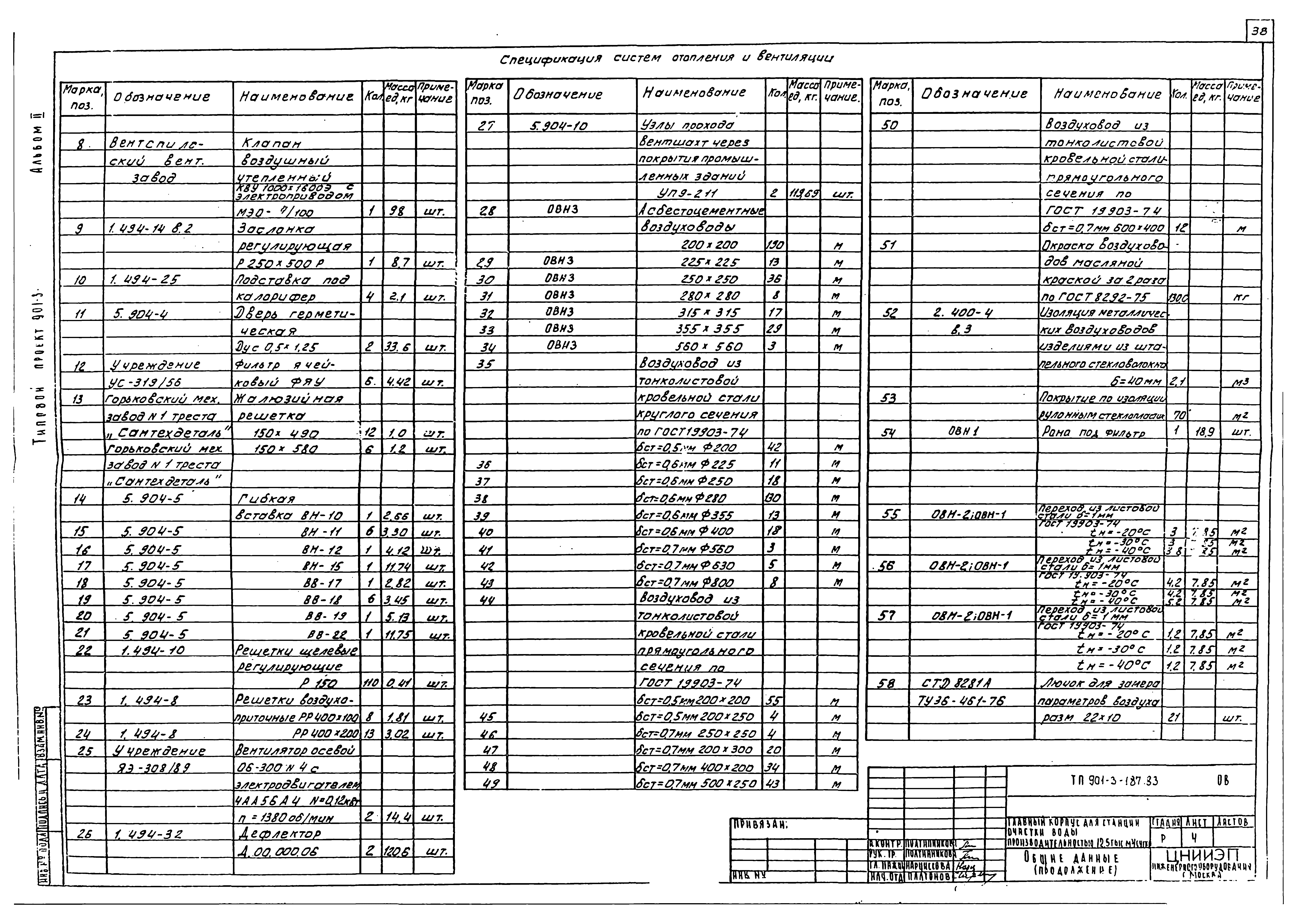
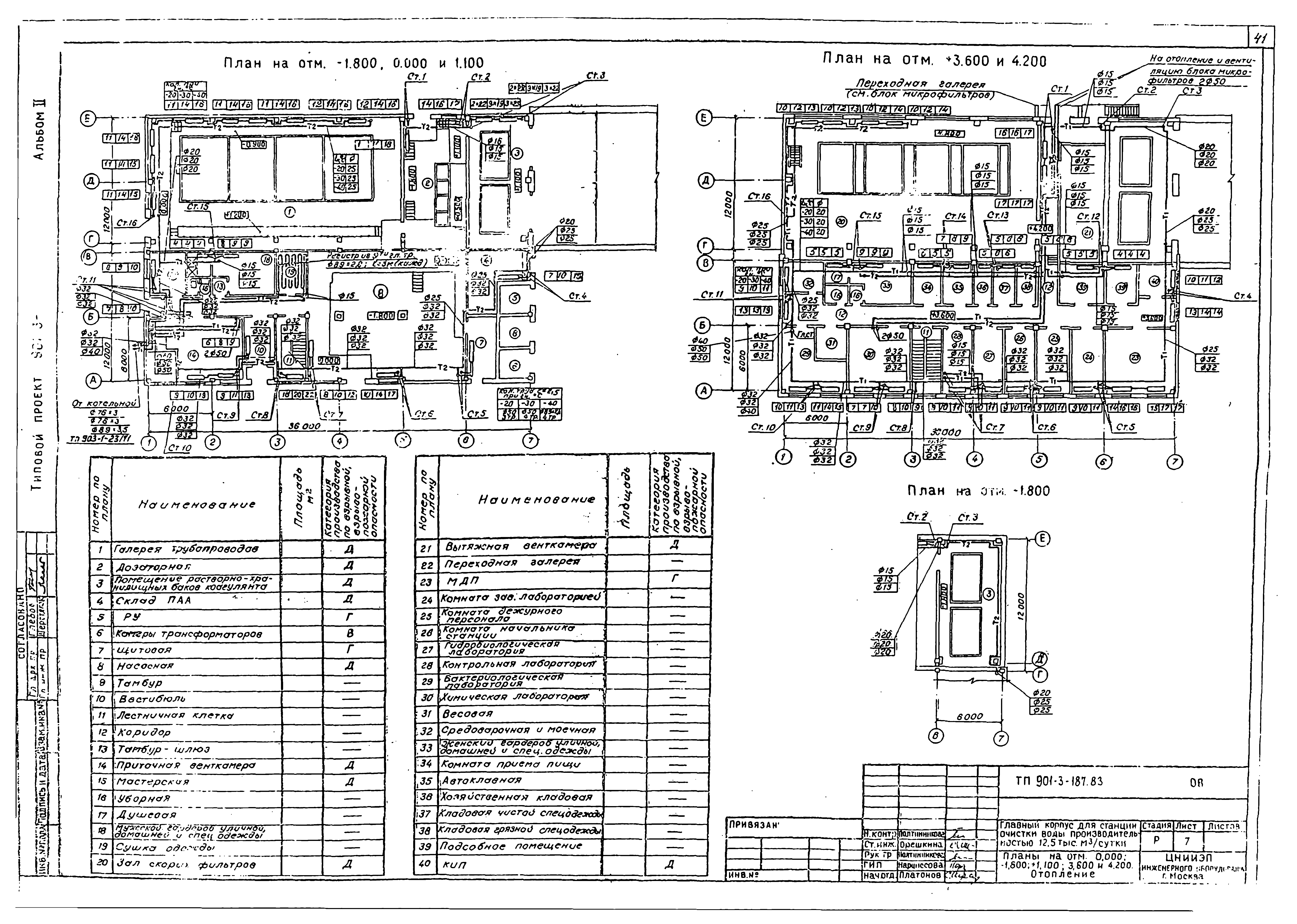
Скачать Типовой проект 901-3-187.83 Альбом II. Технологическая, санитарно-техническая части и нестандартизированное оборудованиеДата актуализации: 01.01.2021 Типовой проект 901-3-187.83
Альбом II. Технологическая, санитарно-техническая части и нестандартизированное оборудование| Обозначение: | Типовой проект 901-3-187.83 | | Обозначение англ: | 901-3-187.83 | | Статус: | не определен законодательством | | Название рус.: | Альбом II. Технологическая, санитарно-техническая части и нестандартизированное оборудование | | Дата добавления в базу: | 01.09.2013 | | Дата актуализации: | 01.01.2021 | | Дата введения: | 23.06.1983 | | Дата окончания срока действия: | 30.06.2003 | | Разработан: | ЦНИИЭП
| | Утверждён: | 23.11.1982 Госгражданстрой (Gosgrazhdanstroy 313)
|
                                                
|