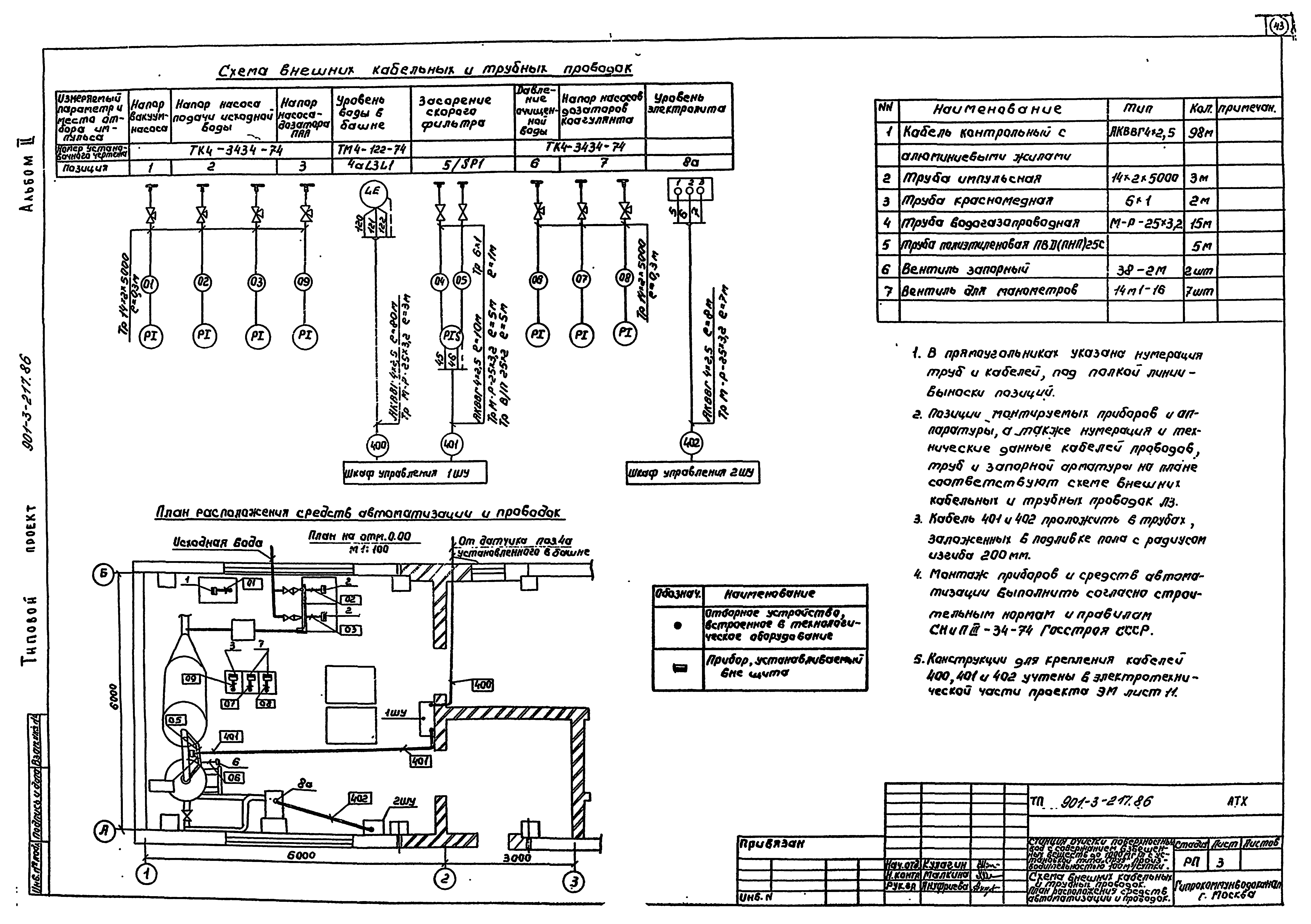
Скачать Типовой проект 901-3-217.86 Альбом II. Архитектурно-строительные, технологические, санитарно-технические, электротехнические решенияДата актуализации: 01.01.2021 Типовой проект 901-3-217.86
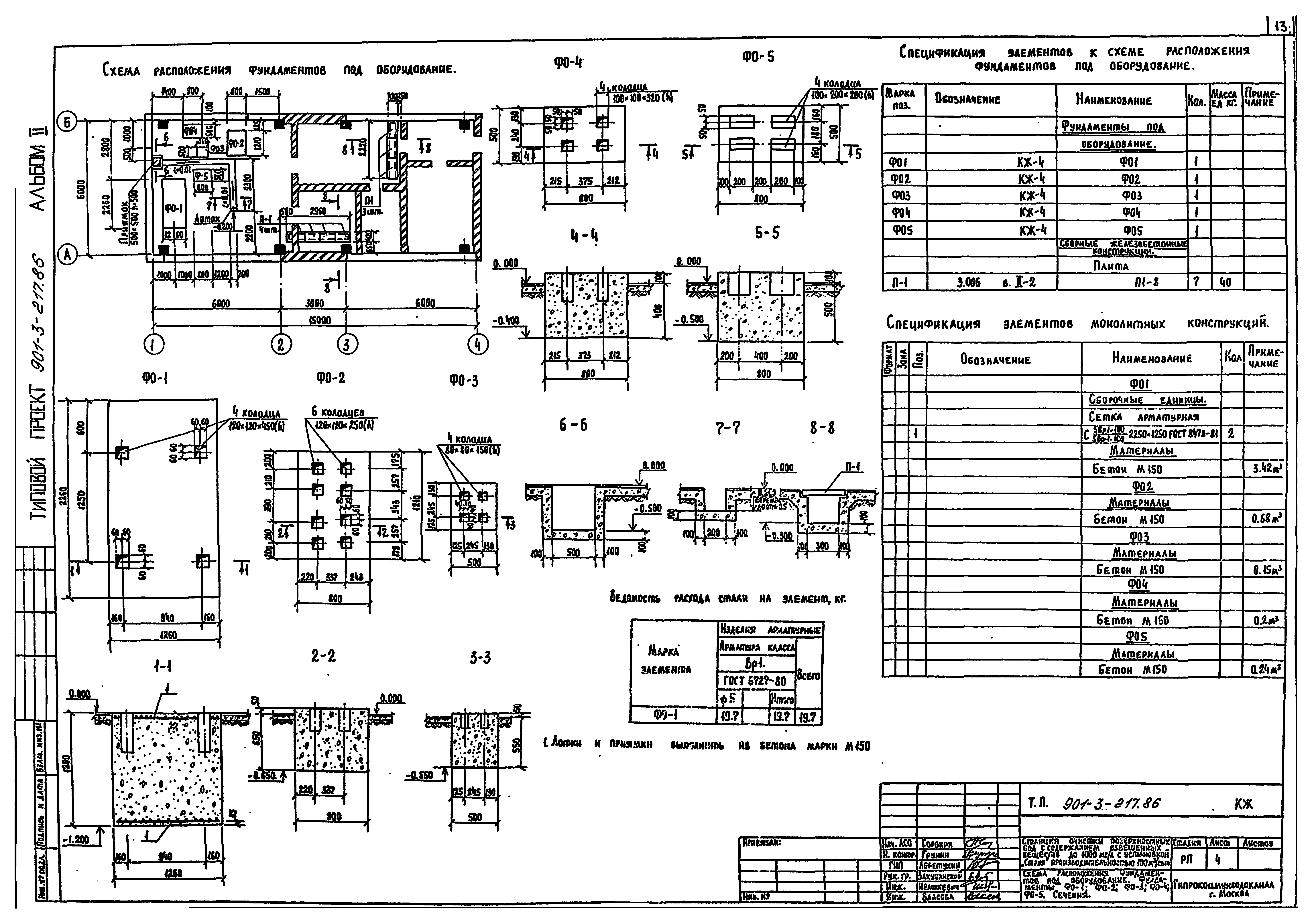
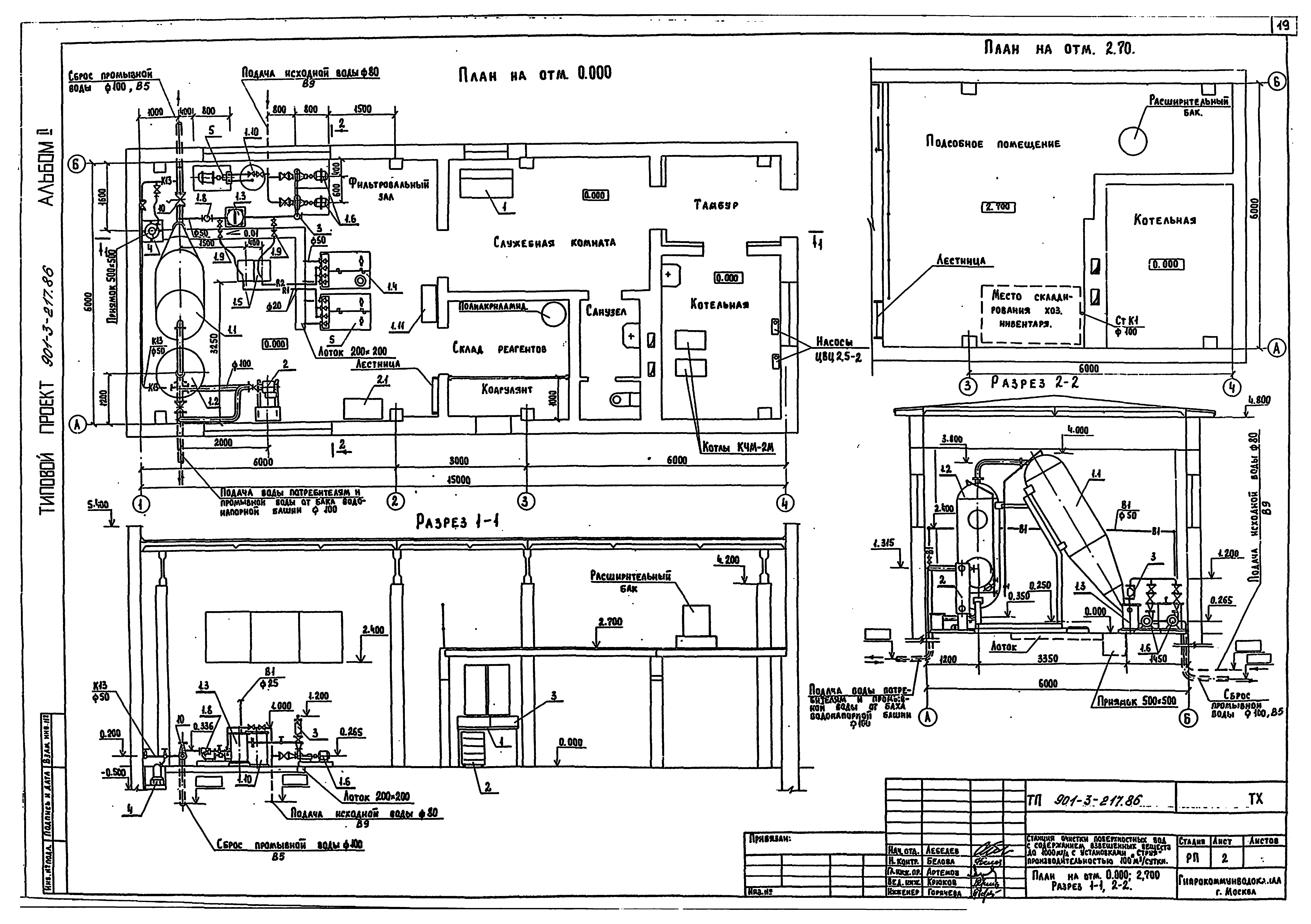
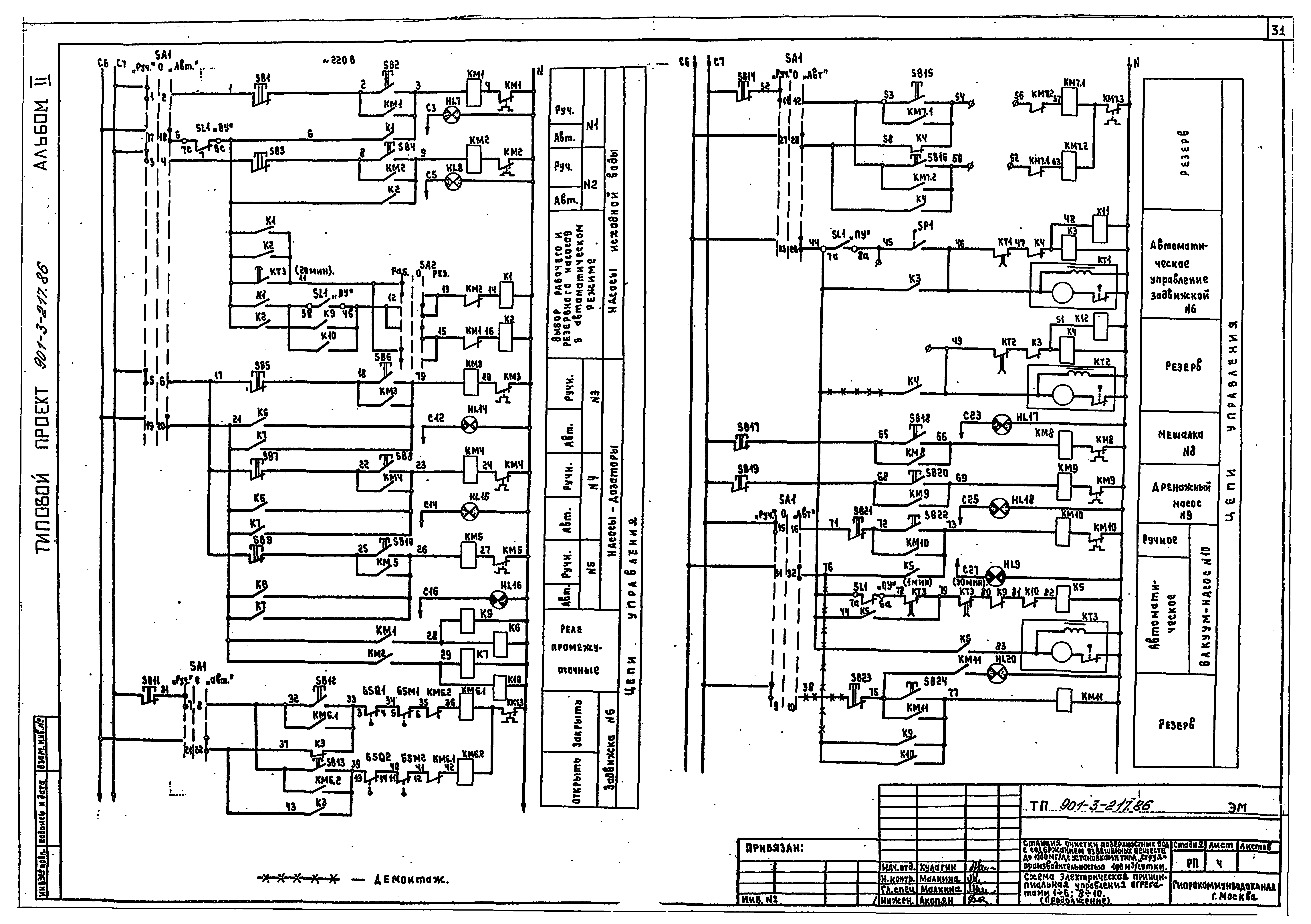
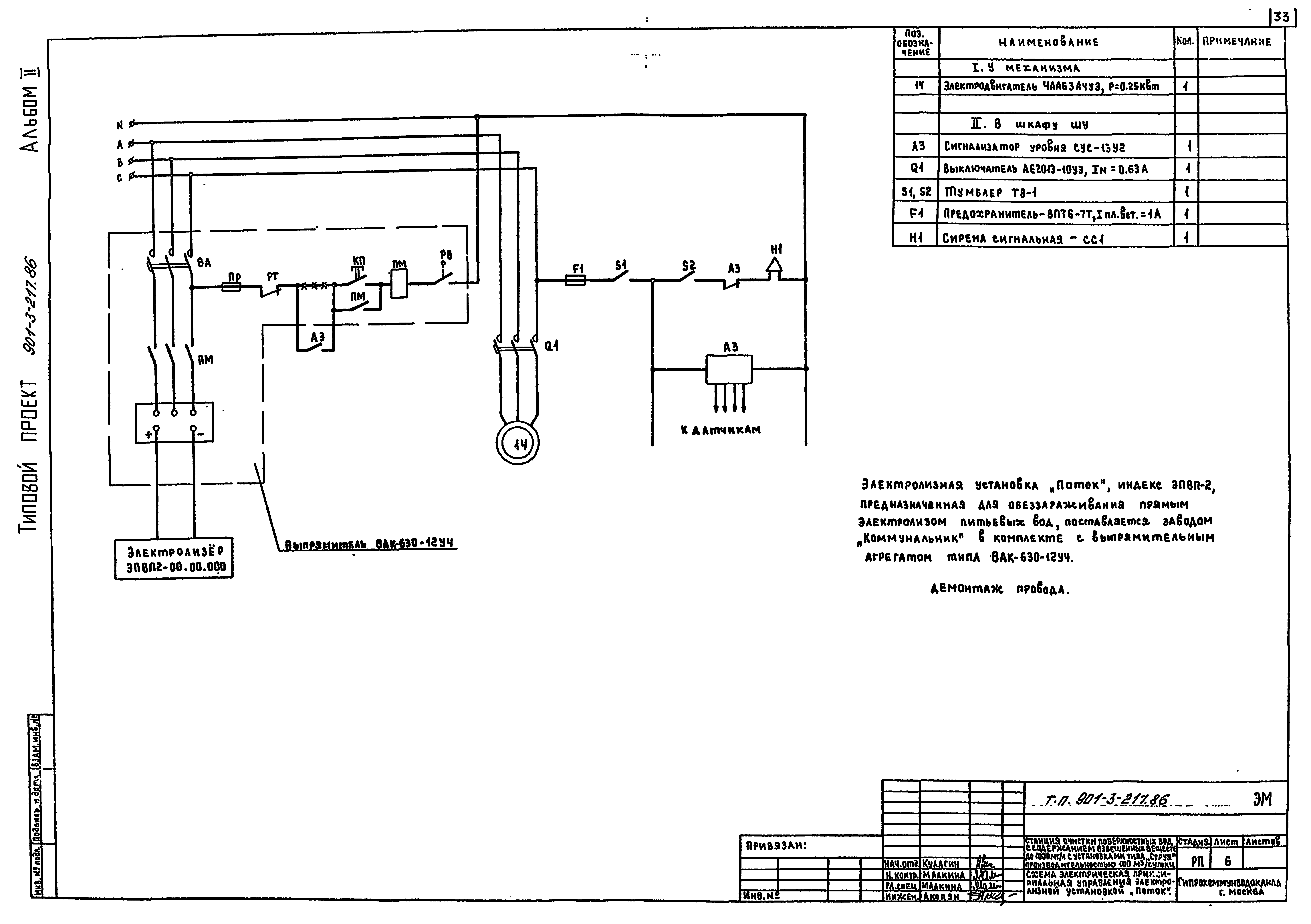
Альбом II. Архитектурно-строительные, технологические, санитарно-технические, электротехнические решения| Обозначение: | Типовой проект 901-3-217.86 | | Обозначение англ: | 901-3-217.86 | | Статус: | не определен законодательством | | Название рус.: | Альбом II. Архитектурно-строительные, технологические, санитарно-технические, электротехнические решения | | Дата добавления в базу: | 01.09.2013 | | Дата актуализации: | 01.01.2021 | | Дата введения: | 04.12.1984 | | Дата окончания срока действия: | 30.06.2003 | | Разработан: | Гипрокоммунводоканал Минжилкомхоза РСФСР
| | Утверждён: | 22.11.1984 МЖКХ РСФСР (19-ТД)
| | Заменяет собой: | |
                                          
|