Скачать Типовой проект 901-3-217.86 Альбом IV. Нестандартизированное оборудование (из ТП 901-3-199.85)Дата актуализации: 01.01.2021
|
| Обозначение: | Типовой проект 901-3-217.86 |
| Обозначение англ: | 901-3-217.86 |
| Статус: | не определен законодательством |
| Название рус.: | Альбом IV. Нестандартизированное оборудование (из ТП 901-3-199.85) |
| Дата добавления в базу: | 01.09.2013 |
| Дата актуализации: | 01.01.2021 |
| Дата введения: | 04.12.1984 |
| Дата окончания срока действия: | 30.06.2003 |
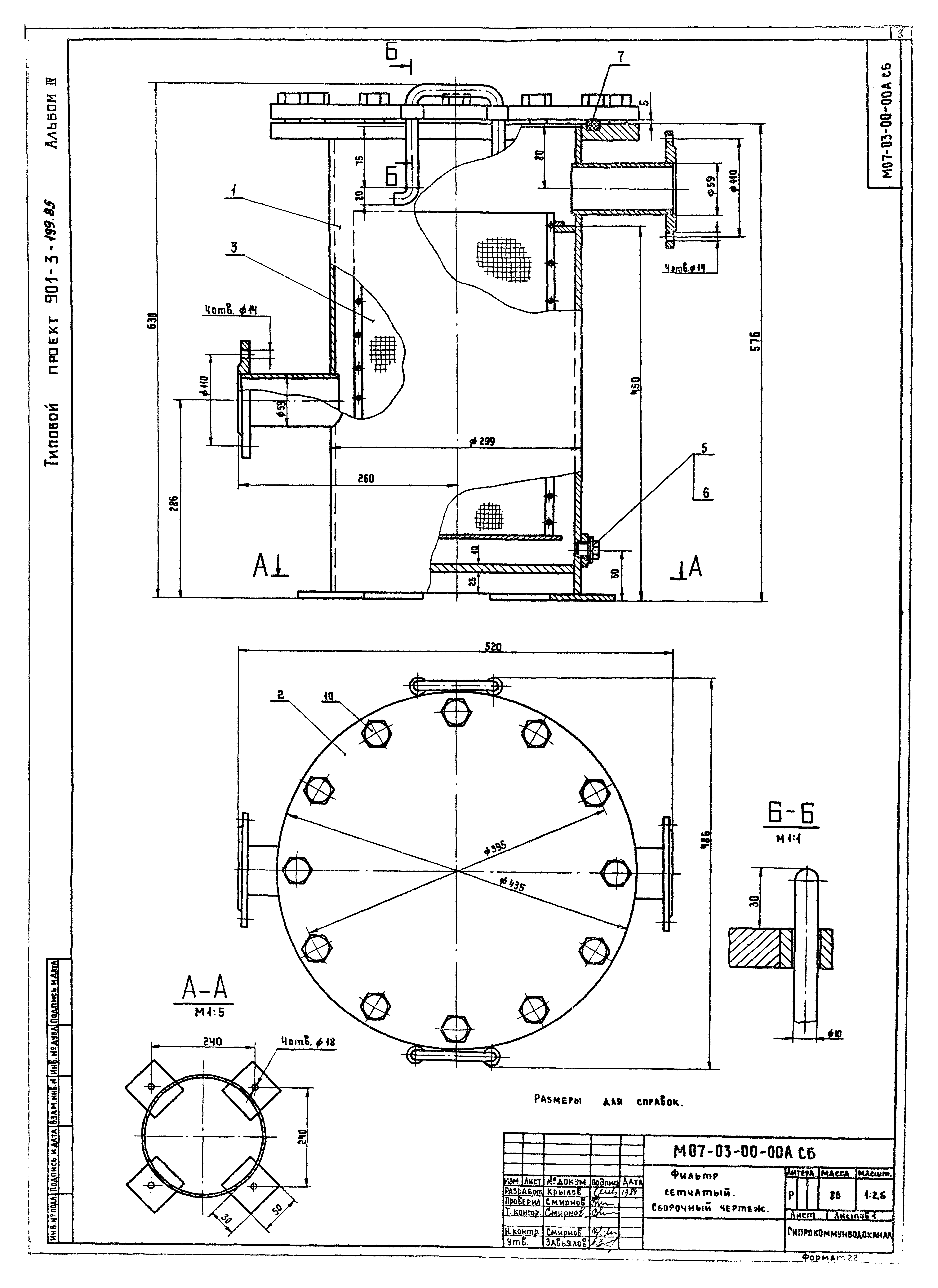
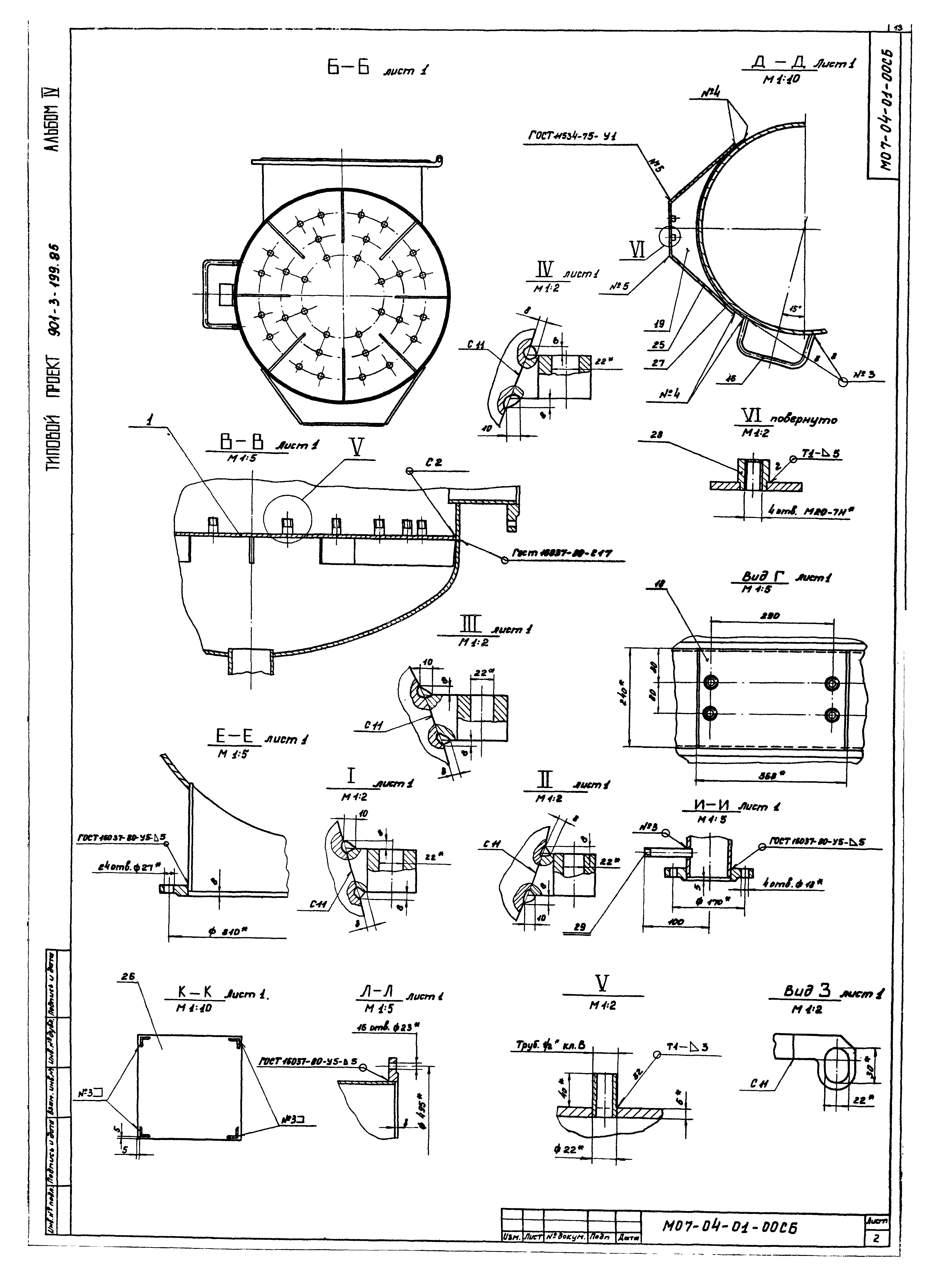
| Оглавление: | Содержание Отстойник трубчатый Отстойник трубчатый. Сборочный чертеж Бак Фильтр сетчатый Бак. Сборочный чертеж Фильтр сетчатый. Сборочный чертеж Фильтр Система контроля давления и дренажа Фильтр. Сборочный чертеж Корпус фильтра Опора Корпус фильтра. Сборочный чертеж Система контроля давления и дренажа. Сборочный чертеж Опора. Сборочный чертеж Бак аэраторный Бак аэраторный. Сборочный чертеж Бак Бак. Сборочный чертеж Крышка Мешалка Мешалка. Сборочный чертеж Винт |
| Разработан: | Гипрокоммунводоканал Минжилкомхоза РСФСР |
| Утверждён: | 22.11.1984 МЖКХ РСФСР (19-ТД) |
| Заменяет собой: |




















