Скачать Типовой проект 503-4-43.86 Альбом I. Технология производства. Архитектурные решения. Конструкции железобетонные. Конструкции металлическиеДата актуализации: 01.01.2021
|
| Обозначение: | Типовой проект 503-4-43.86 |
| Обозначение англ: | 503-4-43.86 |
| Статус: | не определен законодательством |
| Название рус.: | Альбом I. Технология производства. Архитектурные решения. Конструкции железобетонные. Конструкции металлические |
| Дата добавления в базу: | 01.09.2013 |
| Дата актуализации: | 01.01.2021 |
| Дата введения: | 01.03.1987 |
| Дата окончания срока действия: | 30.06.2003 |
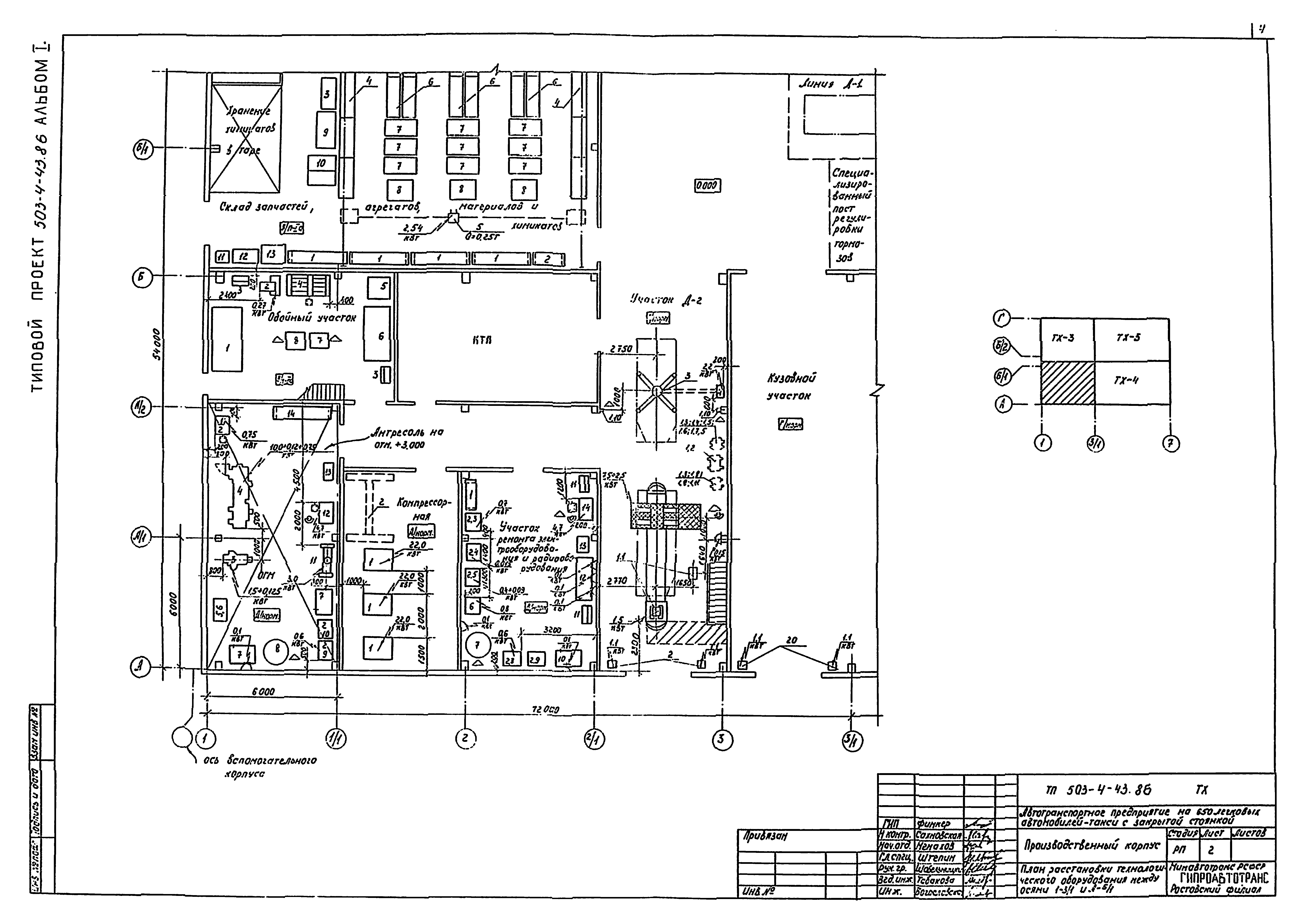
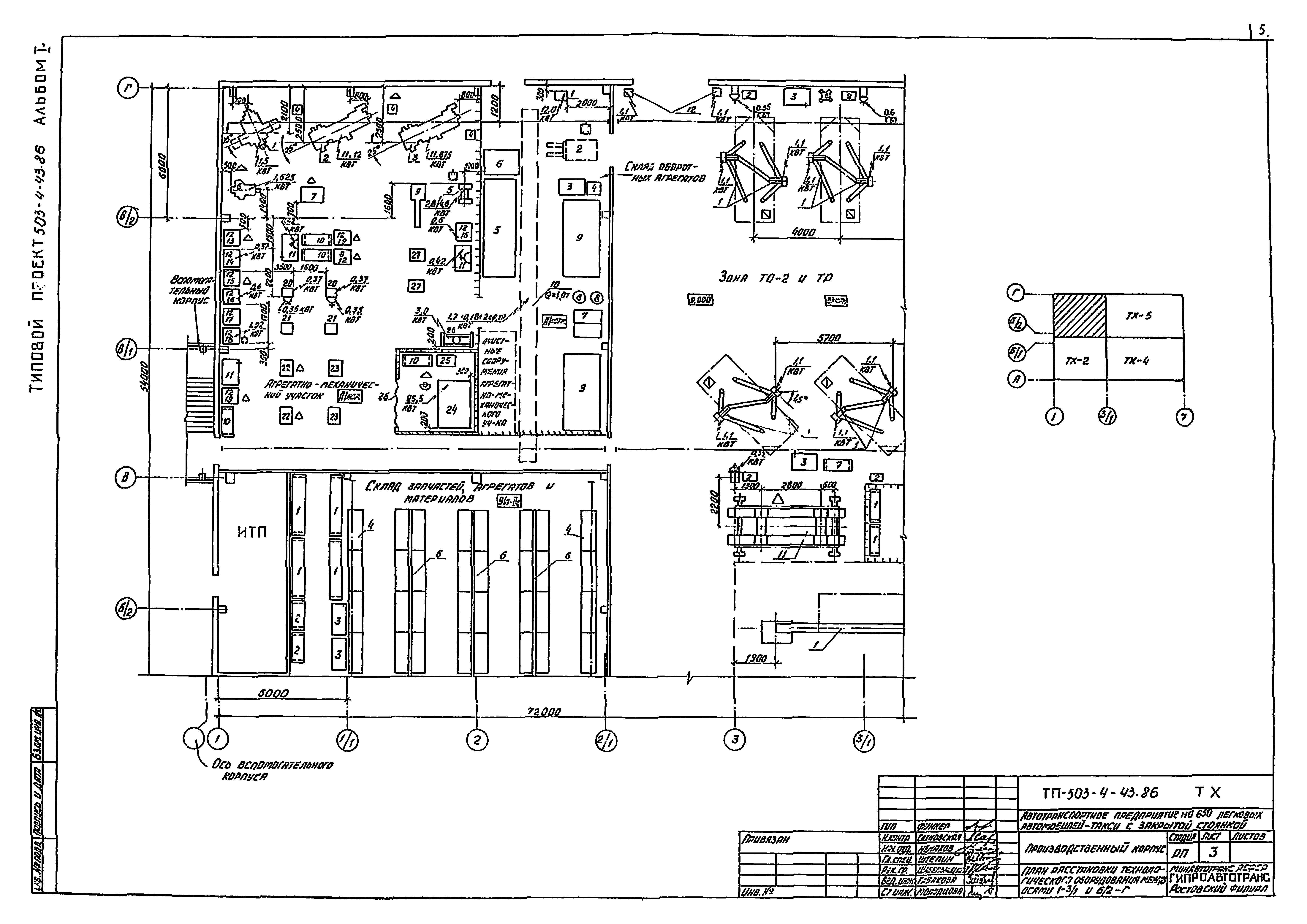
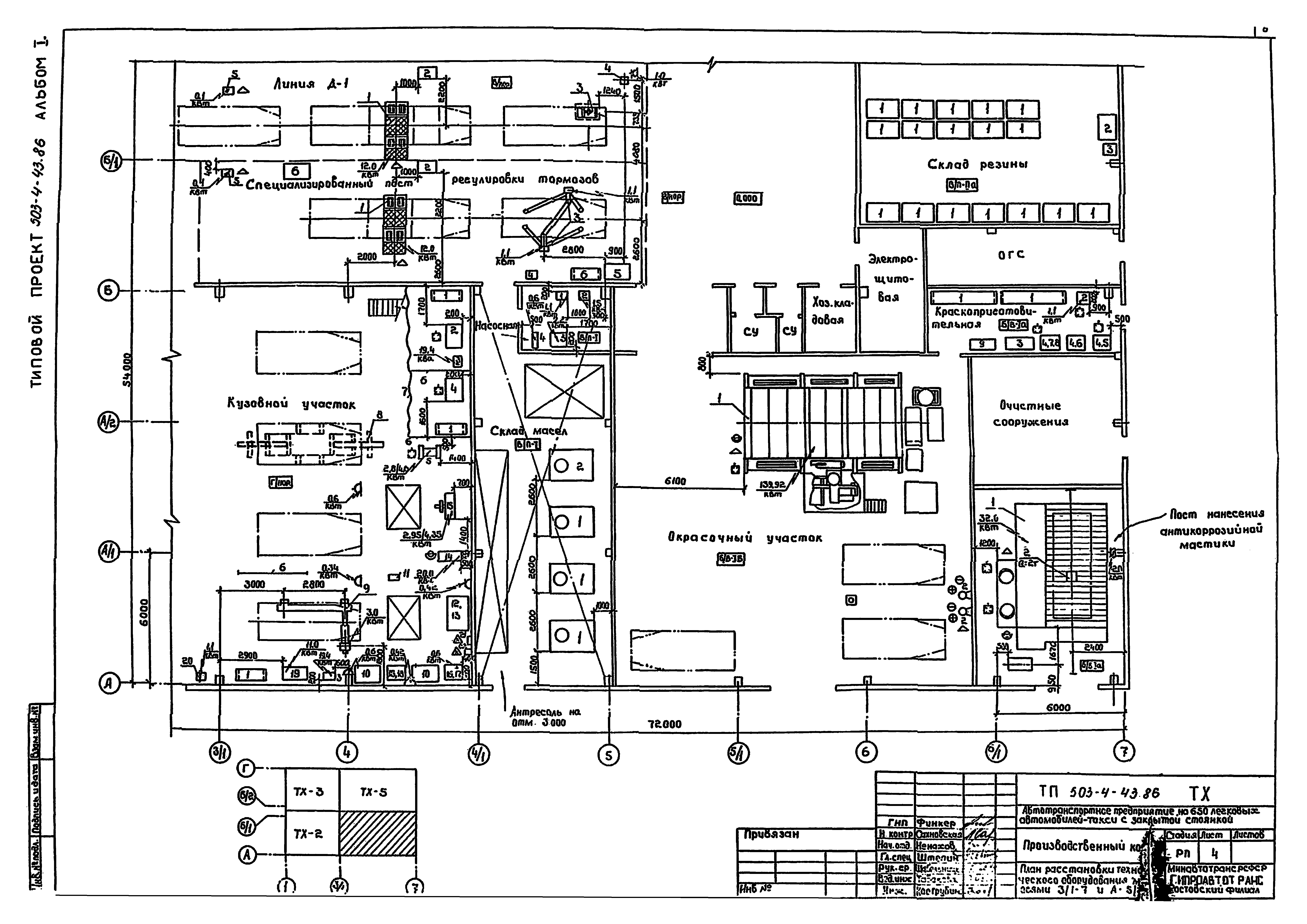
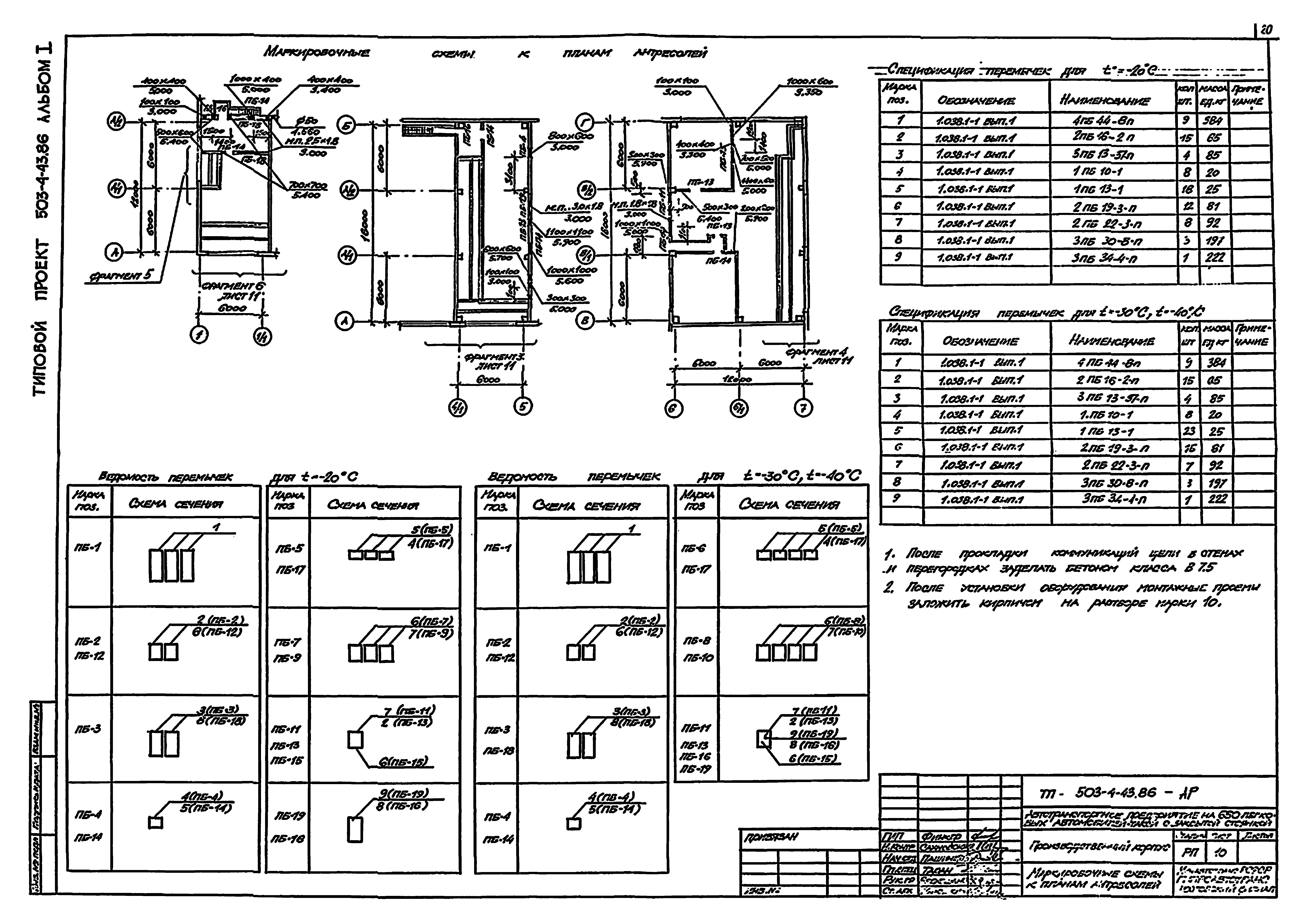
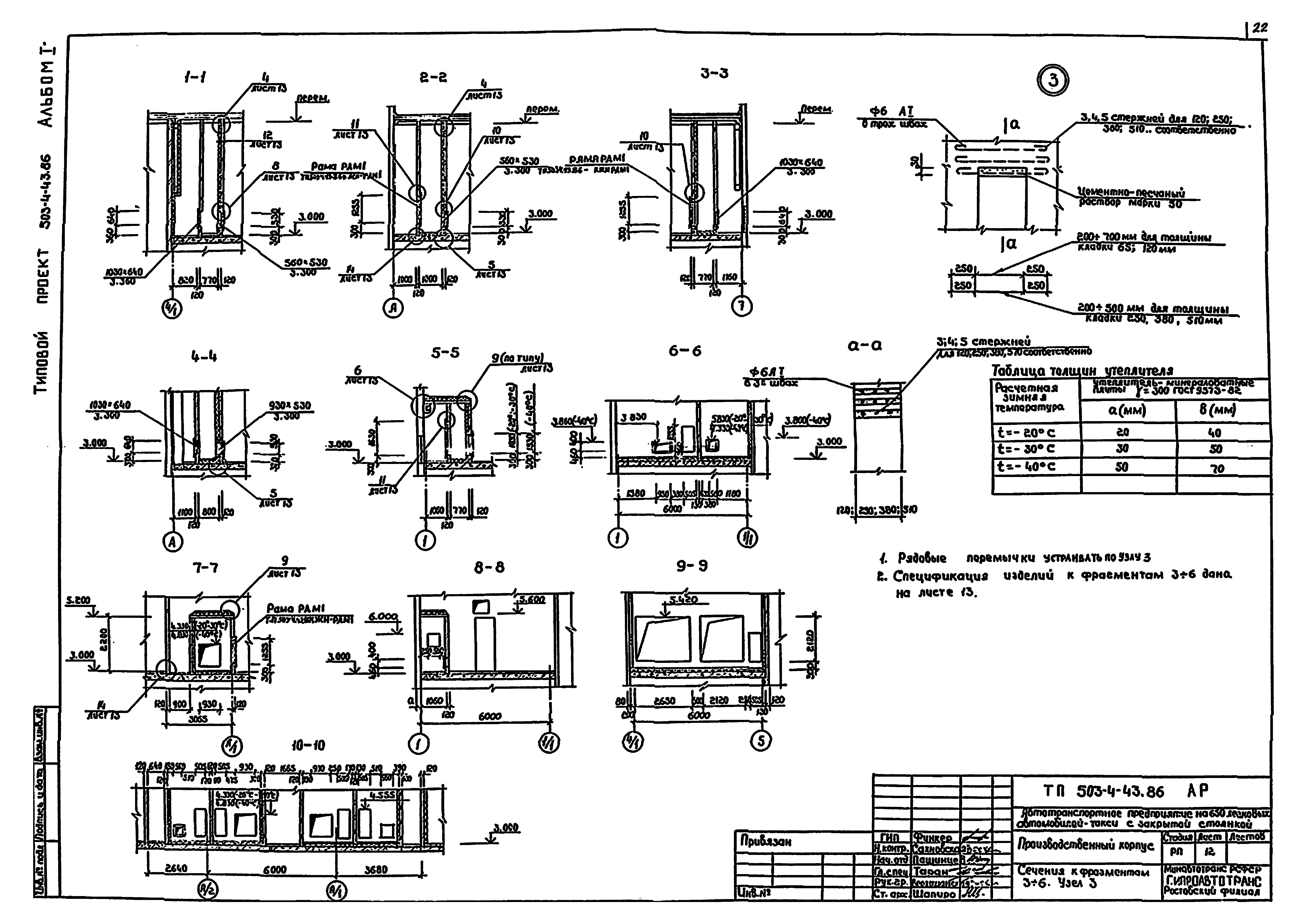
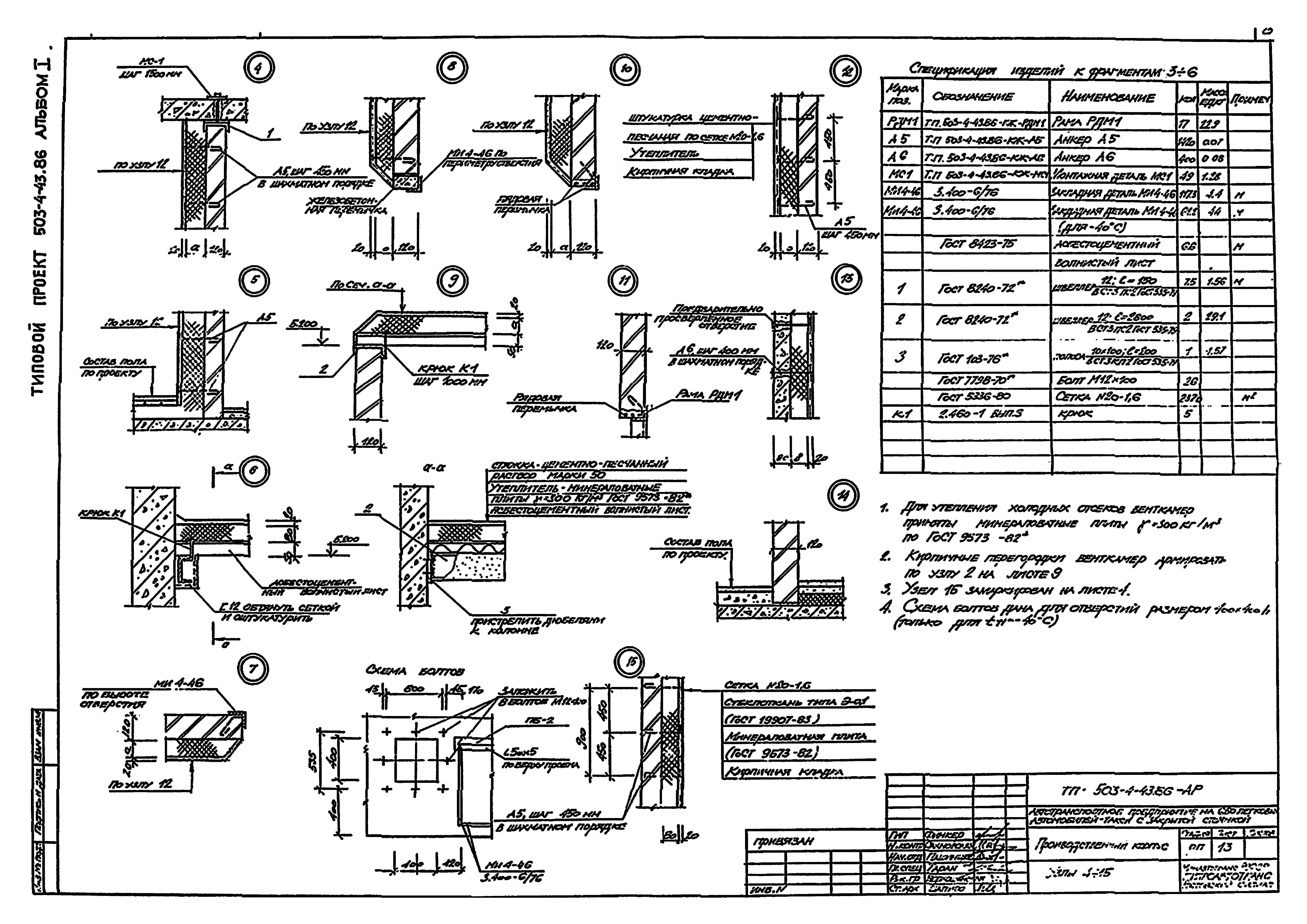
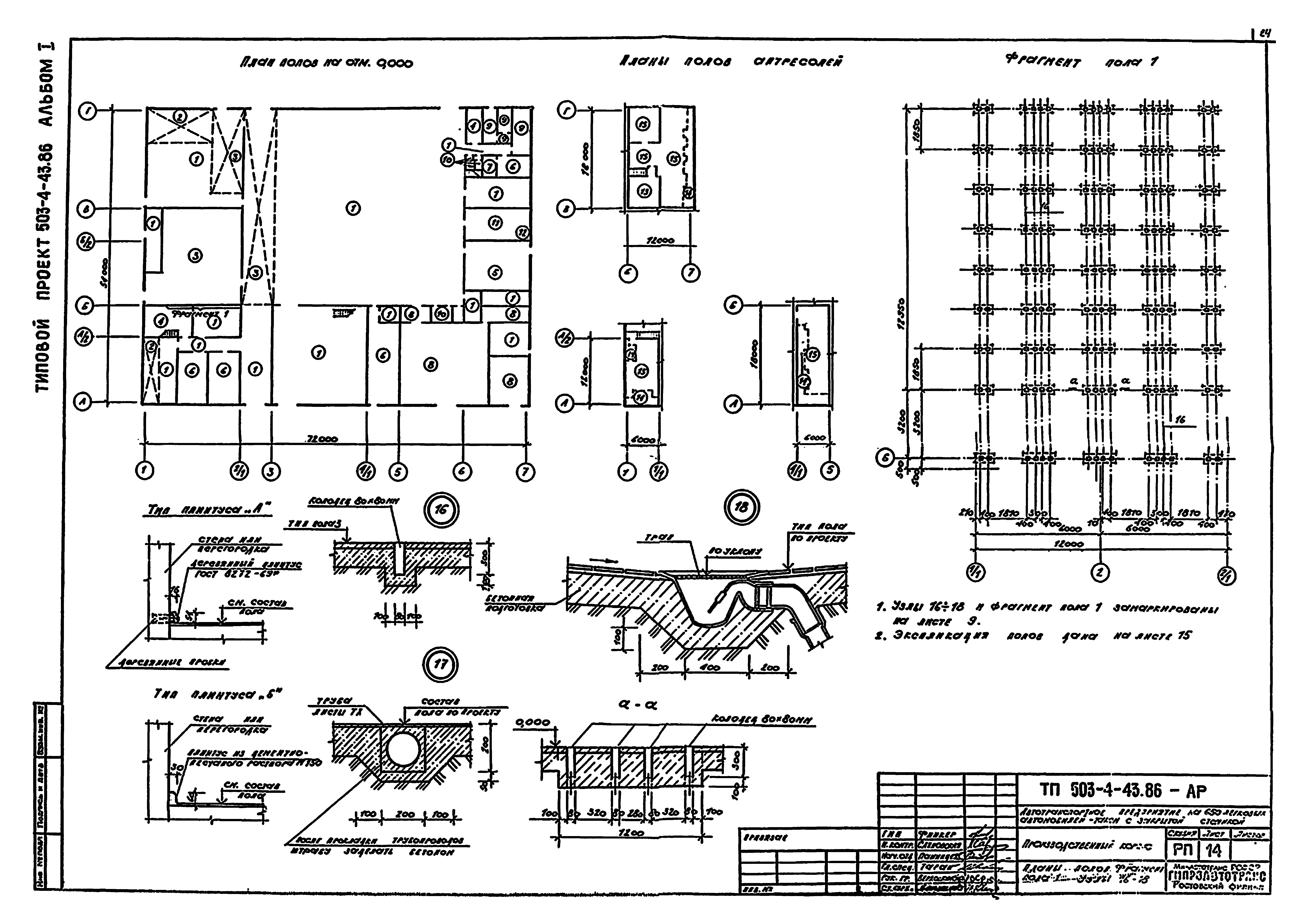
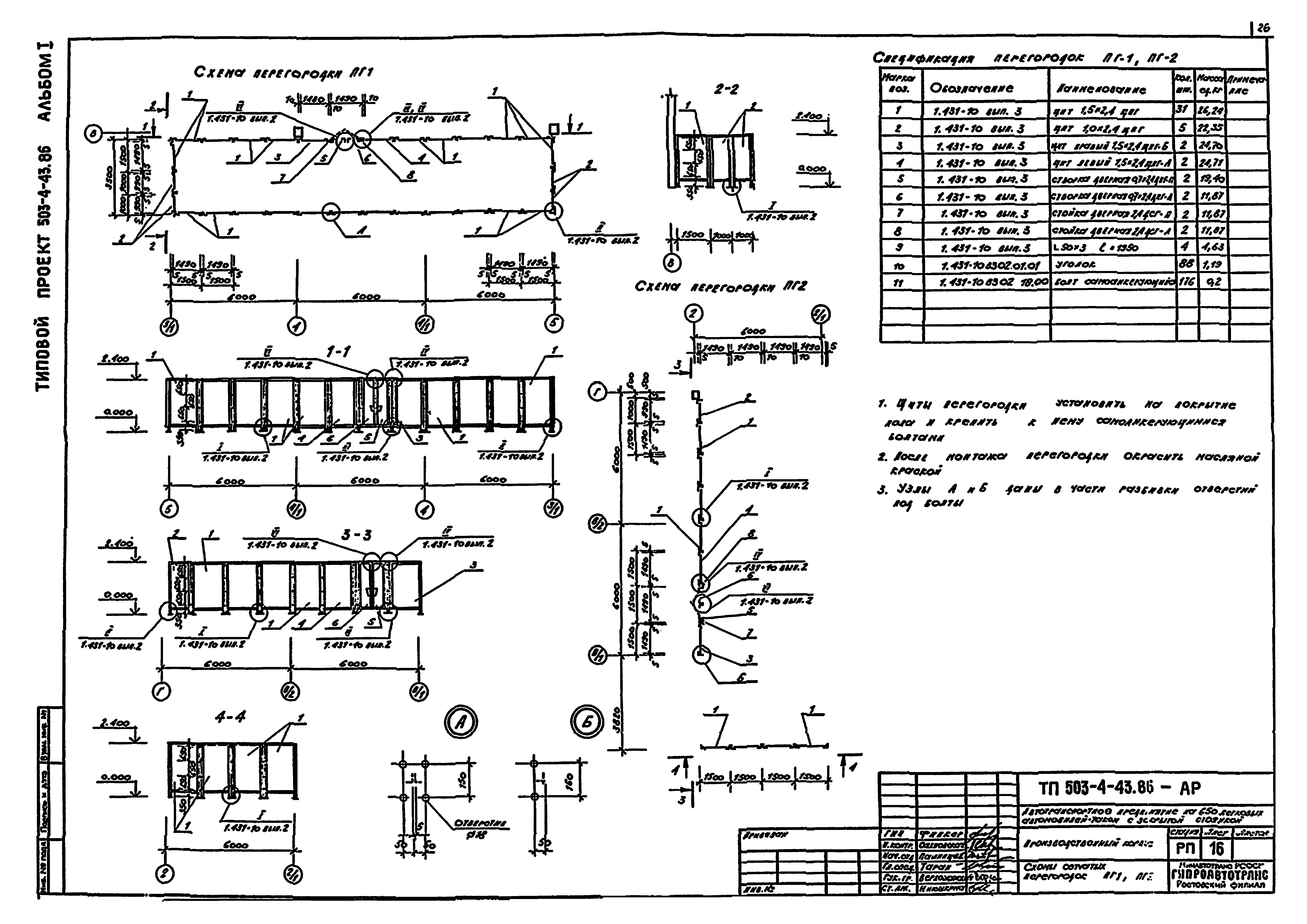
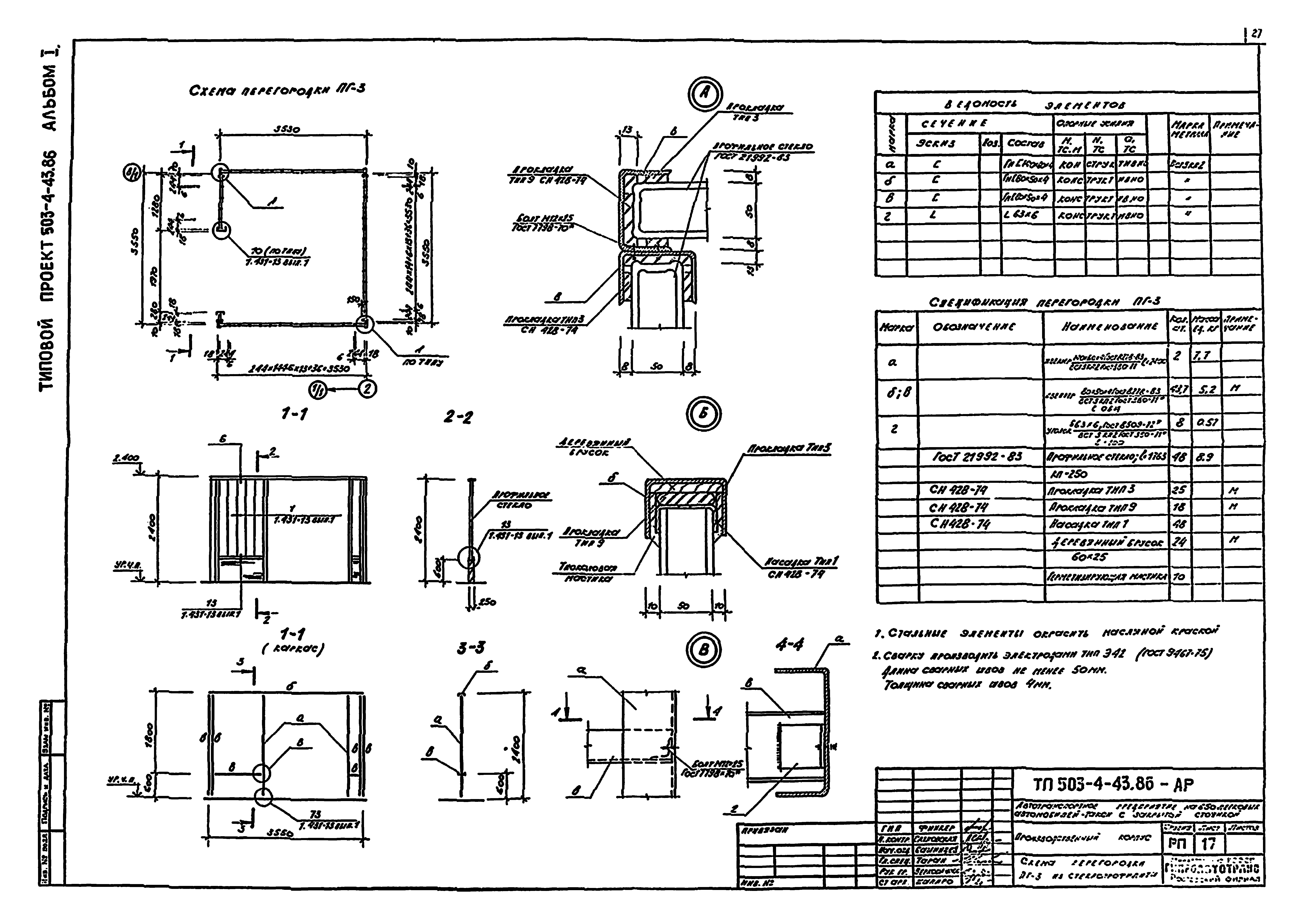
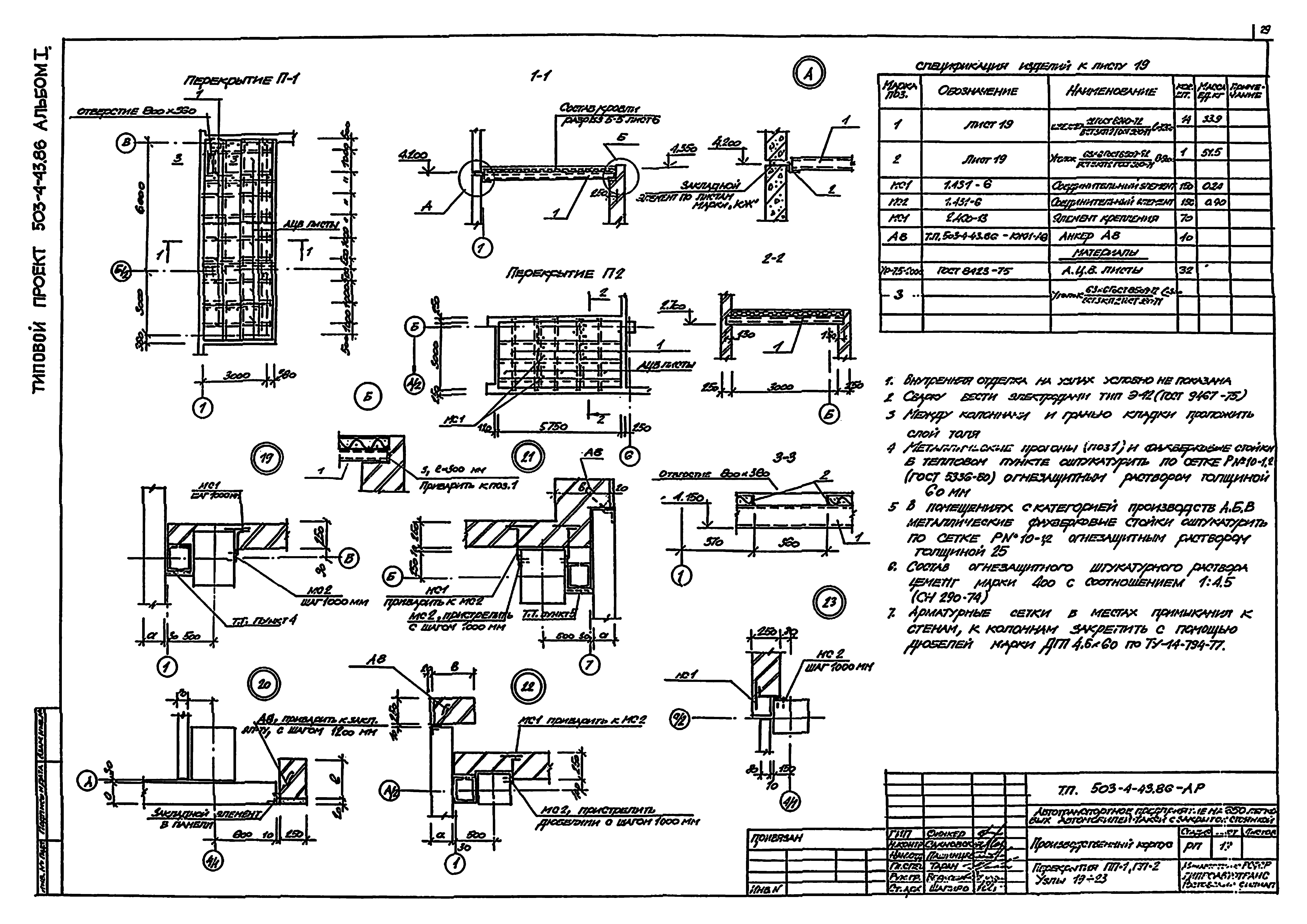
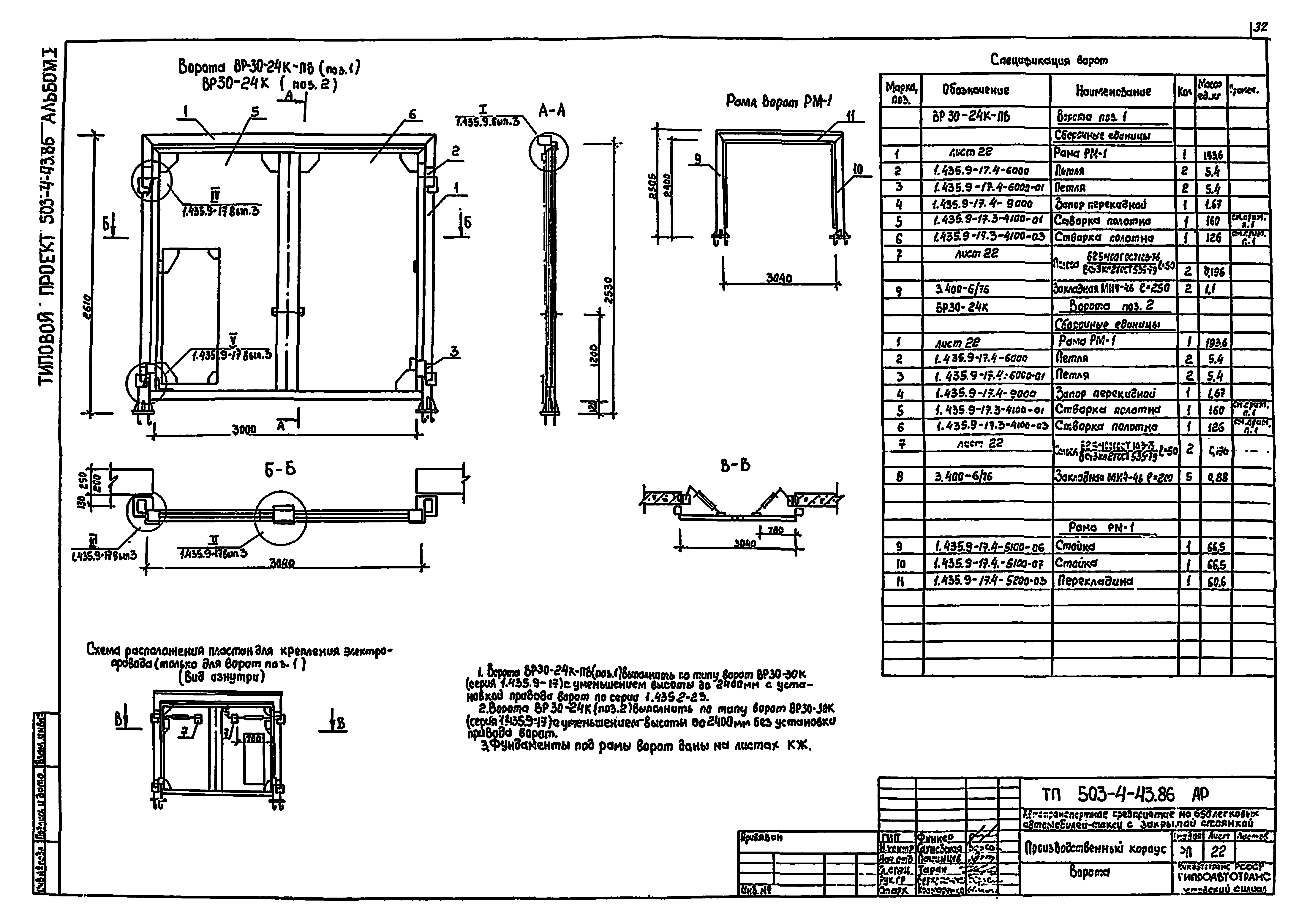
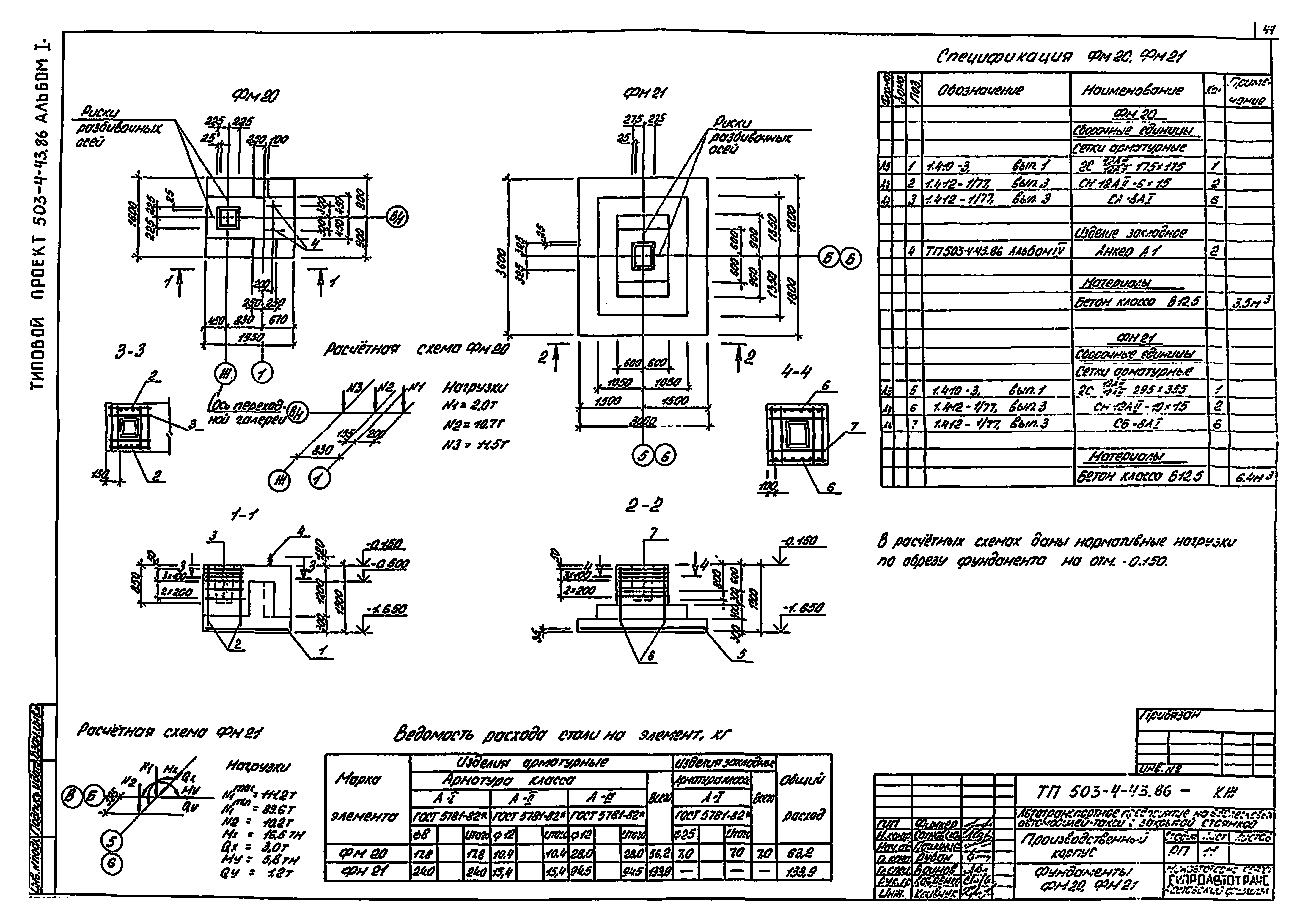
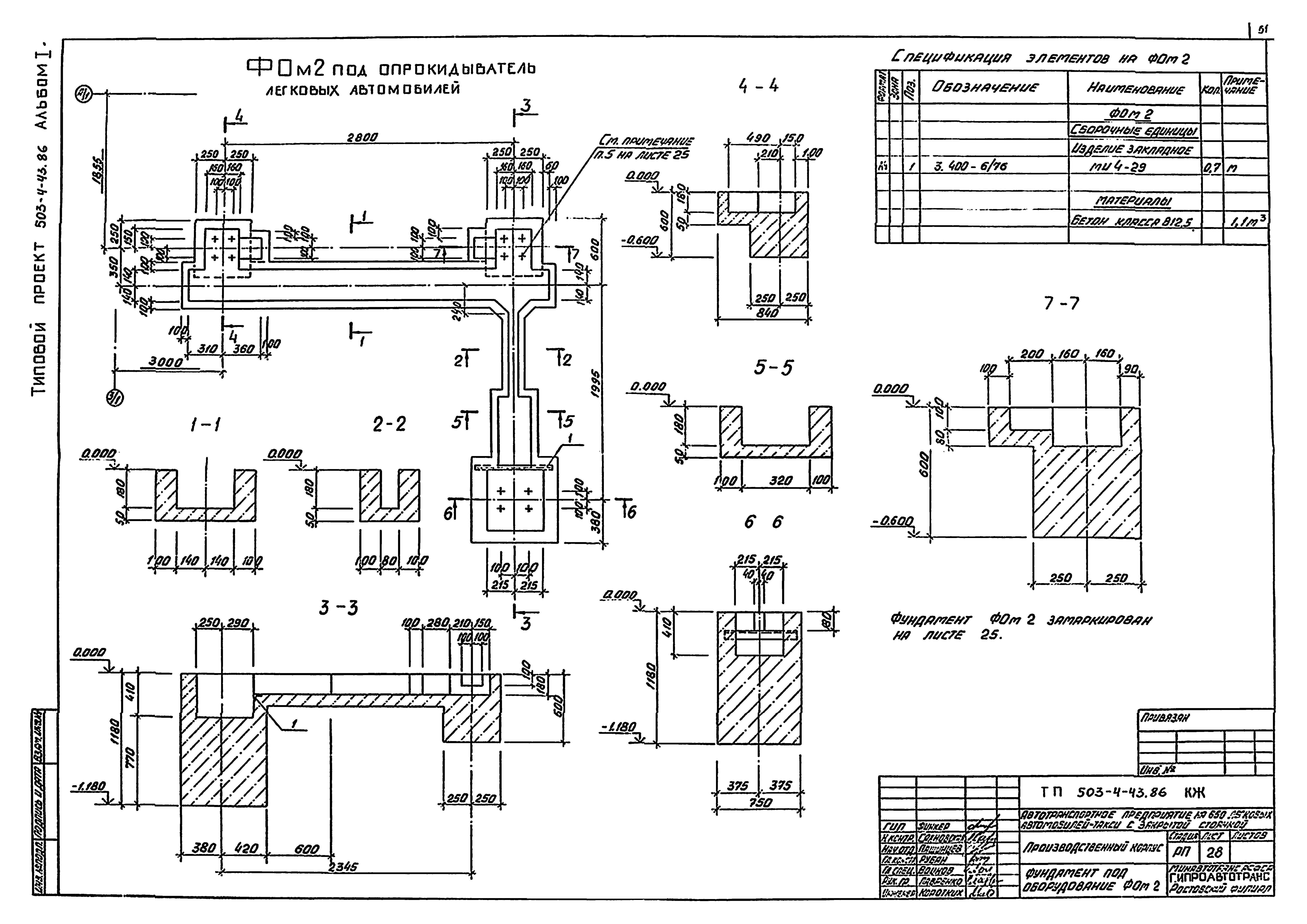
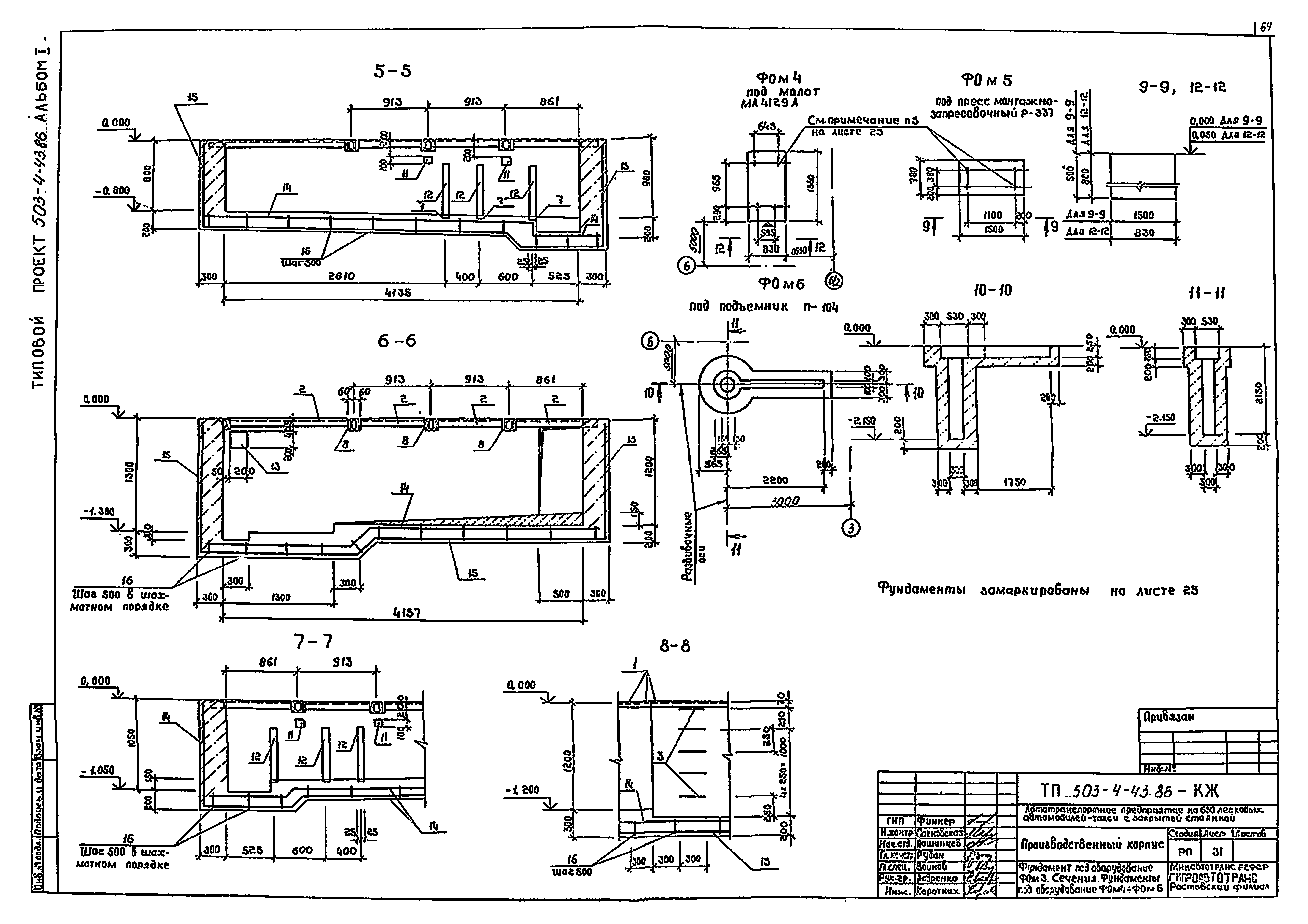
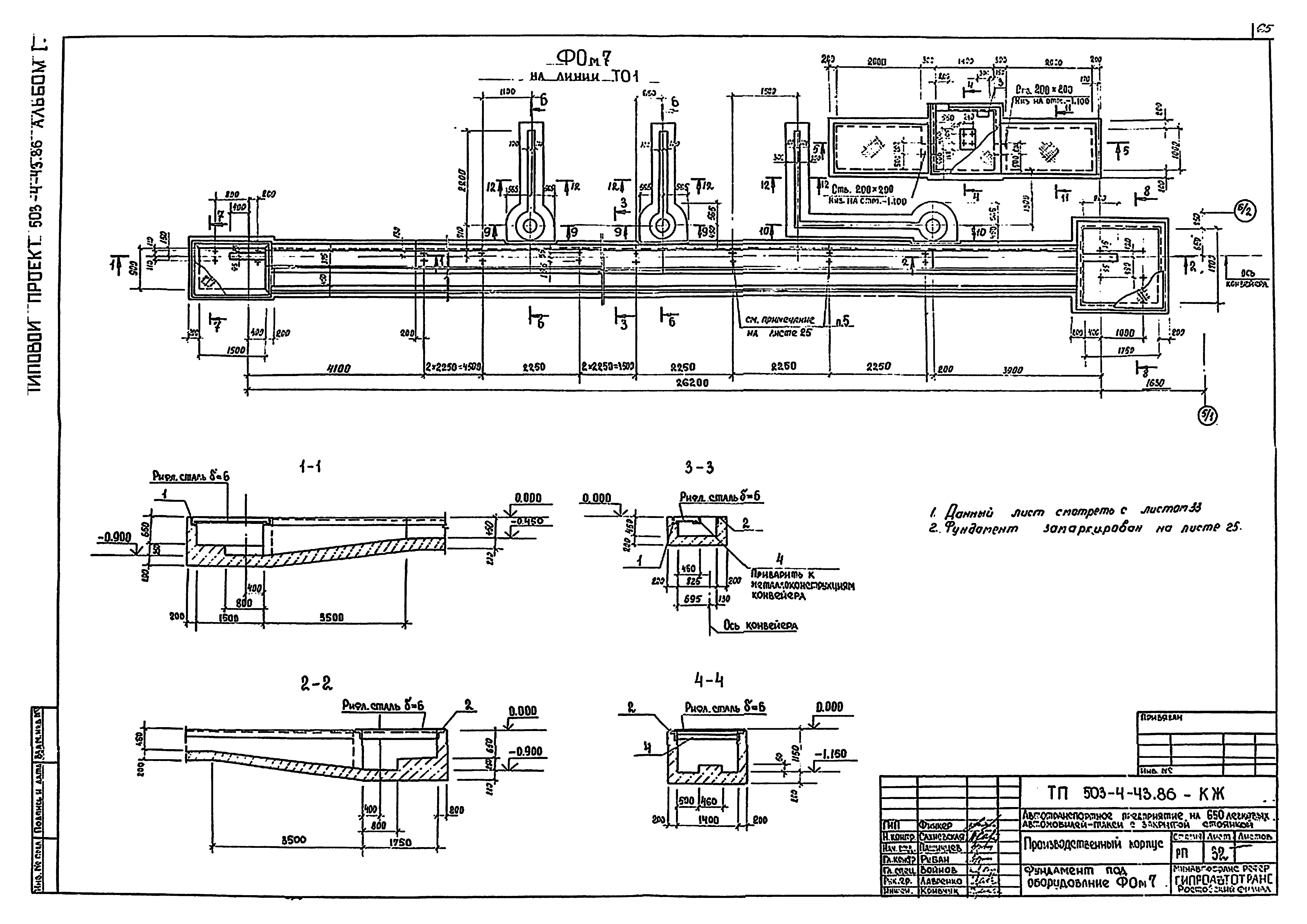
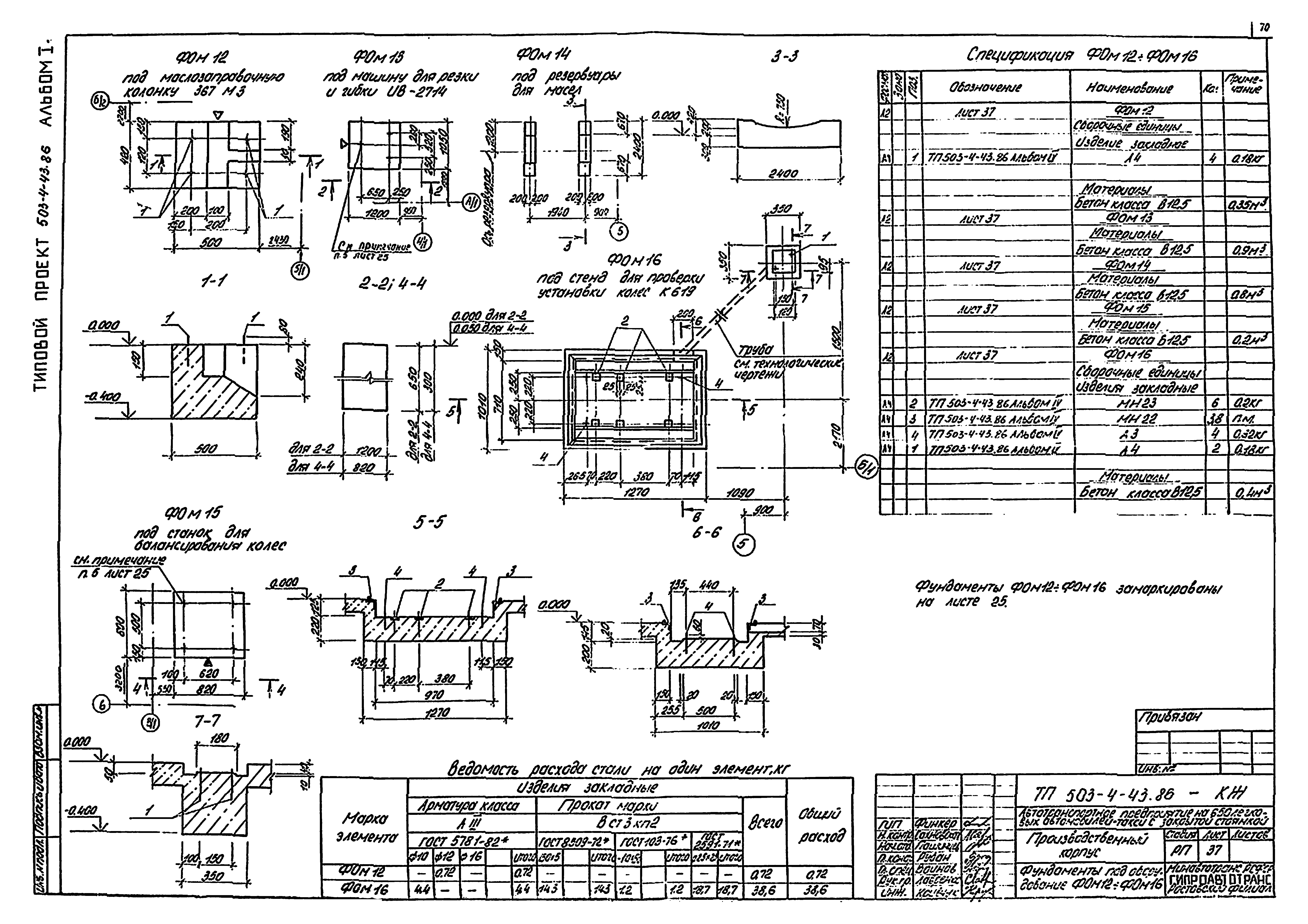
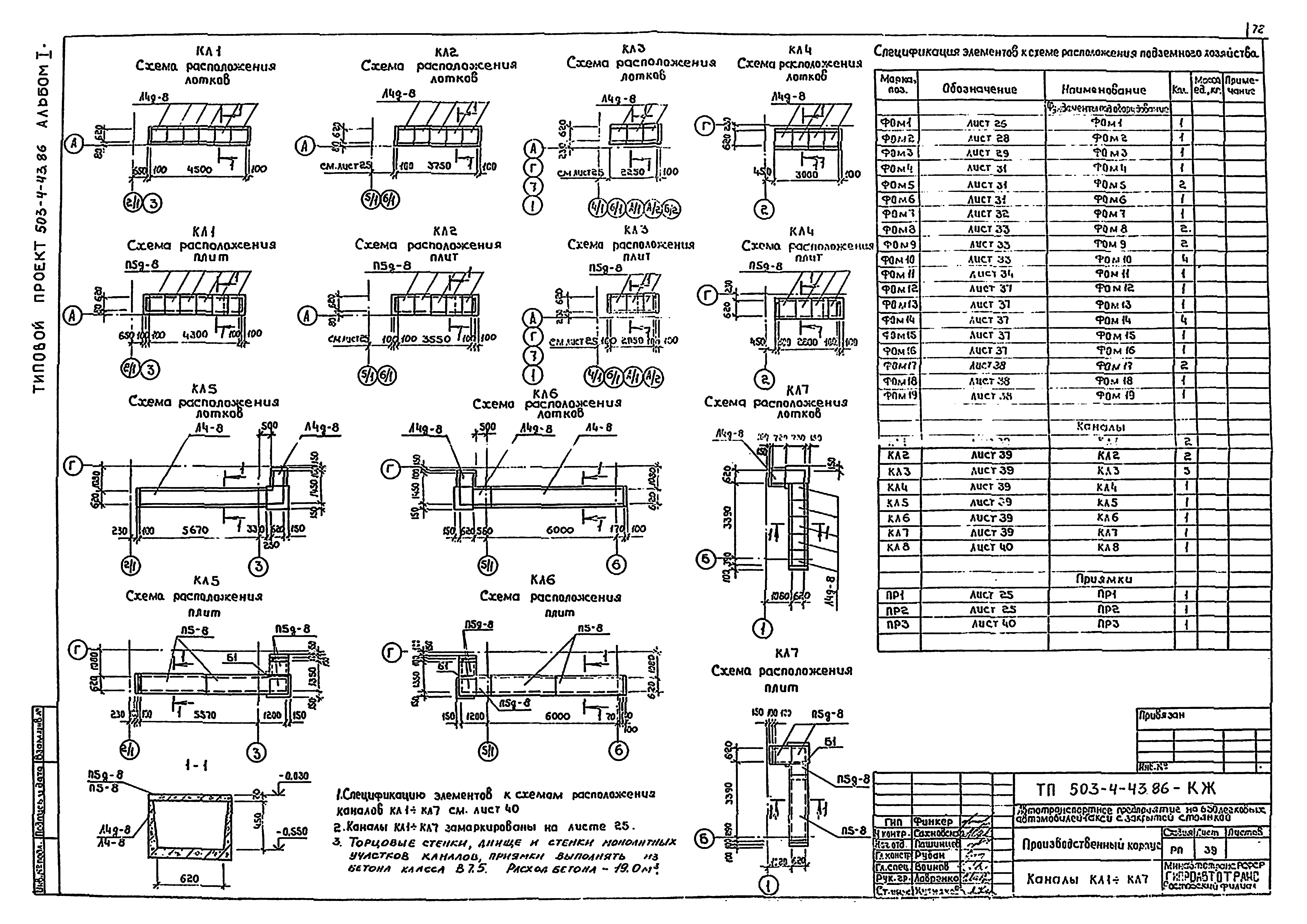
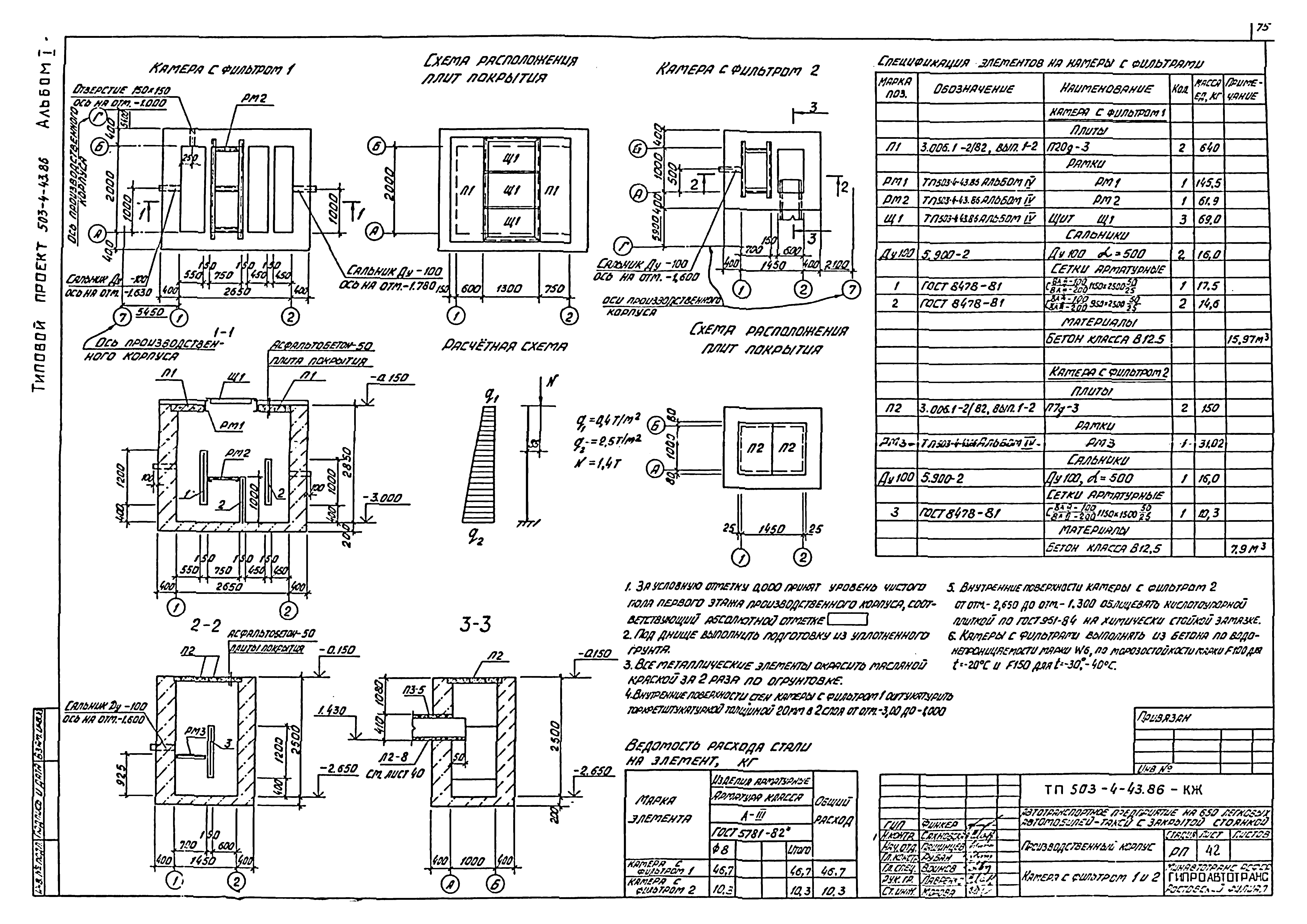
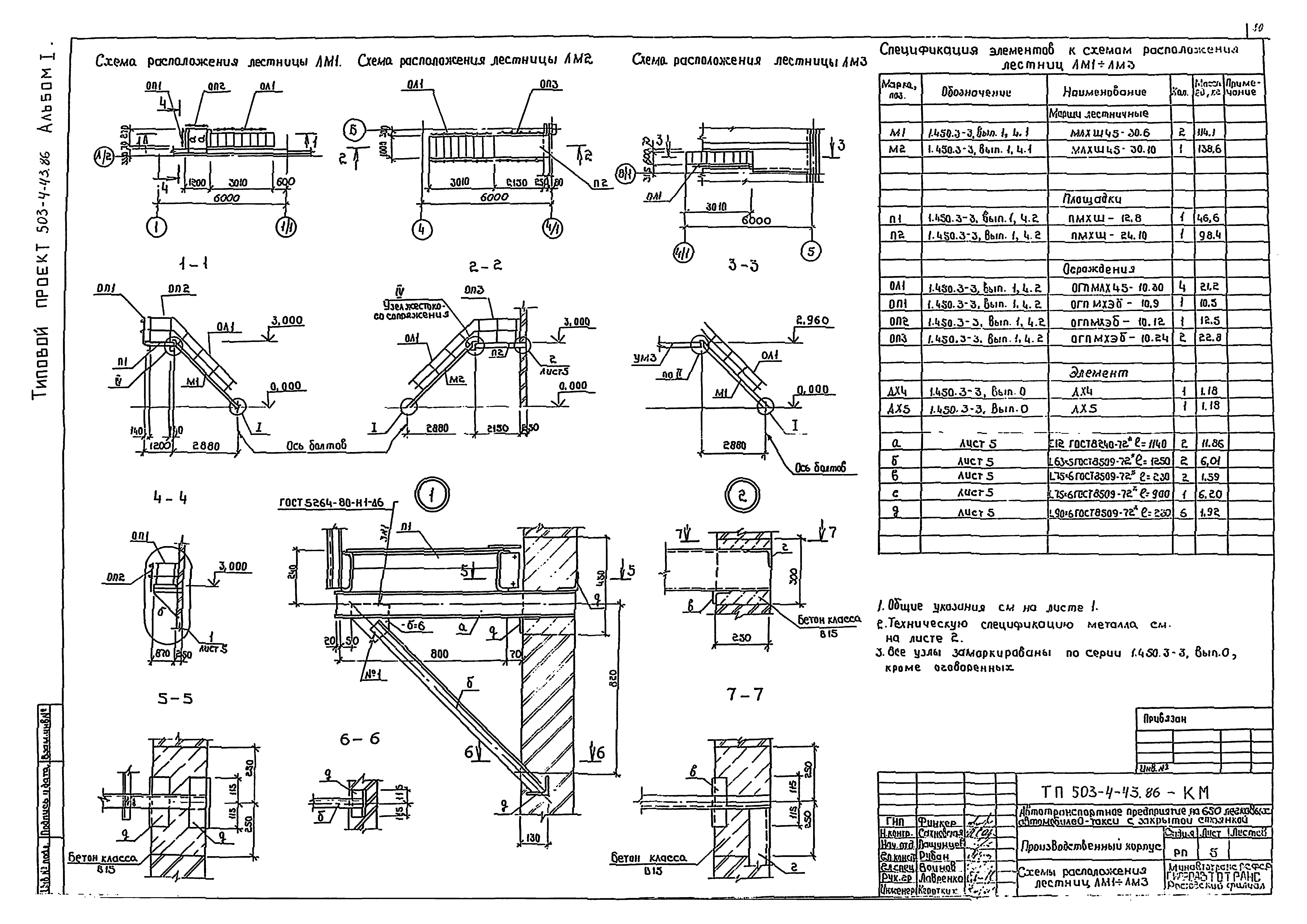
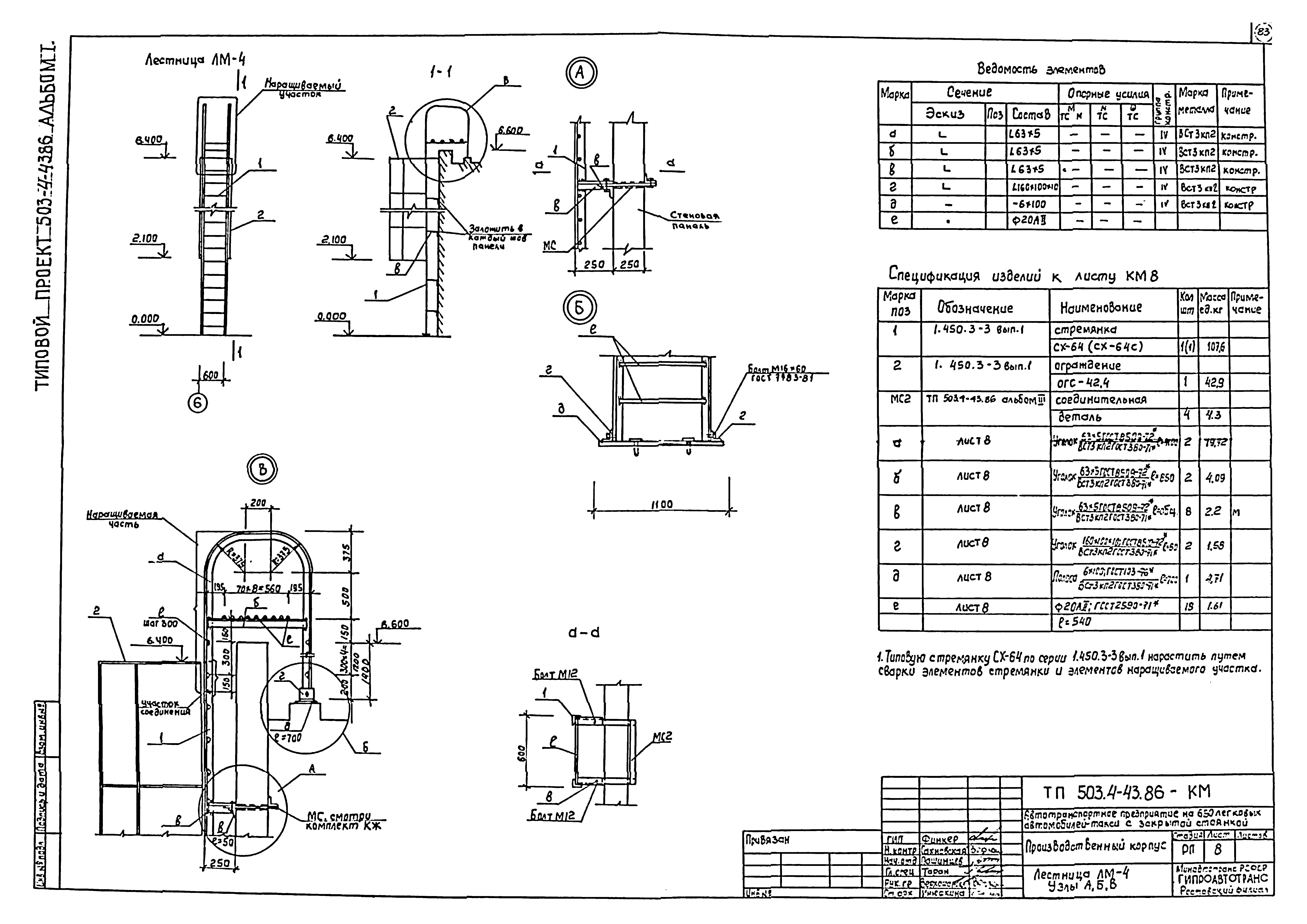
| Оглавление: | ТП 503-4-43.86 Содержание альбома ТП 503-4-43.86-ТХ Чертежи марки ТХ ТП 503-4-43.86-ТХ-1 Общие данные ТП 503-4-43.86-ТХ-2 План расстановки технологического оборудования между осями 1-3/1 и А-Б/1 ТП 503-4-43.86-ТХ-3 План расстановки технологического оборудования между осями 3/1-7 и Б/2-Г ТП 503-4-43.86-ТХ-4 План расстановки технологического оборудования между осями 3/1-7 и А-5/1 ТП 503-4-43.86-ТХ-5 План расстановки технологического оборудования между осями 3/1-7 и 6/2-Г ТП 503-4-43.86-ТХ-6 План и схема разводки системы трубопроводов сжатого воздуха ТП 503-4-43.86-ТХ-7 Потребителя сжатого воздуха ТП 503-4-43.86-ТХ-8 План и схемы разводки систем маслопроводов ТП 503-4-43.86-АР Чертежи марки АР ТП 503-4-43.86-АР-1 Общие данные (начало) ТП 503-4-43.86-АР-2 Общие данные (продолжение) ТП 503-4-43.86-АР-3 Общие данные (окончание) ТП 503-4-43.86-АР-4 План на отм. 0.000 ТП 503-4-43.86-АР-5 Фрагменты 1,2. Планы антресолей 1,2,3 на отм. 3.000 ТП 503-4-43.86-АР-6 Разрезы 1-1÷6-6. Узел 1 ТП 503-4-43.86-АР-7 Фасады. Схемы заполнения оконных проемов ТП 503-4-43.86-АР-8 План кровли. Схема молниезащиты ТП 503-4-43.86-АР-9 Маркировочная схема к плану на отм. 0.000. Узел 2. Сечение а-а ТП 503-4-43.86-АР-10 Маркировочные схемы к планам антресолей ТП 503-4-43.86-АР-11 Фрагменты 3-6 ТП 503-4-43.86-АР-12 Сечения к фрагментам 3-6. Узел 3Узлы 4-15 ТП 503-4-43.86-АР-13 Узлы 4-15 ТП 503-4-43.86-АР-14 Планы полов. Фрагмент пола 1. Узлы 16-18 ТП 503-4-43.86-АР-15 Экспликация полов ТП 503-4-43.86-АР-16 Схемы сетчатых перегородок ПГ1,ПГ2 ТП 503-4-43.86-АР-17 Схема перегородки ПГ-3 из стеклопрофилита ТП 503-4-43.86-АР-18 Стеллаж зарядной ТП 503-4-43.86-АР-19 Перекрытия ПП-1,ПП-2. Узлы 19-23 ТП 503-4-43.86-АР-20 Приямки П-1÷П-3. Фрагмент пола 2. Схемы 1,2 кронштейнов ИТП. Узел 24 ТП 503-4-43.86-АР-21 Узлы 25-32 ТП 503-4-43.86-АР-22 Ворота ТП 503-4-43.86-АР-23 Ворота ТП 503-4-43.86-КЖ Чертежи марки КЖ ТП 503-4-43.86-КЖ-1 Общие данные (начало) ТП 503-4-43.86-КЖ-2 Общие данные (окончание) ТП 503-4-43.86-КЖ-3 Схема расположения фундамента ТП 503-4-43.86-КЖ-4 Узлы 1-6. Сечения 5-5,7-7÷13-13 к листу 3 ТП 503-4-43.86-КЖ-5 Фундаменты ФМ1-ФМ4 ТП 503-4-43.86-КЖ-6 Фундаменты ФМ5-ФМ8 ТП 503-4-43.86-КЖ-7 Фундаменты ФМ9;ФМ10 ТП 503-4-43.86-КЖ-8 Фундаменты ФМ11;ФМ19 ТП 503-4-43.86-КЖ-9 Фундаменты ФМ12-ФМ15 ТП 503-4-43.86-КЖ-10 Фундаменты ФМ16-ФМ18,ФМ22 ТП 503-4-43.86-КЖ-11 Фундаменты ФМ20,ФМ21 ТП 503-4-43.86-КЖ-12 Схемы расположения колонн, ригелей, стропильных, подстропильных ферм ТП 503-4-43.86-КЖ-13 Узлы 1-8 ТП 503-4-43.86-КЖ-14 Спецификация элементов к схемам расположения конструкции на листе 12 ТП 503-4-43.86-КЖ-15 Схемы расположения плит перекрытия антресолей на отм. 3.00 ТП 503-4-43.86-КЖ-16 Схема расположения плит покрытия ТП 503-4-43.86-КЖ-17 Спецификация к схемам расположения плит покрытия. Фундаменты ФО1-ФО4 ТП 503-4-43.86-КЖ-18 Схемы расположения панелей стен по осям А,Г, стоек, насадок торцового фахверка по осям 1,7 ТП 503-4-43.86-КЖ-19 Схемы расположения панелей стен по осям 1,7 ТП 503-4-43.86-КЖ-20 Спецификация элементов к схемам расположения панелей стен ТП 503-4-43.86-КЖ-21 Схемы расположения панелей перегородок ТП 503-4-43.86-КЖ-22 Схемы расположения панелей перегородок ТП 503-4-43.86-КЖ-23 Узлы А-И к листам 21,22 ТП 503-4-43.86-КЖ-24 Спецификация элементов к схемам расположения панелей перегородок на листах 21,22 ТП 503-4-43.86-КЖ-25 Схема расположения подземного хозяйства. Приямки ПР1,ПР2 ТП 503-4-43.86-КЖ-26 Фундамент под оборудование ФОМ1. Сечения 1-1,2-2 ТП 503-4-43.86-КЖ-27 Фундамент под оборудование ФОМ1. Сечения 3-3÷9-9 ТП 503-4-43.86-КЖ-28 Фундамент под оборудование ФОМ2 ТП 503-4-43.86-КЖ-29 Фундамент под оборудование ФОМ3 ТП 503-4-43.86-КЖ-30 Фундамент под оборудование ФОМ3. Сечения 1-1÷4-4 ТП 503-4-43.86-КЖ-31 Фундамент под оборудование ФОМ3. Сечения. Фундаменты под оборудование ФОМ4-ФОМ6 ТП 503-4-43.86-КЖ-32 Фундамент под оборудование ФОМ7 ТП 503-4-43.86-КЖ-33 Фундамент под оборудование ФОМ7. Сечения. Фундаменты под оборудование ФОМ8-ФОМ10 ТП 503-4-43.86-КЖ-34 Фундамент под оборудование ФОМ11 ТП 503-4-43.86-КЖ-35 Фундамент ФОМ11. Сечения 2-2÷7-7 ТП 503-4-43.86-КЖ-36 Фундамент ФОМ11. Сечения 8-8÷11-11 ТП 503-4-43.86-КЖ-37 Фундаменты под оборудование ФОМ12-ФОМ16 ТП 503-4-43.86-КЖ-38 Фундаменты под оборудование ФОМ17-ФОМ19 ТП 503-4-43.86-КЖ-39 Каналы КЛ1-КЛ7 ТП 503-4-43.86-КЖ-40 Канал 8. Приямок ПР3 ТП 503-4-43.86-КЖ-41 Схема расположения приямков КТП ТП 503-4-43.86-КЖ-42 Камера с фильтром 1 и 2 ТП 503-4-43.86-КМ Чертежи марки КМ ТП 503-4-43.86-КМ-1 Общие данные ТП 503-4-43.86-КМ-2 Техническая спецификация металла ТП 503-4-43.86-КМ-3 Схемы расположения путей подвесного крана и монорельса ТП 503-4-43.86-КМ-4 Схема расположения зенитных фонарей ТП 503-4-43.86-КМ-5 Схемы расположения лестниц ЛМ1-ЛМ3 ТП 503-4-43.86-КМ-6 Схемы расположения окон ТП 503-4-43.86-КМ-7 Спецификации к листу 6 ТП 503-4-43.86-КМ-8 Лестница ЛМ-4. Узлы А,Б,В |
| Разработан: | Ростовский филиал Гипроавтотранса Минавтотранса РСФСР |
| Утверждён: | 30.09.1986 Минавтотранс РСФСР (Russian Federation Minavtotrans 22) |
| Издан: | ЦИТП Госстроя СССР (CITP, Gosstroy (USSR) 1988 г. ) |
| Заменяет собой: |
|
| Нормативные ссылки: |



















































































