Скачать Типовой проект 503-4-43.86 Альбом IV. Индустриальные строительные конструкцииДата актуализации: 01.01.2021
|
| Обозначение: | Типовой проект 503-4-43.86 |
| Обозначение англ: | 503-4-43.86 |
| Статус: | не определен законодательством |
| Название рус.: | Альбом IV. Индустриальные строительные конструкции |
| Дата добавления в базу: | 01.09.2013 |
| Дата актуализации: | 01.01.2021 |
| Дата введения: | 01.03.1987 |
| Дата окончания срока действия: | 30.06.2003 |
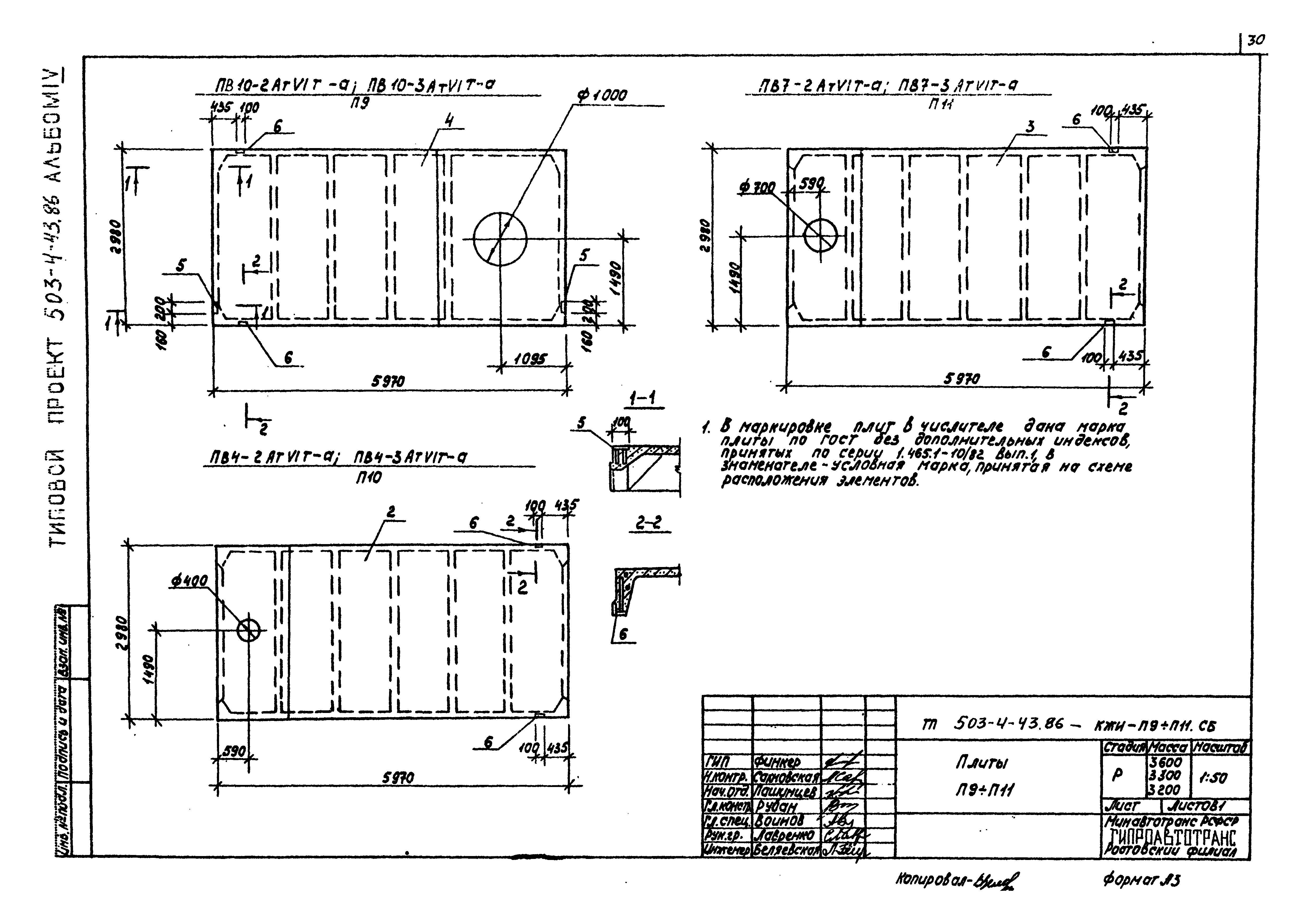
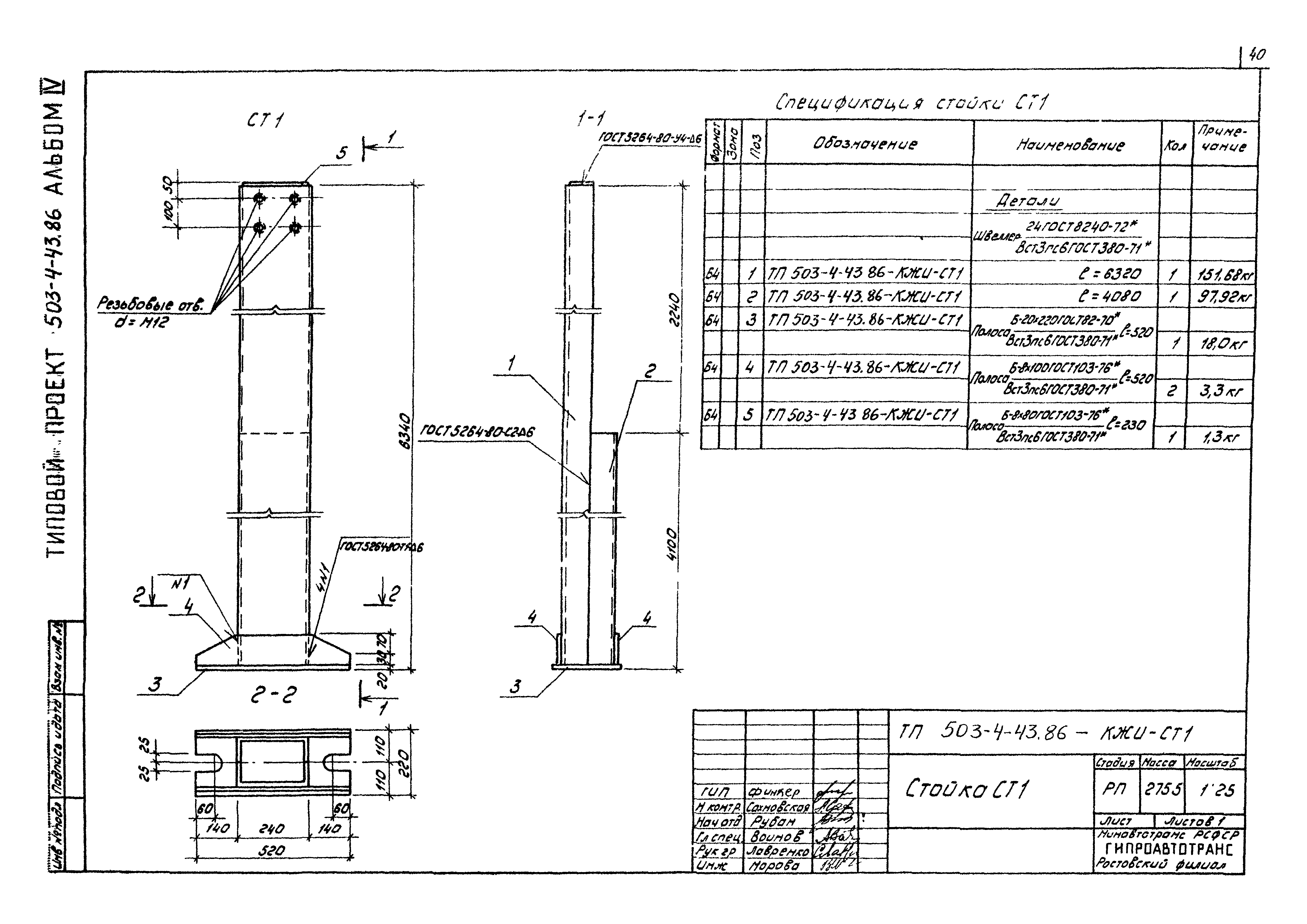
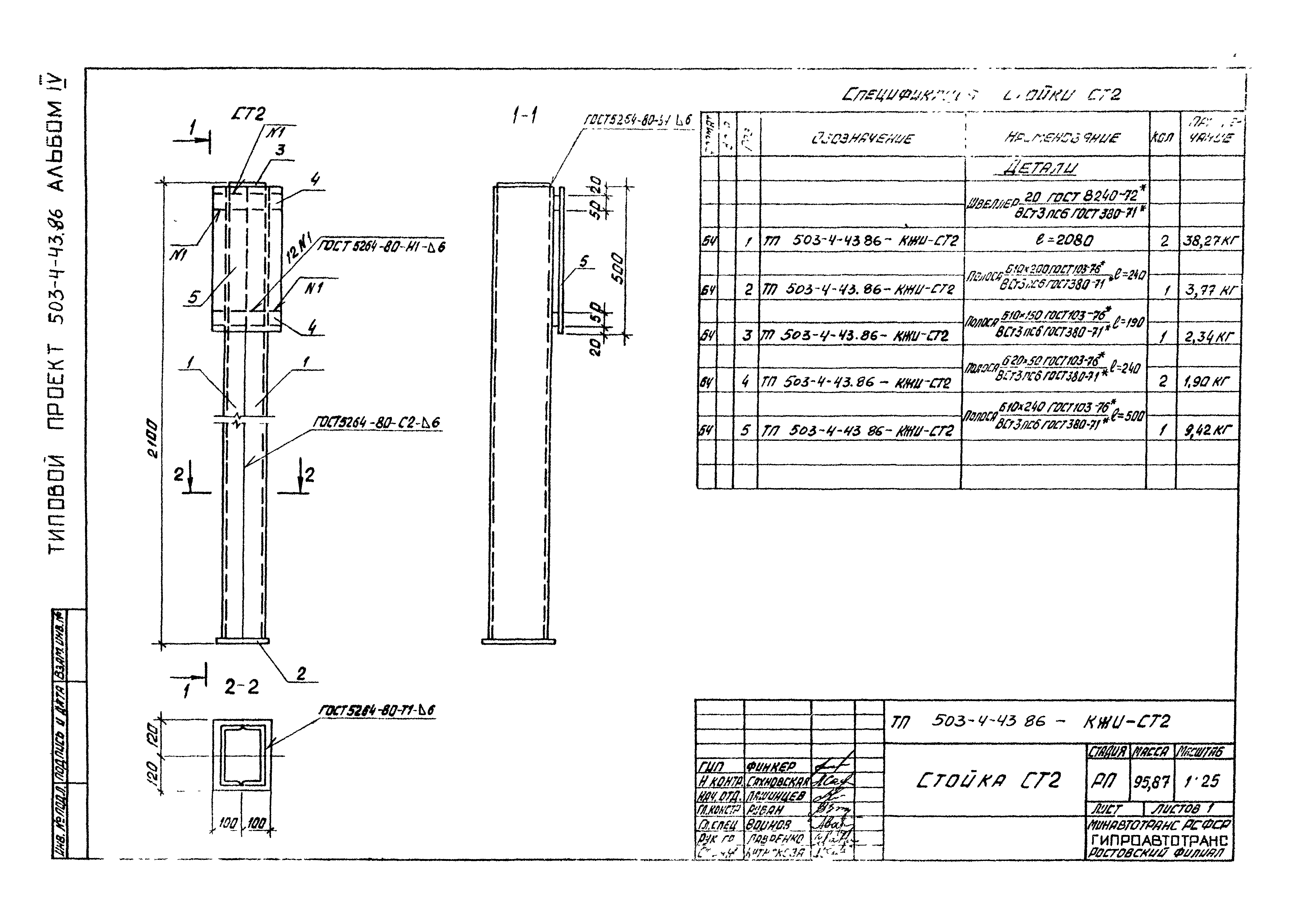
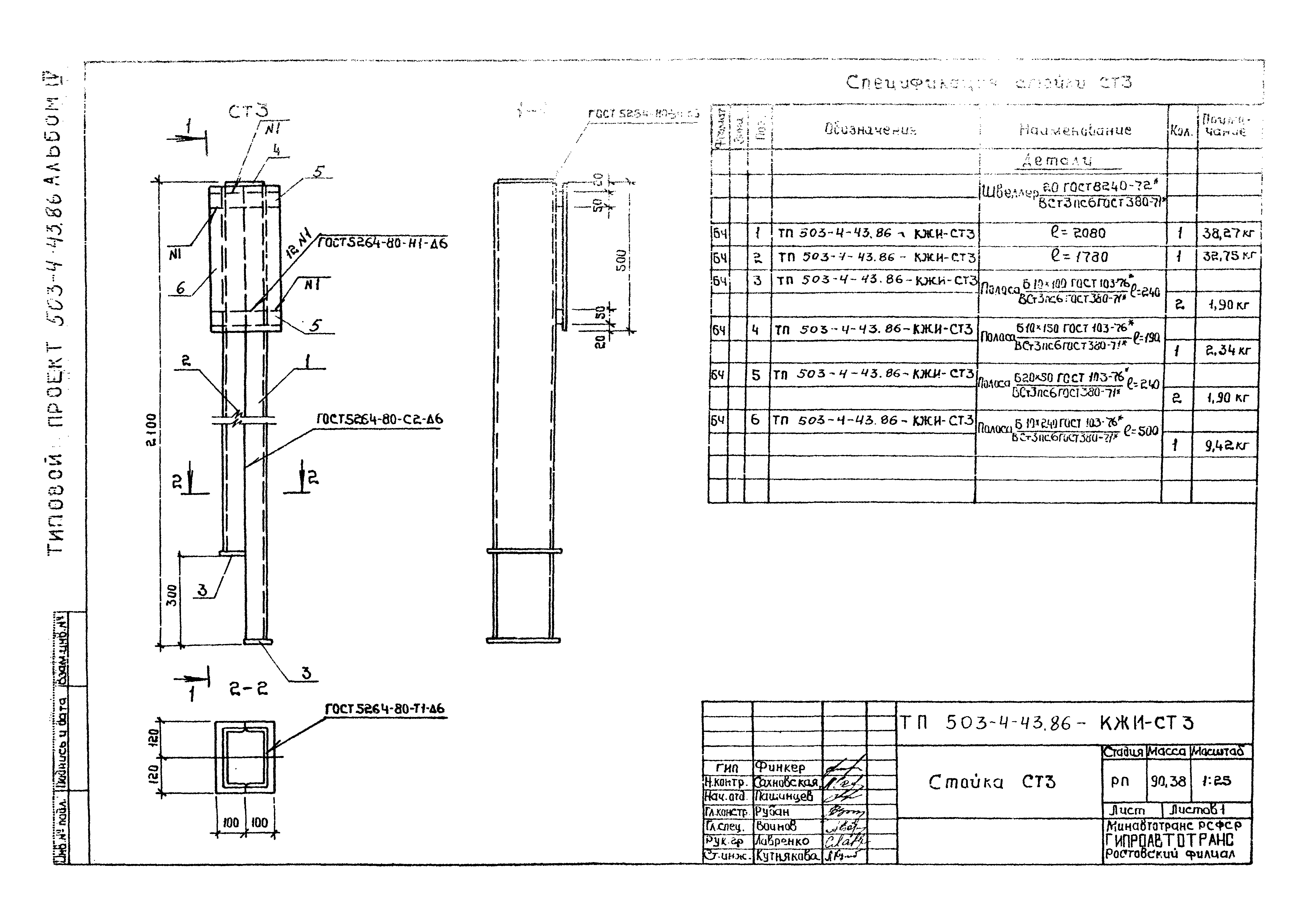
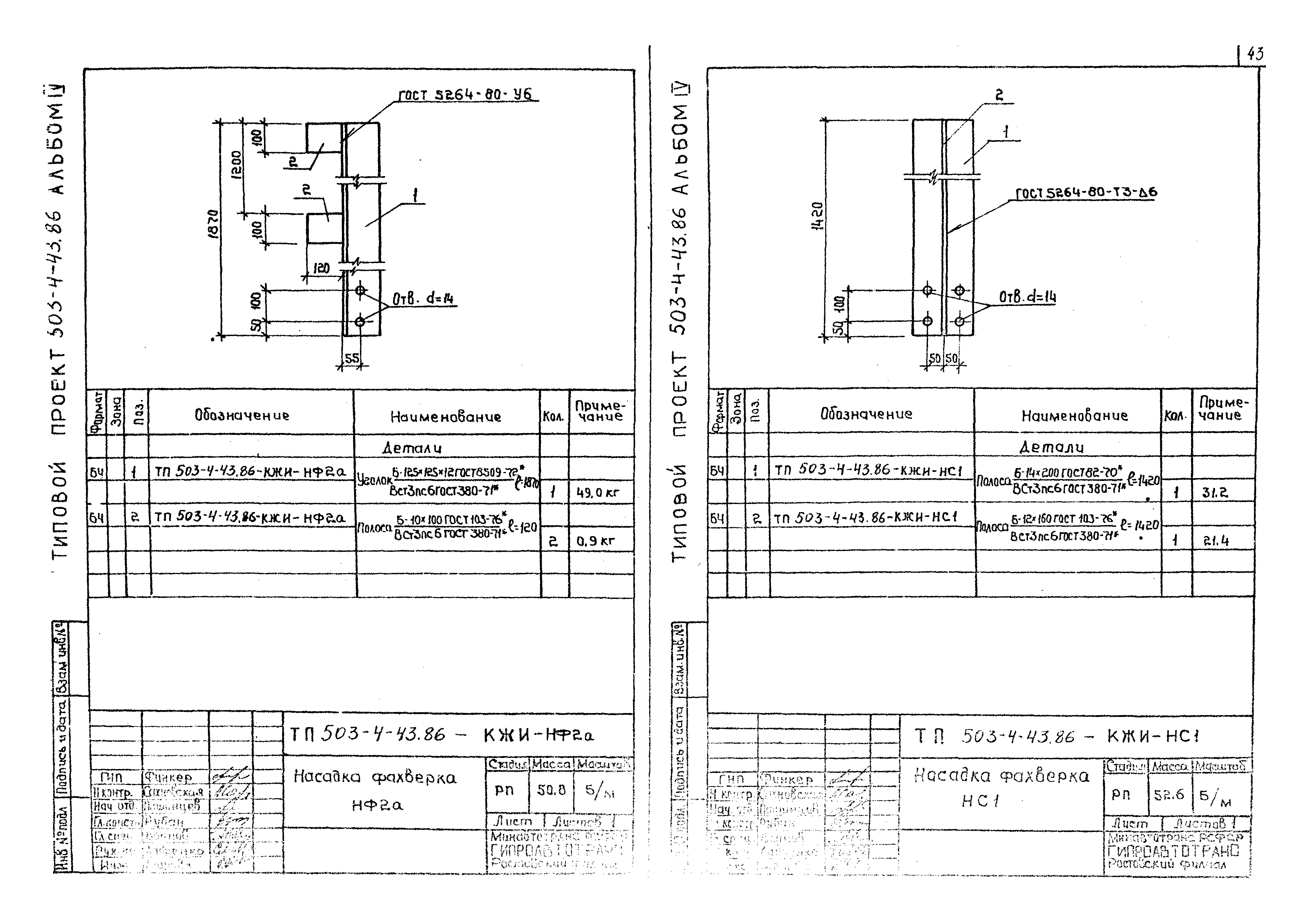
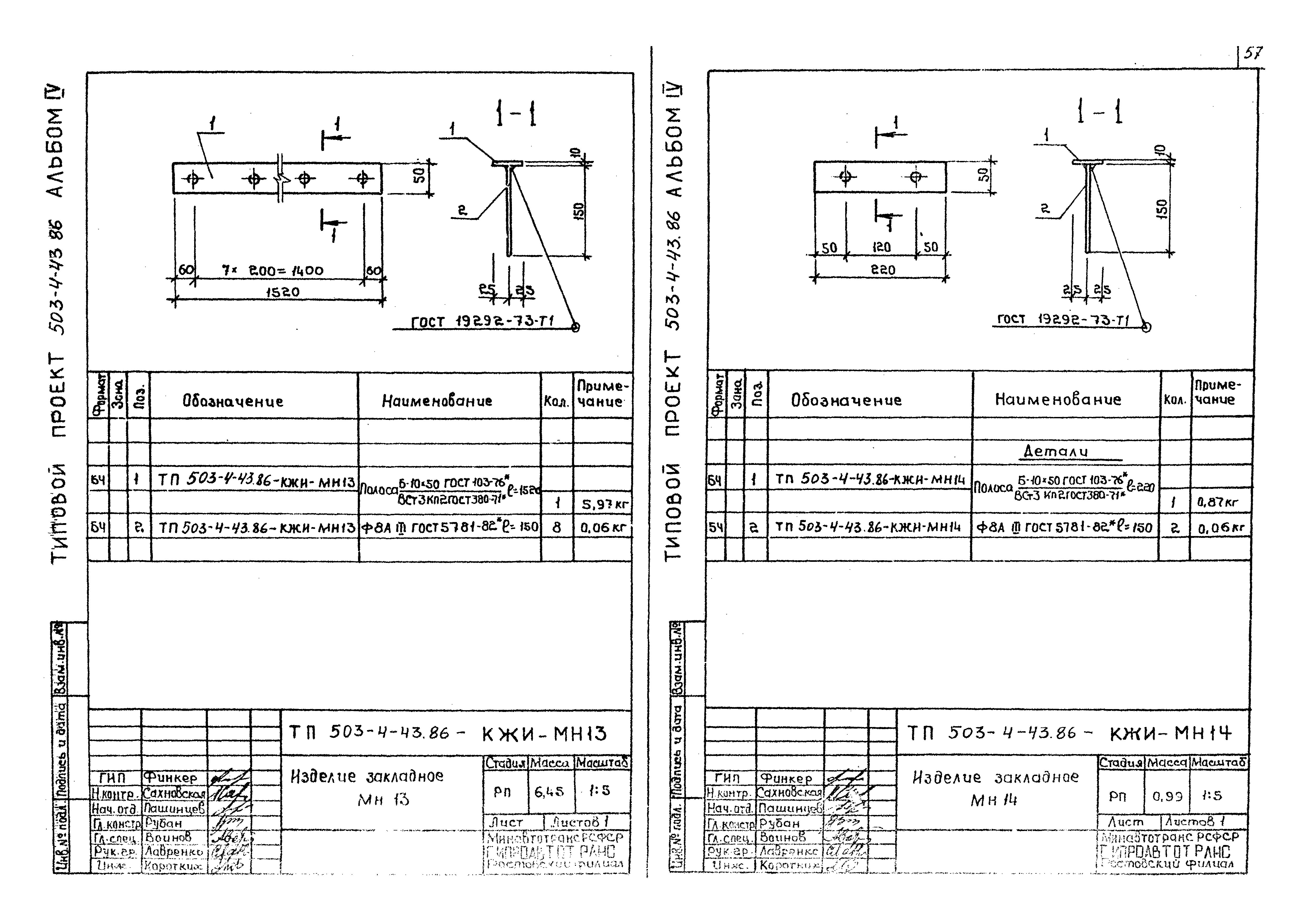
| Оглавление: | ТП 503-4-43.86 Содержание альбома ТП 503-4-43.86 Технические условия по изготовлению изделий ТП 503-4-43.86-КЖИ-К1;К2 СБ Колонны К1;К2 ТП 503-4-43.86-КЖИ-К3;К4 СБ Колонны К3;К4 ТП 503-4-43.86-КЖИ-К5 СБ Колонна К5 ТП 503-4-43.86-КЖИ-К6 СБ Колонна К6 ТП 503-4-43.86-КЖИ-К7;К8 СБ Колонны К7;К8 ТП 503-4-43.86-КЖИ-К9;К10 СБ Колонны К9;К10 ТП 503-4-43.86-КЖИ-К11;К12 СБ Колонны К11;К12 ТП 503-4-43.86-КЖИ-К13;К14 СБ Колонны К13;К14 ТП 503-4-43.86-КЖИ-К15 СБ Колонна К15 ТП 503-4-43.86-КЖИ-К16 СБ Колонна К16 ТП 503-4-43.86-КЖИ-К17 СБ Колонна К17 ТП 503-4-43.86-КЖИ-К18 СБ Колонна К18 ТП 503-4-43.86-КЖИ-К19 СБ Колонна К19 ТП 503-4-43.86-КЖИ-К19 СБ Колонны К20-К23 ТП 503-4-43.86-КЖИ-К24;К27 СБ Колонны К24;К27 ТП 503-4-43.86-КЖИ-К25;К26 СБ Колонны К25;К26 ТП 503-4-43.86-КЖИ-К1-К15 Ведомость дополнительного расхода стали на колонны К1-К15 ТП 503-4-43.86-КЖИ-К16-К27 Ведомость дополнительного расхода стали на колонны К16-К27 ТП 503-4-43.86-КЖИ-Ф1;Ф2 СБ Фермы Ф1;Ф2 ТП 503-4-43.86-КЖИ-Ф3;Ф4 СБ Фермы Ф3;Ф4 ТП 503-4-43.86-КЖИ-Ф1-Ф4 Спецификация ферм Ф1-Ф4. Ведомость дополнительного расхода стали на фермы Ф1-Ф4 ТП 503-4-43.86-КЖИ-Р4 СБ Ригель Р4 ТП 503-4-43.86-КЖИ-ПБ5-ПБ7 СБ Плиты ПБ5-ПБ7 ТП 503-4-43.86-КЖИ-П6-П8 СБ Плиты П6-П8 ТП 503-4-43.86-КЖИ-П9-П11 СБ Плиты П9-П11 ТП 503-4-43.86-КЖИ-П12-П14 СБ Плиты П12-П14 ТП 503-4-43.86-КЖИ-П6-П14 Спецификация и ведомость расхода дополнительной стали на плиты П6-П14 ТП 503-4-43.86-КЖИ-ПС33;ПС34 СБ Панели стен ПС33;ПС34 ТП 503-4-43.86-КЖИ-ПС35;ПС36 СБ Панели стен ПС35;ПС36 ТП 503-4-43.86-КЖИ-ПП19;ПП20 СБ Панели перегородок ПП19;ПП20 ТП 503-4-43.86-КЖИ-ПП21;ПП22 СБ Панели перегородок ПП21;ПП22 ТП 503-4-43.86-КЖИ-ПП23-ПП25 СБ Панели перегородок ПП23-ПП25 ТП 503-4-43.86-КЖИ-ПП26;ПП27 СБ Панели перегородок ПП26;ПП27 ТП 503-4-43.86-КЖИ-ПП16;ПП28;ПП29 СБ Панели перегородок ПП16;ПП28;ПП29 ТП 503-4-43.86-КЖИ-СТ1 Стойка СТ1 ТП 503-4-43.86-КЖИ-СТ2 Стойка СТ2 ТП 503-4-43.86-КЖИ-СТ3 Стойка СТ3 ТП 503-4-43.86-КЖИ-НФ2а Насадка фахверка НФ2а ТП 503-4-43.86-КЖИ-НС1 Насадка фахверка НС1 ТП 503-4-43.86-КЖИ-Т8-а Элемент стальной Т8-а ТП 503-4-43.86-КЖИ-Р1 Решетка Р1 ТП 503-4-43.86-КЖИ-РМ1 Рамка РМ1 ТП 503-4-43.86-КЖИ-РМ2 Рамка РМ2 ТП 503-4-43.86-КЖИ-РМ3 Рамка РМ3 ТП 503-4-43.86-КЖИ-Щ1 Щит Щ1 ТП 503-4-43.86-КЖИ-МС1 Изделие соединительное МС1 ТП 503-4-43.86-КЖИ-МС2,МС3 Изделия соединительные МС2,МС3 ТП 503-4-43.86-КЖИ-МС4 Изделие соединительное МС4 ТП 503-4-43.86-КЖИ-МС5 Изделие соединительное МС5 ТП 503-4-43.86-КЖИ-МС6 Изделие соединительное МС6 ТП 503-4-43.86-КЖИ-МС7 Изделие соединительное МС7 ТП 503-4-43.86-КЖИ-МС8 Изделие соединительное МС8 ТП 503-4-43.86-КЖИ-МС9 Изделие соединительное МС9 ТП 503-4-43.86-КЖИ-МН1 Изделие закладное МН1 ТП 503-4-43.86-КЖИ-МН2 Изделие закладное МН2 ТП 503-4-43.86-КЖИ-МН3 Изделие закладное МН3 ТП 503-4-43.86-КЖИ-МН4 Изделие закладное МН4 ТП 503-4-43.86-КЖИ-МН5 Изделие закладное МН5 ТП 503-4-43.86-КЖИ-МН6 Изделие закладное МН6 ТП 503-4-43.86-КЖИ-МН7 Изделие закладное МН7 ТП 503-4-43.86-КЖИ-МН8 Изделие закладное МН8 ТП 503-4-43.86-КЖИ-МН9 Изделие закладное МН9 ТП 503-4-43.86-КЖИ-МН10 Изделие закладное МН10 ТП 503-4-43.86-КЖИ-МН11 Изделие закладное МН11 ТП 503-4-43.86-КЖИ-МН12 Изделие закладное МН12 ТП 503-4-43.86-КЖИ-МН13 Изделие закладное МН13 ТП 503-4-43.86-КЖИ-МН14 Изделие закладное МН14 ТП 503-4-43.86-КЖИ-МН15;МН16 Изделия закладные МН15;МН16 ТП 503-4-43.86-КЖИ-МН17 Изделие закладное МН17 ТП 503-4-43.86-КЖИ-МН18 Изделие закладное МН18 ТП 503-4-43.86-КЖИ-МН19 Изделие закладное МН19 ТП 503-4-43.86-КЖИ-МН20 Изделие закладное МН20 ТП 503-4-43.86-КЖИ-МН21 Изделие закладное МН21 ТП 503-4-43.86-КЖИ-МН22 Изделие закладное МН22 ТП 503-4-43.86-КЖИ-МН23 Изделие закладное МН23 ТП 503-4-43.86-КЖИ-МН24 Изделие закладное МН24 ТП 503-4-43.86-КЖИ-МН25 Изделие закладное МН25 ТП 503-4-43.86-КЖИ-МН26 Изделие закладное МН26 ТП 503-4-43.86-КЖИ-МН27 Изделие закладное МН27 ТП 503-4-43.86-КЖИ-МН28 Изделие закладное МН28 ТП 503-4-43.86-КЖИ-МН29 Изделие закладное МН29 ТП 503-4-43.86-КЖИ-МН30 Изделие закладное МН30 ТП 503-4-43.86-КЖИ-МН31 Изделие закладное МН31 ТП 503-4-43.86-КЖИ-МН32 Изделие закладное МН32 ТП 503-4-43.86-КЖИ-МН33 Изделие закладное МН33 ТП 503-4-43.86-КЖИ-А1;А2 Анкера А1;А2 ТП 503-4-43.86-КЖИ-А3;А4 Анкера А3;А4 ТП 503-4-43.86-КЖИ-КР1;КР4 Каркасы плоские КР1;КР4 ТП 503-4-43.86-КЖИ-КР2;КР3 Каркасы плоские КР2;КР3 ТП 503-4-43.86-КЖИ-С1 Сетка арматурная С1 ТП 503-4-43.86-КЖИ-С2 Сетка арматурная С2 ТП 503-4-43.86-КЖИ-С3 Сетка арматурная С3 ТП 503-4-43.86-КЖИ-С4 Сетка арматурная С4 ТП 503-4-43.86-КЖИ-С5 Сетка арматурная С5 ТП 503-4-43.86-КЖИ-А5 Анкер А5 ТП 503-4-43.86-КЖИ-А6 Анкер А6 ТП 503-4-43.86-КЖИ-А7 Анкер А7 ТП 503-4-43.86-КЖИ-А8 Анкер А8 ТП 503-4-43.86-КЖИ-РДМ1 Рама двери РДМ1 ТП 503-4-43.86-КЖИ-РВМ1 Рама ворот РВМ1 ТП 503-4-43.86-КЖИ-МС1 Монтажная деталь МС1 ТП 503-4-43.86-КЖИ-МС2 Соединительная деталь МС2 ТП 503-4-43.86-КЖИ-МС3 Соединительная деталь МС3 |
| Разработан: | Ростовский филиал Гипроавтотранса Минавтотранса РСФСР |
| Утверждён: | 30.09.1986 Минавтотранс РСФСР (Russian Federation Minavtotrans 22) |
| Издан: | ЦИТП Госстроя СССР (CITP, Gosstroy (USSR) 1988 г. ) |
| Заменяет собой: |
|
| Нормативные ссылки: |







































































