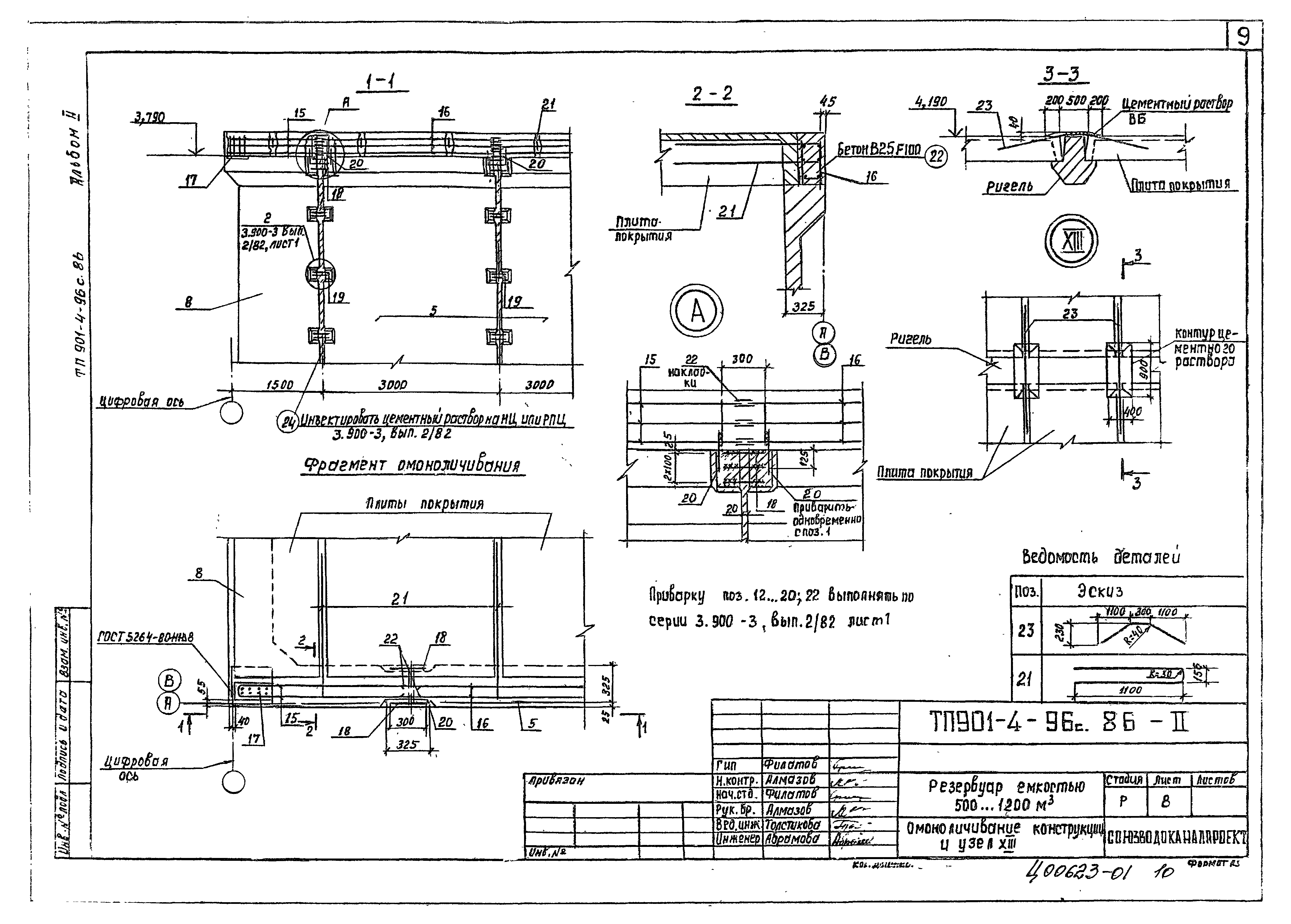
Скачать Типовой проект 901-4-96с.86 Альбом II. Конструкции железобетонныеДата актуализации: 01.01.2021
|
| Обозначение: | Типовой проект 901-4-96с.86 |
| Обозначение англ: | 901-4-96с.86 |
| Статус: | не определен законодательством |
| Название рус.: | Альбом II. Конструкции железобетонные |
| Дата добавления в базу: | 01.09.2013 |
| Дата актуализации: | 01.01.2021 |
| Дата введения: | 10.10.1986 |
| Дата окончания срока действия: | 30.06.2003 |
| Разработан: | ЦНИИпромзданий |
| Утверждён: | 18.08.1986 Госстрой СССР (Государственный комитет Совета Министров СССР по делам строительства) (USSR Gosstroy АЧ-53) |






















