Скачать Типовой проект 213-2-183 Альбом I. Общая пояснительная запискаДата актуализации: 01.01.2021
|
| Обозначение: | Типовой проект 213-2-183 |
| Обозначение англ: | 213-2-183 |
| Статус: | действует |
| Название рус.: | Альбом I. Общая пояснительная записка |
| Дата добавления в базу: | 01.09.2013 |
| Дата актуализации: | 01.01.2021 |
| Дата введения: | 27.11.1979 |
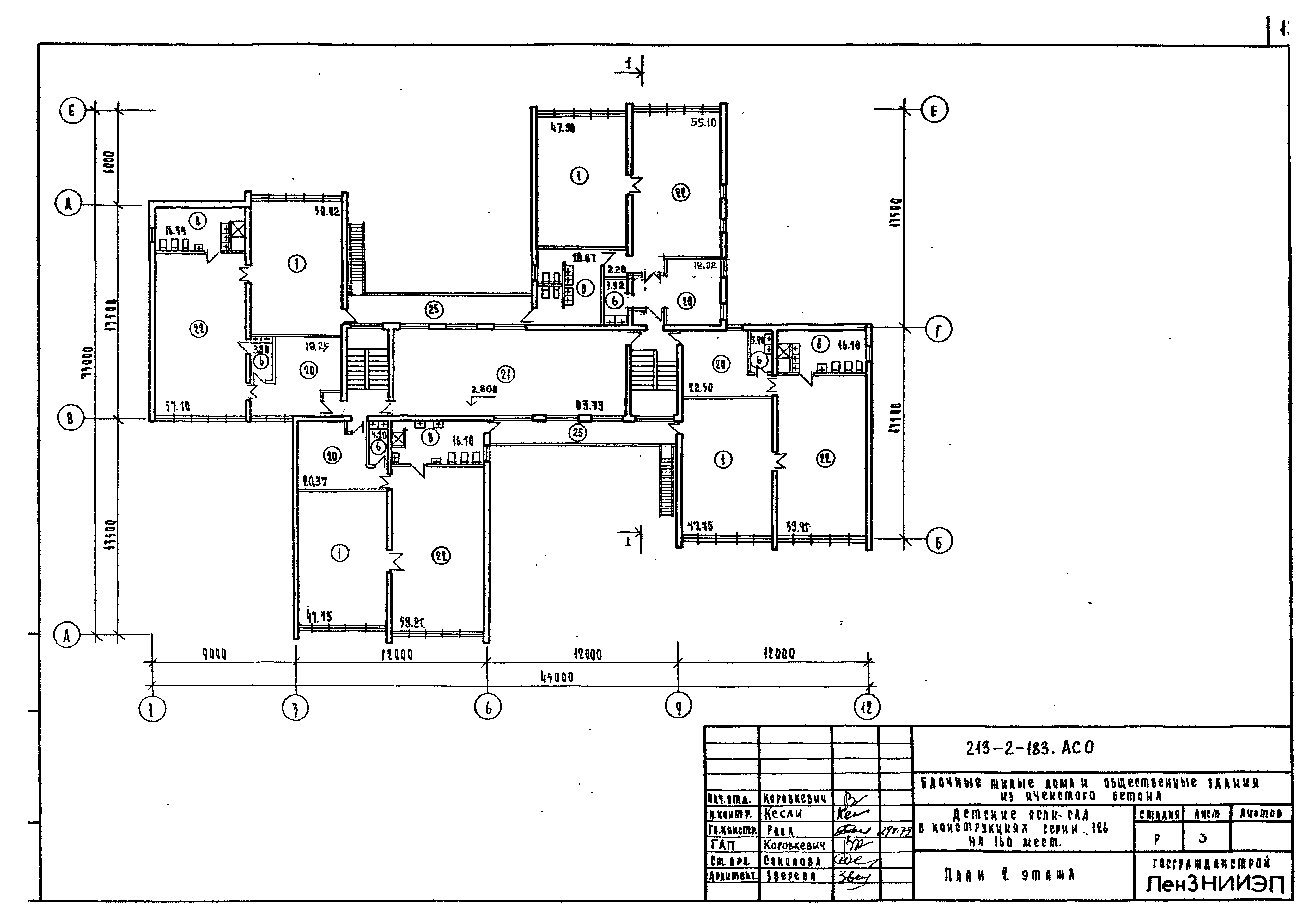
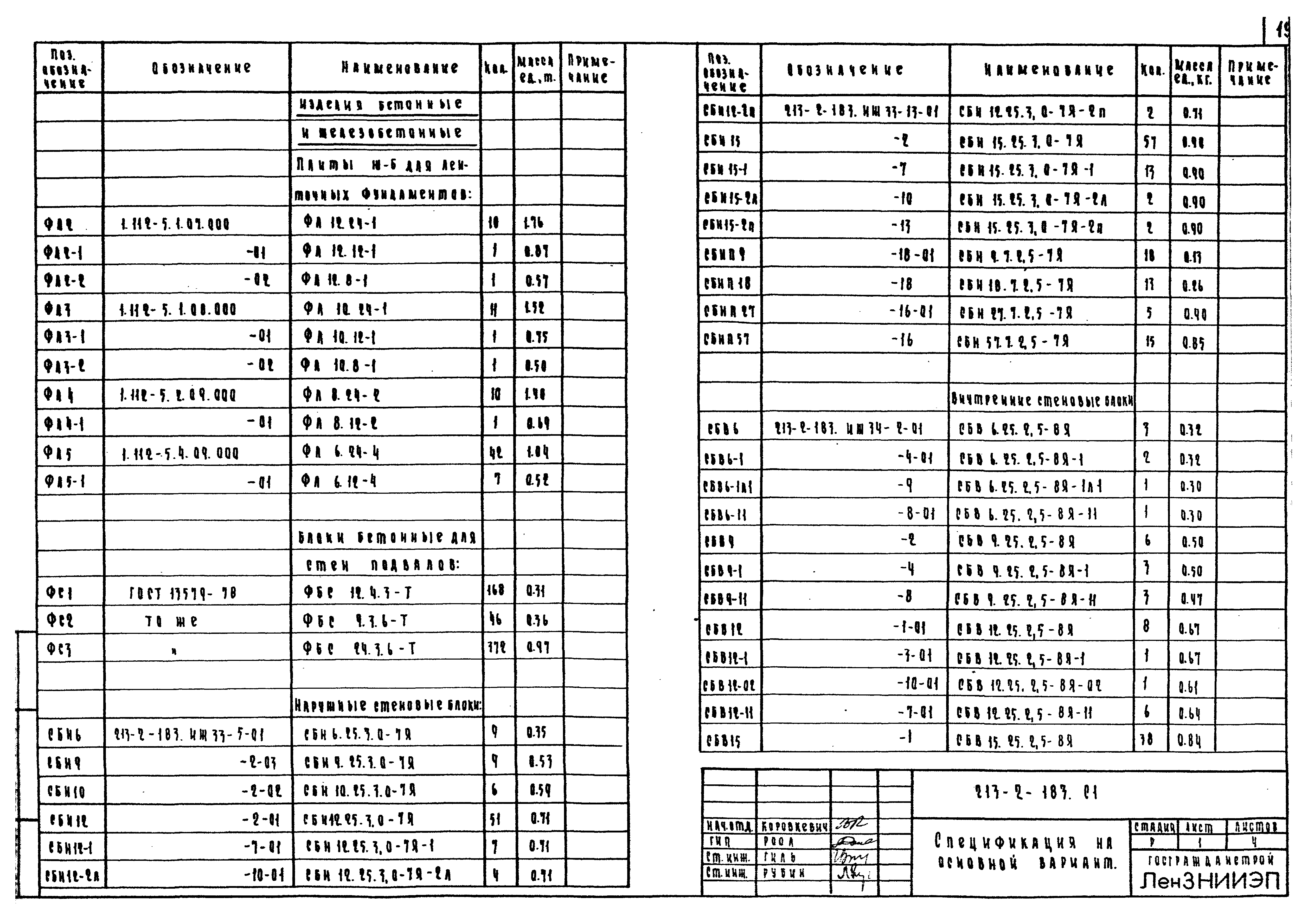
| Оглавление: | 213-2-183 Титульный лист 213-2-183 Опись альбома 213-2-183 СП Состав проекта (комплектация) 213-2-183 ПЗ Пояснительная записка 213-2-183 ПЗ 1 Общая часть 213-2-183 ПЗ 2 Архитектурно-строительная часть 213-2-183 ПЗ 3 Инженерное оборудование 213-2-183 ПЗ 4 Указания по производству работ 213-2-183 ПЗ 5 Защита строительных конструкций 213-2-183 ПЗ 6 Указания по производству работ в зимних условиях 213-2-183 ПЗ 7 Указания по привязке проекта 213-2-183 АСО Генплан 213-2-183 АСО План 1 этажа 213-2-183 АСО План 2 этажа 213-2-183 АСО Фасады 1-12,12-1 213-2-183 АСО Фасады А-Е,Е-А 213-2-183 АСО План подвала. Разрез 1-1 213-2-183 ПД Ведомость примененных документов 213-2-183 С1 Спецификация на основной вариант 213-2-183 С2 Спецификация на варианты |
| Разработан: | ЛенЗНИИЭП Госгражданстроя |
| Утверждён: | 03.05.1979 Госгражданстрой (Gosgrazhdanstroy 90) |























