Скачать Типовой проект 213-2-183 Альбом V. Изделия заводского изготовленияДата актуализации: 01.01.2021
|
| Обозначение: | Типовой проект 213-2-183 |
| Обозначение англ: | 213-2-183 |
| Статус: | действует |
| Название рус.: | Альбом V. Изделия заводского изготовления |
| Дата добавления в базу: | 01.09.2013 |
| Дата актуализации: | 01.01.2021 |
| Дата введения: | 27.11.1979 |
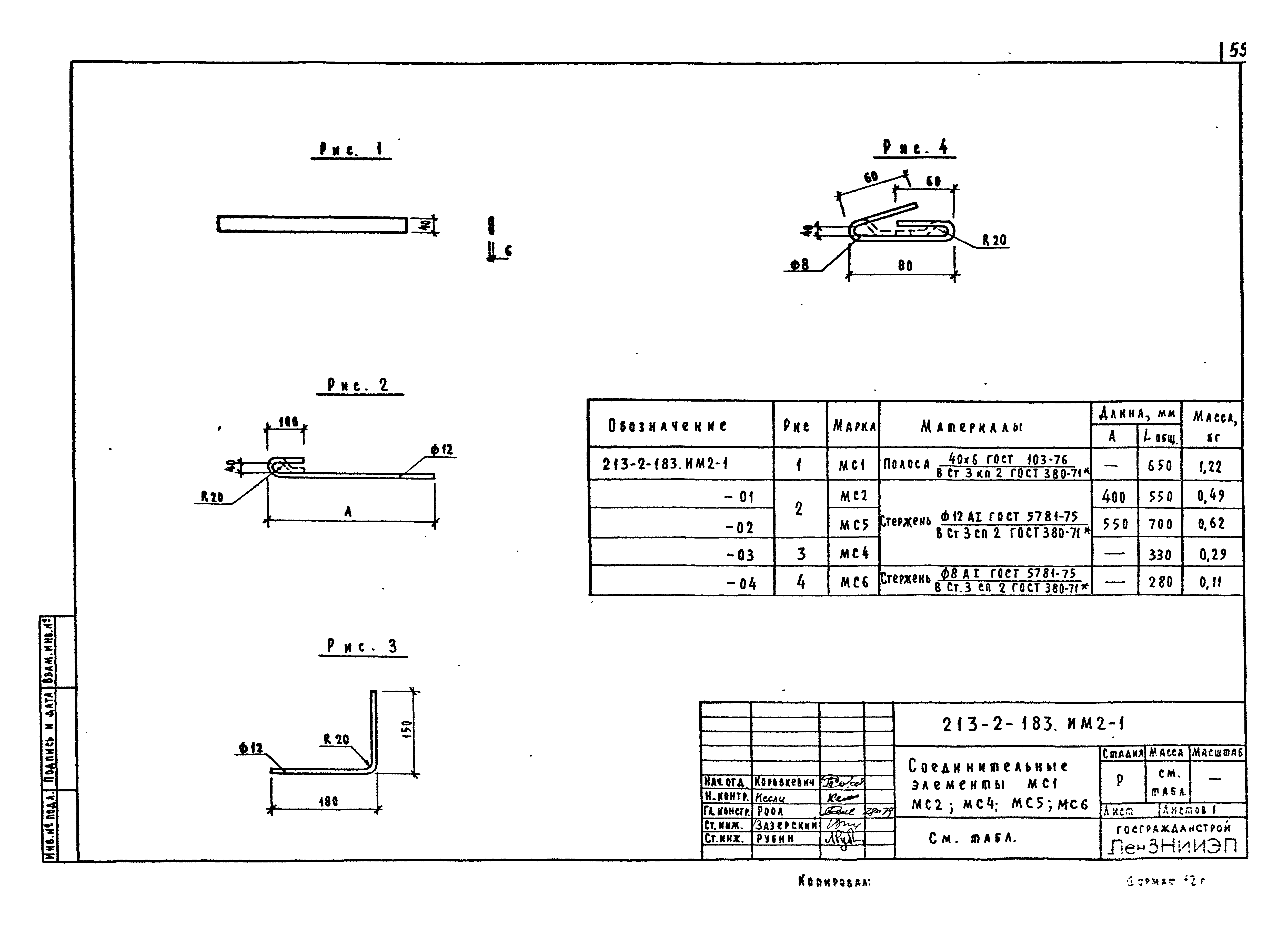
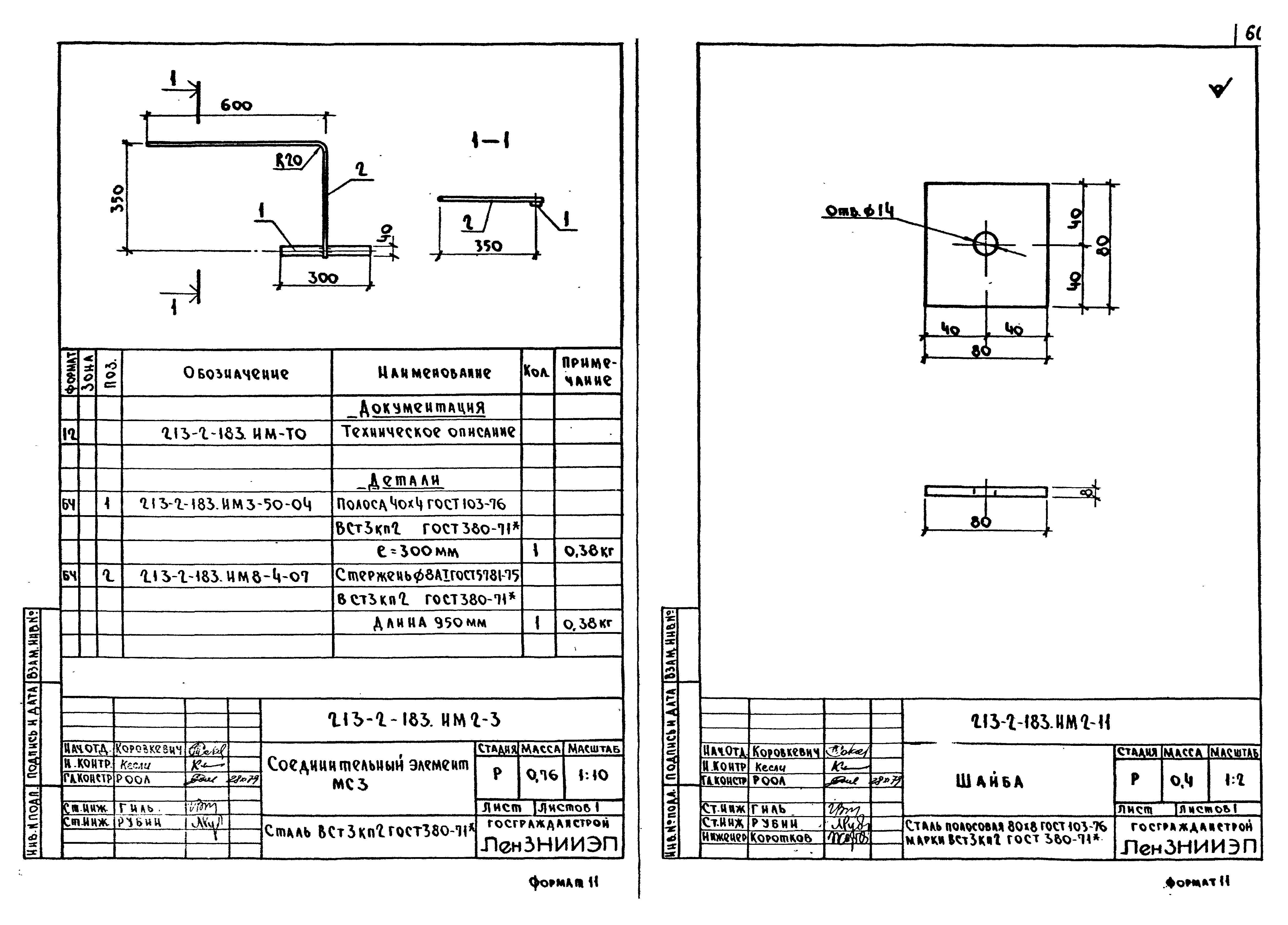
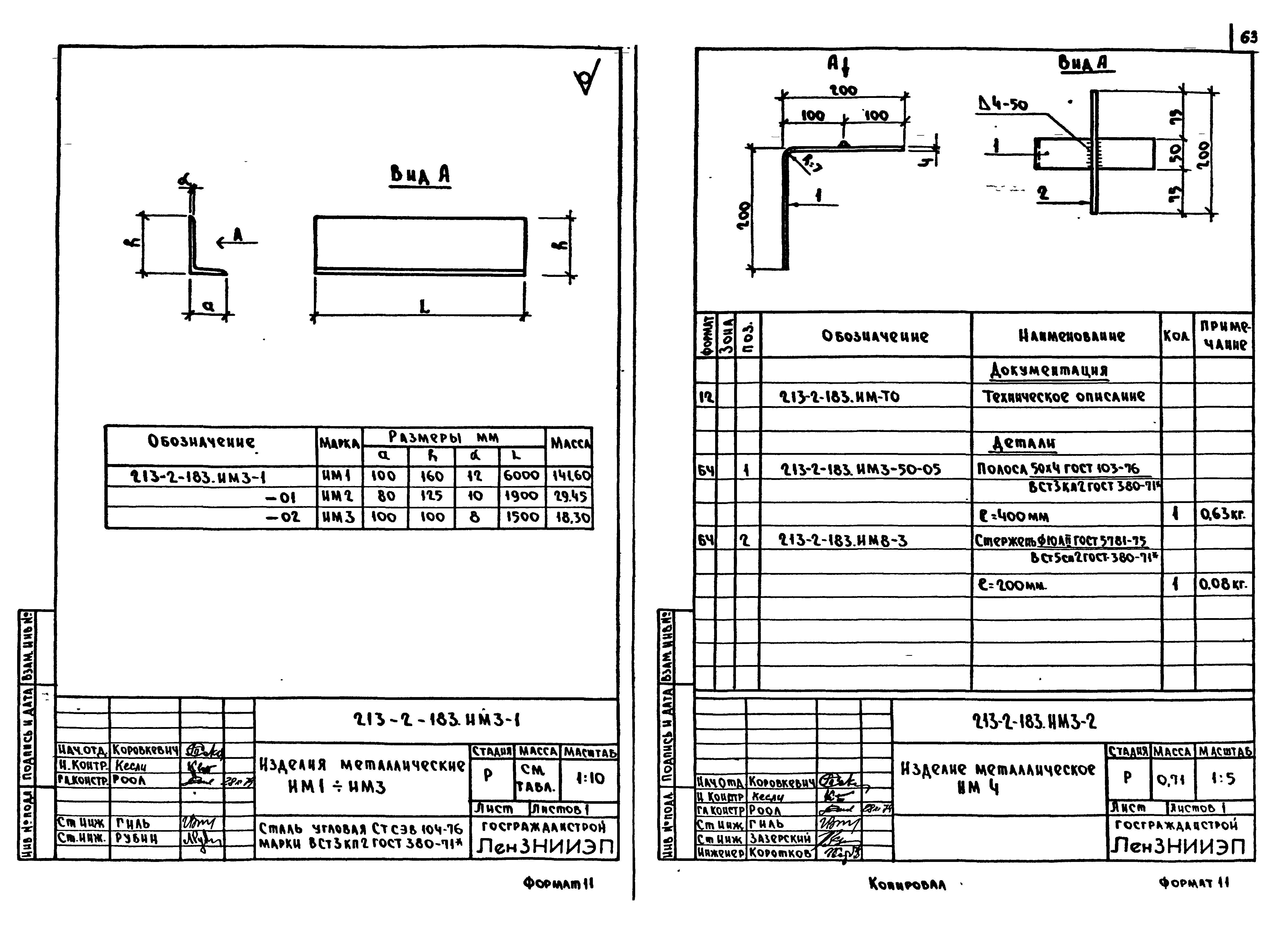
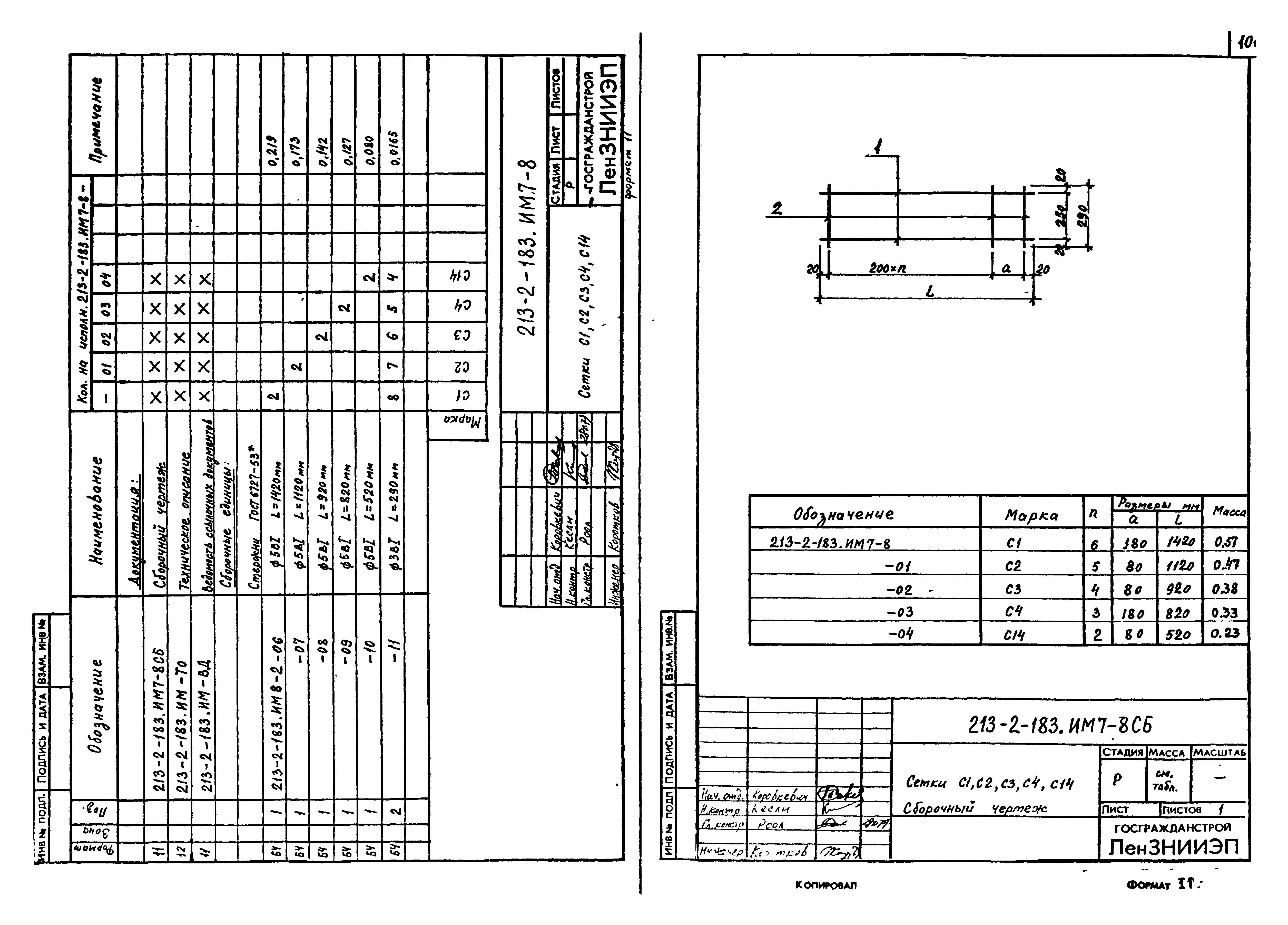
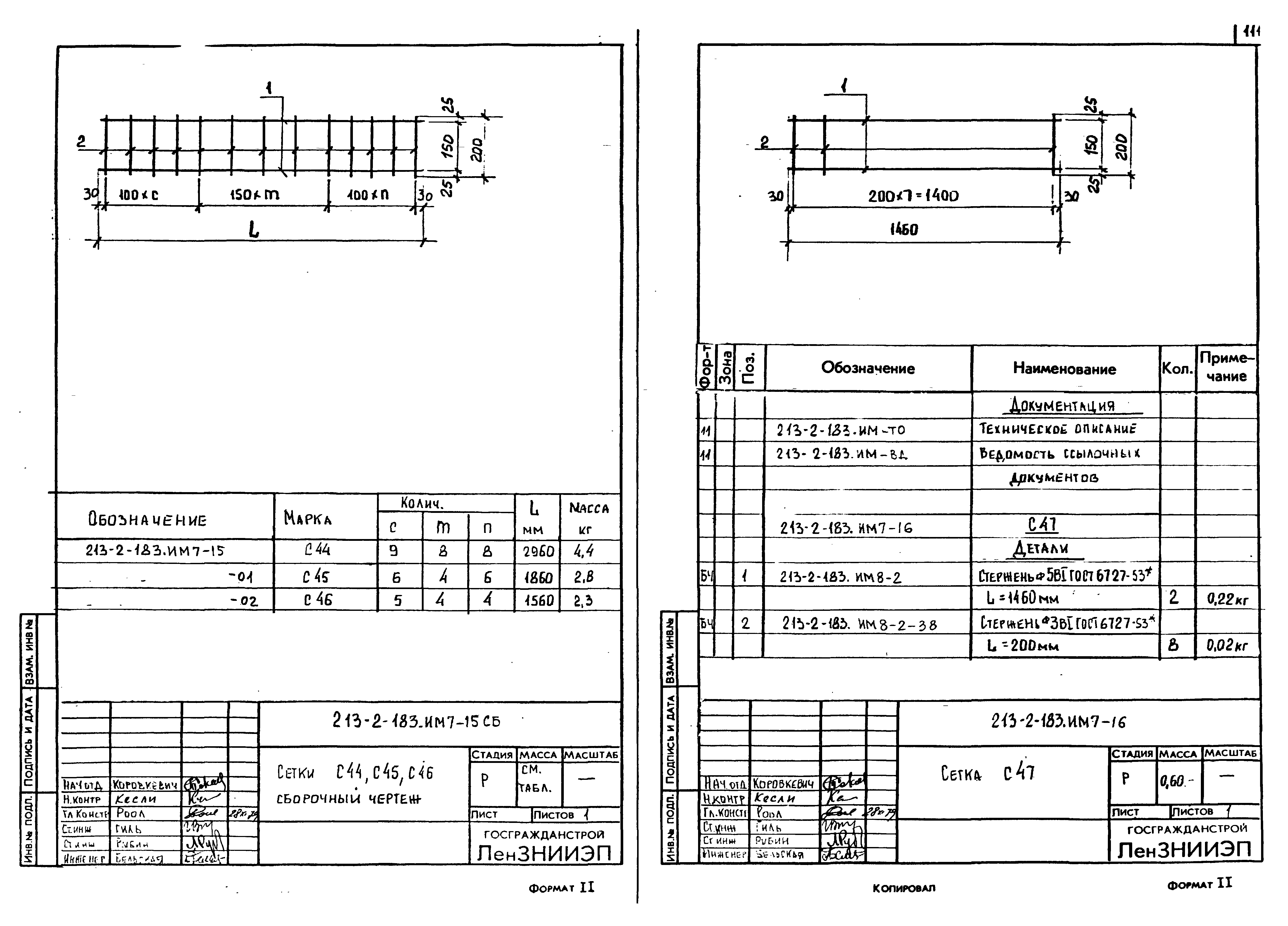
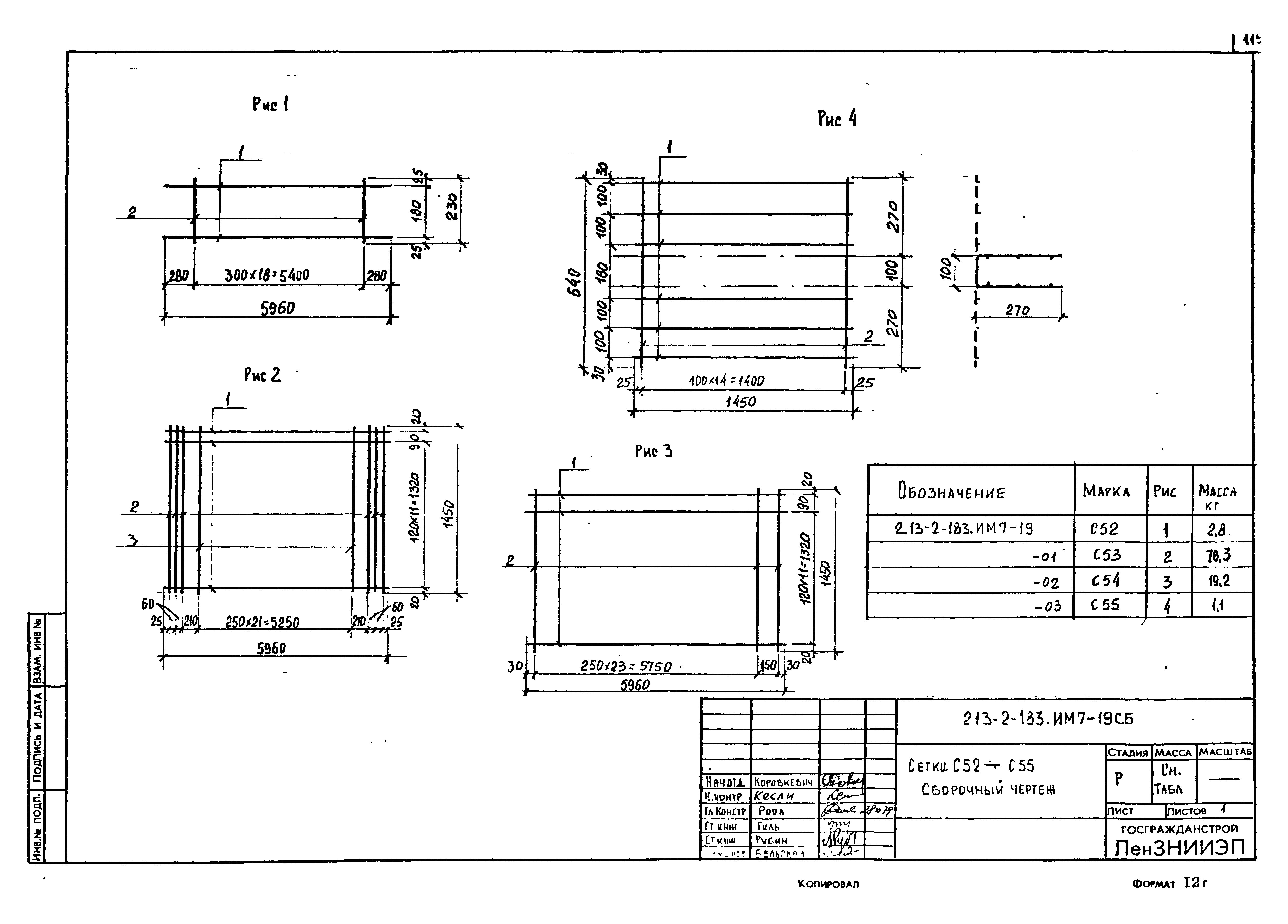
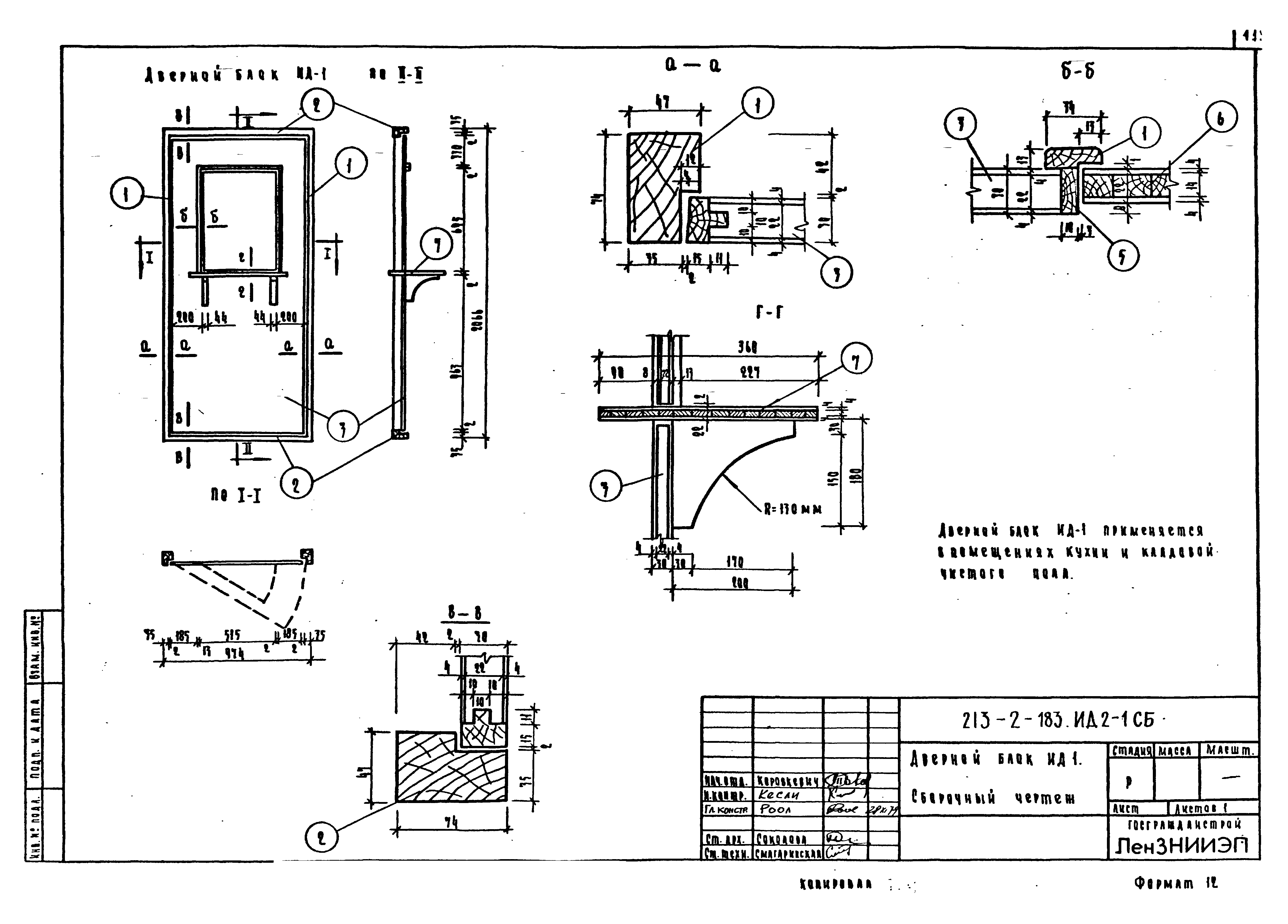
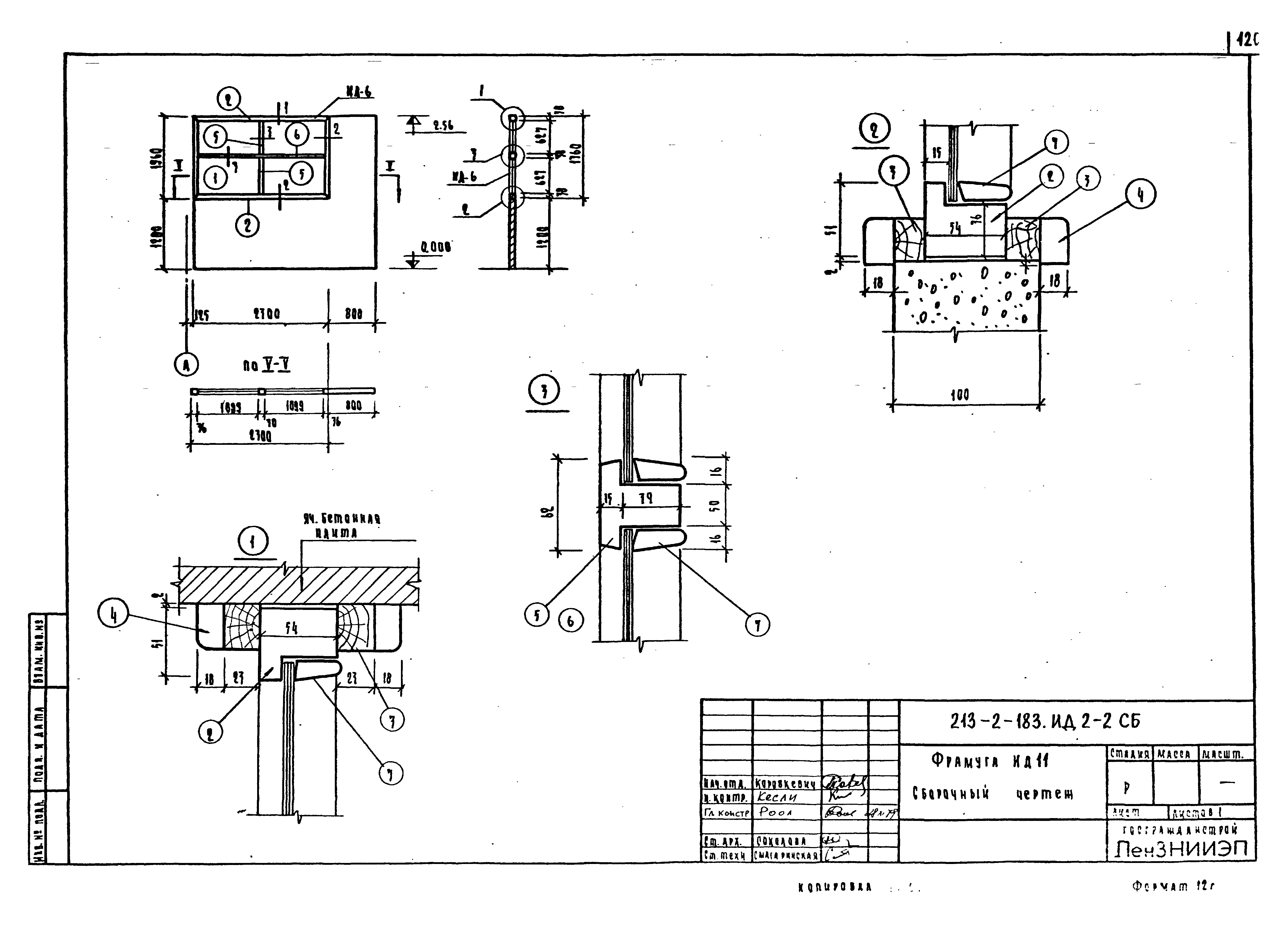
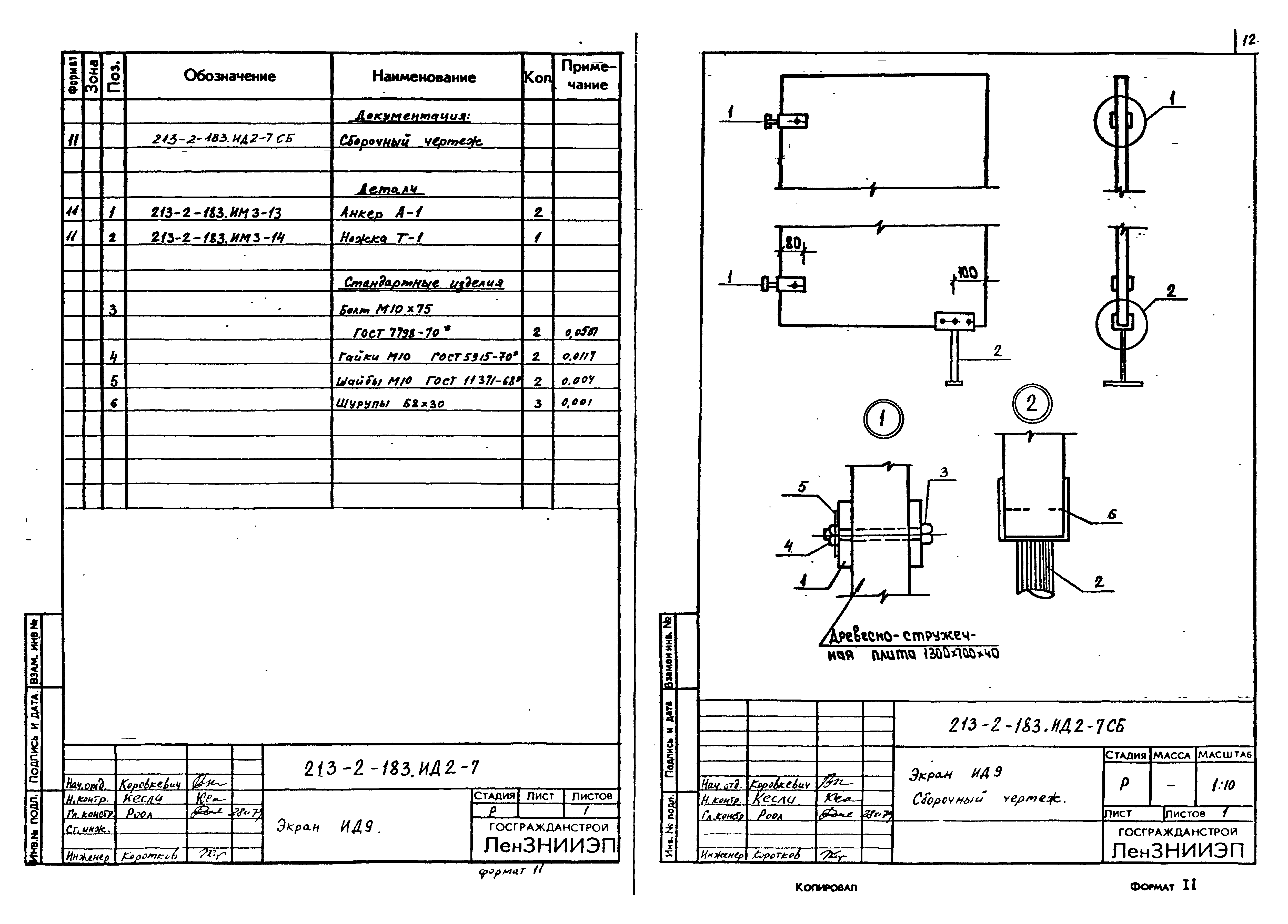
| Оглавление: | 213-2-183 Титульный лист 213-2-183 Опись альбома 213-2-183.ИЖ-ВД Ведомость ссылочных документов 213-2-183.ИЖ-ТО Техническое описание 213-2-183.ИЖ-НИ Номенклатура изделий 213-2-183.ИЖ-ВС Выборка стали 213-2-183.ИЖ33-1 Стеновые блоки наружные СБН15.25.3,5-7Я,СБН12.25.3,5-7Я,СБН10.25.3,5-7Я,СБН9.25.3,5-7Я 213-2-183.ИЖ33-1 СБ Стеновые блоки наружные СБН15.25.3,5-7Я,СБН12.25.3,5-7Я,СБН10.25.3,5-7Я,СБН9.25.3,5-7Я. Сборочный чертеж 213-2-183.ИЖ33-2 Стеновые блоки наружные СБН15.25.3,0-7Я,СБН12.25.3,0-7Я,СБН10.25.3,0-7Я,СБН9.25.3,0-7Я 213-2-183.ИЖ33-2 СБ Стеновые блоки наружные СБН15.25.3,0-7Я,СБН12.25.3,0-7Я,СБН10.25.3,0-7Я,СБН9.25.3,0-7Я. Сборочный чертеж 213-2-183.ИЖ33-3 Стеновые блоки наружные СБН15.25.2,5-7Я,СБН12.25.2,5-7Я,СБН10.25.2,5-7Я 213-2-183.ИЖ33-3 СБ Стеновые блоки наружные СБН15.25.2,5-7Я,СБН12.25.2,5-7Я,СБН10.25.2,5-7Я. Сборочный чертеж 213-2-183.ИЖ33-4 Стеновые блоки наружные СБН9.25.2,5-7Я,СБН6.25.2,5-7Я 213-2-183.ИЖ33-4 СБ Стеновые блоки наружные СБН9.25.2,5-7Я,СБН6.25.2,5-7Я. Сборочный чертеж 213-2-183.ИЖ33-5 Стеновые блоки наружные СБН6.25.3,5-7Я,СБН6.25.3,0-7Я 213-2-183.ИЖ33-5 СБ Стеновые блоки наружные СБН6.25.3,5-7Я,СБН6.25.3,0-7Я. Сборочный чертеж 213-2-183.ИЖ33-6 Стеновые блоки наружные СБН15.25.3,5-7Я-1,СБН12.25.3,5-7Я-1 213-2-183.ИЖ33-6 СБ Стеновые блоки наружные СБН15.25.3,5-7Я-1,СБН12.25.3,5-7Я-1. Сборочный чертеж 213-2-183.ИЖ33-7 Стеновые блоки наружные СБН15.25.3,0-7Я-1,СБН12.25.3,0-7Я-1 213-2-183.ИЖ33-7 СБ Стеновые блоки наружные СБН15.25.3,0-7Я-1,СБН12.25.3,0-7Я-1. Сборочный чертеж 213-2-183.ИЖ33-8 Стеновые блоки наружные СБН15.25.2,5-7Я-1,СБН12.25.2,5-7Я-1 213-2-183.ИЖ33-8 СБ Стеновые блоки наружные СБН15.25.2,5-7Я-1,СБН12.25.2,5-7Я-1. Сборочный чертеж 213-2-183.ИЖ33-9 Стеновые блоки наружные СБН15.25.3,5-7Я-2л,СБН12.25.3,5-7Я-2л 213-2-183.ИЖ33-9 СБ Стеновые блоки наружные СБН15.25.3,5-7Я-2л,СБН12.25.3,5-7Я-2л. Сборочный чертеж 213-2-183.ИЖ33-10 Стеновые блоки наружные СБН15.25.3,0-7Я-2л,СБН12.25.3,0-7Я-2л 213-2-183.ИЖ33-10 СБ Стеновые блоки наружные СБН15.25.3,0-7Я-2л,СБН12.25.3,0-7Я-2л. Сборочный чертеж 213-2-183.ИЖ33-11 Стеновые блоки наружные СБН15.25.2,5-7Я-2л,СБН12.25.2,5-7Я-2л 213-2-183.ИЖ33-11 СБ Стеновые блоки наружные СБН15.25.2,5-7Я-2л,СБН12.25.2,5-7Я-2л. Сборочный чертеж 213-2-183.ИЖ33-12 Стеновые блоки наружные СБН15.25.3,5-7Я-2п,СБН12.25.3,5-7Я-2п 213-2-183.ИЖ33-12 СБ Стеновые блоки наружные СБН15.25.3,5-7Я-2п,СБН12.25.3,5-7Я-2п. Сборочный чертеж 213-2-183.ИЖ33-13 Стеновые блоки наружные СБН15.25.3,0-7Я-2п,СБН12.25.3,0-7Я-2п 213-2-183.ИЖ33-13 СБ Стеновые блоки наружные СБН15.25.3,0-7Я-2п,СБН12.25.3,0-7Я-2п. Сборочный чертеж 213-2-183.ИЖ33-14 Стеновые блоки наружные СБН15.25.2,5-7Я-2п,СБН12.25.2,5-7Я-2п 213-2-183.ИЖ33-14 СБ Стеновые блоки наружные СБН15.25.2,5-7Я-2п,СБН12.25.2,5-7Я-2п. Сборочный чертеж 213-2-183.ИЖ33-15 Стеновые блоки наружные СБН57.7.3,0-7Я,СБН27.7.3,0-7Я 213-2-183.ИЖ33-15 СБ Стеновые блоки наружные СБН57.7.3,0-7Я,СБН27.7.3,0-7Я. Сборочный чертеж 213-2-183.ИЖ33-16 Стеновые блоки наружные СБН57.7.2,5-7Я,СБН27.7.2,5-7Я 213-2-183.ИЖ33-16 СБ Стеновые блоки наружные СБН57.7.2,5-7Я,СБН27.7.2,5-7Я. Сборочный чертеж 213-2-183.ИЖ33-17 Стеновые блоки наружные СБН18.7.3,0-7Я,СБН9.7.3,0-7Я 213-2-183.ИЖ33-17 СБ Стеновые блоки наружные СБН18.7.3,0-7Я,СБН9.7.3,0-7Я. Сборочный чертеж 213-2-183.ИЖ33-18 Стеновые блоки наружные СБН18.7.2,5-7Я,СБН9.7.2,5-7Я 213-2-183.ИЖ33-18 СБ Стеновые блоки наружные СБН18.7.2,5-7Я,СБН9.7.2,5-7Я. Сборочный чертеж 213-2-183.ИЖ34-1 Стеновые блоки внутренние СБВ15.25.2,5-8Я,СБВ12.25.2,5-8Я 213-2-183.ИЖ34-1 СБ Стеновые блоки внутренние СБВ15.25.2,5-8Я,СБВ12.25.2,5-8Я. Сборочный чертеж 213-2-183.ИЖ34-2 Стеновые блоки внутренние СБВ9.25.2,5-8Я,СБВ6.25.2,5-8Я 213-2-183.ИЖ34-2 СБ Стеновые блоки внутренние СБВ9.25.2,5-8Я,СБВ6.25.2,5-8Я. Сборочный чертеж 213-2-183.ИЖ34-3 Стеновые блоки внутренние СБВ15.25.2,5-8Я-1,СБВ12.25.2,5-8Я-1 213-2-183.ИЖ34-3 СБ Стеновые блоки внутренние СБВ15.25.2,5-8Я-1,СБВ12.25.2,5-8Я-1. Сборочный чертеж 213-2-183.ИЖ34-4 Стеновые блоки внутренние СБВ9.25.2,5-8Я-1,СБВ6.25.2,5-8Я-1 213-2-183.ИЖ34-4 СБ Стеновые блоки внутренние СБВ9.25.2,5-8Я-1,СБВ6.25.2,5-8Я-1. Сборочный чертеж 213-2-183.ИЖ34-5 Стеновой блок внутренний СБВ15.25.2,5-8Я-2л 213-2-183.ИЖ34-5 СБ Стеновой блок внутренний СБВ15.25.2,5-8Я-2л. Сборочный чертеж 213-2-183.ИЖ34-6 Стеновой блок внутренний СБВ15.25.2,5-8Я-2п 213-2-183.ИЖ34-6 СБ Стеновой блок внутренний СБВ15.25.2,5-8Я-2п. Сборочный чертеж 213-2-183.ИЖ34-7 Стеновые блоки внутренние СБВ15.25.2,5-8Я-11,СБВ12.25.2,5-8Я-11 213-2-183.ИЖ34-7 СБ Стеновые блоки внутренние СБВ15.25.2,5-8Я-11,СБВ12.25.2,5-8Я-11. Сборочный чертеж 213-2-183.ИЖ34-8 Стеновые блоки внутренние СБВ9.25.2,5-8Я-11,СБВ6.25.2,5-8Я-11 213-2-183.ИЖ34-8 СБ Стеновые блоки внутренние СБВ9.25.2,5-8Я-11,СБВ6.25.2,5-8Я-11. Сборочный чертеж 213-2-183.ИЖ34-9 Стеновой блок внутренний СБВ6.25.2,5-8Я-1л1 213-2-183.ИЖ34-9 СБ Стеновой блок внутренний СБВ6.25.2,5-8Я-1л1. Сборочный чертеж 213-2-183.ИЖ34-10 Стеновые блоки внутренние СБВ15.25.2,5-8Я-02,СБВ12.25.2,5-8Я-02 213-2-183.ИЖ34-10 СБ Стеновые блоки внутренние СБВ15.25.2,5-8Я-02,СБВ12.25.2,5-8Я-02. Сборочный чертеж 213-2-183.ИЖ32-1 Панель стеновая парапетная ПСП63.12.2,5-7Я-0 213-2-183.ИЖ32-1 СБ Панель стеновая парапетная ПСП63.12.2,5-7Я-0. Сборочный чертеж 213-2-183.ИЖ32-2 Панели стеновые парапетные ПСП62.9.2,5-7Я-1,ПСП31.9.2,5-7Я-1,ПСП15.9.2,5-7Я-1 213-2-183.ИЖ32-2 СБ Панели стеновые парапетные ПСП62.9.2,5-7Я-1,ПСП31.9.2,5-7Я-1,ПСП15.9.2,5-7Я-1. Сборочный чертеж 213-2-183.ИЖ32-3 Панели стеновые парапетные ПСП60.9.2,5-7Я,ПСП60.6.2,5-7Я,ПСП10.6.2,5-7Я 213-2-183.ИЖ32-3 СБ Панели стеновые парапетные ПСП60.9.2,5-7Я,ПСП60.6.2,5-7Я,ПСП10.6.2,5-7Я. Сборочный чертеж 213-2-183.ИЖ38-1 Перемычки ПР30.2-7УЯ,ПР30.2.2-7УЯ,ПР19.2-7УЯ,ПР19.2.2-7УЯ,ПР16.2-7УЯ,ПР16.2.2-7УЯ. Доборные блоки ПР15.2-7Я,ПР15.2.2-7Я 213-2-183.ИЖ38-1 СБ Перемычки ПР30.2-7УЯ,ПР30.2.2-7УЯ,ПР19.2-7УЯ,ПР19.2.2-7УЯ,ПР16.2-7УЯ,ПР16.2.2-7УЯ. Доборные блоки ПР15.2-7Я,ПР15.2.2-7Я. Сборочный чертеж 213-2-183.ИЖ38-2 Перемычки 3ПР30.5.2,5-7УЯ,3ПР30.5.3-7УЯ,3ПР30.5.3,5-7УЯ 213-2-183.ИЖ38-2 СБ Перемычки 3ПР30.5.2,5-7УЯ,3ПР30.5.3-7УЯ,3ПР30.5.3,5-7УЯ. Сборочный чертеж 213-2-183.ИЖ41-1 Плиты перекрытий ПК6-60.15а-1л,ПК6-60.15а-1п,ПК6-60.15а-2л,ПК6-60.15а-2п 213-2-183.ИЖ41-1 СБ Плиты перекрытий ПК6-60.15а-1л,ПК6-60.15а-1п,ПК6-60.15а-2л,ПК6-60.15а-2п. Сборочный чертеж 213-2-183.ИЖ41-2 Плита перекрытия ПК6-60.18а-1 213-2-183.ИЖ41-2 СБ Плита перекрытия ПК6-60.18а-1. Сборочный чертеж 213-2-183.ИЖ42-1 Плита перекрытия ПРП6-60-15-1 213-2-183.ИЖ42-1 СБ Плита перекрытия ПРП6-60-15-1. Сборочный чертеж 213-2-183.ИЖ43-1 Плита перекрытия ячеистобетонная П60.15.2,5-6Я 213-2-183.ИЖ43-1 СБ Плита перекрытия ячеистобетонная П60.15.2,5-6Я. Сборочный чертеж 213-2-183.ИМ-ВД Ведомость ссылочных документов 213-2-183.ИМ-ТО Техническое описание 213-2-183.ИМ2-1 Соединительные элементы МС-1,МС-2,МС4,МС5,МС6 213-2-183.ИМ2-3 Соединительный элемент МС-3 213-2-183.ИМ2-7 Соединительные элементы МС-7,МС-8 213-2-183.ИМ2-8 Соединительный элемент МС-9 213-2-183.ИМ2-9 Соединительный элемент МС-10 213-2-183.ИМ2-10 Соединительные элементы МС-11,МС-12,МС-13 213-2-183.ИМ2-11 Шайба 213-2-183.ИМ3-1 Изделия металлические ИМ1,ИМ2,ИМ3 213-2-183.ИМ3-2 Изделие металлическое ИМ4 213-2-183.ИМ3-3 Изделие металлическое ИМ5 213-2-183.ИМ3-4 Изделие металлическое ИМ6 213-2-183.ИМ3-5 Изделия металлические ИМ7,ИМ8,ИМ9,ИМ10 213-2-183.ИМ3-5 СБ Изделия металлические ИМ7,ИМ8,ИМ9,ИМ10. Сборочный чертеж 213-2-183.ИМ3-6 Лестница металлическая ИМ11 213-2-183.ИМ3-6 СБ Лестница металлическая ИМ11. Сборочный чертеж 213-2-183.ИМ3-7 Изделие металлические ИМ12 213-2-183.ИМ3-7 СБ Изделие металлические ИМ12. Сборочный чертеж 213-2-183.ИМ3-8 Стойка 213-2-183.ИМ3-9 Планка 213-2-183.ИМ3-10 Винтовой анкер ИМ13 213-2-183.ИМ3-10 СБ Винтовой анкер ИМ13. Сборочный чертеж 213-2-183.ИМ3-11 Изделия металлические ИМ14,ИМ15 213-2-183.ИМ3-12 Изделие металлическое ИМ16 213-2-183.ИМ3-13 Анкер А-1, ножка Т-1 213-2-183.ИМ3-13 СБ Анкер А-1, ножка Т-1. Сборочный чертеж 213-2-183.ИМ5-1 Каркасы пространственные КП1,КП2,КП3,КП4 213-2-183.ИМ5-1 СБ Каркасы пространственные КП1,КП2,КП3,КП4. Сборочный чертеж 213-2-183.ИМ5-2 Каркасы пространственные КП5,КП6,КП7,КП8 213-2-183.ИМ5-2 СБ Каркасы пространственные КП5,КП6,КП7,КП8. Сборочный чертеж 213-2-183.ИМ5-3 Каркасы пространственные КП9,КП10,КП11 213-2-183.ИМ5-3 СБ Каркасы пространственные КП9,КП10,КП11. Сборочный чертеж 213-2-183.ИМ5-4 Каркасы пространственные КП12,КП13 213-2-183.ИМ5-4 СБ Каркасы пространственные КП12,КП13. Сборочный чертеж 213-2-183.ИМ5-5 Каркас пространственный КП14 213-2-183.ИМ5-5 СБ Каркас пространственный КП14. Сборочный чертеж 213-2-183.ИМ5-6 Каркас пространственный КП15 213-2-183.ИМ5-6 СБ Каркас пространственный КП15. Сборочный чертеж 213-2-183.ИМ5-7 Каркасы пространственные КП16,КП17,КП20,КП21 213-2-183.ИМ5-7 СБ Каркасы пространственные КП16,КП17,КП20,КП21. Сборочный чертеж 213-2-183.ИМ5-8 Каркасы пространственные КП18,КП19,КП22,КП23 213-2-183.ИМ5-8 СБ Каркасы пространственные КП18,КП19,КП22,КП23. Сборочный чертеж 213-2-183.ИМ5-9 Каркасы пространственные КП24,КП25 213-2-183.ИМ5-9 СБ Каркасы пространственные КП24,КП25. Сборочный чертеж 213-2-183.ИМ5-10 Каркасы пространственные КП26,КП27 213-2-183.ИМ5-10 СБ Каркасы пространственные КП26,КП27. Сборочный чертеж 213-2-183.ИМ5-11 Каркасы пространственные КП28,КП29 213-2-183.ИМ5-11 СБ Каркасы пространственные КП28,КП29. Сборочный чертеж 213-2-183.ИМ5-12 Каркасы пространственные КП30,КП31 213-2-183.ИМ5-12 СБ Каркасы пространственные КП30,КП31. Сборочный чертеж 213-2-183.ИМ5-13 Каркасы пространственные КП32,КП33 213-2-183.ИМ5-13 СБ Каркасы пространственные КП32,КП33. Сборочный чертеж 213-2-183.ИМ5-14 Каркасы пространственные КП34,КП35 213-2-183.ИМ5-14 СБ Каркасы пространственные КП34,КП35. Сборочный чертеж 213-2-183.ИМ5-15 Каркас пространственный КП36 213-2-183.ИМ5-16 Каркасы пространственные КП37-КП42 213-2-183.ИМ5-16 СБ Каркасы пространственные КП37-КП42. Сборочный чертеж 213-2-183.ИМ5-17 Каркасы пространственные КП43,КП44 213-2-183.ИМ5-17 СБ Каркасы пространственные КП43,КП44. Сборочный чертеж 213-2-183.ИМ5-18 Каркасы пространственные КП45,КП46,КП47 213-2-183.ИМ5-18 СБ Каркасы пространственные КП45,КП46,КП47. Сборочный чертеж 213-2-183.ИМ5-19 Каркас пространственный КП48 213-2-183.ИМ5-19 СБ Каркас пространственный КП48. Сборочный чертеж 213-2-183.ИМ6-1 Арматурный каркас КР1 213-2-183.ИМ6-2 Арматурный каркас КР2 213-2-183.ИМ6-3 Арматурный каркас КР3 213-2-183.ИМ6-4 Арматурный каркас КР4 213-2-183.ИМ6-5 Арматурные каркасы КР5,КР6 213-2-183.ИМ6-5 СБ Арматурные каркасы КР5,КР6. Сборочный чертеж 213-2-183.ИМ7-1 Арматурная сетка С1 213-2-183.ИМ7-2 Арматурная сетка С2 213-2-183.ИМ7-3 Арматурная сетка С3 213-2-183.ИМ7-4 Арматурная сетка С4 213-2-183.ИМ7-5 Арматурные сетки С3,С4 213-2-183.ИМ7-5 СБ Арматурные сетки С3,С4. Сборочный чертеж 213-2-183.ИМ7-6 Сетки С1-1,С1-2,С2-1,С2-2,С3-1 213-2-183.ИМ7-6 СБ Сетки С1-1,С1-2,С2-1,С2-2,С3-1. Сборочный чертеж 213-2-183.ИМ7-7 Сетки С6,С7 213-2-183.ИМ7-7 СБ Сетки С6,С7. Сборочный чертеж 213-2-183.ИМ7-8 Сетки С1,С2,С3,С4,С14 213-2-183.ИМ7-8 СБ Сетки С1,С2,С3,С4,С14. Сборочный чертеж 213-2-183.ИМ7-9 Сетки С5,С6,С7,С8,С15,С16,С17,С20 213-2-183.ИМ7-9 СБ Сетки С5,С6,С7,С8,С15,С16,С17,С20. Сборочный чертеж 213-2-183.ИМ7-10 Сетки С9,С10,С11,С12,С13,С18,С19,С21 213-2-183.ИМ7-10 СБ Сетки С9,С10,С11,С12,С13,С18,С19,С21. Сборочный чертеж 213-2-183.ИМ7-11 Сетки С22,С23,С24,С25,С35 213-2-183.ИМ7-11 СБ Сетки С22,С23,С24,С25,С35. Сборочный чертеж 213-2-183.ИМ7-12 Сетки С26,С27,С28,С29,С36 213-2-183.ИМ7-12 СБ Сетки С26,С27,С28,С29,С36. Сборочный чертеж 213-2-183.ИМ7-13 Сетки С30,С31,С32,С33,С34,С37 213-2-183.ИМ7-13 СБ Сетки С30,С31,С32,С33,С34,С37. Сборочный чертеж 213-2-183.ИМ7-14 Сетки С38-С43 213-2-183.ИМ7-14 СБ Сетки С38-С43. Сборочный чертеж 213-2-183.ИМ7-15 Сетки С44,С45,С46 213-2-183.ИМ7-15 СБ Сетки С44,С45,С46. Сборочный чертеж 213-2-183.ИМ7-16 Сетка С47 213-2-183.ИМ7-17 Сетки С48,С49,С50 213-2-183.ИМ7-17 СБ Сетки С48,С49,С50. Сборочный чертеж 213-2-183.ИМ7-18 Сетка С51 213-2-183.ИМ7-18 Сетка С51. Сборочный чертеж 213-2-183.ИМ7-19 Сетки С52-С55 213-2-183.ИМ7-19 СБ Сетки С52-С55. Сборочный чертеж 213-2-183.ИМ9-1 Петли П1,П2 213-2-183.ИМ9-2 Петли П3,П4 213-2-183.ИМ9-3 Петля П5 213-2-183.ИМ9-4 Закладная деталь МН-1 213-2-183.ИД2-1 Дверной блок ИД1 213-2-183.ИД2-1 Фрамуга ИД11 213-2-183.ИД2-1 СБ Дверной блок ИД1. Сборочный чертеж 213-2-183.ИД2-2 СБ Фрамуга ИД11. Сборочный чертеж 213-2-183.ИД2-3 Импост ИД2 213-2-183.ИД2-3 СБ Импост ИД2. Сборочный чертеж 213-2-183.ИД2-4 Импосты ИД3,ИД4 213-2-183.ИД2-4 СБ Импосты ИД3,ИД4. Сборочный чертеж 213-2-183.ИД2-5 Ограждение радиаторов ИД8 213-2-183.ИД2-5 СБ Ограждение радиаторов ИД8. Сборочный чертеж 213-2-183.ИД2-6 Рамы Р1,Р2. Решетка 213-2-183.ИД2-6 СБ Рамы Р1,Р2. Решетка. Сборочный чертеж 213-2-183.ИД2-7 Экран ИД9 213-2-183.ИД2-7 СБ Экран ИД9. Сборочный чертеж 213-2-183.ИД2-8 Обшивка водостока ИД10 213-2-183.ИД2-8 СБ Обшивка водостока ИД10. Сборочный чертеж |
| Разработан: | ЛенЗНИИЭП Госгражданстроя |
| Утверждён: | 03.05.1979 Госгражданстрой (Gosgrazhdanstroy 90) |





























































































































