Скачать Типовой проект 503-9-18.86 Альбом I. Общая пояснительная записка. Схема генерального плана. Архитектурные решения. Конструкции железобетонные. Конструкции металлические. Отопление и вентиляция. Электрическое освещение. Связь и сигнализацияДата актуализации: 01.01.2021
|
| Обозначение: | Типовой проект 503-9-18.86 |
| Обозначение англ: | 503-9-18.86 |
| Статус: | не определен законодательством |
| Название рус.: | Альбом I. Общая пояснительная записка. Схема генерального плана. Архитектурные решения. Конструкции железобетонные. Конструкции металлические. Отопление и вентиляция. Электрическое освещение. Связь и сигнализация |
| Дата добавления в базу: | 01.09.2013 |
| Дата актуализации: | 01.01.2021 |
| Дата введения: | 05.09.1986 |
| Дата окончания срока действия: | 30.06.2003 |
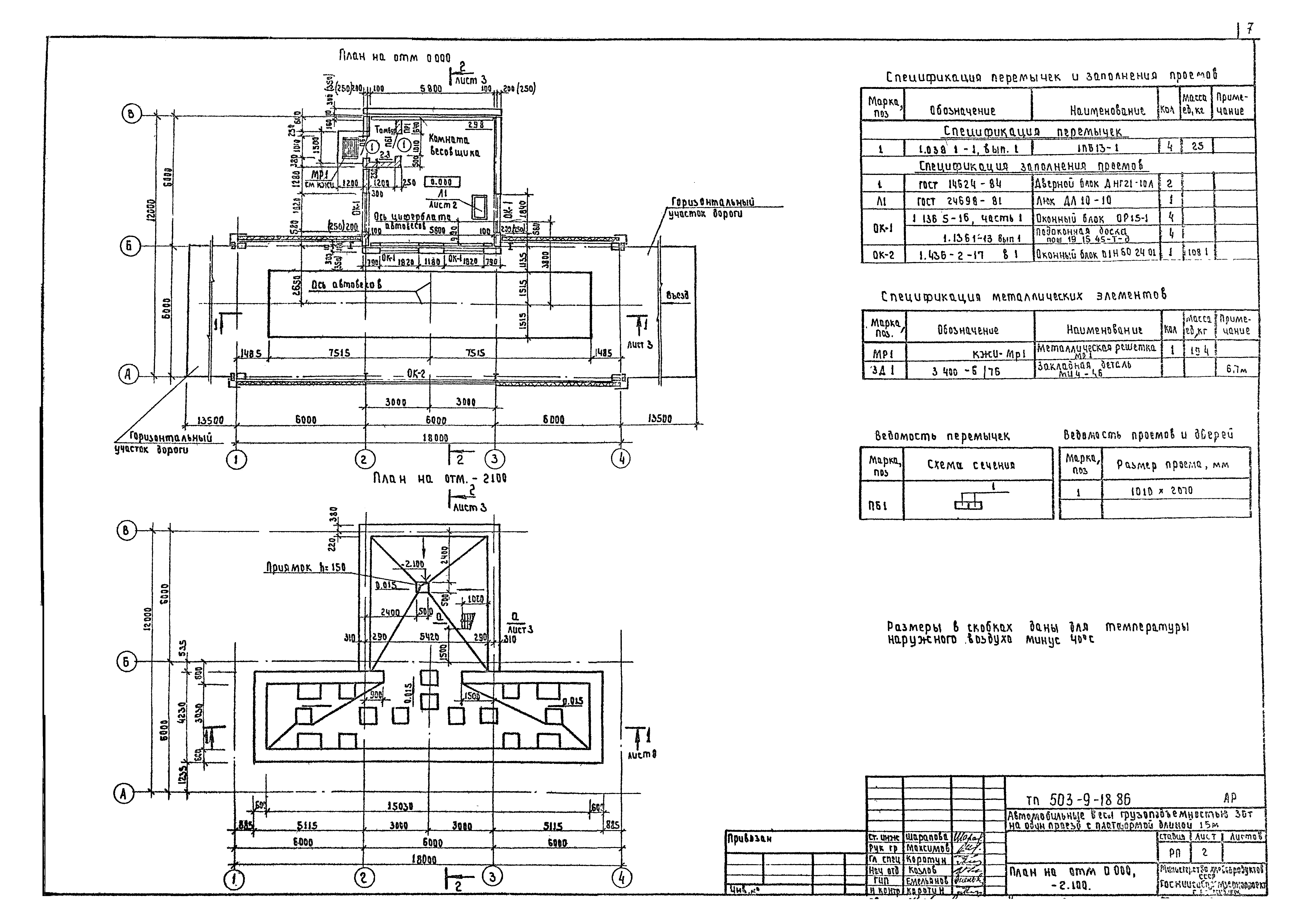
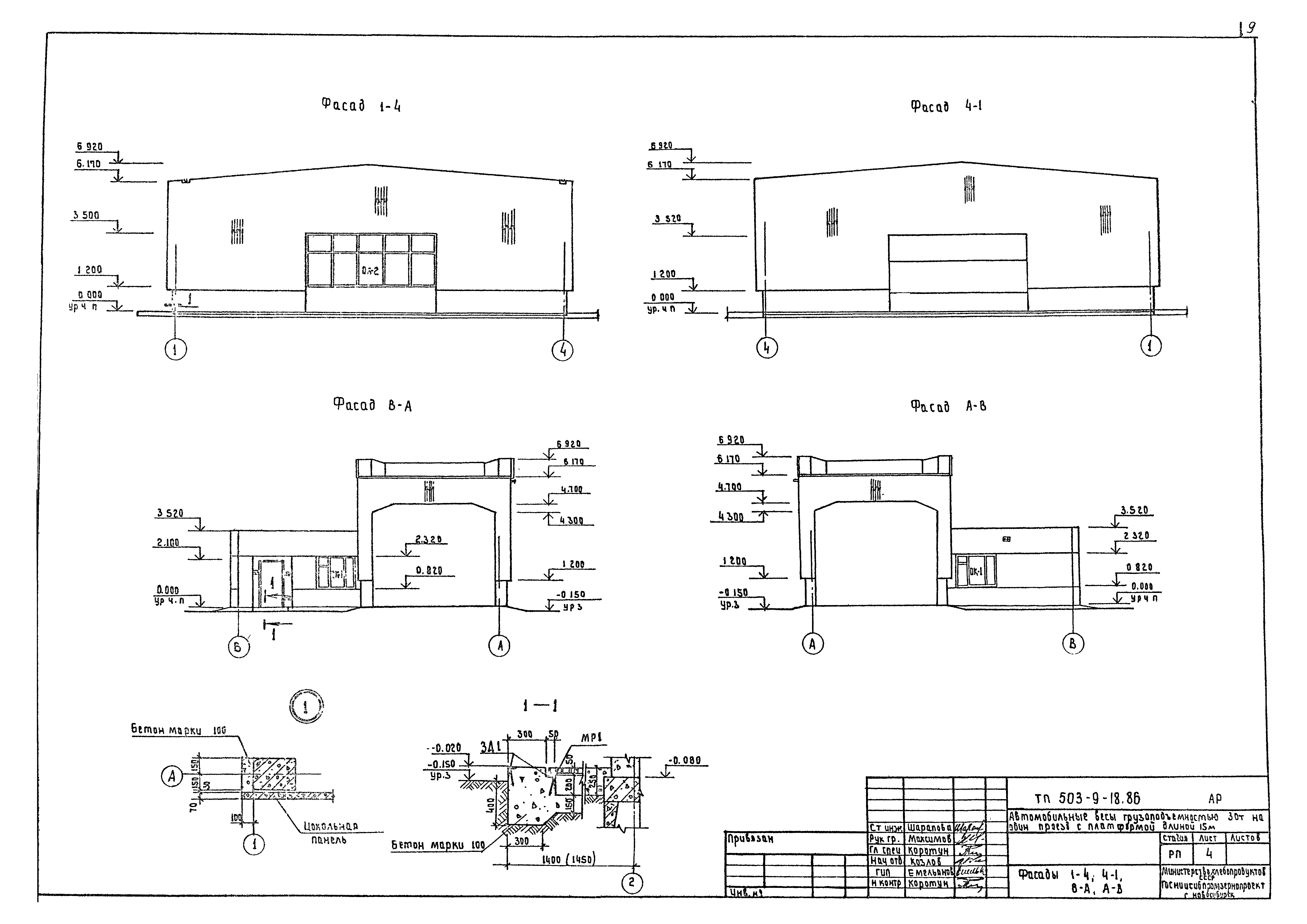
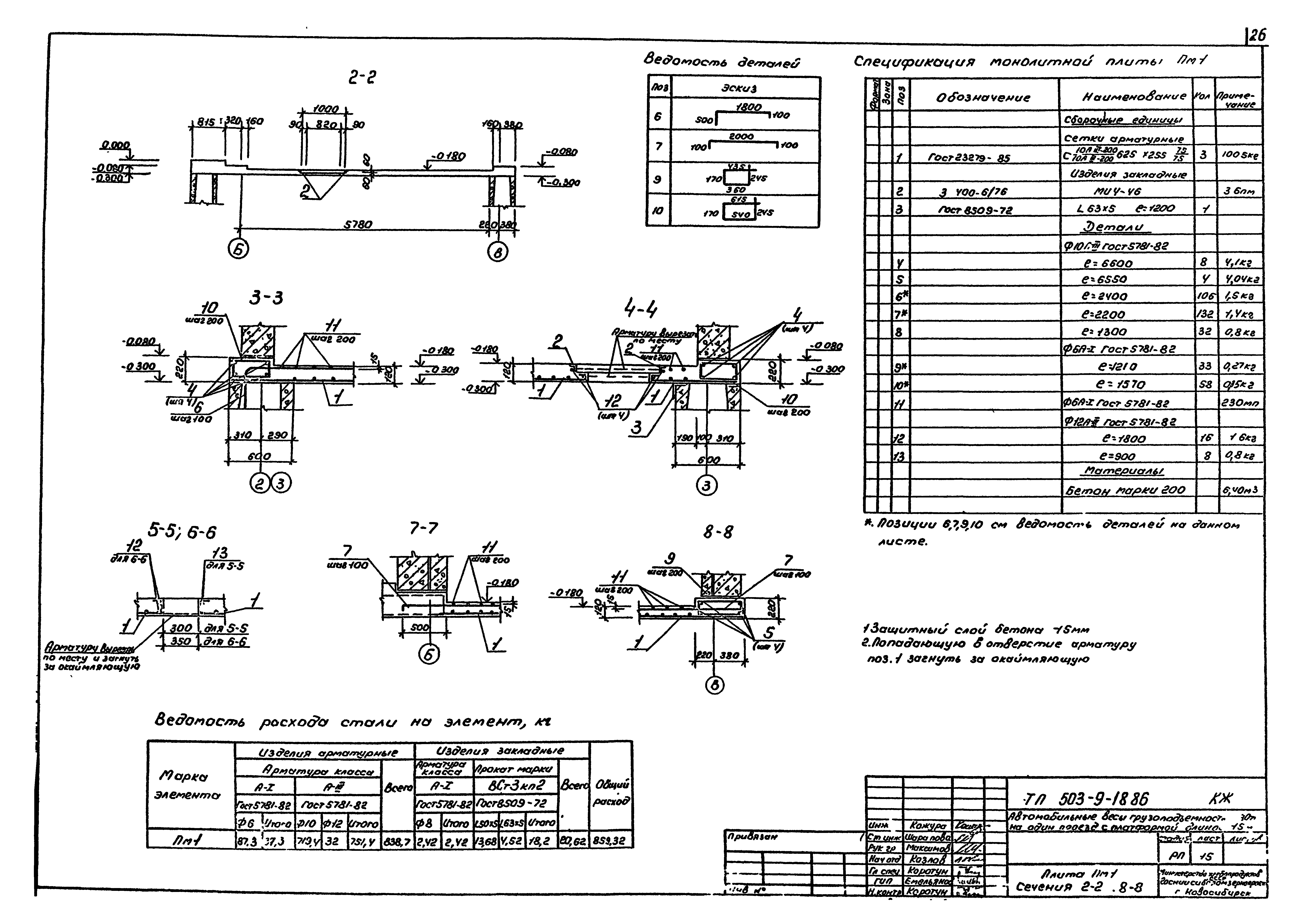
| Оглавление: | ТП 503-9-18.86 Содержание альбома ТП 503-9-18.86 Пояснительная записка (Начало) ТП 503-9-18.86 Пояснительная записка (Окончание) ТП 503-9-18.86 Схема генерального плана ТП 503-9-18.86-АР Основной комплект рабочих чертежей марки АР ТП 503-9-18.86-АР-1 Общие данные ТП 503-9-18.86-АР-2 План на отм. 0.000,2.100 ТП 503-9-18.86-АР-3 Разрезы 1-1,2-2. Узел 7 ТП 503-9-18.86-АР-4 Фасады 1-4,4-1,В-А,А-В ТП 503-9-18.86-АР-5 План кровли. План полов. Схема заполнения оконных проемов. Узлы 1-6 ТП 503-9-18.86-АР-6 Устройство гидроизоляций подземной части ТП 503-9-18.86-КЖ Основной комплект рабочих чертежей марки КЖ ТП 503-9-18.86-КЖ-1 Общие данные ТП 503-9-18.86-КЖ-2 Схема расположения фундаментов и фундаментных балок. Узлы 1-3 ТП 503-9-18.86-КЖ-3 Фундаменты ФМ1-ФМ3 ТП 503-9-18.86-КЖ-4 Навес. Схемы расположения колонн, балок, плит покрытия и цокольных панелей ТП 503-9-18.86-КЖ-5 Схема расположения элементов конструкций подземной части ТП 503-9-18.86-КЖ-6 Днище ДМ1 и схема армирования (раскладка нижних сеток). Разрез 1-1 ТП 503-9-18.86-КЖ-7 Днище ДМ1. Схема армирования (раскладка верхних сеток). Разрезы 2-2...6-6 ТП 503-9-18.86-КЖ-8 Днище ДМ1. Вид и схема армирования (раскладка нижних сеток). Разрез 1-1 (вариант для водонасыщенных грунтов) ТП 503-9-18.86-КЖ-9 Днище ДМ1. Схема армирования (раскладка верхних сеток). Разрезы 2-2,6-6 (вариант для водонасыщенных грунтов) ТП 503-9-18.86-КЖ-10 Стены Ст1. Схема расположения элементов ТП 503-9-18.86-КЖ-11 Стены Ст1. Схема Армирования ТП 503-9-18.86-КЖ-12 Стены Ст1. Схема Армирования (вариант для водонасыщенных грунтов) ТП 503-9-18.86-КЖ-13 Монолитный пояс ПОМ1. Схема армирования. Сечения 1-1...3-3 ТП 503-9-18.86-КЖ-14 Плита ПМ1. Схема армирования ТП 503-9-18.86-КЖ-15 Плита ПМ1. Сечения 2-2,8-8 ТП 503-9-18.86-КЖ-16 Фундаменты механизма весов. Схема расположения тумб ТП 503-9-18.86-КЖ-17 Фундаменты механизма весов. Тумбы Т1,Т7 ТП 503-9-18.86-КЖ-18 Помещение весовщика. Схема расположения панелей наружных стен, покрытия и приставного торца ТП 503-9-18.86-КМ Основной комплект рабочих чертежей марки КМ ТП 503-9-18.86-КМ-1 Общие данные (начало) ТП 503-9-18.86-КМ-2 Общие данные (окончание) ТП 503-9-18.86-КМ-3 Схема расположения фахверков. Узлы 1-7 ТП 503-9-18.86-КМ-4 Схемы раскладки стенового профнастила по осям А,Б,1,4. Схемы расположения ригелей для крепления профнастила ТП 503-9-18.86-ОВ Основной комплект рабочих чертежей марки ОВ ТП 503-9-18.86-ОВ-1 Общие данные. План на отм. 0.000. Схема системы отопления ТП 503-9-18.86-ЭО Основной комплект рабочих чертежей марки ЭО ТП 503-9-18.86-ЭО-1 Общие данные. Принципиальная схема питающей сети ТП 503-9-18.86-ЭО-2 План прокладки электрических сетей на отм. 0.000 и -2.100. План расположения электрического оборудования на отм. 0.000 ТП 503-9-18.86-СС Основной комплект рабочих чертежей марки СС ТП 503-9-18.86-СС-1 Общие данные. План расположения устройств связи и сигнализации |
| Разработан: | Госниисибпромзернопроект |
| Утверждён: | 10.07.1986 Министерство хлебопродуктов СССР (USSR Ministry of Bakery Products 25-2-3/399) |





































