Скачать Серия 1.141-КР-1 Выпуск 9. Рабочие чертежи сборных железобетонных панелей шириной 0,99 м (6ПК76.10-6АтVТ-I - 6ПК90.10-6АтVТ-I)Дата актуализации: 01.01.2021
|
| Обозначение: | Серия 1.141-КР-1 |
| Обозначение англ: | Series 1.141-КР-1 |
| Статус: | не действует |
| Название рус.: | Выпуск 9. Рабочие чертежи сборных железобетонных панелей шириной 0,99 м (6ПК76.10-6АтVТ-I - 6ПК90.10-6АтVТ-I) |
| Дата добавления в базу: | 01.09.2013 |
| Дата актуализации: | 01.01.2021 |
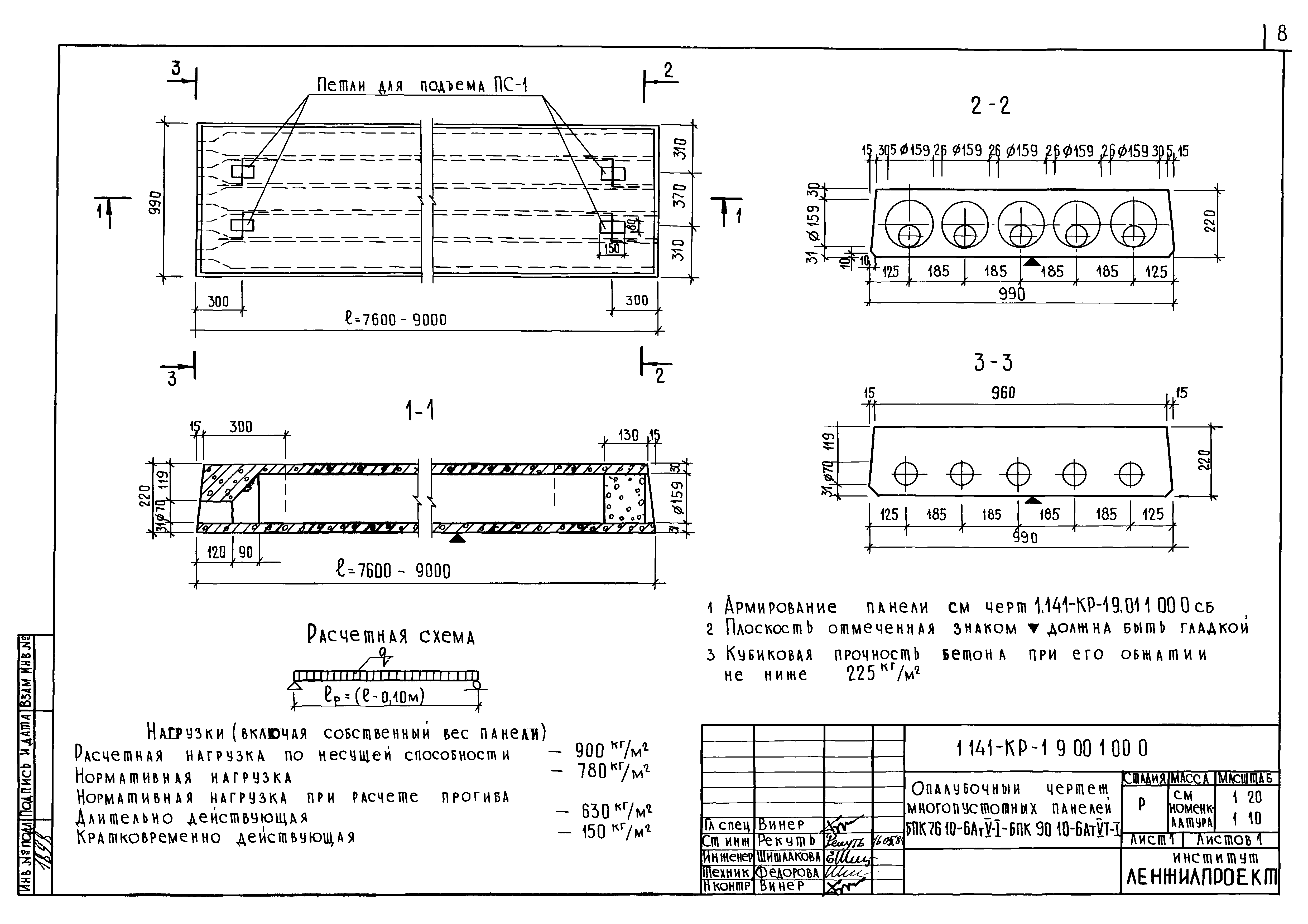
| Оглавление: | 1.141-КР-1 9.00.0.00.0 Содержание альбома 1.141-КР-1 9.00.0.00.0 ПЗ Пояснительная записка 1.141-КР-1 9.00.0.00.0 ТБ Номенклатура многопустотных панелей БПК76.10-6АтVт-I-БПК90.10-6АтVт-I 1.141-КР-1 9.00.1.00.0 Опалубочный чертеж многопустотных панелей БПК76.10-6АтVт-I-БПК90.10-6АтVт-I 1.141-КР-1 9.01.1.00.0 Панели перекрытия БПК76.10-6АтVт-I-БПК90.10-6АтVт-I 1.141-КР-1 9.01.1.00.0 СБ Панели перекрытия БПК76.10-6АтVт-I-БПК90.10-6АтVт-I. Сборочный чертеж 1.141-КР-1 9.01.1.01.0 Каркас плоский КР(КР-1;КР-2) 1.141-КР-1 9.01.1.01.0 СБ Каркас плоский КР(КР-1;КР-2). Сборочный чертеж 1.141-КР-1 9.01.1.02.0 СБ Сетка арматурная С(С1-С15). Сборочный чертеж 1.141-КР-1 9.01.1.02.0 Сетка арматурная С(С1-С15) 1.141-КР-1 9.01.1.03.0 Сетка арматурная С-16 1.141-КР-1 9.01.1.00.16 Петли строповочные ПС-1 1.141-КР-1 9.00.0.00.0 ВРС Ведомость расхода стали, кг 1.141-КР-1 9.00.0.00.0 ДИ Данные для испытания |
| Разработан: | ЛенжилНИИпроект |
| Утверждён: | ЛенжилНИИпроект |





















