Скачать Серия 03.005-7 Выпуск 0-3. Конструктивные решения въездов и аварийных выходов (выездов). Материалы для проектированияДата актуализации: 01.01.2021
|
| Обозначение: | Серия 03.005-7 |
| Обозначение англ: | Series 03.005-7 |
| Статус: | не определен законодательством |
| Название рус.: | Выпуск 0-3. Конструктивные решения въездов и аварийных выходов (выездов). Материалы для проектирования |
| Дата добавления в базу: | 01.09.2013 |
| Дата актуализации: | 01.01.2021 |
| Дата введения: | 20.06.1991 |
| Дата окончания срока действия: | 30.06.2003 |
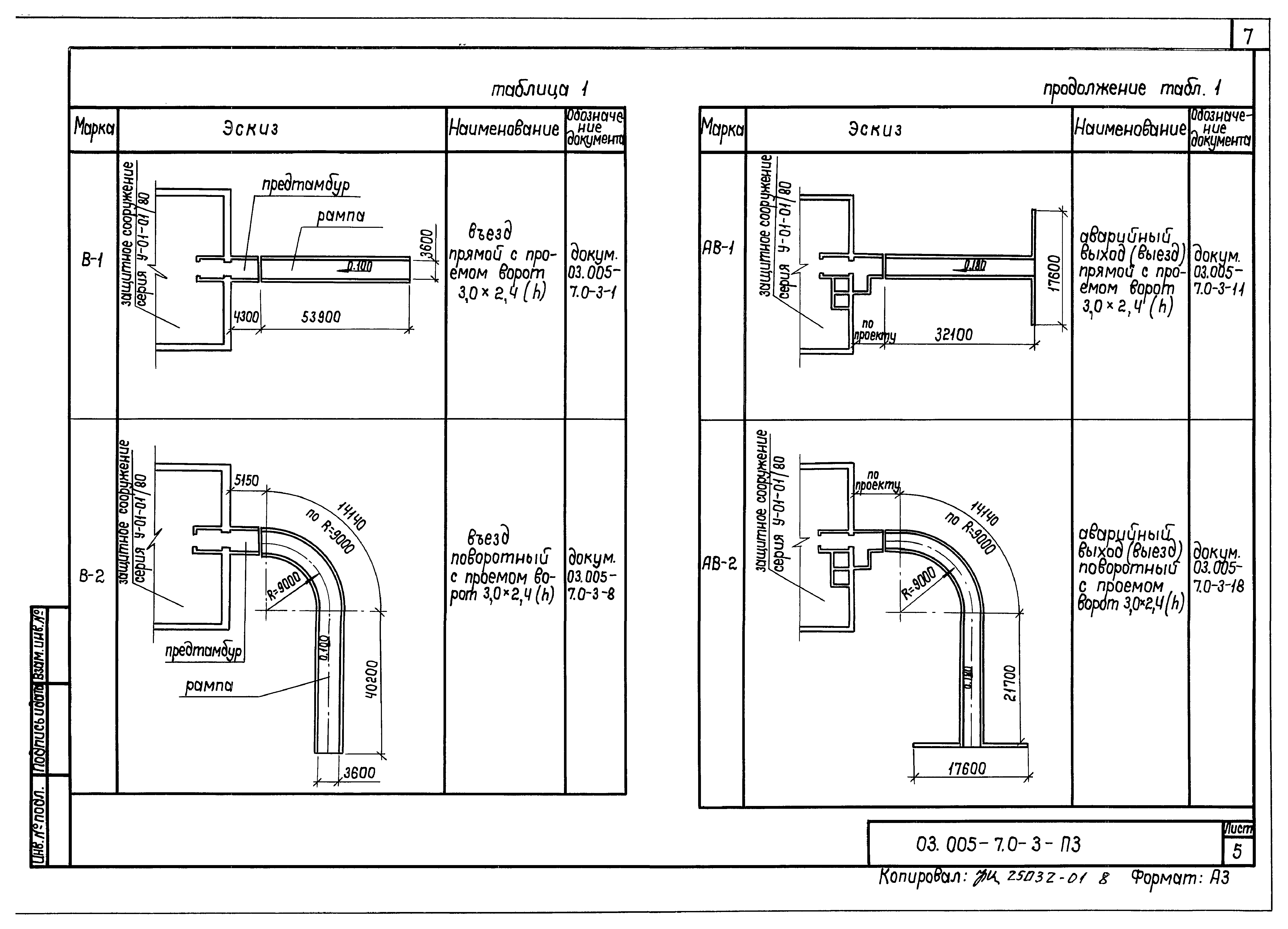
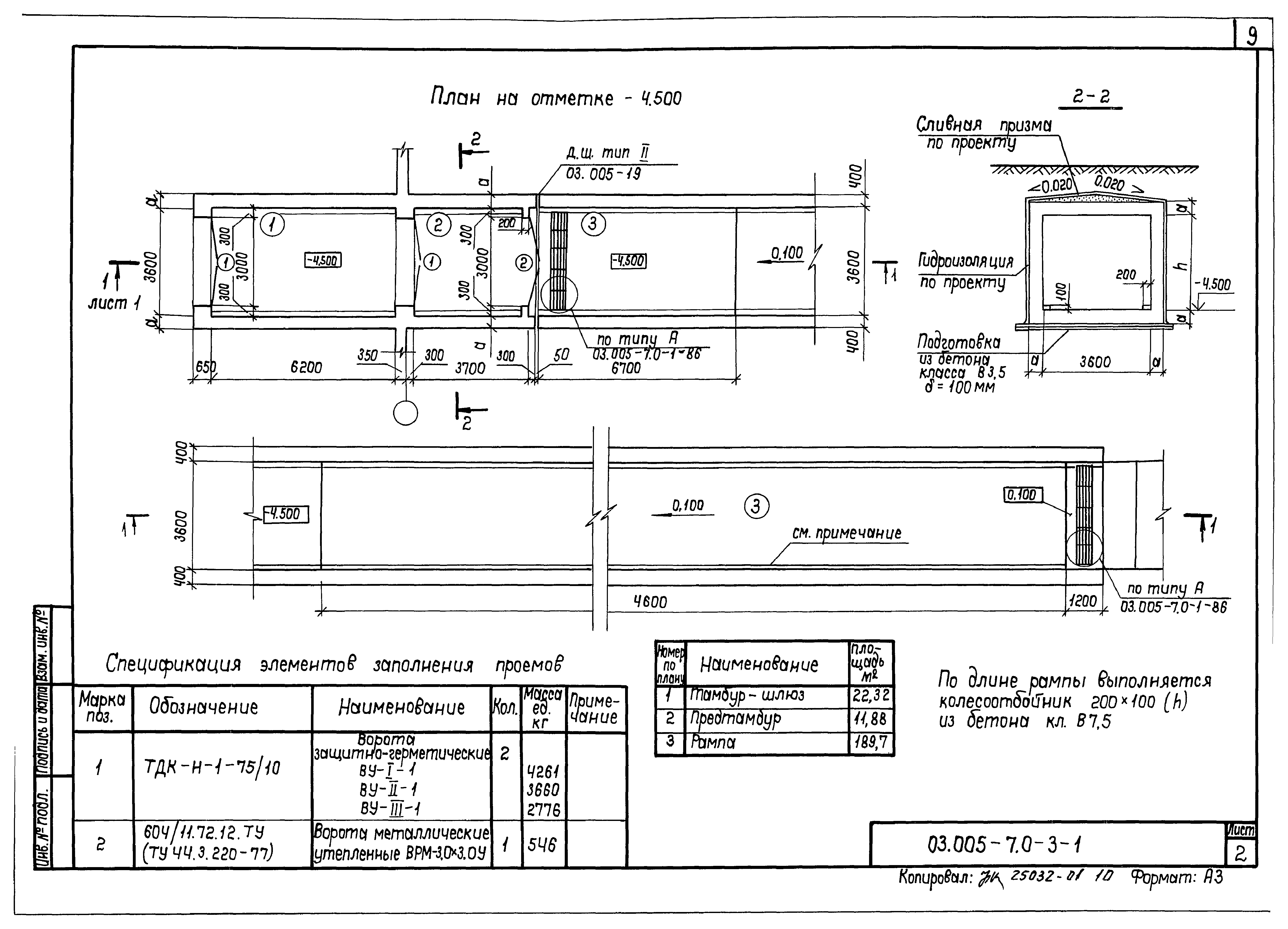
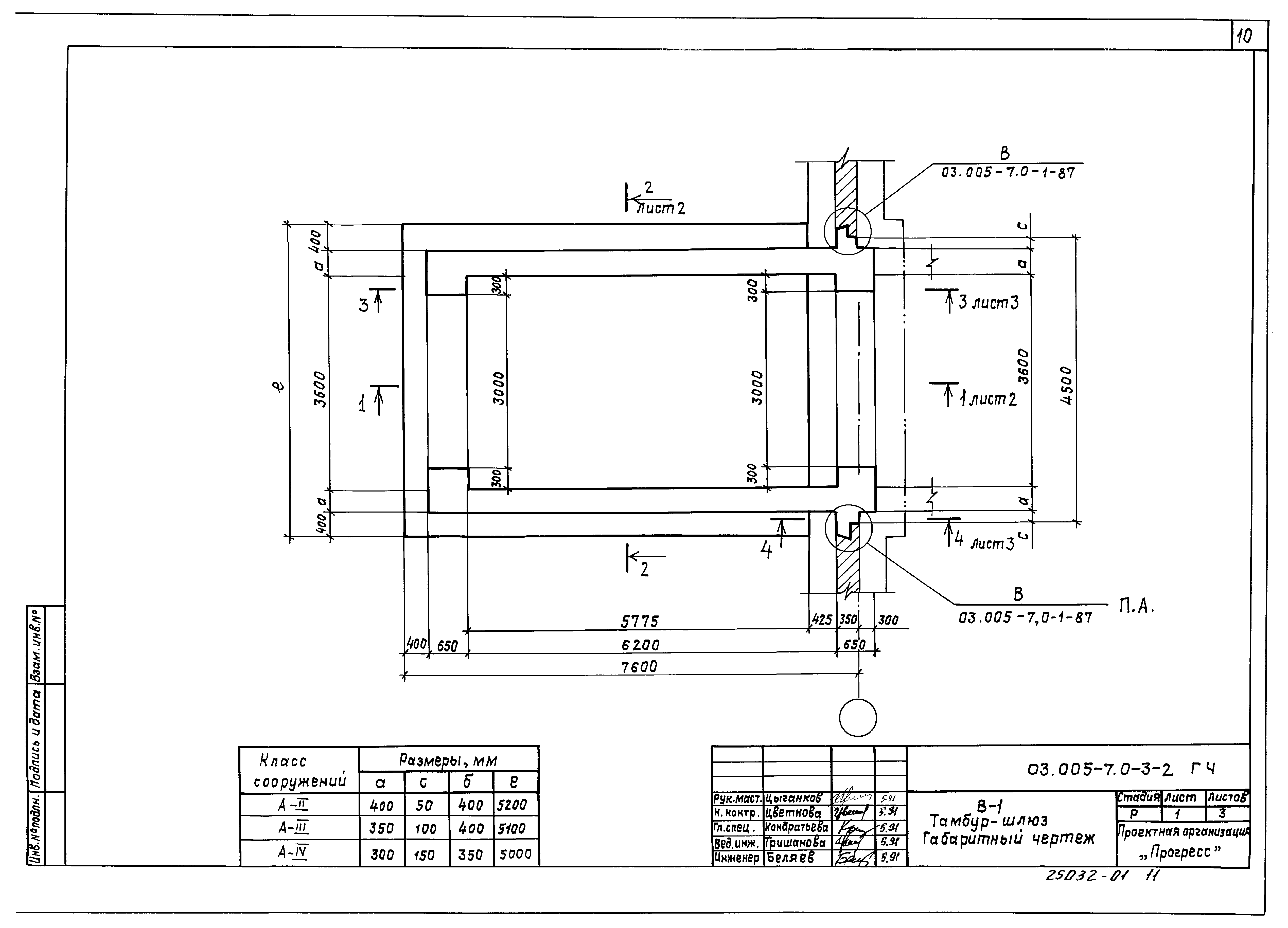
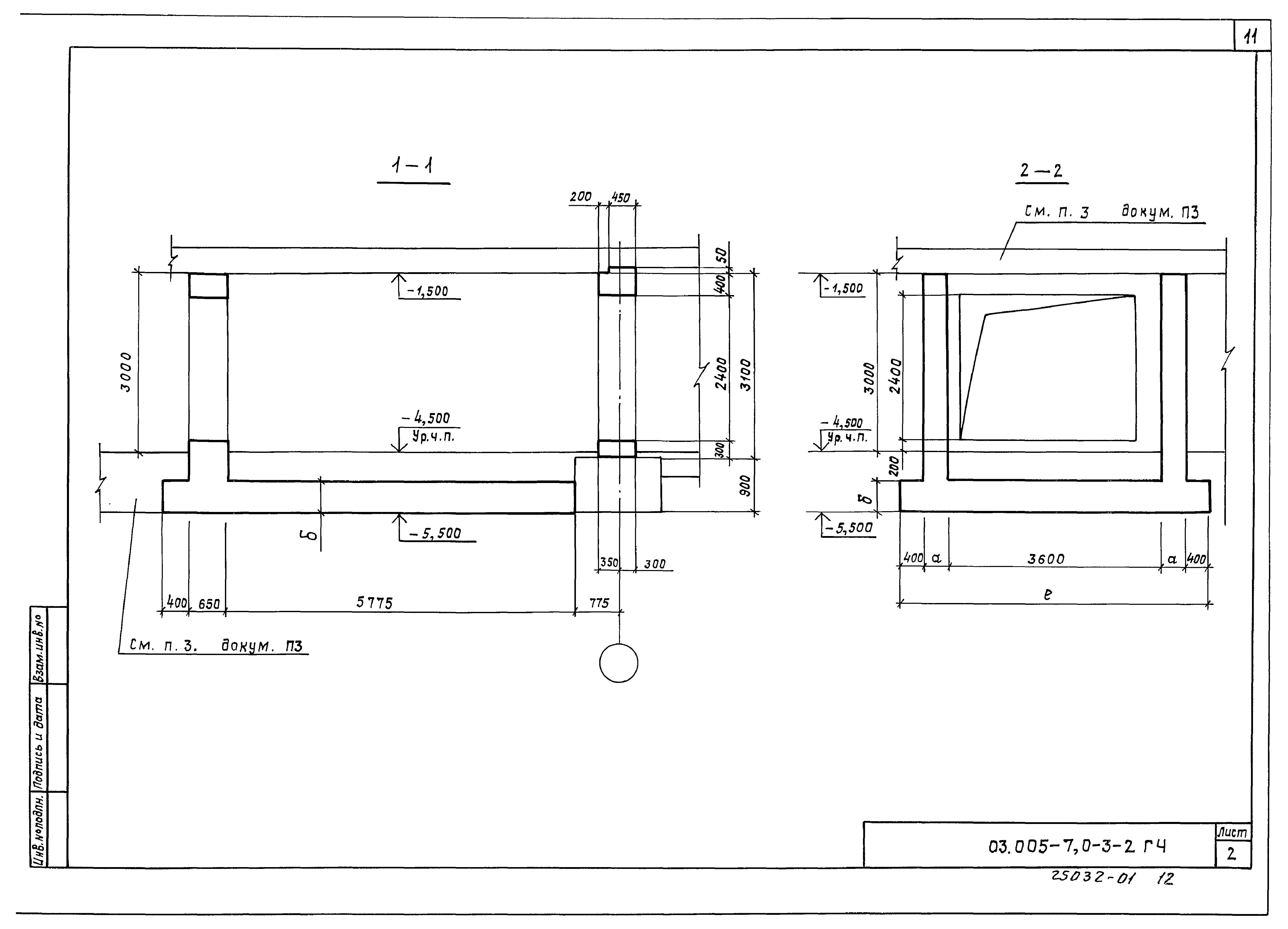
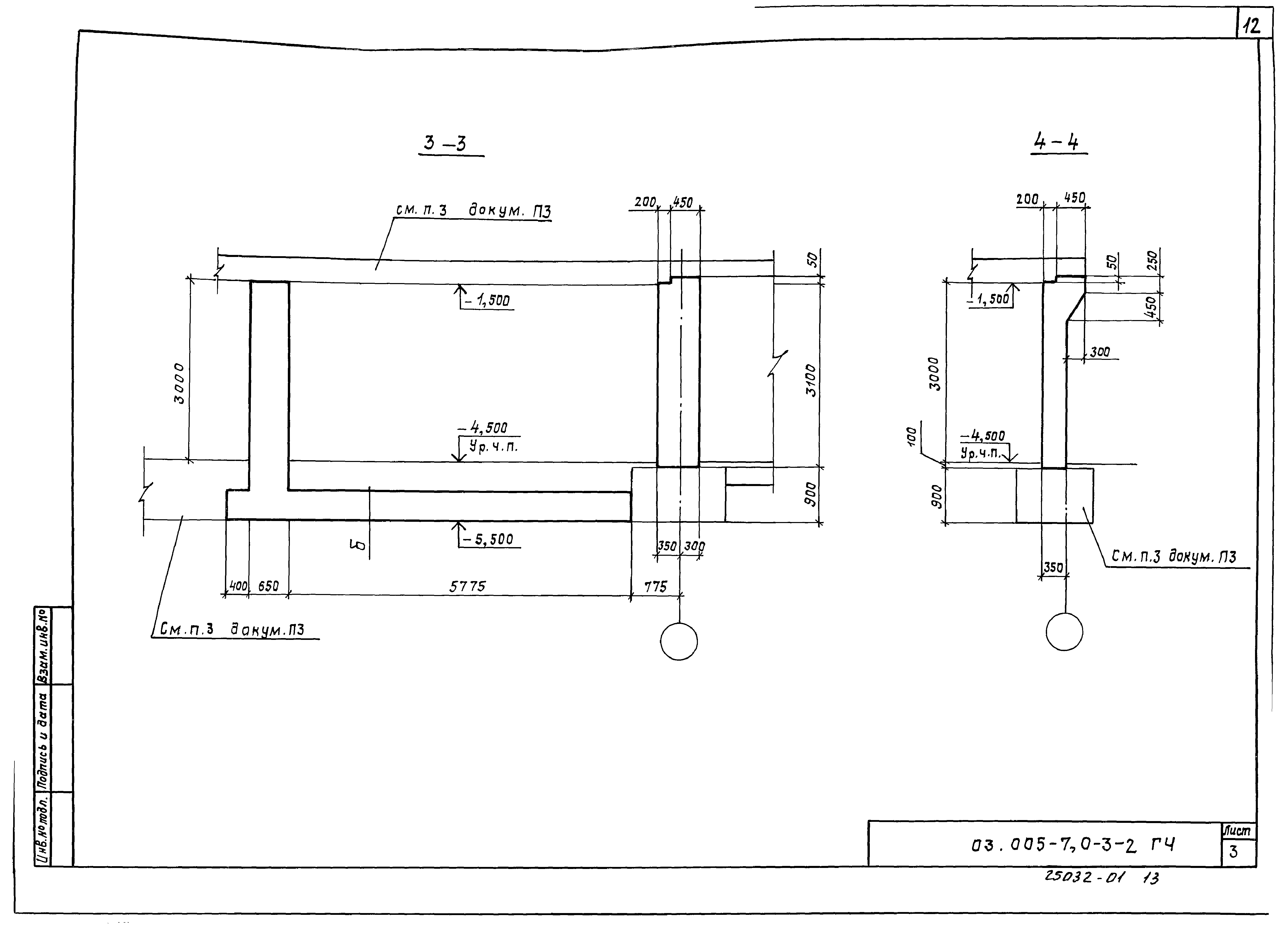
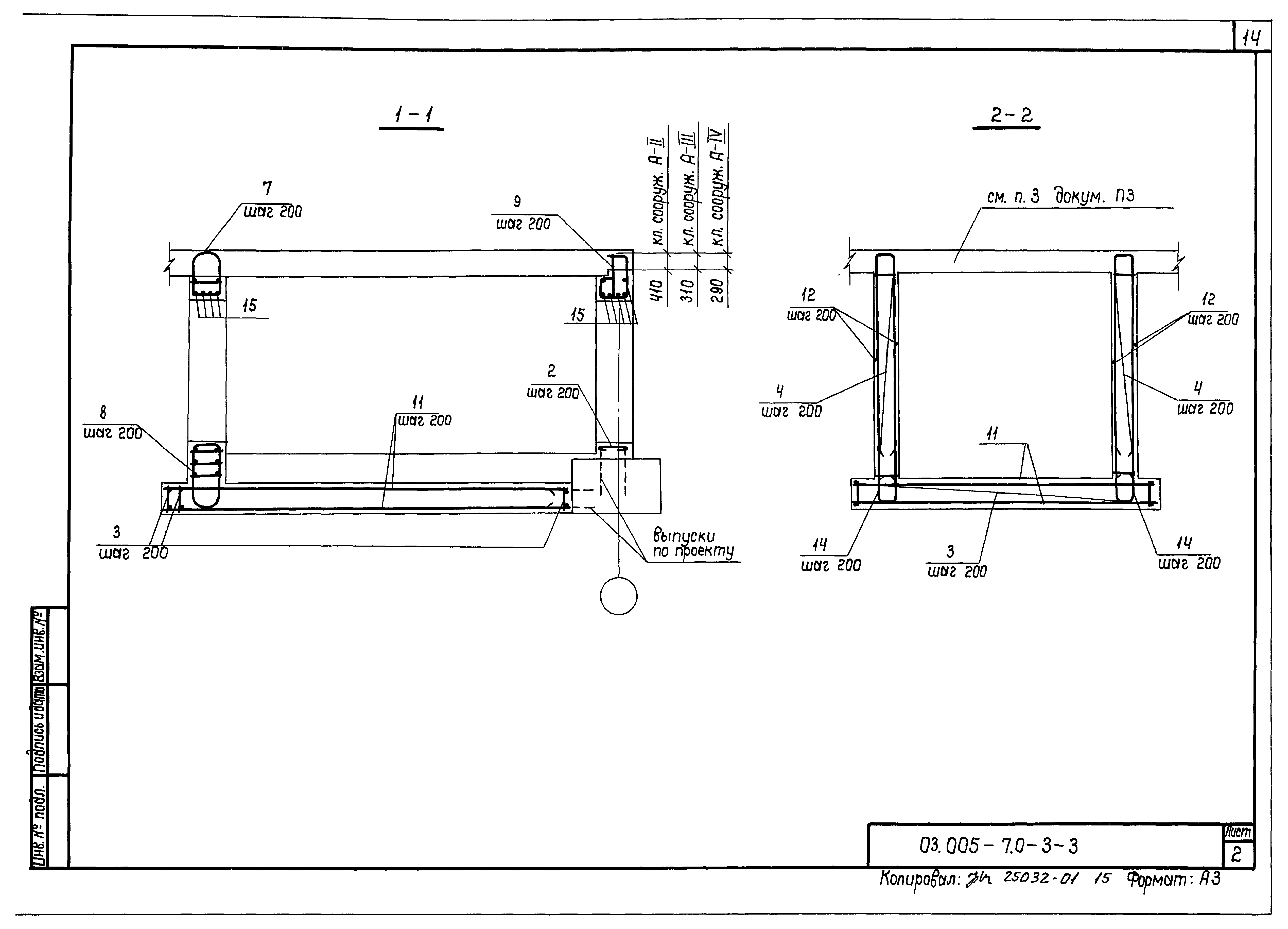
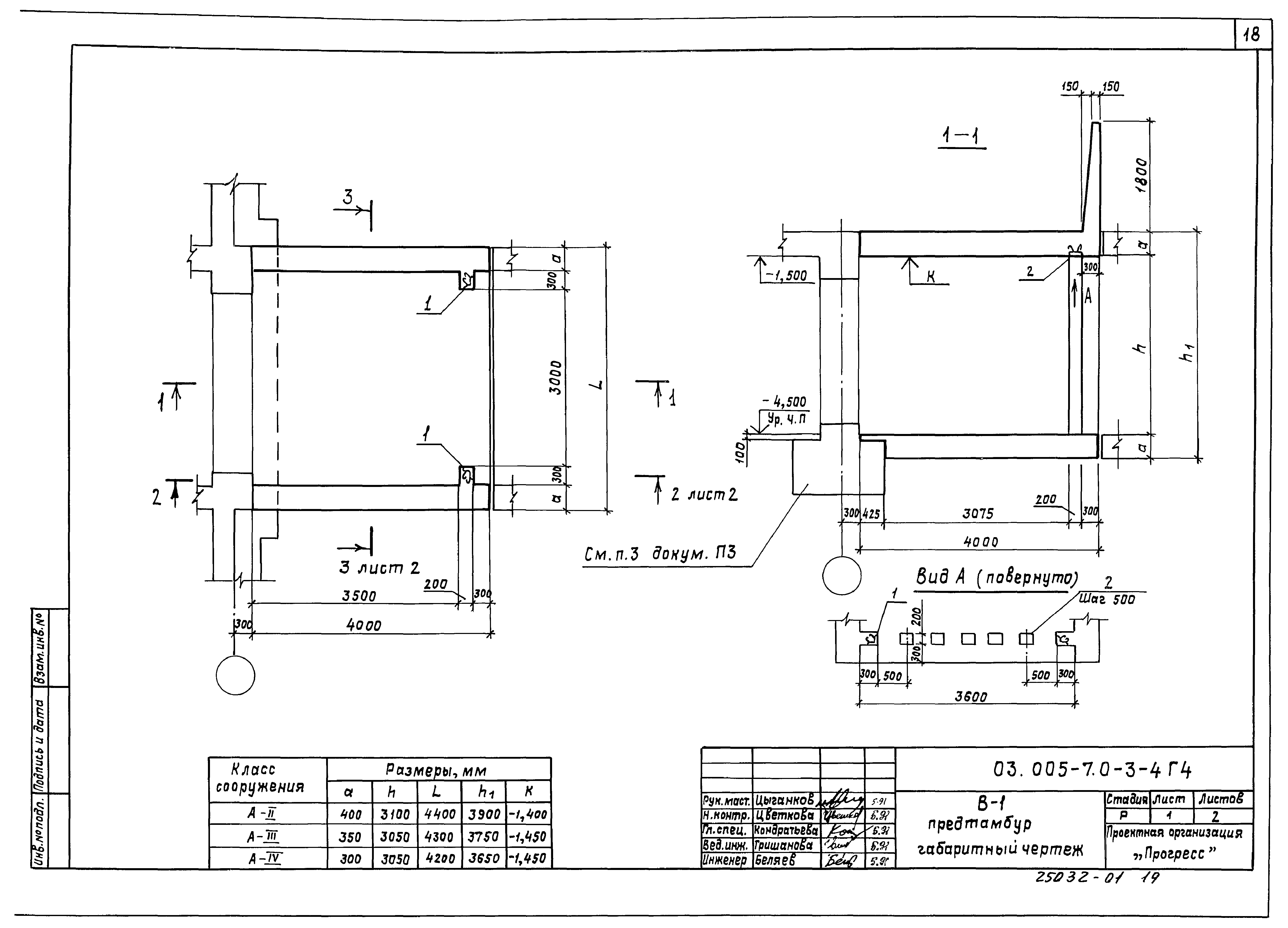
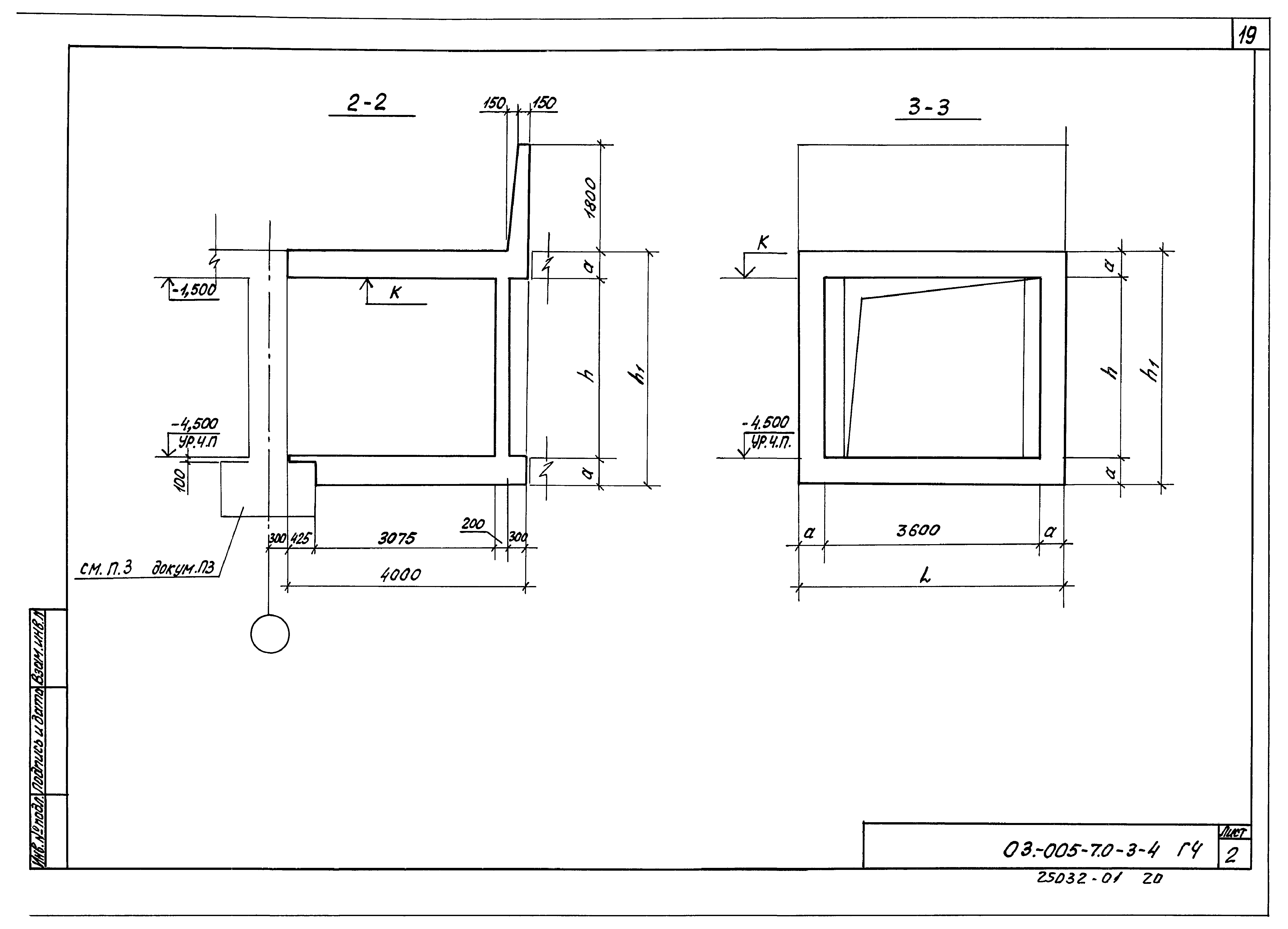
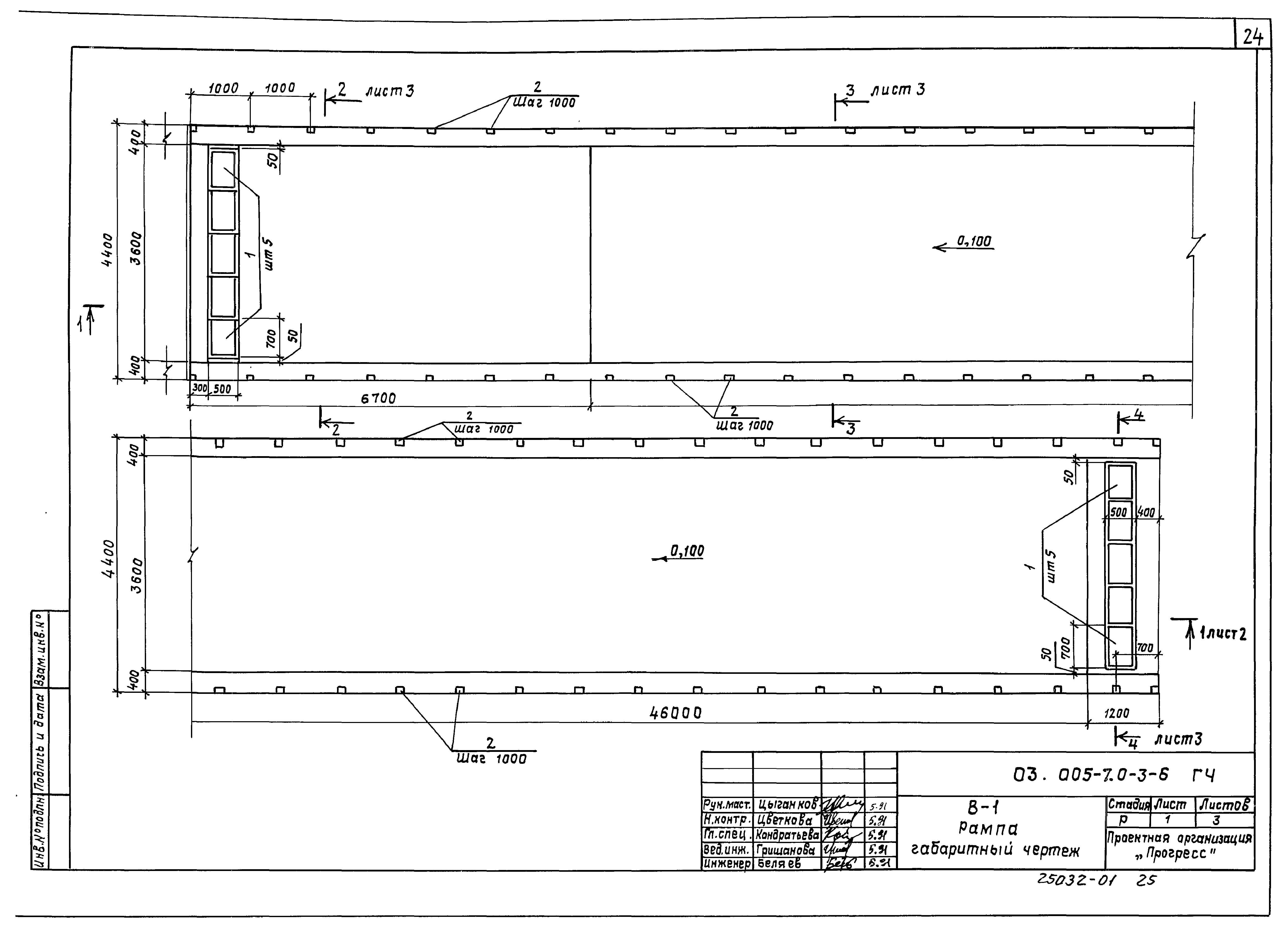
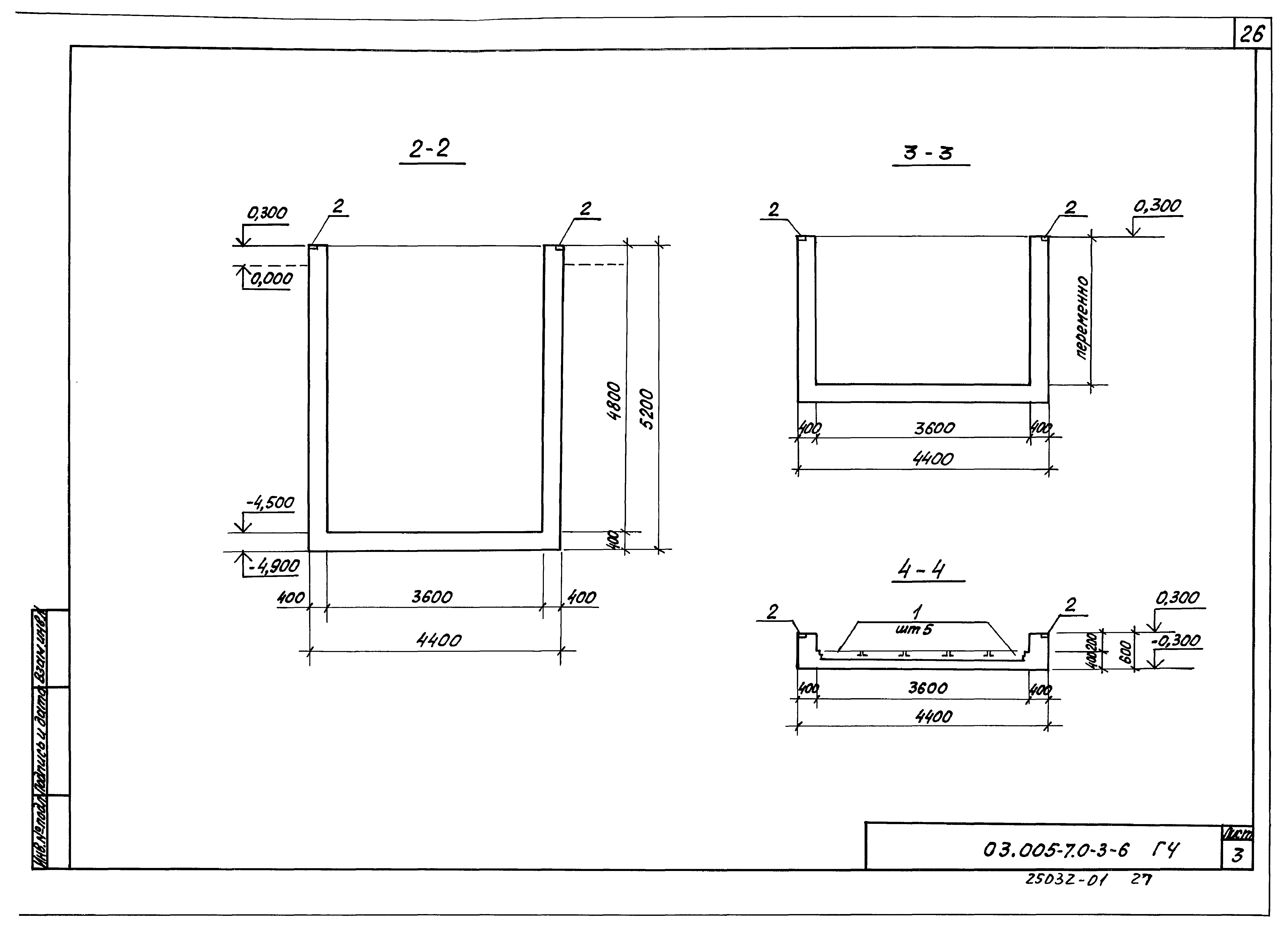
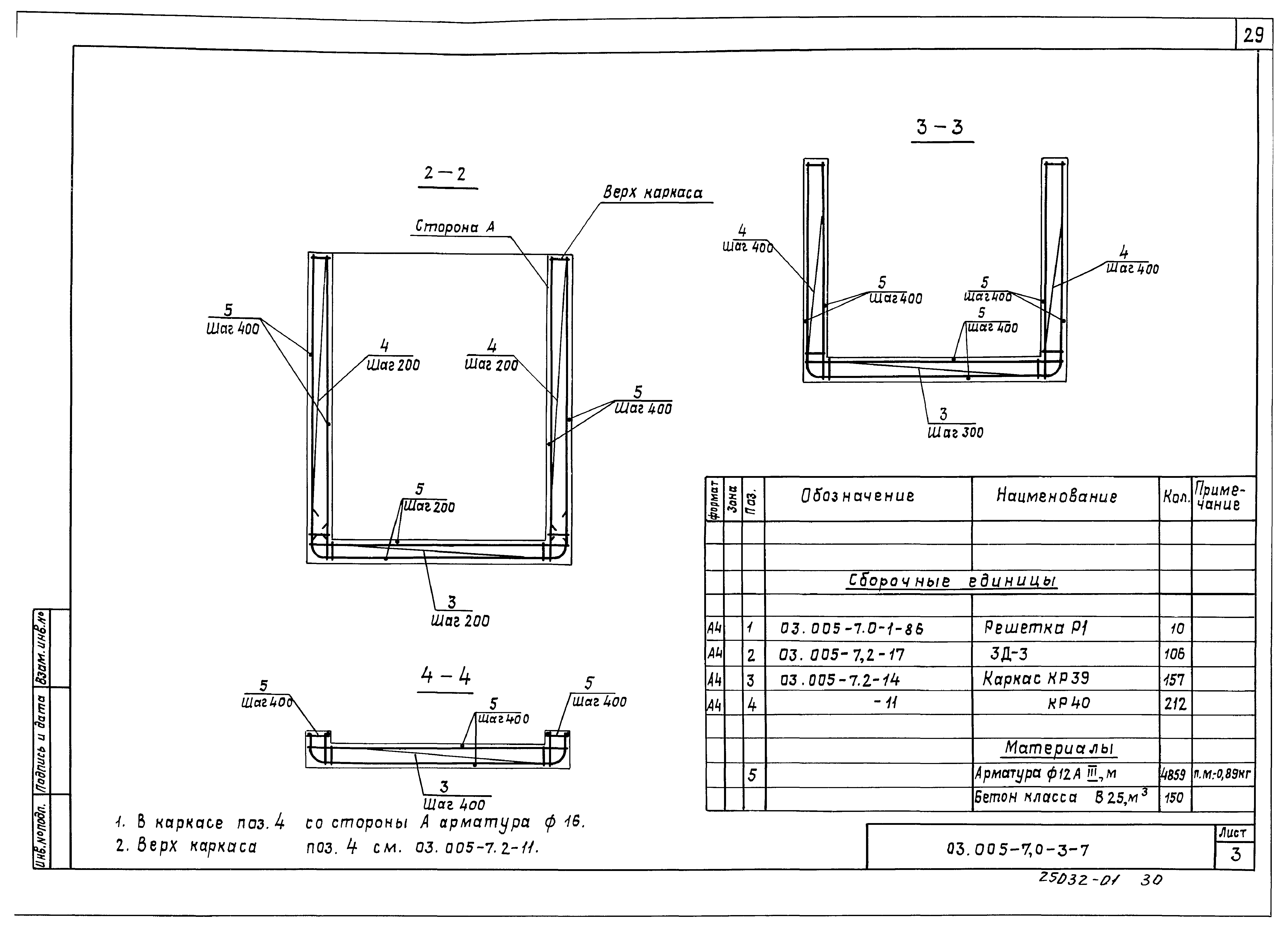
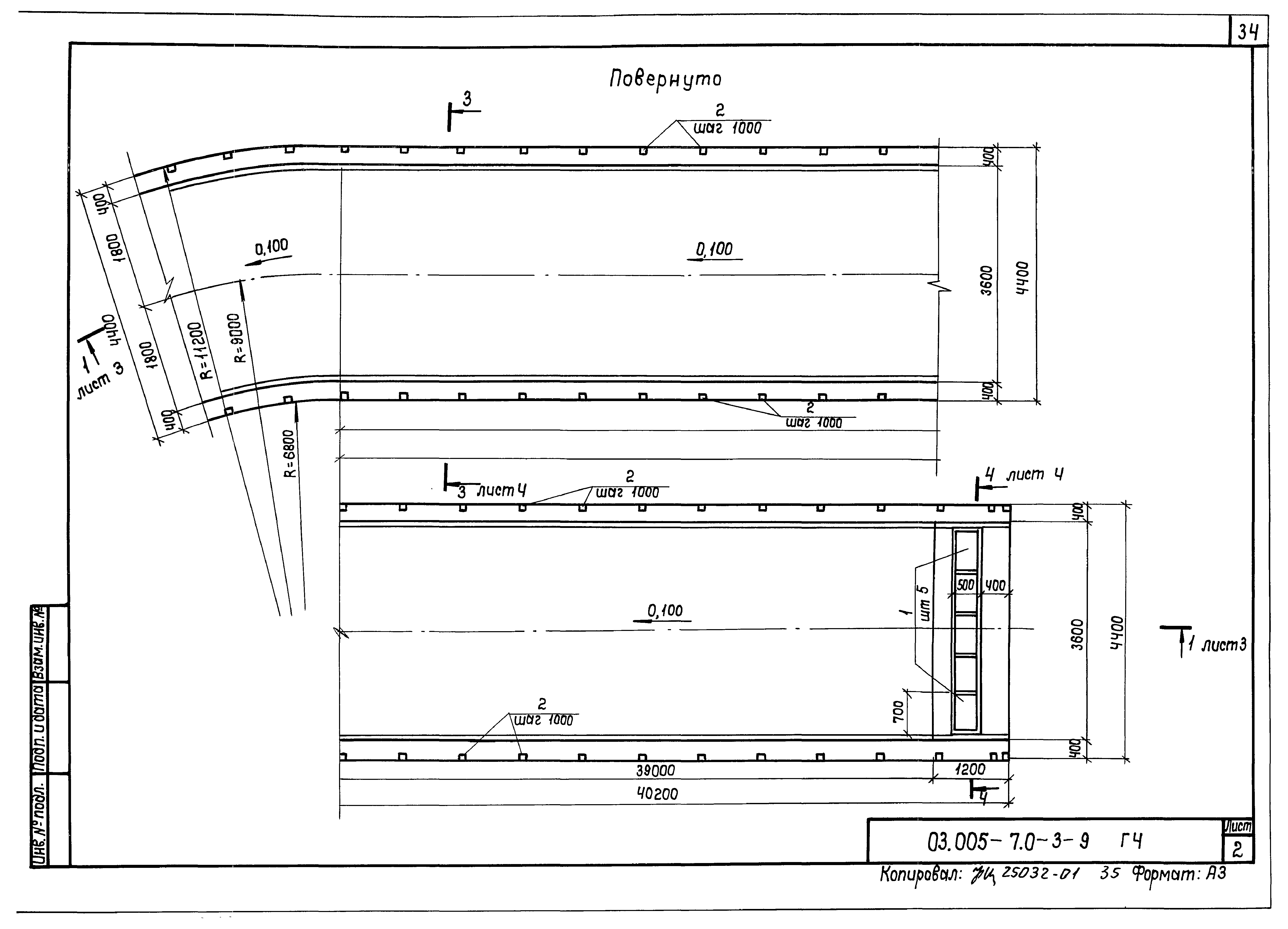
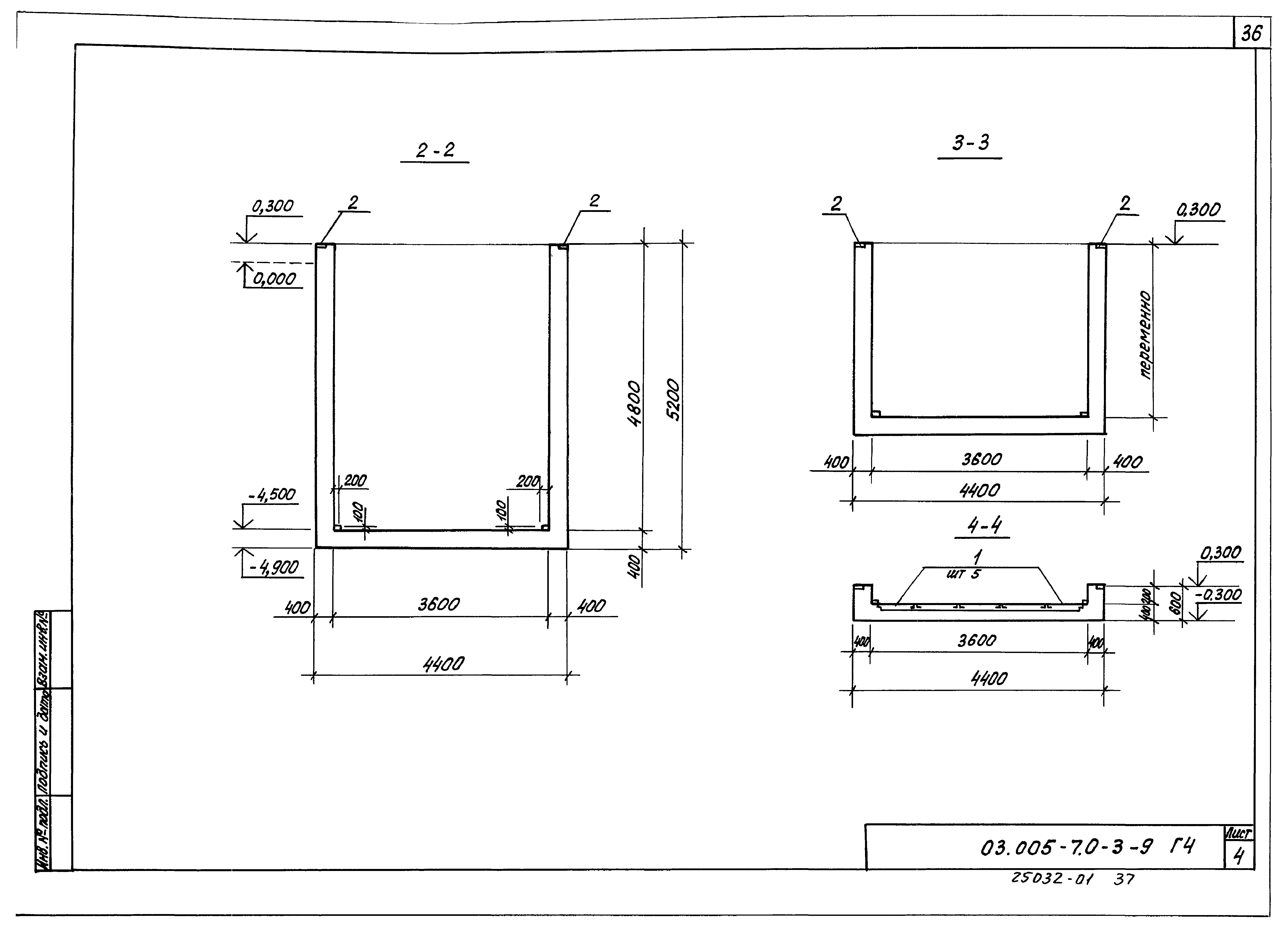
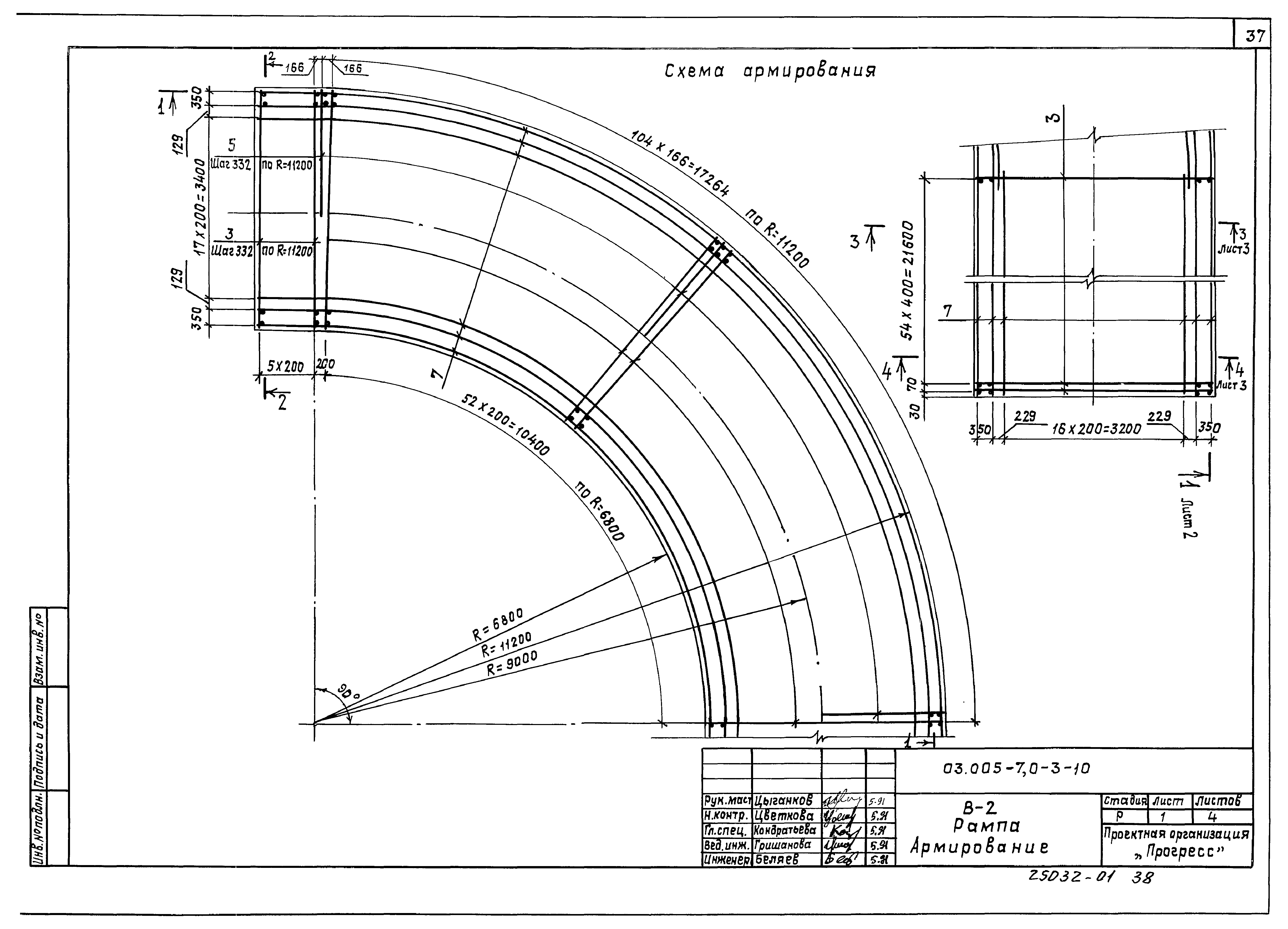
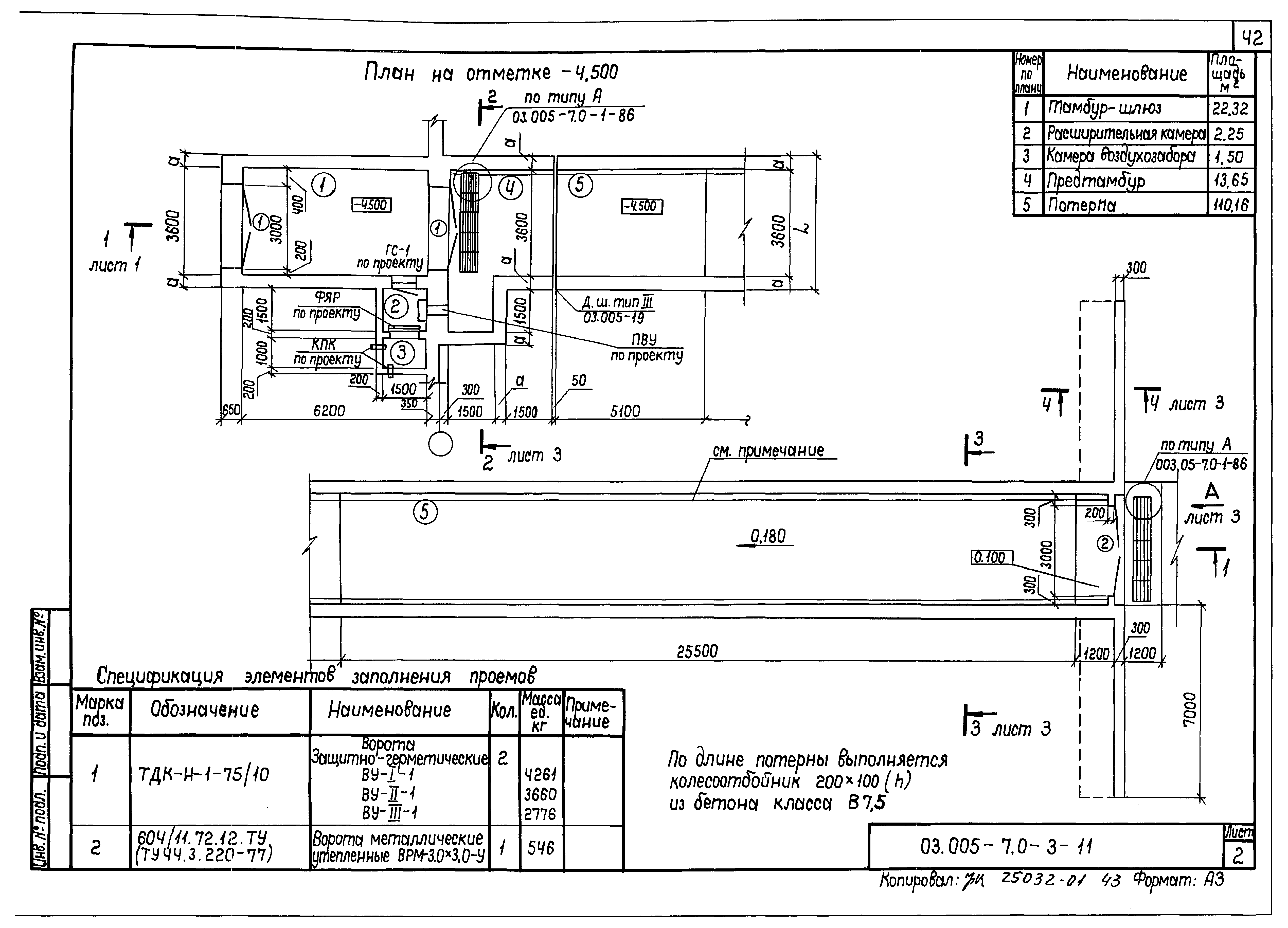
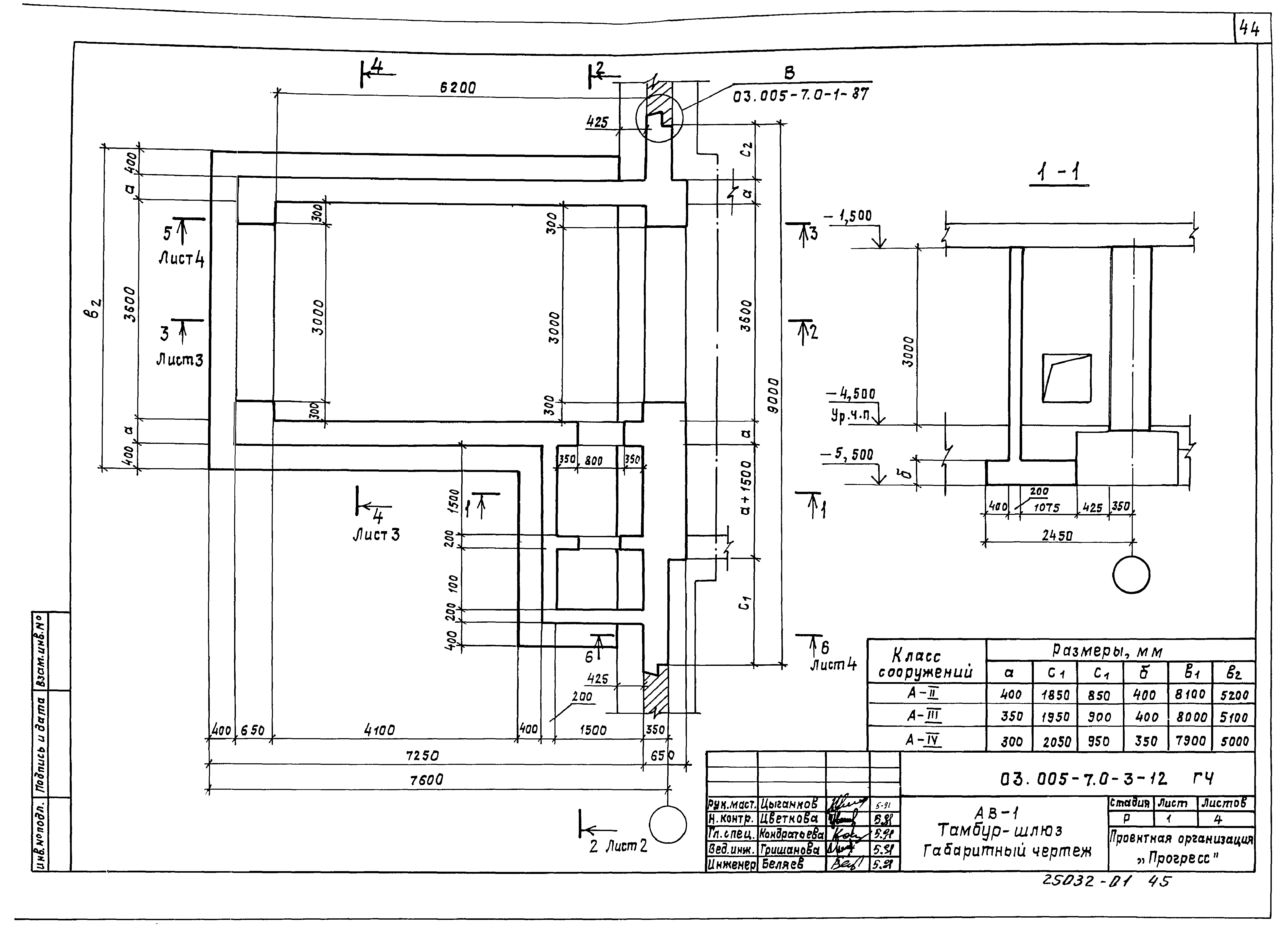
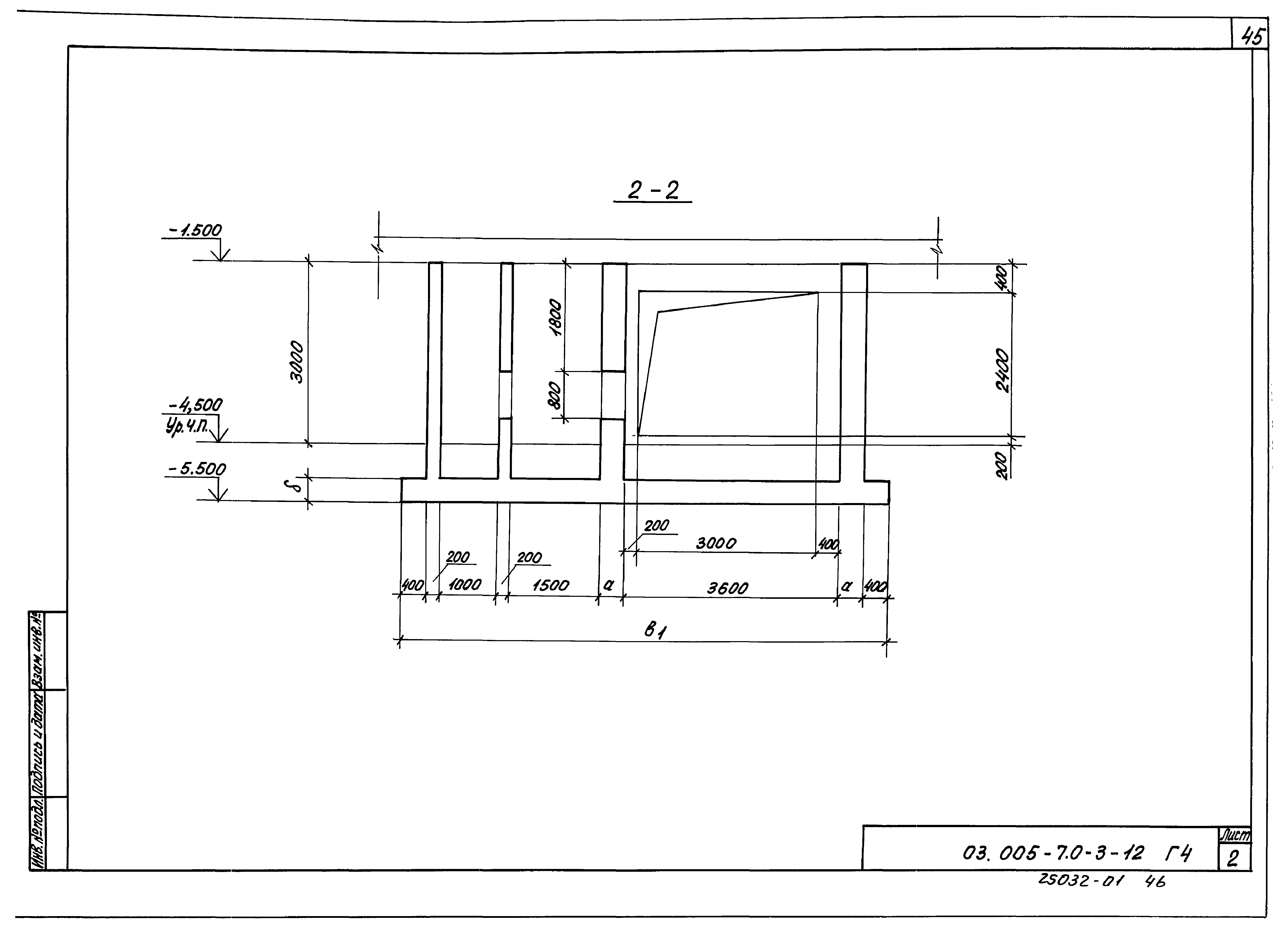
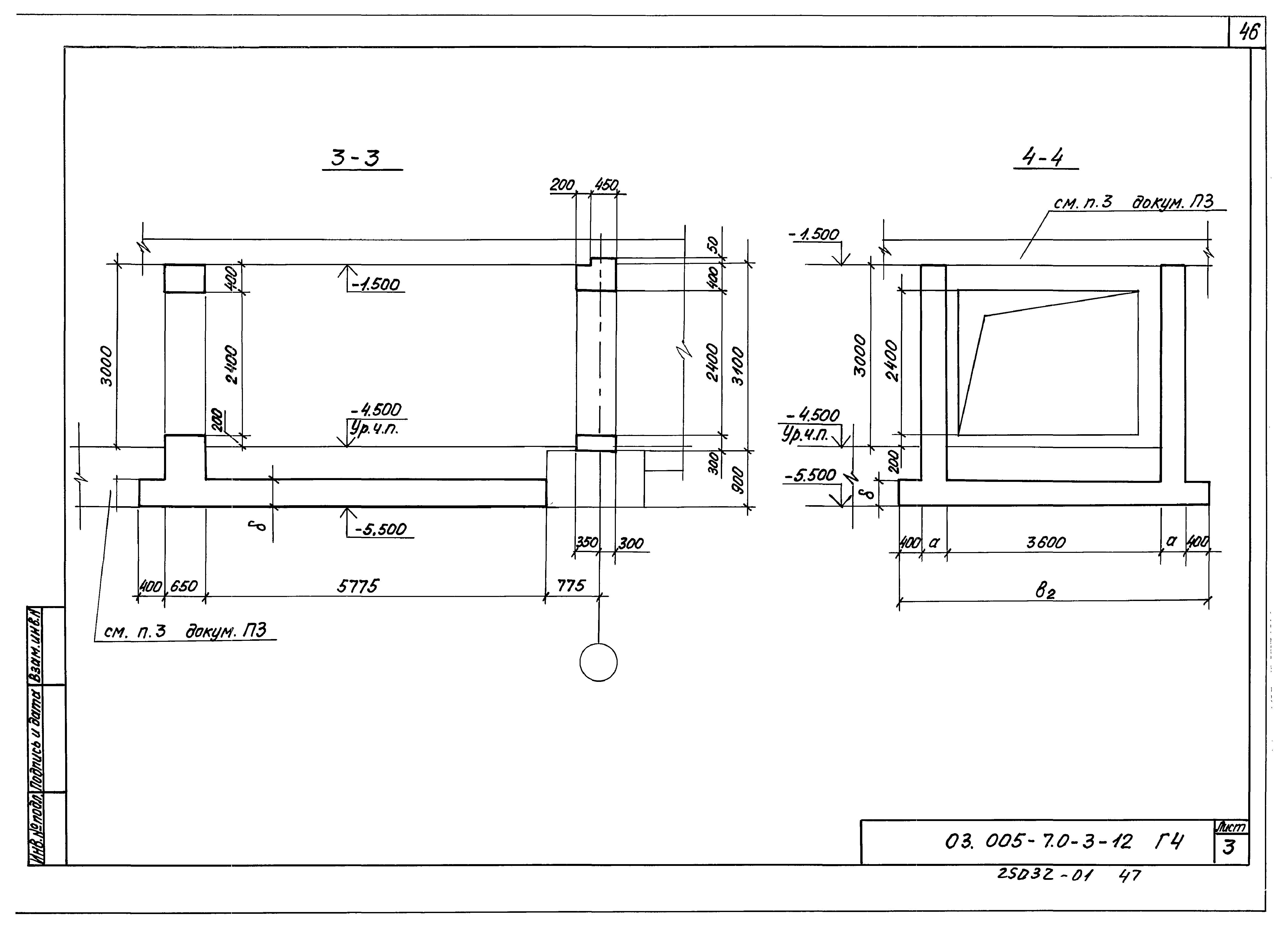
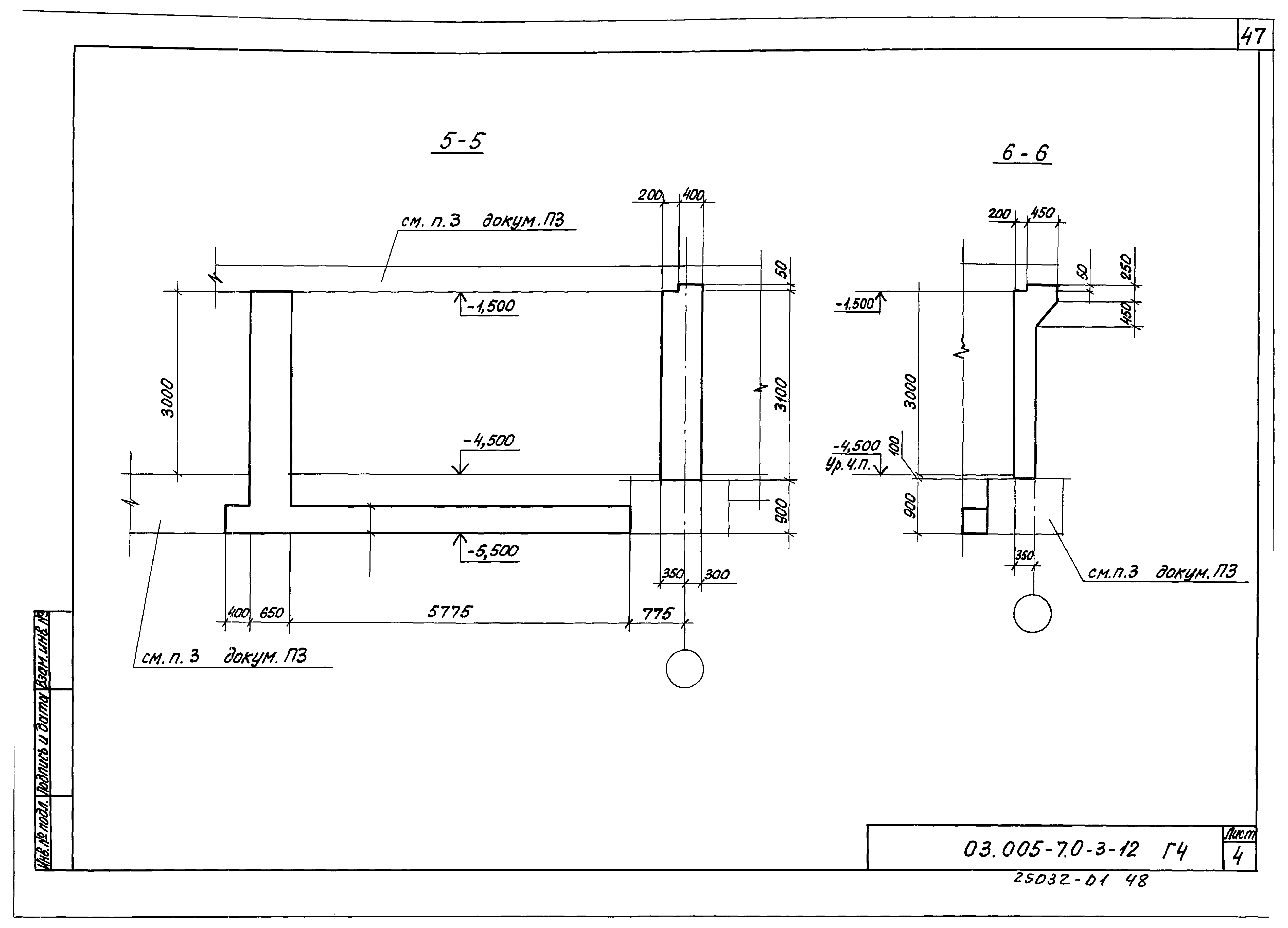
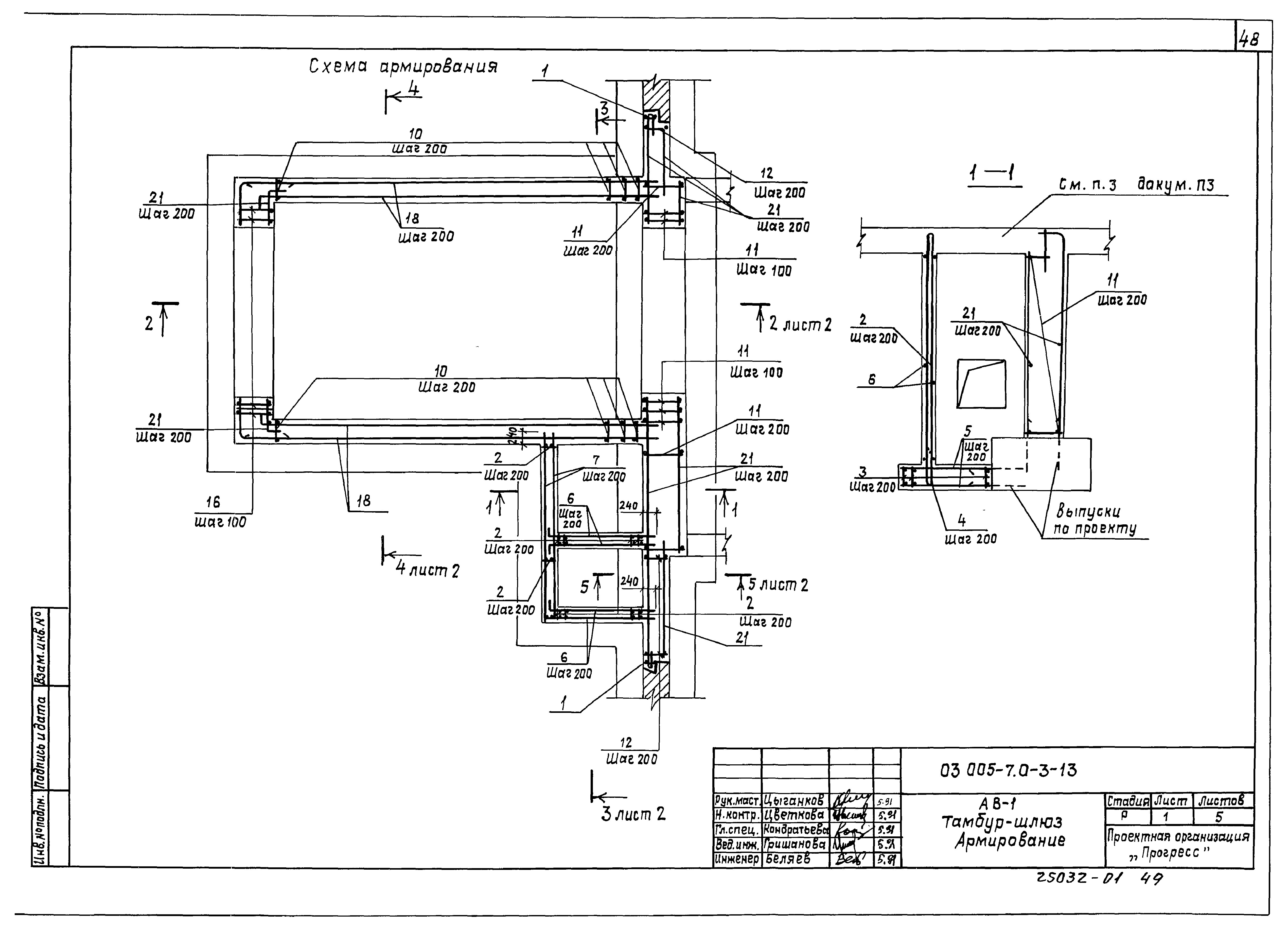
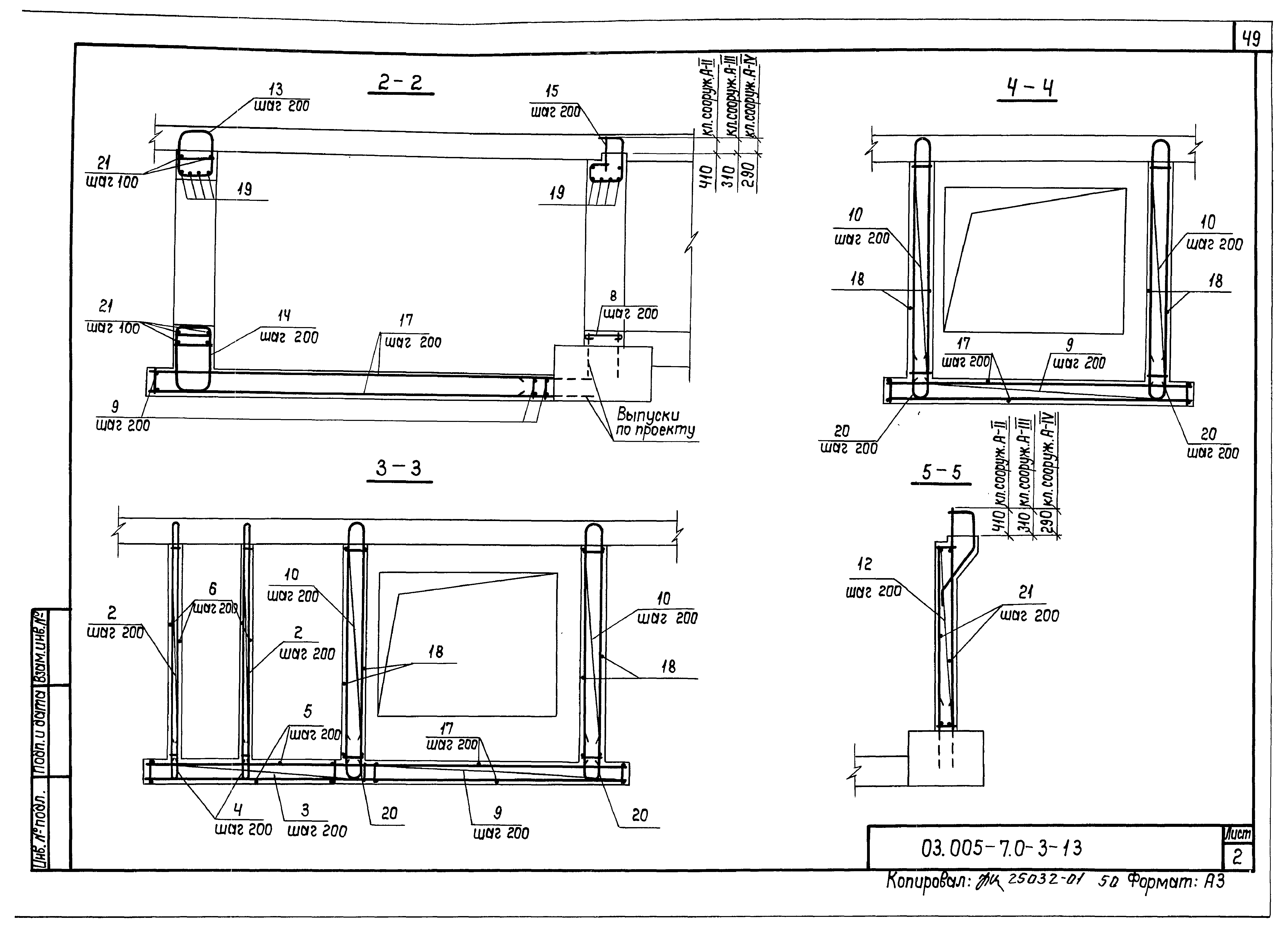
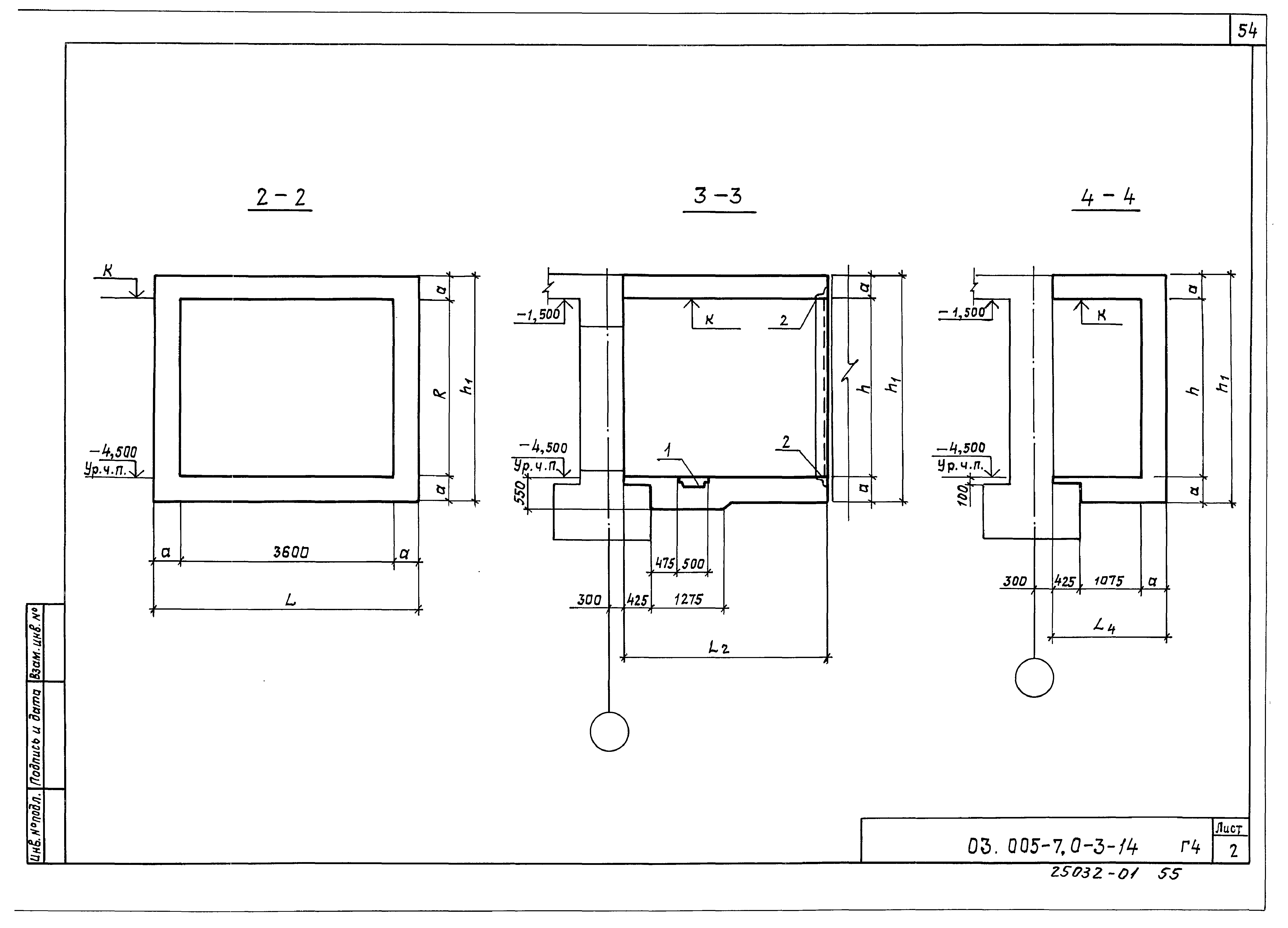
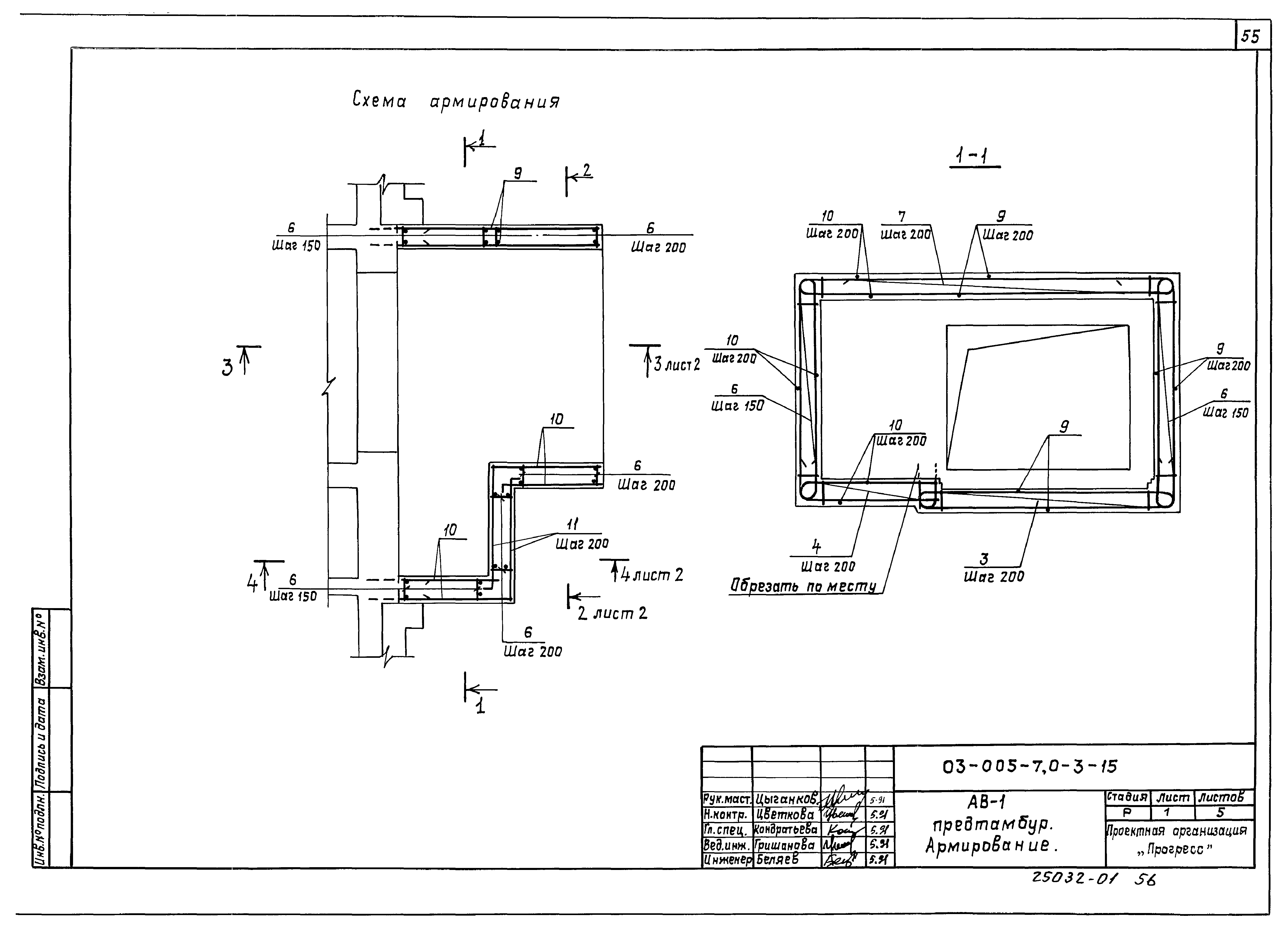
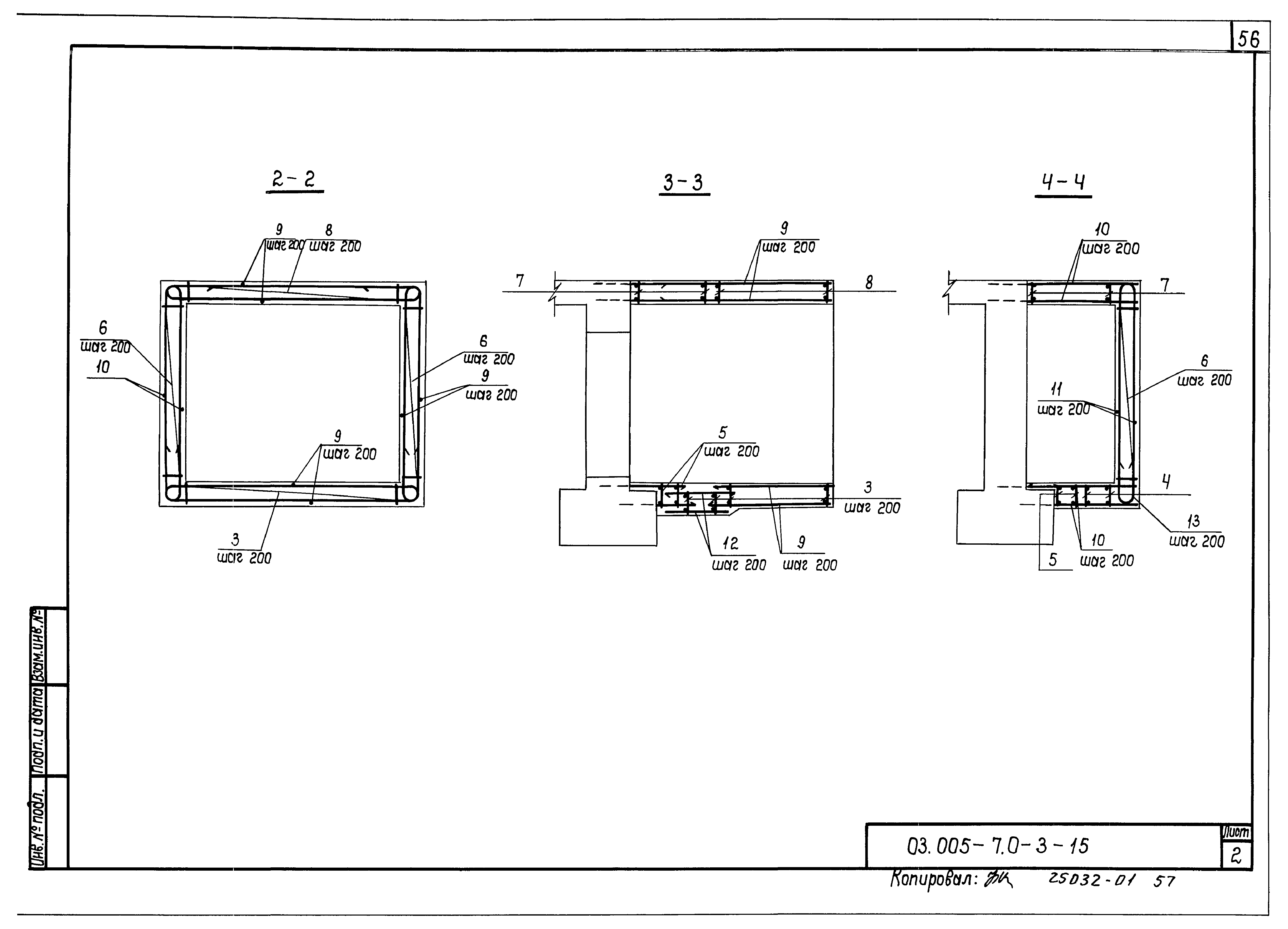
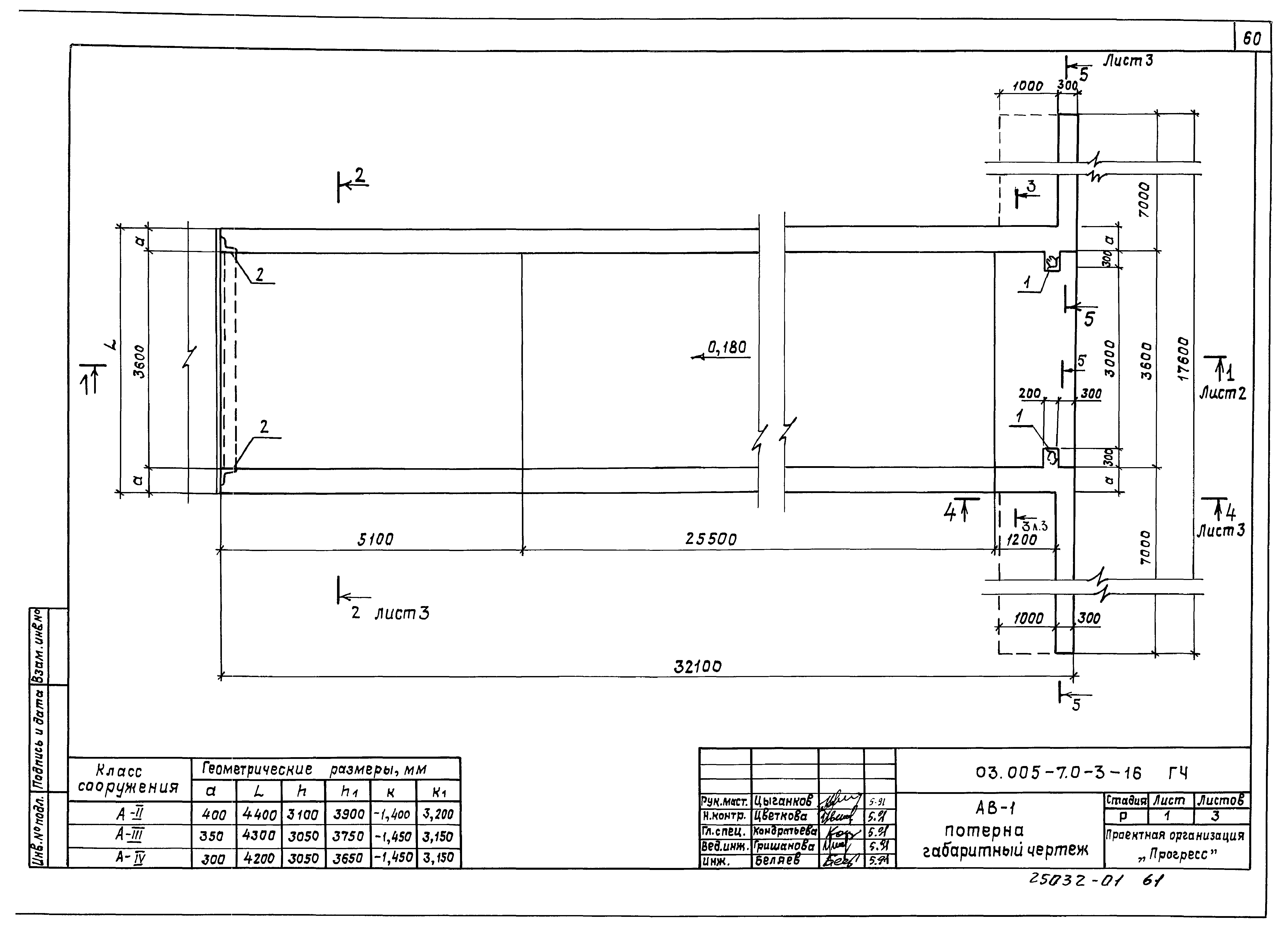
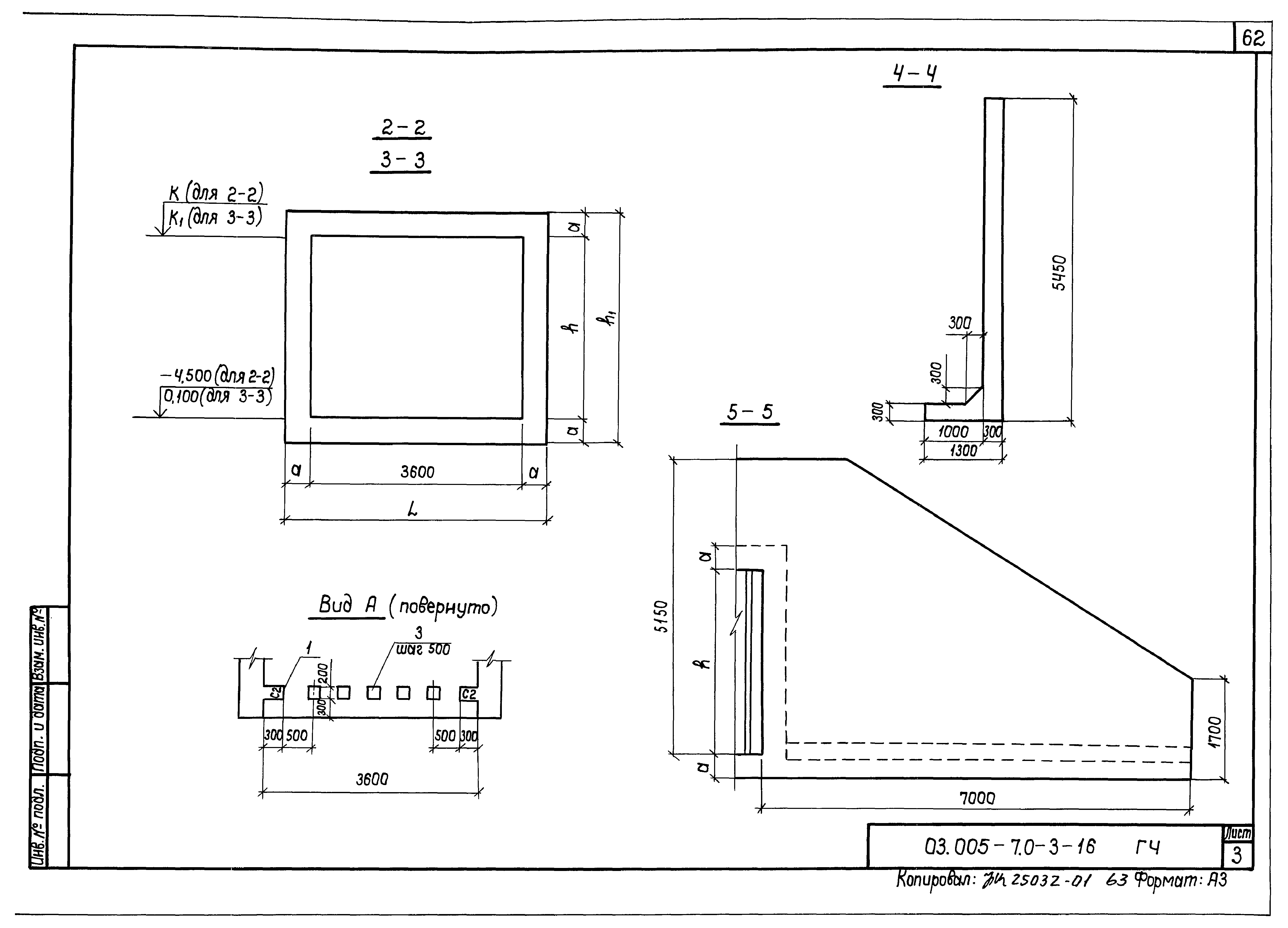
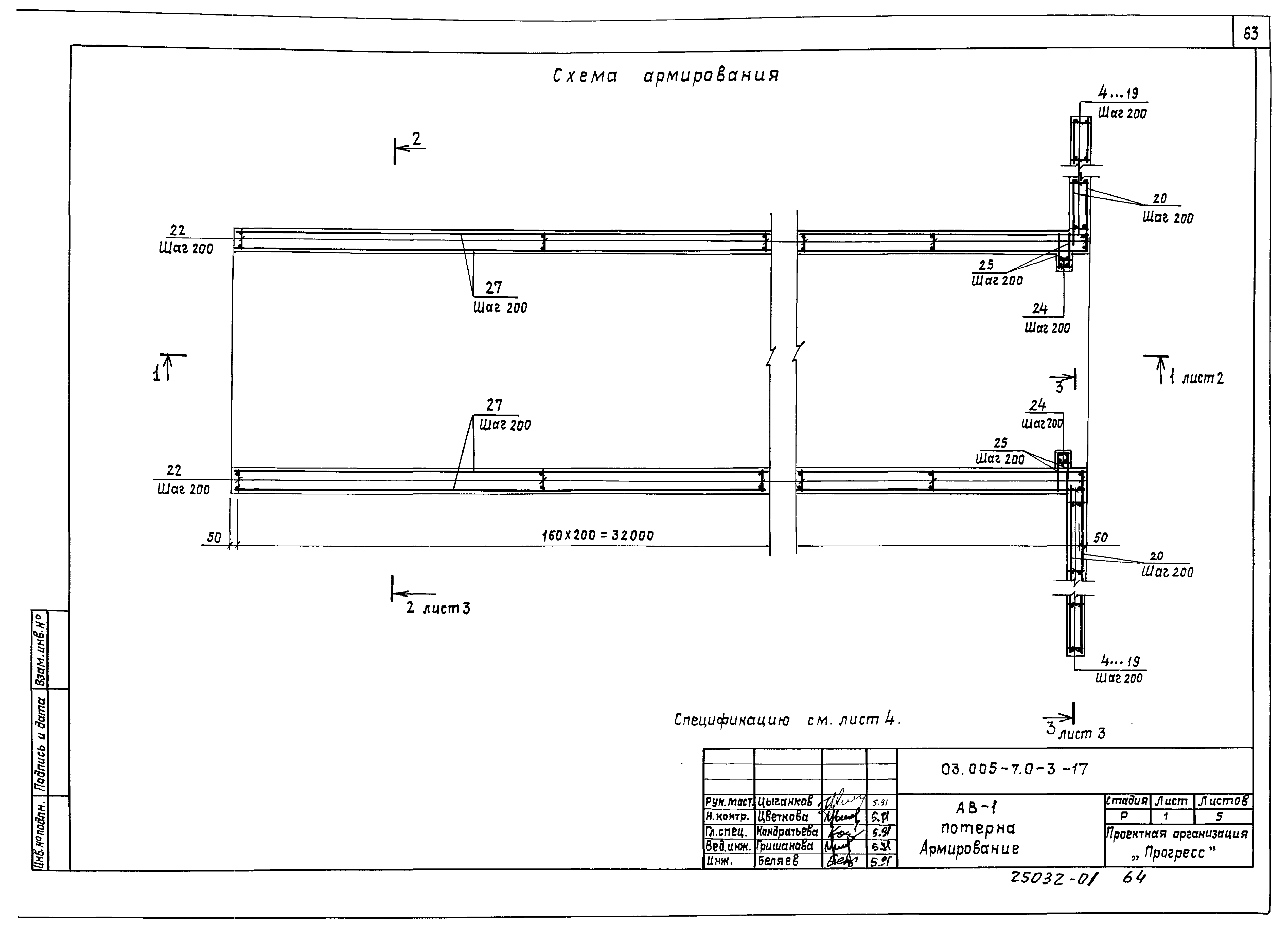
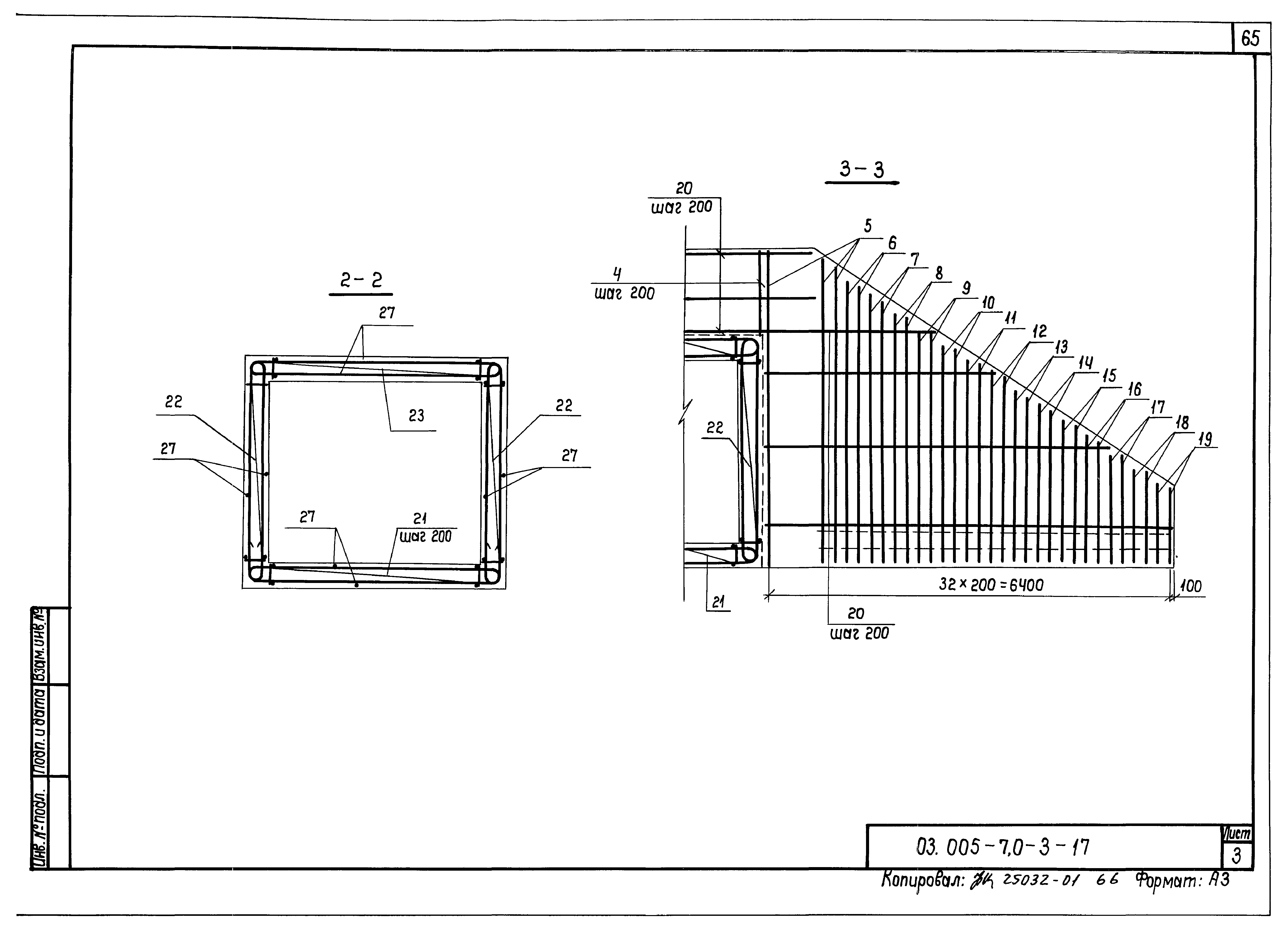
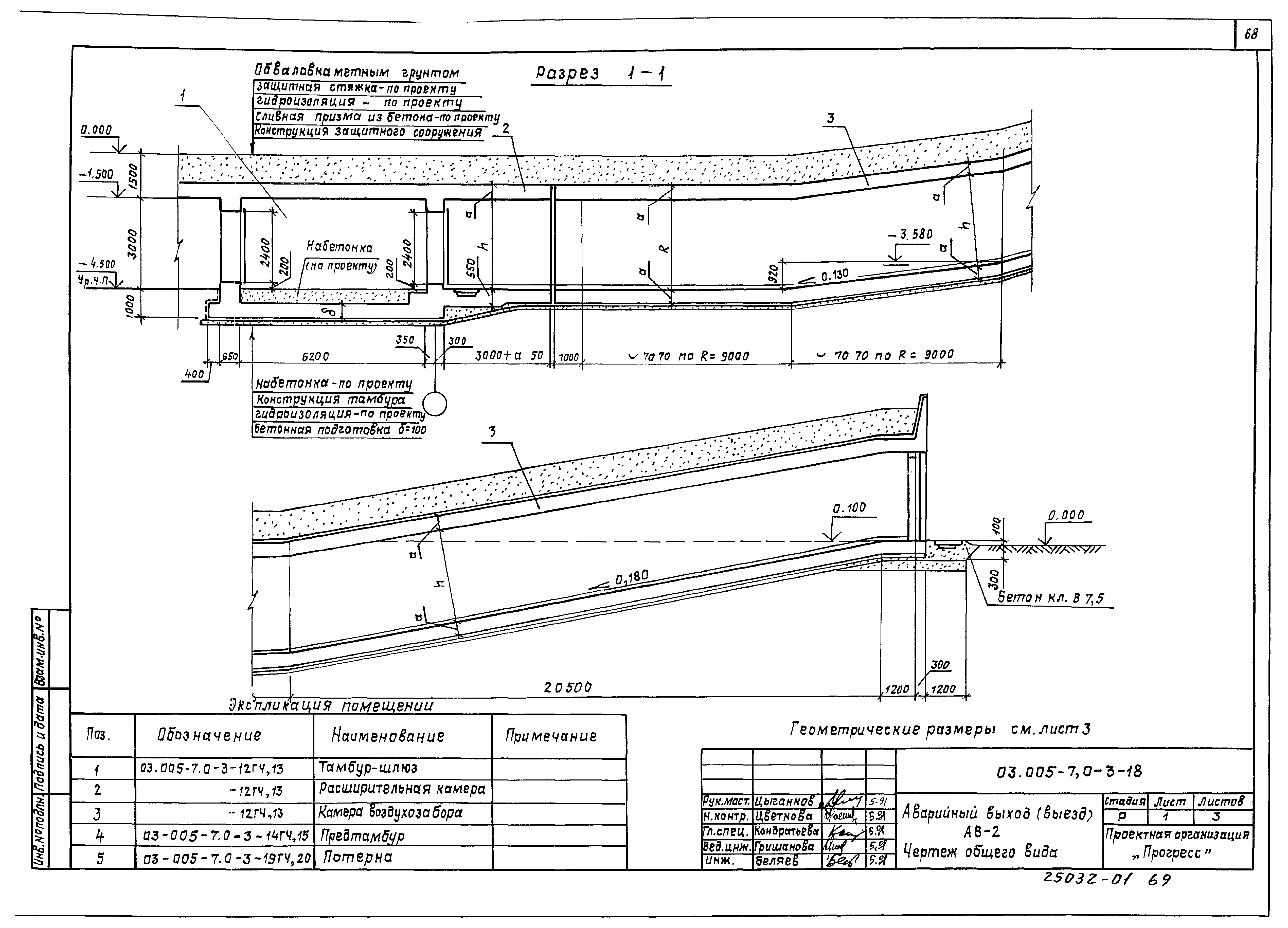
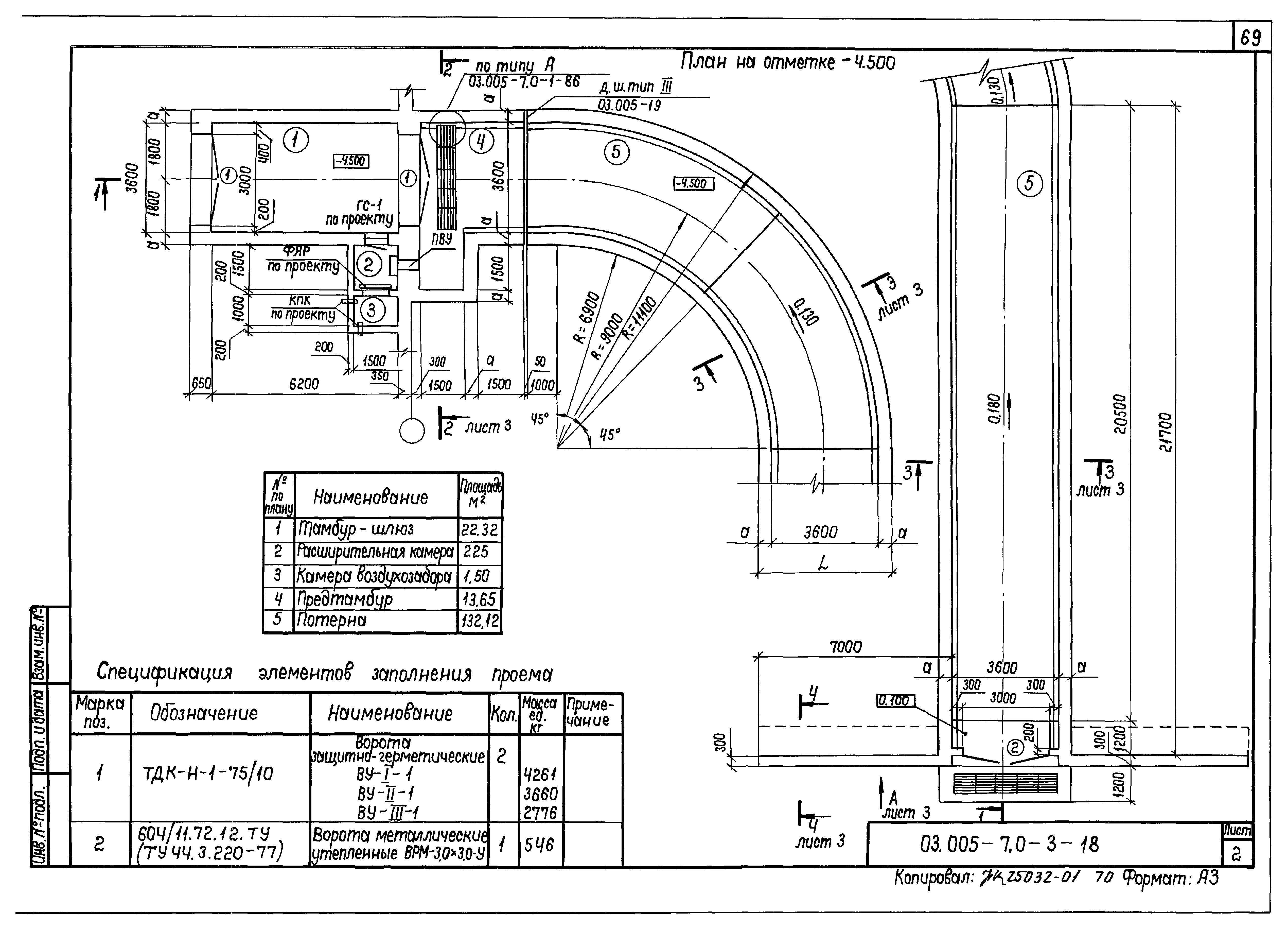
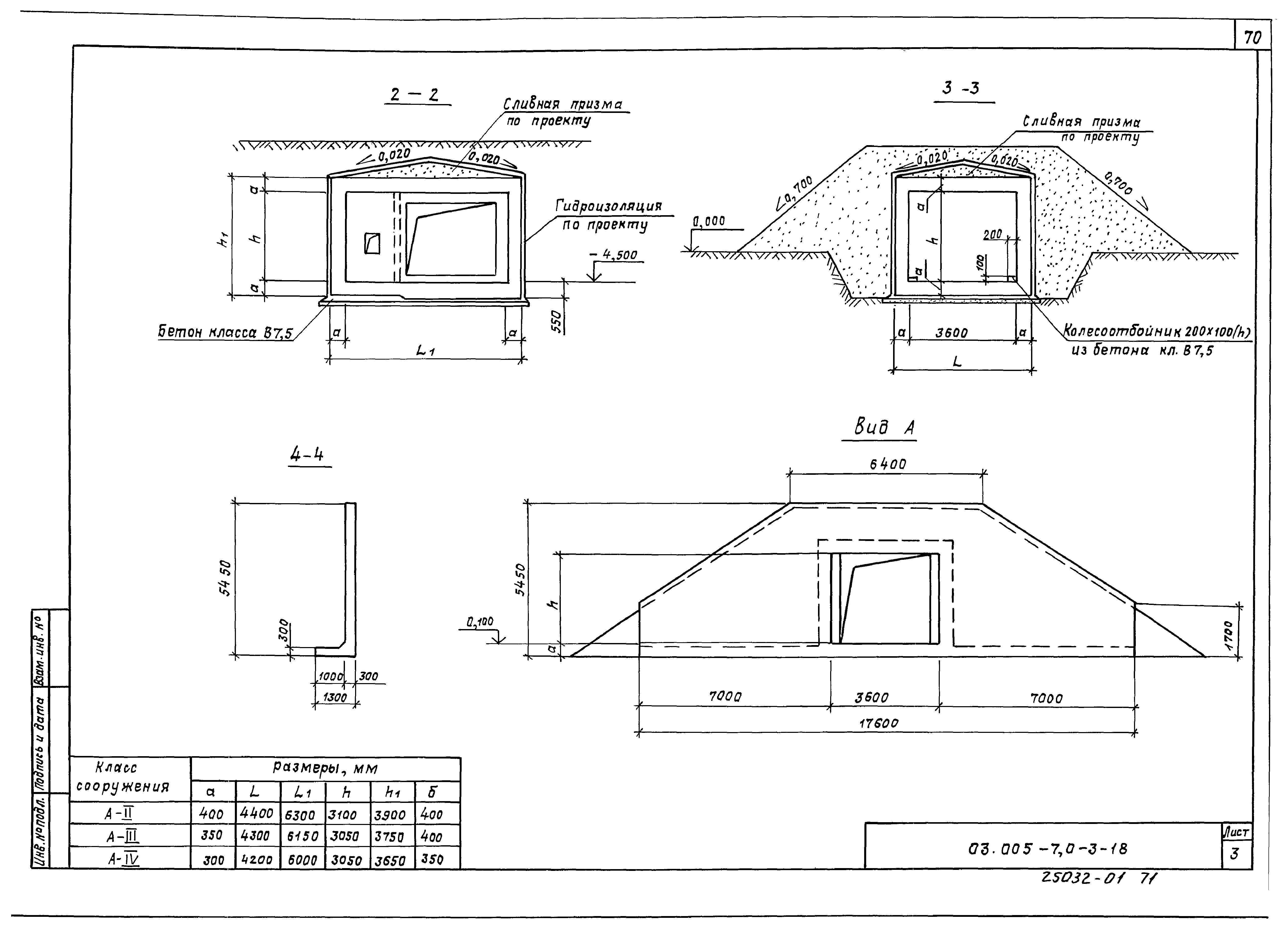
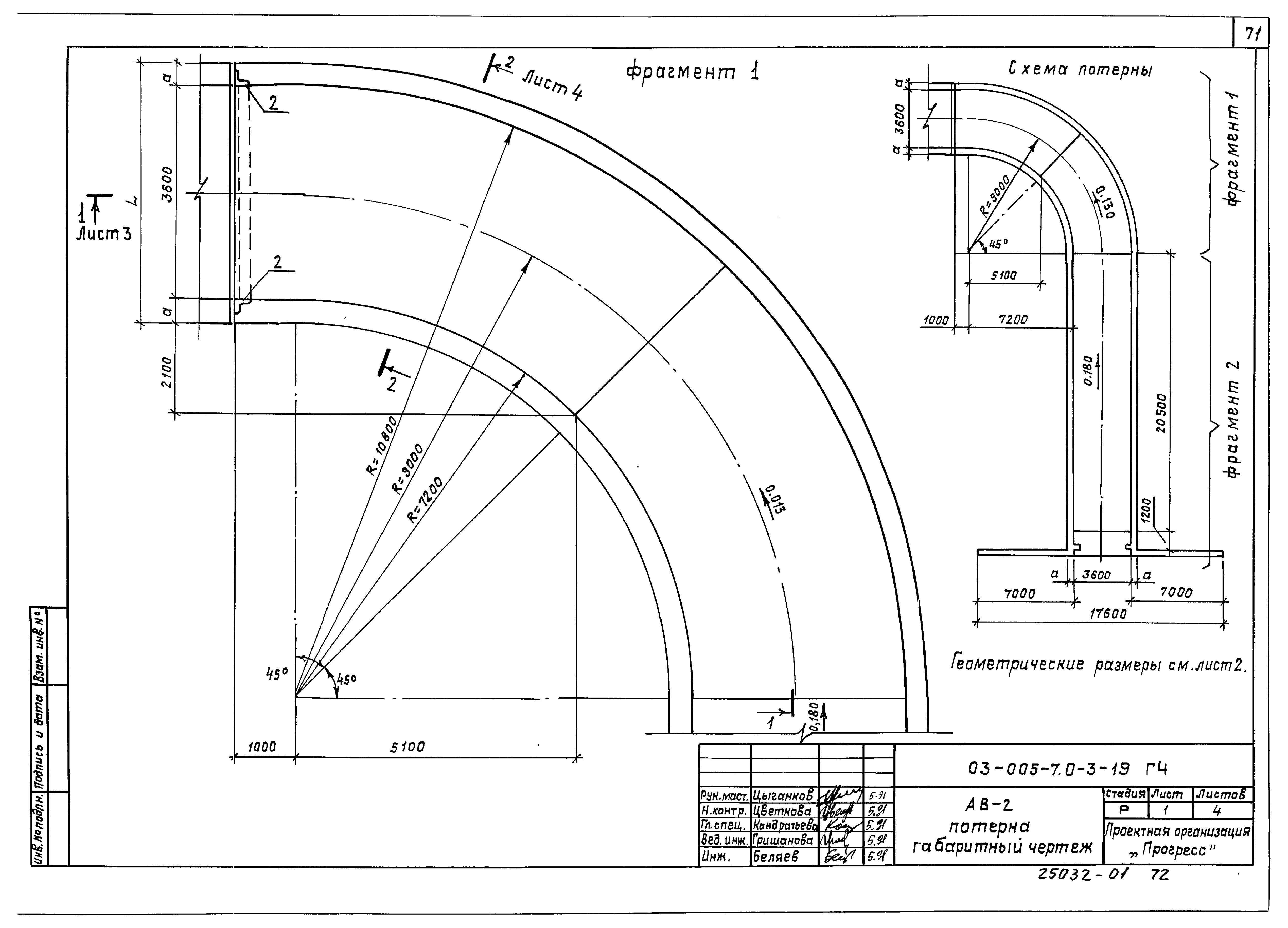
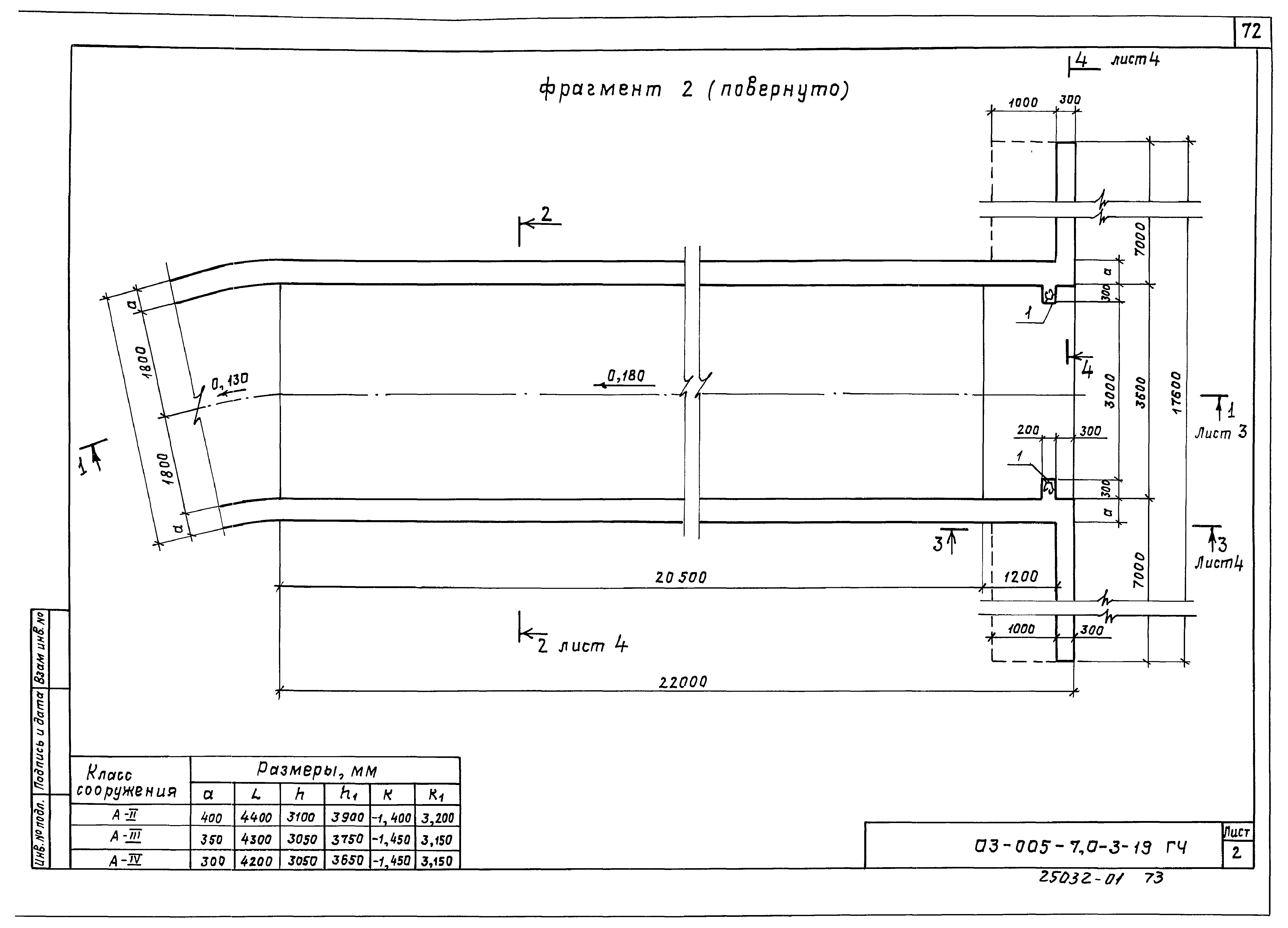
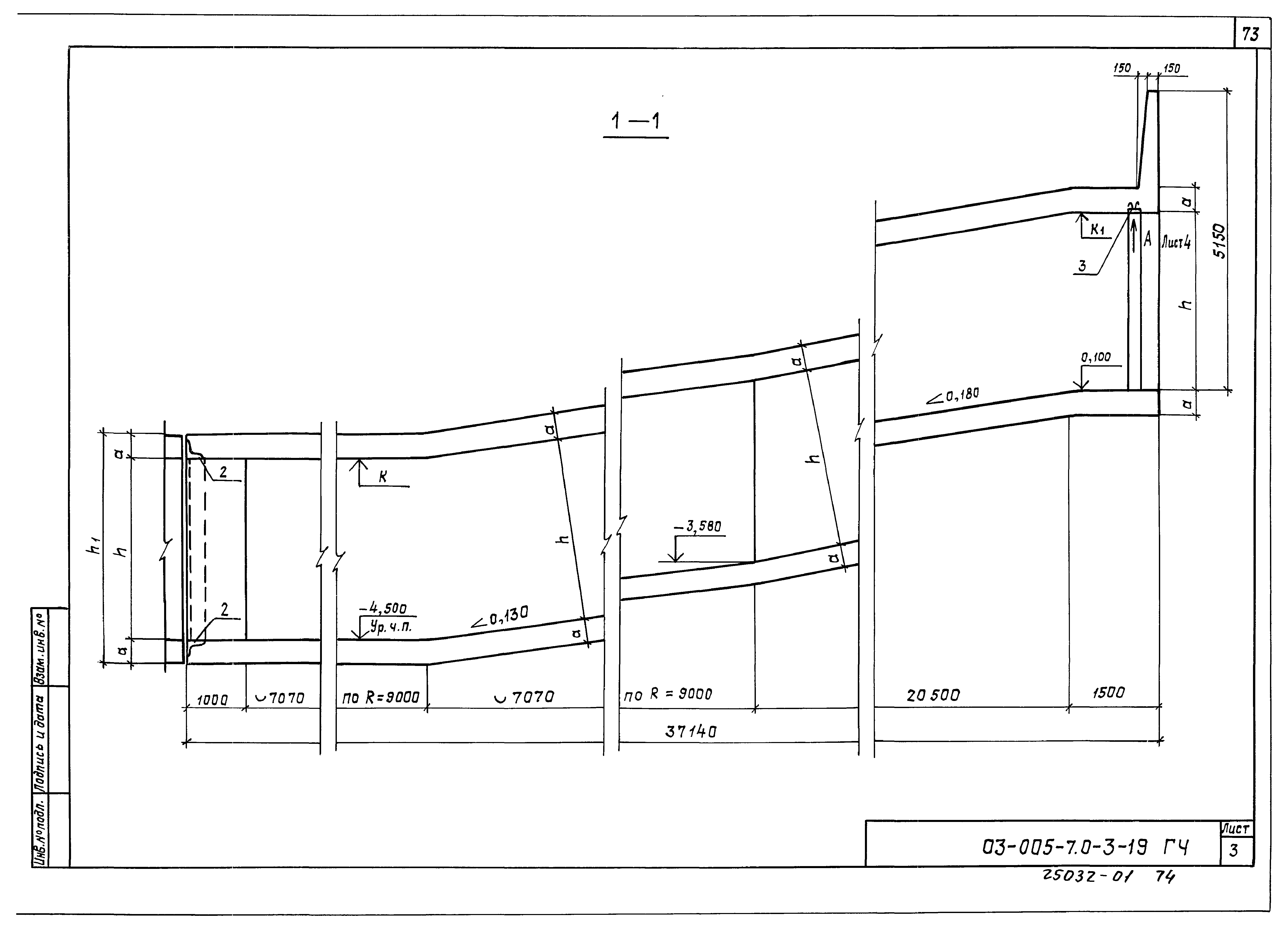
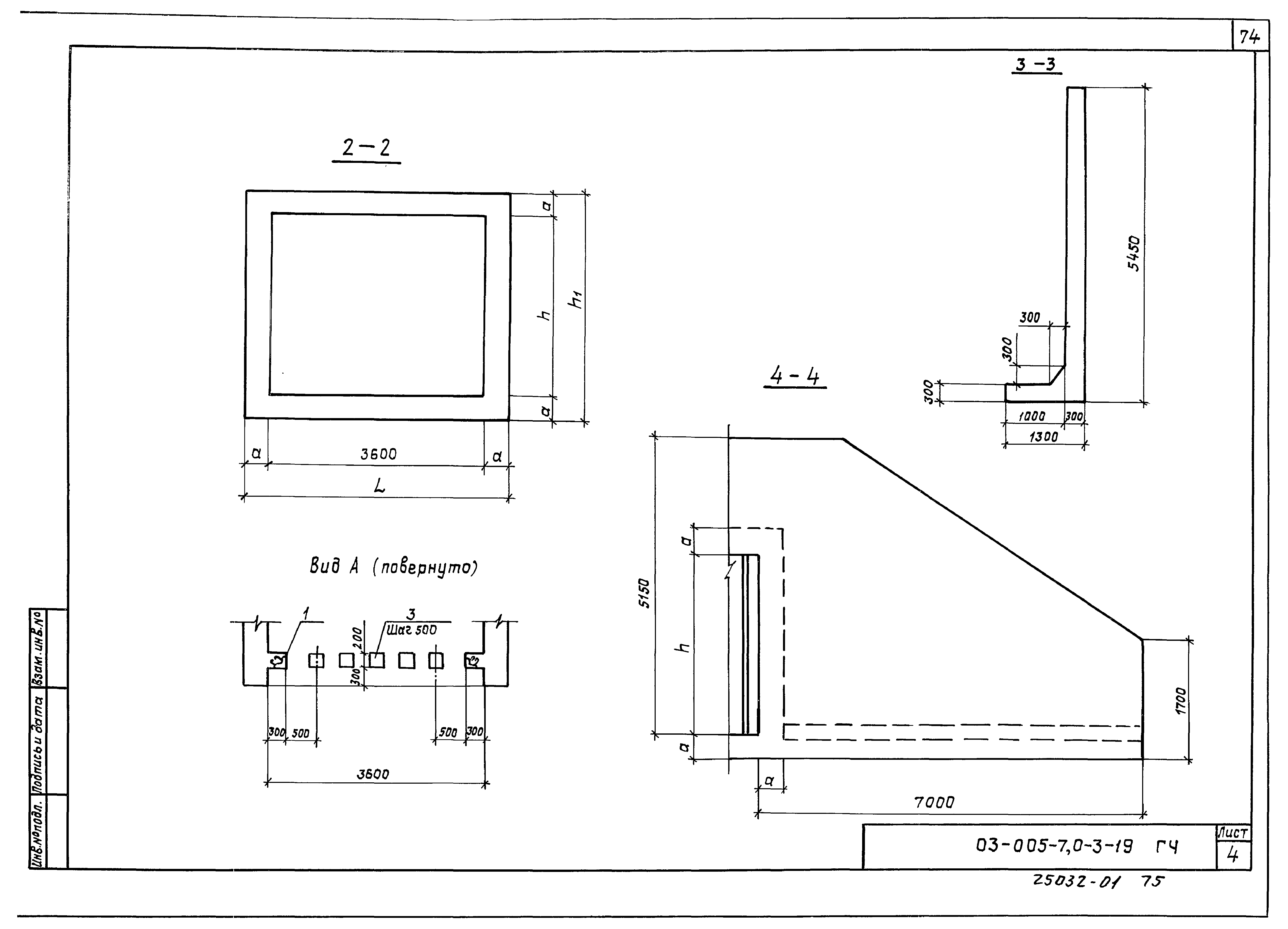
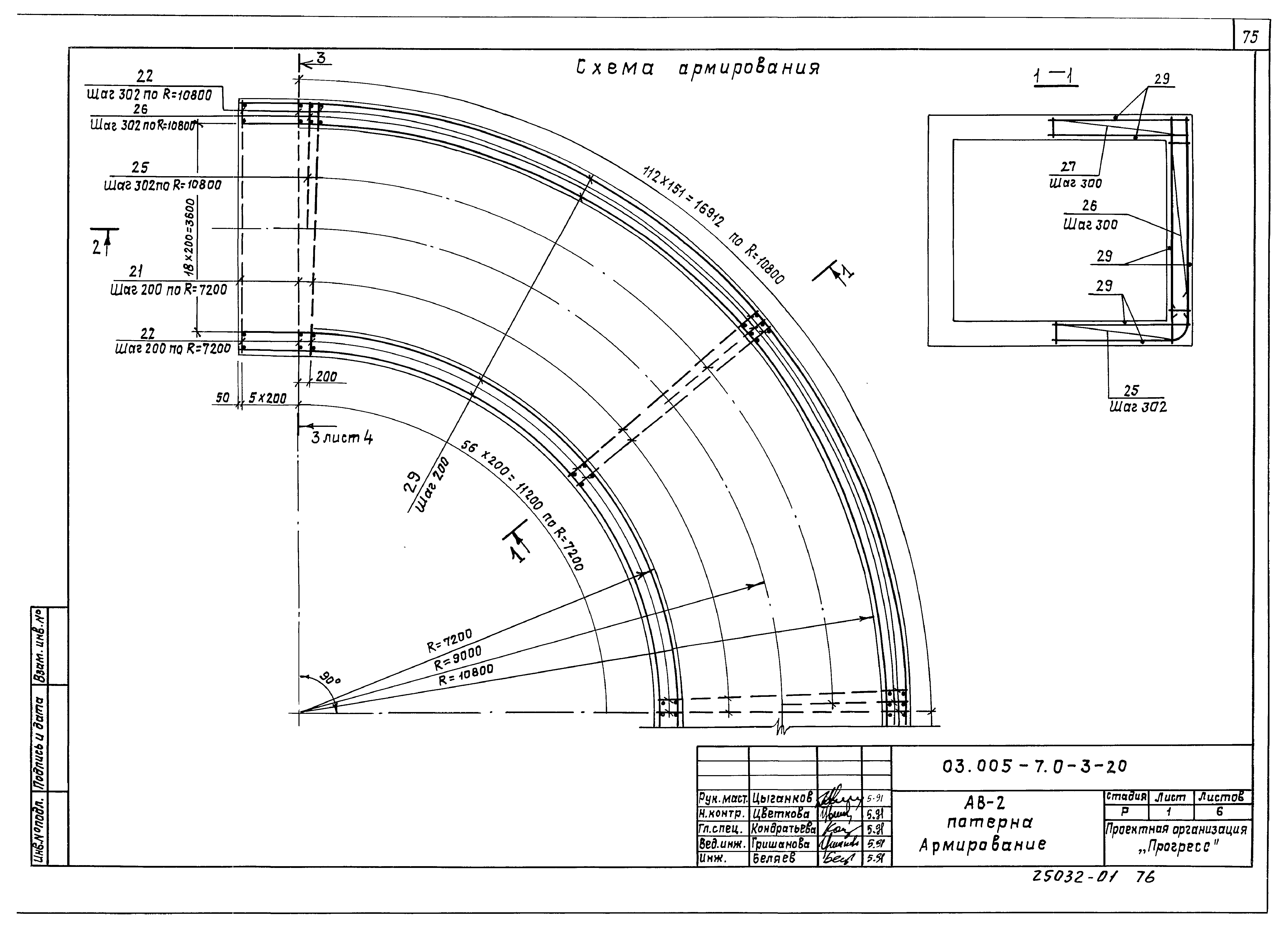
| Оглавление: | 03.005-7.0-3-ПЗ Пояснительная записка 03.005-7.0-3-1 Въезд прямой с проемом ворот 3,0х2,4(h), В-1. Чертеж общего вида 03.005-7.0-3-2ГЧ В-1. Тамбур-шлюз. Габаритный чертеж 03.005-7.0-3-3 В-1. Тамбур-шлюз. Армирование 03.005-7.0-3-4ГЧ В-1. Предтамбур. Габаритный чертеж 03.005-7.0-3-5 В-1. Предтамбур. Армирование 03.005-7.0-3-6ГЧ В-1. Рампа. Габаритный чертеж 03.005-7.0-3-7 В-1. Рампа. Армирование 03.005-7.0-3-8 Въезд поворотный с проемом ворот 3,0х2,4(h), В-2. Чертеж общего вида 03.005-7.0-3-9ГЧ В-2. Рампа. Габаритный чертеж 03.005-7.0-3-10 В-2. Рампа. Армирование 03.005-7.0-3-11 Аварийный выход (выезд) АВ-1. Чертеж общего вида 03.005-7.0-3-12ГЧ АВ-1. Тамбур-шлюз. Габаритный чертеж 03.005-7.0-3-13 АВ-1. Тамбур-шлюз. Армирование 03.005-7.0-3-14ГЧ АВ-1. Предтамбур. Габаритный чертеж 03.005-7.0-3-15 АВ-1. Предтамбур. Армирование 03.005-7.0-3-16ГЧ АВ-1. Потерна. Габаритный чертеж 03.005-7.0-3-17 АВ-1. Потерна. Армирование 03.005-7.0-3-18 Аварийный выход (выезд) АВ-2. Чертеж общего вида 03.005-7.0-3-19ГЧ АВ-2. Потерна. Габаритный чертеж 03.005-7.0-3-20 АВ-2. Потерна. Армирование |
| Разработан: | ПКО Прогресс Агропромстроя РСФСР |
| Утверждён: | 12.03.1991 Управление НГО СССР (48) |
















































































