Скачать Серия 03.005-8 Выпуск 0-2. Конструктивные решения оголовков, гравийных фильтров, фундаментов под оборудование. Материалы для проектированияДата актуализации: 01.01.2021
|
| Обозначение: | Серия 03.005-8 |
| Обозначение англ: | Series 03.005-8 |
| Статус: | не определен законодательством |
| Название рус.: | Выпуск 0-2. Конструктивные решения оголовков, гравийных фильтров, фундаментов под оборудование. Материалы для проектирования |
| Дата добавления в базу: | 01.09.2013 |
| Дата актуализации: | 01.01.2021 |
| Дата введения: | 01.10.1988 |
| Дата окончания срока действия: | 30.06.2003 |
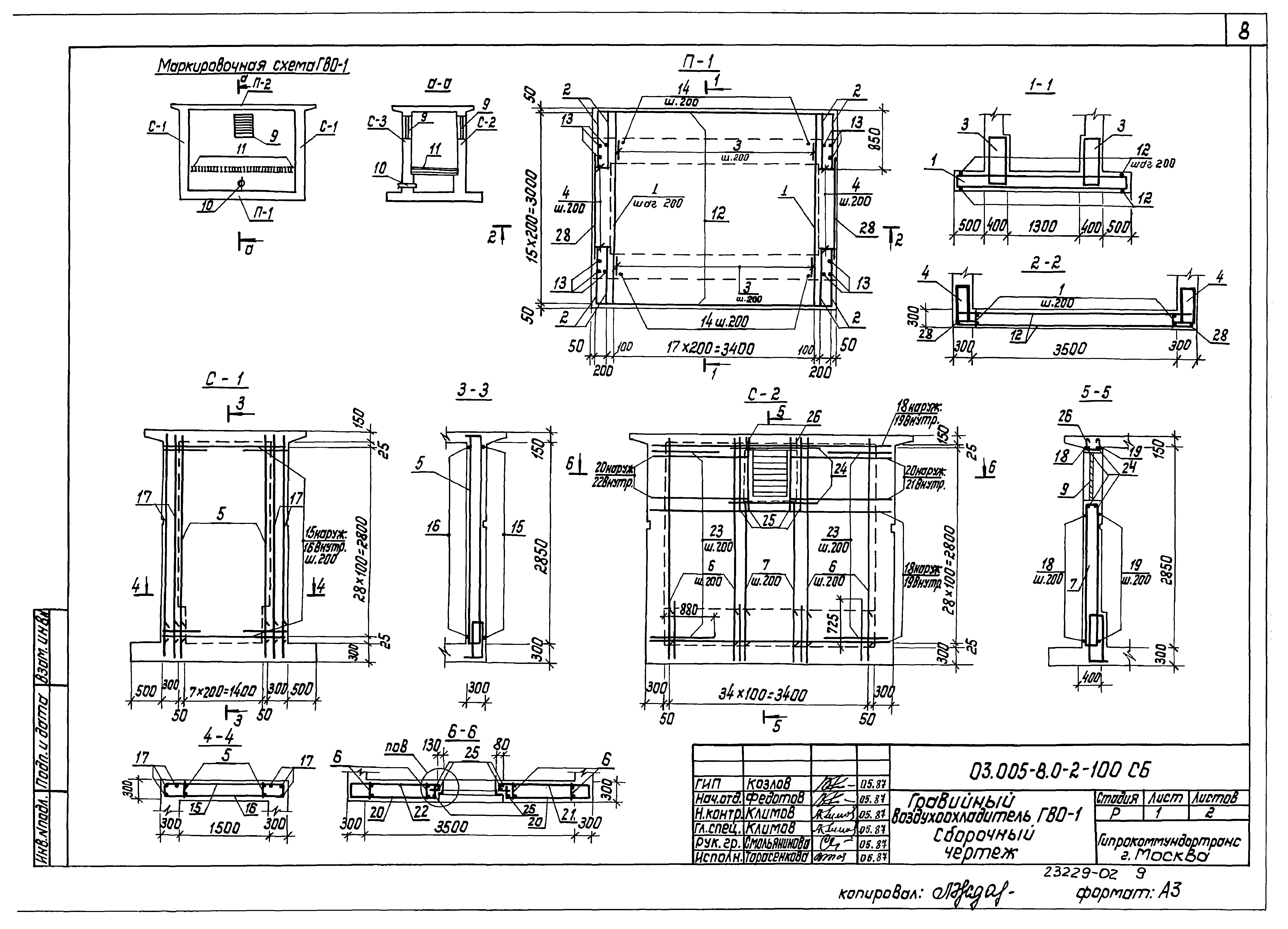
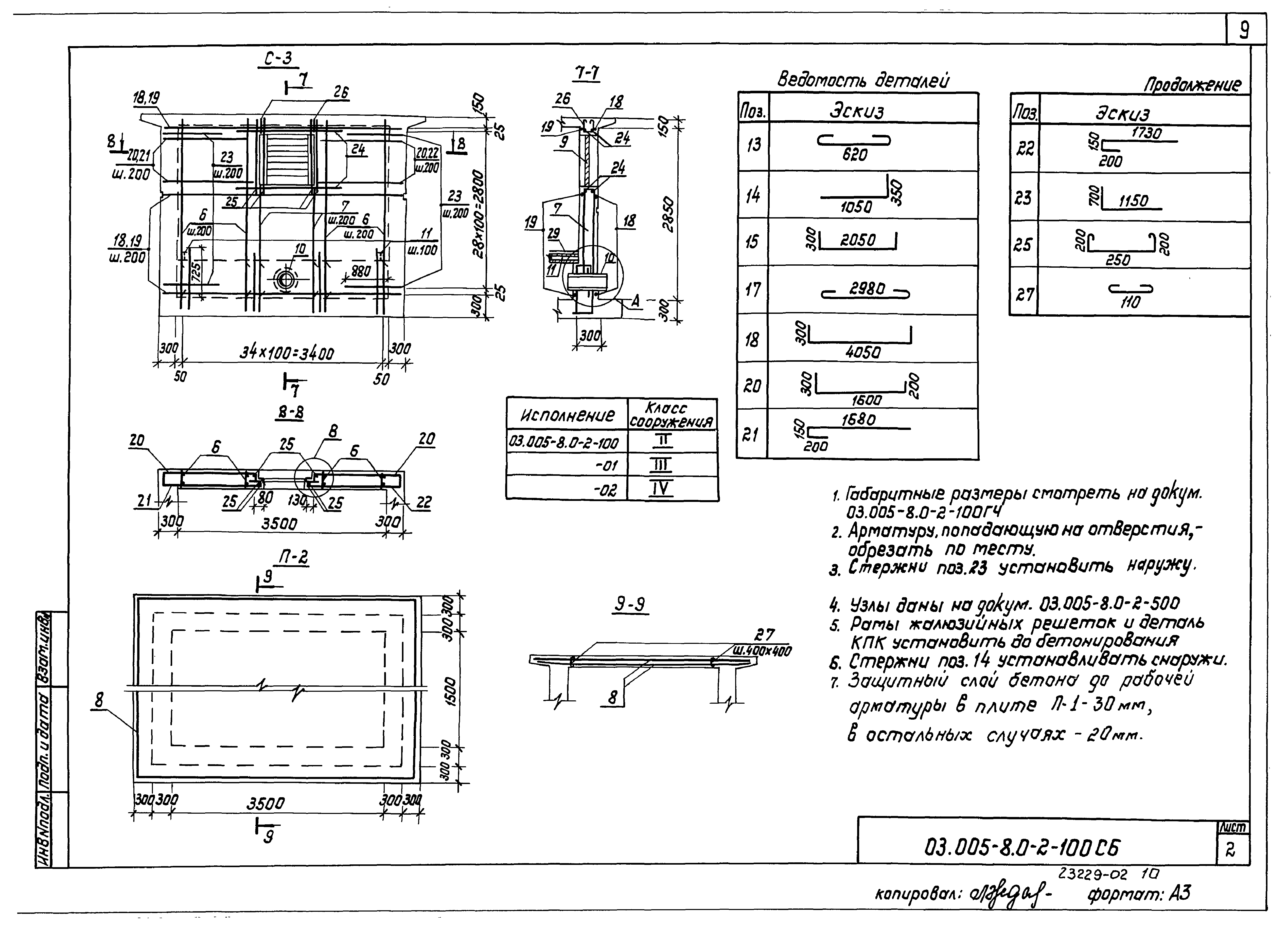
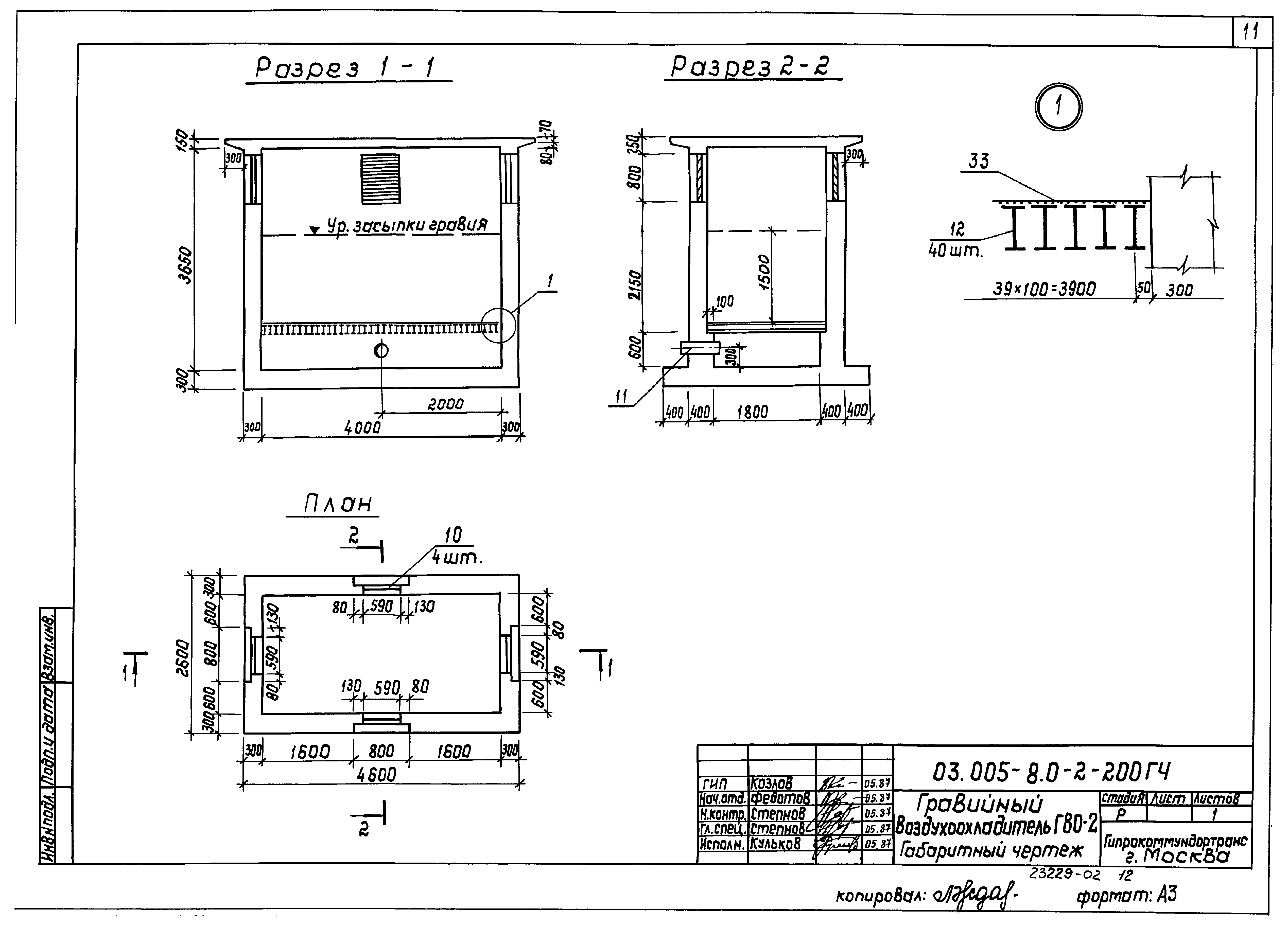
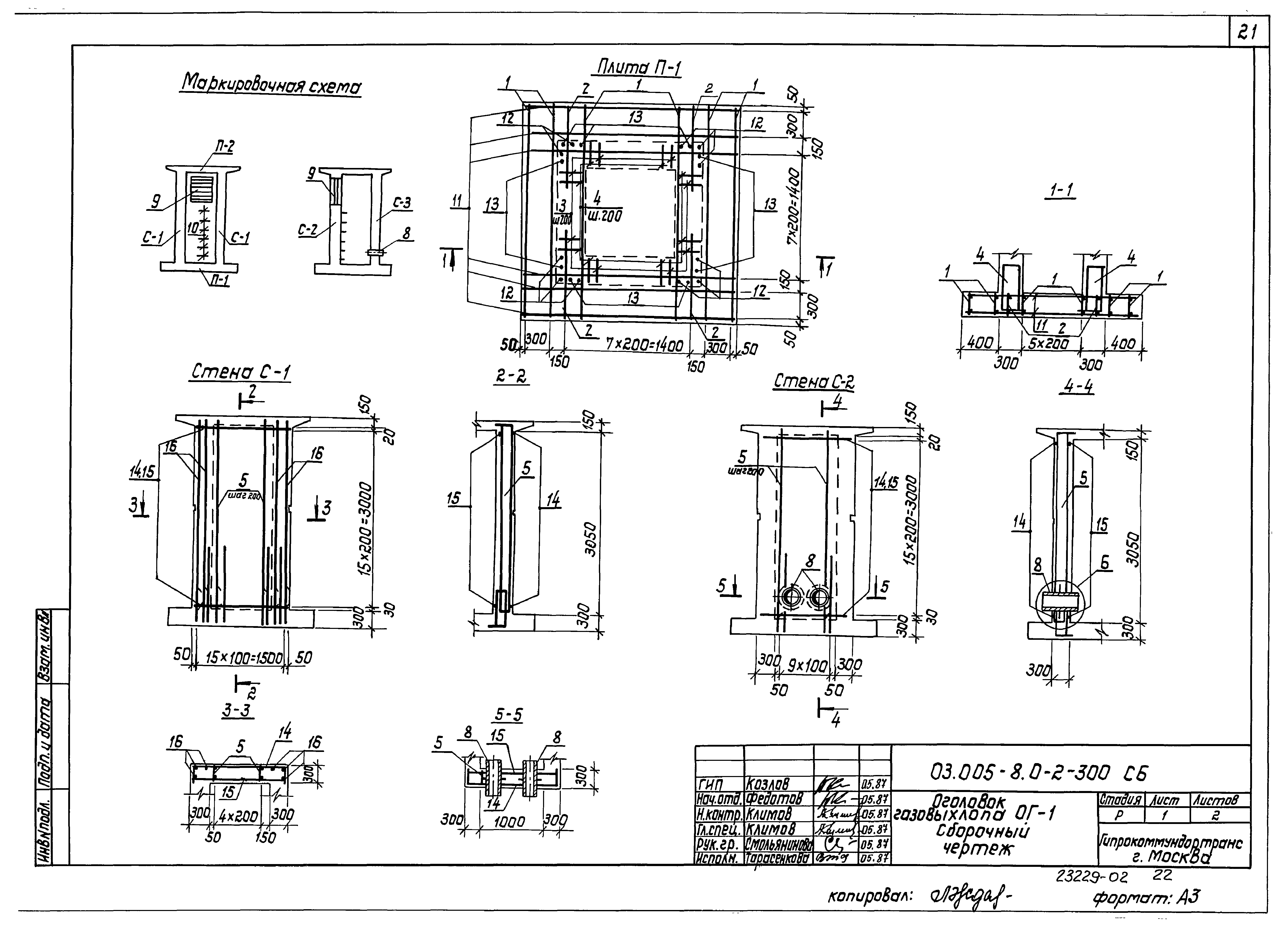
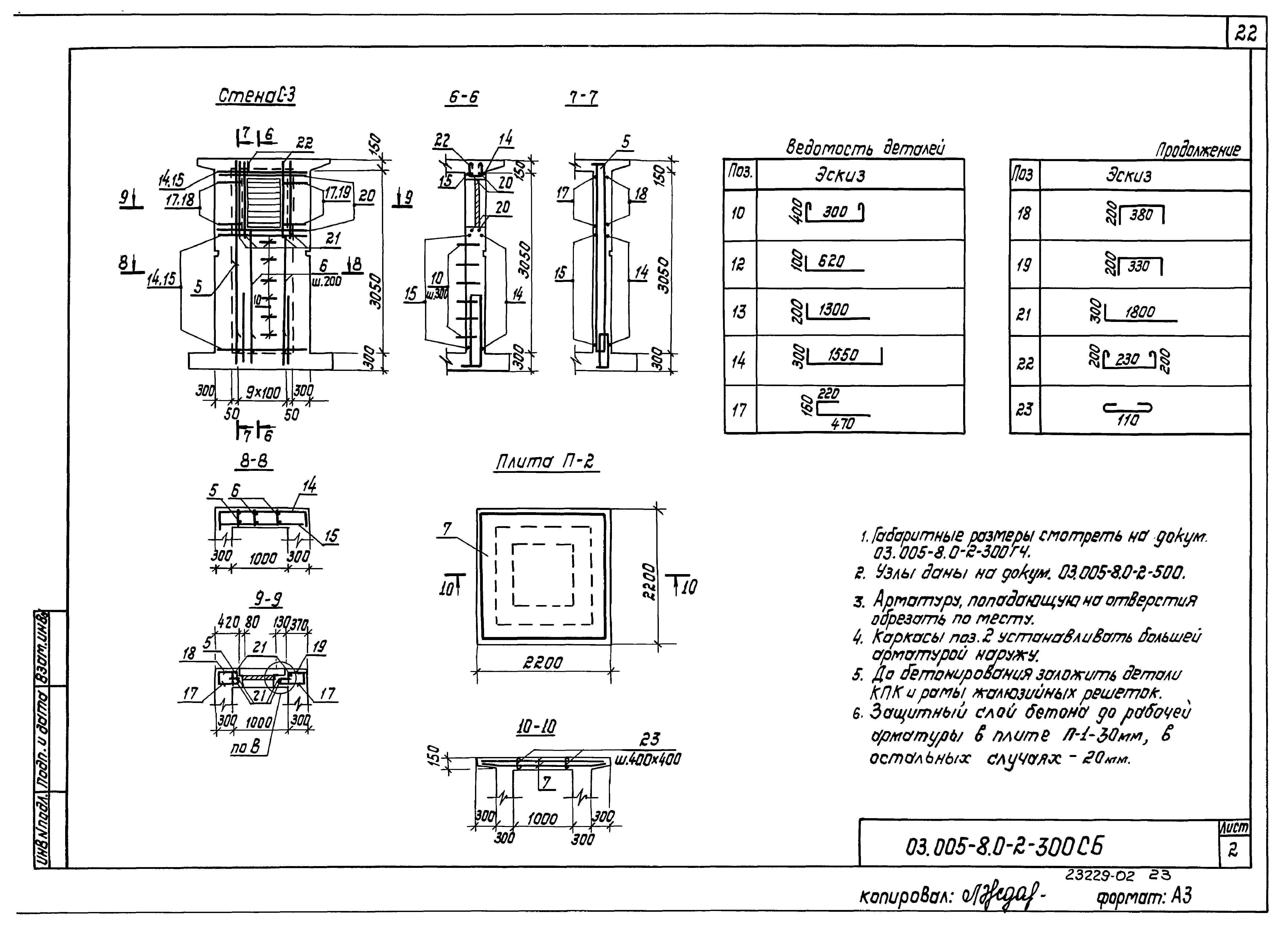
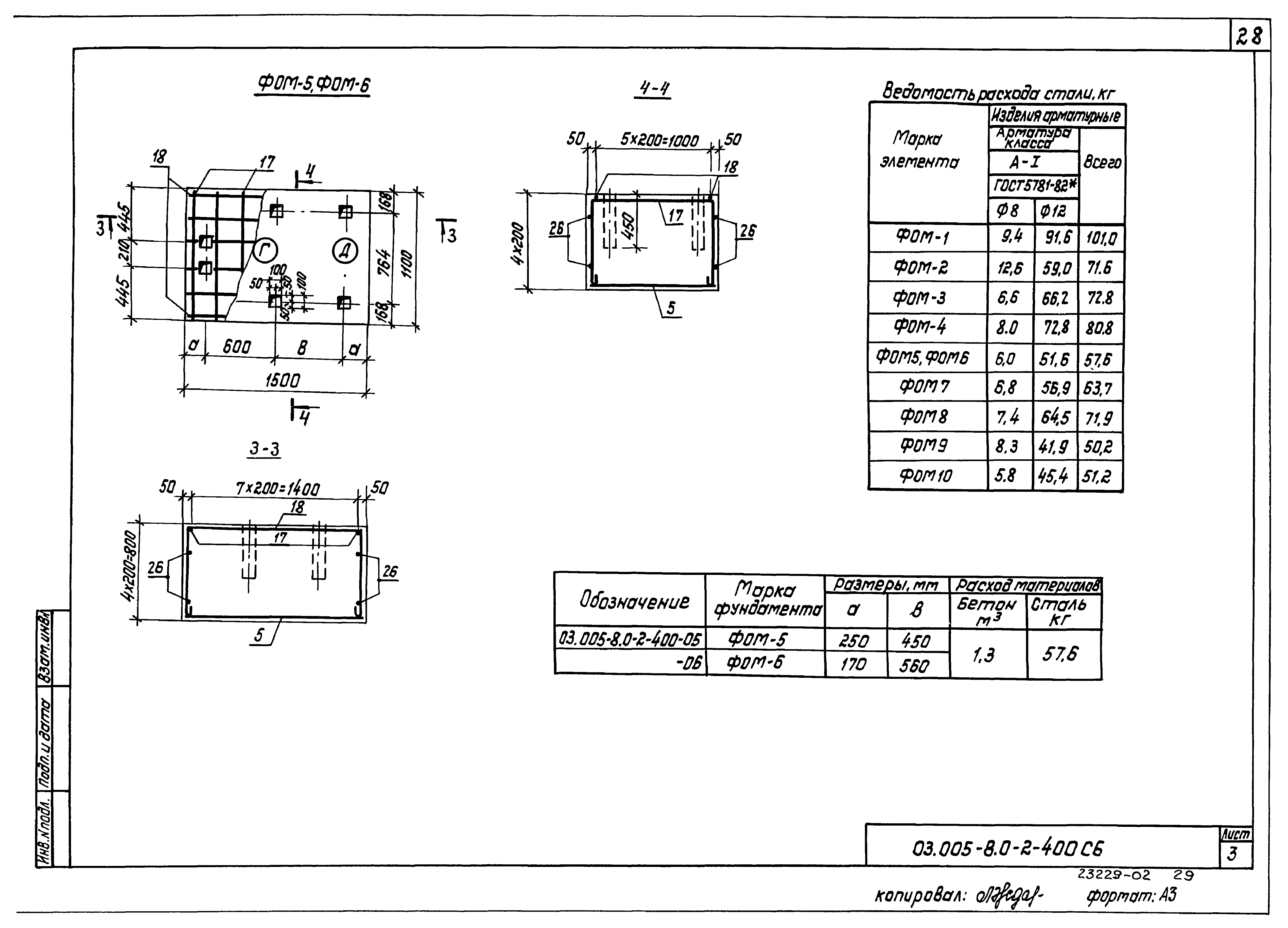
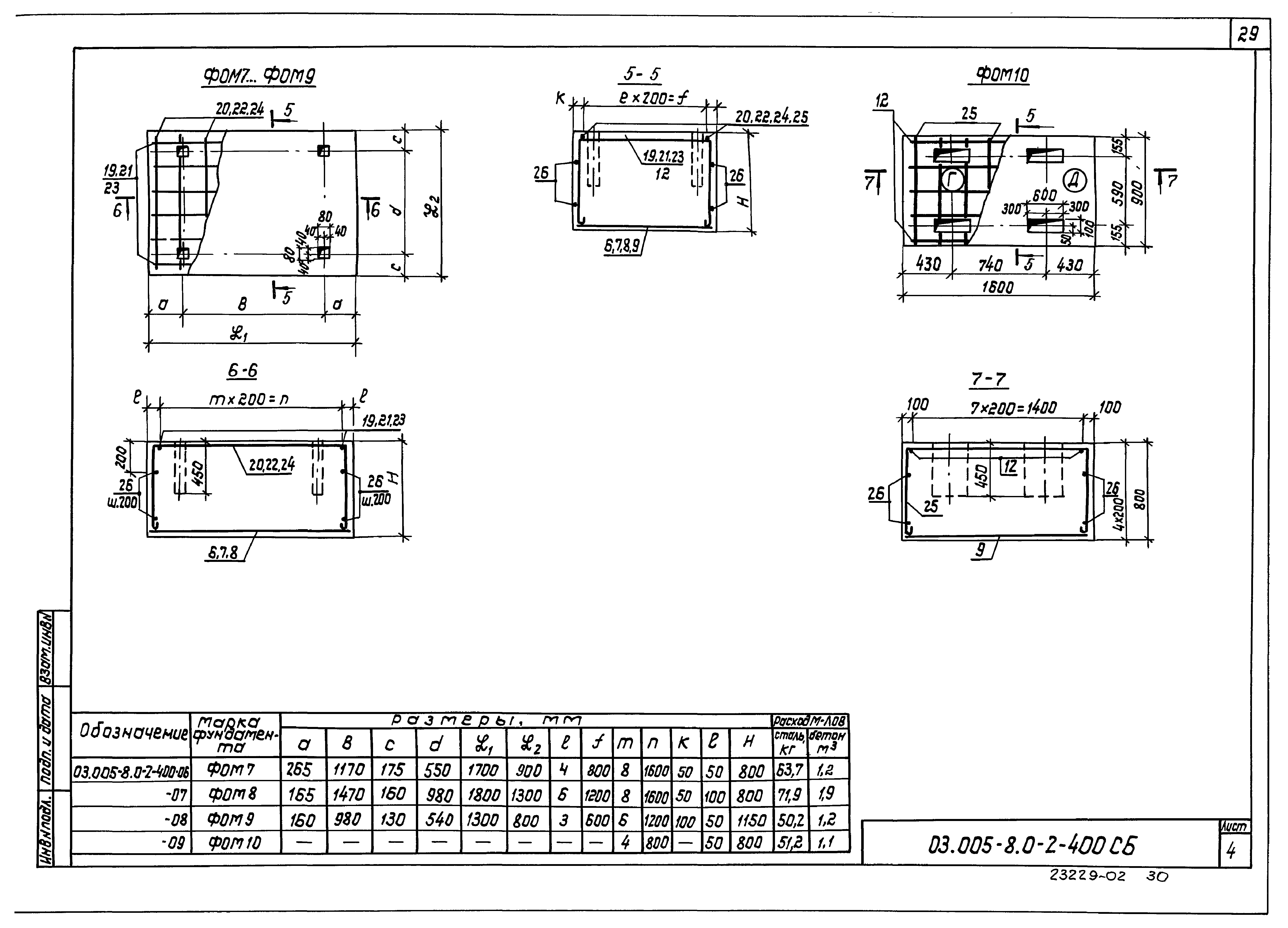
| Оглавление: | 03.005-8.0-2-000 Содержание 03.005-8.0-2-000 ПЗ Пояснительная записка 03.005-8.0-2-100 ГЧ Гравийный воздухоохладитель ГВО-1. Габаритный чертеж 03.005-8.0-2-100 Гравийный воздухоохладитель ГВО-1 03.005-8.0-2-100 СБ Гравийный воздухоохладитель ГВО-1. Сборочный чертеж 03.005-8.0-2-100 РС Гравийный воздухоохладитель ГВО-1. Ведомость расхода стали 03.005-8.0-2-200 ГЧ Гравийный воздухоохладитель ГВО-2. Габаритный чертеж 03.005-8.0-2-200 Гравийный воздухоохладитель ГВО-2 03.005-8.0-2-200 СБ Гравийный воздухоохладитель ГВО-2. Сборочный чертеж 03.005-8.0-2-200 РС Гравийный воздухоохладитель ГВО-2. Ведомость расхода стали 03.005-8.0-2-300 ГЧ Оголовок газовыхлопа ОГ-1. Габаритный чертеж 03.005-8.0-2-300 Оголовок газовыхлопа ОГ-1 03.005-8.0-2-300 СБ Оголовок газовыхлопа ОГ-1. Сборочный чертеж 03.005-8.0-2-300 РС Оголовок газовыхлопа ОГ-1. Ведомость расхода стали 03.005-8.0-2-400 ФОМ1 - ФОМ10 03.005-8.0-2-400 СБ ФОМ1 - ФОМ10. Сборочный чертеж 03.005-8.0-2-500 Узлы "А", "Б", "В" |
| Разработан: | Гипрокоммундортранс |
| Утверждён: | 06.05.1988 Управление НГО СССР (31) |






























