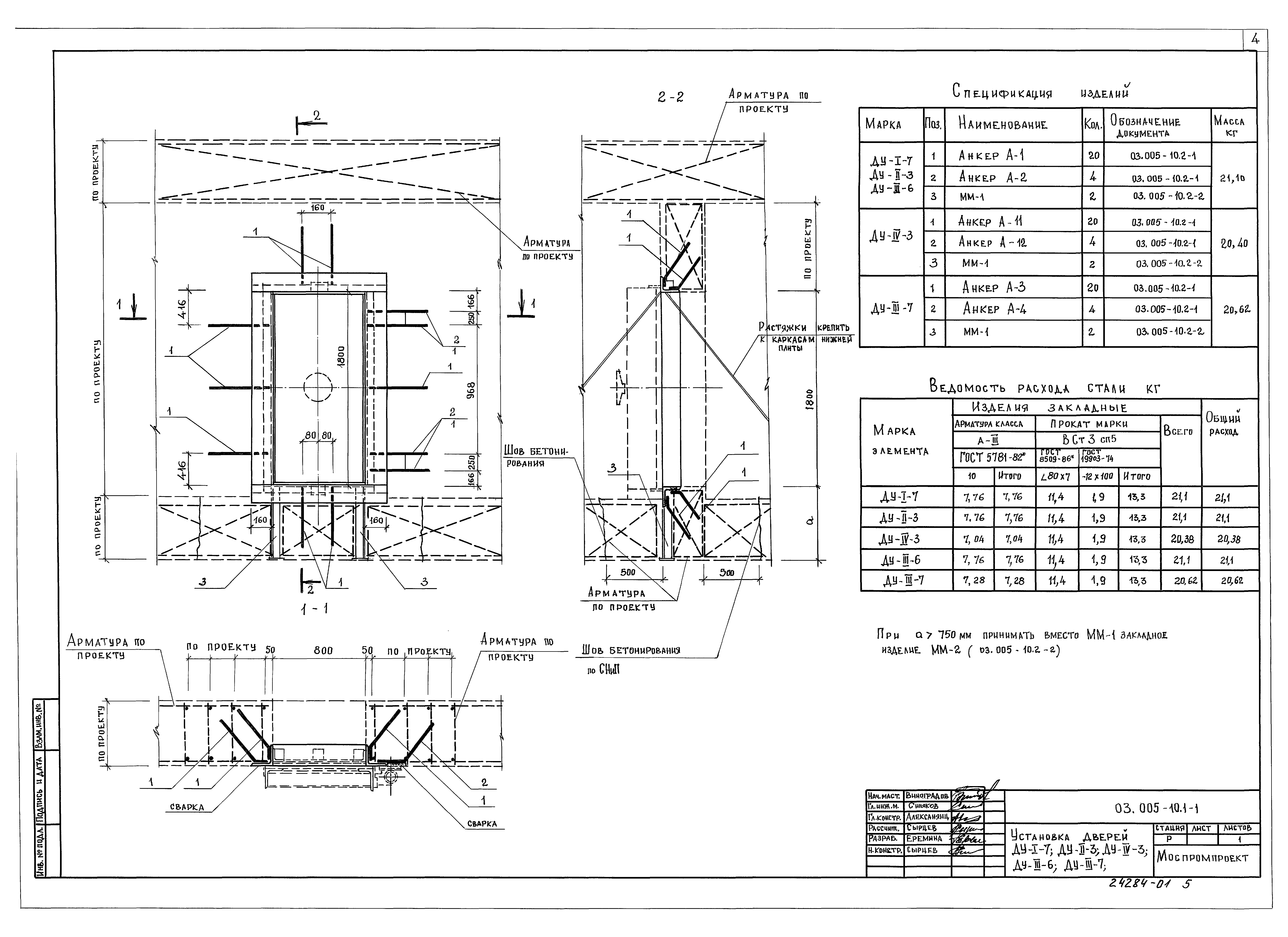
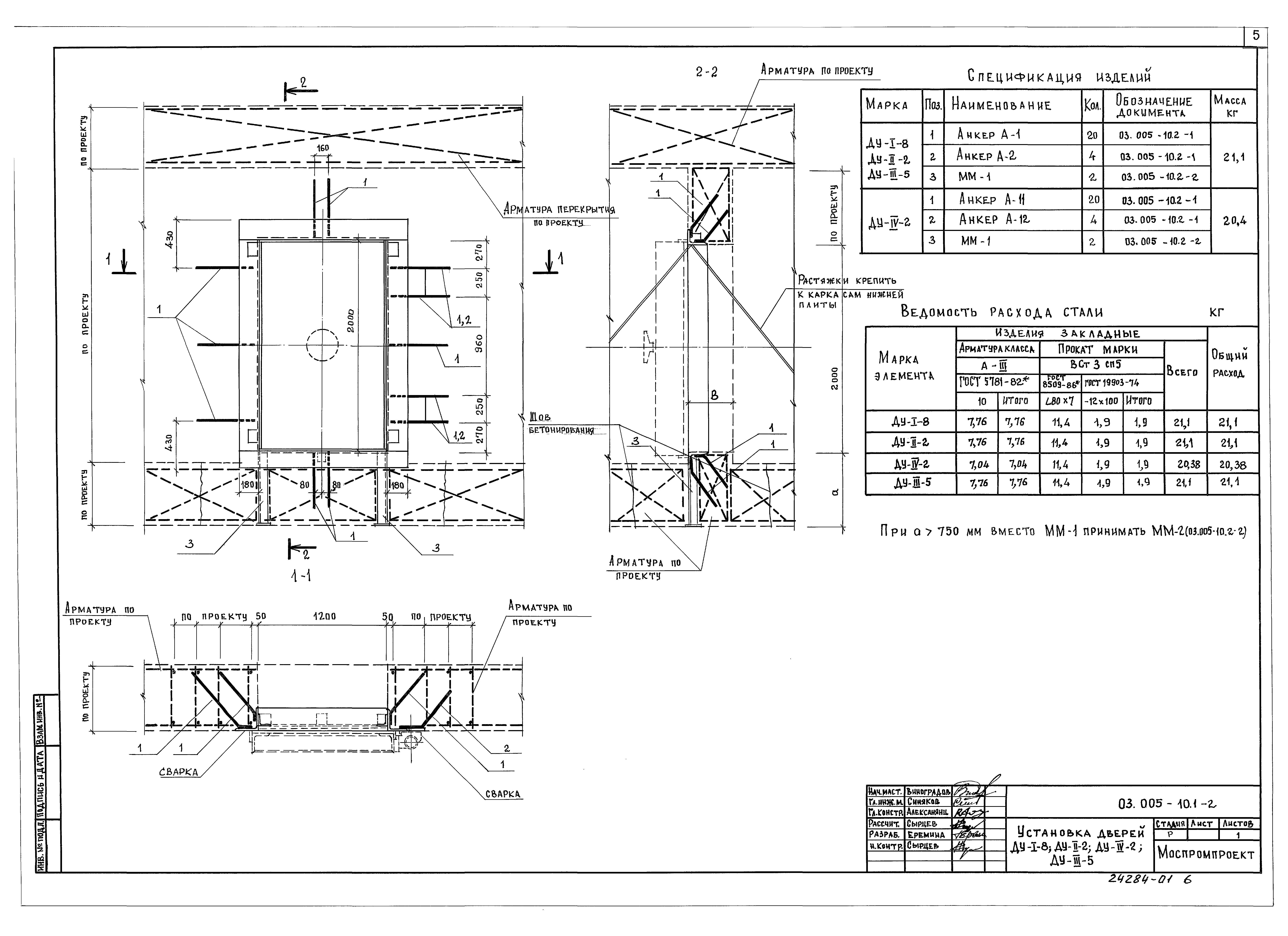
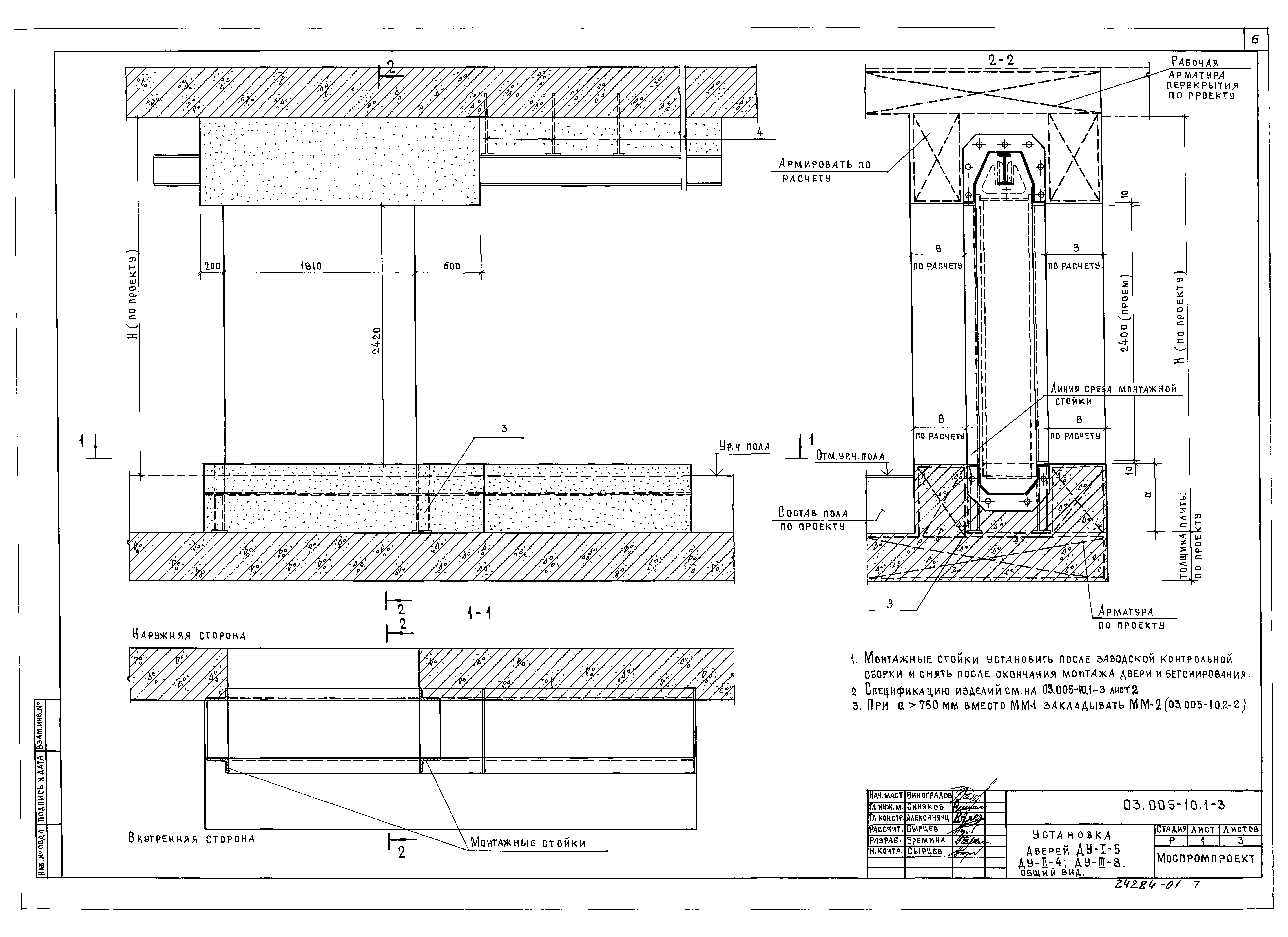
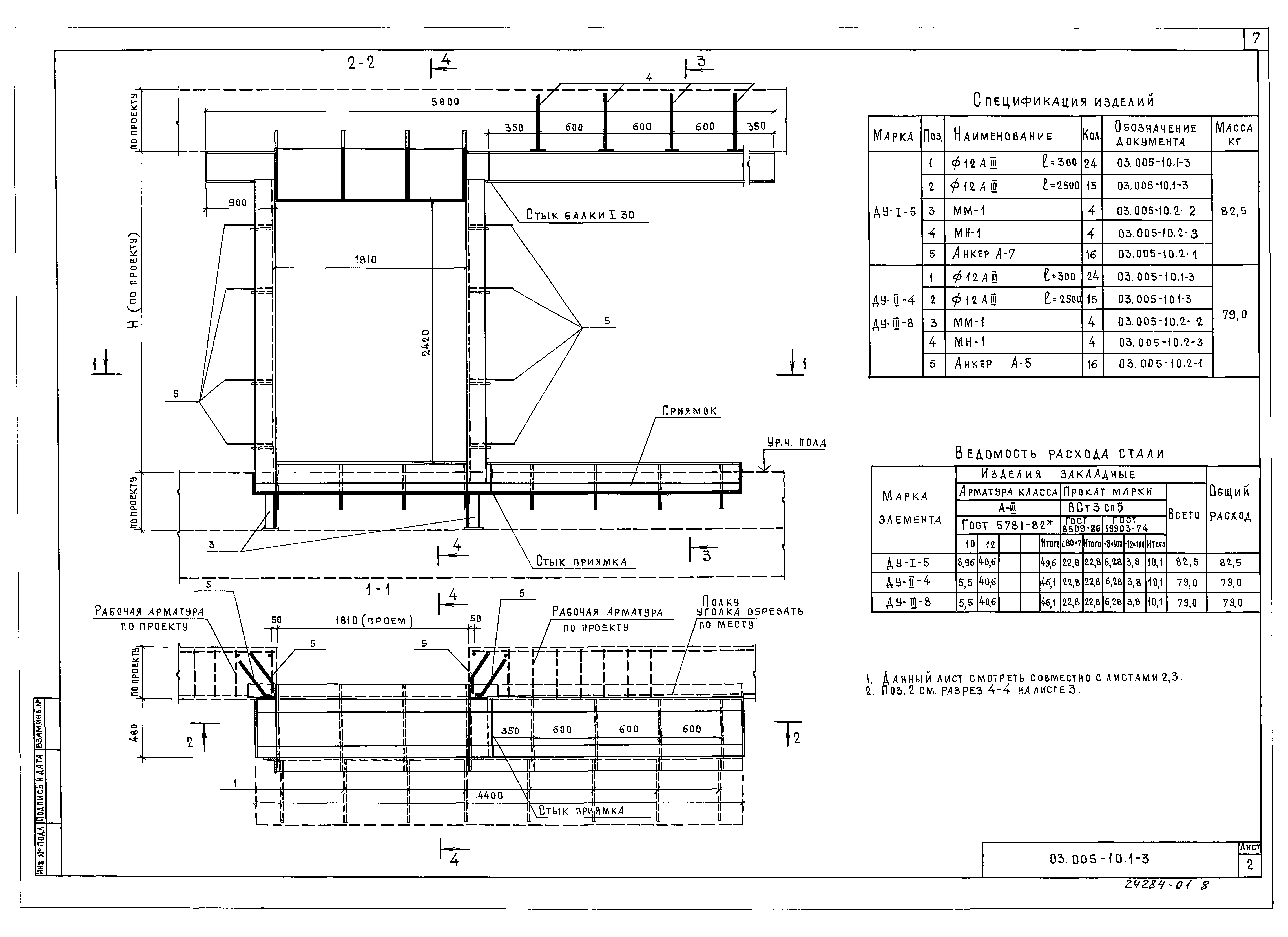
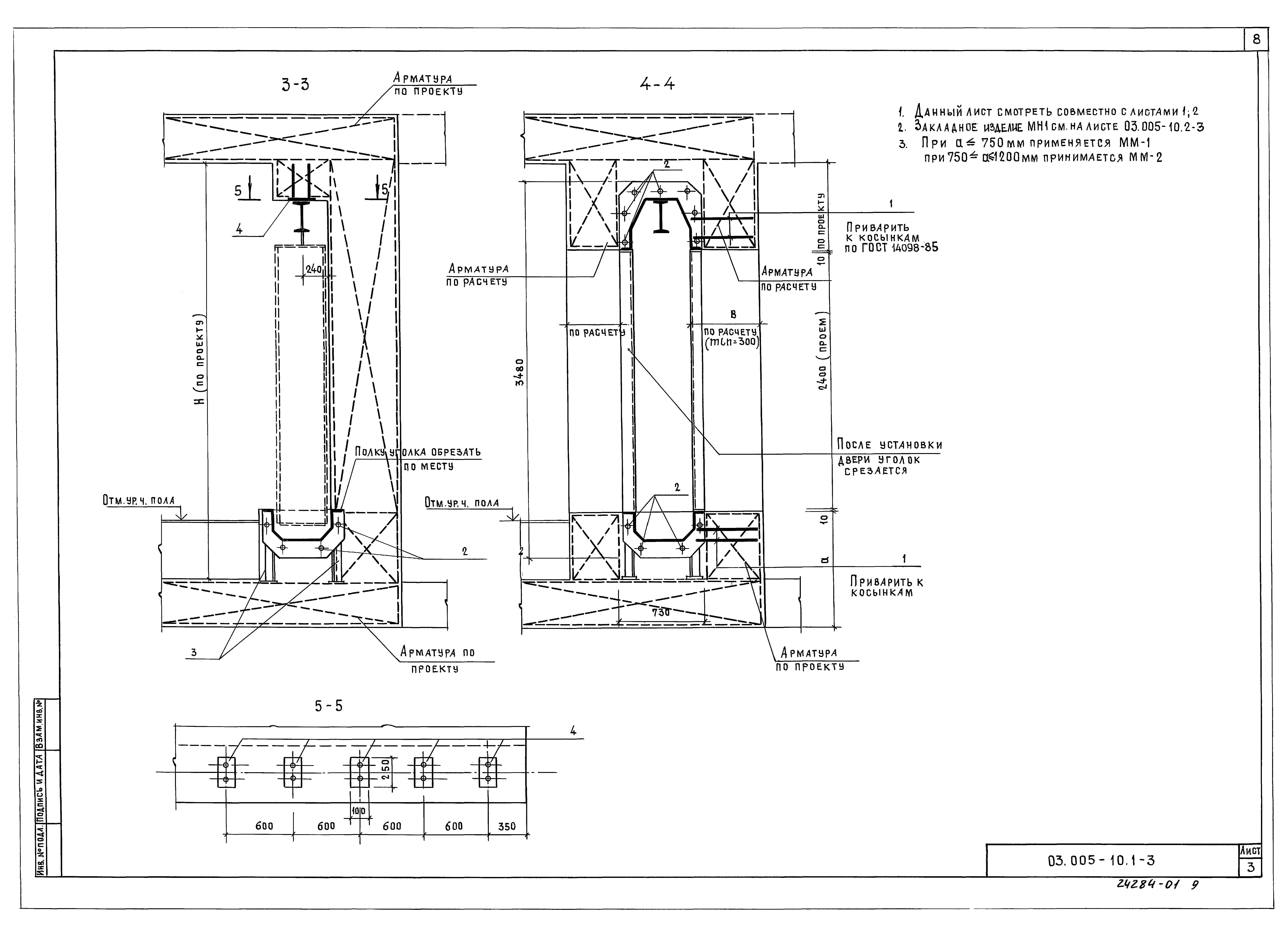
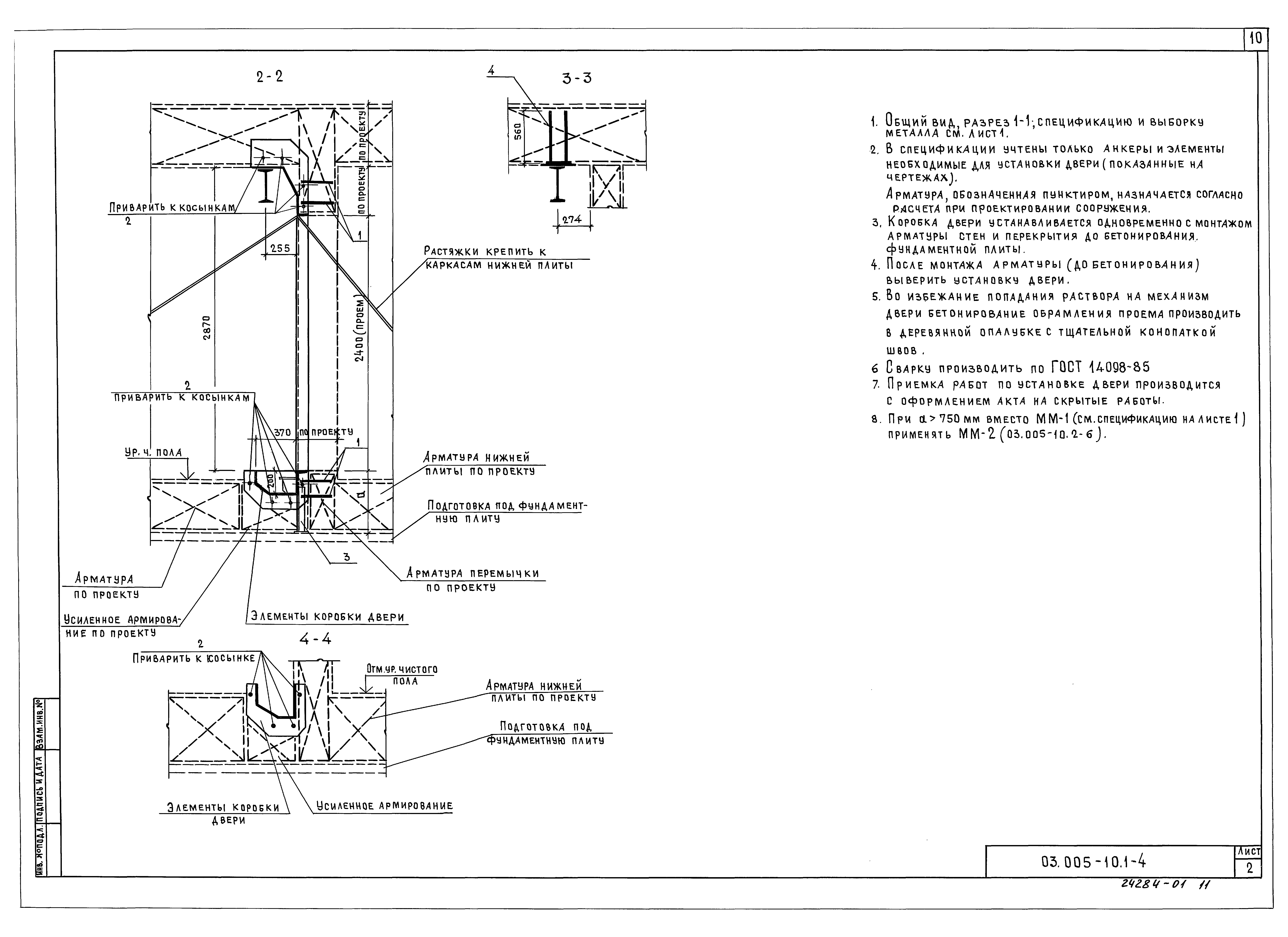
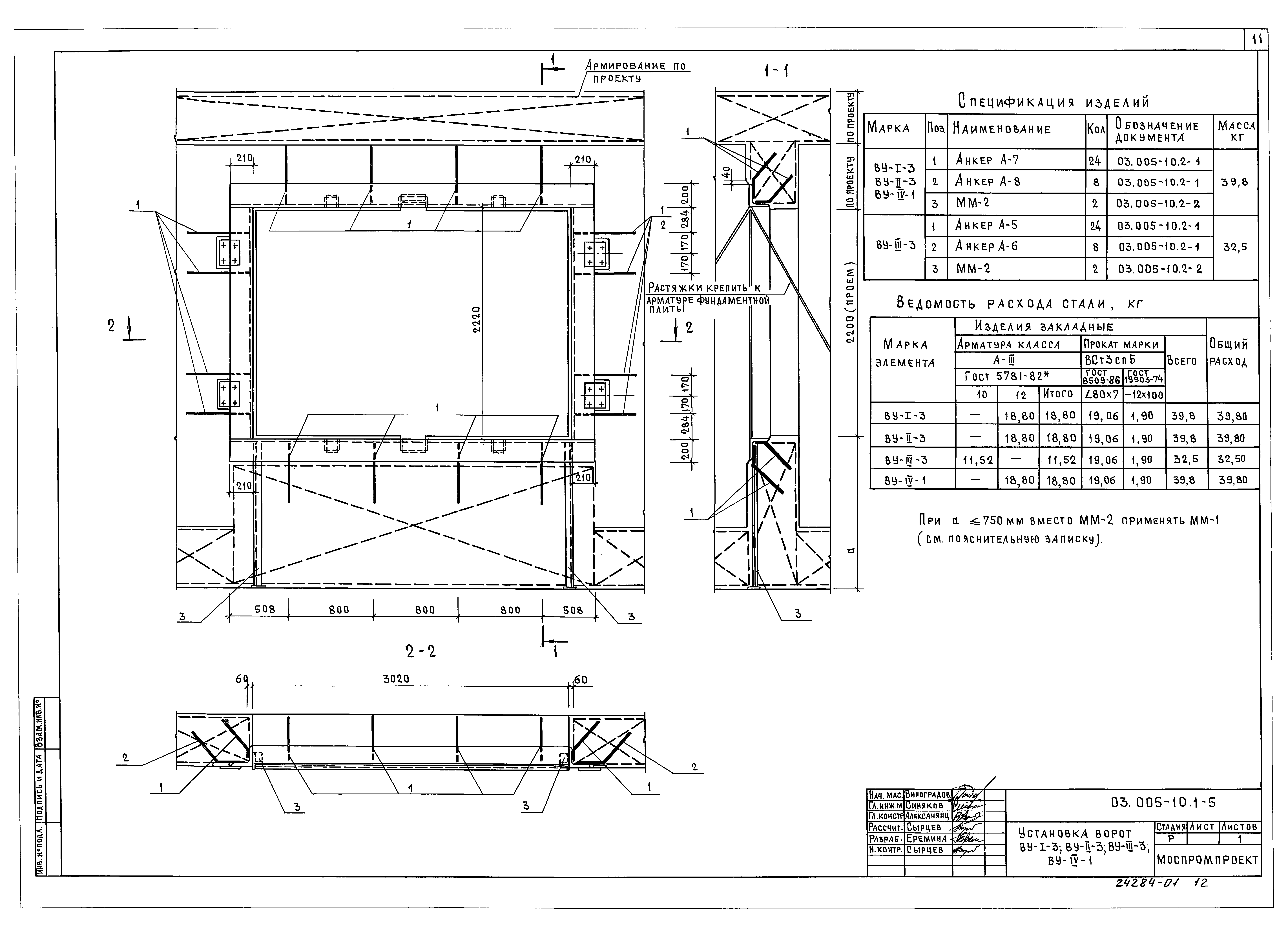
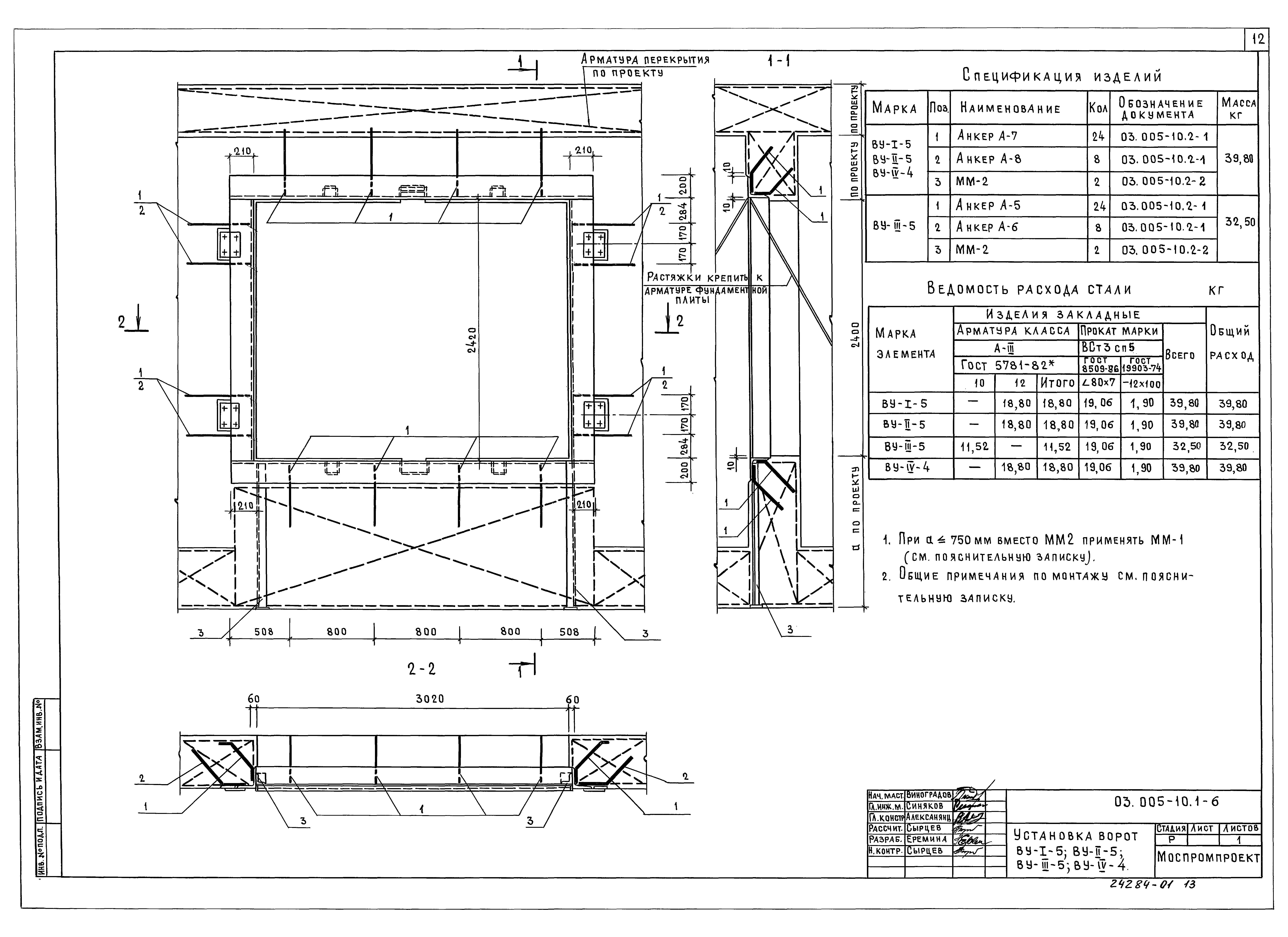
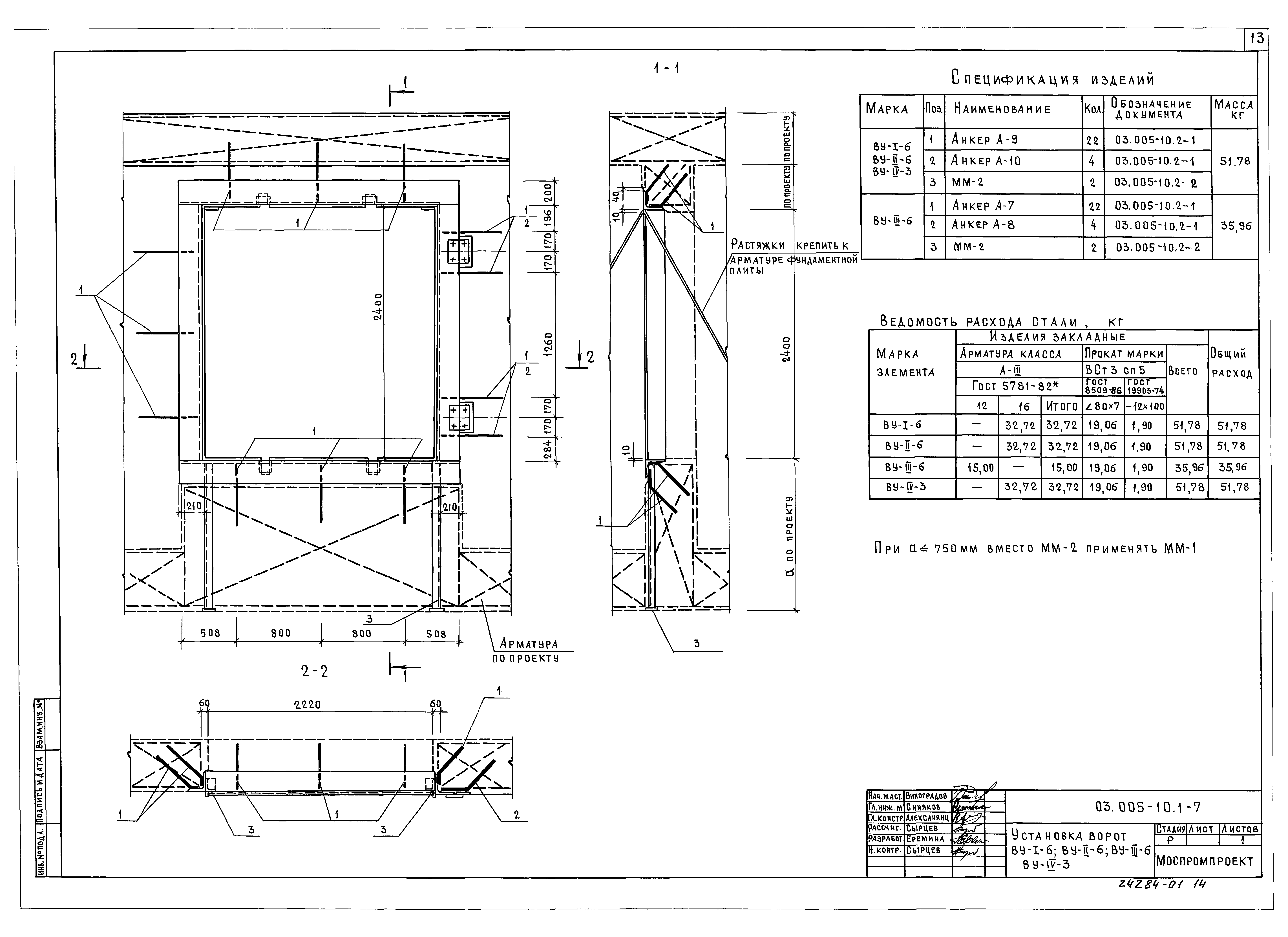
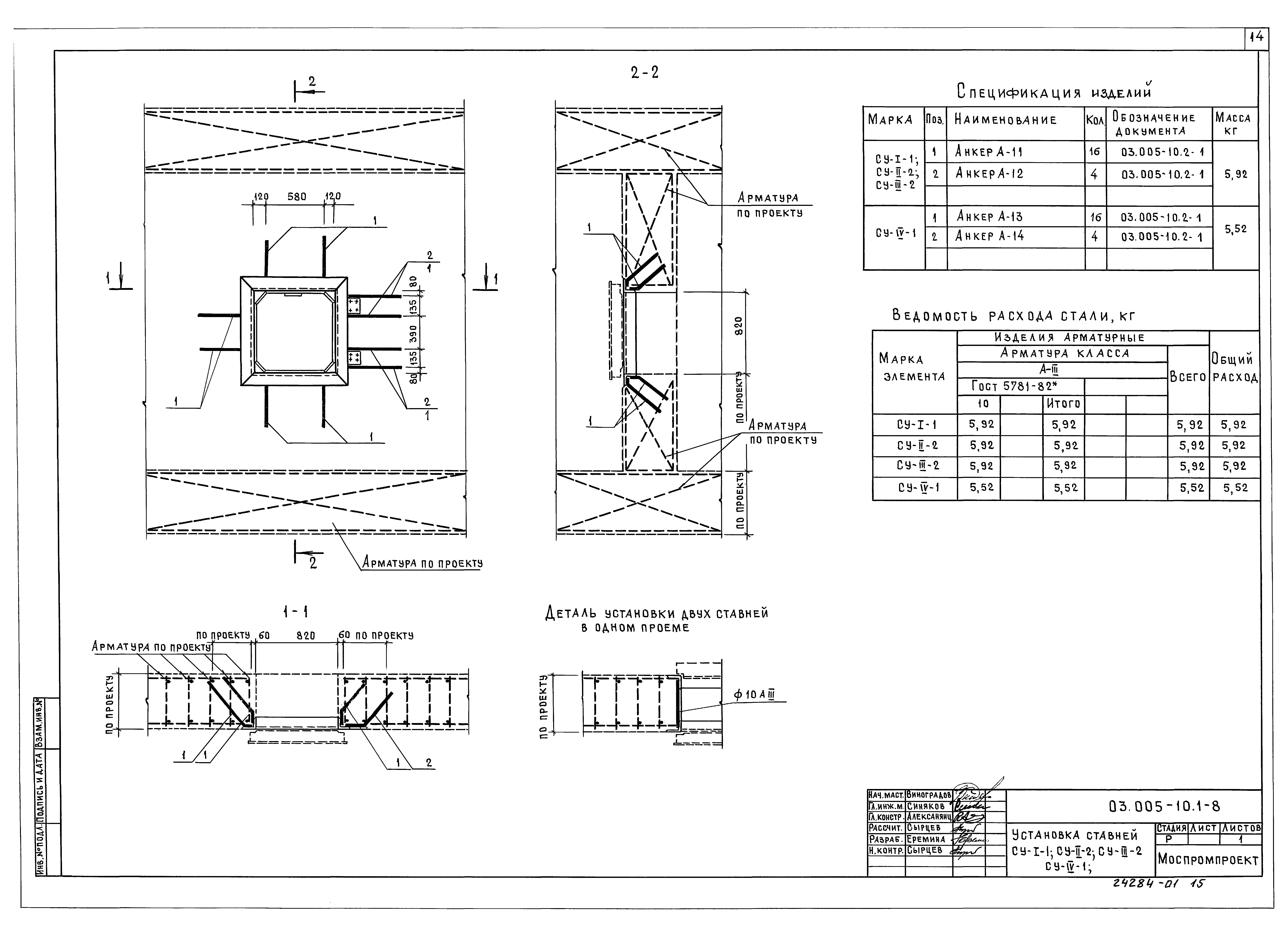
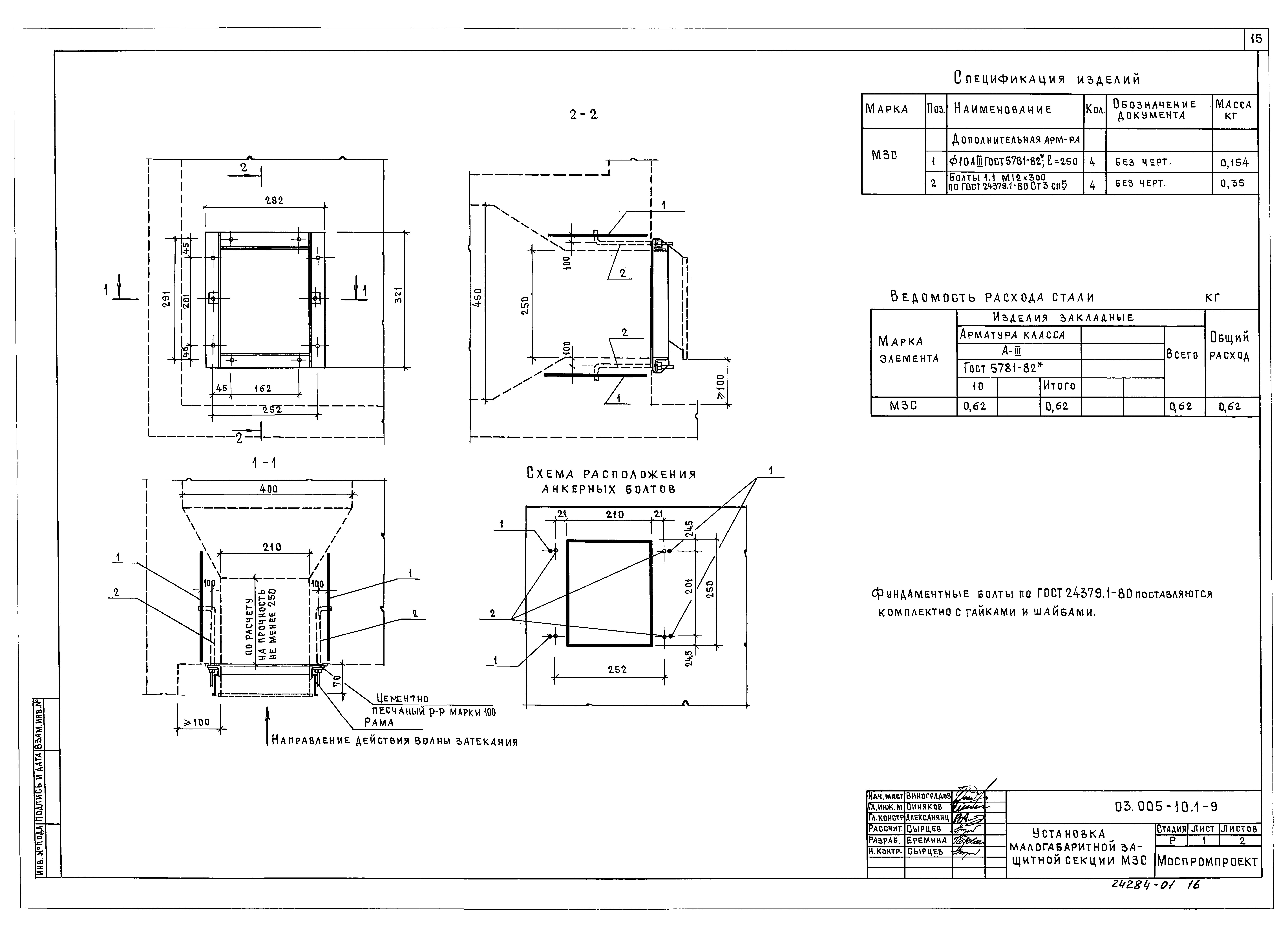
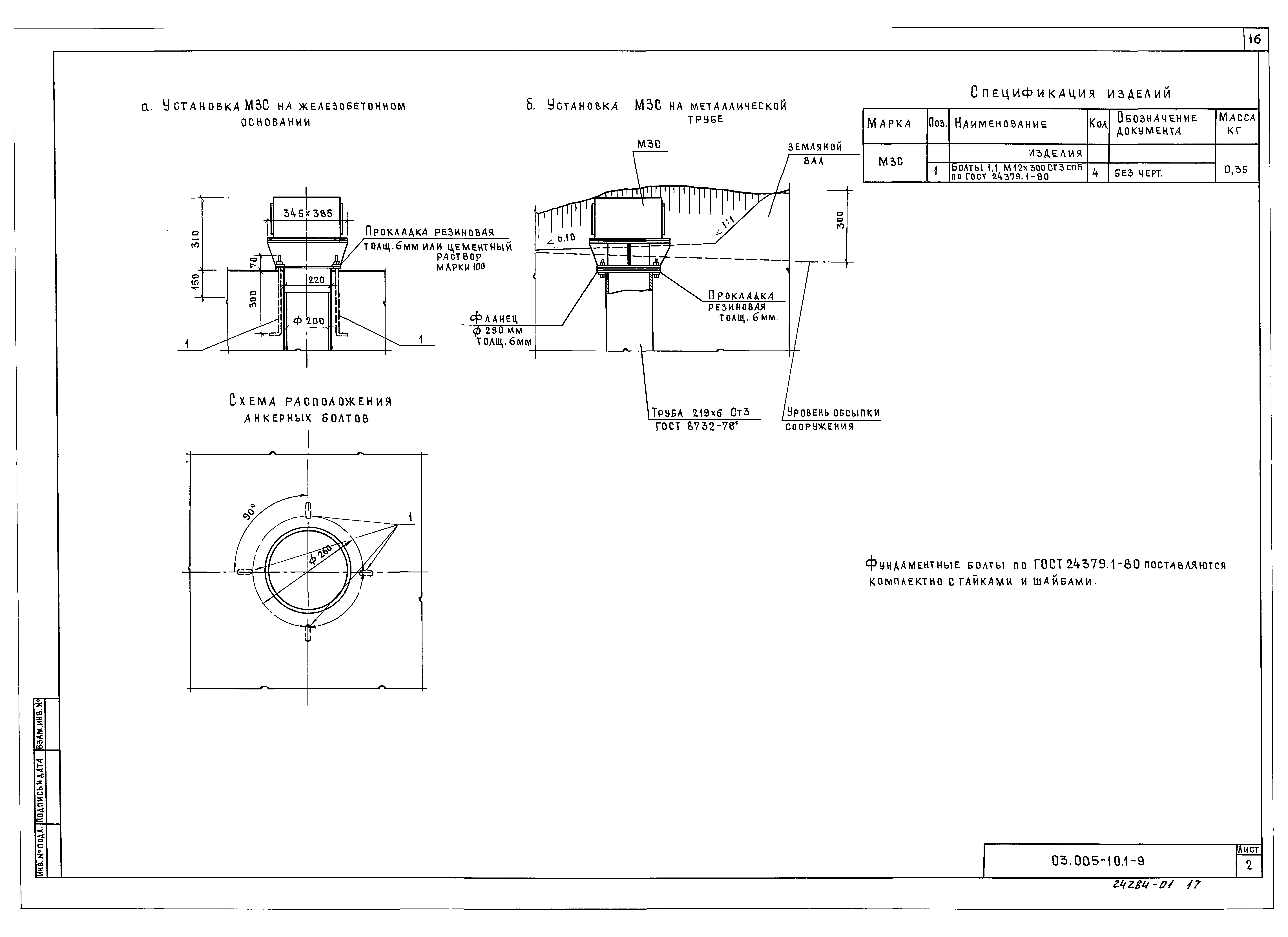
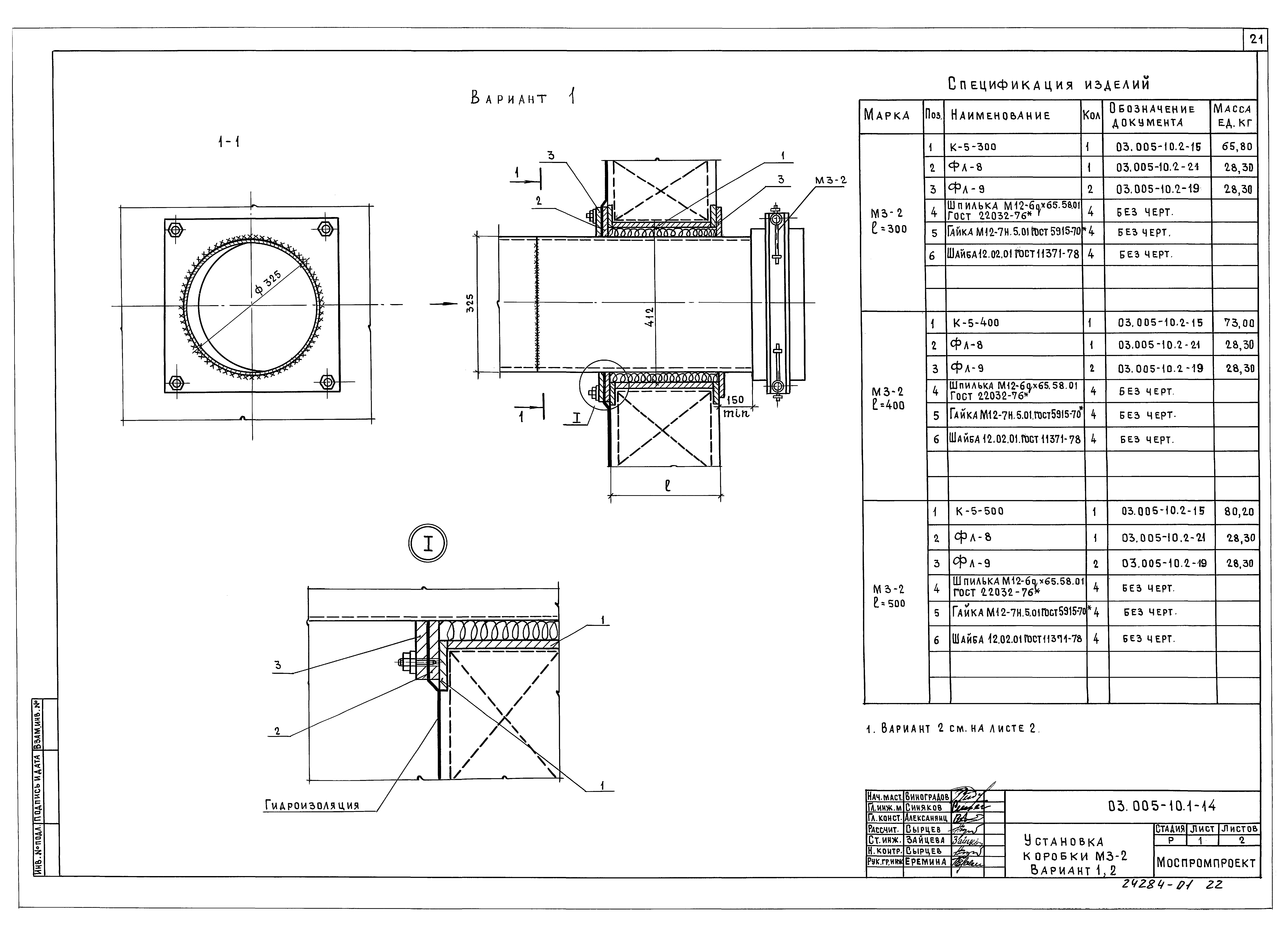
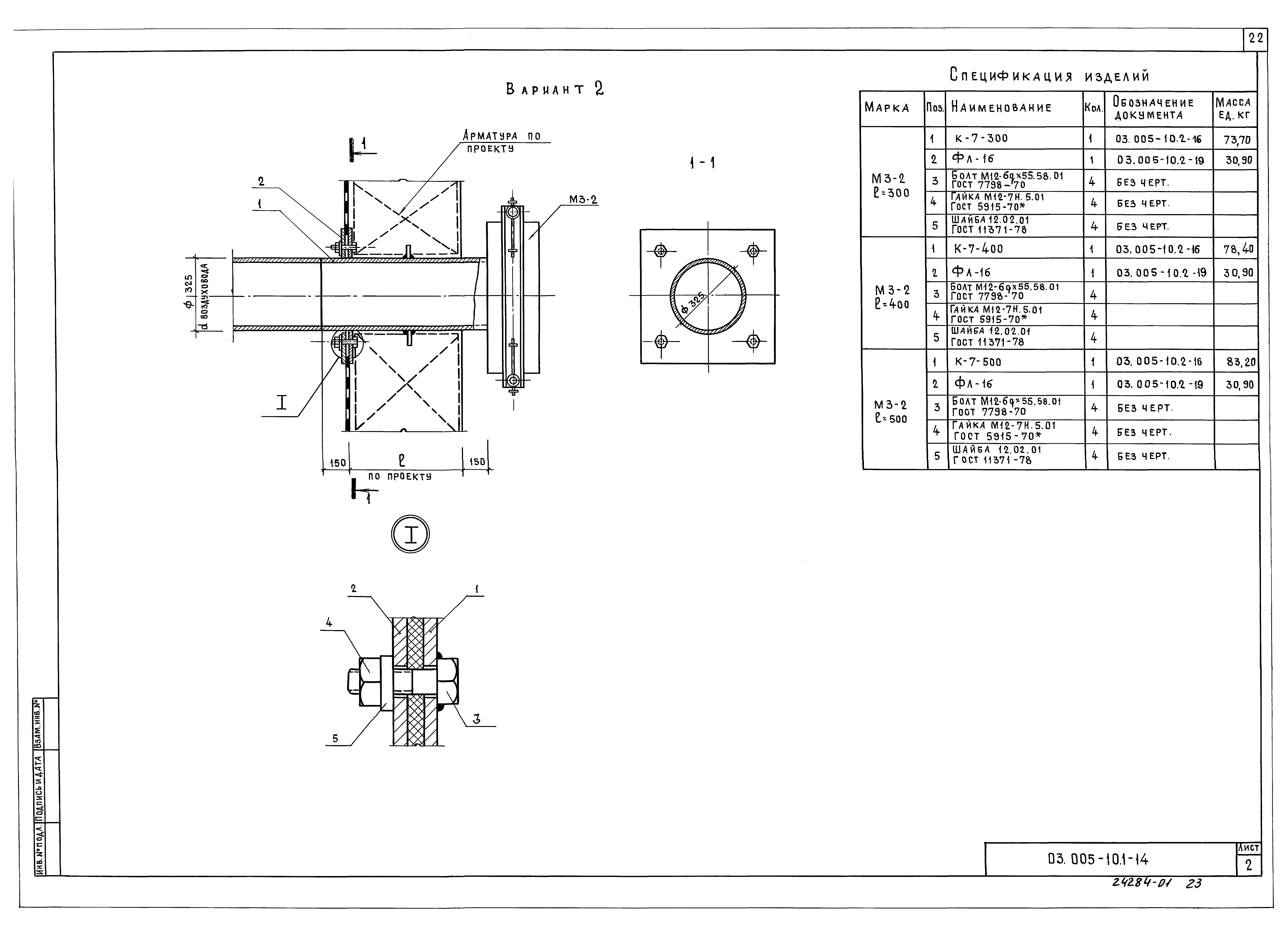
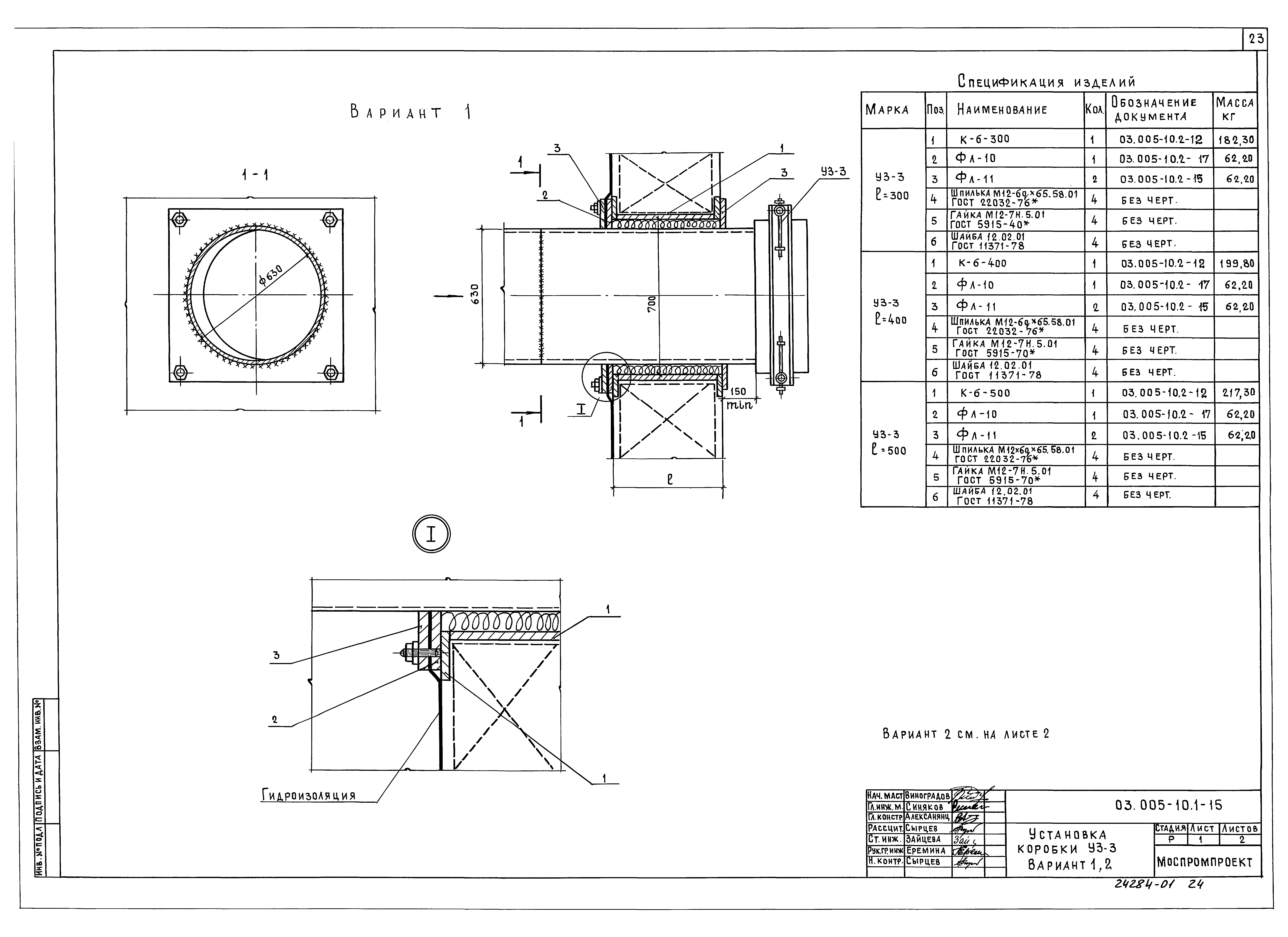
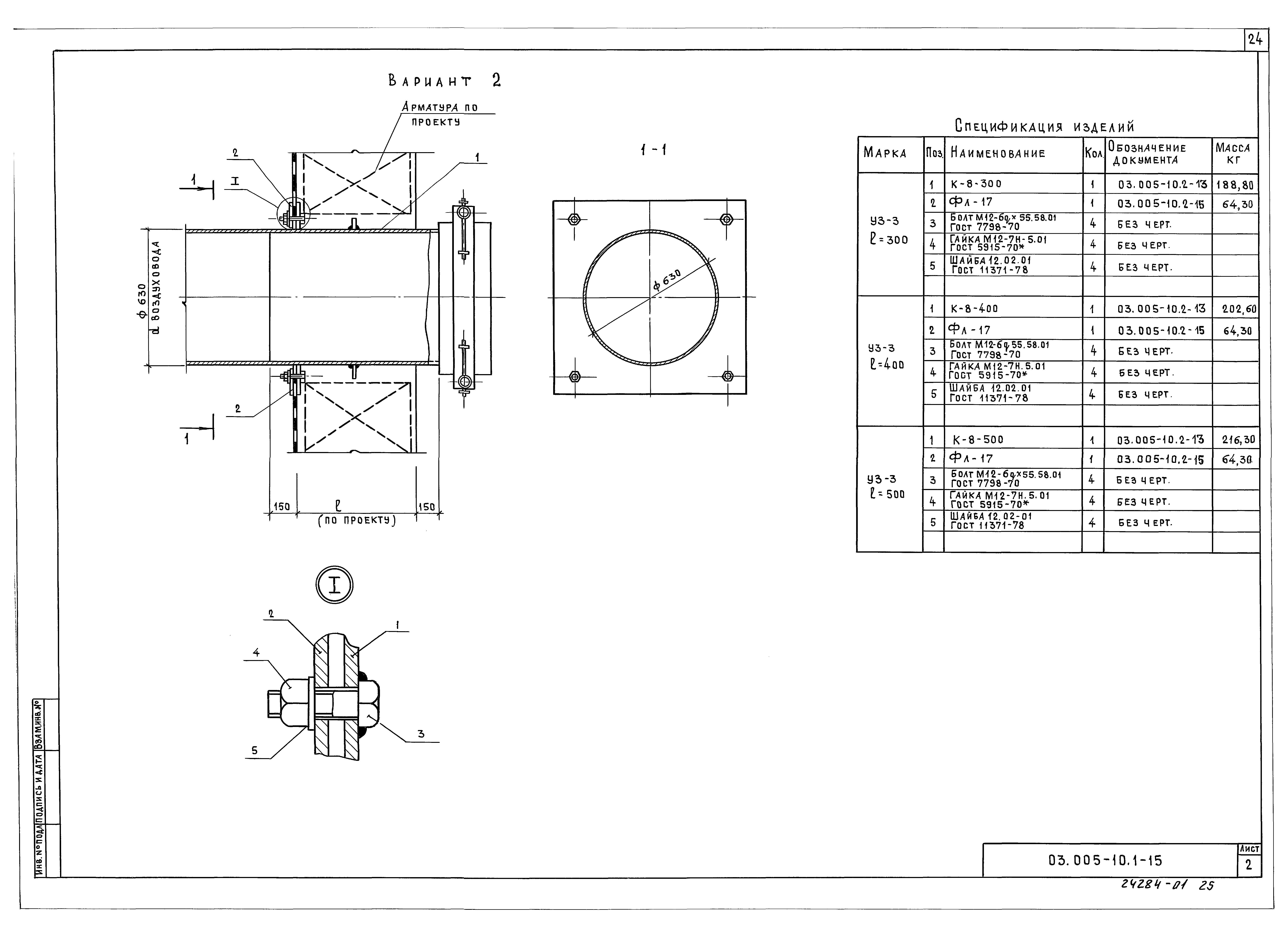
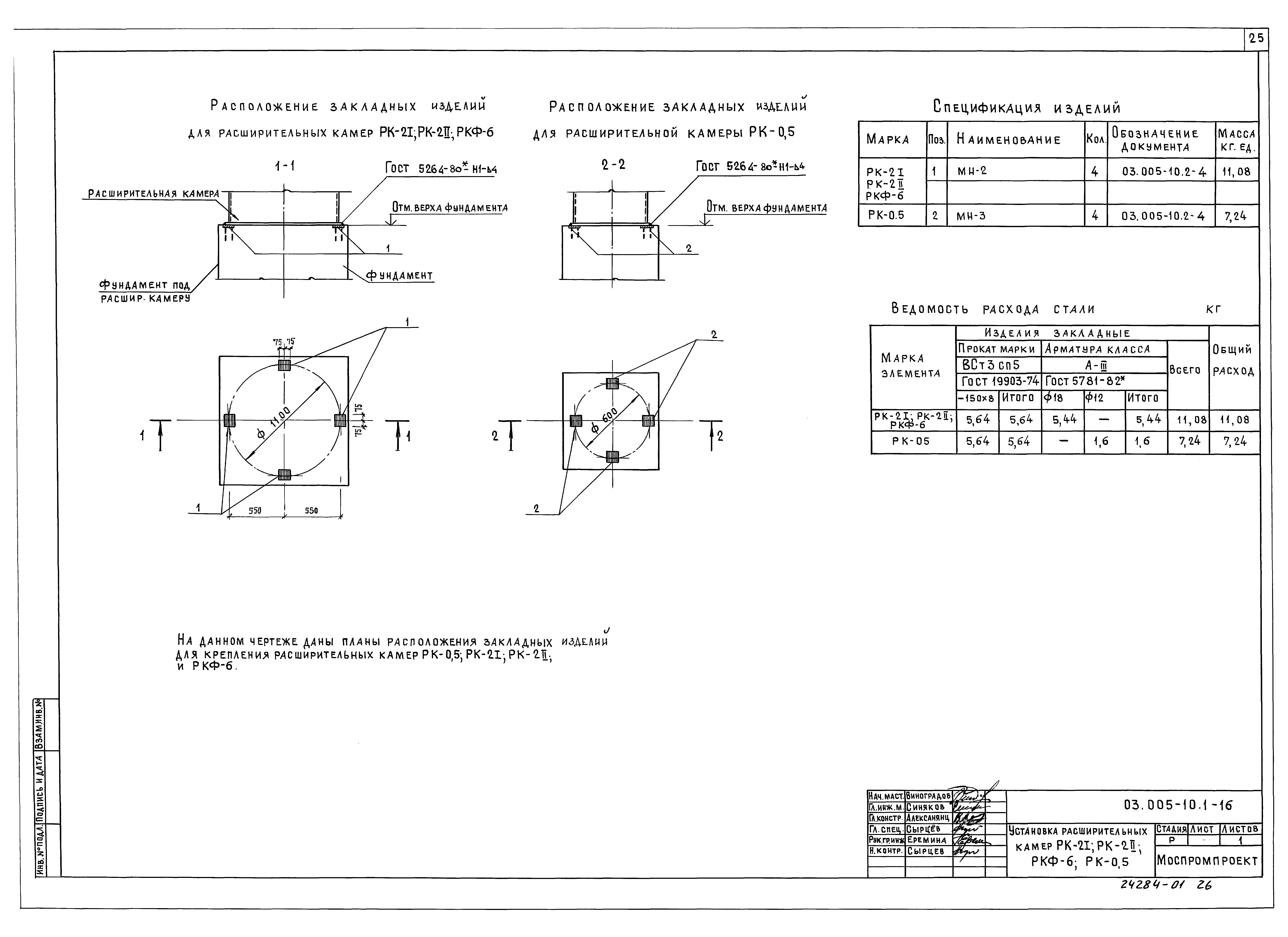
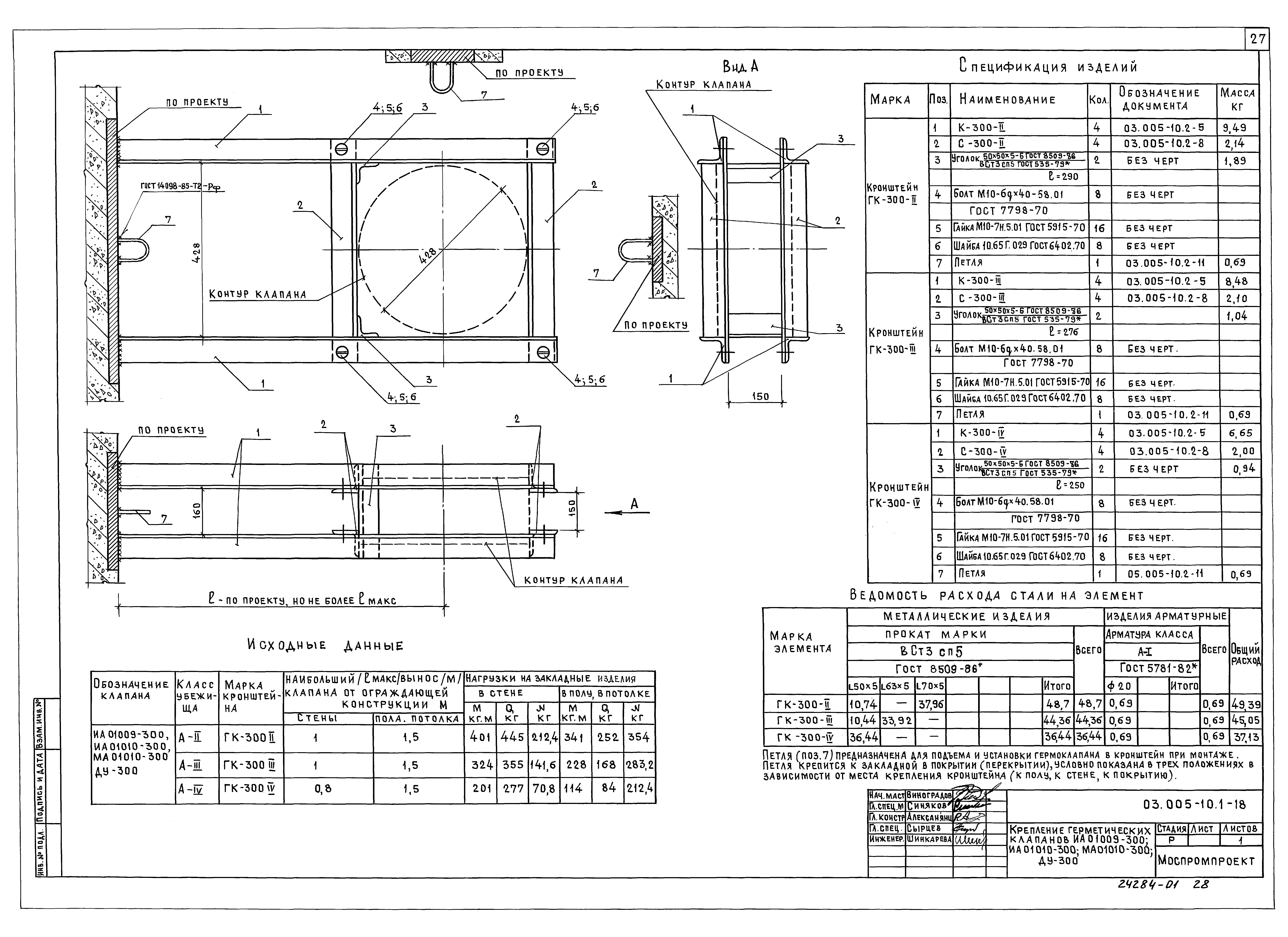
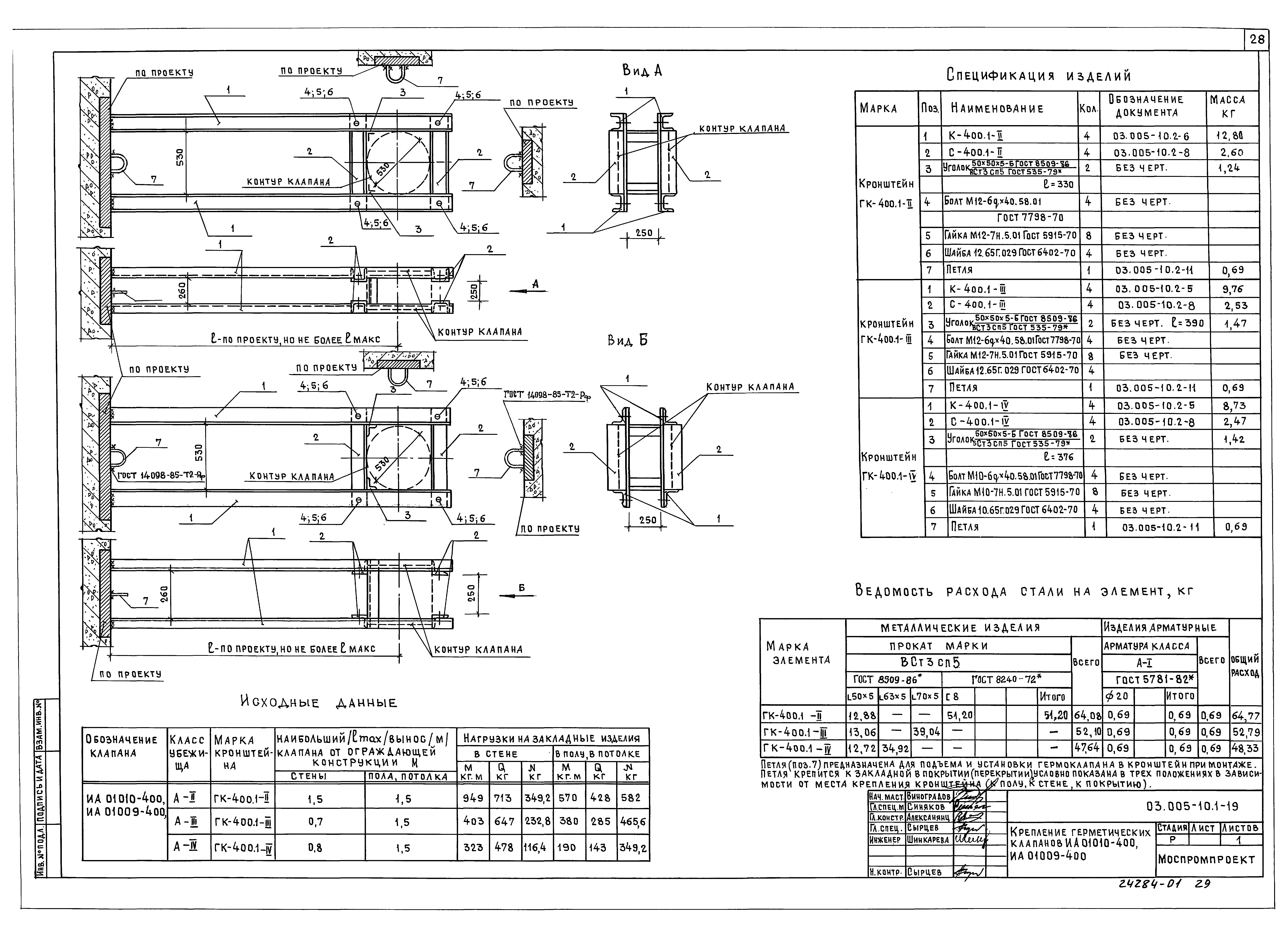
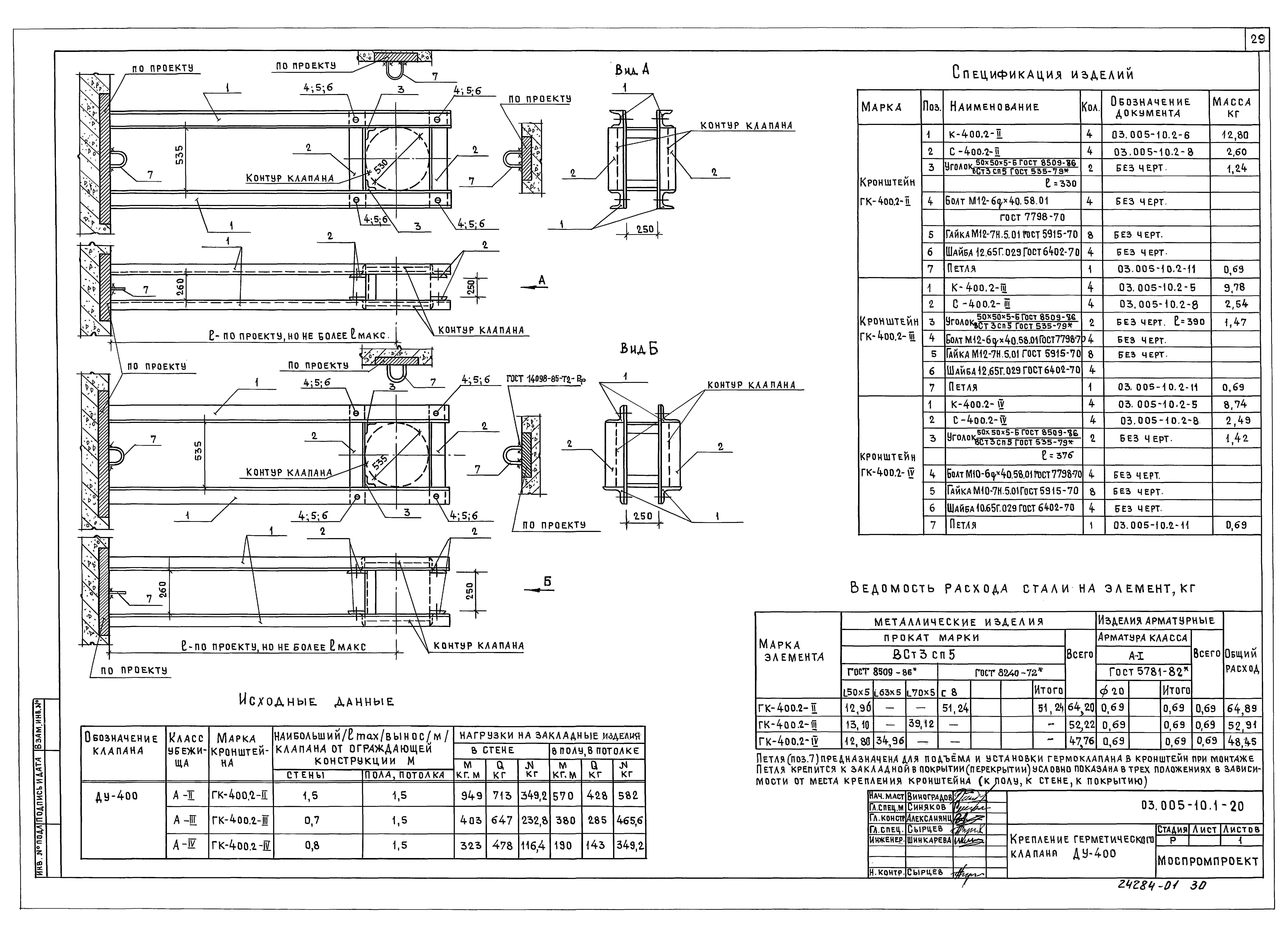
Скачать Серия 03.005-10 Выпуск 1. Крепление и установка защитных устройств. Материалы для проектирования. Рабочие чертежиДата актуализации: 01.01.2021
|
| Обозначение: | Серия 03.005-10 |
| Обозначение англ: | Series 03.005-10 |
| Статус: | не определен законодательством |
| Название рус.: | Выпуск 1. Крепление и установка защитных устройств. Материалы для проектирования. Рабочие чертежи |
| Дата добавления в базу: | 21.05.2015 |
| Дата актуализации: | 01.01.2021 |
| Дата введения: | 01.05.1990 |
| Дата окончания срока действия: | 30.06.2003 |
| Разработан: | Моспромпроект |
| Утверждён: | 07.04.1988 Штаб гражданской обороны СССР (USSR Civil Defense Headquarters ) |



































