Скачать Серия 05.900-1 Выпуск 1. Изделия и узлы оборудования ДЭС. Рабочие чертежиДата актуализации: 01.01.2021
|
| Обозначение: | Серия 05.900-1 |
| Обозначение англ: | Series 05.900-1 |
| Статус: | не определен законодательством |
| Название рус.: | Выпуск 1. Изделия и узлы оборудования ДЭС. Рабочие чертежи |
| Дата добавления в базу: | 01.09.2013 |
| Дата актуализации: | 01.01.2021 |
| Дата введения: | 10.05.1988 |
| Дата окончания срока действия: | 30.06.2003 |
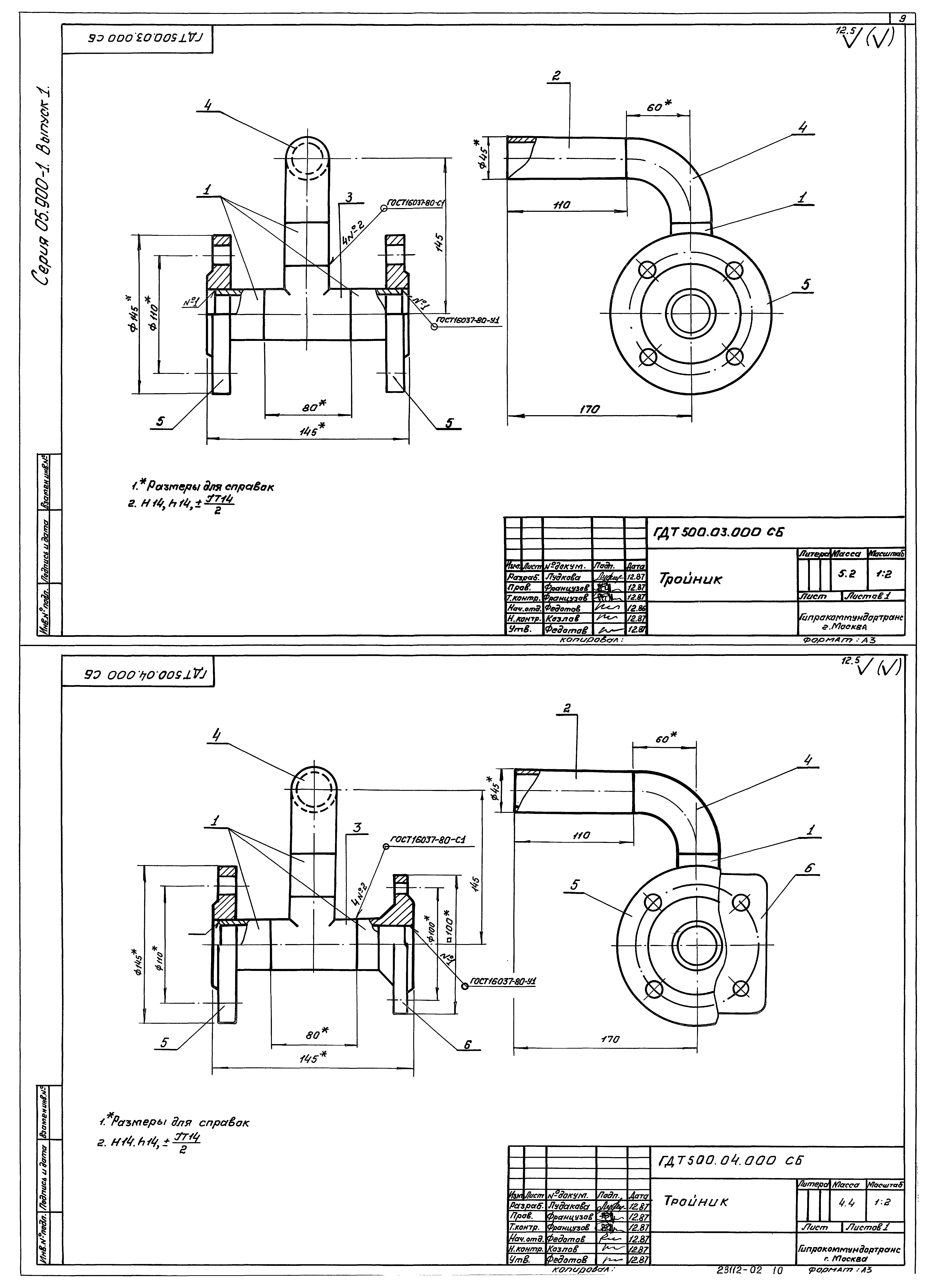
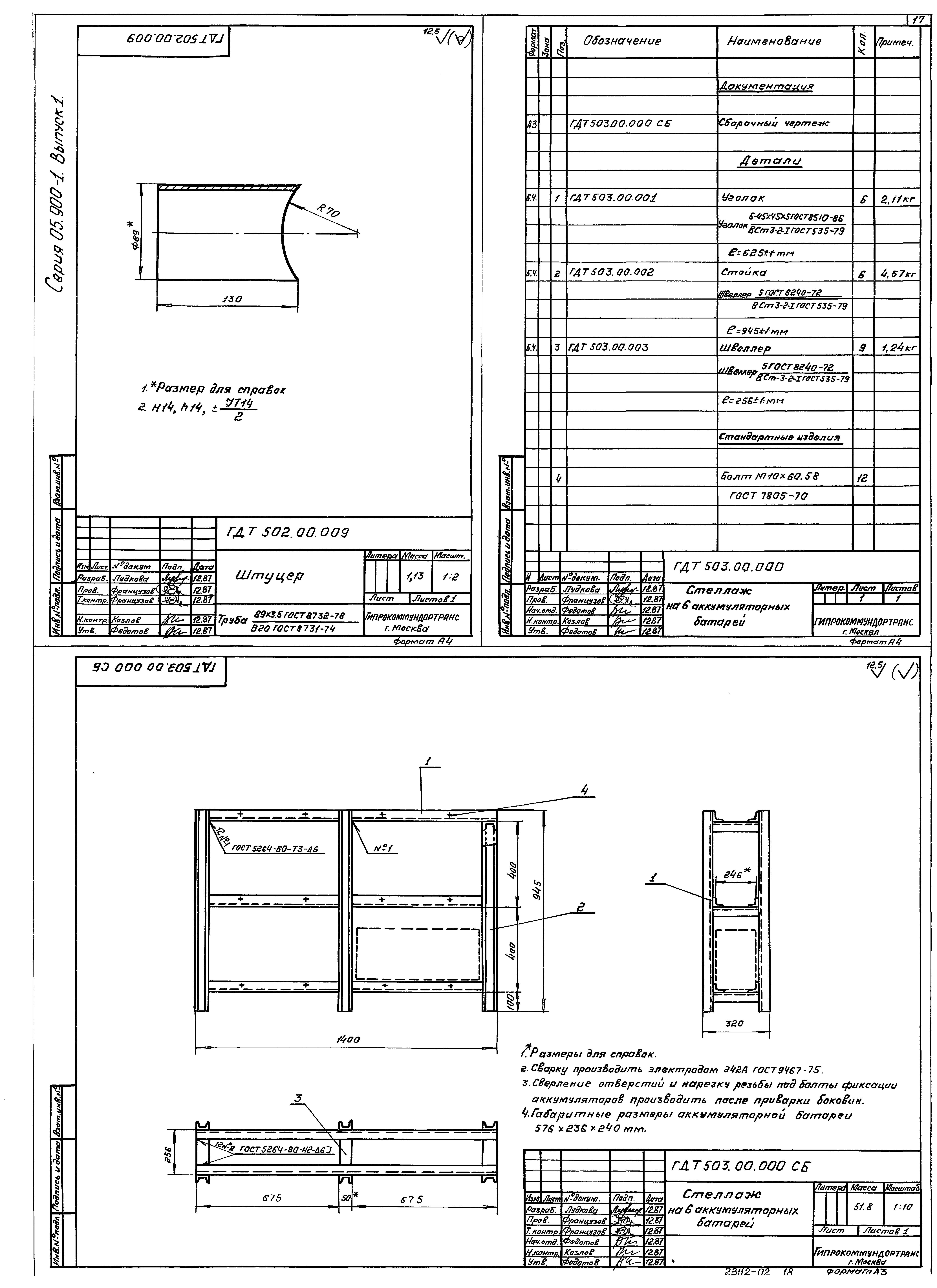
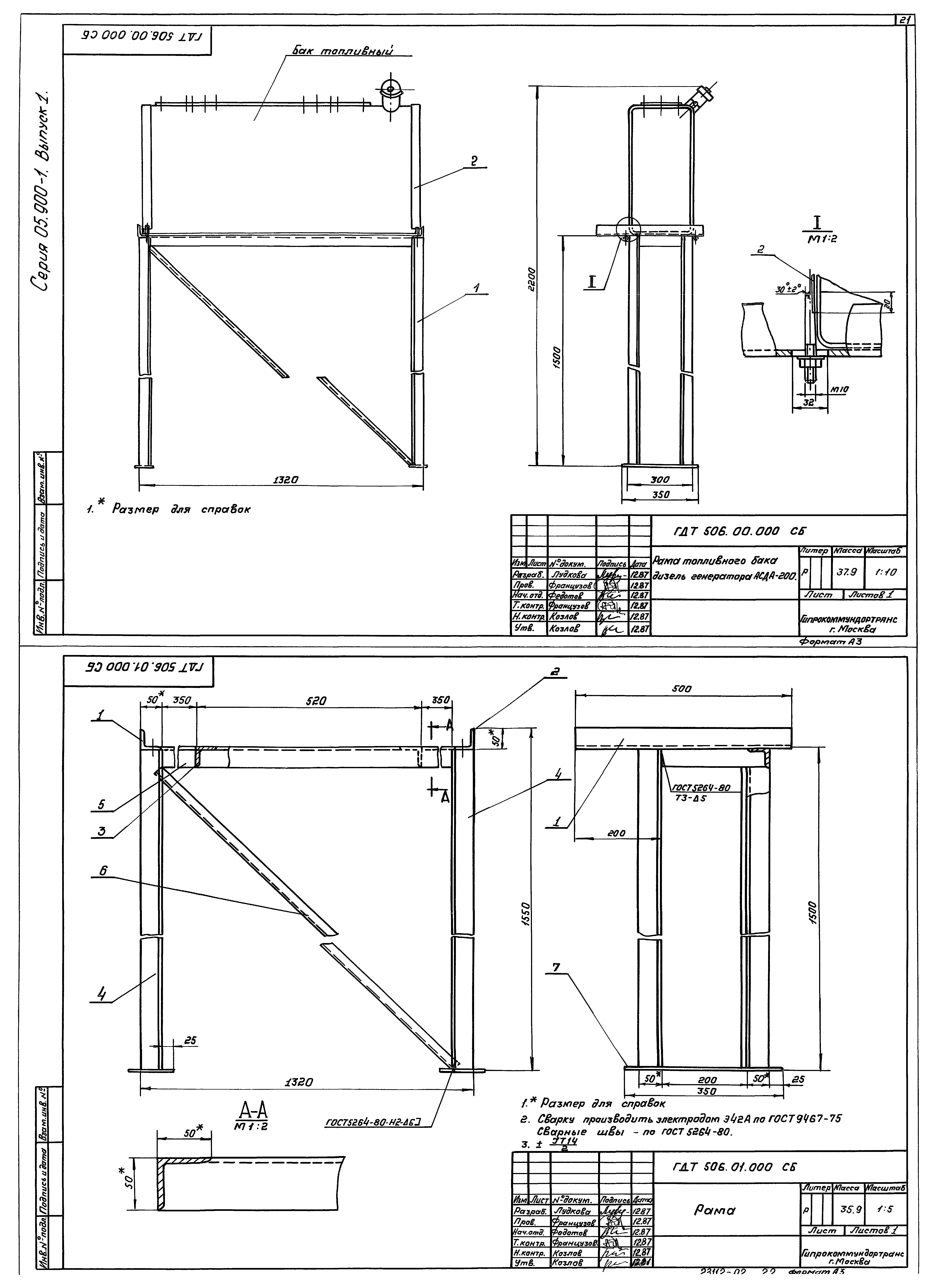
| Оглавление: | Содержание ГДТ499.00.000 Блок насосов. Спецификация ГДТ499.01.001 Отвод ГДТ499.00.000СБ Блок насосов. Сборочный чертеж ГДТ500.00.000 Блок насосов. Спецификация ГДТ500.01.000 Рама. Спецификация ГДТ500.02.000 Тройник. Спецификация ГДТ500.03.000 Тройник. Спецификация ГДТ500.04.000 Тройник. Спецификация ГДТ500.05.000 Муфта. Спецификация ГДТ500.00.000СБ Блок насосов. Сборочный чертеж ГДТ500.01.000СБ Рама. Сборочный чертеж ГДТ500.02.000СБ Тройник. Сборочный чертеж ГДТ500.03.000СБ Тройник. Сборочный чертеж ГДТ500.04.000СБ Тройник. Сборочный чертеж ГДТ500.05.000СБ Муфта. Сборочный чертеж ГДТ501.00.000 Блок вспомогательного оборудования дизель-генератора АСДА-100(200). Спецификация ГДТ501.01.000 Каркас. Спецификация ГДТ501.00.000СБ Блок вспомогательного оборудования дизель-генератора АСДА-100(200). Сборочный чертеж ГДТ501.01.000СБ Каркас. Сборочный чертеж ГДТ501.01.001 Уголок ГДТ501.01.003 Уголок ГДТ501.01.004 Уголок ГДТ501.01.005 Уголок ГДТ502.00.000 Приемный фильтр топлива и масла. Спецификация ГДТ502.00.010 Ручка стакана ГДТ502.00.011 Бобышка ГДТ502.00.000СБ Приемный фильтр топлива и масла. Сборочный чертеж ГДТ502.00.001 Корпус ГДТ502.00.002 Дно корпуса ГДТ502.00.003 Фланец ГДТ502.00.004 Крышка фильтра ГДТ502.00.005 Кольцо опорное ГДТ502.00.006 Фланец стакана ГДТ502.00.007 Стакан фильтра ГДТ502.00.008 Втулка ГДТ502.00.009 Штуцер ГДТ503.00.000 Стеллаж на 6 аккумуляторных батарей. Спецификация ГДТ503.00.000СБ Стеллаж на 6 аккумуляторных батарей. Сборочный чертеж ГДТ504.00.000 Стеллаж на 4 аккумуляторные батареи. Спецификация ГДТ504.00.000СБ Стеллаж на 4 аккумуляторные батареи. Сборочный чертеж ГДТ505.00.000 Рама топливного бака дизель-генератора АСДА-100. Спецификация ГДТ505.00.000СБ Рама топливного бака дизель-генератора АСДА-100. Сборочный чертеж ГДТ506.00.000 Рама топливного бака дизель-генератора АСДА-200. Спецификация ГДТ506.01.000 Рама. Спецификация ГДТ506.02.000 Хомут. Спецификация ГДТ506.00.000СБ Рама топливного бака дизель-генератора АСДА-200. Сборочный чертеж ГДТ506.01.000СБ Рама. Сборочный чертеж ГДТ506.01.001 Консоль ГДТ506.01.002 Полка ГДТ506.02.000СБ Хомут. Сборочный чертеж ГДТ506.02.001 Шпилька ГДТ507.00.000 Рама масляного бака дизель-генератора АСДА-100. Спецификация ГДТ507.00.000СБ Рама. Сборочный чертеж ГДТ507.00.001 Полка ГДТ508.00.000 Рама для установки насосов типа БГ-11-11. Спецификация ГДТ508.00.000СБ Рама для установки насосов типа БГ-11-11. Сборочный чертеж ГДТ508.00.001 Швеллер |
| Разработан: | Гипрокоммундортранс |
| Утверждён: | 06.05.1988 Управление ГО СССР (31) |
























