Скачать Серия 05.900-1 Выпуск 2. Резервуары металлические многосекционные на 3 и 5 куб. м для внутренних сантехнических систем. Рабочие чертежиДата актуализации: 01.01.2021
|
| Обозначение: | Серия 05.900-1 |
| Обозначение англ: | Series 05.900-1 |
| Статус: | не определен законодательством |
| Название рус.: | Выпуск 2. Резервуары металлические многосекционные на 3 и 5 куб. м для внутренних сантехнических систем. Рабочие чертежи |
| Дата добавления в базу: | 01.09.2013 |
| Дата актуализации: | 01.01.2021 |
| Дата введения: | 10.05.1988 |
| Дата окончания срока действия: | 30.06.2003 |
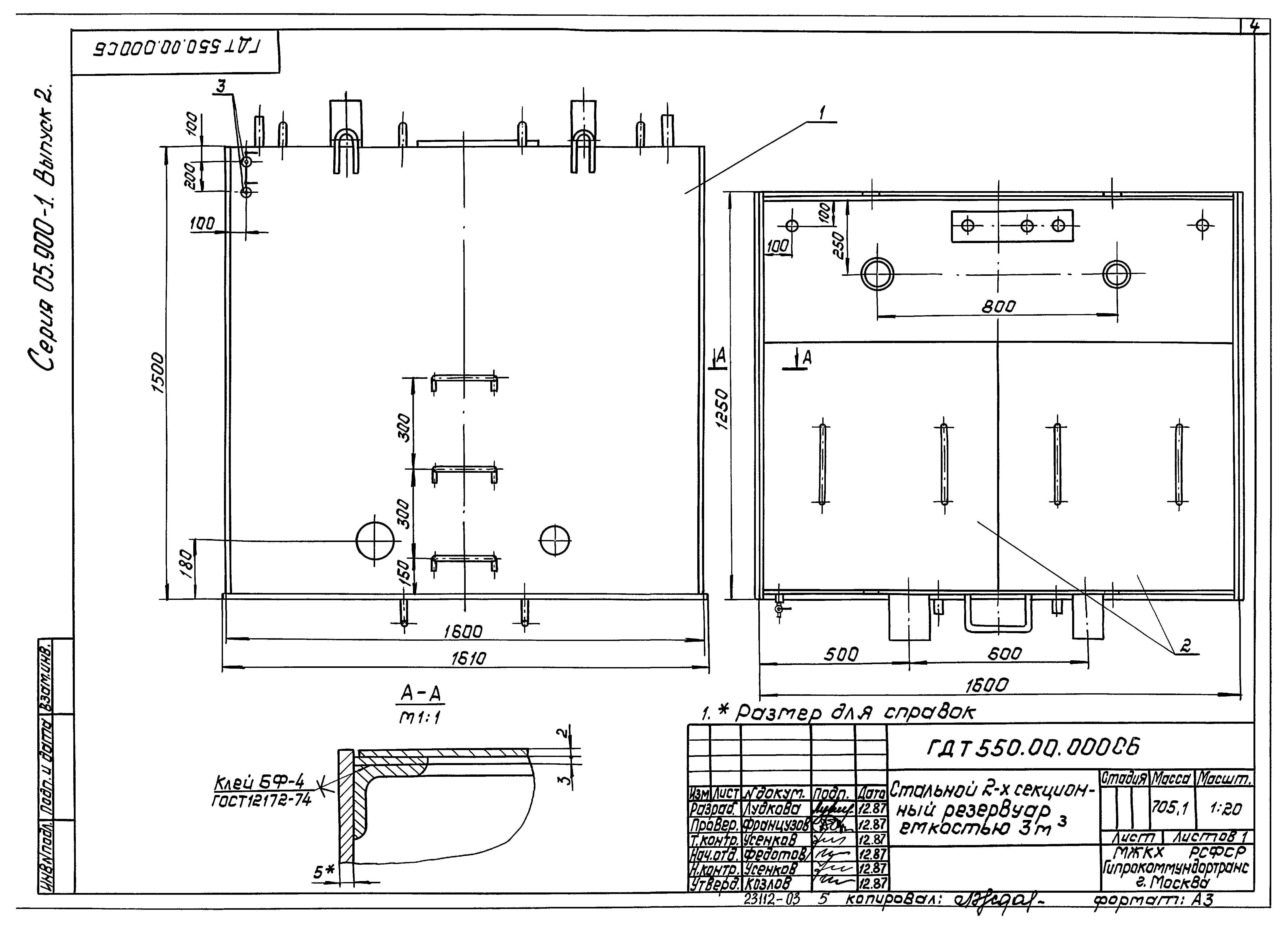
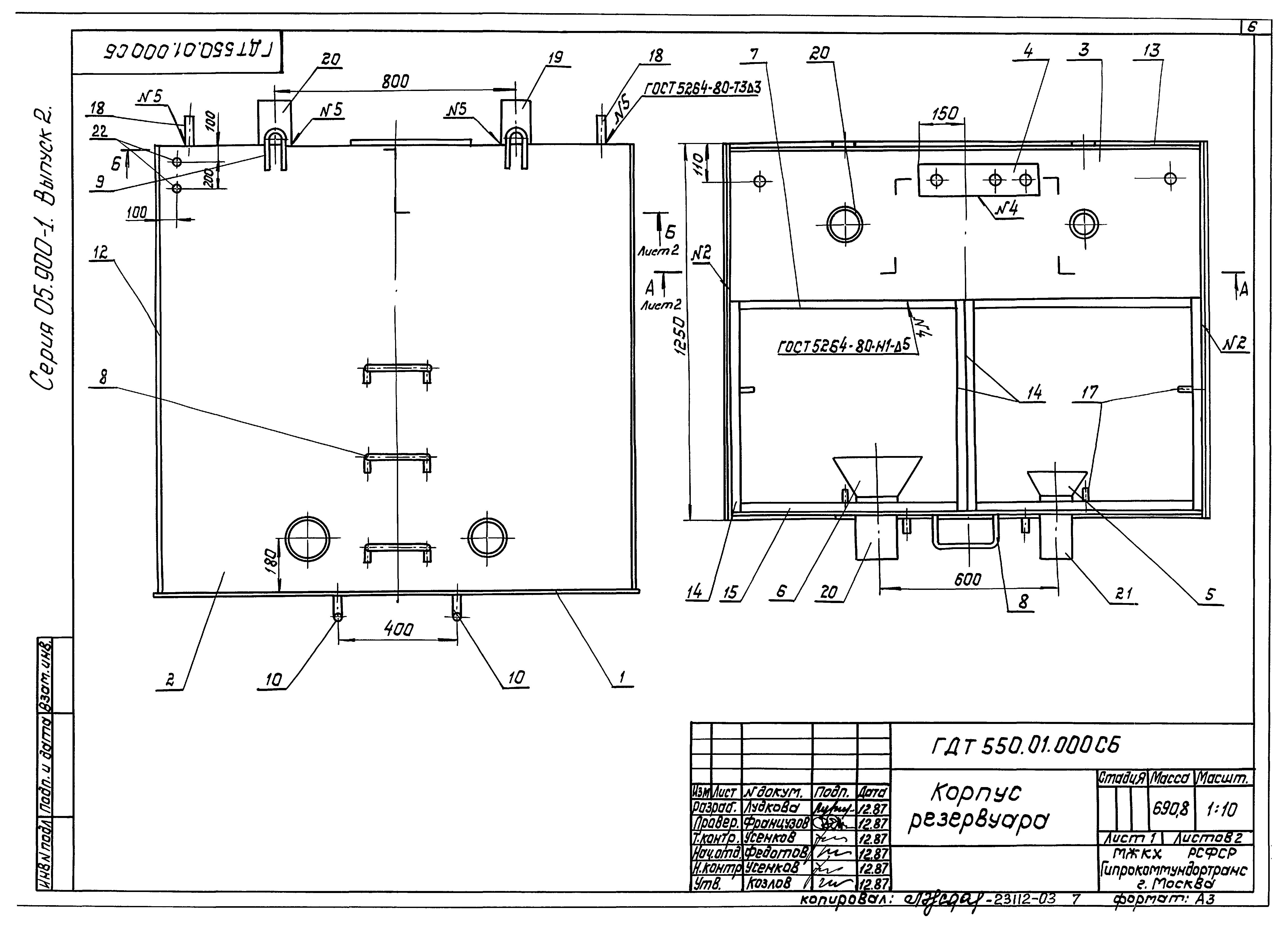
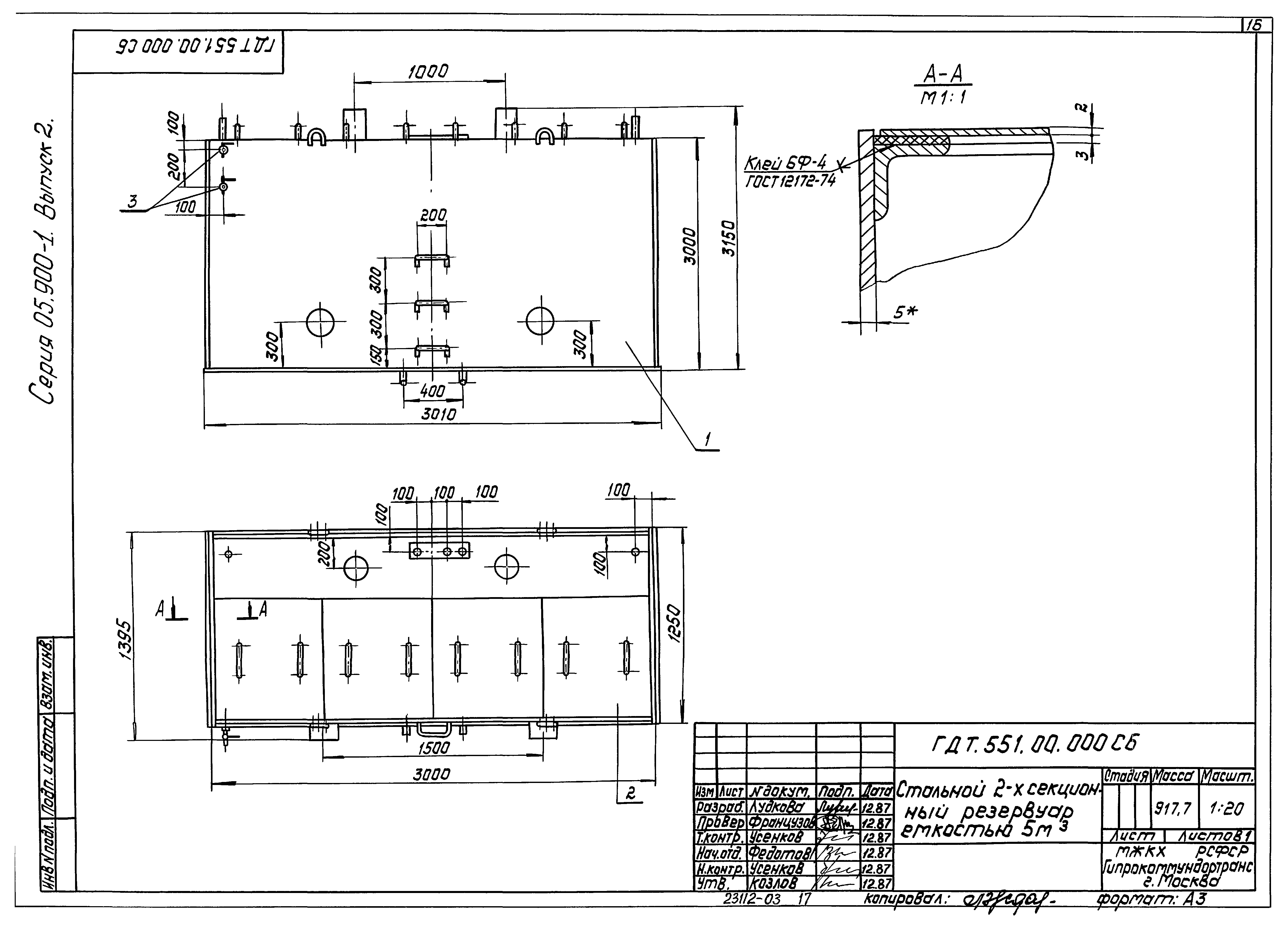
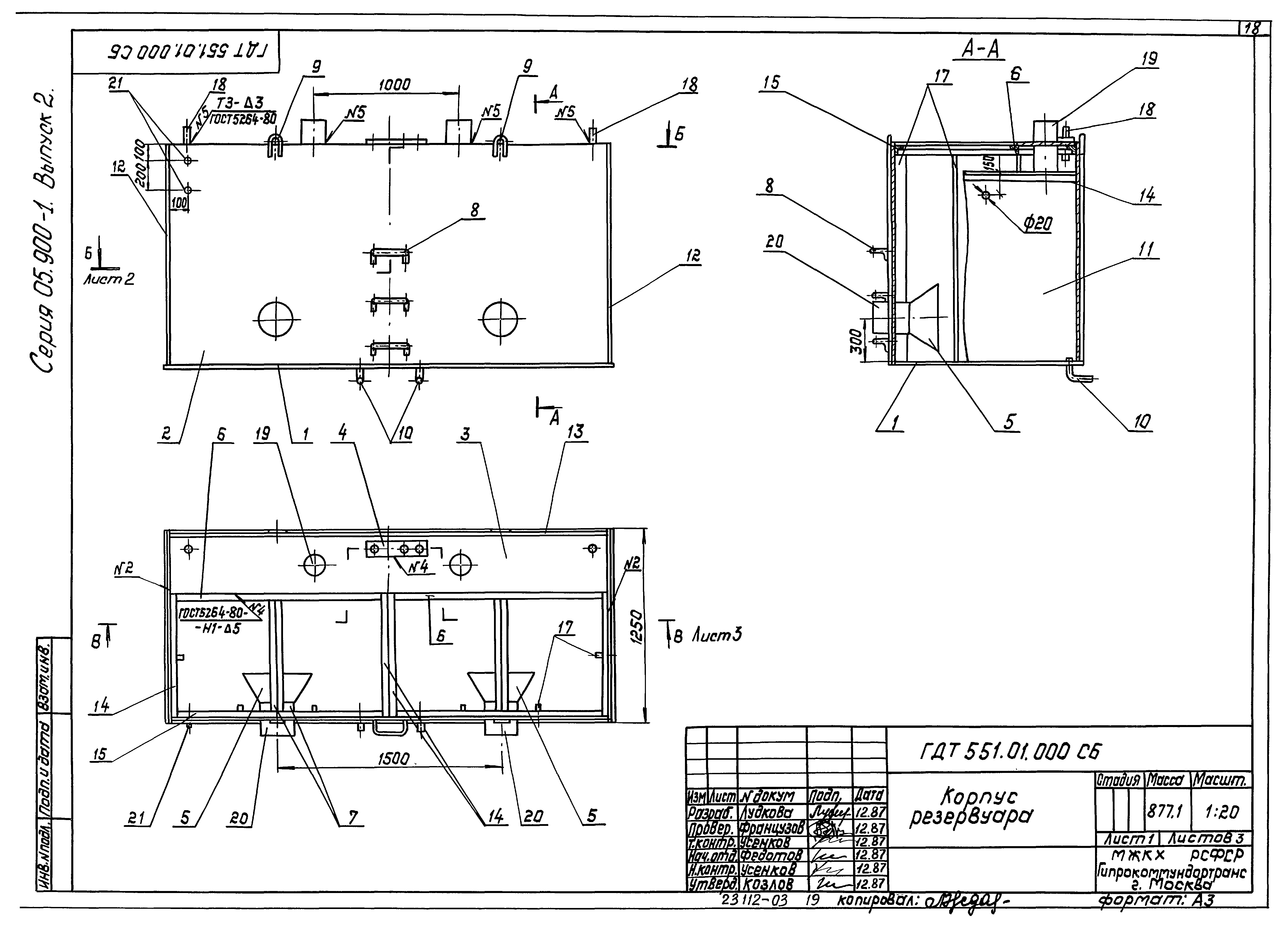
| Оглавление: | Содержание ГДТ550.00.000 Стальной 2-х секционный резервуар емкостью 3 куб. м. Спецификация ГДТ550.00.000СБ Стальной 2-х секционный резервуар емкостью 3 куб. м. Сборочный чертеж ГДТ550.01.000 Корпус резервуара. Спецификация ГДТ550.01.000СБ Корпус резервуара. Сборочный чертеж ГДТ550.01.001 Днище ГДТ550.01.002 Стенка передняя ГДТ550.01.003 Лист верхний ГДТ550.01.004 Платик ГДТ550.01.005 Воронка ГДТ550.01.006 Полка ГДТ550.01.007 Ступень ГДТ550.01.008 Петля ГДТ550.01.009 Патрубок ГДТ550.01.010 Перегородка ГДТ550.02.000 Крышка. Спецификация ГДТ550.02.000СБ Крышка. Сборочный чертеж ГДТ550.02.001 Лист ГДТ550.02.002 Скоба ГДТ551.00.000 Стальной 2-х секционный резервуар емкостью 5 кв. м. Спецификация ГДТ551.00.000СБ Стальной 2-х секционный резервуар емкостью 5 кв. м. Сборочный чертеж ГДТ551.01.000 Корпус резервуара. Спецификация ГДТ551.01.000СБ Корпус резервуара. Сборочный чертеж ГДТ551.01.001 Днище ГДТ551.01.002 Стенка передняя ГДТ551.01.003 Лист верхний ГДТ551.01.004 Платик ГДТ551.01.005 Воронка ГДТ551.01.006 Полка ГДТ551.01.007 Ступень ГДТ551.01.008 Петля ГДТ551.01.009 Патрубок ГДТ551.01.010 Перегородка ГДТ551.02.000 Крышка. Спецификация ГДТ551.02.000 Крышка. Сборочный чертеж ГДТ551.02.001 Скоба ГДТ551.02.002 Лист ГДТ552.00.000 Стальной 5-ти секционный резервуар емкостью 5 куб. м. Спецификация ГДТ552.00.000СБ Стальной 5-ти секционный резервуар емкостью 5 куб. м. Сборочный чертеж ГДТ552.01.000 Корпус резервуара. Спецификация ГДТ552.01.000СБ Корпус резервуара. Сборочный чертеж ГДТ552.01.001 Днище ГДТ552.01.002 Стенка передняя ГДТ552.01.003 Стенка задняя ГДТ552.01.004 Стенка боковая ГДТ552.01.005 Перегородка ГДТ552.01.006 Лист верхний ГДТ552.01.007 Накладка ГДТ552.01.008 Воронка ГДТ552.01.009 Патрубок ГДТ552.01.010 Патрубок ГДТ552.01.011 Ступень ГДТ552.01.012 Петля ГДТ552.02.000 Крышка. Спецификация ГДТ552.02.000СБ Крышка. Сборочный чертеж ГДТ552.02.001 Лист ГДТ552.02.002 Скоба |
| Разработан: | Гипрокоммундортранс |
| Утверждён: | 06.05.1988 Управление ГО СССР (31) |










































