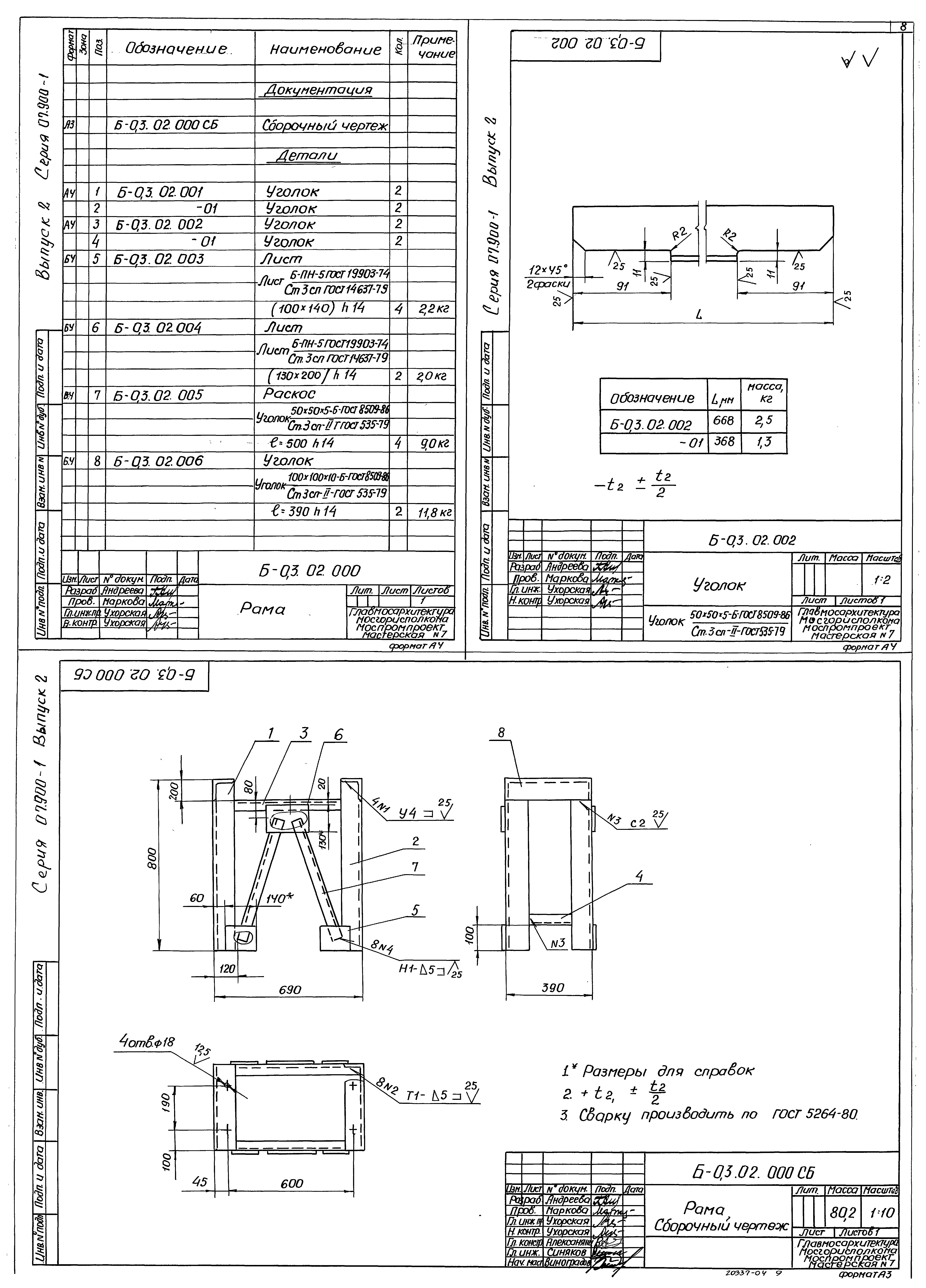
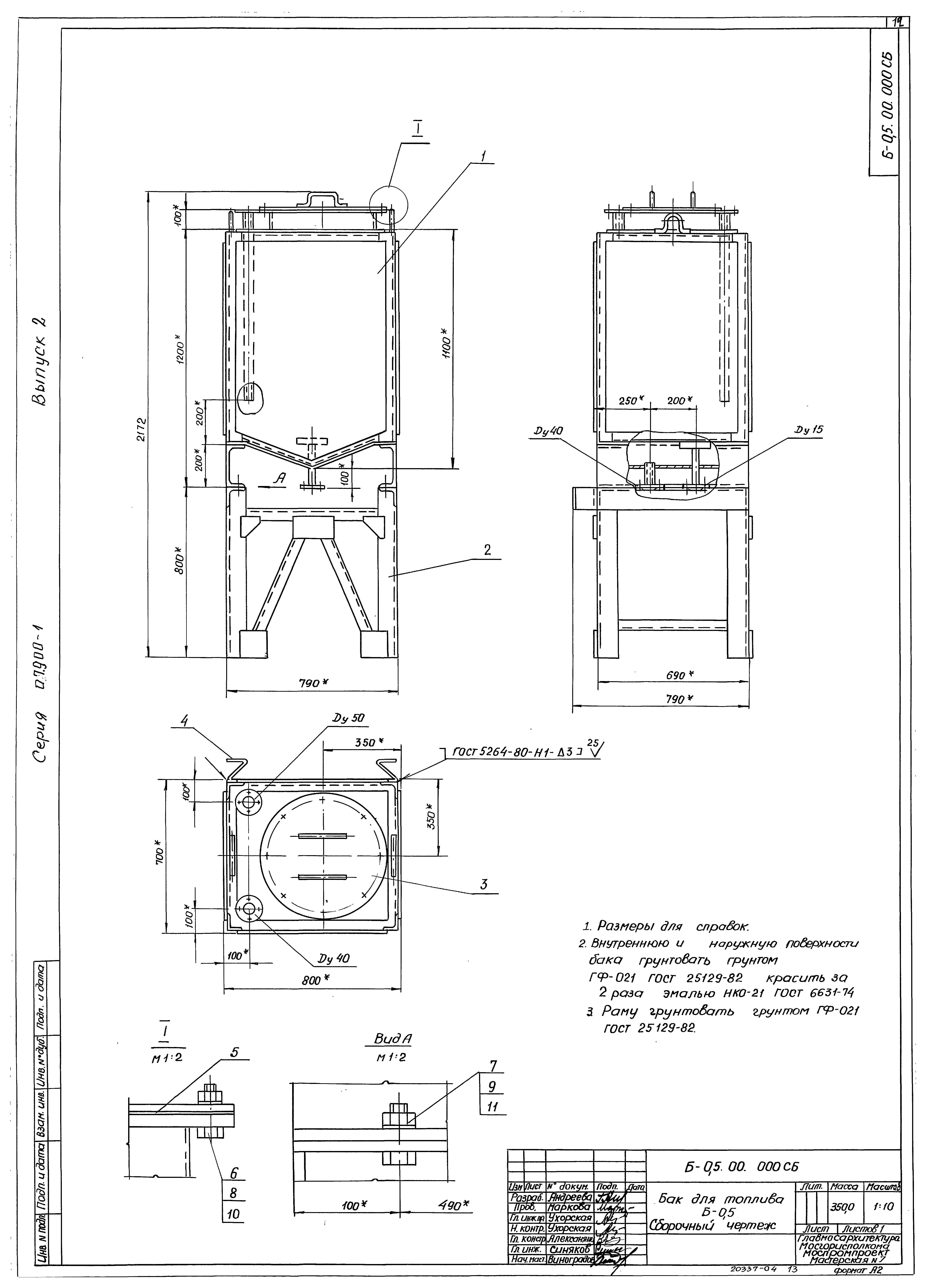
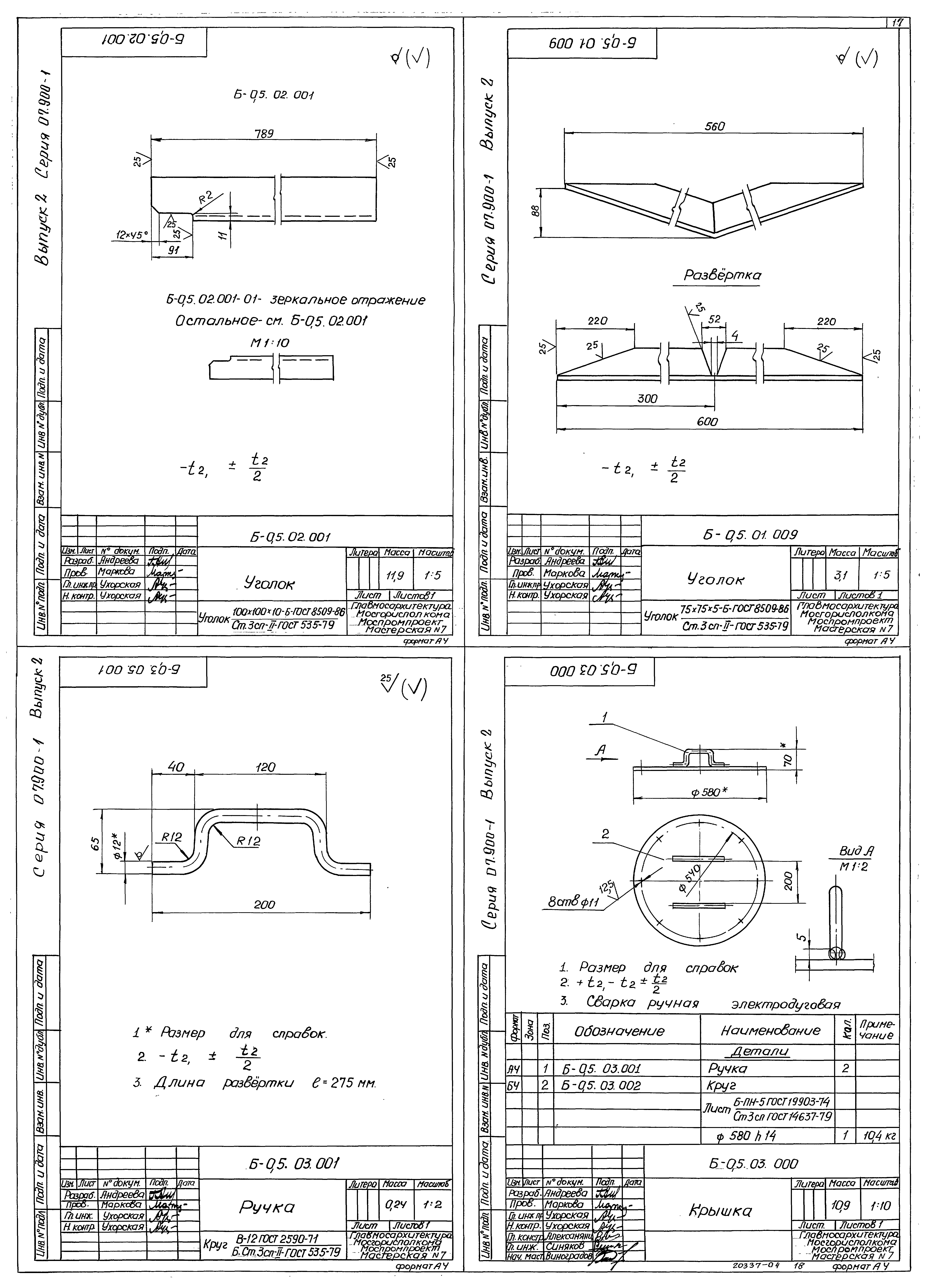
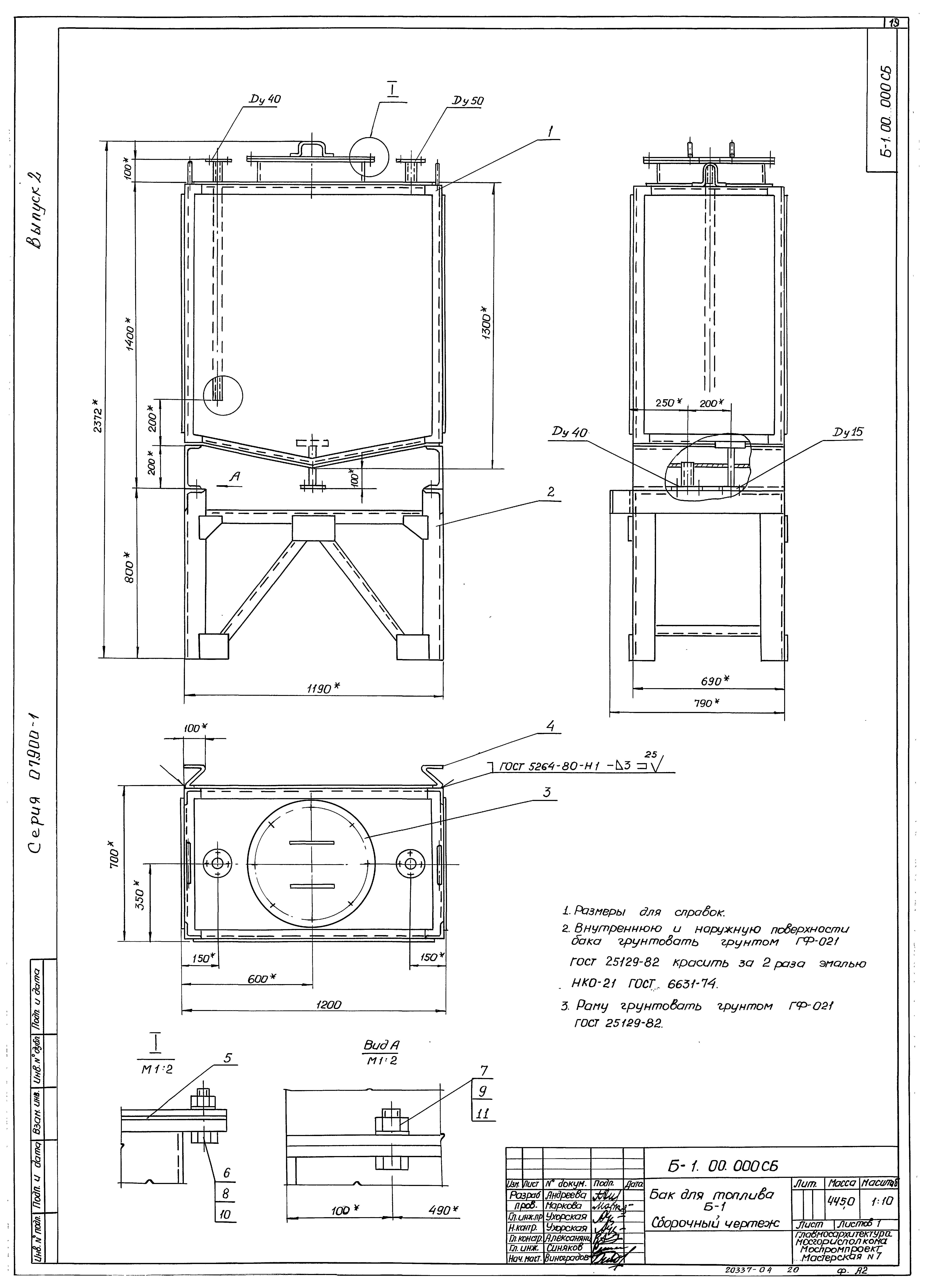
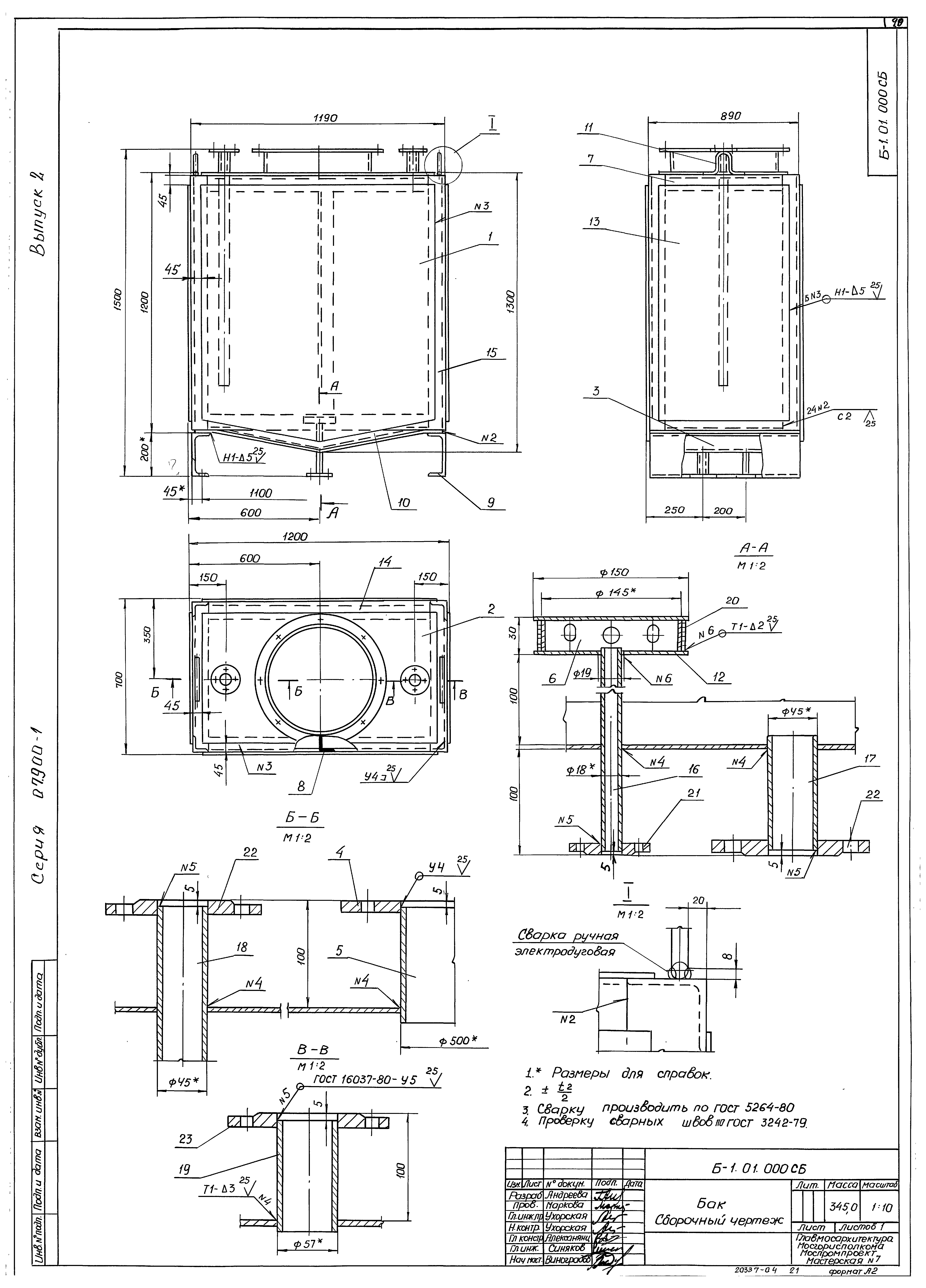
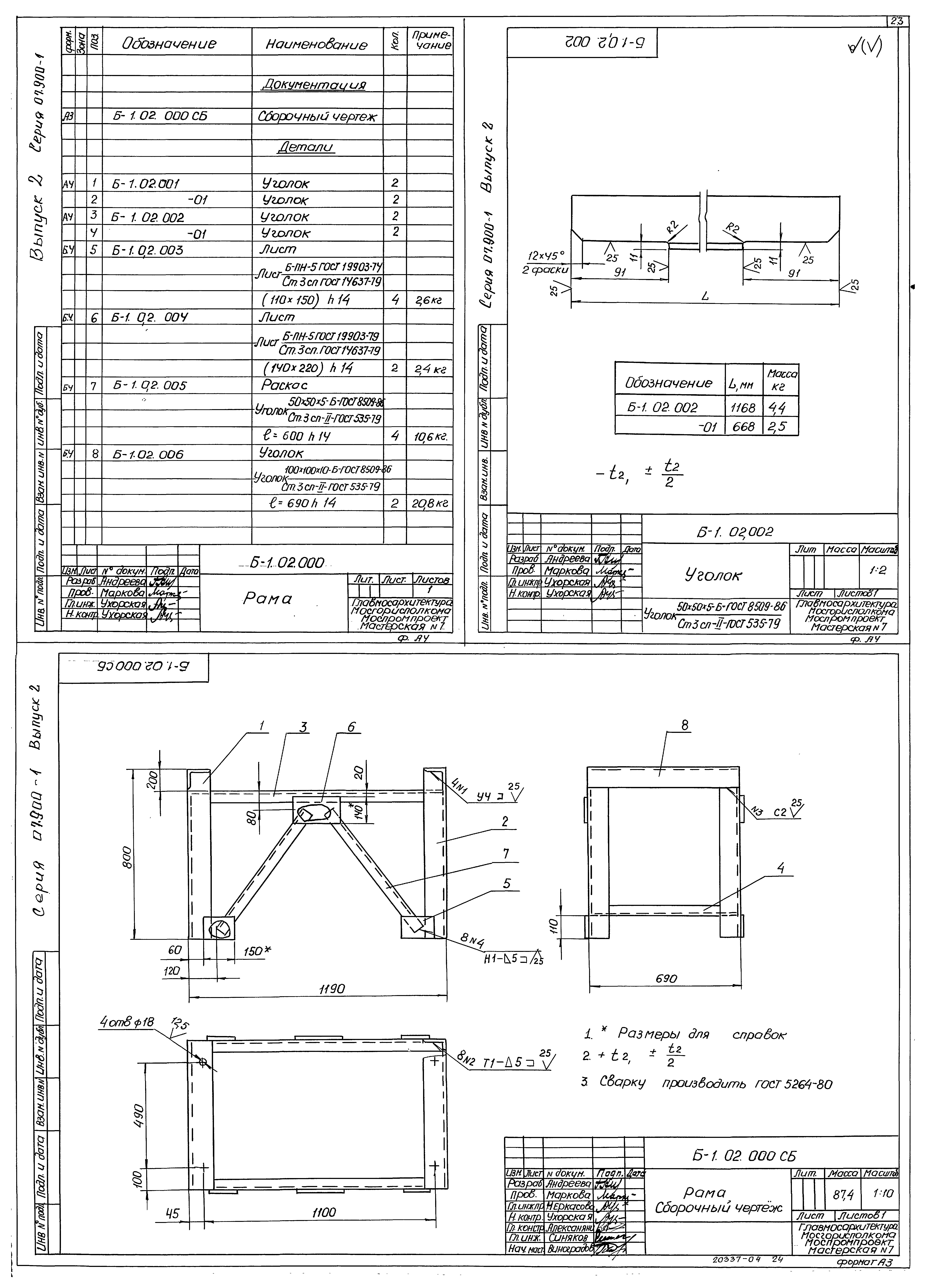
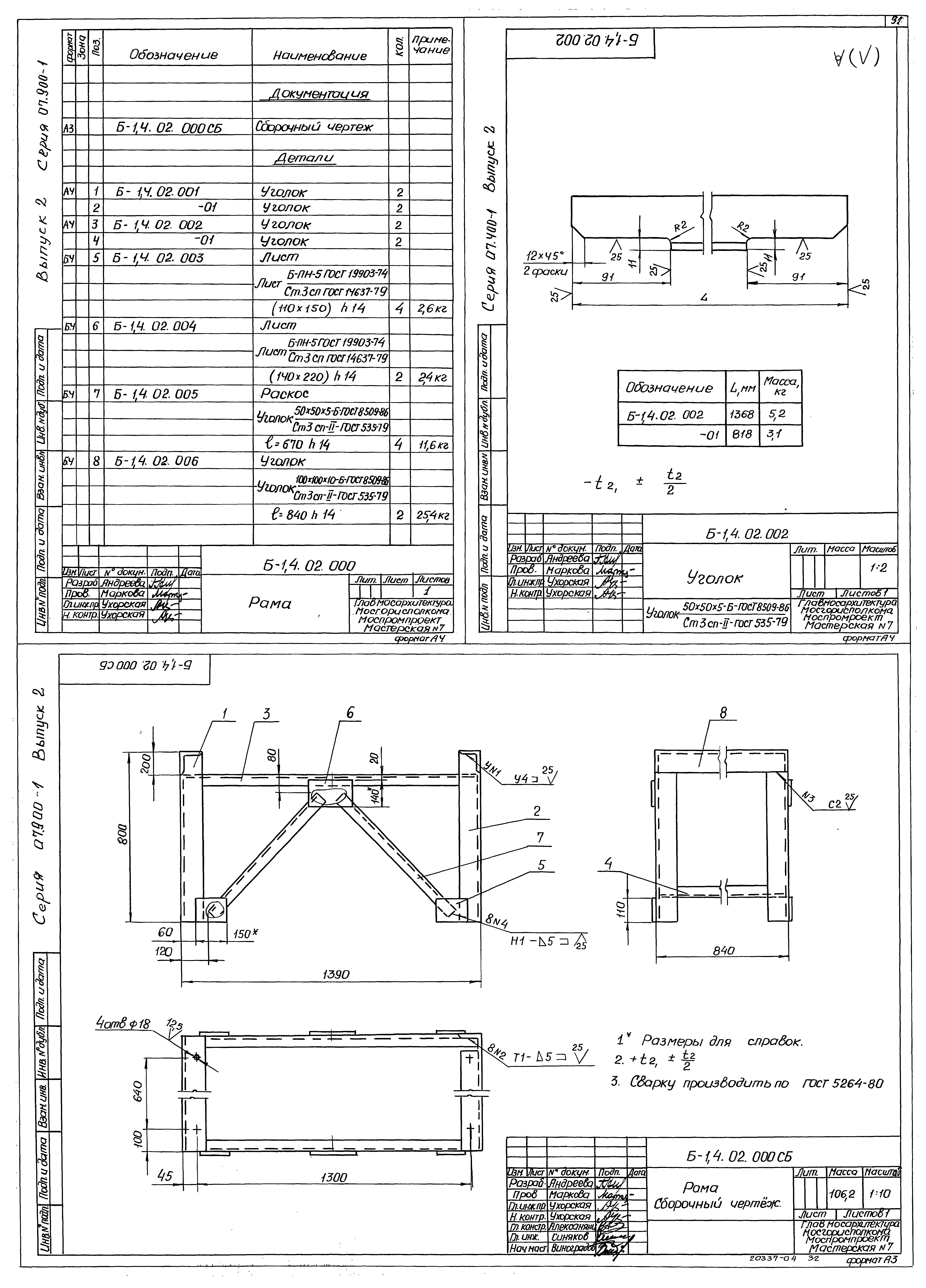
Скачать Серия 07.900-1 Выпуск 2. Топливные баки емкостью 0,3; 0,5; 1,0; 1,4 куб. м. Рабочие чертежиДата актуализации: 01.01.2021 Серия 07.900-1
Выпуск 2. Топливные баки емкостью 0,3; 0,5; 1,0; 1,4 куб. м. Рабочие чертежи| Обозначение: | Серия 07.900-1 | | Обозначение англ: | Series 07.900-1 | | Статус: | не определен законодательством | | Название рус.: | Выпуск 2. Топливные баки емкостью 0,3; 0,5; 1,0; 1,4 куб. м. Рабочие чертежи | | Дата добавления в базу: | 01.09.2013 | | Дата актуализации: | 01.01.2021 | | Дата введения: | 01.07.1989 | | Дата окончания срока действия: | 30.06.2003 | | Разработан: | Моспромпроект
| | Утверждён: | 20.05.1989 Управление ГО СССР (53)
|
                               
|