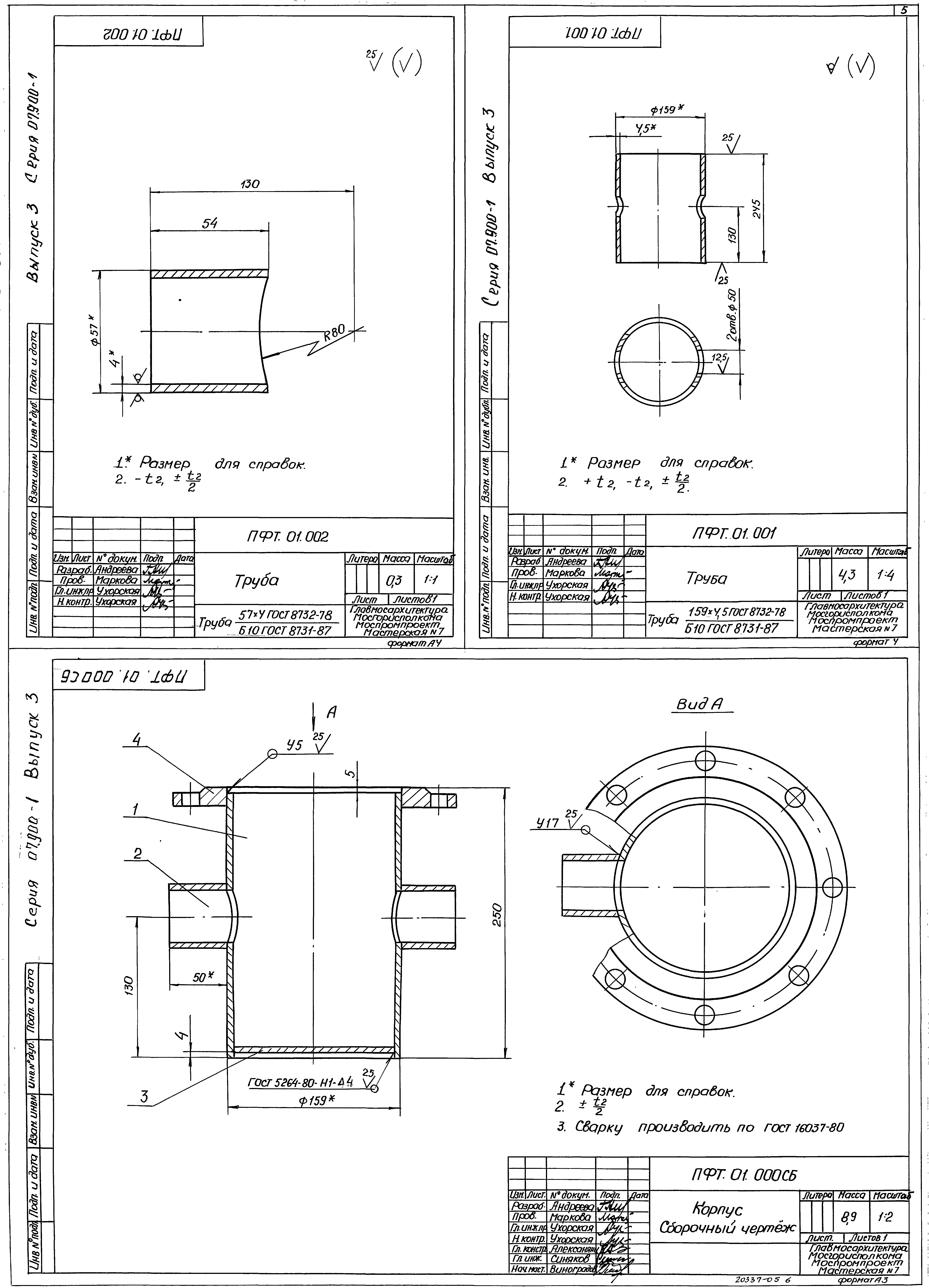
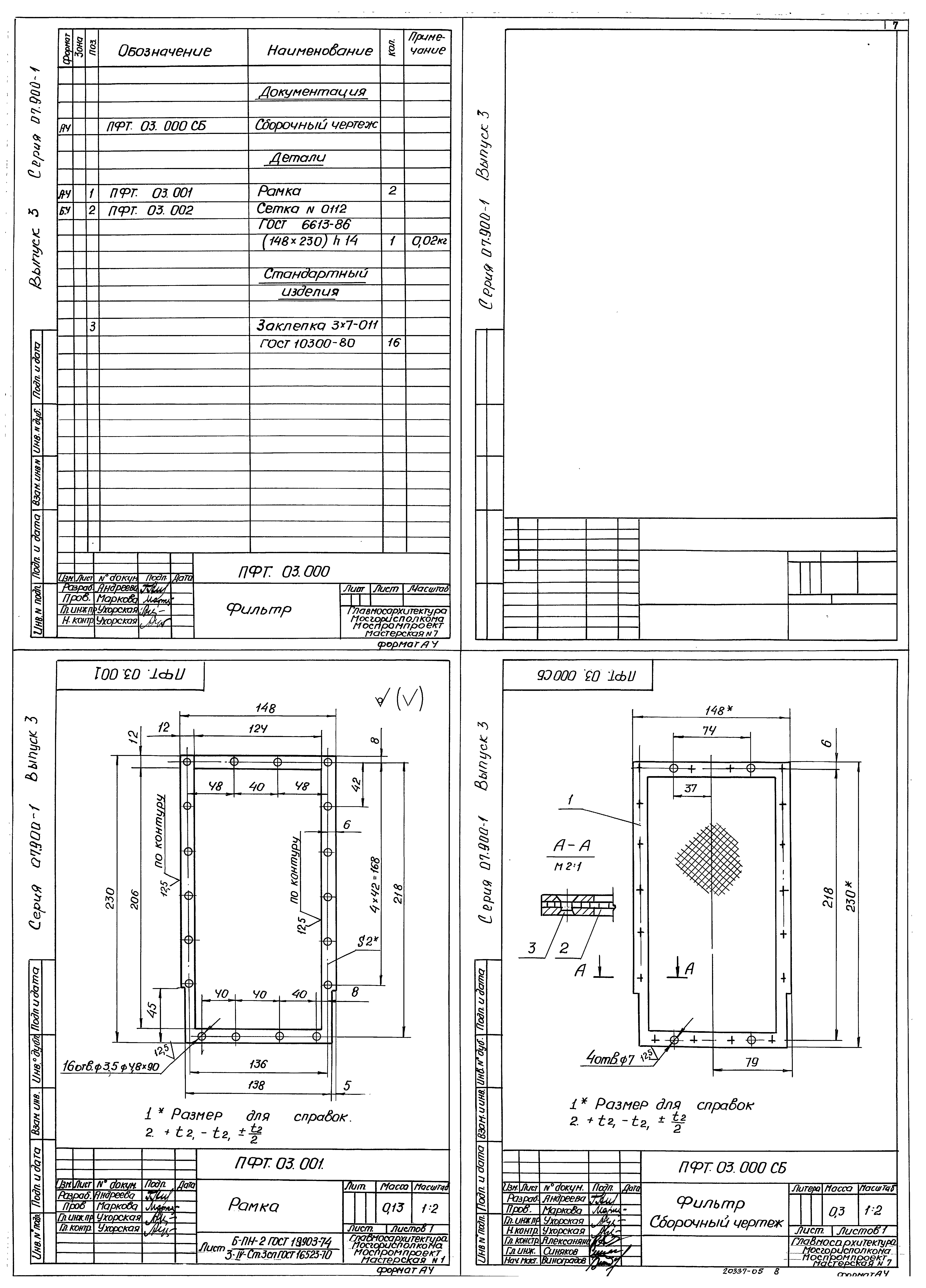
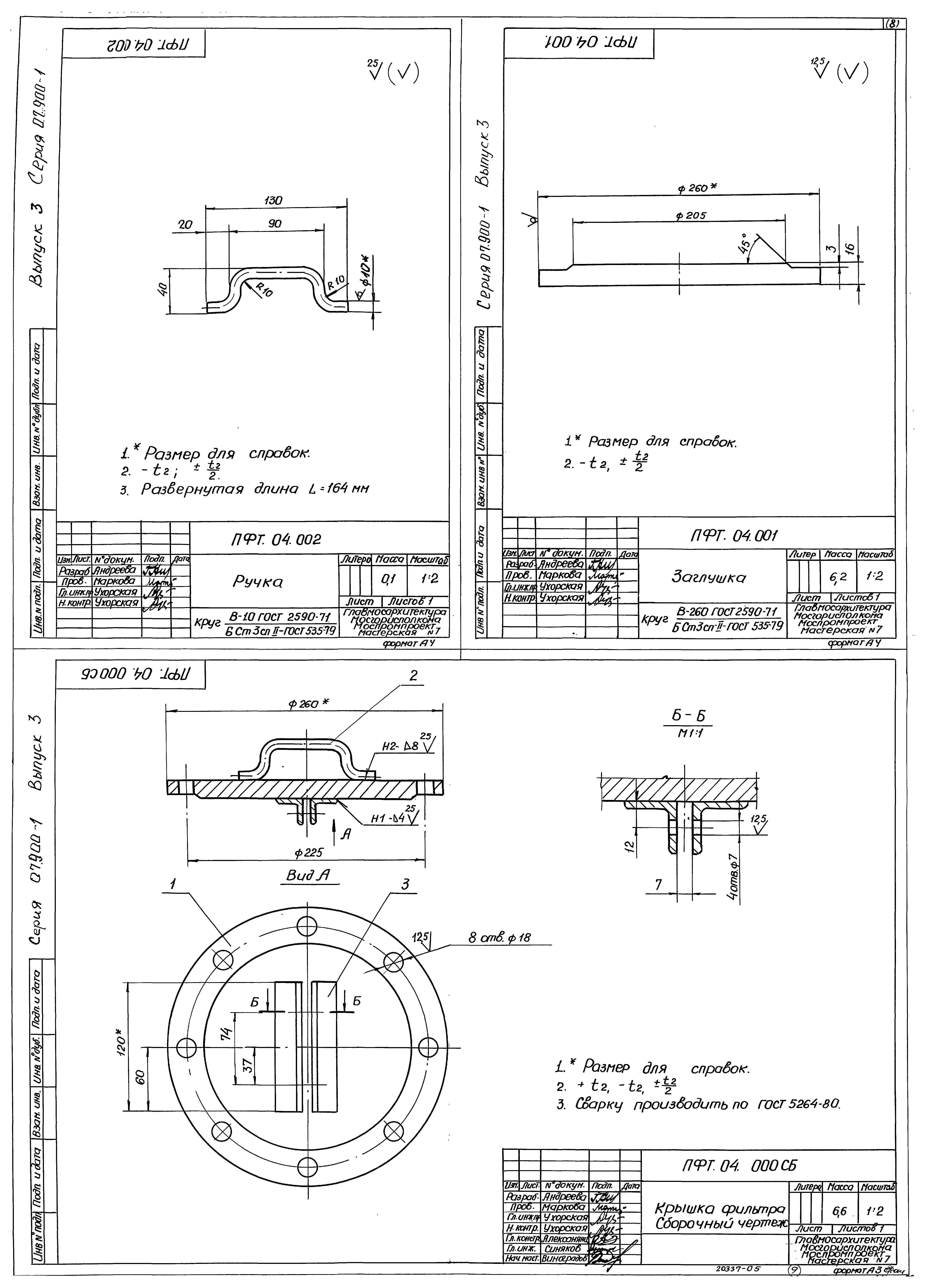
Скачать Серия 07.900-1 Выпуск 3. Приемный фильтр топлива. Рабочие чертежиДата актуализации: 01.01.2021 Серия 07.900-1
Выпуск 3. Приемный фильтр топлива. Рабочие чертежи| Обозначение: | Серия 07.900-1 | | Обозначение англ: | Series 07.900-1 | | Статус: | не определен законодательством | | Название рус.: | Выпуск 3. Приемный фильтр топлива. Рабочие чертежи | | Дата добавления в базу: | 01.09.2013 | | Дата актуализации: | 01.01.2021 | | Дата введения: | 01.07.1989 | | Дата окончания срока действия: | 30.06.2003 | | Разработан: | Моспромпроект
| | Утверждён: | 20.05.1989 Управление ГО СССР (53)
|
       
|