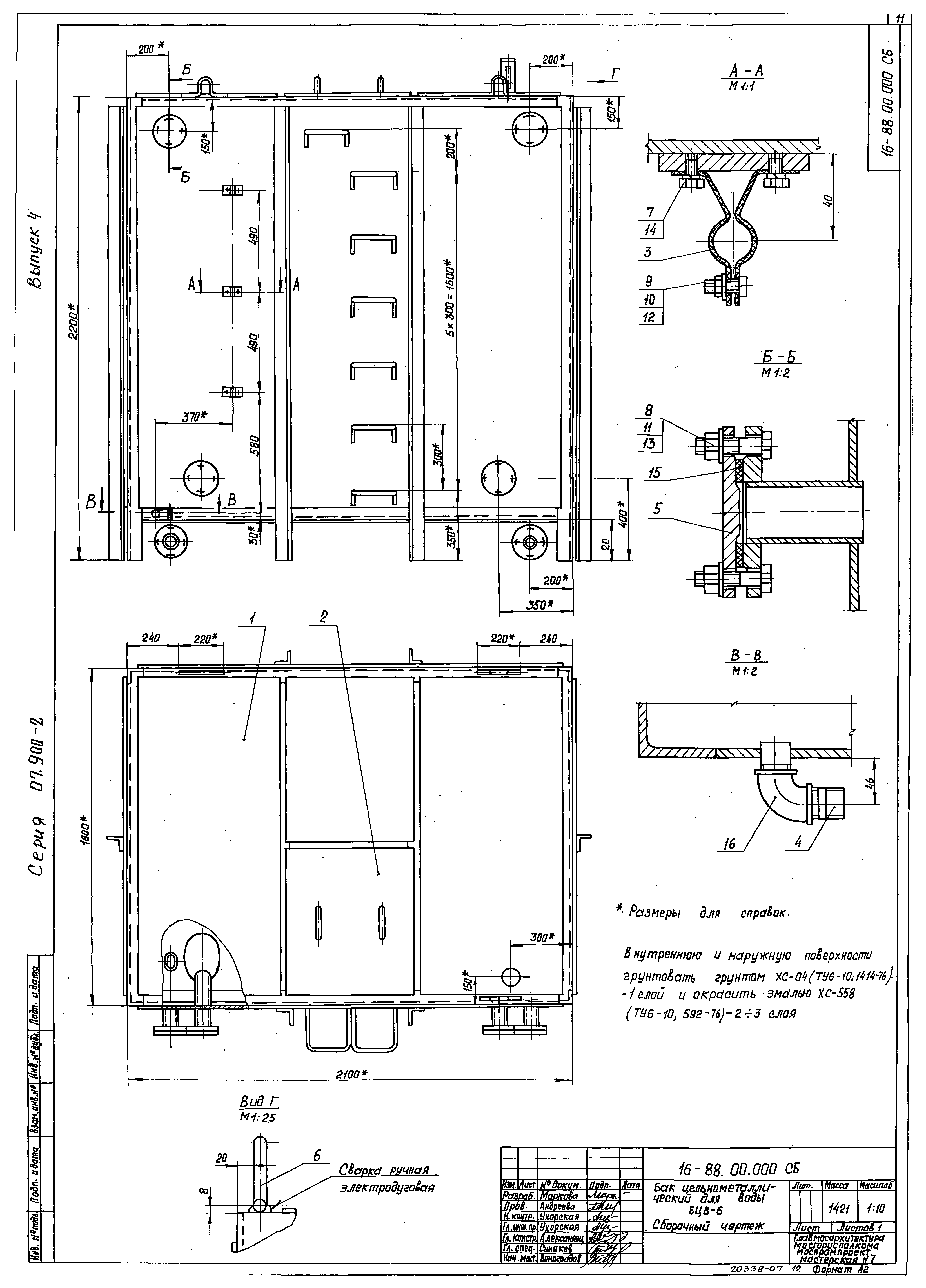
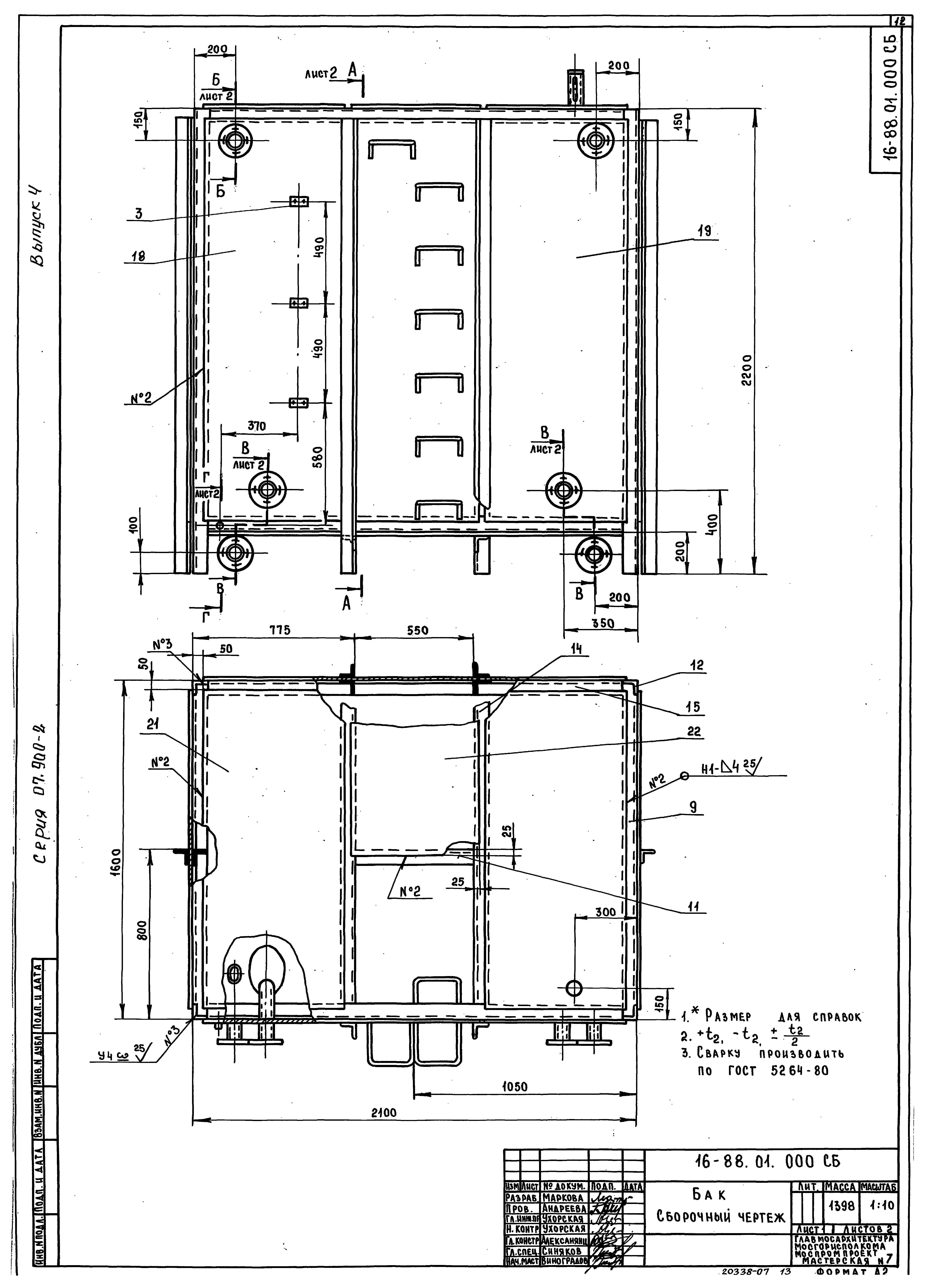
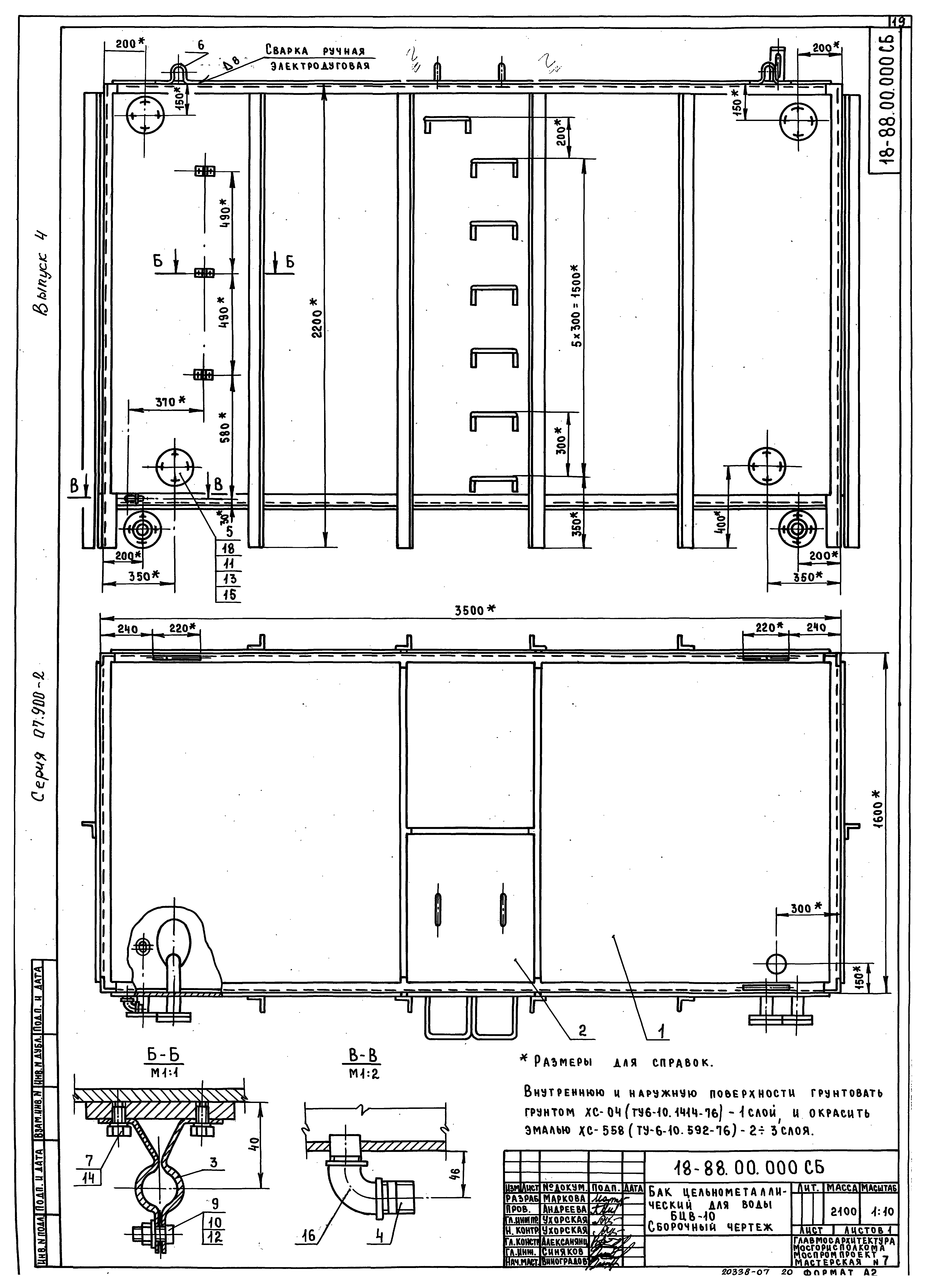
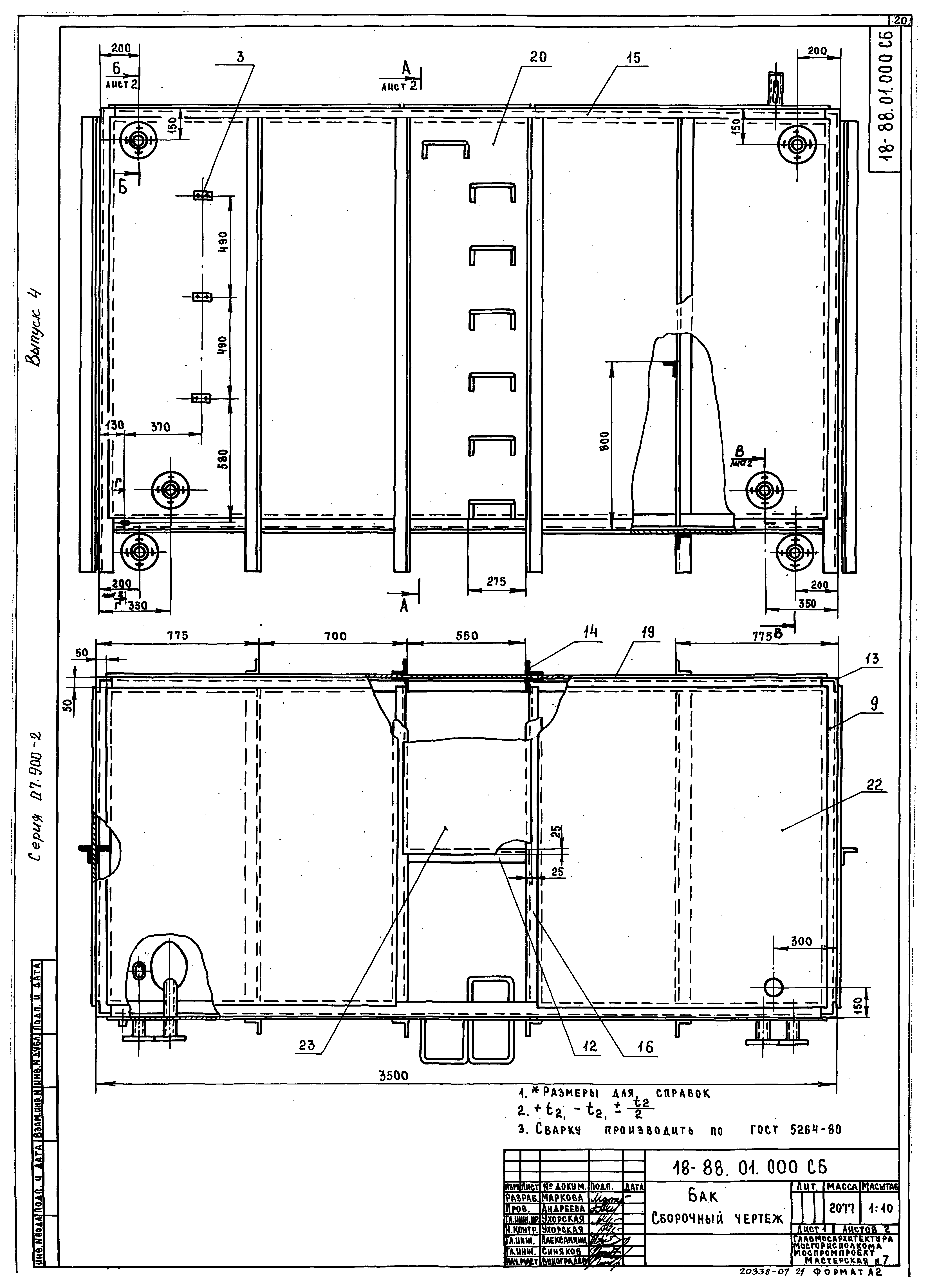
Скачать Серия 07.900-2 Выпуск 4. Баки водяные цельнометаллические БЦВ-4, БЦВ-6, БЦВ-8, БЦВ-10. Рабочие чертежиДата актуализации: 01.01.2021 Серия 07.900-2
Выпуск 4. Баки водяные цельнометаллические БЦВ-4, БЦВ-6, БЦВ-8, БЦВ-10. Рабочие чертежи| Обозначение: | Серия 07.900-2 | | Обозначение англ: | Series 07.900-2 | | Статус: | не определен законодательством | | Название рус.: | Выпуск 4. Баки водяные цельнометаллические БЦВ-4, БЦВ-6, БЦВ-8, БЦВ-10. Рабочие чертежи | | Дата добавления в базу: | 01.09.2013 | | Дата актуализации: | 01.01.2021 | | Дата введения: | 19.04.1989 | | Дата окончания срока действия: | 30.06.2003 | | Разработан: | Моспромпроект
| | Утверждён: | 12.12.1988 НГО СССР (46)
|
                    
|