Скачать Серия ТДК-Н-1-67 Часть II. Раздел II. Воздухозаборы, аварийные выходы и гравийные охладителиДата актуализации: 01.01.2021
|
| Обозначение: | Серия ТДК-Н-1-67 |
| Обозначение англ: | Series ТДК-Н-1-67 |
| Статус: | не определен законодательством |
| Название рус.: | Часть II. Раздел II. Воздухозаборы, аварийные выходы и гравийные охладители |
| Дата добавления в базу: | 01.09.2013 |
| Дата актуализации: | 01.01.2021 |
| Дата введения: | 22.12.1967 |
| Дата окончания срока действия: | 30.06.2003 |
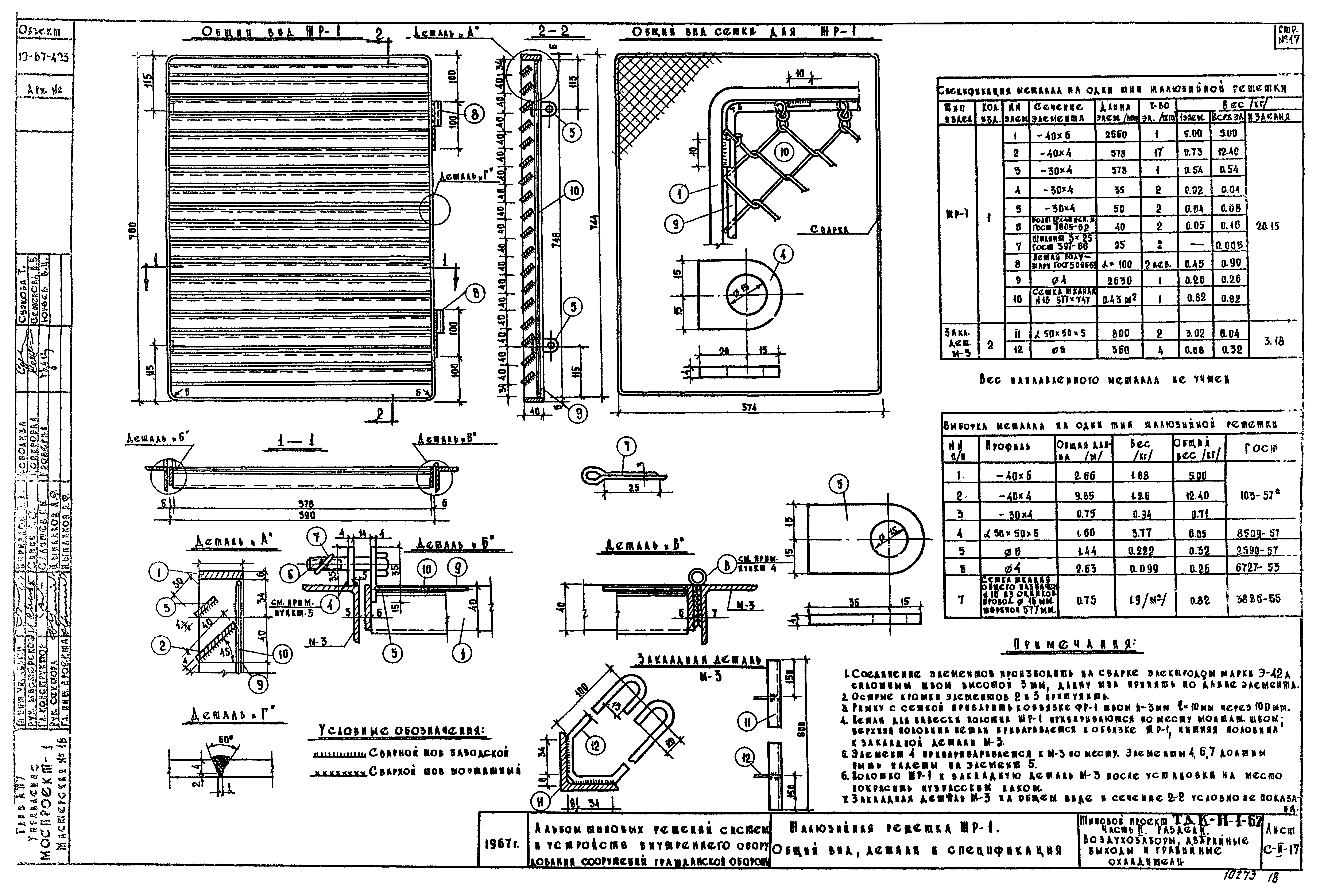
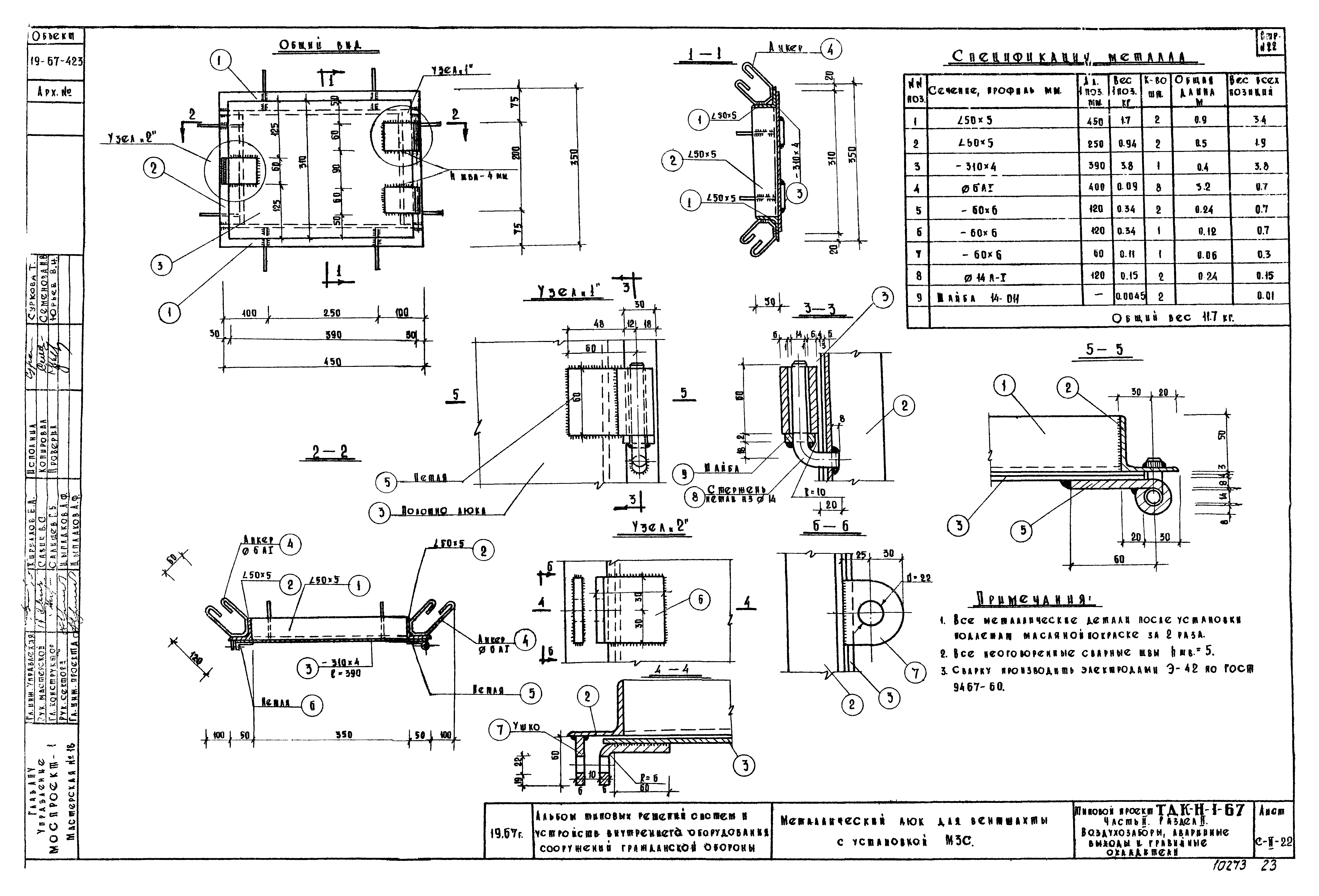
| Оглавление: | Содержание раздела и указания по применению Железобетонный оголовок сечением 90х90 см, высотой h = 1,2 м. Опалубка Железобетонный оголовок сечением 90х90 см, высотой h = 1,2 м. Армирование Железобетонный оголовок сечением Д = 75 см, высотой h = 1,2 м. Опалубка Железобетонный оголовок сечением Д = 75 см, высотой h = 1,8 м. Опалубка Железобетонные оголовки сечением Д = 75 см, высотой h = 1,2 м и h = 1,8 м. Армирование Железобетонные оголовки сечением Д = 75 см, высотой h = 1,2 м и h = 1,8 м. Спецификация арматуры Железобетонный оголовок сечением Д = 90 см, высотой h = 1,2 м. Опалубка Железобетонный оголовок сечением Д = 90 см, высотой h = 1,8 м. Опалубка Железобетонные оголовки сечением Д = 90 см, высотой h = 1,2 м и h = 1,8 м. Армирование Железобетонные оголовки сечением Д = 90 см, высотой h = 1,2 м и h = 1,8 м. Спецификация арматуры Железобетонный оголовок сечением Д = 90 см, высотой h = 2,4 м. Опалубка Железобетонный оголовок сечением Д = 90 см, высотой h = 2,4 м. Армирование Вентшахты сечением Д = 150, 250, 350 и 500 мм, высотой h = 1,0 м и h = 1,8 м. Габаритный чертеж Вентшахты сечением Д = 150, 250, 350 и 500 мм, высотой h = 1,0 м и h = 1,8 м. Армирование Вентшахты сечением Д = 150, 250, 350 и 500 мм, высотой h = 1,0 м и h = 1,8 м. Металлические детали Жалюзийная решетка ЖР-1. Общий вид, детали и спецификация Жалюзийная решетка ЖР-2. Общий вид, детали и спецификация Железобетонная вентшахта с установкой МЗС Железобетонная вентшахта с установкой УЗС-1 Железобетонные вентшахты с установкой МЗС и УЗС-1. Арматурные каркасы и стержни Металлический люк для вентшахты с установкой МЗС Металлический люк для вентшахты с установкой УЗС-1 Монолитные железобетонные галереи аварийных выходов размером 0,9х1,6 (h) м и 0,9х1,0 (h) м. Опалубка и армирование Монолитные железобетонные галереи аварийных выходов. Арматурные каркасы. Спецификация Кирпичные галереи аварийных выходов размером 0,9х1,0 (h) м и 0,9х1,6 (h) м Кирпичные камеры аварийных выходов Открытый лестничный аварийный выход для галереи размером 0,9х1,6 (h) м. План. Сечение, узлы Открытый лестничный аварийный выход для галереи размером 0,9х1,6 (h) м. Арматурные сечения. Спецификация Скрытый лестничный аварийный выход для галереи размером 0,9х1,6 (h) м Наклонная дверь для открытого лестничного аварийного выхода Отдельностоящий гравийный охладитель на 12 колосниковых плит. Площадь засыпки гравия F = 6 кв. м, высота засыпки гравия h = 0,7 м. Производительность охладителя по воздуху - 500 куб. м/час Отдельностоящий гравийный охладитель на 7 колосниковых плит. Площадь засыпки гравия F = 3,5 кв. м, высота засыпки гравия h = 1,0 м. Производительность охладителя по воздуху - 500 куб. м/час Отдельностоящий гравийный охладитель на 4 колосниковых плиты, расположенных в 2 ряда. Площадь засыпки гравия F = 2 кв. м, высота засыпки гравия h = 0,7 м. Производительность охладителя по воздуху - 250 куб. м/час Отдельностоящий гравийный охладитель на 4 колосниковых плиты, расположенных в 1 ряд. Площадь засыпки гравия F = 2 кв. м, высота засыпки гравия h = 0,7 м. Производительность охладителя по воздуху - 250 куб. м/час Отдельностоящий гравийный охладитель на 3 колосниковые плиты. Площадь засыпки гравия F = 1,5 кв. м, высота засыпки гравия h = 1,0 м. Производительность охладителя по воздуху - 250 куб. м/час Железобетонная колосниковая плита Закладная рамка для установки МЗС в железобетонных конструкциях |
| Разработан: | Моспроект-1 |
| Утверждён: | 22.12.1967 Моспроект-1 (353Р) |







































