Скачать Серия 1.123-КР-1 Выпуск 4. Альбом I. Рабочие чертежиДата актуализации: 01.01.2021
|
| Обозначение: | Серия 1.123-КР-1 |
| Обозначение англ: | Series 1.123-КР-1 |
| Статус: | действует |
| Название рус.: | Выпуск 4. Альбом I. Рабочие чертежи |
| Дата добавления в базу: | 01.09.2013 |
| Дата актуализации: | 01.01.2021 |
| Дата введения: | 01.01.1977 |
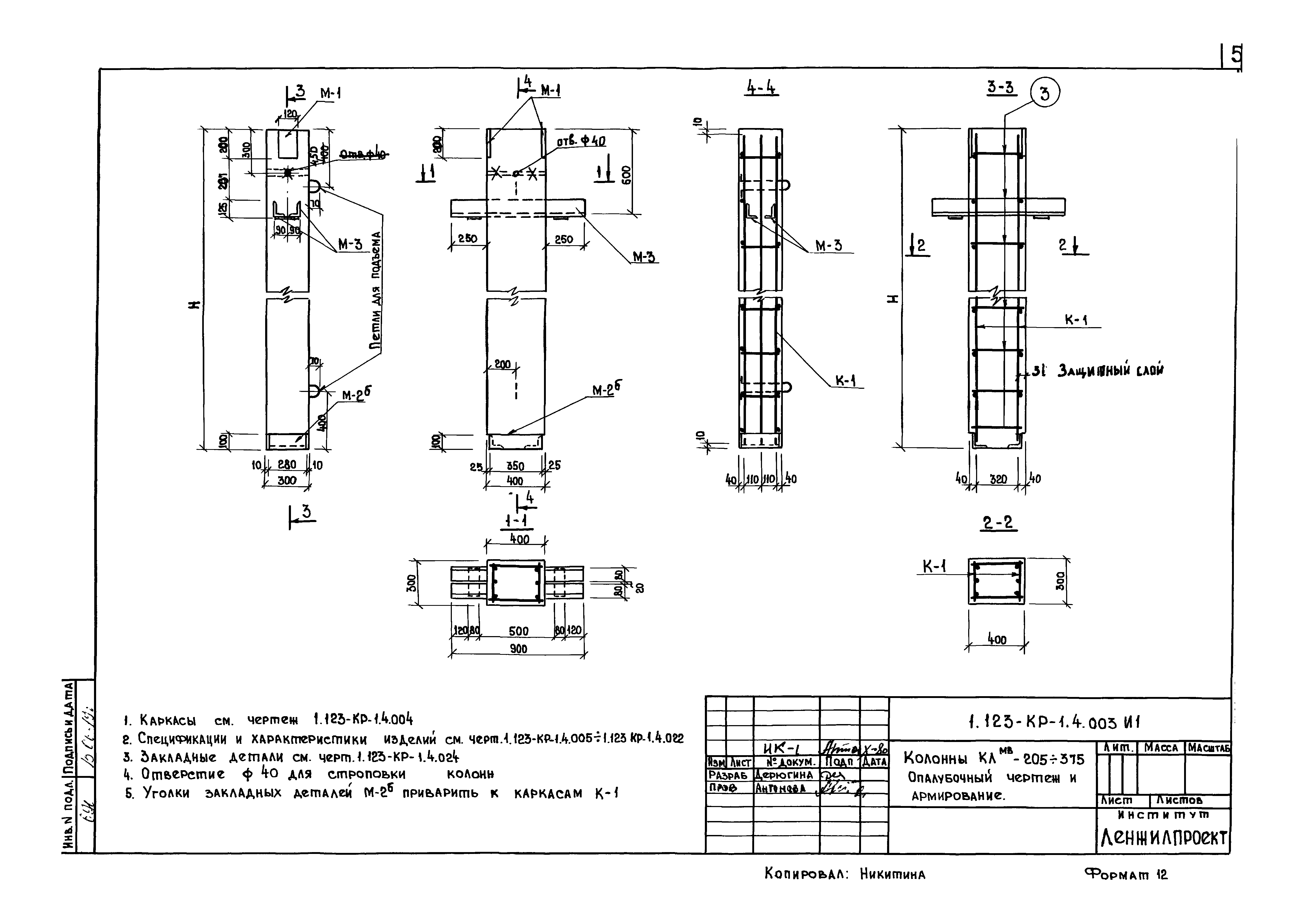
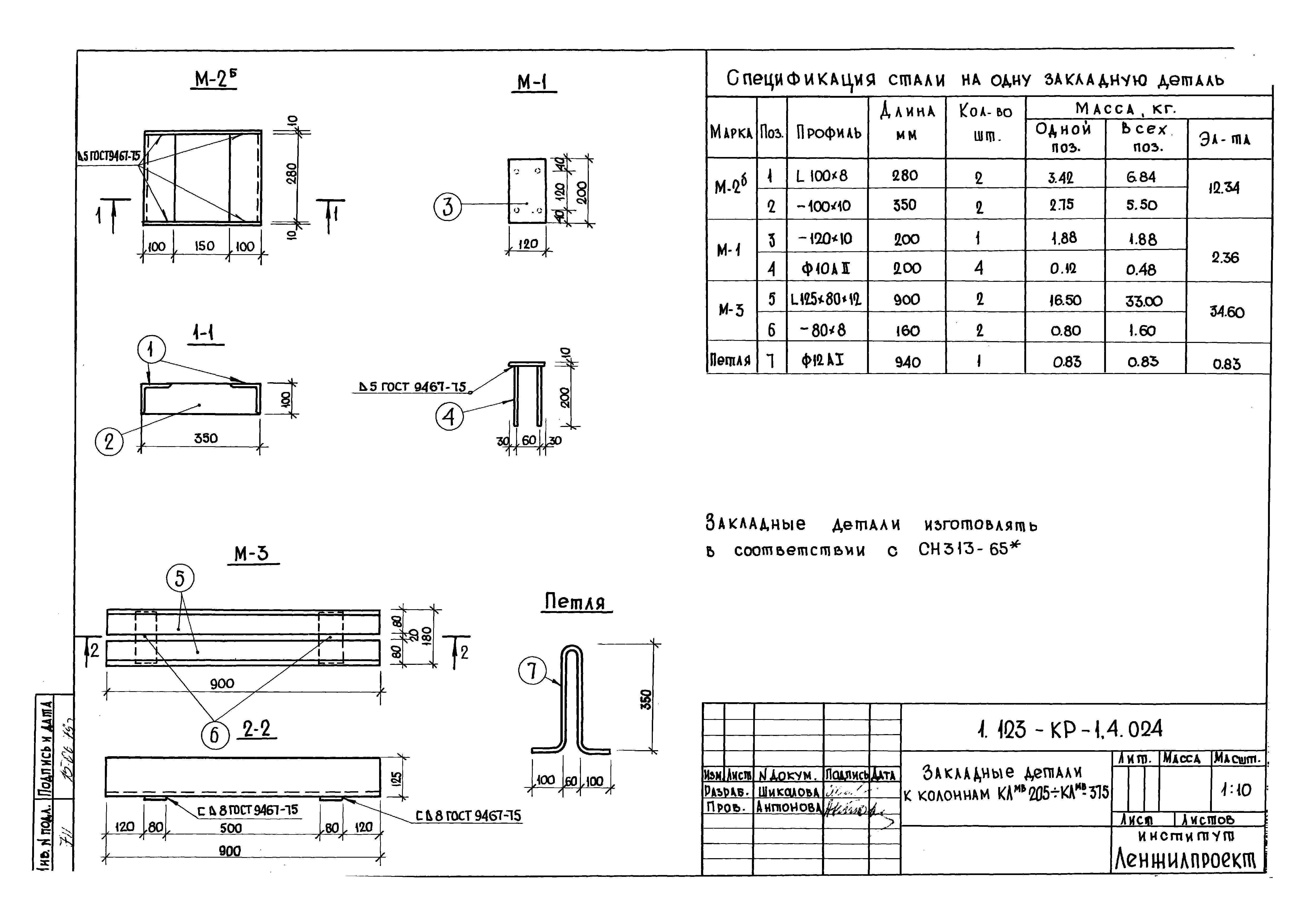
| Оглавление: | 1.23-КР-1.4.000 И1 Содержание альбома 1.23-КР-1.4.ИК-1 Информационная карта 1.23-КР-1.4.001 Пояснительная записка 1.23-КР-1.4.002 Номенклатур железобетонные КЛвм205-КЛвм370 1.23-КР-1.4.003 Колонны КЛвм205-КЛвм375. Опалубочный чертеж и армирование 1.23-КР-1.4.004 Колонны КЛвм205-КЛвм375. Арматура 1.23-КР-1.4.005 Спецификации и характеристика изделия КЛвм205 1.23-КР-1.4.006 Спецификации и характеристика изделия КЛвм215 1.23-КР-1.4.007 Спецификации и характеристика изделия КЛвм225 1.23-КР-1.4.008 Спецификации и характеристика изделия КЛвм235 1.23-КР-1.4.009 Спецификации и характеристика изделия КЛвм245 1.23-КР-1.4.010 Спецификации и характеристика изделия КЛвм255 1.23-КР-1.4.011 Спецификации и характеристика изделия КЛвм265 1.23-КР-1.4.012 Спецификации и характеристика изделия КЛвм275 1.23-КР-1.4.013 Спецификации и характеристика изделия КЛвм285 1.23-КР-1.4.014 Спецификации и характеристика изделия КЛвм295 1.23-КР-1.4.015 Спецификации и характеристика изделия КЛвм305 1.23-КР-1.4.016 Спецификации и характеристика изделия КЛвм315 1.23-КР-1.4.017 Спецификации и характеристика изделия КЛвм325 1.23-КР-1.4.018 Спецификации и характеристика изделия КЛвм335 1.23-КР-1.4.019 Спецификации и характеристика изделия КЛвм345 1.23-КР-1.4.020 Спецификации и характеристика изделия КЛвм355 1.23-КР-1.4.021 Спецификации и характеристика изделия КЛвм365 1.23-КР-1.4.022 Спецификации и характеристика изделия КЛвм375 1.23-КР-1.4.023 Колонны КЛвм205-КЛвм375. Выборка стали при классе стали А-III 1.23-КР-1.4.024 Закладные детали |
| Разработан: | ЛенжилНИИпроект |
| Утверждён: | ЛенжилНИИпроект |


























