Скачать Серия 1.135 КР-1 Выпуск 3. Витрины деревянные для встроенных учреждений различного назначения в домах капитального ремонта. Рабочие чертежи деревянных витринДата актуализации: 01.01.2021
|
| Обозначение: | Серия 1.135 КР-1 |
| Обозначение англ: | Series 1.135 КР-1 |
| Статус: | не действует |
| Название рус.: | Выпуск 3. Витрины деревянные для встроенных учреждений различного назначения в домах капитального ремонта. Рабочие чертежи деревянных витрин |
| Дата добавления в базу: | 01.09.2013 |
| Дата актуализации: | 01.01.2021 |
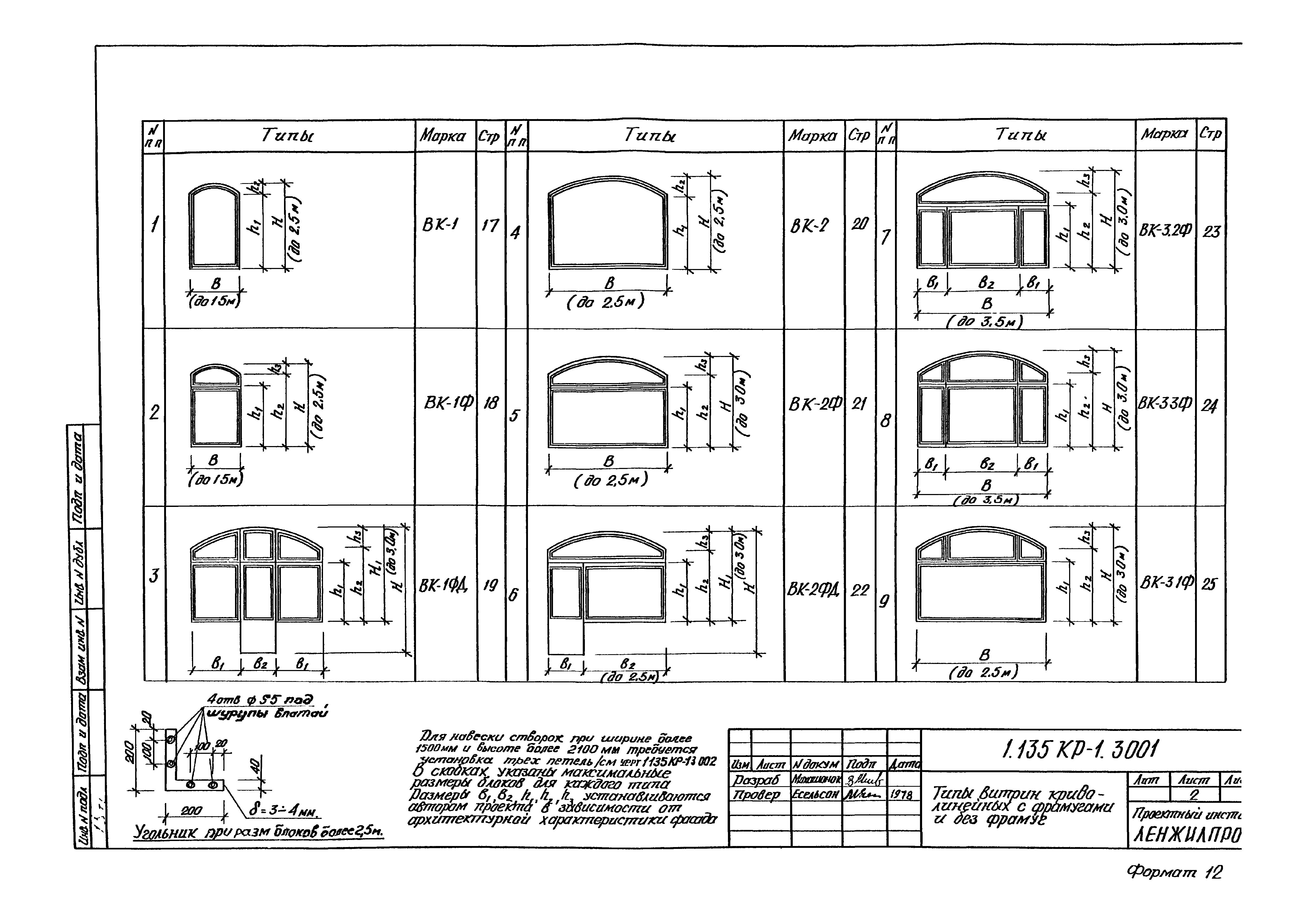
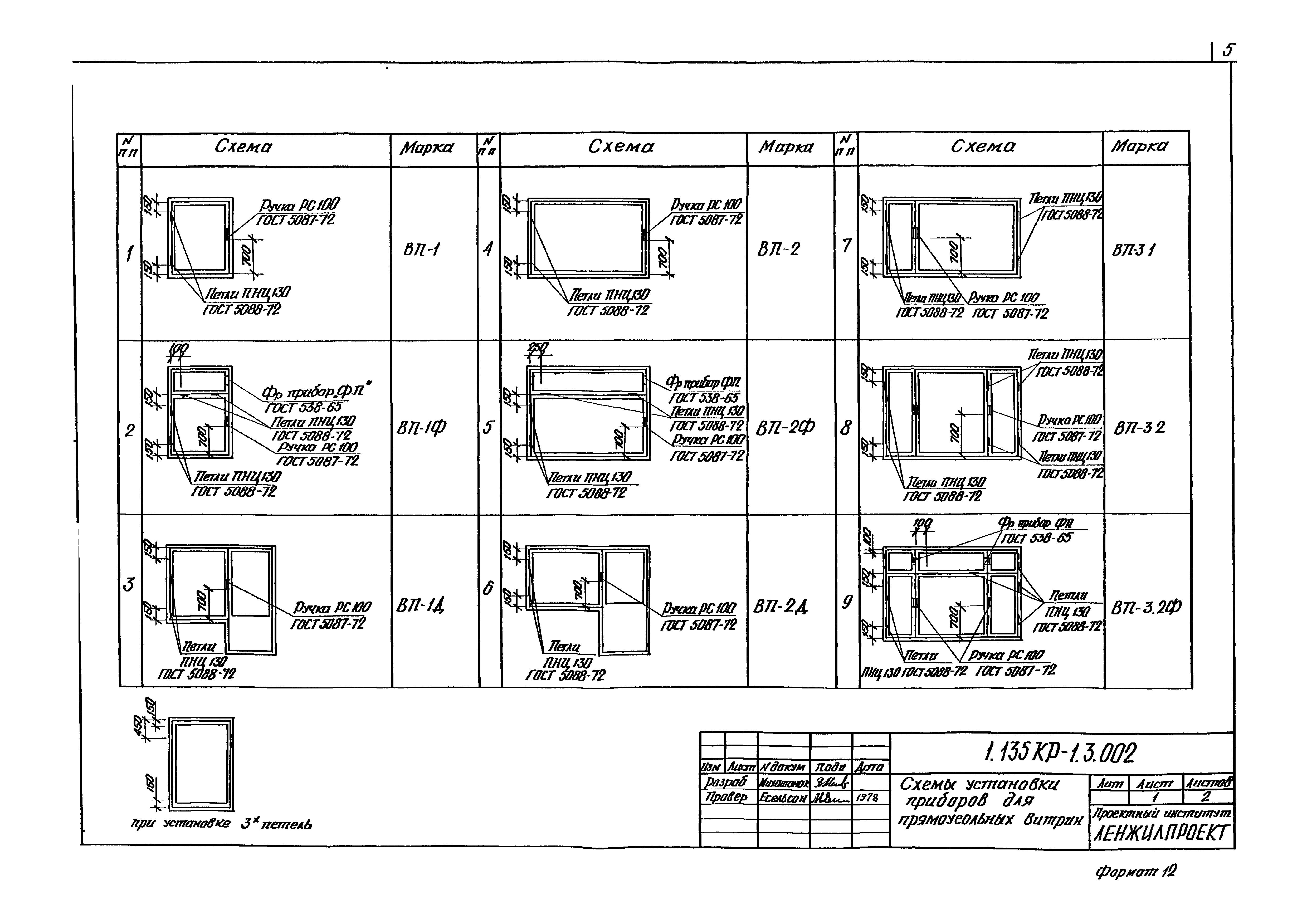
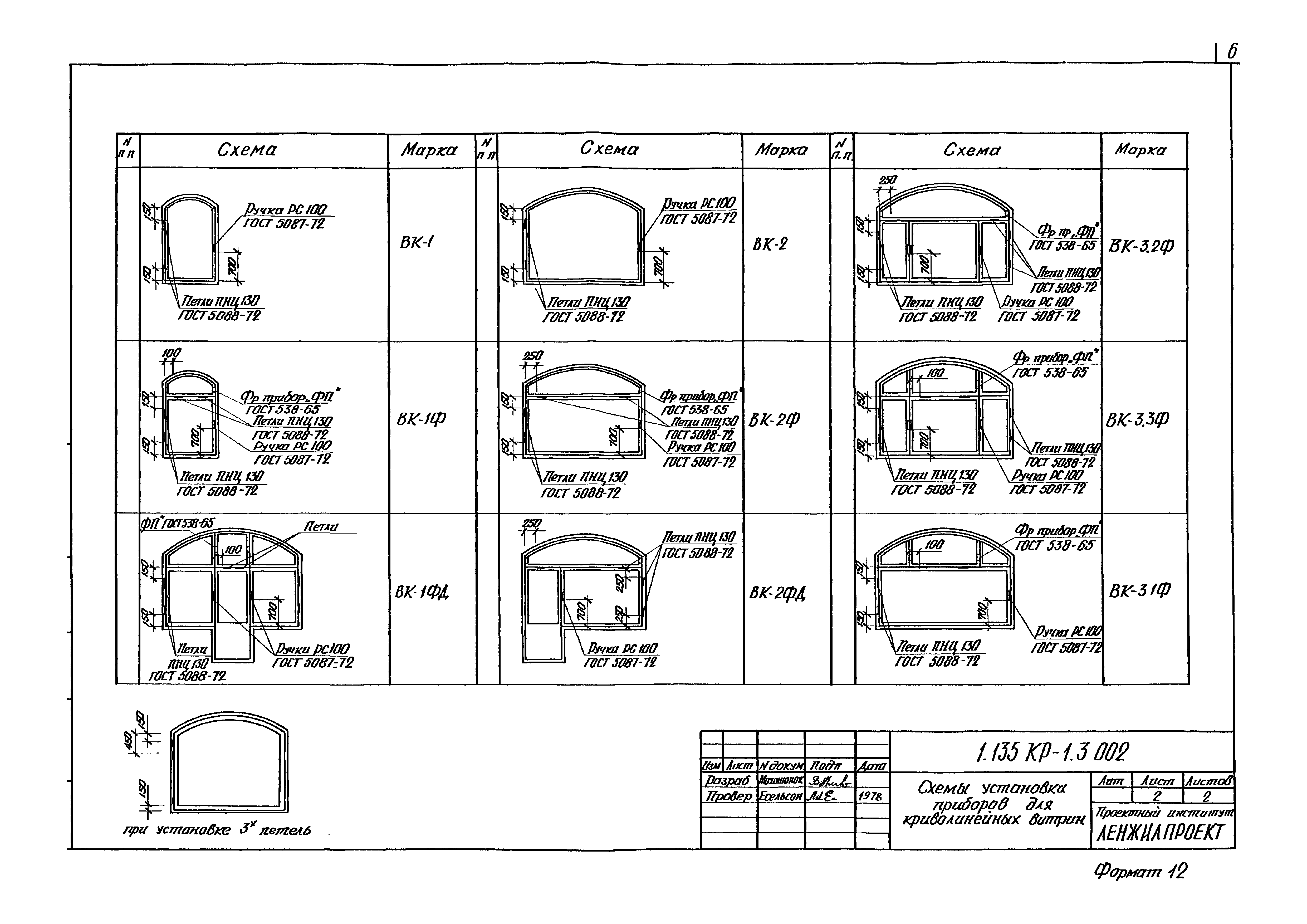
| Оглавление: | 1.135-КР-1.3.000 Содержание чертежей 1.135-КР-1.4.000 Пояснительная записка 1.135-КР-1.3.001 Типы прямоугольных витрин 1-9 1.135-КР-1.3.002 Схемы установки приборов для прямоугольных витрин 1.135-КР-1.3.003 Лист 1 Витрина прямоугольная ВП-1 1.135-КР-1.3.004 Лист 1 Витрина прямоугольная ВП-1Ф 1.135-КР-1.3.005 Лист 1 Витрина прямоугольная ВП-1Д 1.135-КР-1.3.006 Лист 1 Витрина прямоугольная ВП-2 1.135-КР-1.3.007 Лист 1 Витрина прямоугольная ВП-2Ф 1.135-КР-1.3.008 Лист 1 Витрина прямоугольная ВП-2Д 1.135-КР-1.3.009 Лист 1 Витрина прямоугольная ВП-3.1 1.135-КР-1.3.010 Лист 1 Витрина прямоугольная ВП-3.2 1.135-КР-1.3.011 Лист 1 Витрина прямоугольная ВП-3.2Ф 1.135-КР-1.3.011 Лист 2 Узлы 1.135-КР-1.3.012 Лист 1 Витрина криволинейная ВК-1 1.135-КР-1.3.013 Лист 1 Витрина криволинейная ВК-1Ф 1.135-КР-1.3.014 Лист 1 Витрина криволинейная ВК-1ФД 1.135-КР-1.3.015 Лист 1 Витрина криволинейная ВК-2 1.135-КР-1.3.016 Лист 1 Витрина криволинейная ВК-2Ф 1.135-КР-1.3.017 Лист 1 Витрина криволинейная ВК-2ФД 1.135-КР-1.3.018 Лист 1 Витрина криволинейная ВК-3.2Ф 1.135-КР-1.3.019 Лист 1 Витрина криволинейная ВК-3.3Ф 1.135-КР-1.3.020 Лист 1 Витрина криволинейная ВК-3.1Ф 1.135-КР-1.3.003 - 0.020 Лист 2 Узлы 1.135-КР-1.3.003 - 0.020 Лист 3 Узлы 1.135-КР-1.3.003 - 0.020 Лист 4 Узлы 1.135-КР-1.3.003 - 0.020 Лист 5 Узлы 1.135-КР-1.3.003 - 0.020 Лист 6 Узлы 1.135-КР-1.3.003 - 0.020 Лист 7 Узлы 1.135-КР-1.3.003 - 0.020 Лист 8 Узлы 1.135-КР-1.3.003 - 0.020 Лист 9 Узлы |
| Разработан: | ЛенжилНИИпроект |
| Утверждён: | 22.12.1977 ЛенжилНИИпроект |


































