Скачать Серия 1.135 КР-1 Выпуск 4. Витрины металлические для встроенных учреждений различного назначения в домах капитального ремонта. Рабочие чертежи металлических витринДата актуализации: 01.01.2021
|
| Обозначение: | Серия 1.135 КР-1 |
| Обозначение англ: | Series 1.135 КР-1 |
| Статус: | не действует |
| Название рус.: | Выпуск 4. Витрины металлические для встроенных учреждений различного назначения в домах капитального ремонта. Рабочие чертежи металлических витрин |
| Дата добавления в базу: | 01.09.2013 |
| Дата актуализации: | 01.01.2021 |
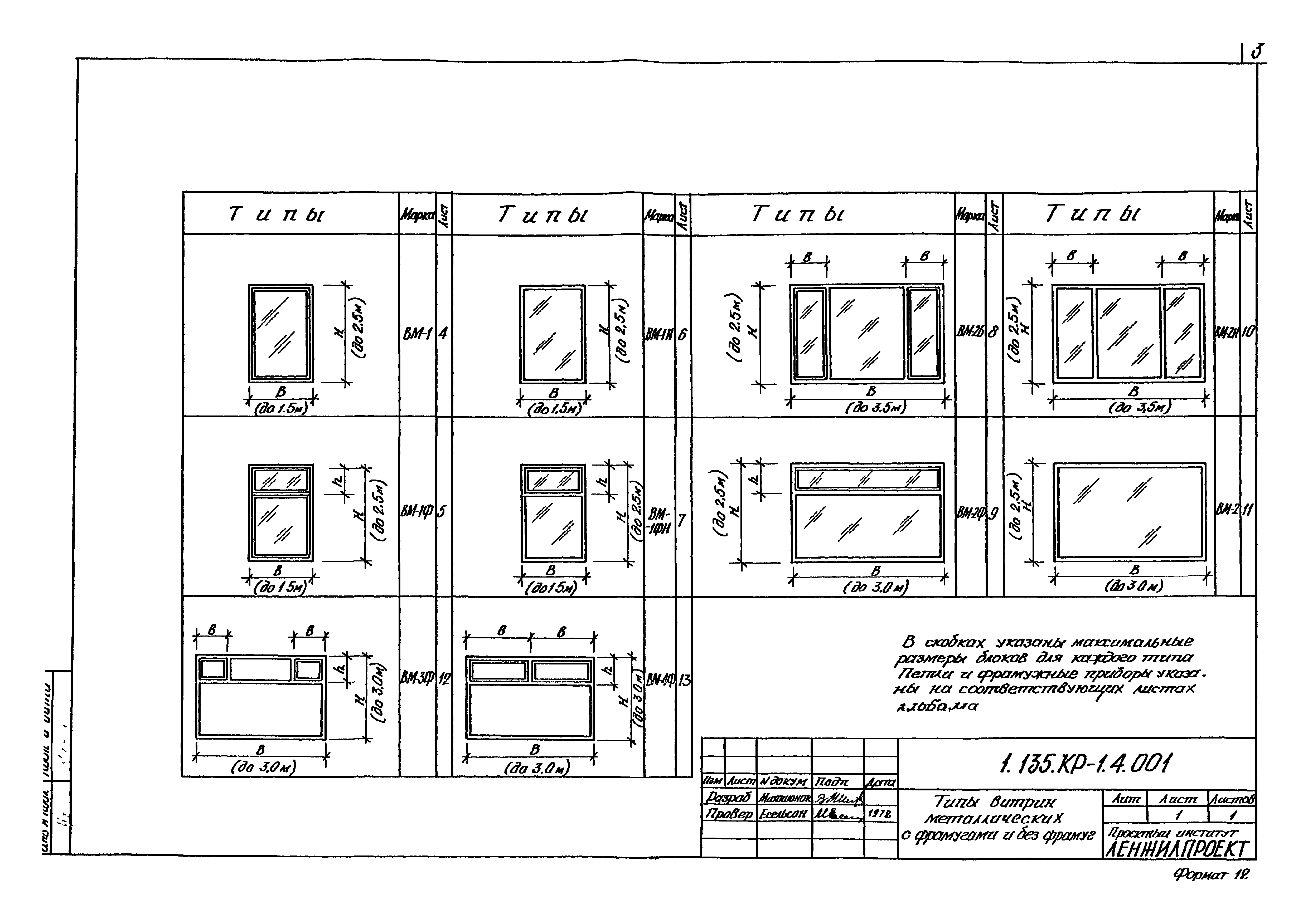
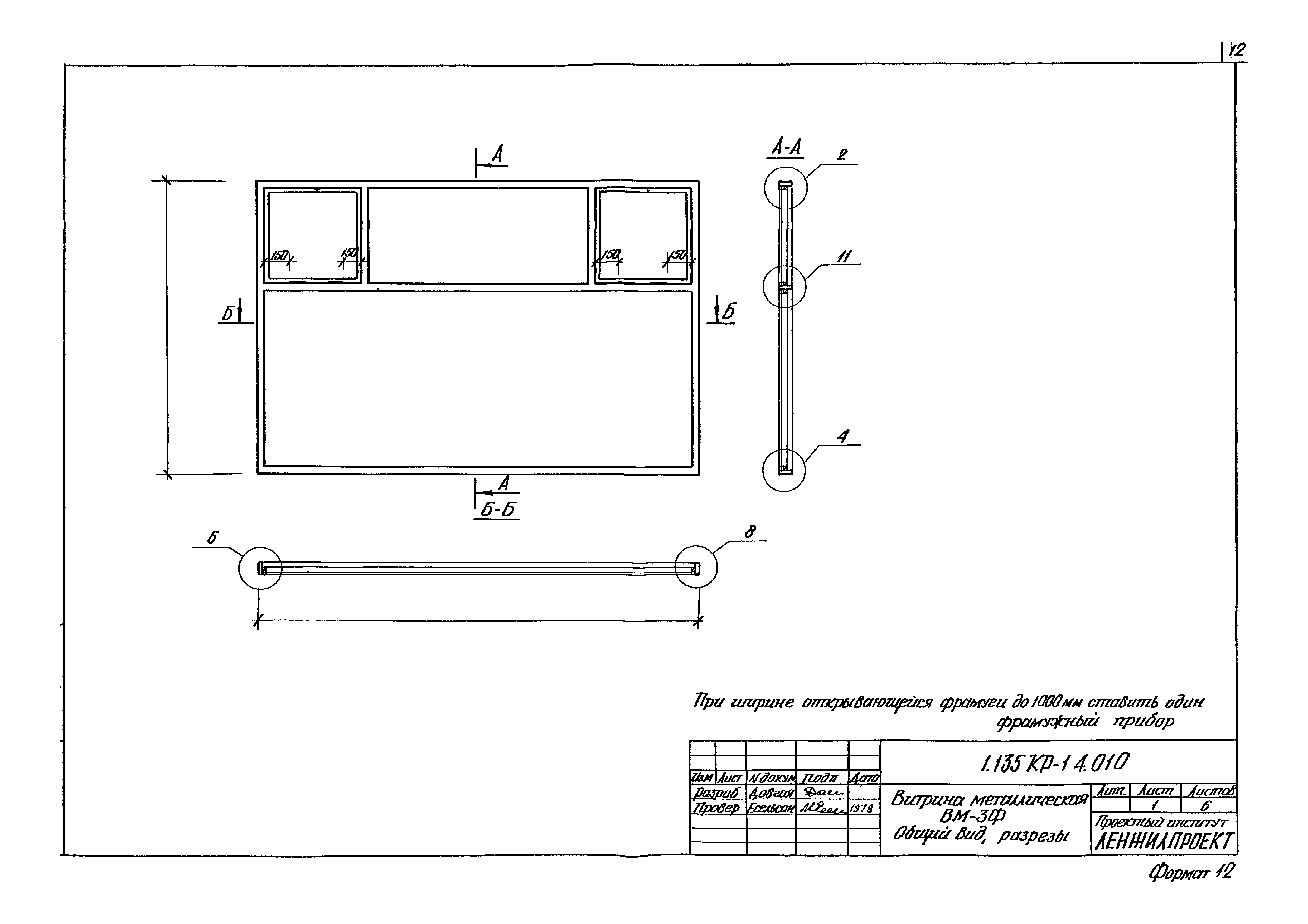
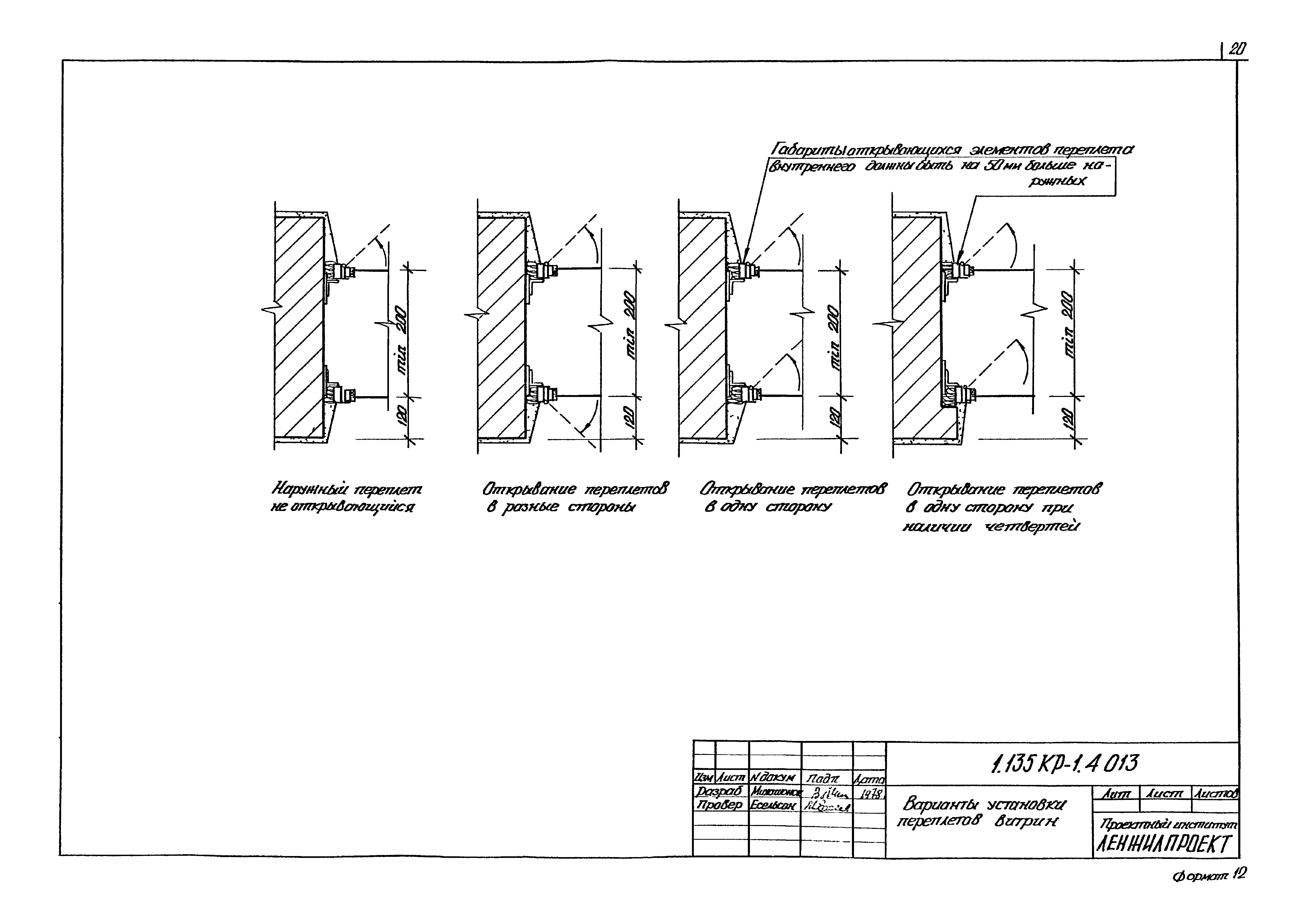
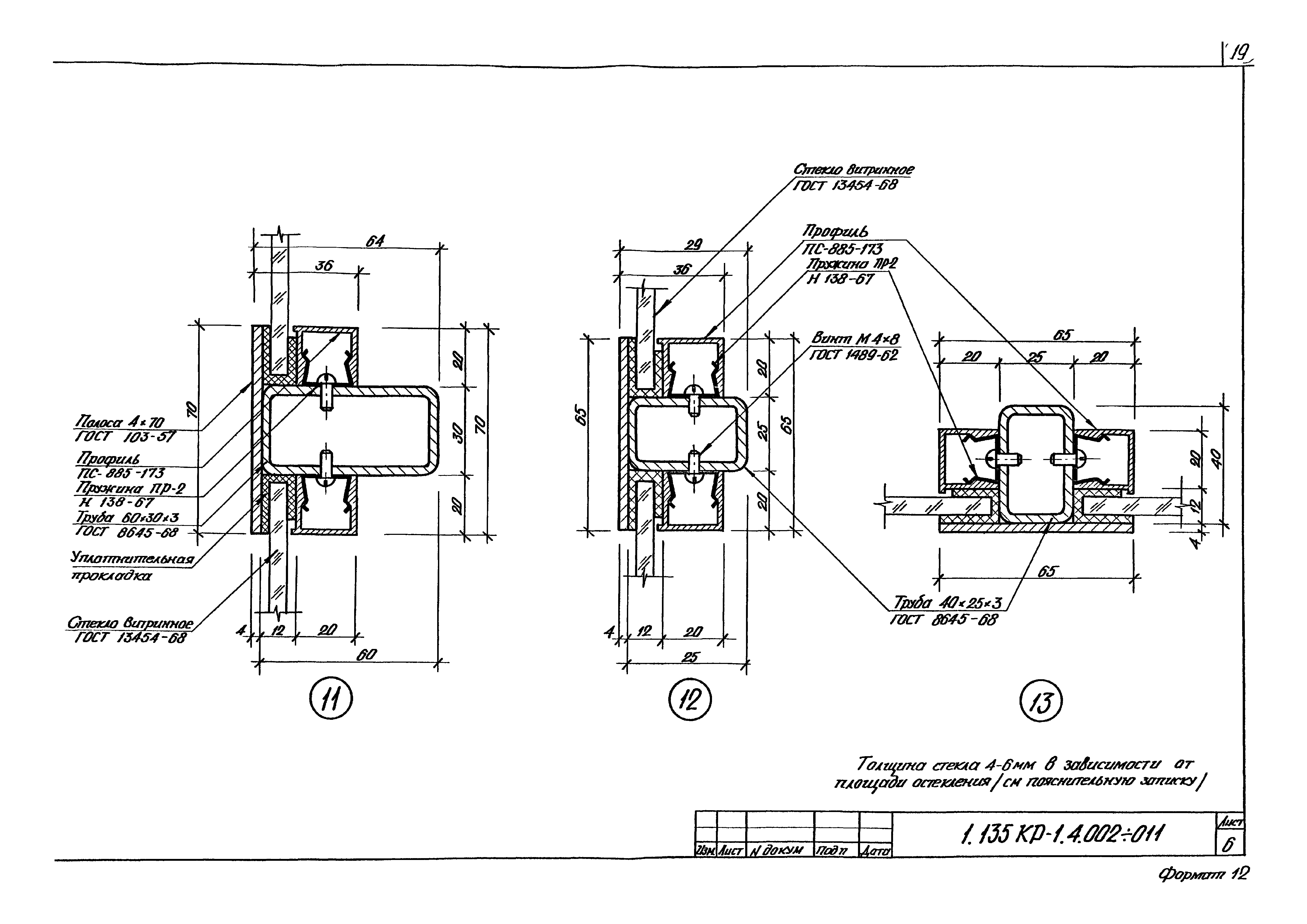
| Оглавление: | 1.135-КР-1.4.000 Содержание чертежей 1.135-КР-1.4.000.А Пояснительная записка 1.135-КР-1.4.001 Типы витрин 1.135-КР-1.4.002 Витрина ВМ-1 1.135-КР-1.4.003 Витрина ВМ-1Ф 1.135-КР-1.4.004 Витрина ВМ-1Н 1.135-КР-1.4.005 Витрина ВМ-1ФН 1.135-КР-1.4.006 Витрина ВМ-2Б 1.135-КР-1.4.007 Витрина ВМ-2Ф 1.135-КР-1.4.008 Витрина ВМ-2Н 1.135-КР-1.4.009 Витрина ВМ-2 1.135-КР-1.4.010 Витрина ВМ-3Ф 1.135-КР-1.4.011 Витрина ВМ-4Ф 1.135-КР-1.4.012 Крепление коробок витрин. Узлы 1.135-КР-1.4.002÷011 Лист 1 Узлы 1,3 1.135-КР-1.4.002÷011 Лист 2 Узлы 2,4,6,8 1.135-КР-1.4.002÷011 Лист 3 Узлы 5,7 1.135-КР-1.4.002÷011 Лист 4 Узлы 9,10 1.135-КР-1.4.002÷011 Лист 5 Узлы 11,12,13 1.135-КР-1.4.013 Варианты установки переплетов витрин |
| Разработан: | ЛенжилНИИпроект |
| Утверждён: | 22.12.1977 ЛенжилНИИпроект |





















