Скачать Серия 320-КР-1 Выпуск 1. Часть 1. Емкость контейнеров с пищевыми отходами - 100 л. Контейнеров с бытовым мусором - 600 л. Архитектурно-строительные чертежиДата актуализации: 01.01.2021
|
| Обозначение: | Серия 320-КР-1 |
| Обозначение англ: | Series 320-КР-1 |
| Статус: | действует |
| Название рус.: | Выпуск 1. Часть 1. Емкость контейнеров с пищевыми отходами - 100 л. Контейнеров с бытовым мусором - 600 л. Архитектурно-строительные чертежи |
| Дата добавления в базу: | 01.09.2013 |
| Дата актуализации: | 01.01.2021 |
| Дата введения: | 01.01.1982 |
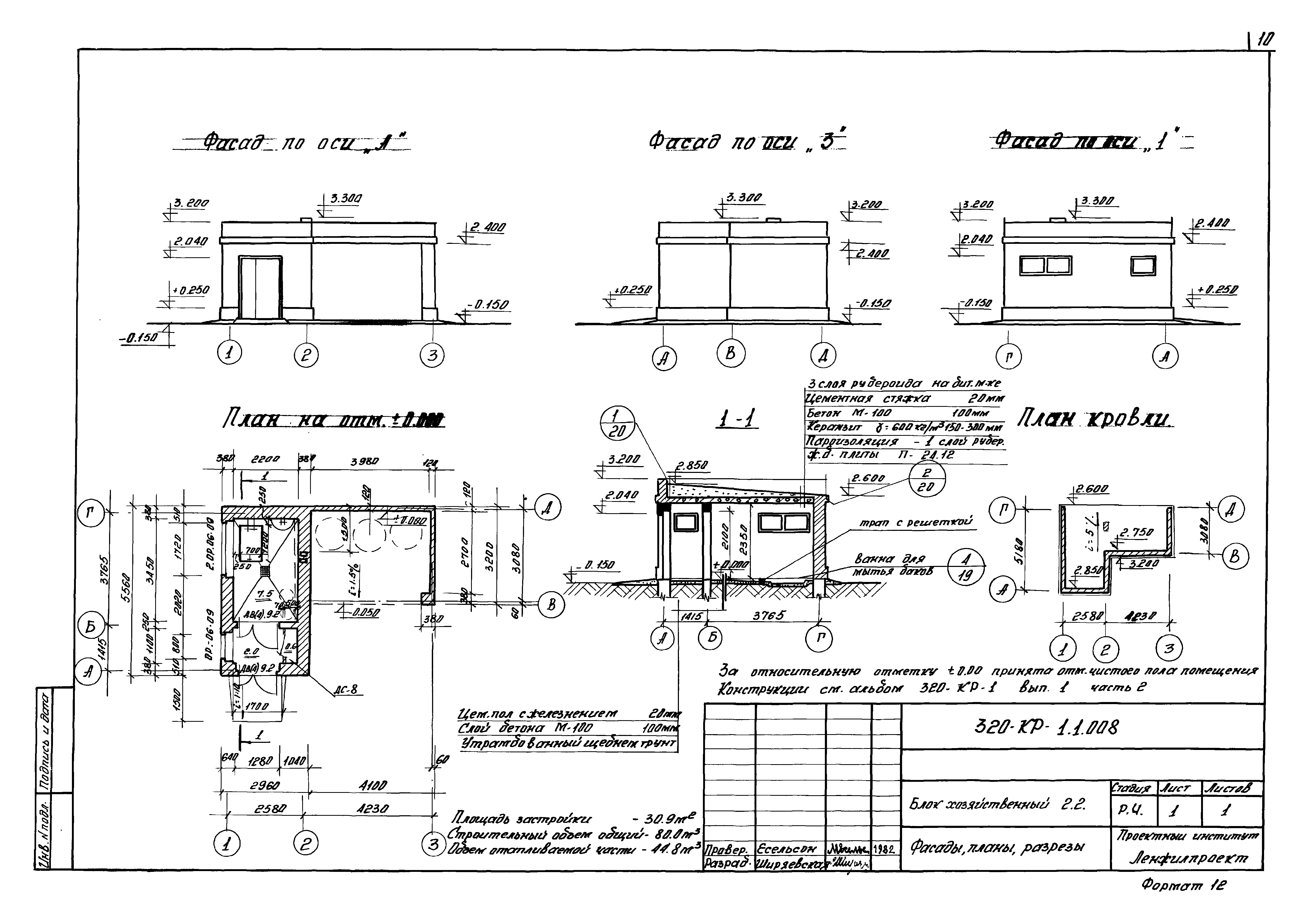
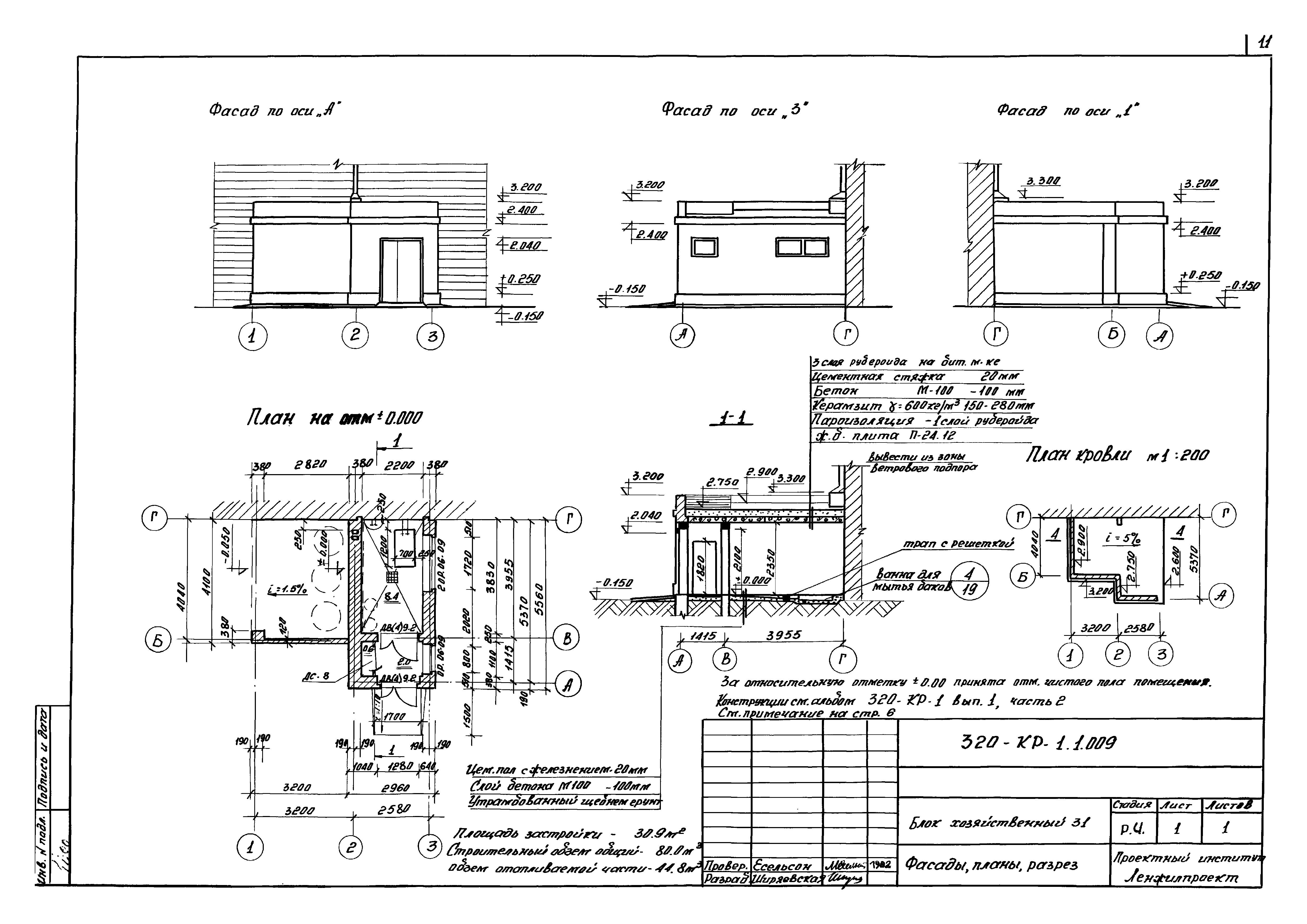
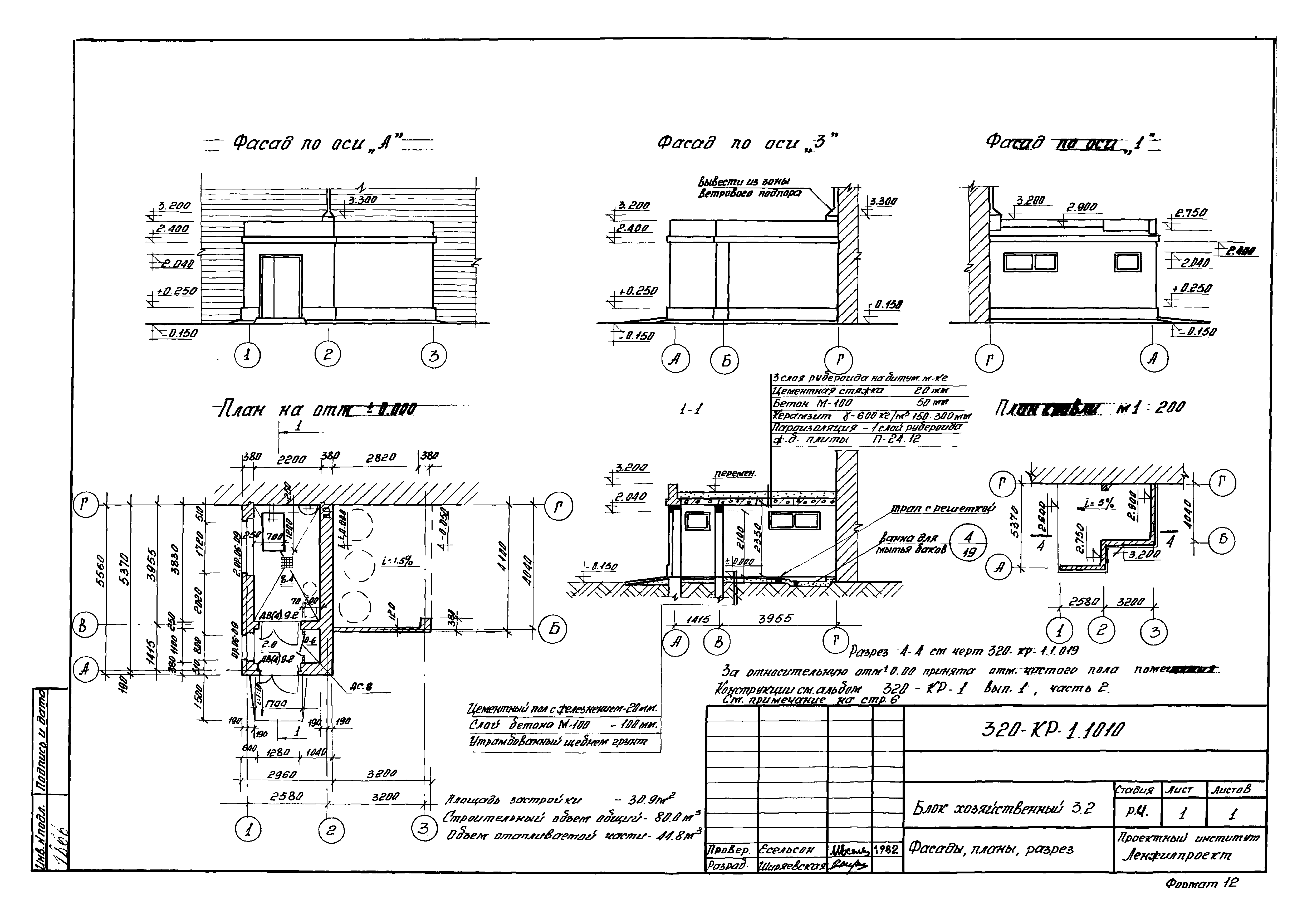
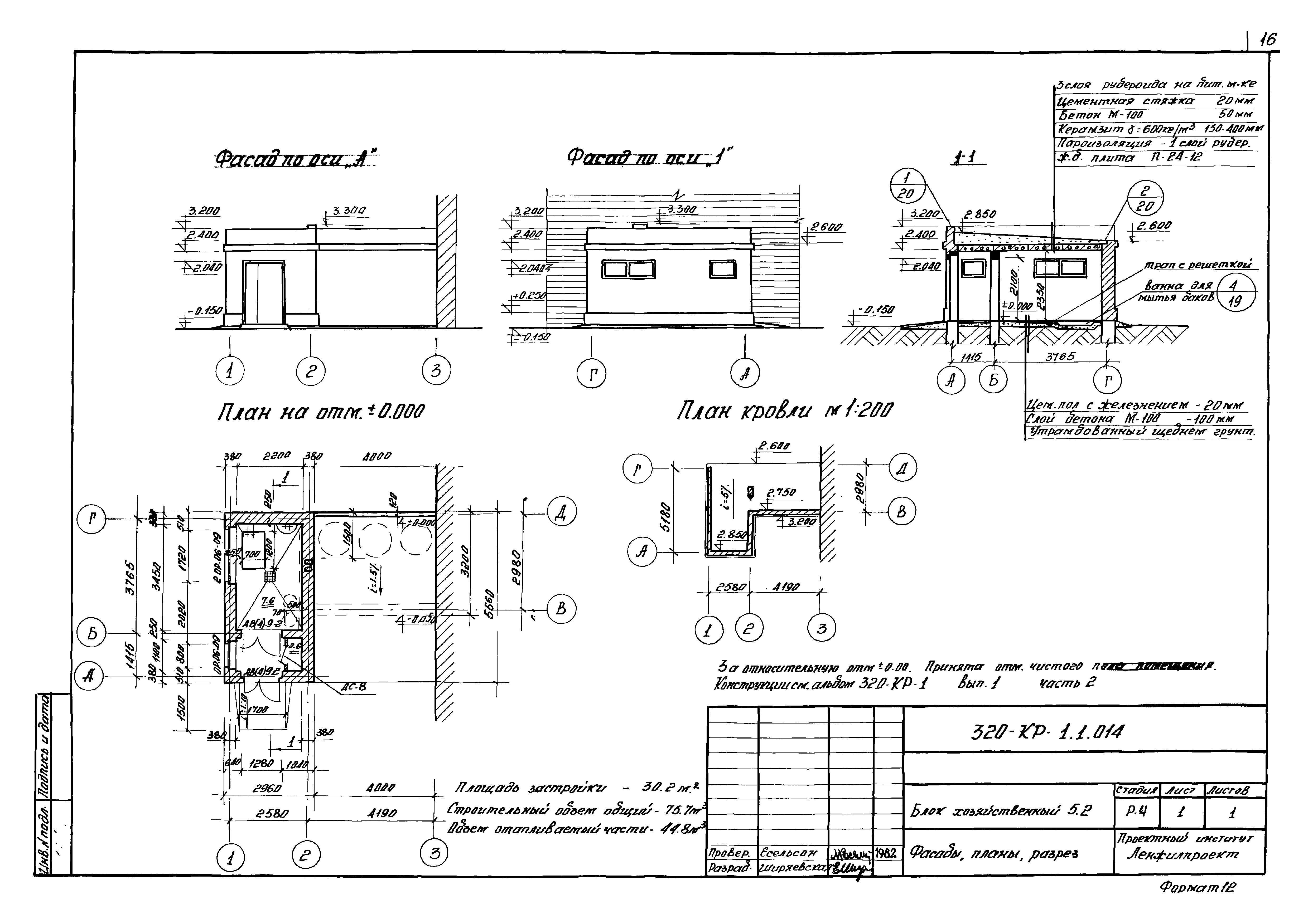
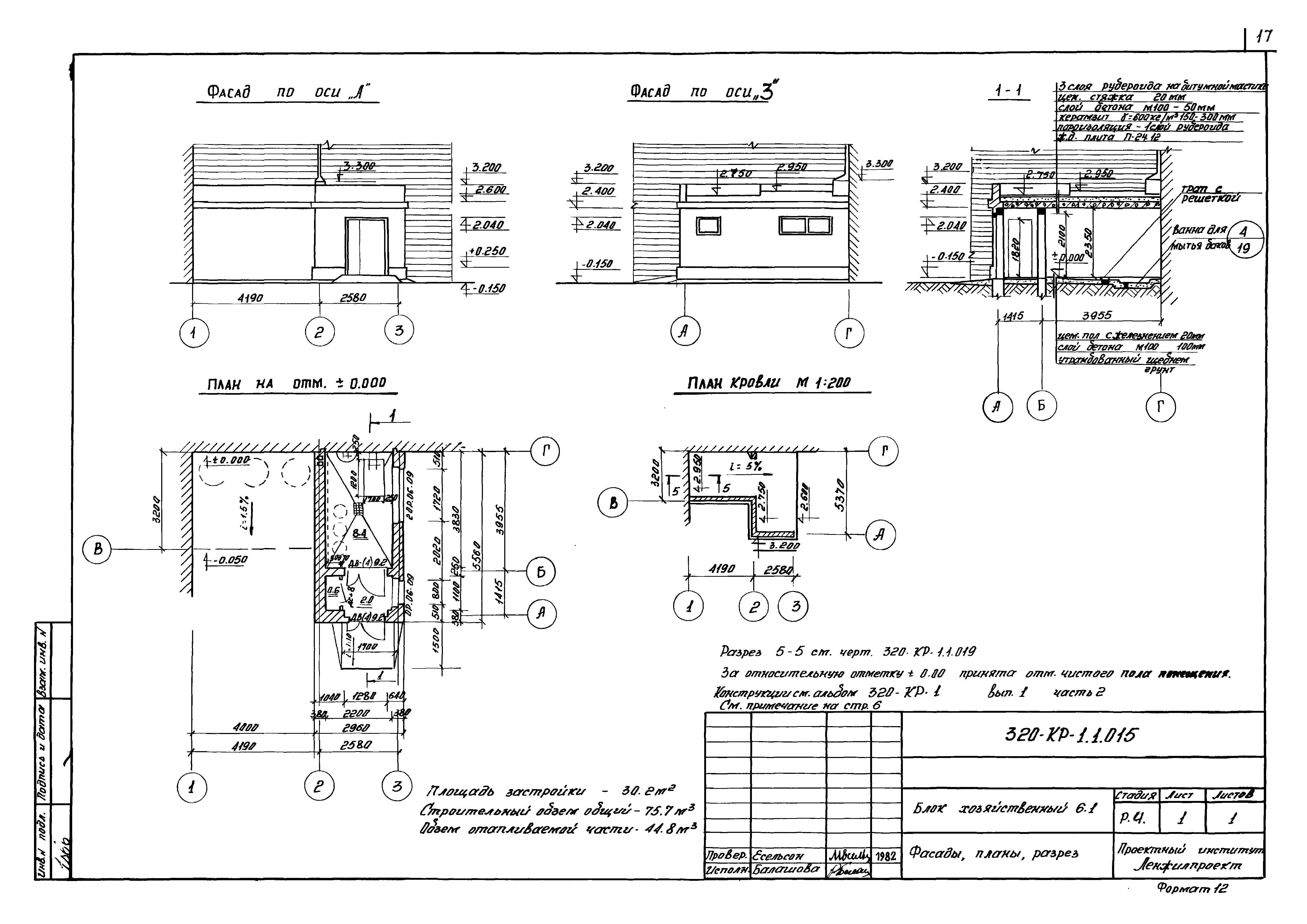
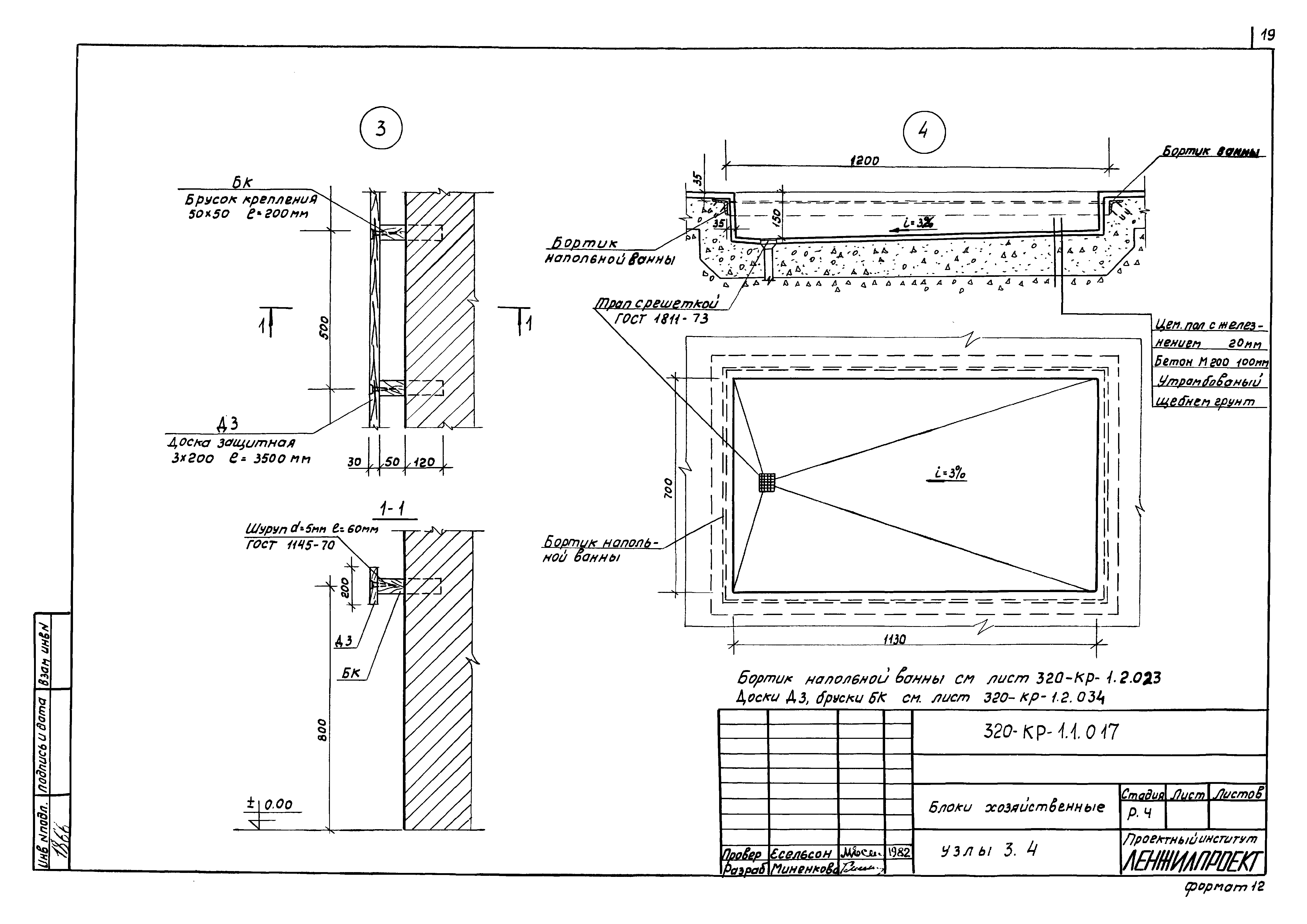
| Оглавление: | 320-КР-1.1.001 Содержание 320-КР-1.1.002 Пояснительная записка 320-КР-1.1.003 Расчет количества баков для бытового мусора пищевых отходов в зависимости от прожив. Населения 320-КР-1.1.004 Варианты блоков хозяйственных 320-КР-1.1.005 Блок хозяйственный 1.1. Фасады, планы, разрез 320-КР-1.1.006 Блок хозяйственный 1.2. Фасады, планы, разрез 320-КР-1.1.007 Блок хозяйственный 2.1. Фасады, планы, разрез 320-КР-1.1.008 Блок хозяйственный 2.2. Фасады, планы, разрез 320-КР-1.1.009 Блок хозяйственный 3.1. Фасады, планы, разрез 320-КР-1.1.010 Блок хозяйственный 3.2. Фасады, планы, разрез 320-КР-1.1.011 Блок хозяйственный 4.1. Фасады, планы, разрез 320-КР-1.1.012 Блок хозяйственный 4.2. Фасады, планы, разрез 320-КР-1.1.013 Блок хозяйственный 5.1. Фасады, планы, разрез 320-КР-1.1.014 Блок хозяйственный 5.2. Фасады, планы, разрез 320-КР-1.1.015 Блок хозяйственный 6.1. Фасады, планы, разрез 320-КР-1.1.016 Блок хозяйственный 6.2. Фасады, планы, разрез 320-КР-1.1.017 Блоки хозяйственные. Узлы 3,4 320-КР-1.1.018 Блоки хозяйственные. Узлы 1,2. Разрезы 2-2,3-3 320-КР-1.1.019 Блоки хозяйственные. Разрезы 4-4,5-5 |
| Разработан: | ЛенжилНИИпроект |
| Утверждён: | ЛенжилНИИпроект |




















