Скачать Типовой проект 705-1-209.86 Альбом II. Строительные изделияДата актуализации: 01.01.2021
|
| Обозначение: | Типовой проект 705-1-209.86 |
| Обозначение англ: | 705-1-209.86 |
| Статус: | действует |
| Название рус.: | Альбом II. Строительные изделия |
| Дата добавления в базу: | 01.09.2013 |
| Дата актуализации: | 01.01.2021 |
| Дата введения: | 17.11.1986 |
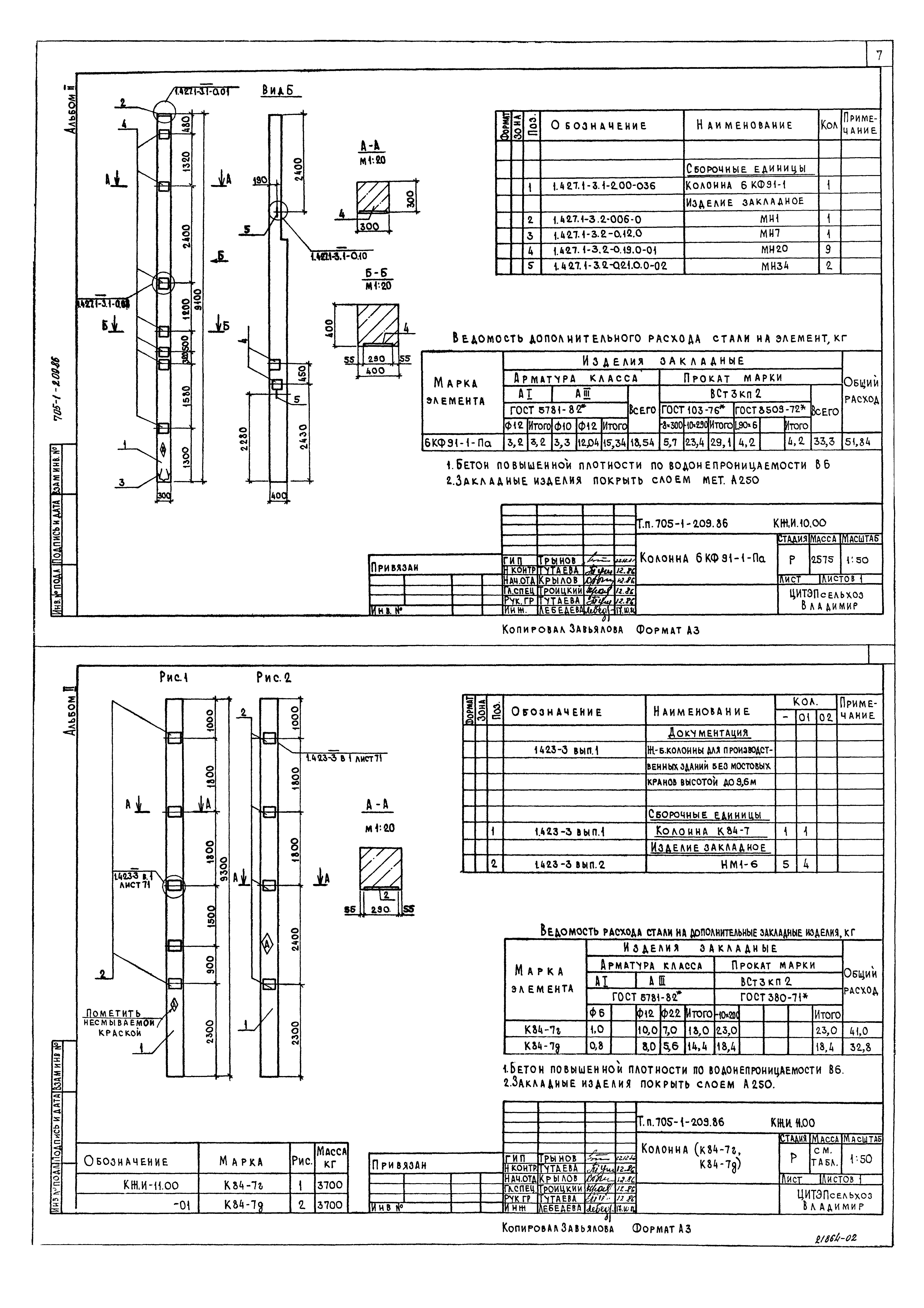
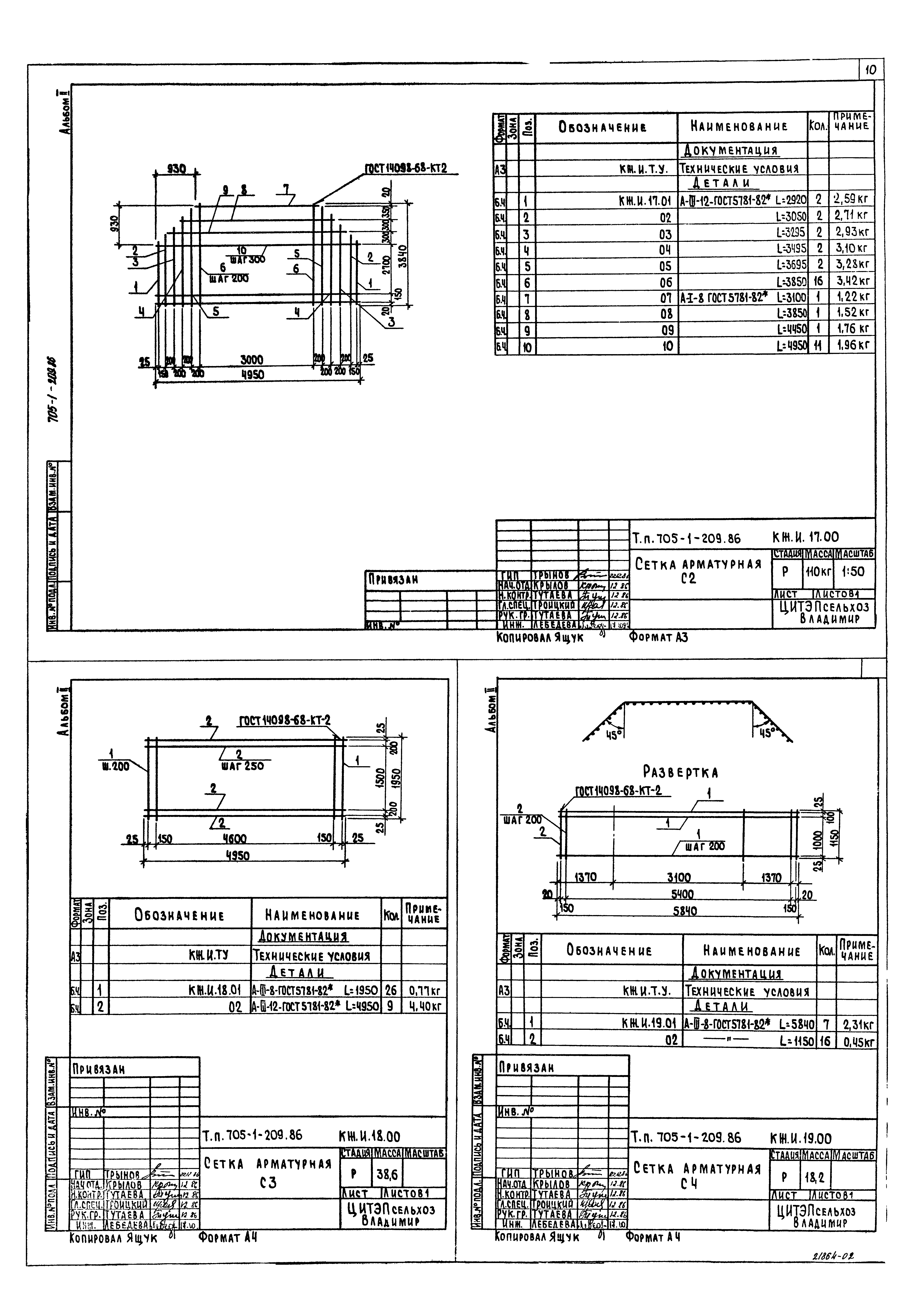
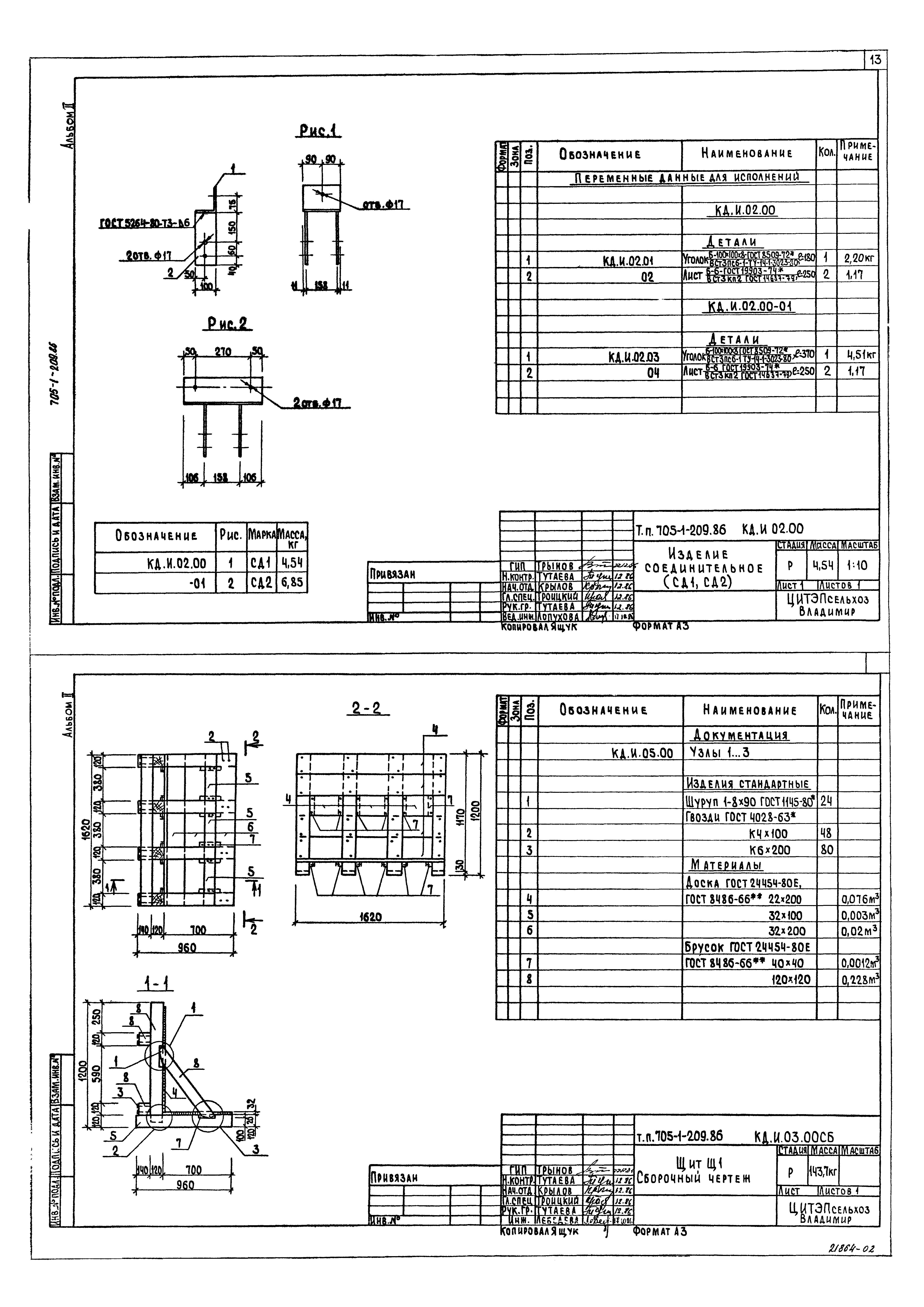
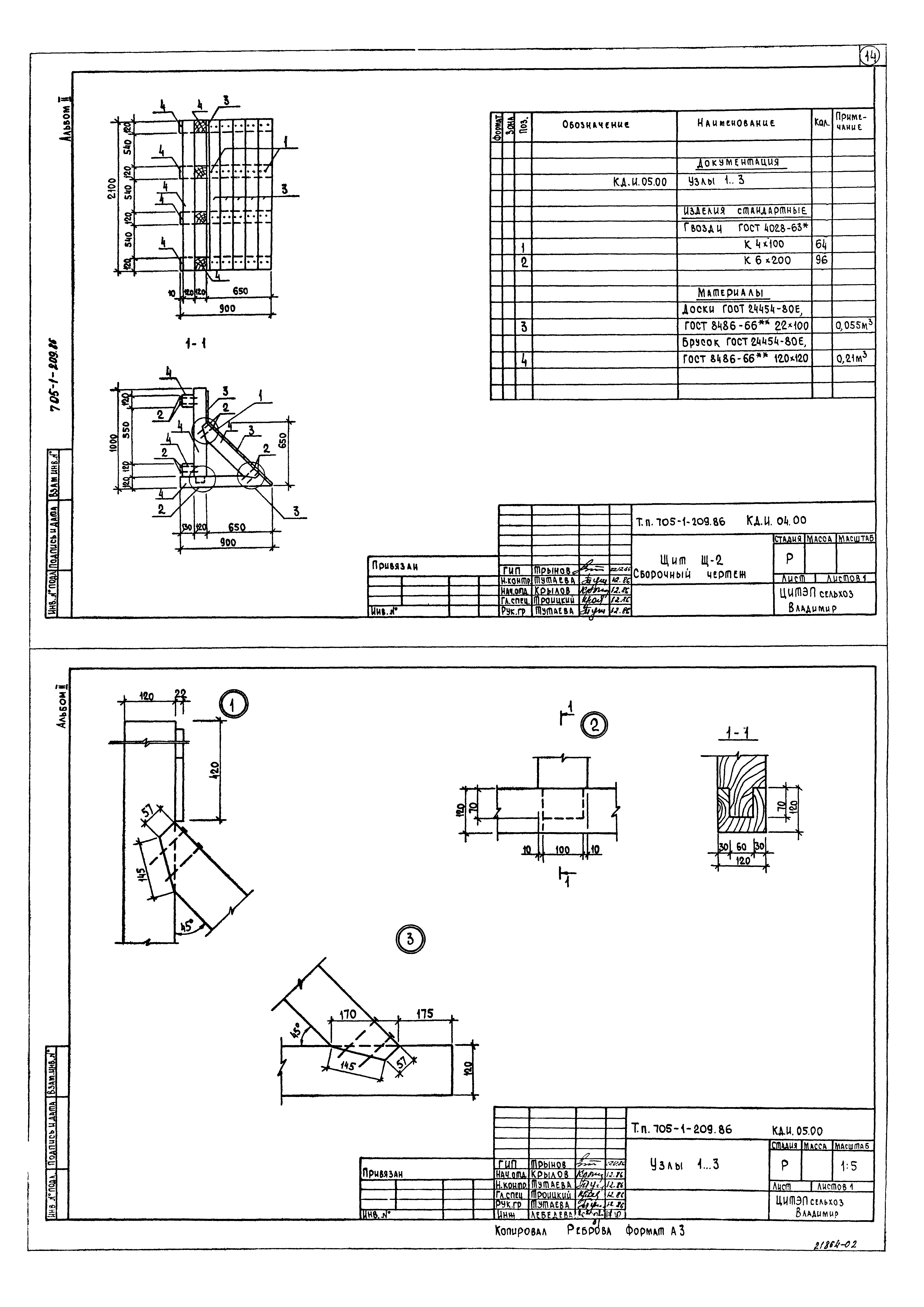
| Оглавление: | ТП 705-1-209.86-КЖ.И.00.00 ТУ Технические условия ТП 705-1-209.86-КЖ.И.01.00 Каркас пространственный КП1 ТП 705-1-209.86-КЖ.И.02.00 Каркас плоский (КР1,КР2) ТП 705-1-209.86-КЖ.И.03.00 Изделие закладное МН1 ТП 705-1-209.86-КЖ.И.04.00 Сетка С1 ТП 705-1-209.86-КЖ.И.05.00 Панель стеновая (ПС1...ПС6) ТП 705-1-209.86-КЖ.И.06.00 Прогон ПК9 ТП 705-1-209.86-КЖ.И.07.00 Изделие закладное МН2 ТП 705-1-209.86-КЖ.И.08.00 Колонна (К84-7а, К84-7б, К84-7в) ТП 705-1-209.86-КЖ.И.09.00 Колонна (К84-7е, К84-7ж) ТП 705-1-209.86-КЖ.И.10.00 Колонна 6КФ91-1-Па ТП 705-1-209.86-КЖ.И.11.00 Колонна (К84-7г, К84-7д) ТП 705-1-209.86-КЖ.И.12.00 Изделие соединительное (СД5, СД6) ТП 705-1-209.86-КЖ.И.13.00 Стойка (СК1...СК3) ТП 705-1-209.86-КЖ.И.14.00 Опорный столик (ТК1,ТК2) ТП 705-1-209.86-КЖ.И.15.00 Тяж (ВС1...ВС3, ВС6) ТП 705-1-209.86-КЖ.И.16.00 Тяж (ВС4, ВС5, ВС7, ВС8) ТП 705-1-209.86-КЖ.И.17.00 Сетка арматурная С2 ТП 705-1-209.86-КЖ.И.18.00 Сетка арматурная С3 ТП 705-1-209.86-КЖ.И.19.00 Сетка арматурная С4 ТП 705-1-209.86-КЖ.И.20.00 Рама РМ1 ТП 705-1-209.86-КЖ.И.21.00 Каркас пространственный КП4 ТП 705-1-209.86-КЖ.И.22.00 Каркас плоский (КР3,КР4) ТП 705-1-209.86-КЖ.И.23.00 Соединительное изделие МС1 ТП 705-1-209.86-КЖ.И.24.00 Балка Б1 ТП 705-1-209.86-КЖ.И.25.00 Изделие закладное МН3 ТП 705-1-209.86-КД.И.01.00 Изделие соединительное (СД3, СД4) ТП 705-1-209.86-КД.И.02.00 Изделие соединительное (СД1, СД2) ТП 705-1-209.86-КД.И.03.00 СБ Щит Щ1. Сборочный чертеж ТП 705-1-209.86-КД.И.04.00 СБ Щит Щ2. Сборочный чертеж ТП 705-1-209.86-КД.И.05.00 Узлы 1...3 |
| Разработан: | ЦИТЭПсельхозпром |
| Утверждён: | 23.10.1986 Госагропром СССР (USSR Gosagroprom 23-ЭТ) |















