Скачать Типовой проект 705-1-212.87 Альбом I. Пояснительная записка. Технология производства. Архитектурные решения. Конструкции железобетонные. Отопление и вентиляция. Силовое электрооборудование. Автоматизация технологии производства. Связь и сигнализацияДата актуализации: 01.01.2021
|
| Обозначение: | Типовой проект 705-1-212.87 |
| Обозначение англ: | 705-1-212.87 |
| Статус: | не определен законодательством |
| Название рус.: | Альбом I. Пояснительная записка. Технология производства. Архитектурные решения. Конструкции железобетонные. Отопление и вентиляция. Силовое электрооборудование. Автоматизация технологии производства. Связь и сигнализация |
| Дата добавления в базу: | 01.09.2013 |
| Дата актуализации: | 01.01.2021 |
| Дата введения: | 14.07.1987 |
| Дата окончания срока действия: | 30.06.2003 |
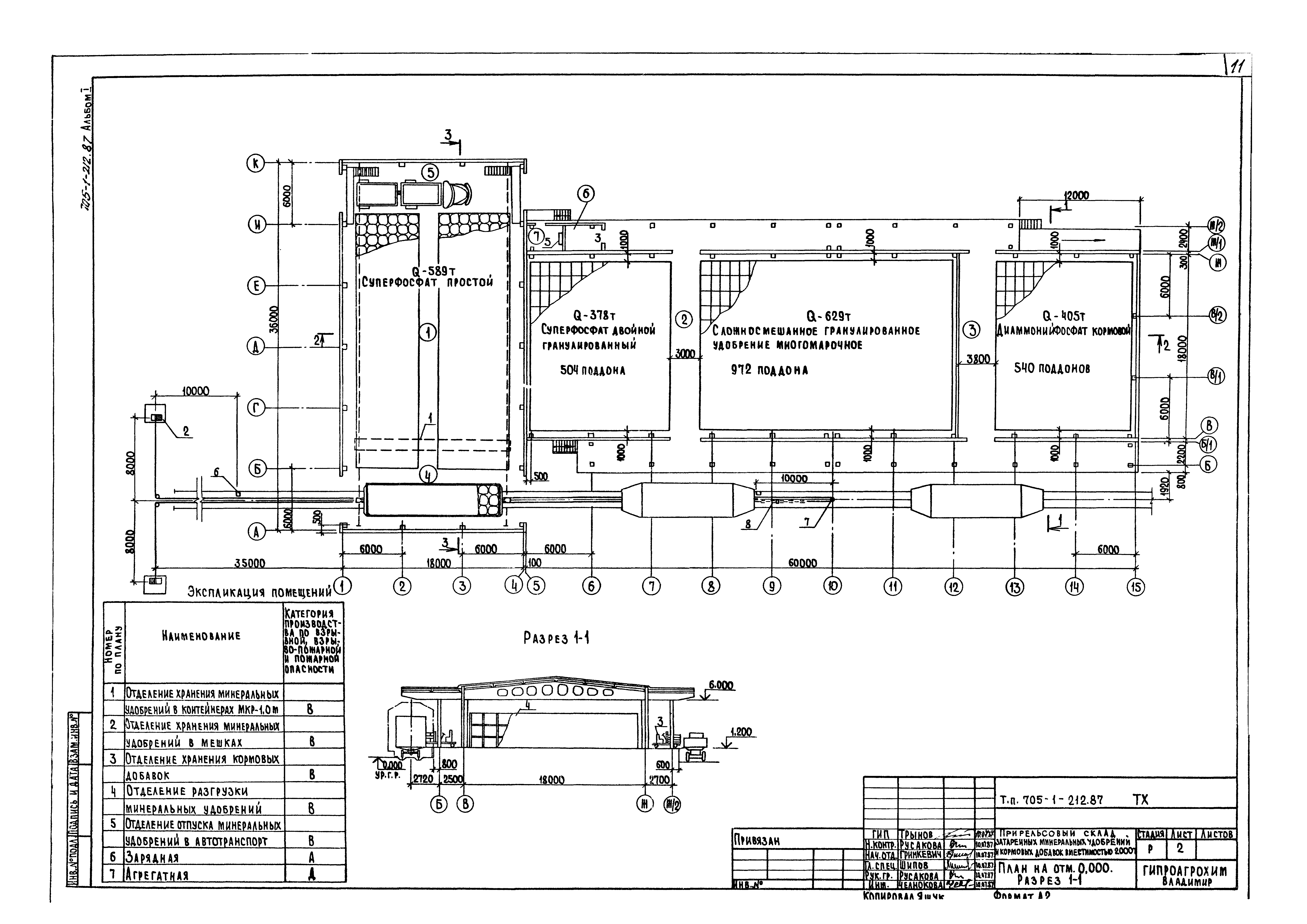
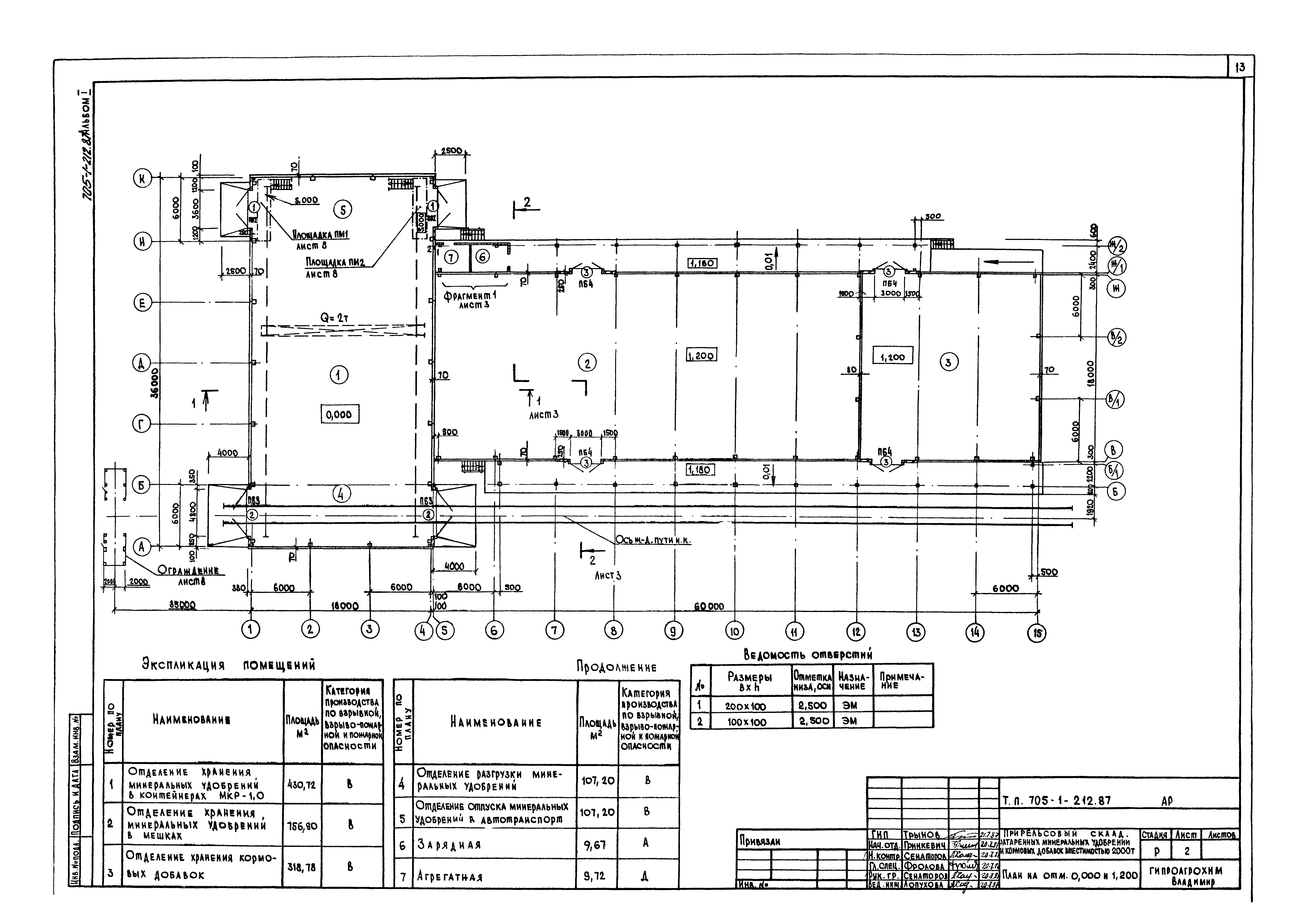
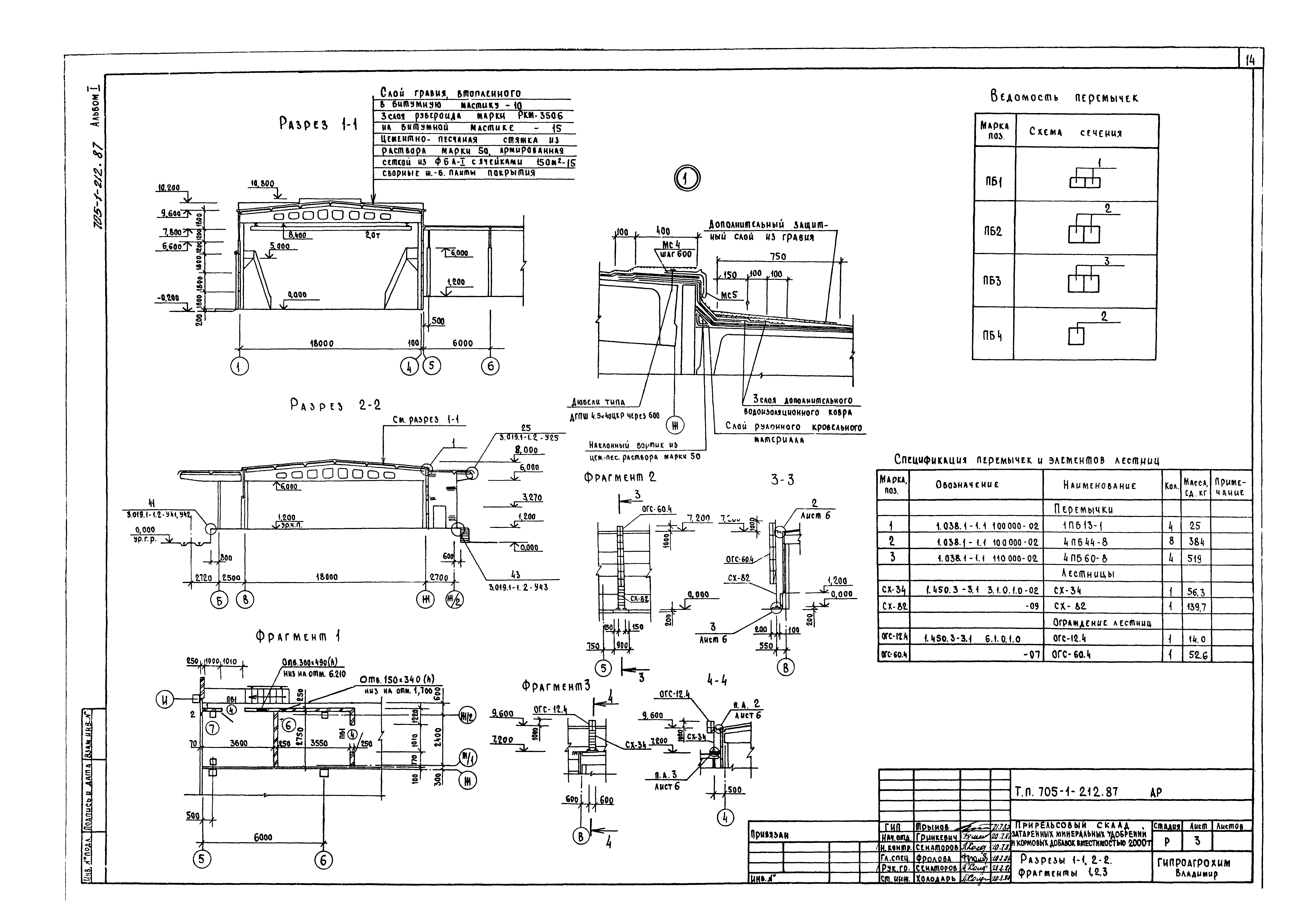
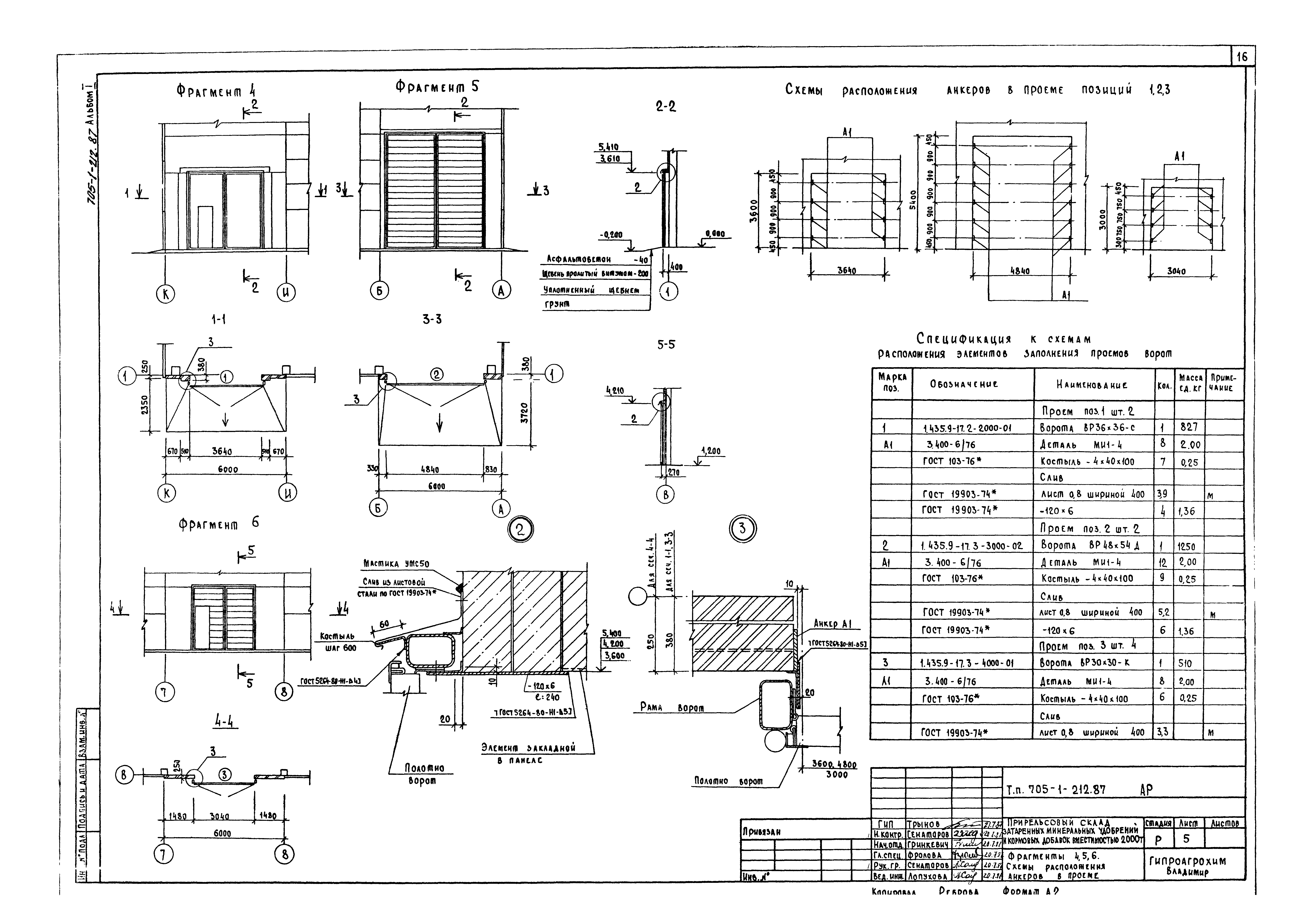
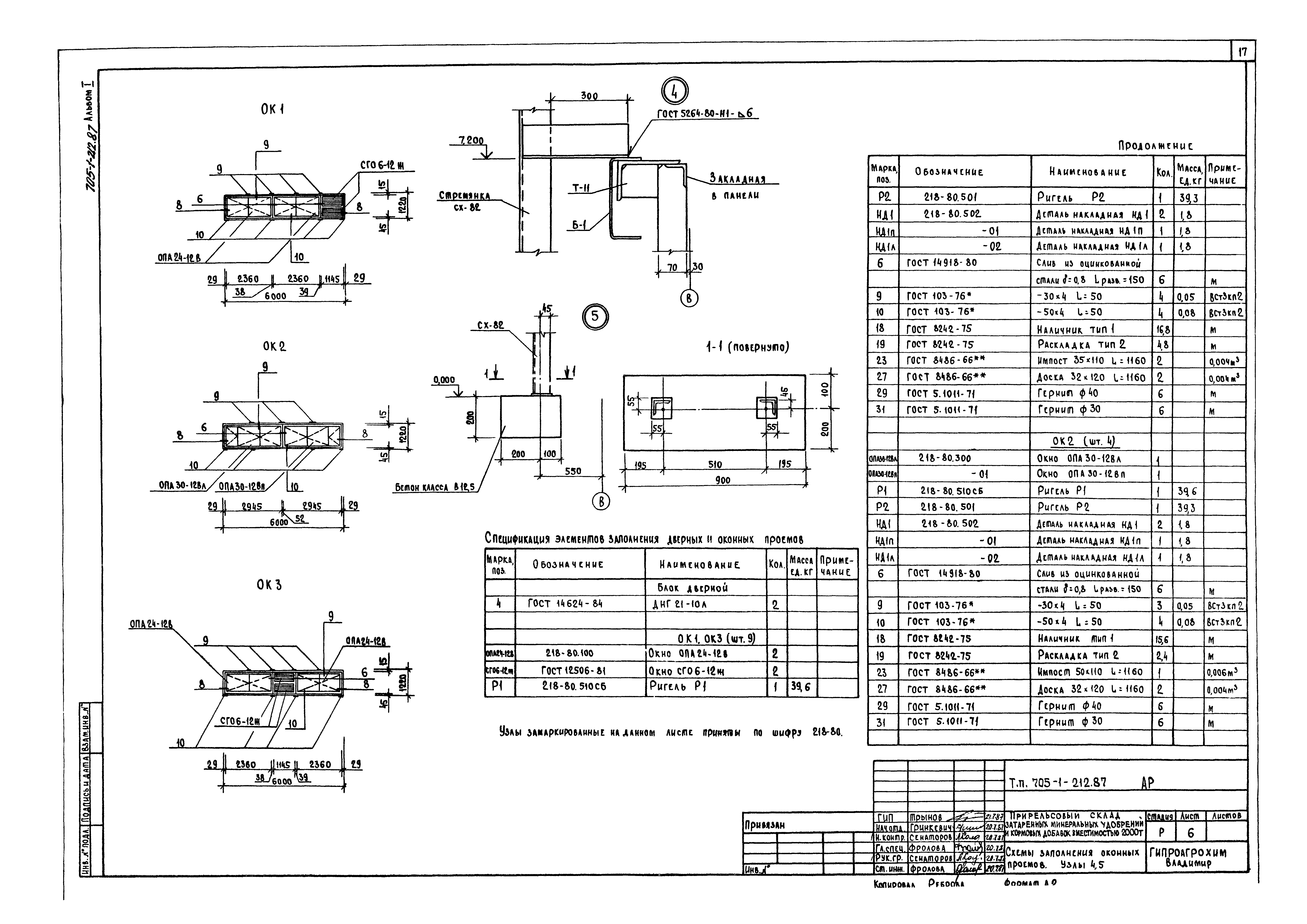
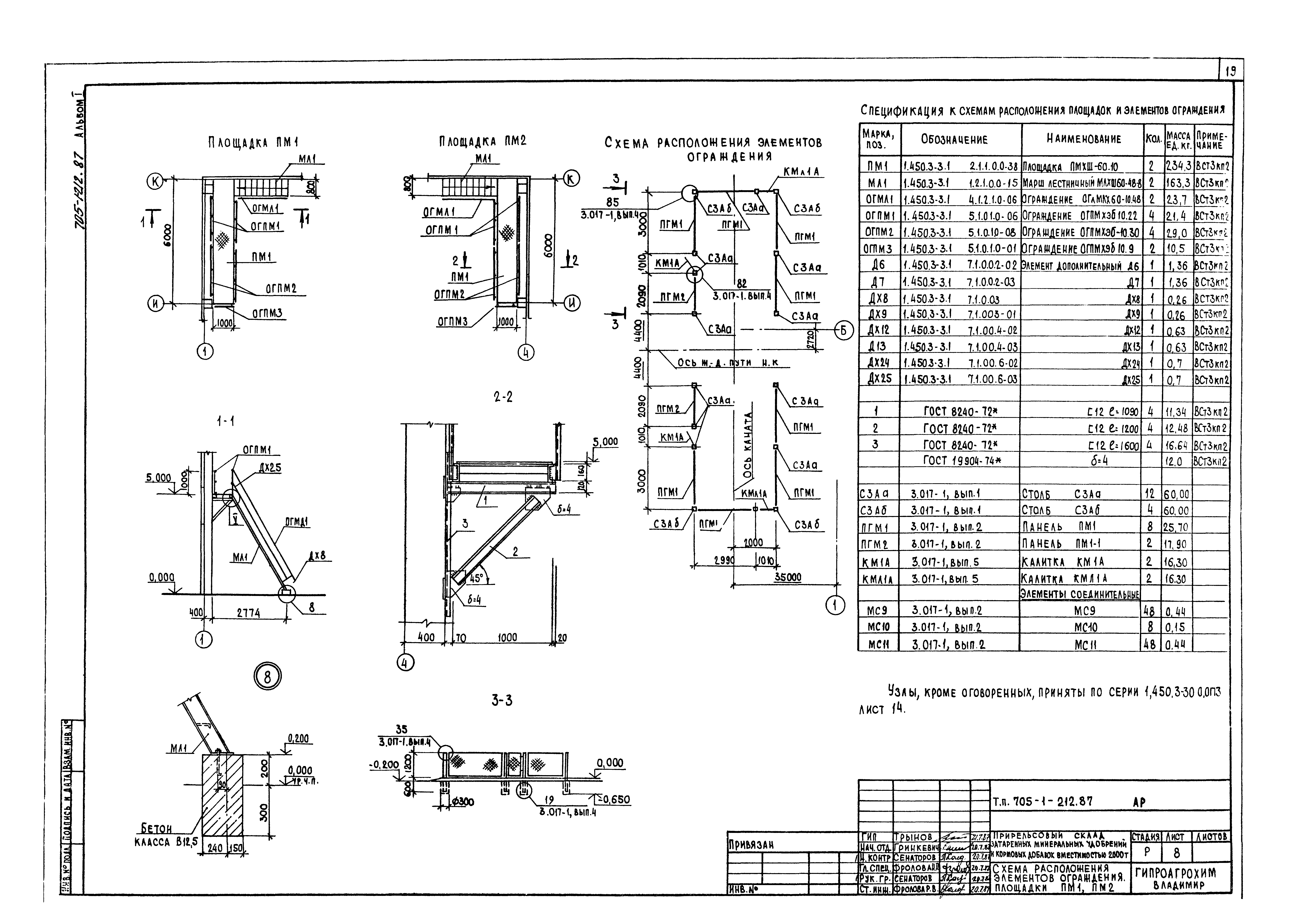
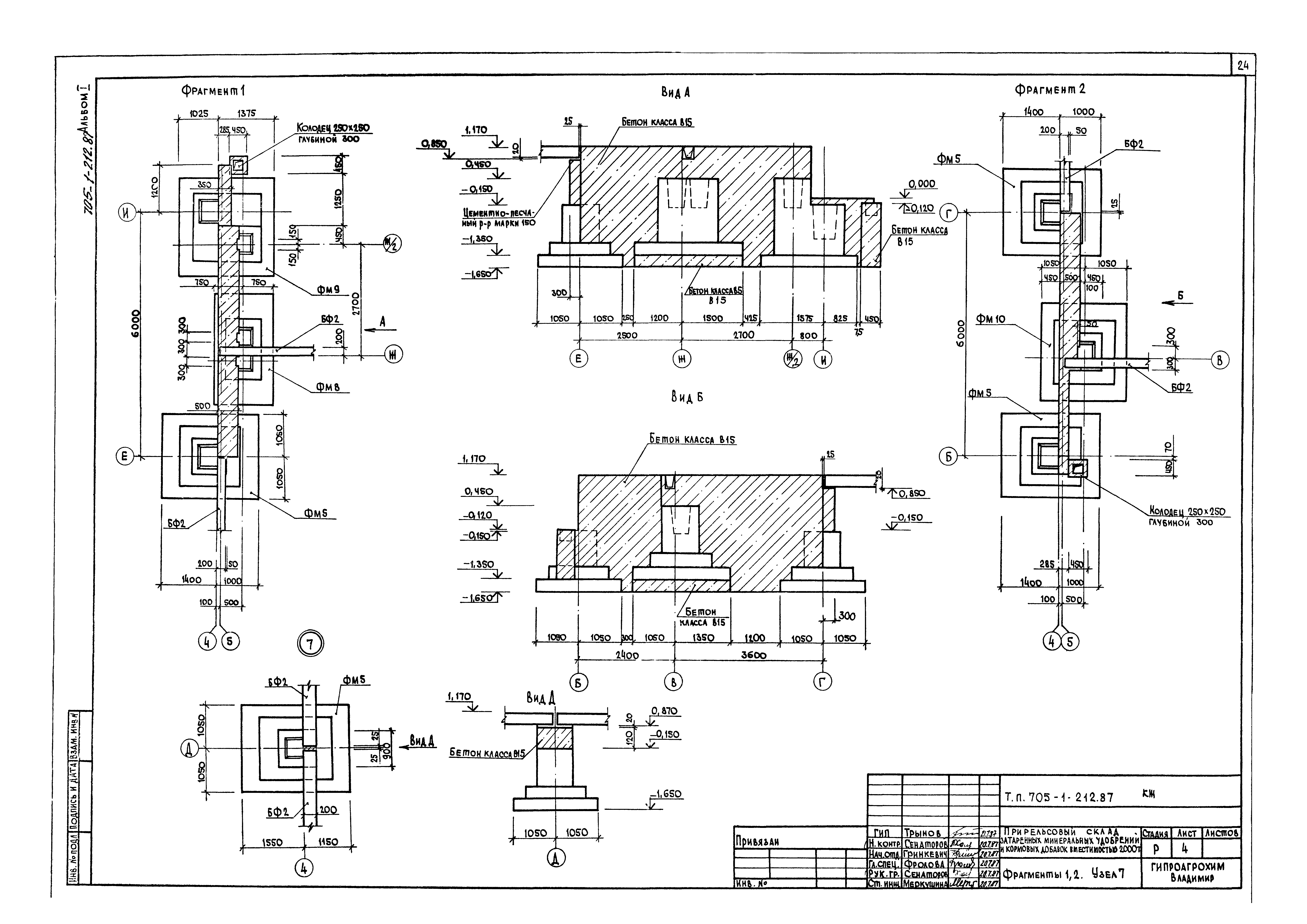
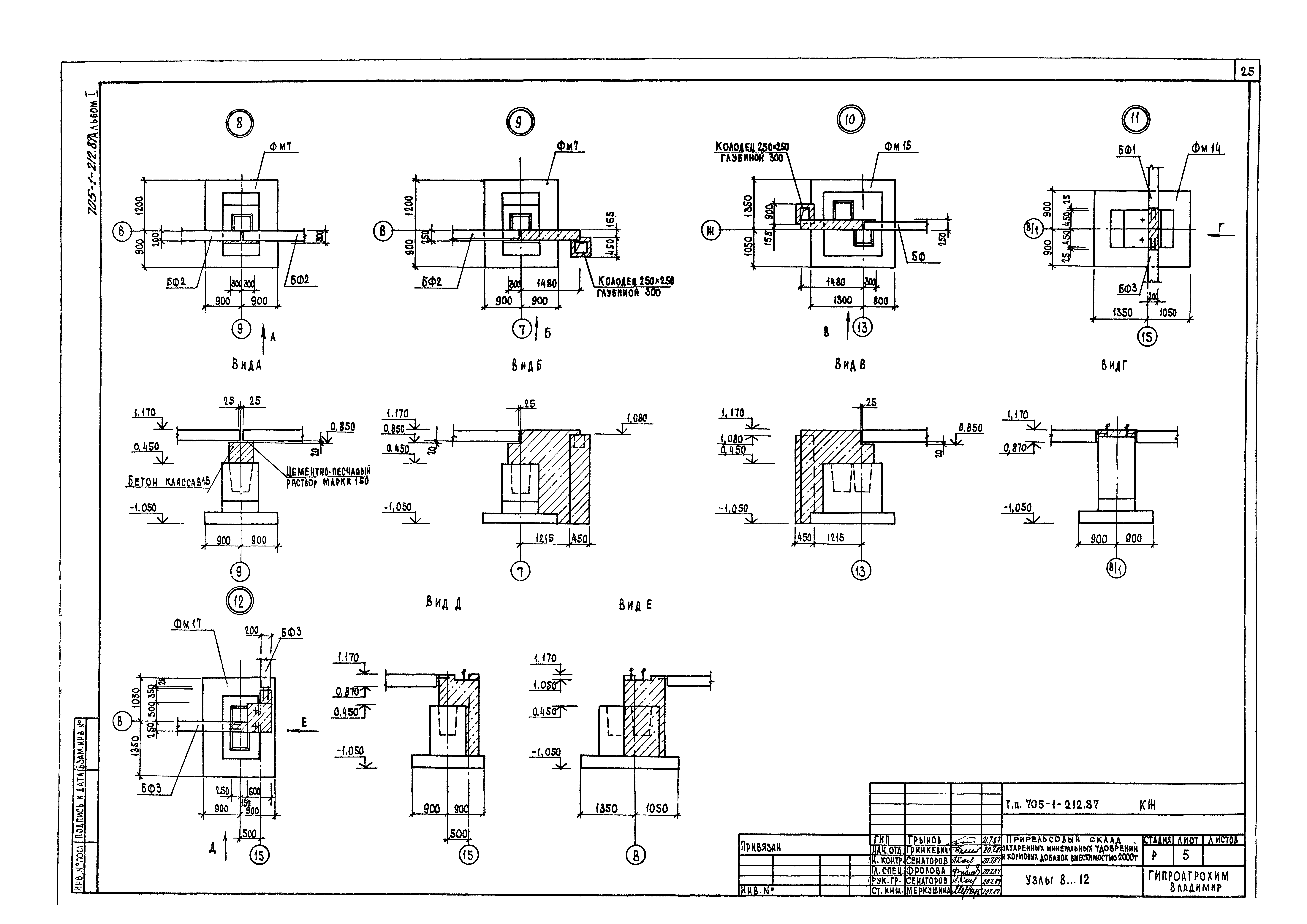
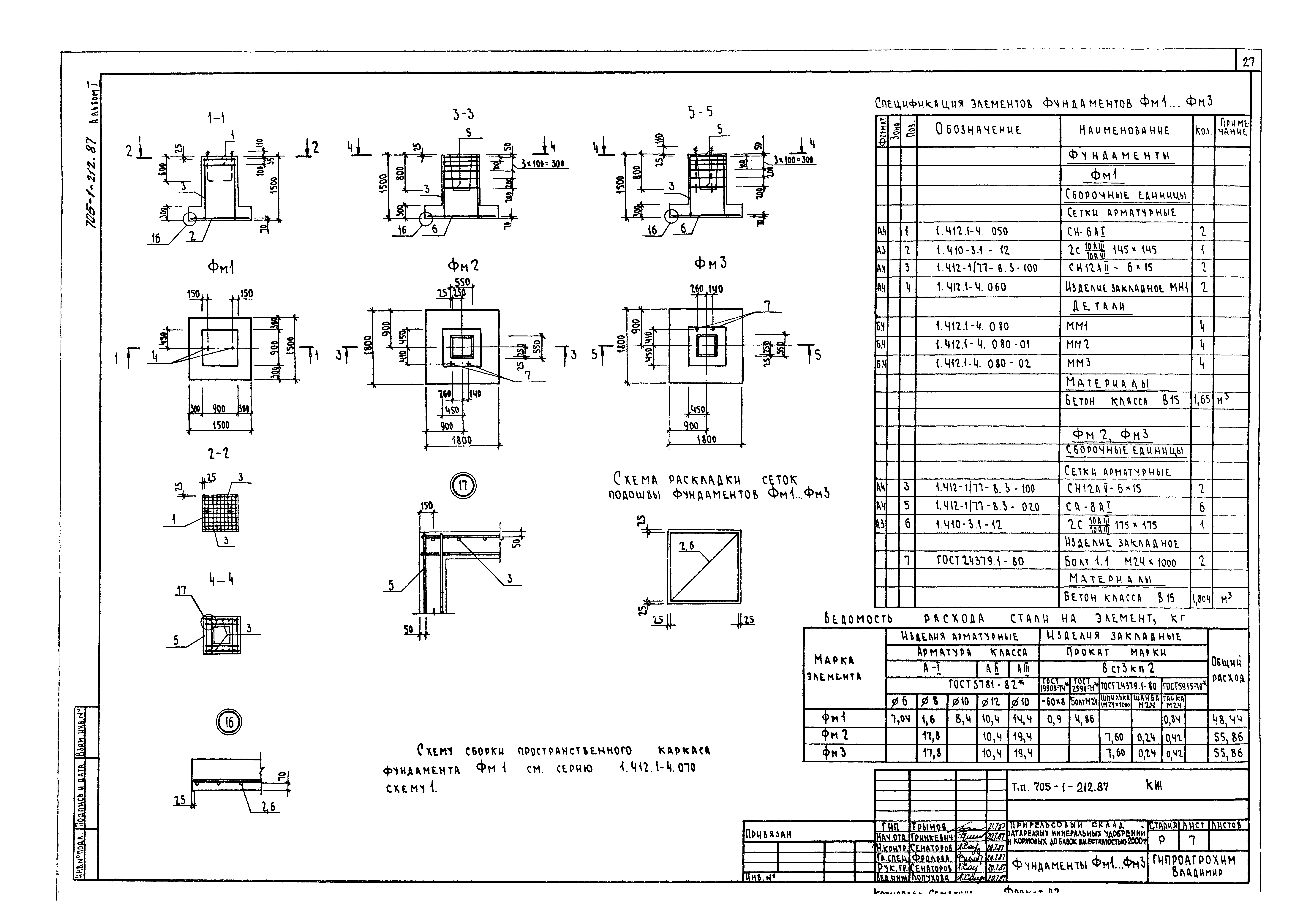
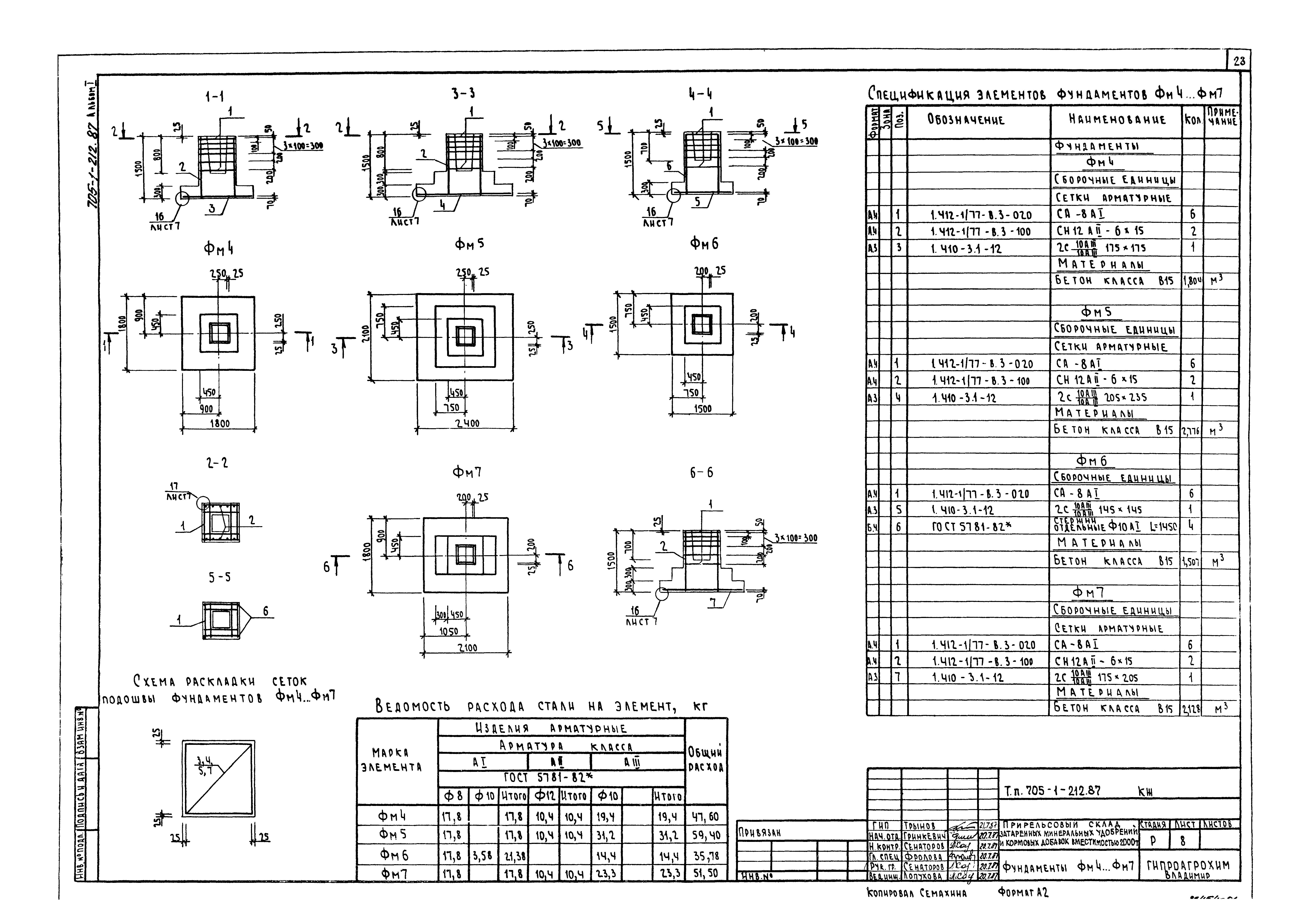
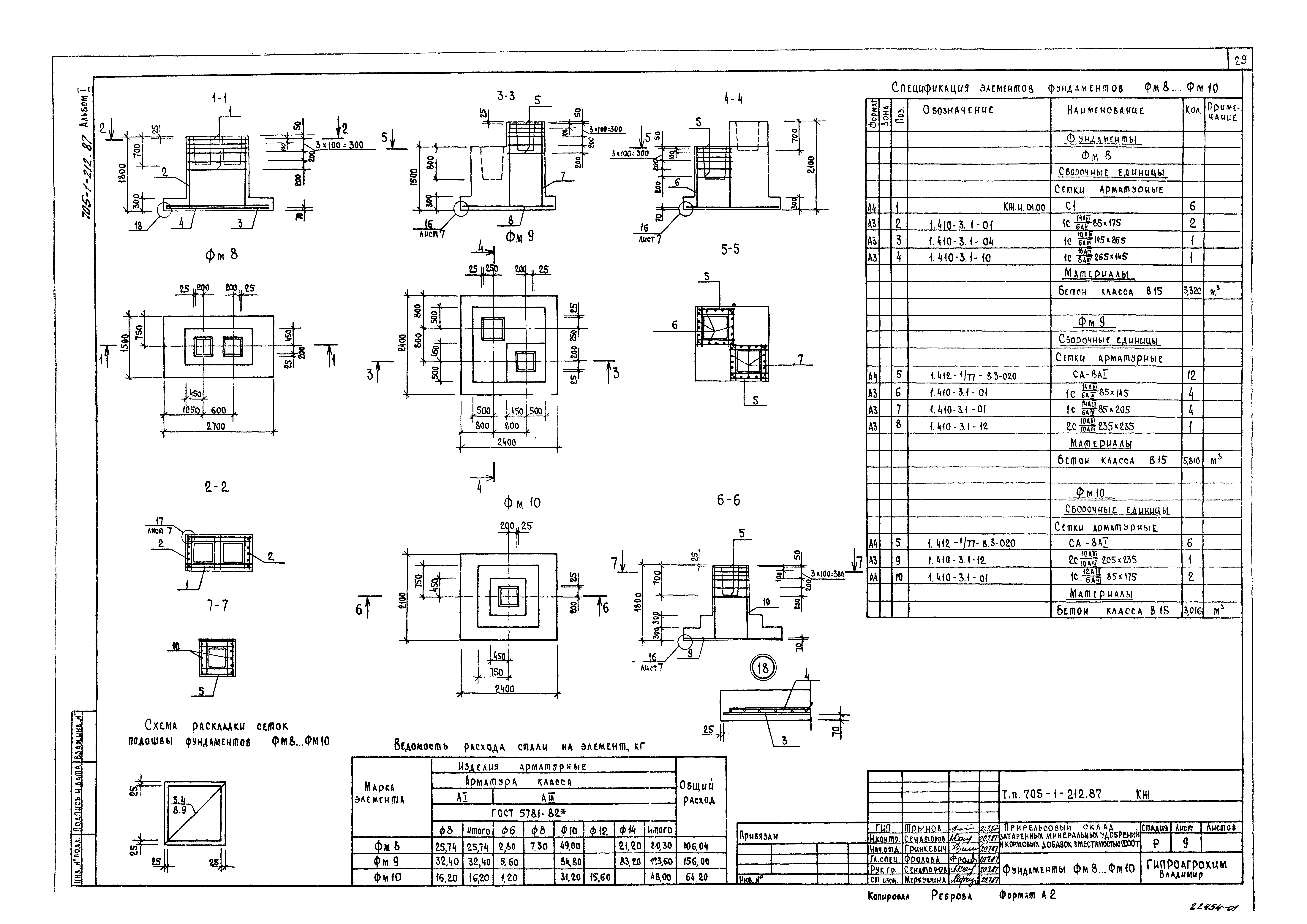
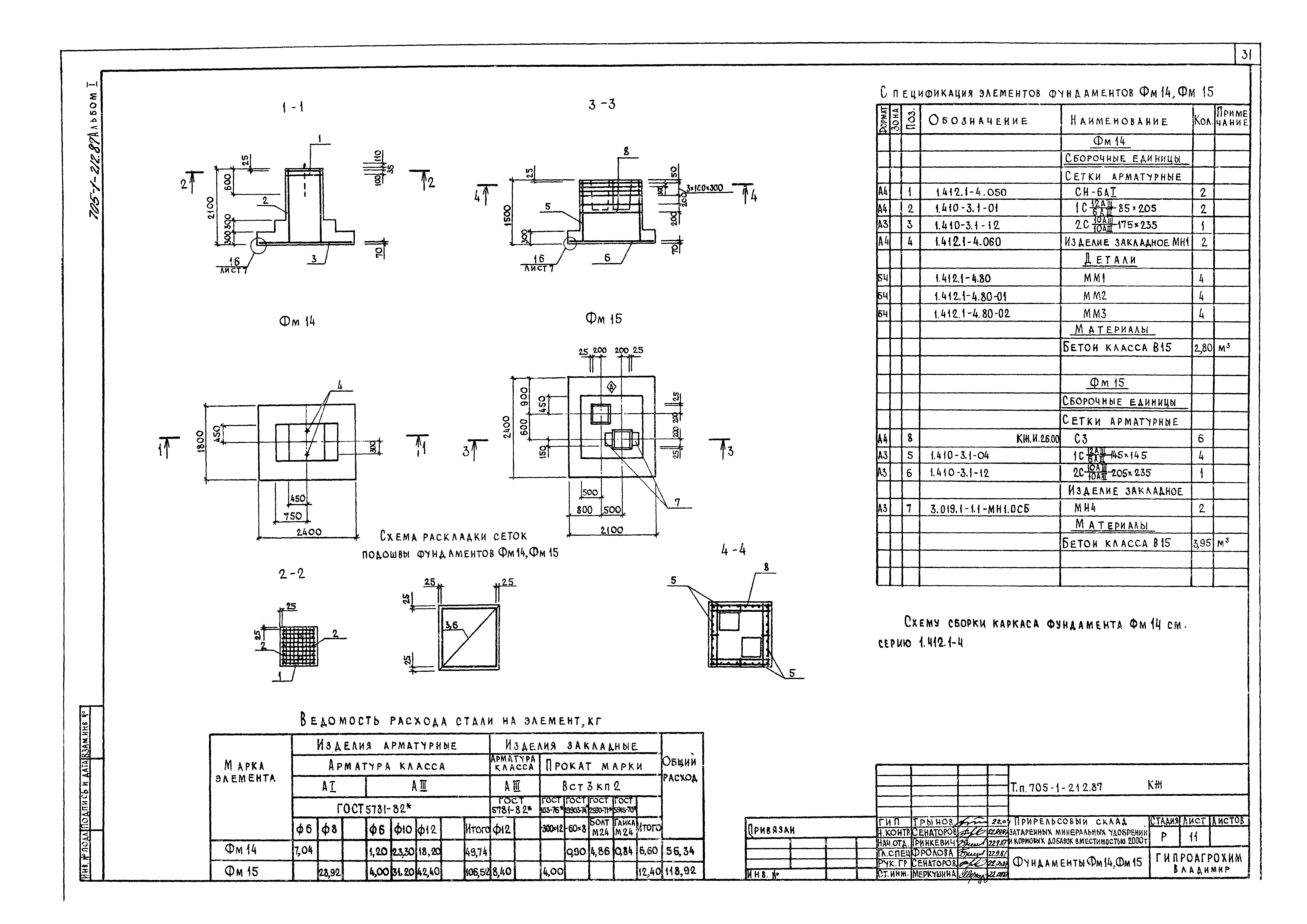
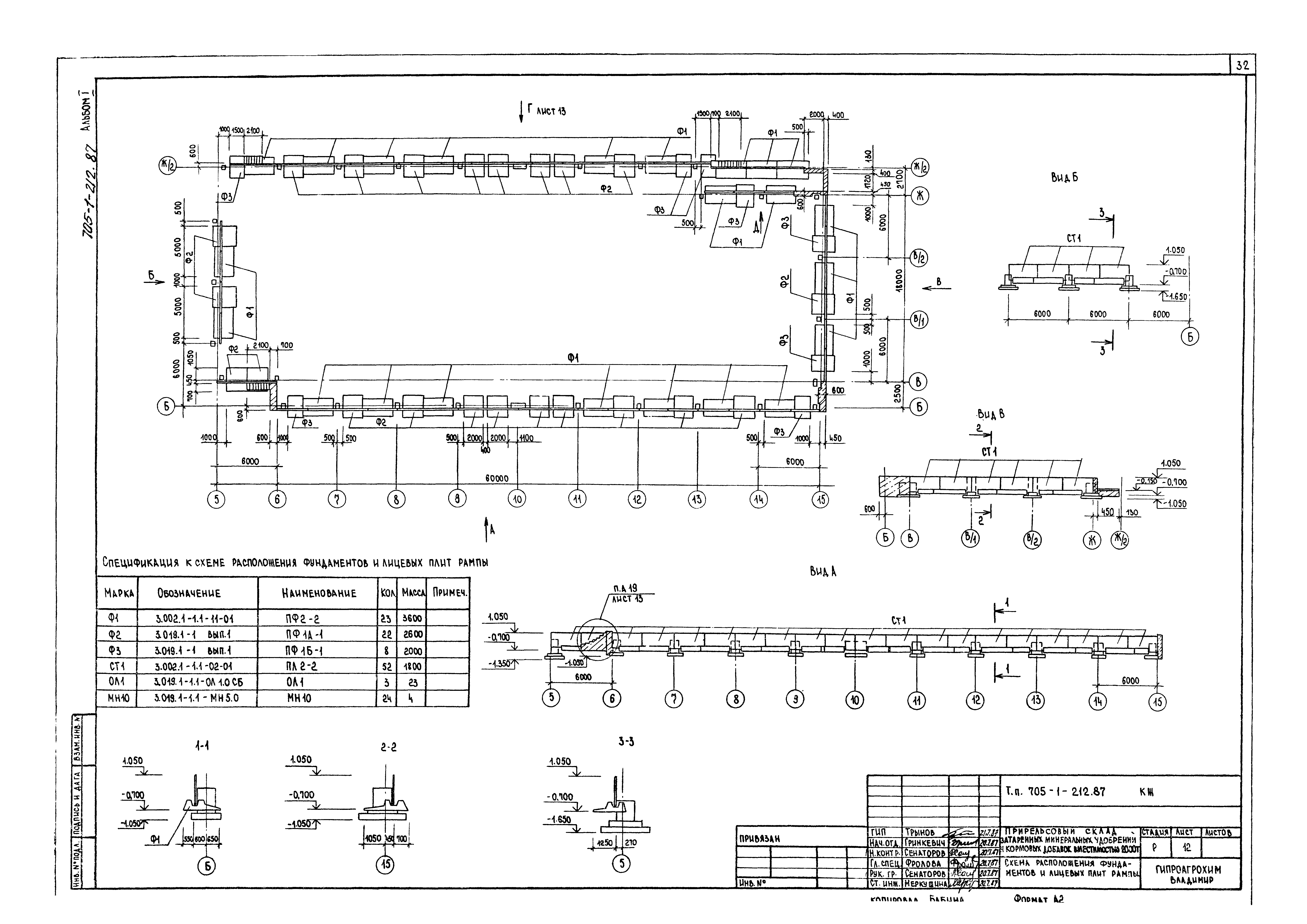
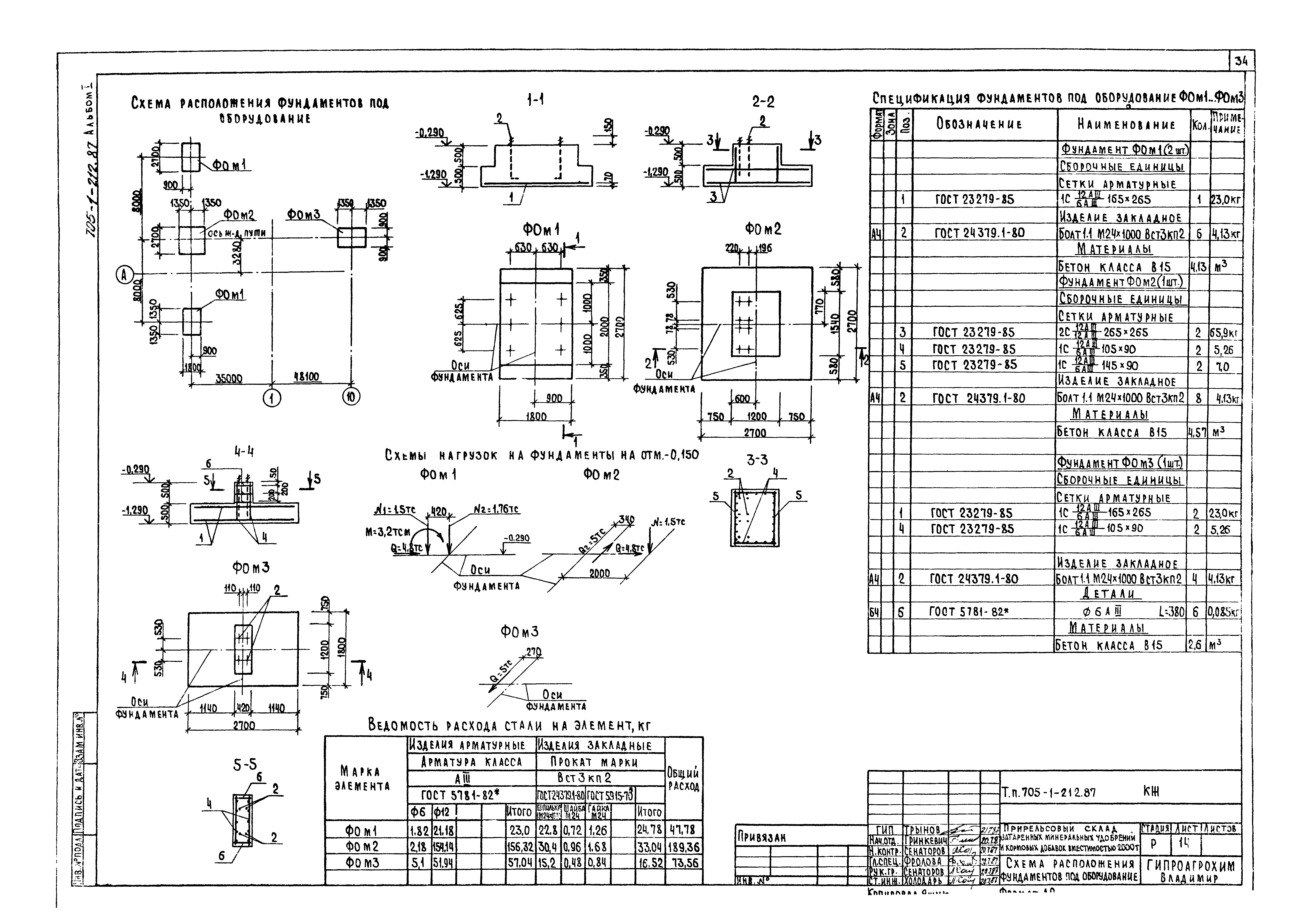
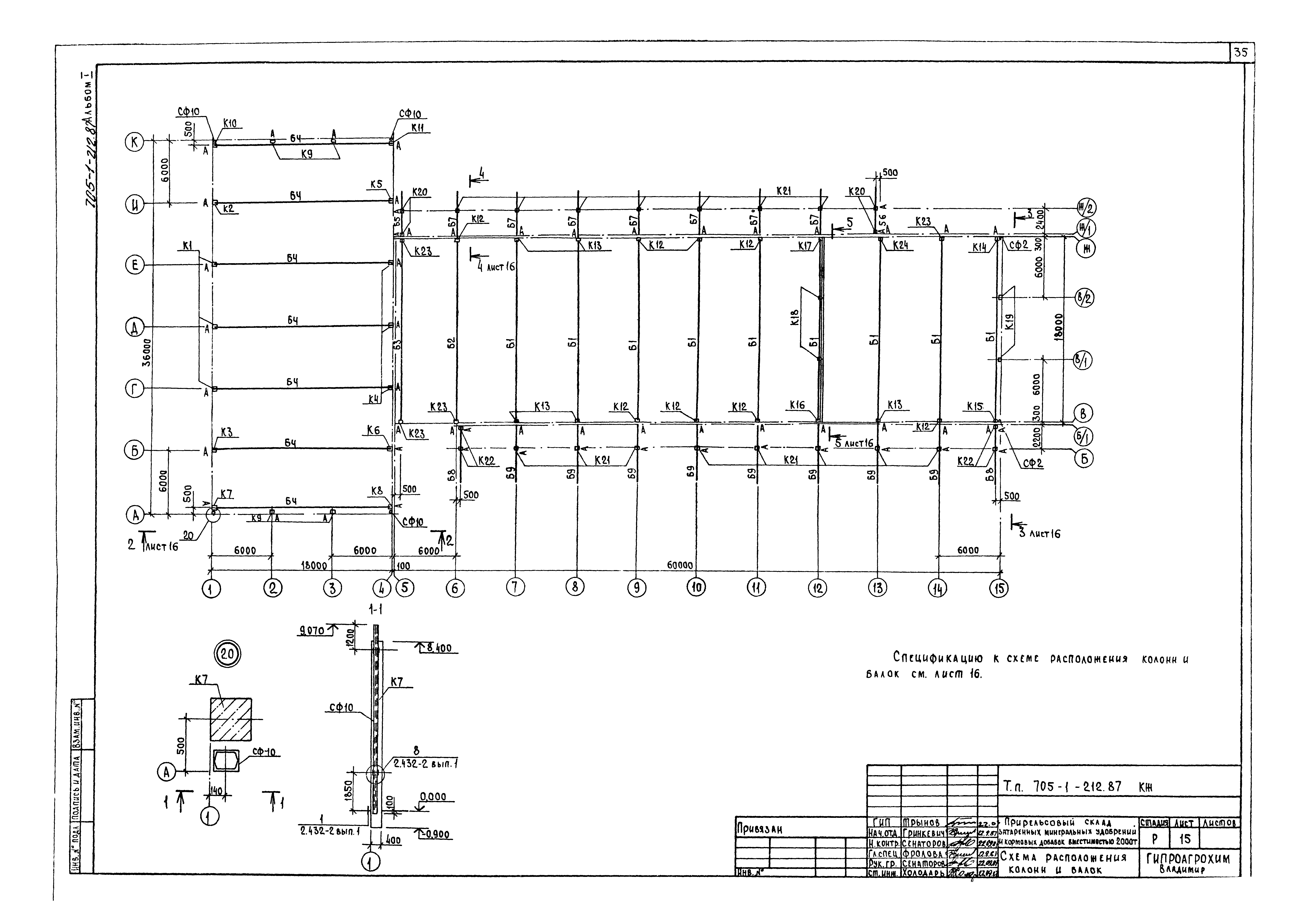
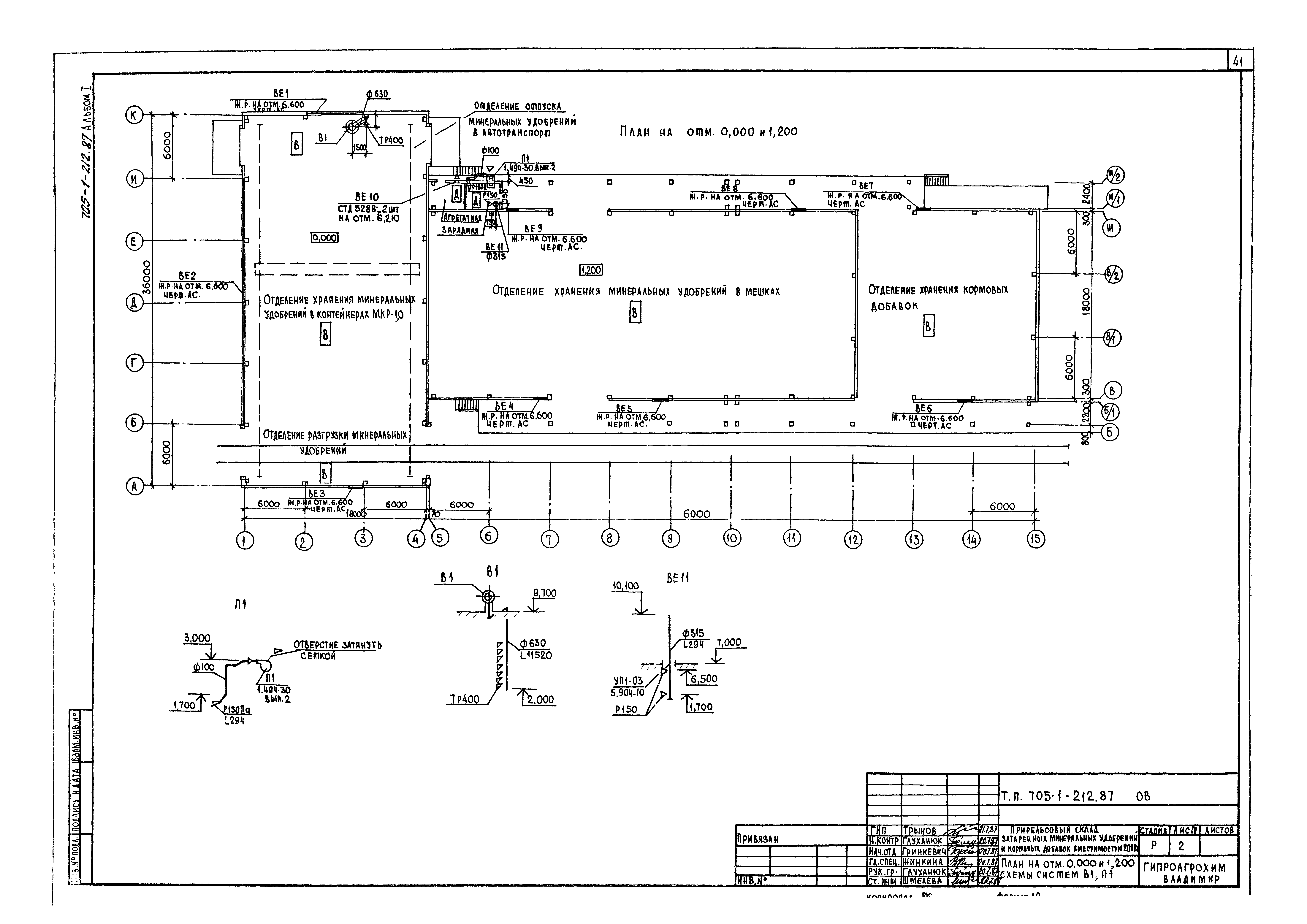
| Оглавление: | ТП 705-1-212.87 Содержание альбома ТП 705-1-212.87-ПЗ-1 Пояснительная записка ТП 705-1-212.87-ПЗ-2 Пояснительная записка ТП 705-1-212.87-ПЗ-3 Пояснительная записка ТП 705-1-212.87-ПЗ-4 Пояснительная записка ТП 705-1-212.87-ПЗ-5 Пояснительная записка ТП 705-1-212.87-ПЗ-6 Пояснительная записка ТП 705-1-212.87-ПЗ-7 Пояснительная записка ТП 705-1-212.87-ТХ-1 Общие данные. Разрезы 2-2, 3-3 ТП 705-1-212.87-ТХ-2 План на отм. 0.000. Разрез 1-1 ТП 705-1-212.87-АР-1 Общие данные ТП 705-1-212.87-АР-2 План на отм. 0.000 и 1.200 ТП 705-1-212.87-АР-3 Разрезы 1-1, 2-2. Фрагменты 1,2,3 ТП 705-1-212.87-АР-4 Фасады 1-15, 15-1, К-А, А-К ТП 705-1-212.87-АР-5 Фрагменты 4, 5, 6. Схемы расположения анкеров в проеме ТП 705-1-212.87-АР-6 Схемы заполнения оконных проемов. Узлы 4, 5 ТП 705-1-212.87-АР-7 Схема расположения подкранового пути ТП 705-1-212.87-АР-8 Схема расположения элементов ограждения площадки ПМ1,ПМ2 ТП 705-1-212.87-АР-9 Планы кровли и полов ТП 705-1-212.87-КЖ-1 Общие данные ТП 705-1-212.87-КЖ-2 Схема расположения фундаментов ТП 705-1-212.87-КЖ-3 Узлы 1...6 ТП 705-1-212.87-КЖ-4 Фрагменты 1, 2. Узел 7 ТП 705-1-212.87-КЖ-5 Узлы 8...12 ТП 705-1-212.87-КЖ-6 Таблица нормативных нагрузок на обрез фундамента. Узлы 13...15 ТП 705-1-212.87-КЖ-7 Фундаменты ФМ1...ФМ3 ТП 705-1-212.87-КЖ-8 Фундаменты ФМ4...ФМ7 ТП 705-1-212.87-КЖ-9 Фундаменты ФМ8...ФМ10 ТП 705-1-212.87-КЖ-10 Фундаменты ФМ11...ФМ14 ТП 705-1-212.87-КЖ-11 Фундаменты ФМ15...ФМ17 ТП 705-1-212.87-КЖ-12 Схема расположения фундаментов и лицевых плит рампы ТП 705-1-212.87-КЖ-13 Виды Г, Д. Узел 19 ТП 705-1-212.87-КЖ-14 Схема расположения фундаментов под оборудование. Фундаменты ФОМ1...ФОМ3 ТП 705-1-212.87-КЖ-15 Схема расположения колонн и балок ТП 705-1-212.87-КЖ-16 Сечения 2-2...7-7 ТП 705-1-212.87-КЖ-17 Схема расположения элементов покрытия ТП 705-1-212.87-КЖ-18 Схемы расположения стеновых панелей по осям 1,4,А,К ТП 705-1-212.87-КЖ-19 Схемы расположения стеновых панелей по осям В,Ж,15. Схема расположения перегородок по оси 18 ТП 705-1-212.87-ОВ-1 Общие данные ТП 705-1-212.87-ОВ-2 План на отм. 0.000 и 1.200. Схемы систем В1, П1 ТП 705-1-212.87-ЭМ-1 Общие данные ТП 705-1-212.87-ЭМ-2 Силовое электрооборудование. План на отм. 0.000 и 1.200 ТП 705-1-212.87-ЭМ-3 Силовое электрооборудование. Принципиальная расчетная схема ТП 705-1-212.87-ЭМ-4 Электрическое освещение. План на отм. 0.000 и 1.200 ТП 705-1-212.87-ЭМ-5 Молниезащита ТП 705-1-212.87-ЭМ.ВЭК Ведомость электромонтажных конструкций и деталей подлежащих изготовлению в МЭЗ ТП 705-1-212.87-ЭМ.ВИМ Ведомость изделий и материалов для изготовления электромонтажных конструкций и деталей МЭЗ ТП 705-1-212.87-ЭМ.ВР Ведомость объемов строительных и монтажных работ по чертежам ТП 705-1-212.87-АТХ-1 Общие данные. Устройство зарядное УЗА-150-80У4. Схема электрическая блокировки, внешних проводок. План расположения ТП 705-1-212.87-СС-1 Общие данные ТП 705-1-212.87-СС-2 План расположения сетей на отм. 0.000 и 1.200 |
| Разработан: | Институт Гипроагрохим |
| Утверждён: | 14.07.1987 Институт Гипроагрохим (4-Э) |



















































