Скачать Типовой проект 705-1-212.87 Альбом II. Строительные изделияДата актуализации: 01.01.2021
|
| Обозначение: | Типовой проект 705-1-212.87 |
| Обозначение англ: | 705-1-212.87 |
| Статус: | не определен законодательством |
| Название рус.: | Альбом II. Строительные изделия |
| Дата добавления в базу: | 01.09.2013 |
| Дата актуализации: | 01.01.2021 |
| Дата введения: | 14.07.1987 |
| Дата окончания срока действия: | 30.06.2003 |
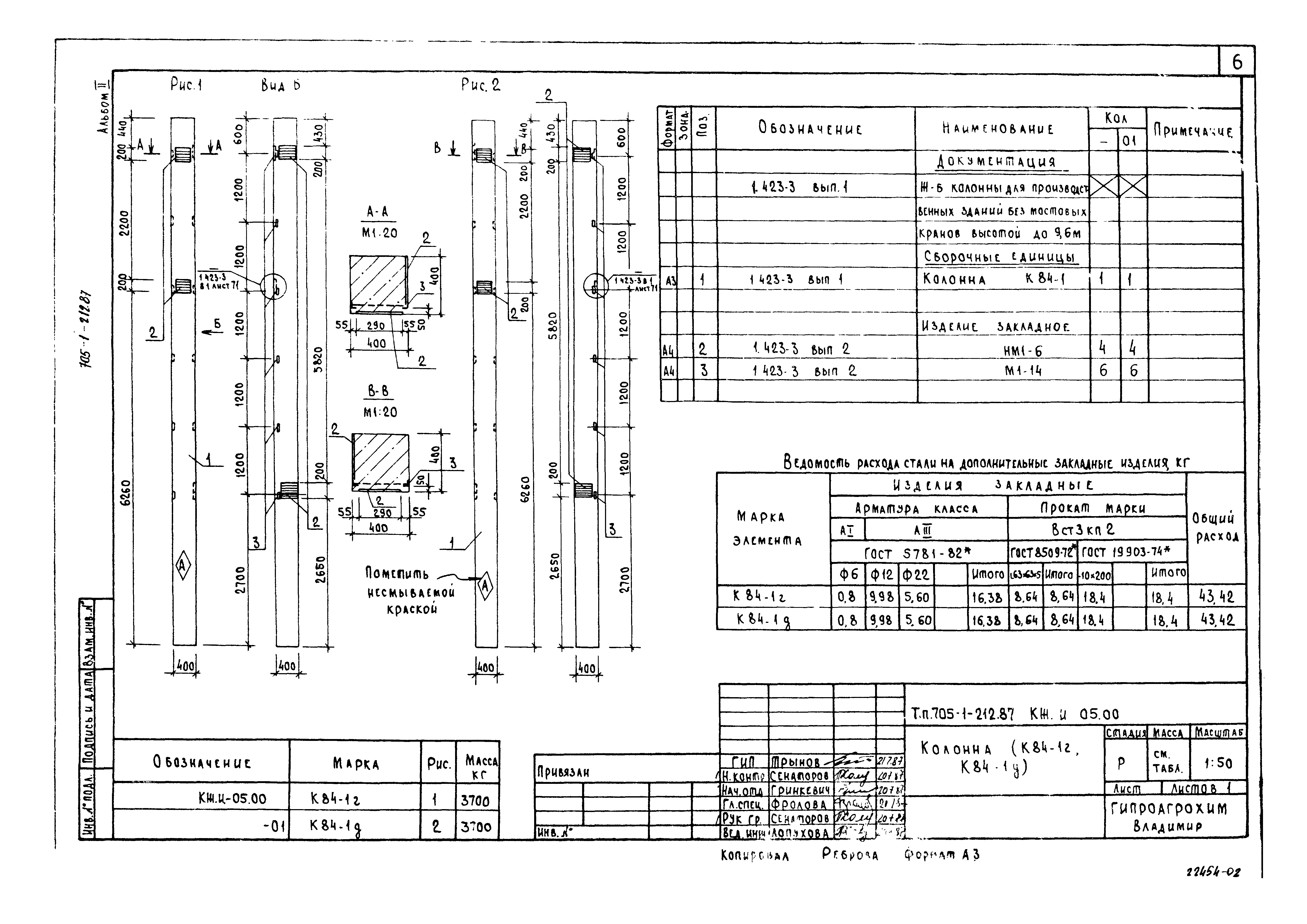
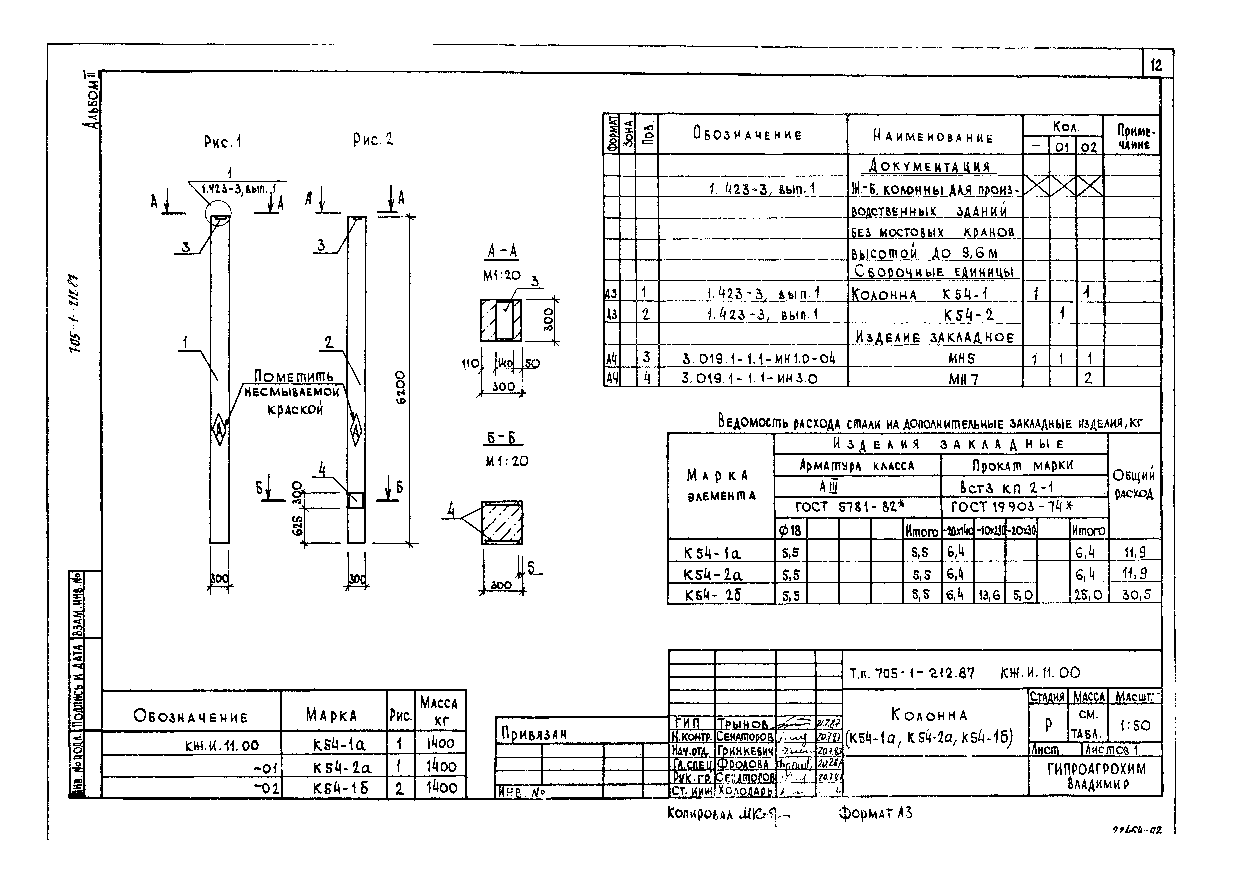
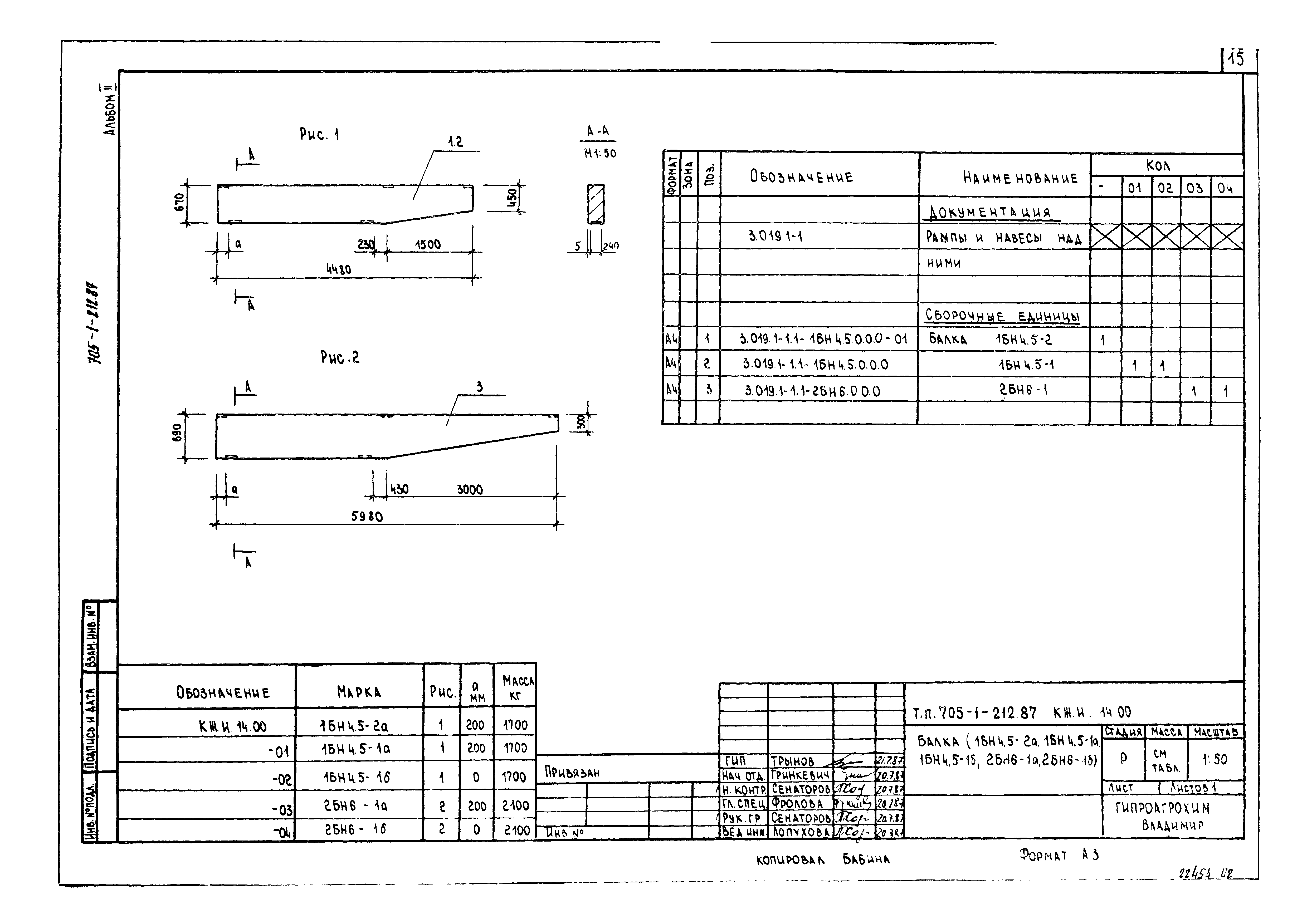
| Оглавление: | ТП 705-1-212.87-КЖ.И.01.00 Сетка арматурная С1 ТП 705-1-212.87-КЖ.И.02.00 Сетка арматурная С2 ТП 705-1-212.87-КЖ.И.03.00 Колонна (К84-1а, К84-1б, К84-1в) ТП 705-1-212.87-КЖ.И.04.00 Колонна (К84-5а, К84-5б, К84-5в) ТП 705-1-212.87-КЖ.И.05.00 Колонна (К84-12, К84-1д) ТП 705-1-212.87-КЖ.И.06.00 Колонна 7Кø97-1-Н-а ТП 705-1-212.87-КЖ.И.07.00 Колонна (К84-1е, К84-1ж) ТП 705-1-212.87-КЖ.И.08.00 Колонна (К54-5а, К-54-5б, К54-5в) ТП 705-1-212.87-КЖ.И.09.00 Колонна (К54-5г, К-54-5д, К54-5ж) ТП 705-1-212.87-КЖ.И.10.00 Колонна 1КФ61-1-Н-а ТП 705-1-212.87-КЖ.И.11.00 Колонна (К54-1а, К54-2а, К54-1б) ТП 705-1-212.87-КЖ.И.12.00 Колонна (К54-5к, К54-5л) ТП 705-1-212.87-КЖ.И.13.00 Балка (1БДР18-1АIVТ-Н-а,1БДР18-2АIVТ-Н-а,1БДР18АIVТ-Н-а,1БДР18-3АIVТ-Н-а) ТП 705-1-212.87-КЖ.И.14.00 Балка (1БН4,5-2а,1БН4,5-1а,1БН4,5-1б,2БН46-1а,2БН6-1б) ТП 705-1-212.87-КЖ.И.15.00 Плита (ПГ-2АIVТ-а,ПГ-5АIV-а,ПГ-2АIVТ-б,ПГ-4АIVТ-а,ПЛ-4АIV-а) ТП 705-1-212.87-КЖ.И.16.00 Плиты ПГ-2АVТ-в,ПГ-5АIVТ-б,ПГ-2АIVТ-2,ПГ-5АIVТ-в) ТП 705-1-212.87-КЖ.И.17.00 Плита ПВ10-3АIVТ-а ТП 705-1-212.87-КЖ.И.18.00 Плита (2ПГ6-2АIVТ-а,2ПГ6-5АIVТ-а) ТП 705-1-212.87-КЖ.И.19.00 Блок бортовой ББН1-П-а ТП 705-1-212.87-КЖ.И.20.00 Каркас пространственный КП1 ТП 705-1-212.87-КЖ.И.21.00 Каркас плоский КР1 ТП 705-1-212.87-КЖ.И.22.00 Панель (ПС610.12-1АIV-Т-11-а,ПС610.12-1АIV-Т-12-а) ТП 705-1-212.87-КЖ.И.23.00 Панель (ПС600.12-1АIV-Т-1-а,ПС600.12-1АIV-Т-12-а,ПС600.12-1АIV-Т-11-а) ТП 705-1-212.87-КЖ.И.24.00 Панель (ПС600.18-1АIV-Т-12-а,ПС600.18-1АIV-Т-11-а) ТП 705-1-212.87-КЖ.И.25.00 Опорный столик ОП1 ТП 705-1-212.87-КЖ.И.26.00 Сетка арматурная С3 |
| Разработан: | Институт Гипроагрохим |
| Утверждён: | 14.07.1987 Институт Гипроагрохим (4-Э) |


























