Скачать Типовой проект 902-2-345 Альбом II. Технологическая, санитарно-техническая, электротехническая части, связь и сигнализацияДата актуализации: 01.01.2021
|
| Обозначение: | Типовой проект 902-2-345 |
| Обозначение англ: | 902-2-345 |
| Статус: | не действует |
| Название рус.: | Альбом II. Технологическая, санитарно-техническая, электротехническая части, связь и сигнализация |
| Дата добавления в базу: | 01.09.2013 |
| Дата актуализации: | 01.01.2021 |
| Дата введения: | 08.07.1981 |
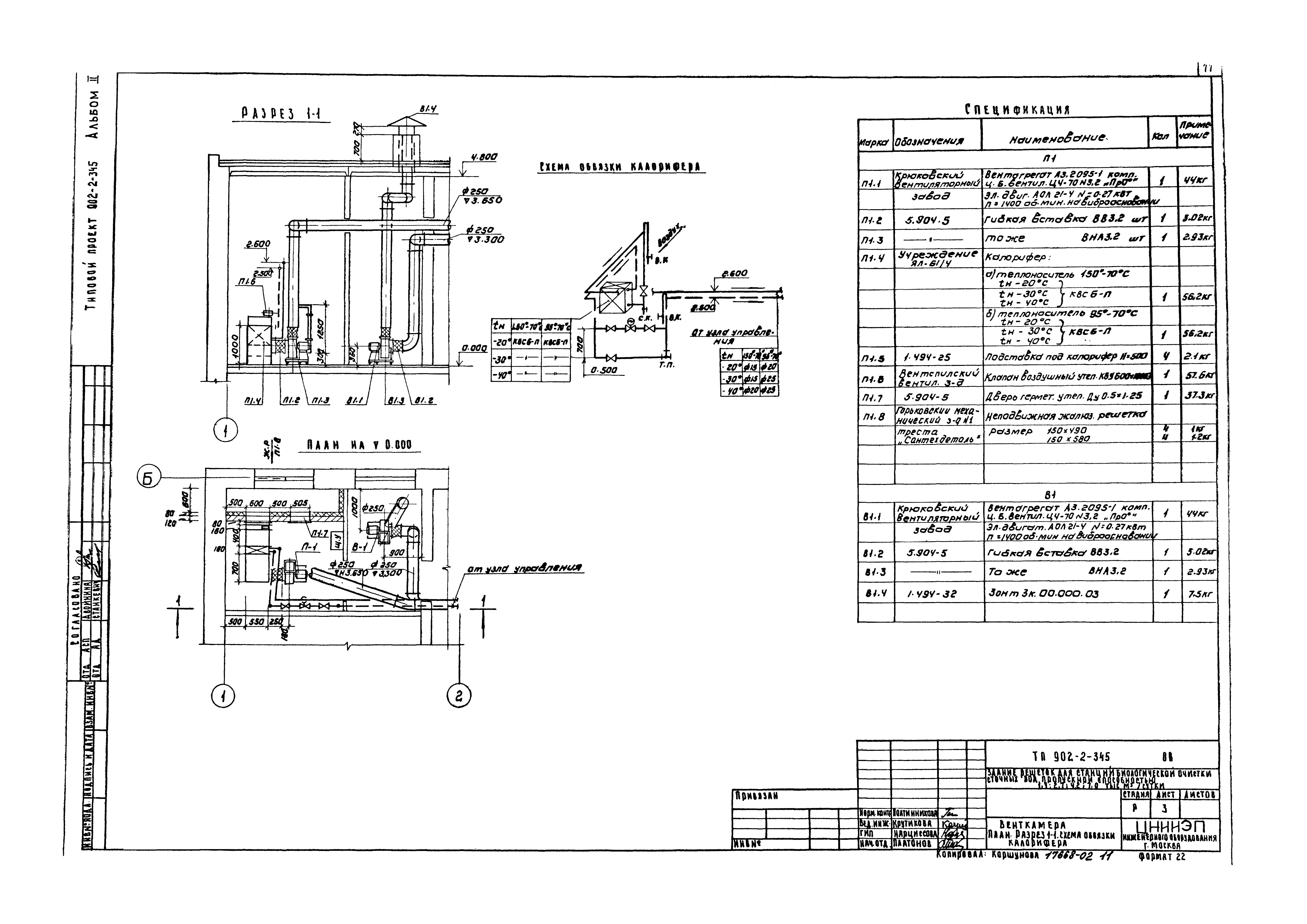
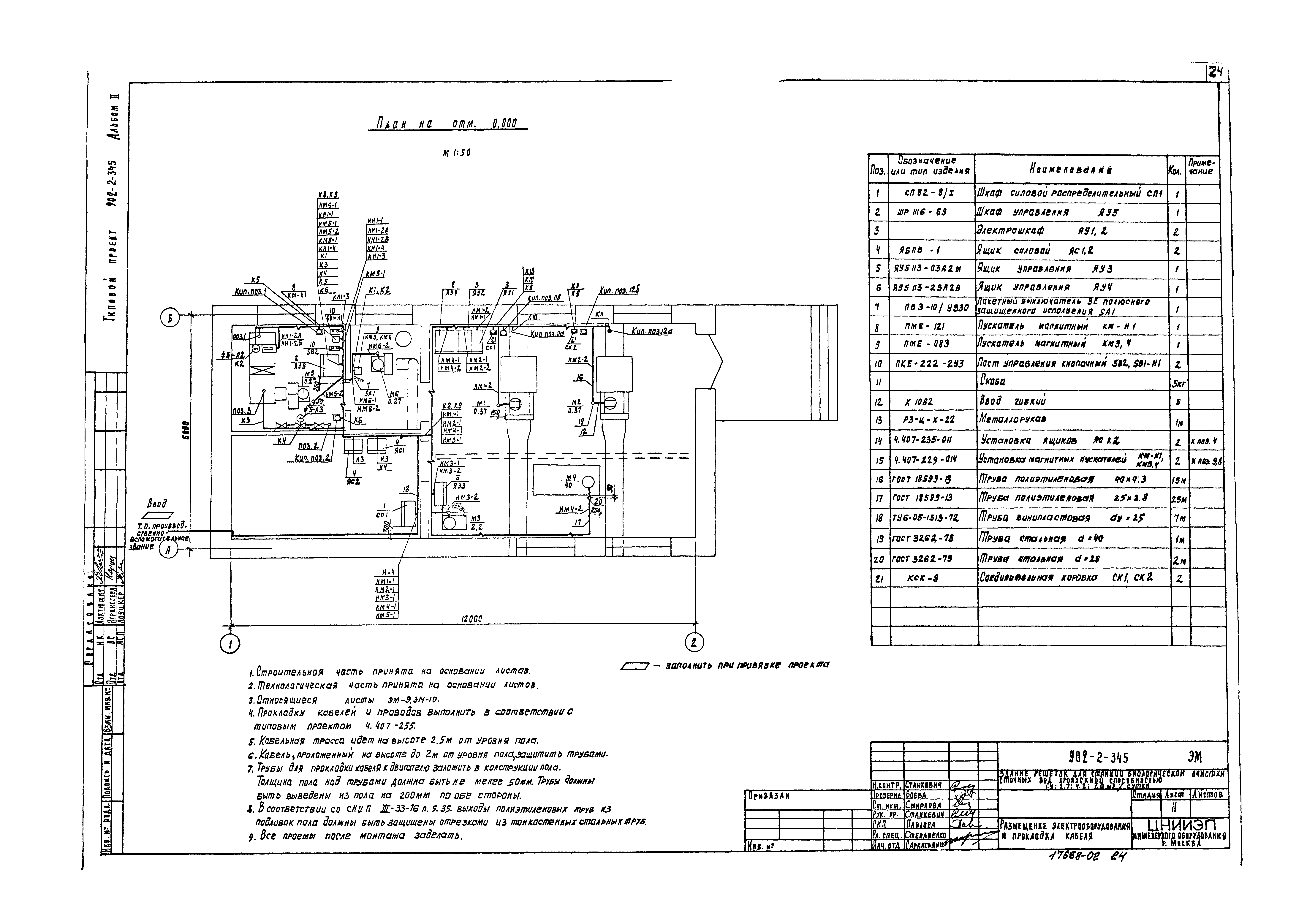
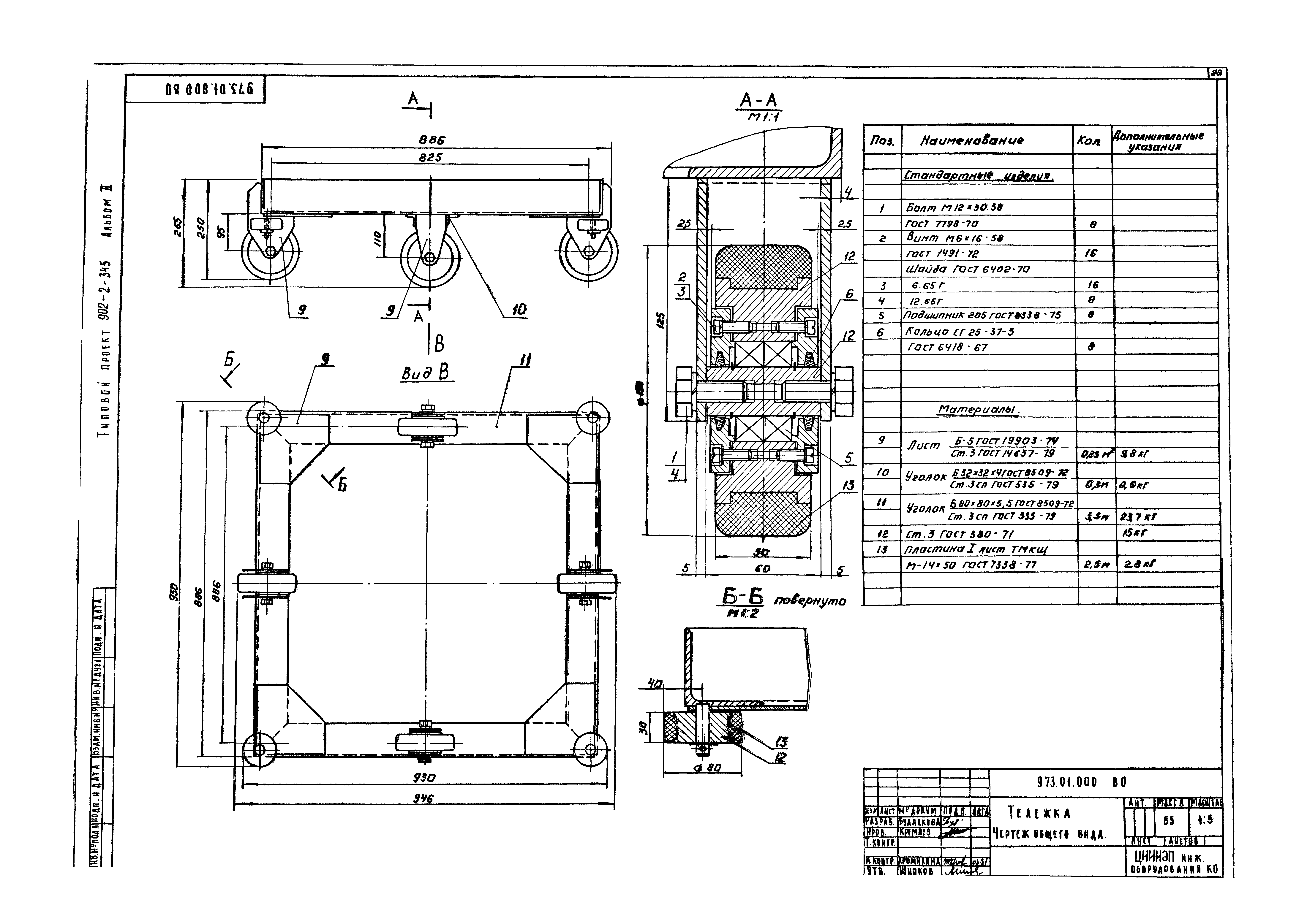
| Оглавление: | ТП 902-2-345 Содержание альбома ТП 902-2-345-НК Технологическая часть ТП 902-2-345-НК-1 Общие данные ТП 902-2-345-НК-2 План ТП 902-2-345-НК-3 Разрезы ТП 902-2-345-НК-4 Схемы систем А2,В3,В10 ТП 902-2-345-НК-5 Спецификация ТП 902-2-345-ОВ Отопление и вентиляция ТП 902-2-345-ОВ-1 Общие данные ТП 902-2-345-ОВ-2 План, схема отопления, схемы систем вентиляции П-1;В-1. Узел управления ТП 902-2-345-ОВ-3 Венткамера. План. Разрез 1-1. Схема обвязки калорифера ТП 902-2-345-ОВ-4 Звено прямого участка шовного асбестоцементного воздуховода ТП 902-2-345-ОВ-5 Спецификация ТП 902-2-345-ЭМ Силовое электрооборудование ТП 902-2-345-ЭМ-1 Общие данные. Ведомость электрооборудования и материалов (начало) ТП 902-2-345-ЭМ-2 Ведомость электрооборудования и материалов (продолжение) ТП 902-2-345-ЭМ-3 Ведомость электрооборудования и материалов (продолжение) ТП 902-2-345-ЭМ-4 Ведомость электрооборудования и материалов (окончание) ТП 902-2-345-ЭМ-5 Схема электрическая принципиальная питания электрооборудования ТП 902-2-345-ЭМ-6 Схема электрическая принципиальная управления приточным вентилятором ТП 902-2-345-ЭМ-7 Схема электрическая принципиальная управления обогревом заслонки наружного воздуха ТП 902-2-345-ЭМ-8 Схема подключения электрооборудования ТП 902-2-345-ЭМ-9 Кабельный журнал (начало) ТП 902-2-345-ЭМ-10 Кабельный журнал (окончание) ТП 902-2-345-ЭМ-11 Размещение электрооборудования и прокладка кабеля ТП 902-2-345-ЭМ-12 Электрическое освещение. План на отм. 0.000 ТП 902-2-345-АНК Автоматизация ТП 902-2-345-АНК-1 Общие данные. Схема подключения приборов технологического контроля ТП 902-2-345-СС Связь и сигнализация ТП 902-2-345-СС-1 Общие данные. План на отм. 0.000 с сетями связи и сигнализации ТП 973.01.000 Прилагаемые документы ТП 973.01.000 ВО Тележка. Чертеж общего вида ТП 973.02.000 ВО Заслонка. Чертеж общего вида ТП 973.03.000 ВО Бачок циркуляционный. Чертеж общего вида |
| Разработан: | ЦНИИЭП |
| Утверждён: | 20.02.1981 Госгражданстрой (Gosgrazhdanstroy 59) |
| Чем заменён: |





























