Скачать Типовой проект 902-2-420.86 Альбом II. Технологическая часть. Нестандартизированное оборудование. (Эскизные чертежи общих видов). Электротехническая частьДата актуализации: 01.01.2021
|
| Обозначение: | Типовой проект 902-2-420.86 |
| Обозначение англ: | 902-2-420.86 |
| Статус: | действует |
| Название рус.: | Альбом II. Технологическая часть. Нестандартизированное оборудование. (Эскизные чертежи общих видов). Электротехническая часть |
| Дата добавления в базу: | 01.09.2013 |
| Дата актуализации: | 01.01.2021 |
| Дата введения: | 26.06.1986 |
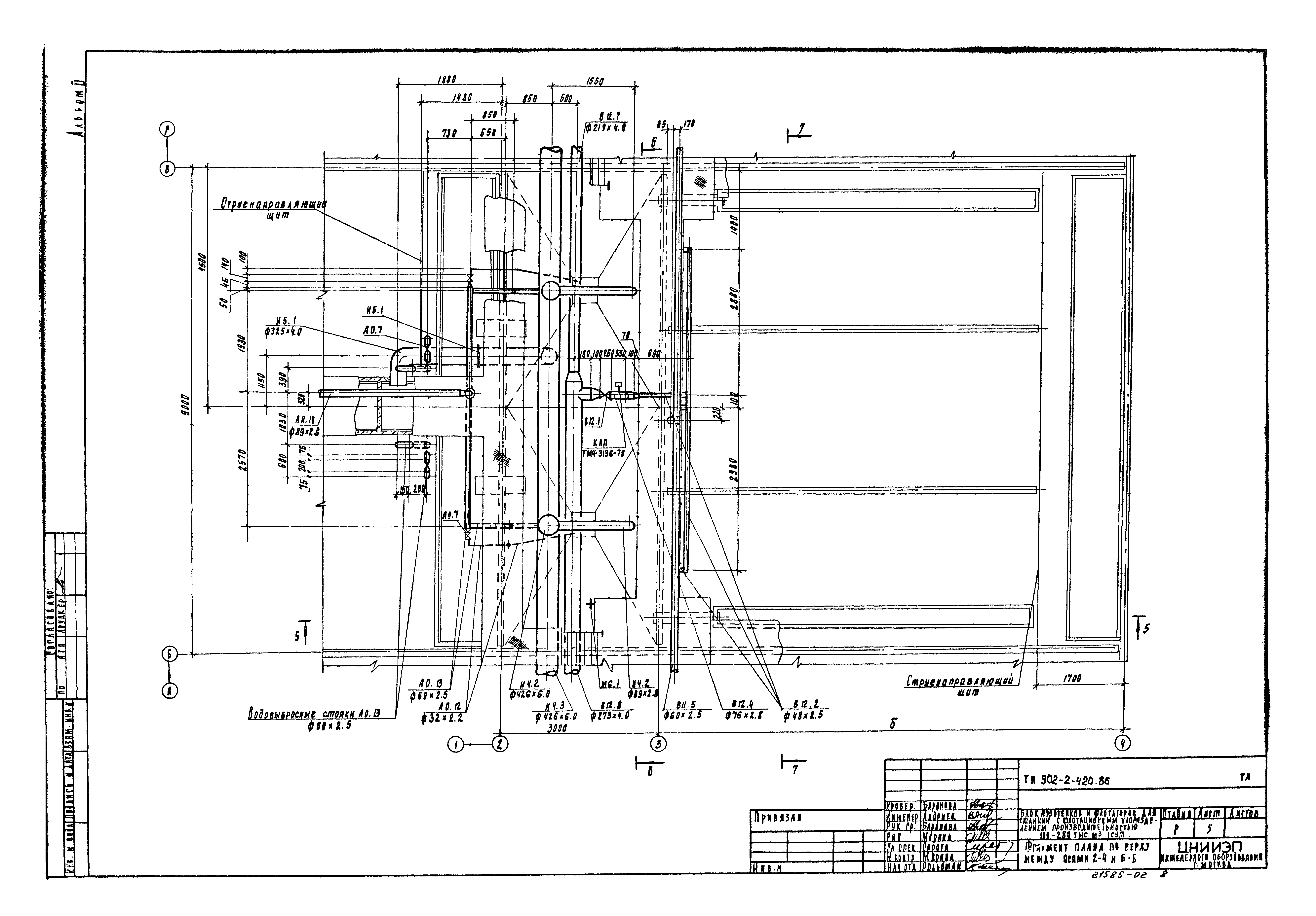
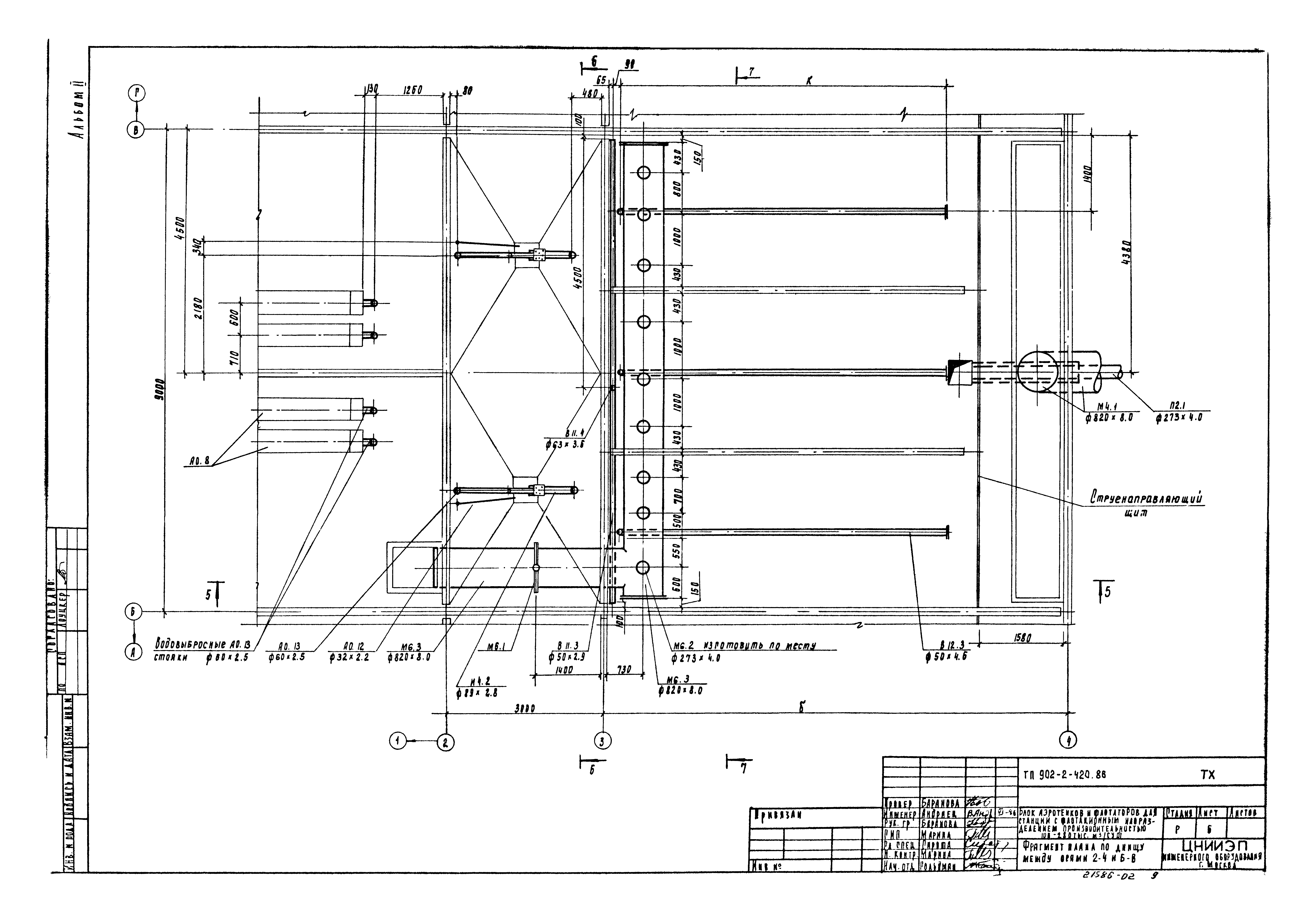
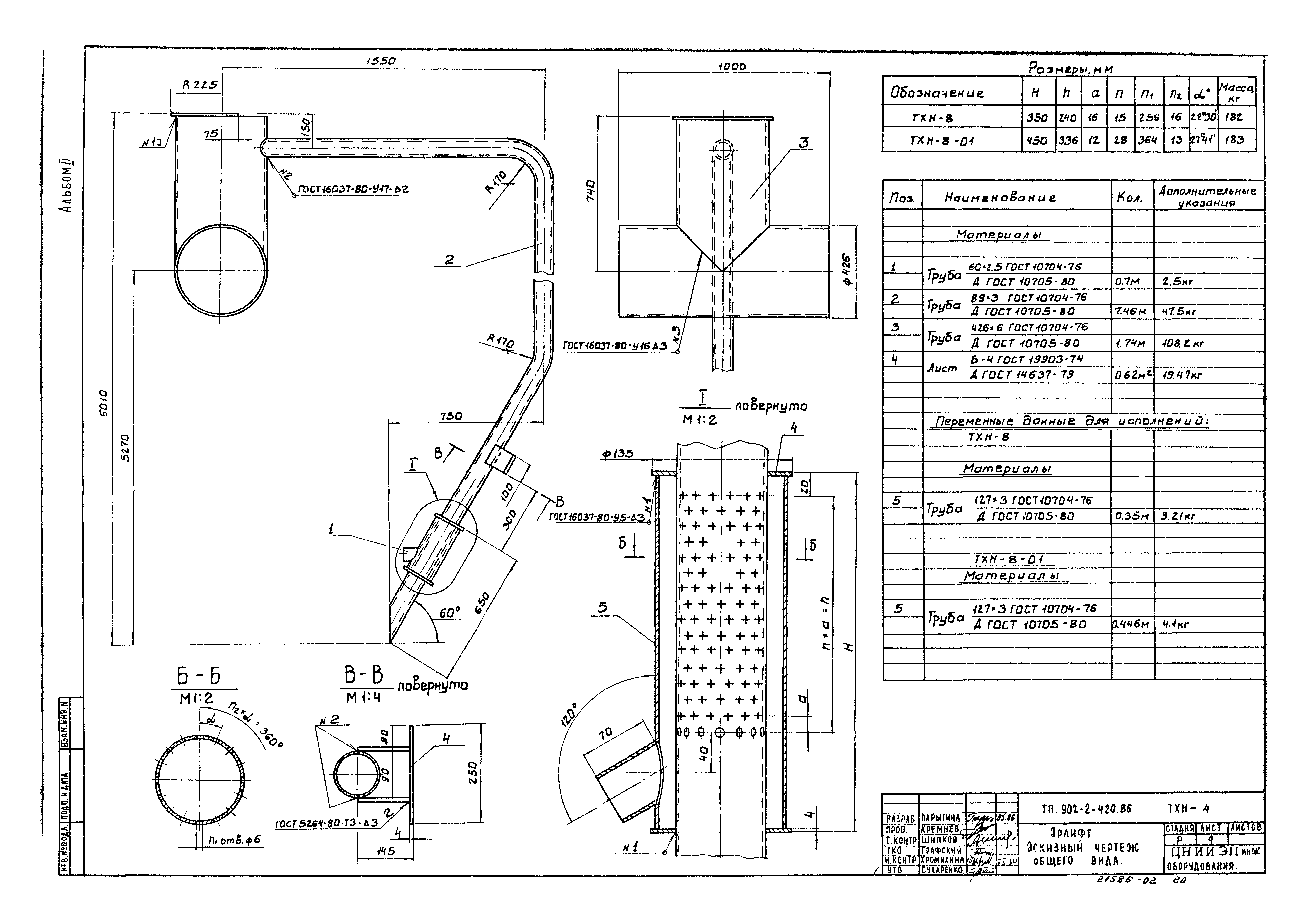
| Оглавление: | ТП 902-2-420.86 Содержание альбома ТП 902-2-420.86-ТХ Технологическая часть ТП 902-2-420.86-ТХ-1 Общие данные ТП 902-2-420.86-ТХ-2 План по веху. Таблица размеров ТП 902-2-420.86-ТХ-3 План по днищу ТП 902-2-420.86-ТХ-4 Разрез 1-1, 2-2, 3-3, 4-4 ТП 902-2-420.86-ТХ-5 Фрагмент плана по верху между осями 2-4 и Б-Б ТП 902-2-420.86-ТХ-6 Фрагмент плана по днищу между осями 2-4 и Б-В ТП 902-2-420.86-ТХ-7 Разрез 5-5. Деталь дырчатого трубопровода для сети В11,В12 ТП 902-2-420.86-ТХ-8 Разрез 6-6. Узел 1. Разрез 8-8 ТП 902-2-420.86-ТХ-9 Разрез 7-7. Узел 2,3. Разрез 9-9 ТП 902-2-420.86-ТХ-10 Схема АО. Таблица размеров. Схема расположение скользящих опор под воздуховод ТП 902-2-420.86-ТХ-11 Схемы М6; В12, И4, И5, И6, В11 ТП 902-2-420.86-ТХ-12 Разрез 10-10. Механизм удаления флотопены ТП 902-2-420.86-ТХ-13 Вид А ТП 902-2-420.86-ТХН Нестандартизированное оборудование (эскизные чертежи общих видов) ТП 902-2-420.86-ТХН-1 Бак избыточного активного ила. Эскизный чертеж общего вида ТП 902-2-420.86-ТХН-2 Затвор щитовой с подвижным водосливом. Эскизный чертеж общего вида ТП 902-2-420.86-ТХН-3 Затвор щитовой. Эскизный чертеж общего вида ТП 902-2-420.86-ТХН-4 Эрлифт. Эскизный чертеж общего вида ТП 902-2-420.86-ТХН-5 Установка трубки Пито. Эскизный чертеж общего вида ТП 902-2-420.86-ТХН-6 Деталь дырчатого трубопровода технической воды. Эскизный чертеж общего вида ТП 902-2-420.86-ТХН-7 Деталь дырчатого трубопровода рабочей воды. Эскизный чертеж общего вида ТП 902-2-420.86-ЭМ Электротехническая часть ТП 902-2-420.86-ЭМ-1 Общие данные. Схема электрическая принципиальная питания электрооборудования ТП 902-2-420.86-ЭМ-2 Схема электрическая принципиальная управления механизмом для удаления флотопены ТП 902-2-420.86-ЭМ-3 Схема подключения электрооборудования. Кабельный журнал. План расположения ТП 902-2-420.86-АТХ-1 Общие данные. Схема соединений внешних проводок. План расположения ТП 902-2-420.86-АТХ-2 Установка дифманометра ДНМП-100 в обогреваемом шкафу |
| Разработан: | ЦНИИЭП |
| Утверждён: | 19.08.1982 Госгражданстрой (Gosgrazhdanstroy 224) |


























