Скачать Типовой проект 902-2-420.86 Альбом III. Строительная часть. Конструкции железобетонныеДата актуализации: 01.01.2021
|
| Обозначение: | Типовой проект 902-2-420.86 |
| Обозначение англ: | 902-2-420.86 |
| Статус: | действует |
| Название рус.: | Альбом III. Строительная часть. Конструкции железобетонные |
| Дата добавления в базу: | 01.09.2013 |
| Дата актуализации: | 01.01.2021 |
| Дата введения: | 26.06.1986 |
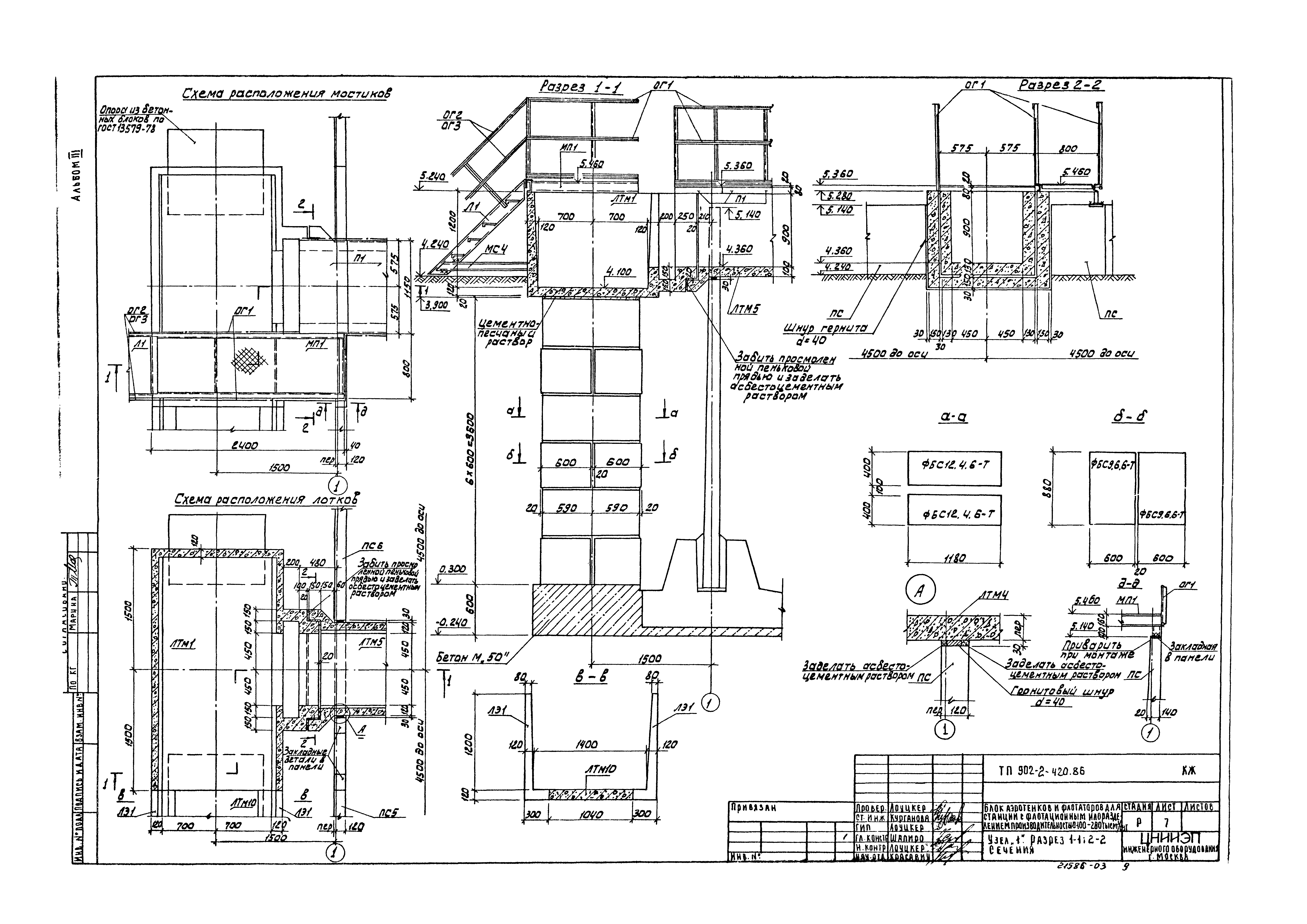
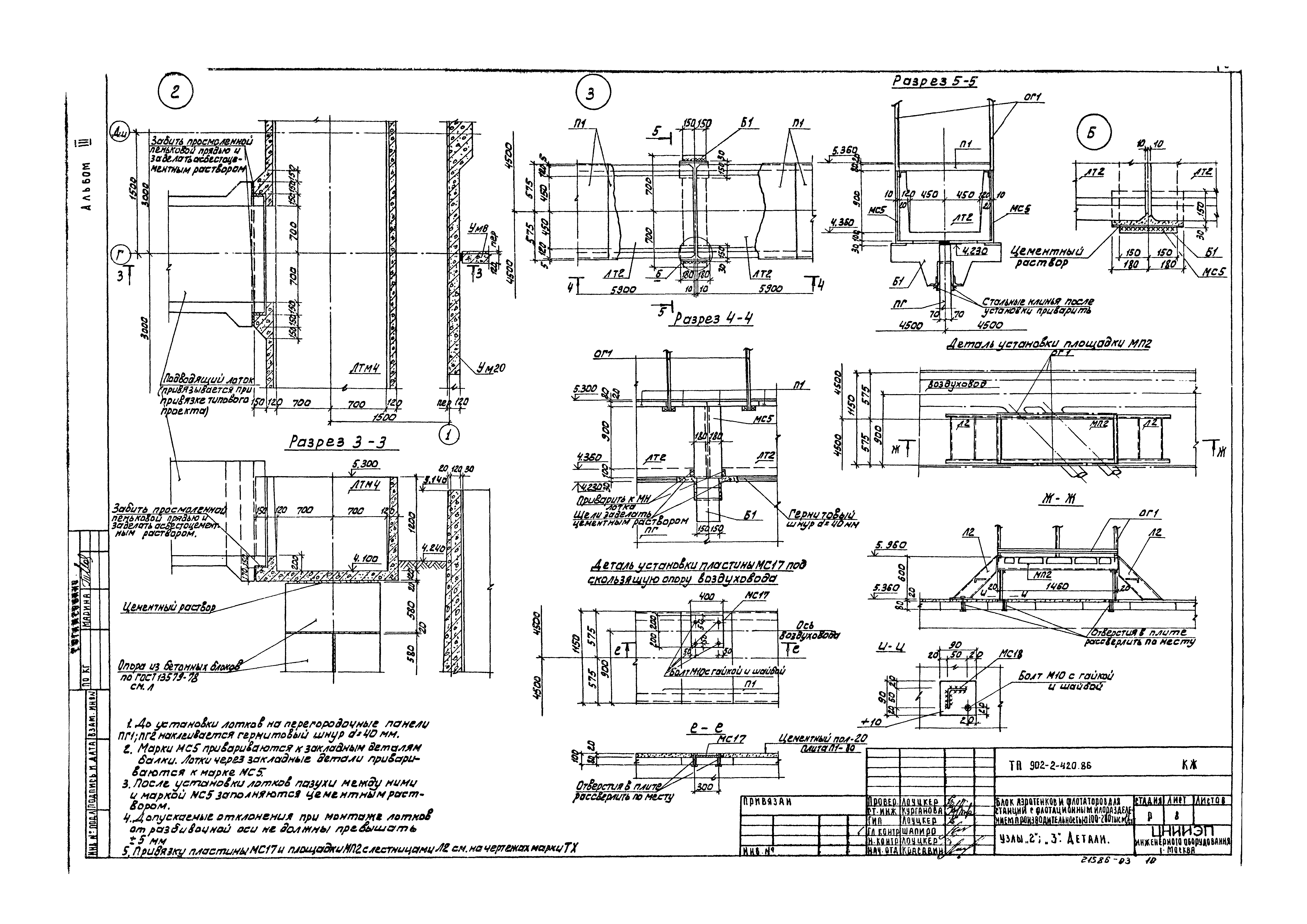
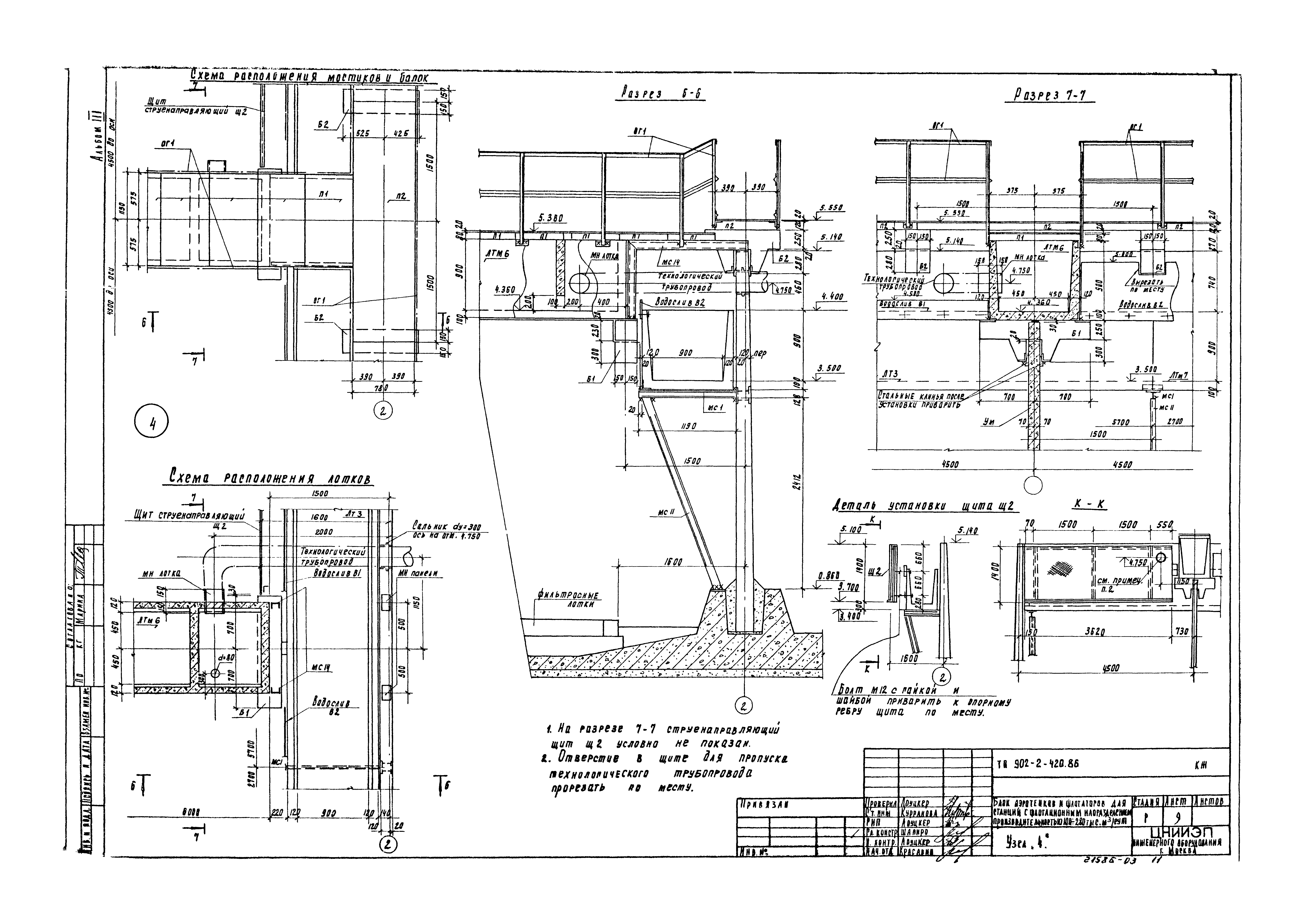
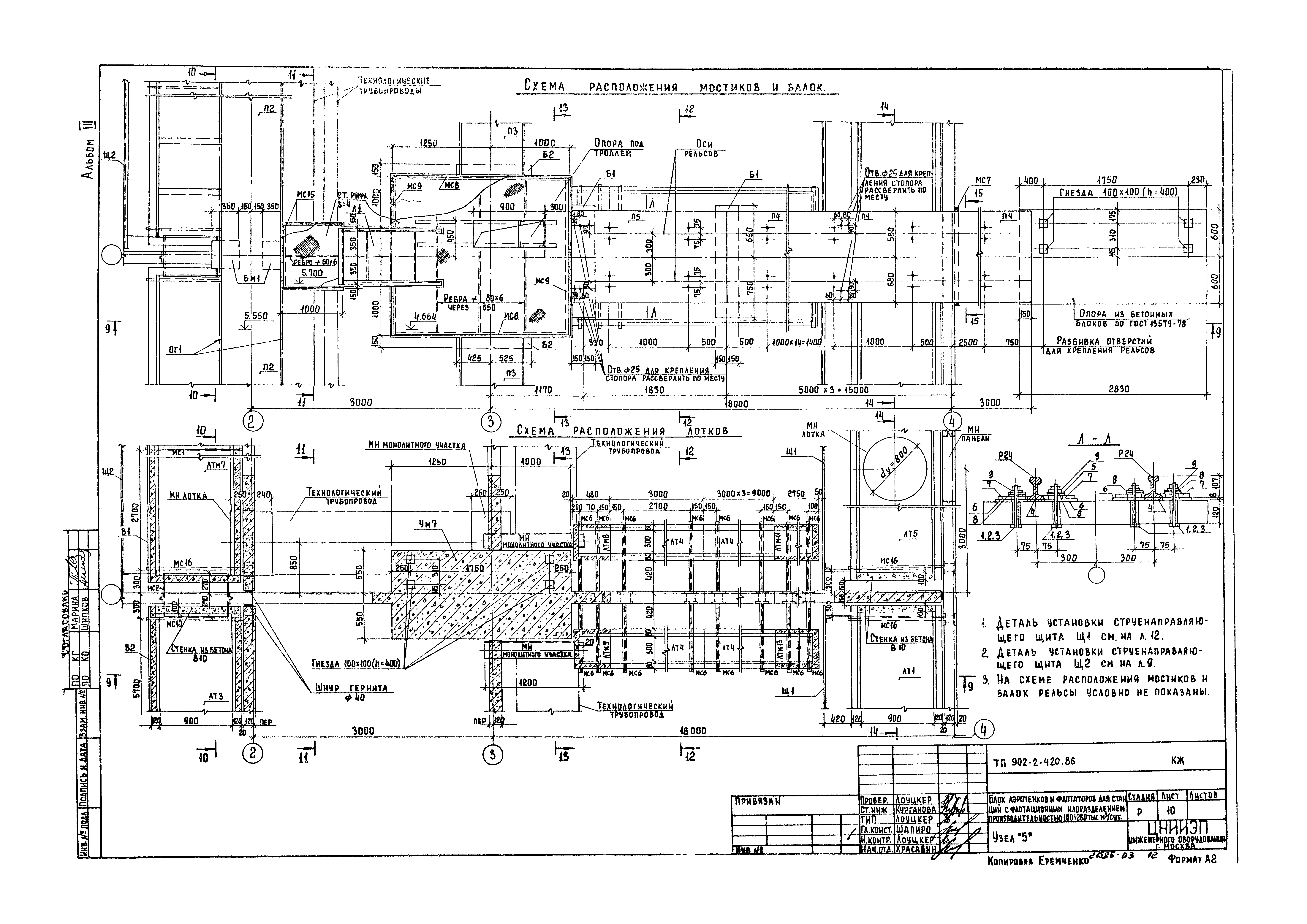
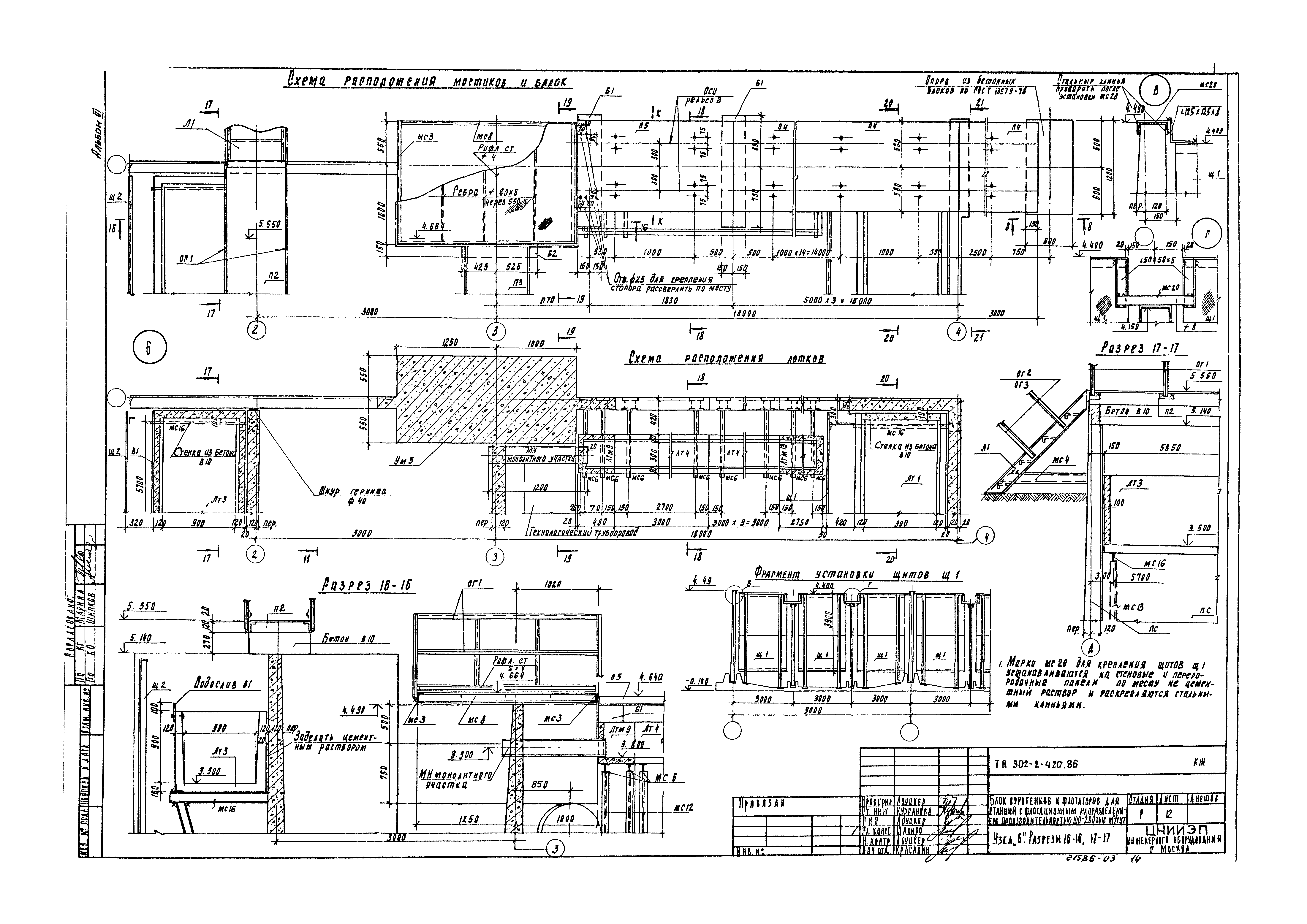
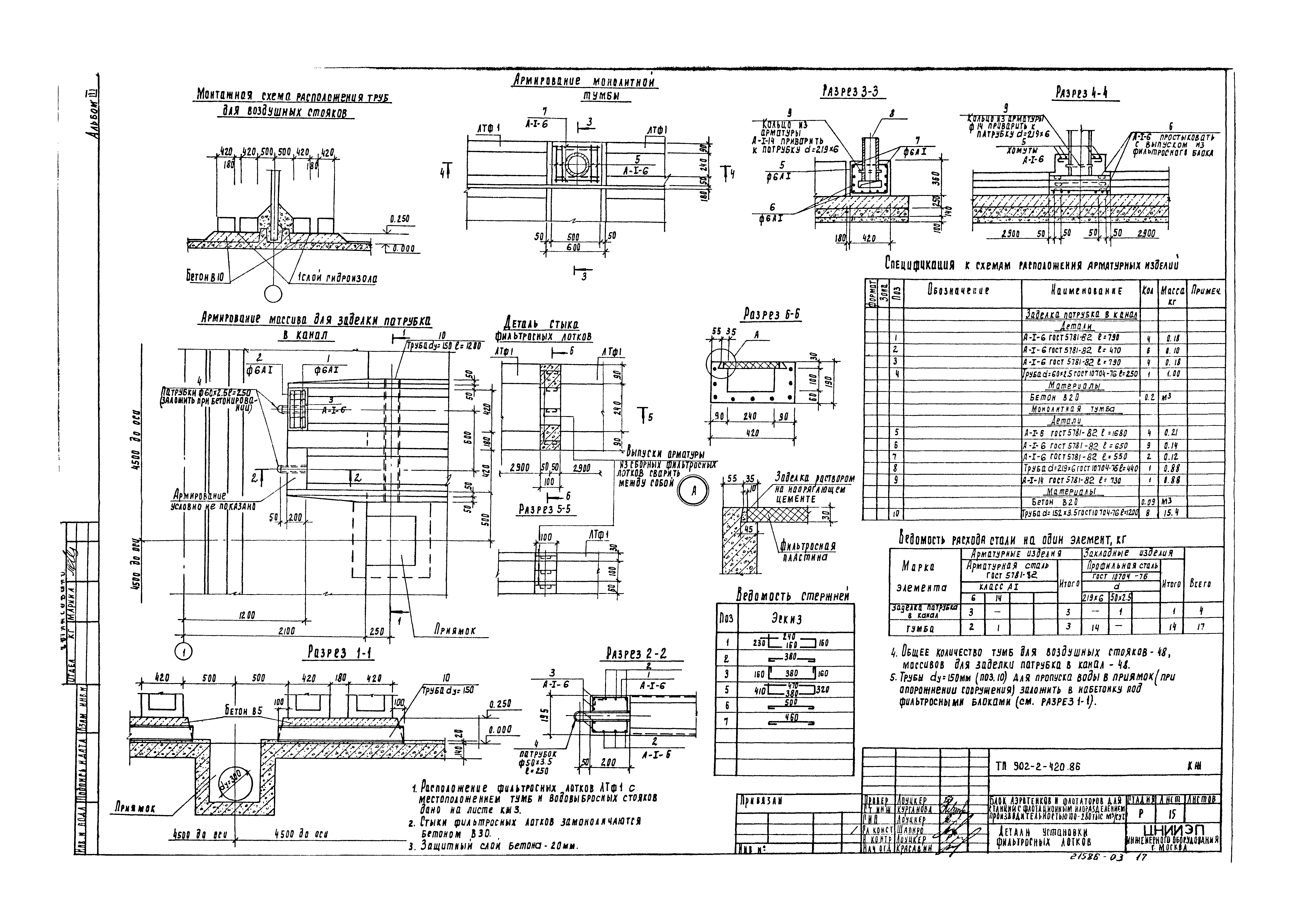
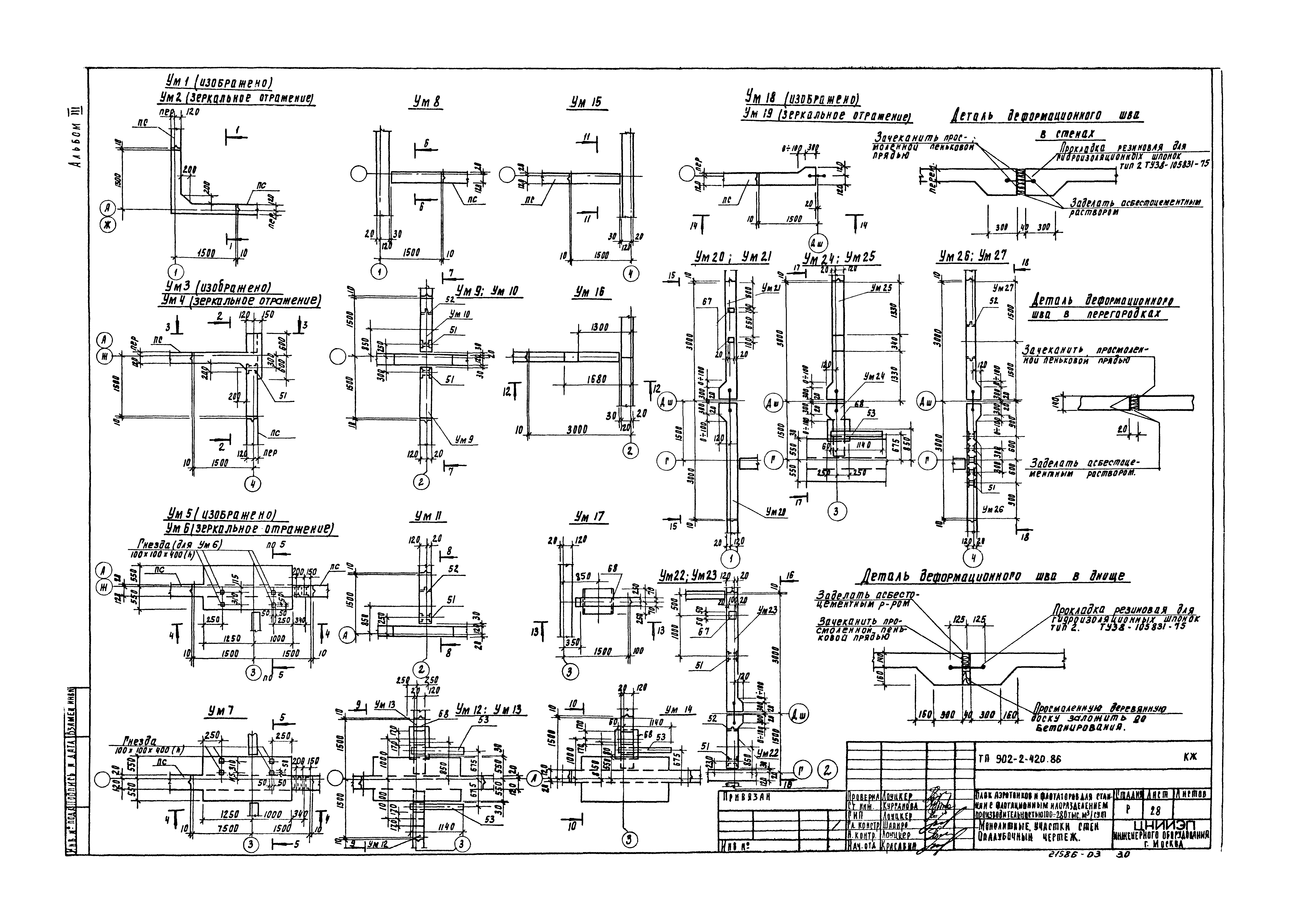
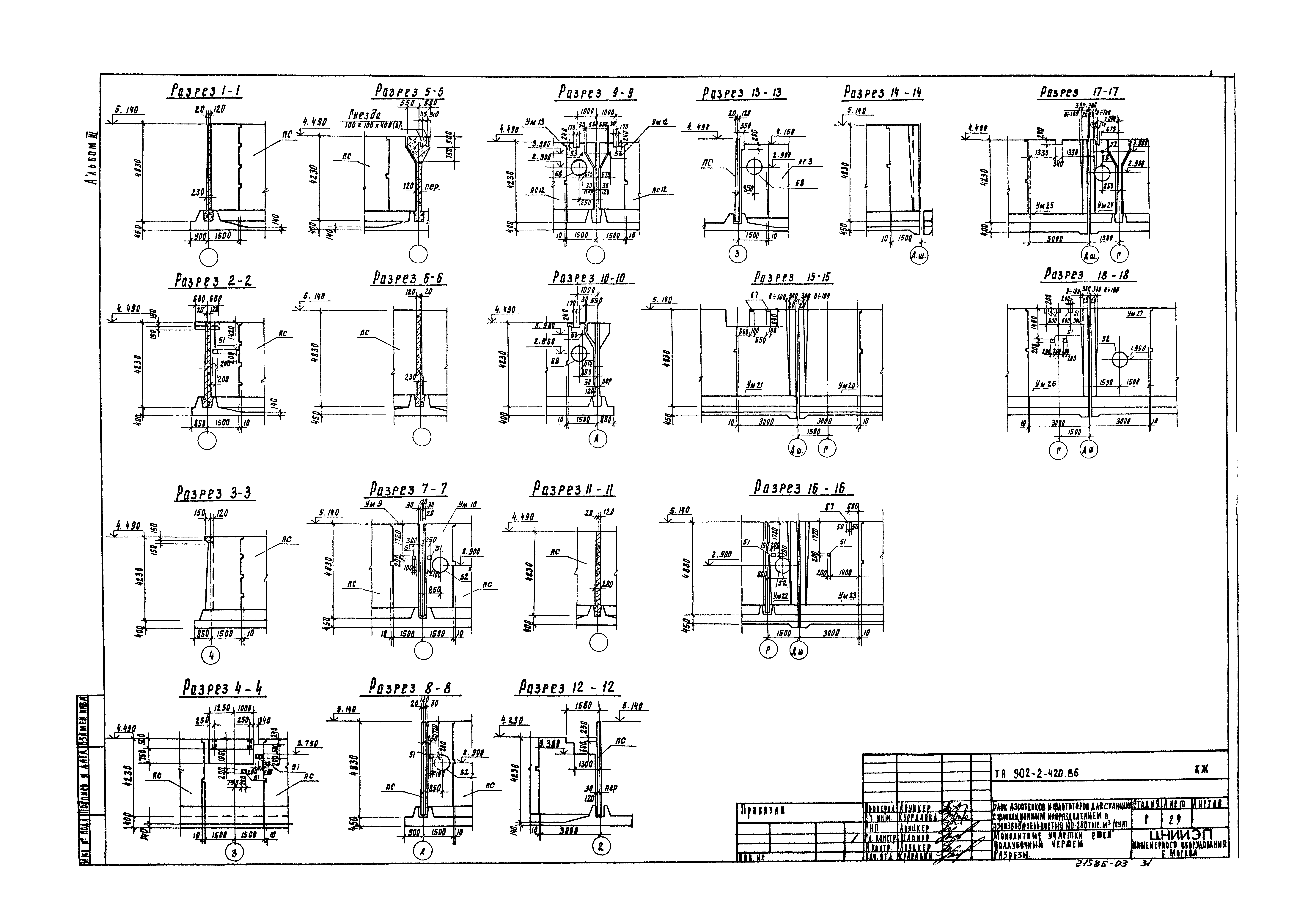
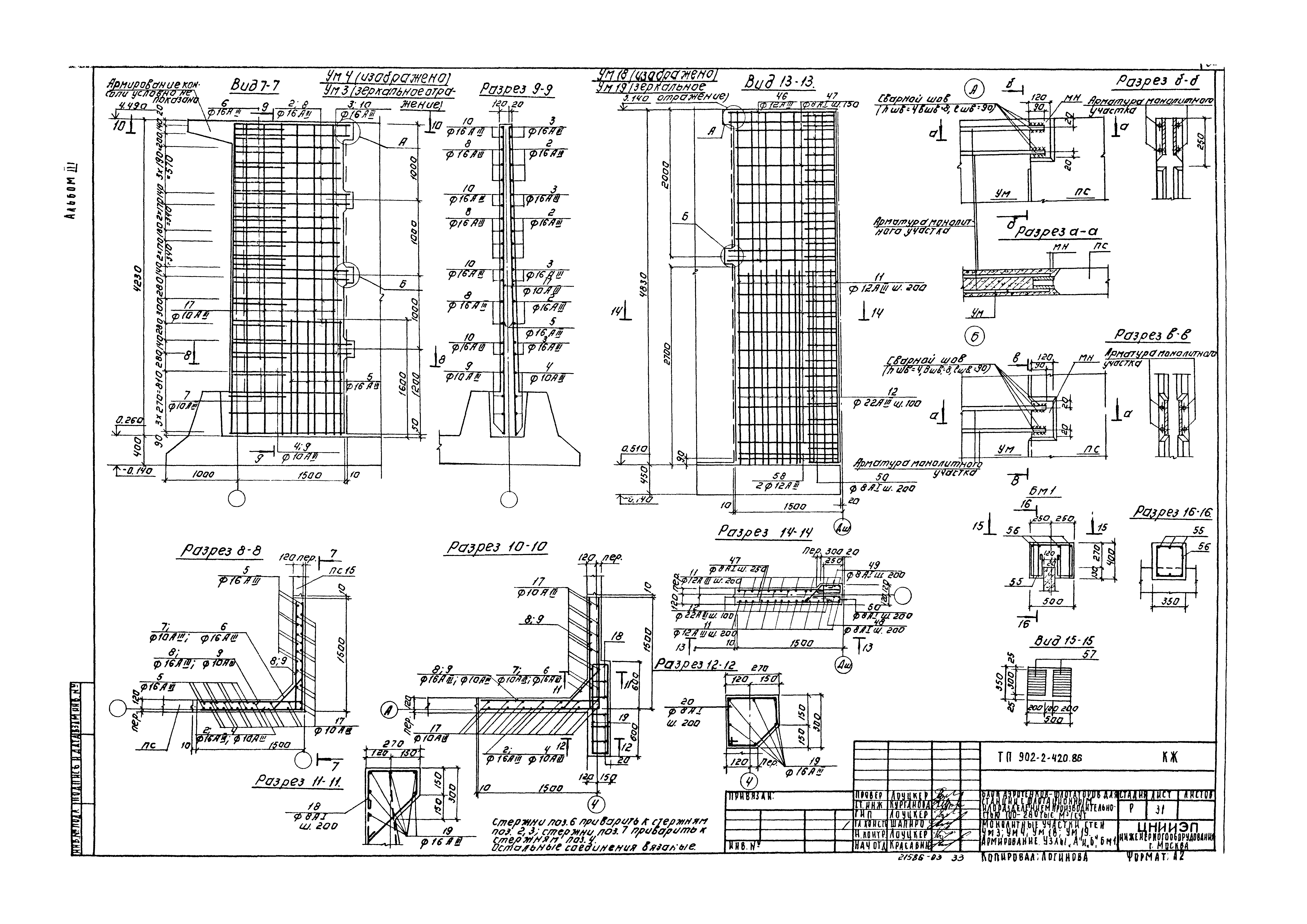
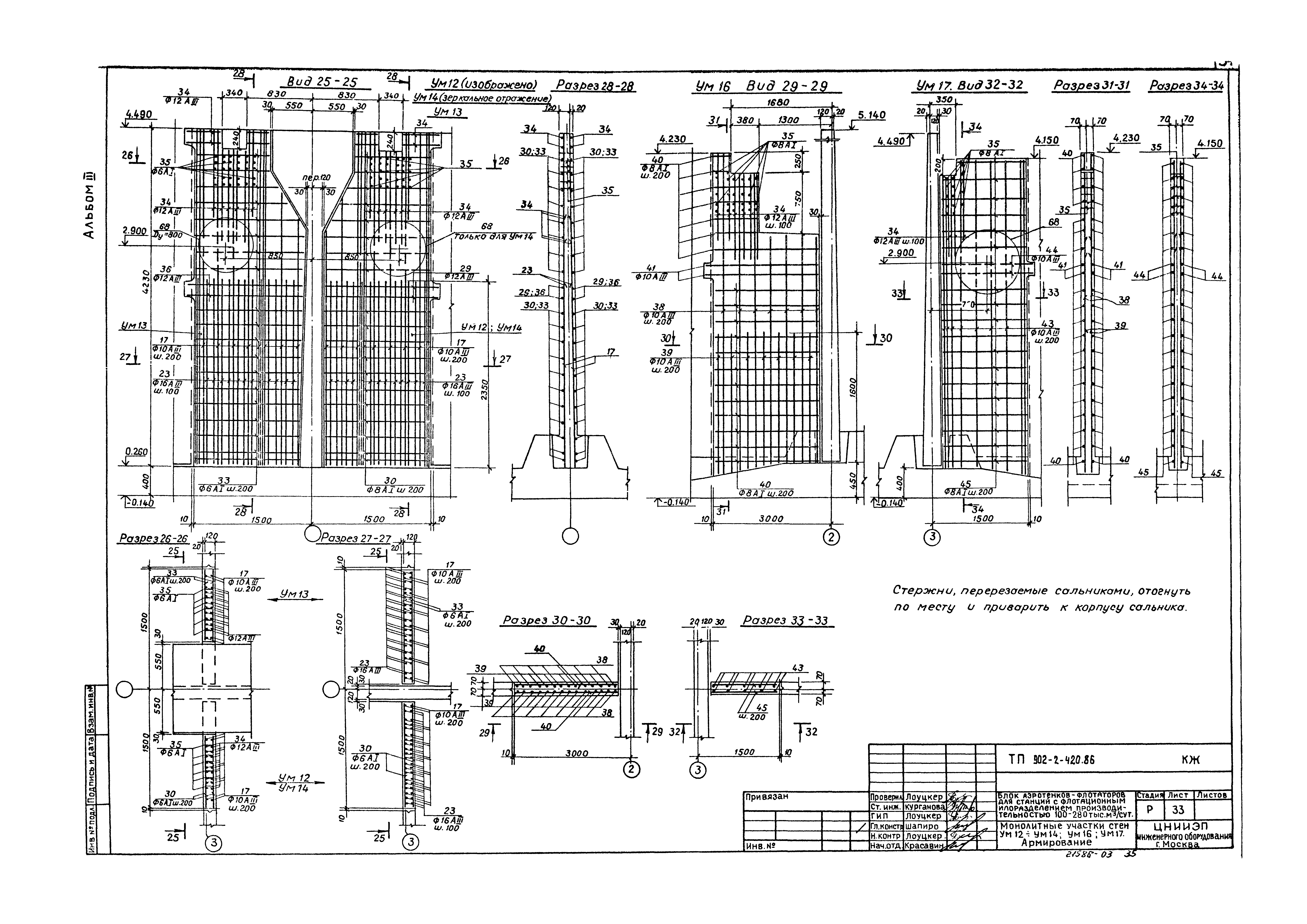
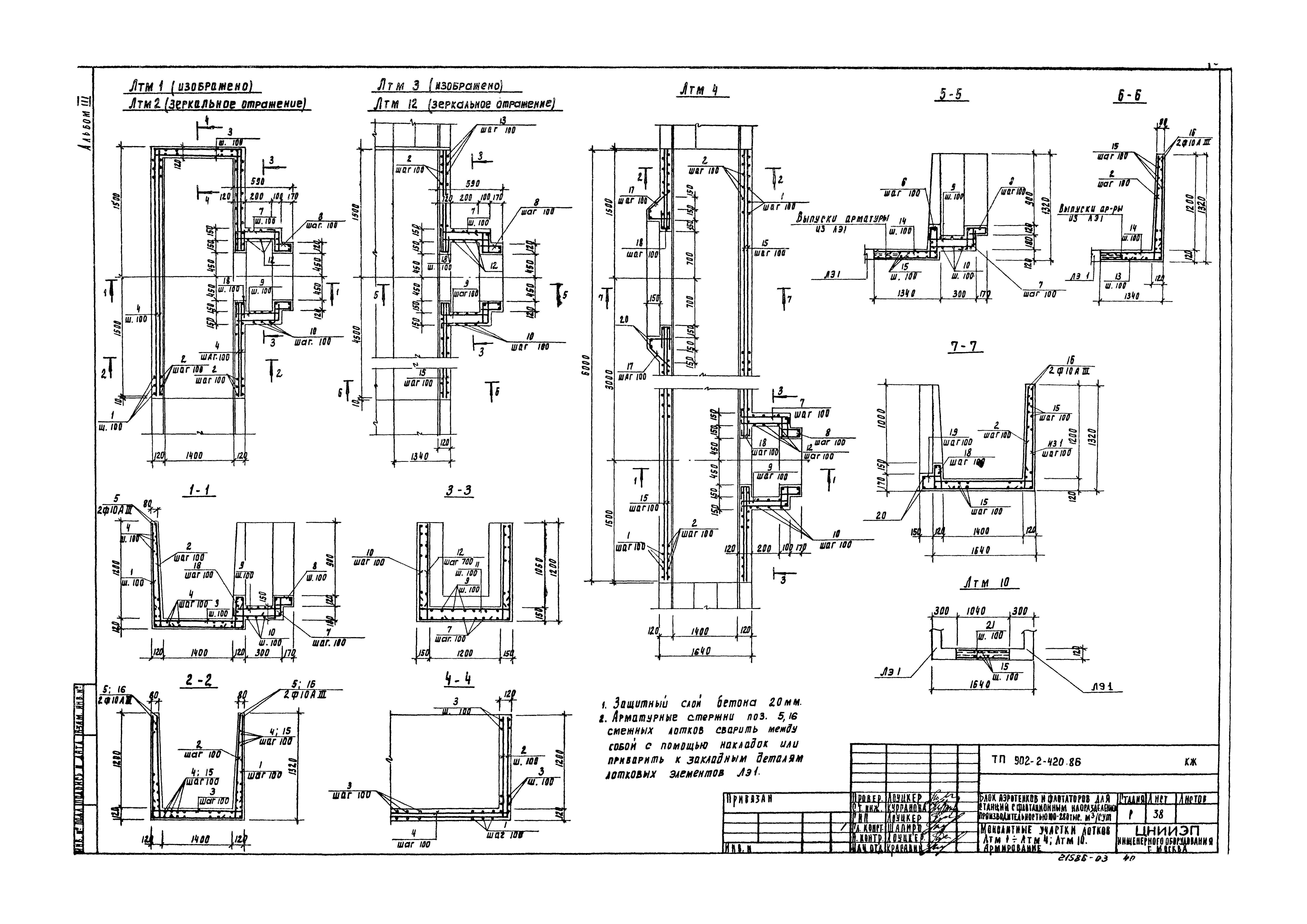
| Оглавление: | ТП 902-2-420.86-КЖ-1 Общие данные ТП 902-2-420.86-КЖ-2 Схемы компоновки блоков ТП 902-2-420.86-КЖ-3 Схема расположения стеновых панелей и фильтросных лотков ТП 902-2-420.86-КЖ-4 Схема расположения лотков и балок ТП 902-2-420.86-КЖ-5 Схема расположения мостиков и балок ТП 902-2-420.86-КЖ-6 Разрезы 1-1÷5-5 ТП 902-2-420.86-КЖ-7 Узел "1". Разрезы 1-1; 2-2. Сечения ТП 902-2-420.86-КЖ-8 Узел "2","3". Детали ТП 902-2-420.86-КЖ-9 Узел "4" ТП 902-2-420.86-КЖ-10 Узел "5" ТП 902-2-420.86-КЖ-11 Узел "5". Разрезы 9-9÷11-11 ТП 902-2-420.86-КЖ-12 Узел "6". Разрезы 16-16,÷17-17 ТП 902-2-420.86-КЖ-13 Узел "5". Разрезы 12-12÷15-15. Узел "6". Разрезы 18-18÷22-22,8-8 ТП 902-2-420.86-КЖ-14 Спецификация к схемам расположения стеновых панелей и фильтросных лотков и балок, мостиков и балок ТП 902-2-420.86-КЖ-15 Детали установки фильтросных лотков ТП 902-2-420.86-КЖ-16 Днище. Опалубочный чертеж. План ТП 902-2-420.86-КЖ-17 Днище. Опалубочный чертеж. Разрезы 1-1÷4-4. Узлы 8,9 ТП 902-2-420.86-КЖ-18 Днище. Опалубочный чертеж. Узлы 1-7 ТП 902-2-420.86-КЖ-19 Днище. Армирование. Схема расположения нижних сеток в осях "А"-"Дш" ТП 902-2-420.86-КЖ-20 Днище. Армирование. Схема расположения нижних сеток в осях "Дш"-"Ж" ТП 902-2-420.86-КЖ-21 Днище. Армирование. Схема расположения верхних сеток в осях "А"-"Дш" ТП 902-2-420.86-КЖ-22 Днище. Армирование. Схема расположения верхних сеток в осях "Дш"-"Ж" ТП 902-2-420.86-КЖ-23 Днище. Армирование. Схема расположения каркасов. Разрез 1-1 ТП 902-2-420.86-КЖ-24 Днище. Армирование. Разрезы 2-2÷4-4 ТП 902-2-420.86-КЖ-25 Днище. Армирование. Узлы 1-8 ТП 902-2-420.86-КЖ-26 Днище. Армирование. Узлы 9-14 ТП 902-2-420.86-КЖ-27 Днище. Армирование. Спецификация ТП 902-2-420.86-КЖ-28 Монолитные участки стен. Опалубочный чертеж ТП 902-2-420.86-КЖ-29 Монолитные участки стен. Опалубочный чертеж. Разрезы ТП 902-2-420.86-КЖ-30 Монолитные участки стен УМ1,УМ2,УМ8-УМ11. Армирование ТП 902-2-420.86-КЖ-31 Монолитные участки стен УМ3,УМ4,УМ18,УМ19. Армирование. Узлы "А" и "Б";БМ1 ТП 902-2-420.86-КЖ-32 Монолитные участки стен УМ5-УМ7,УМ15. Армирование ТП 902-2-420.86-КЖ-33 Монолитные участки стен УМ12-УМ14,УМ16,УМ17. Армирование ТП 902-2-420.86-КЖ-34 Монолитные участки стен УМ20-УМ23. Армирование ТП 902-2-420.86-КЖ-35 Монолитные участки стен УМ24,УМ25-УМ27. Армирование ТП 902-2-420.86-КЖ-36 Монолитные участки стен. Спецификация (начало) ТП 902-2-420.86-КЖ-37 Монолитные участки стен. Спецификация (окончание) ТП 902-2-420.86-КЖ-38 Монолитные участки лотков ЛТМ1-ЛТМ4;ЛТМ10. Армирование ТП 902-2-420.86-КЖ-39 Монолитные участки лотков ЛТМ1-ЛТМ4;ЛТМ10. Армирование ТП 902-2-420.86-КЖ-40 Монолитные участки лотков. Армирование. Спецификация ТП 902-2-420.86-КЖ-41 6ти метровая вставка аэротенка ТП 902-2-420.86-КЖ-42 6ти метровая вставка флотатора |
| Разработан: | ЦНИИЭП |
| Утверждён: | 19.08.1982 Госгражданстрой (Gosgrazhdanstroy 224) |











































