Скачать Типовой проект 901-5-33.85 Альбом I. Архитектурно-строительные решения. Технологическая, электротехническая части и автоматикаДата актуализации: 01.01.2021
|
| Обозначение: | Типовой проект 901-5-33.85 |
| Обозначение англ: | 901-5-33.85 |
| Статус: | действует |
| Название рус.: | Альбом I. Архитектурно-строительные решения. Технологическая, электротехническая части и автоматика |
| Дата добавления в базу: | 01.09.2013 |
| Дата актуализации: | 01.01.2021 |
| Дата введения: | 10.09.1984 |
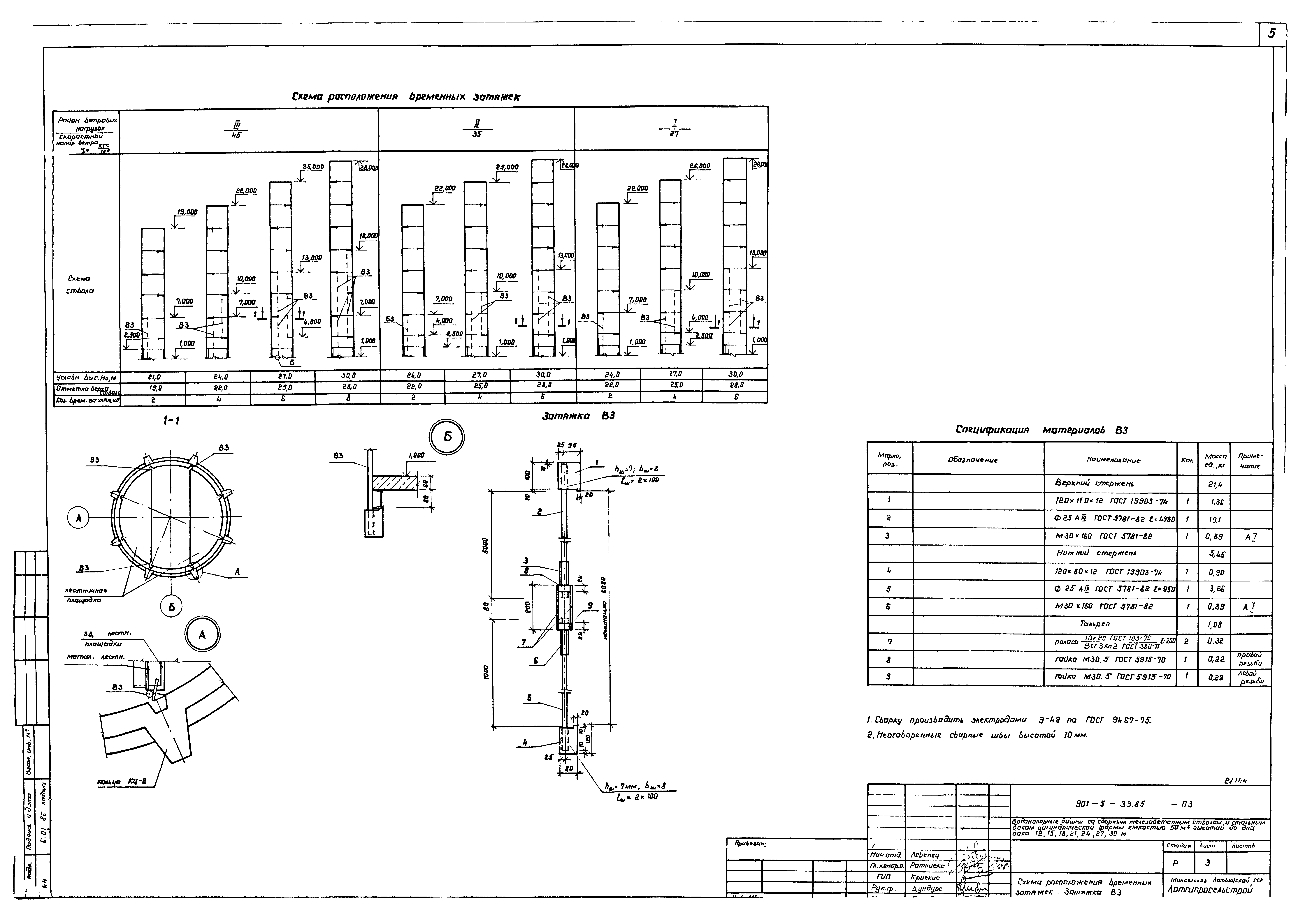
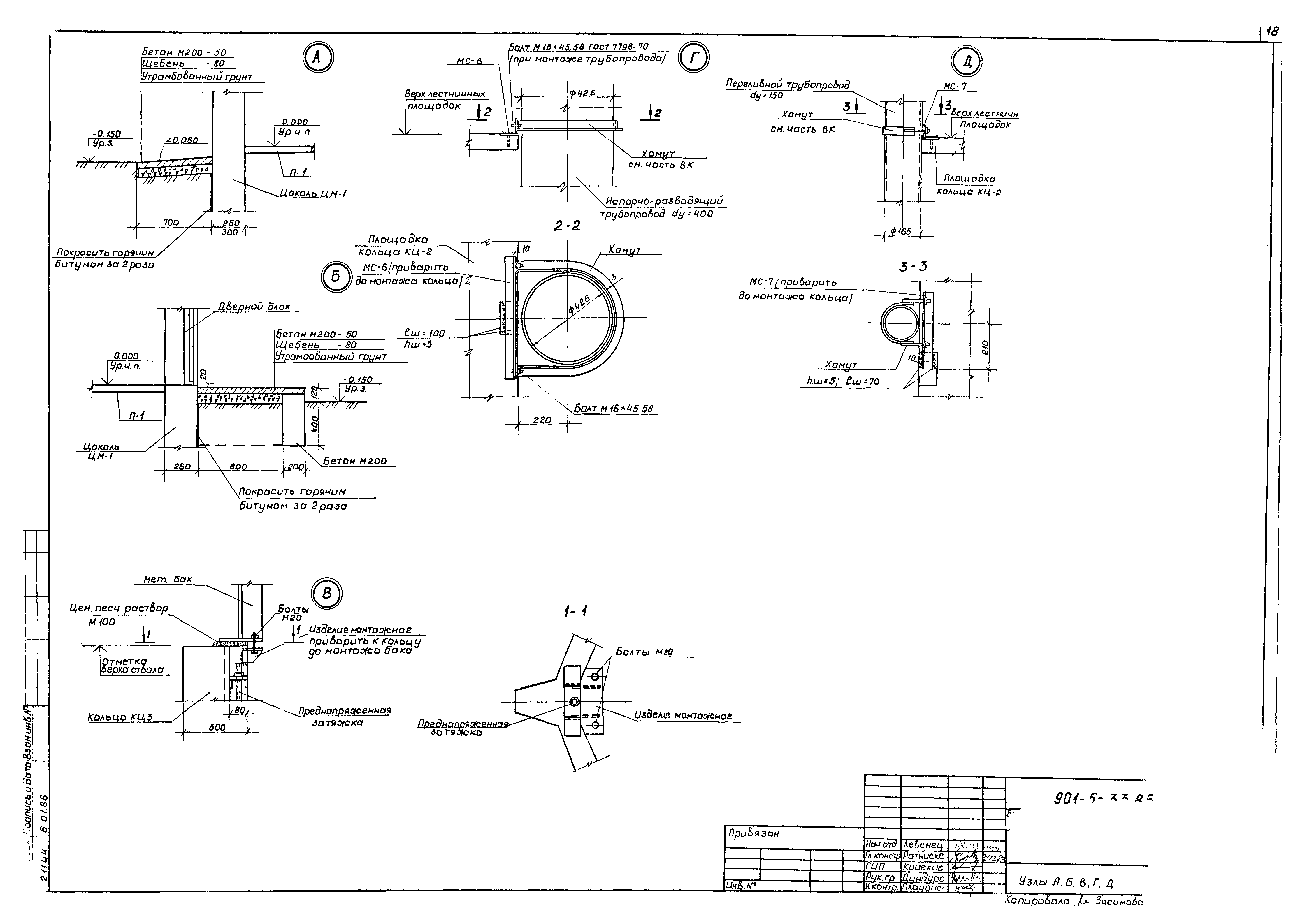
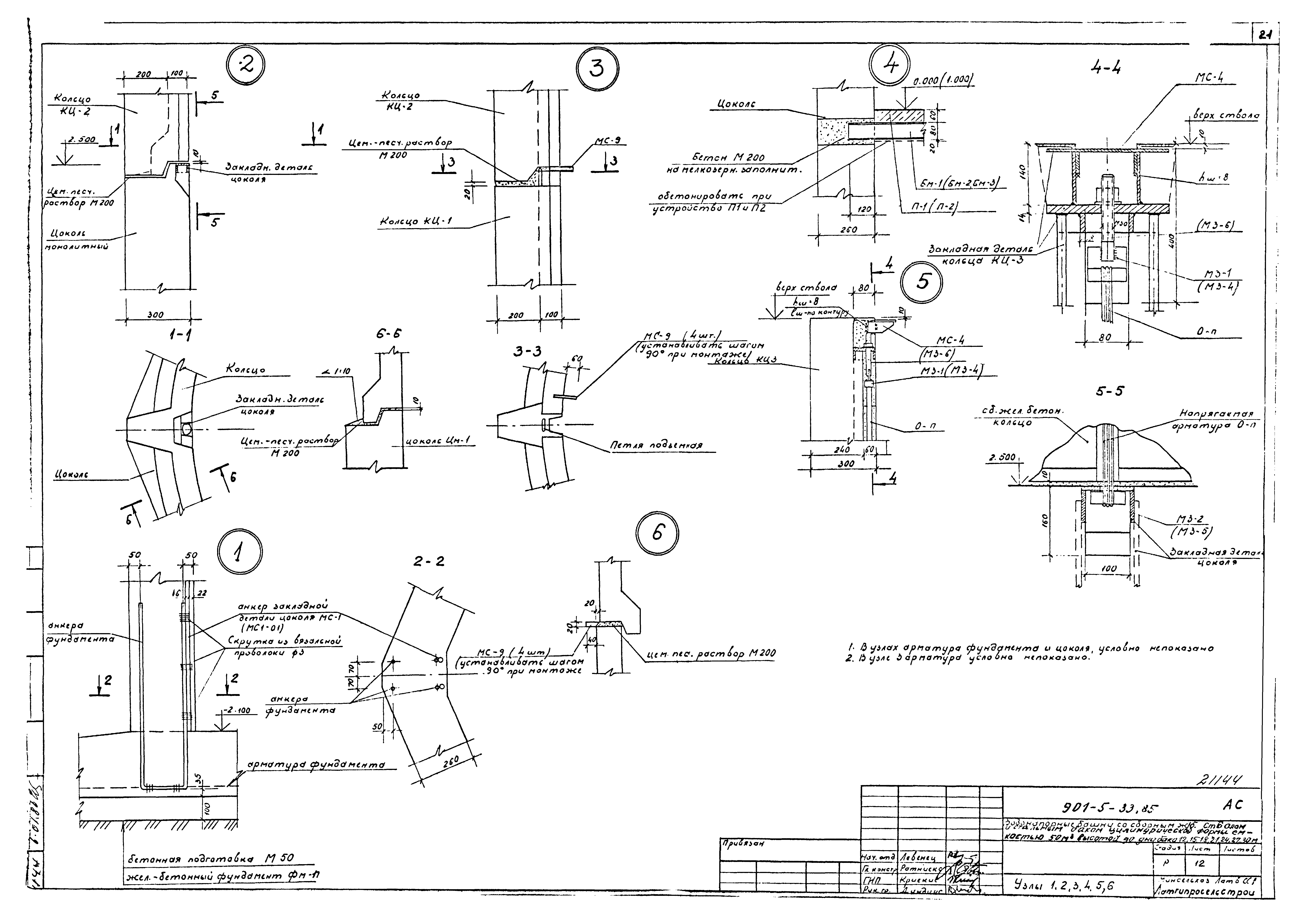
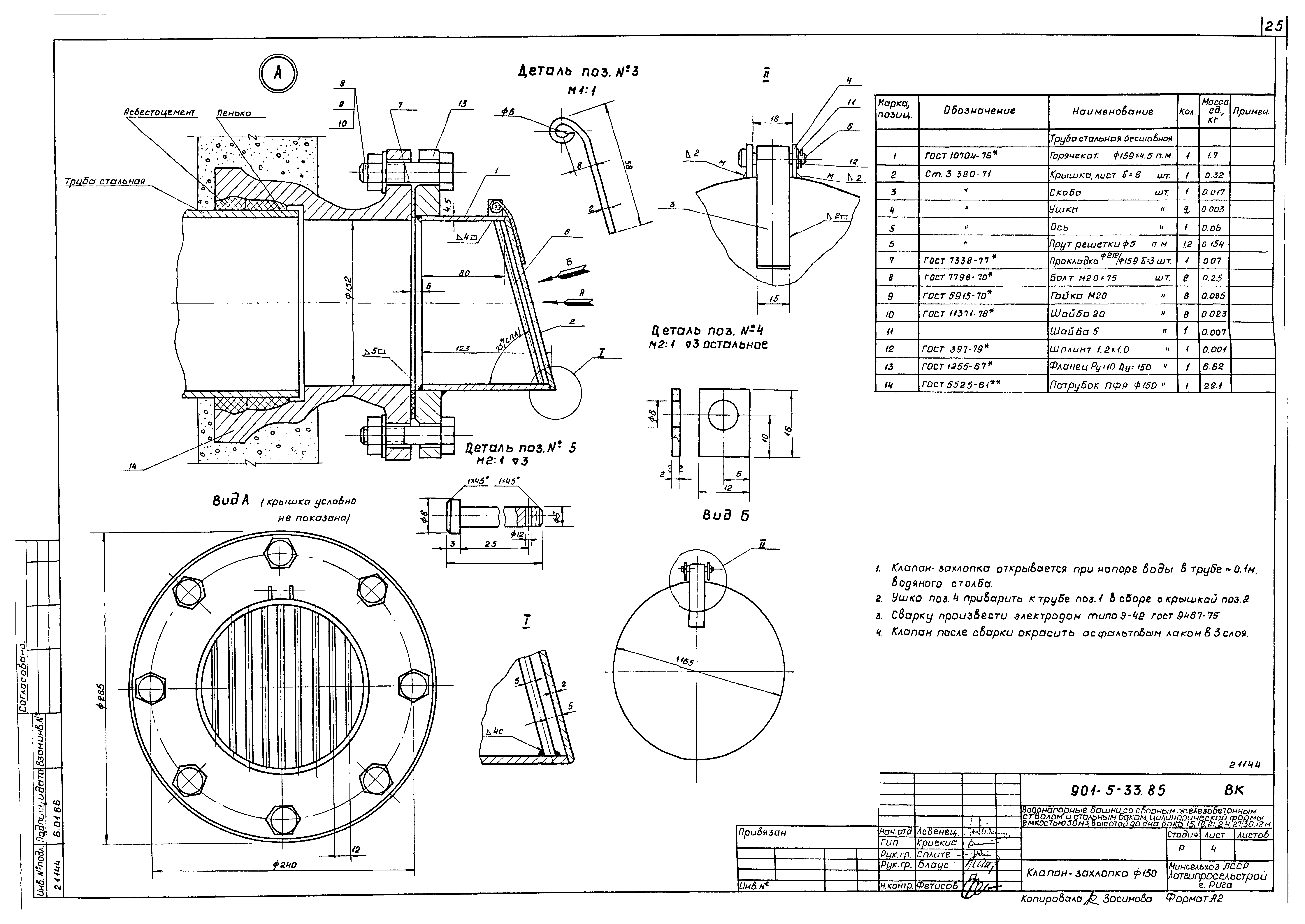
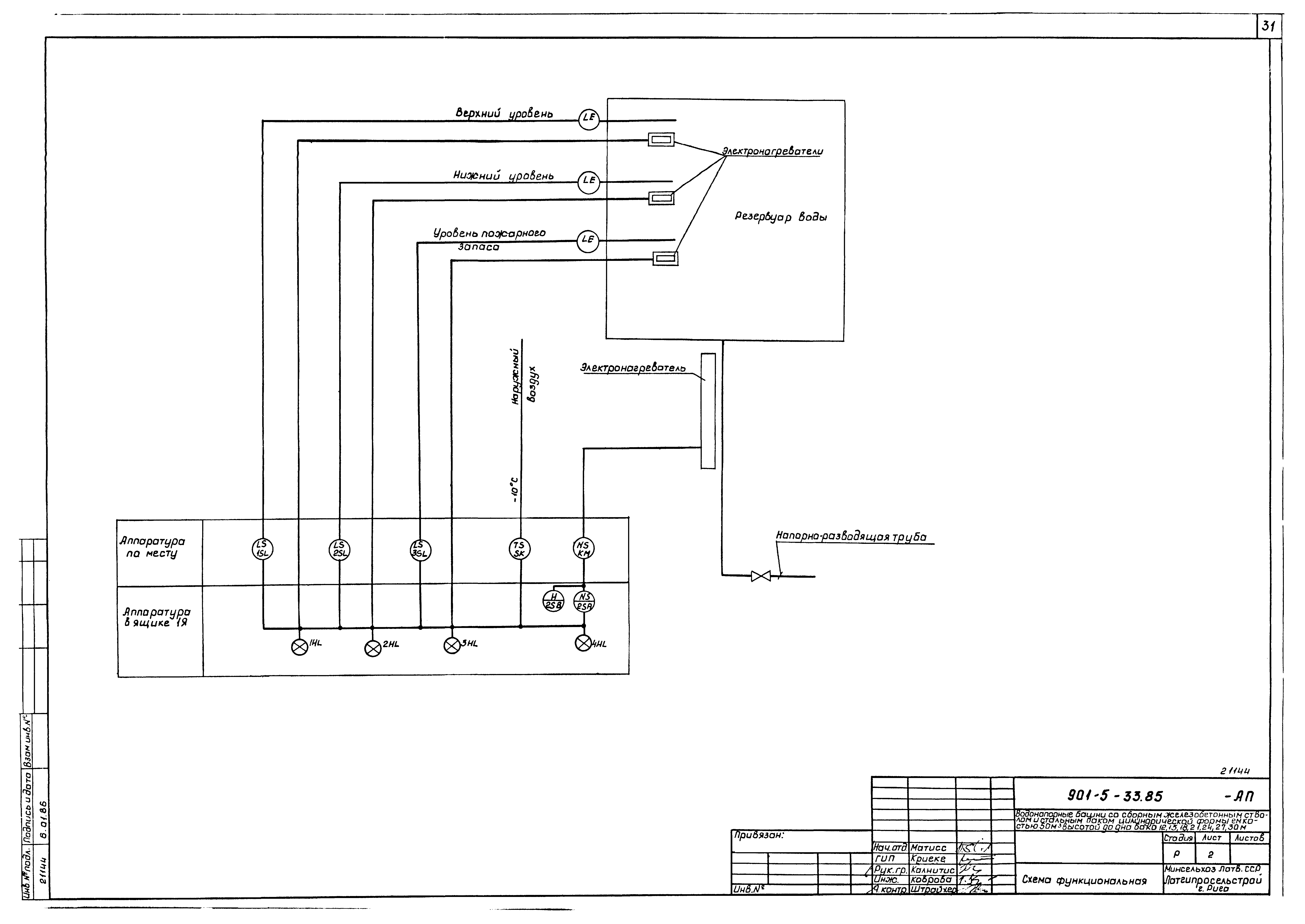
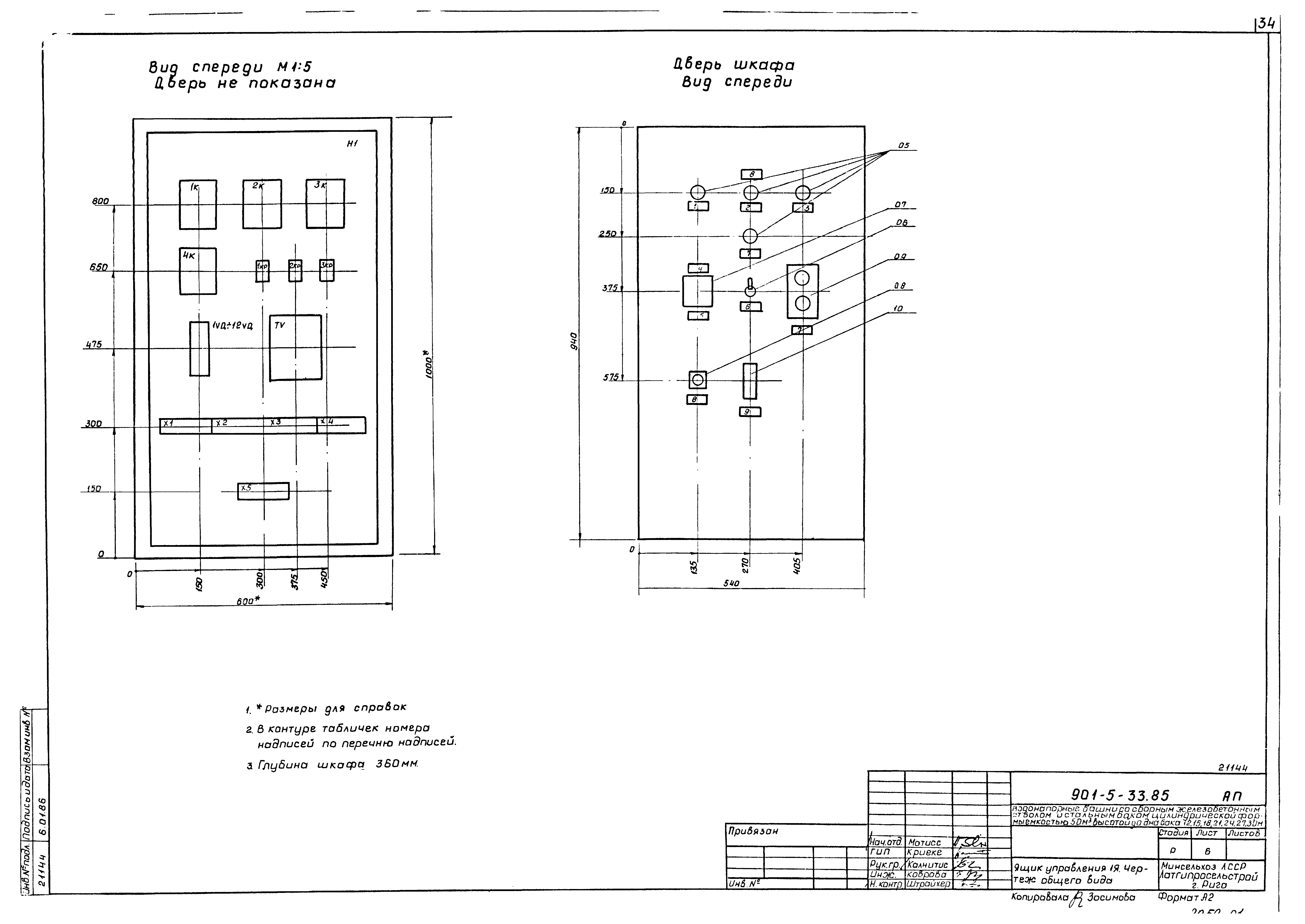
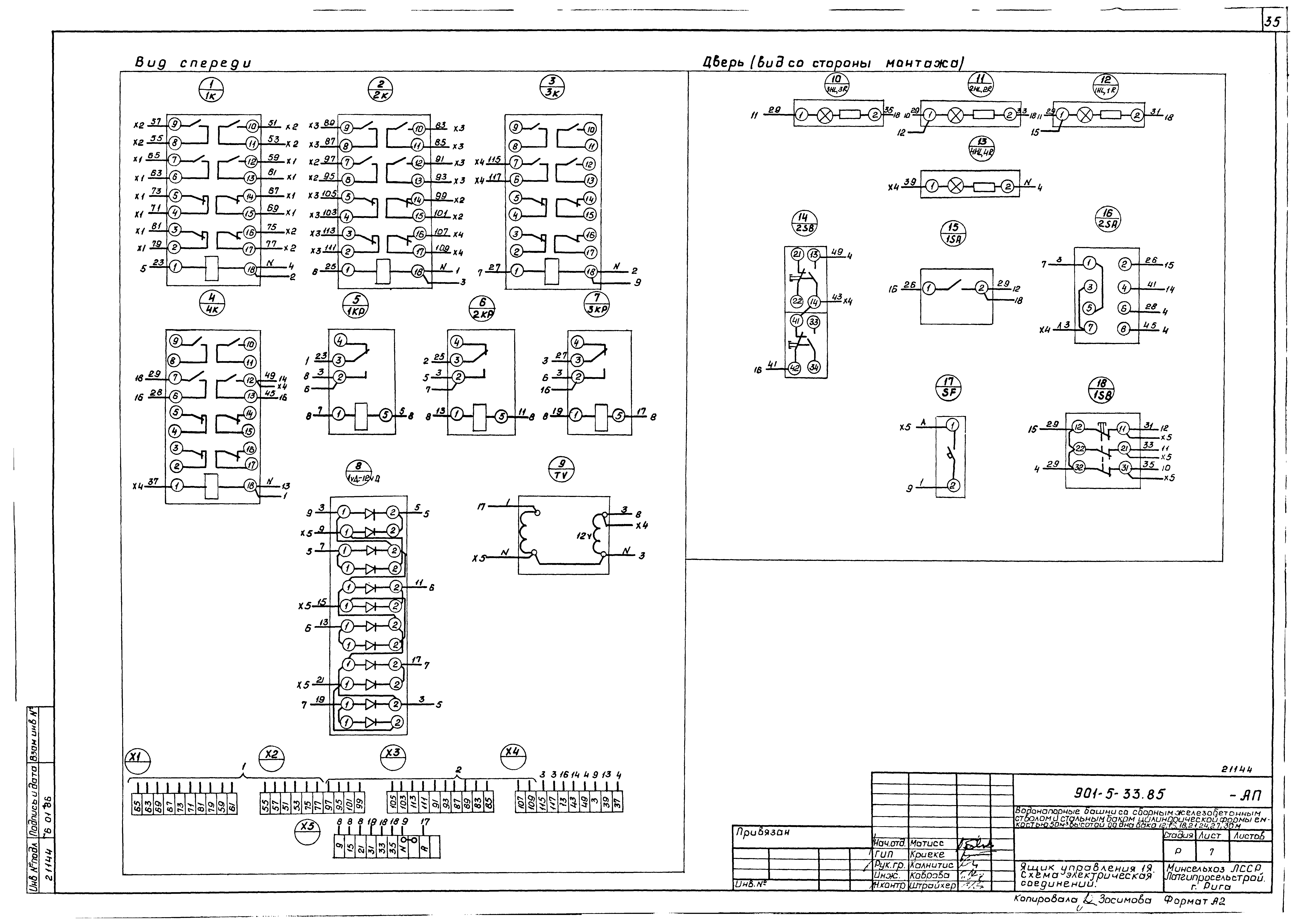
| Оглавление: | ТП 901-5-33.85 Обложка ТП 901-5-33.85 Титульный лист ТП 901-5-33.85 Содержание альбома ТП 901-5-33.85 Пояснительная записка ТП 901-5-33.85-АС Чертежи марки АС ТП 901-5-33.85-АС-1 Общие данные ТП 901-5-33.85-АС-2 Водонапорная башня ВБЛС-12-50/2-1(2). Фасад, разрез, планы ТП 901-5-33.85-АС-3 Водонапорная башня ВБЛС-15-50/2-1(2). Фасад, разрез, планы ТП 901-5-33.85-АС-4 Водонапорная башня ВБЛС-18-50/2-1(2). Фасад, разрез, планы ТП 901-5-33.85-АС-5 Водонапорная башня ВБЛС-21-50/2-1(2). Фасад, разрез, планы ТП 901-5-33.85-АС-6 Водонапорная башня ВБЛС-24-50/2-1(2). Фасад, разрез, планы ТП 901-5-33.85-АС-7 Водонапорная башня ВБЛС-27-50/2-1(2). Фасад, разрез, планы ТП 901-5-33.85-АС-8 Водонапорная башня ВБЛС-30-50/2-1(2). Фасад, разрез, планы ТП 901-5-33.85-АС-9 Узлы А,Б,В,Г,Д ТП 901-5-33.85-АС-10 Монтажная схема и узлы лестниц ТП 901-5-33.85-АС-11 Схема расположения элементов ствола ТП 901-5-33.85-АС-12 Узлы 1,2,3,4,5,6 ТП 901-5-33.85-ВК Чертежи марки ВК ТП 901-5-33.85-ВК-1 Общие данные ТП 901-5-33.85-ВК-2 Разрез 1-1. Монтажная схема оборудования башни ТП 901-5-33.85-ВК-3 Планы башни. Спецификация труб, фасонных частей и арматуры ТП 901-5-33.85-ВК-4 Клапан-захлопка ø150 ТП 901-5-33.85-ВК-5 Узлы Г,Д ТП 901-5-33.85-ВК-5.1 Изделие монтажное М1 ТП 901-5-33.85-ВК-5.2 Изделие монтажное М2 ТП 901-5-33.85-ЭЛ Чертежи марки ЭЛ ТП 901-5-33.85-ЭЛ-1 Общие данные ТП 901-5-33.85-ЭЛ-2 Электрооборудование и молниезащита ТП 901-5-33.85-ЭЛ-3 Электрообогрев напорно-разводящего стояка ТП 901-5-33.85-АП Чертежи марки АП ТП 901-5-33.85-АП-1 Общие данные ТП 901-5-33.85-АП-2 Схема функциональная ТП 901-5-33.85-АП-3 Схема электрическая принципиальная ТП 901-5-33.85-АП-4.1,4.2 Ящик управления 1Я. Технические данные аппаратов ТП 901-5-33.85-АП-5 Ящик управления 1Я. Таблица перечня надписей ТП 901-5-33.85-АП-6 Ящик управления 1Я. Чертеж общего вида ТП 901-5-33.85-АП-7 Ящик управления 1Я. Схема электрическая соединений ТП 901-5-33.85-АП-8 Схема внешних соединений ТП 901-5-33.85-АП-9 План кабельных трасс ТП 901-5-33.85-АП-10 Датчик уровня с электрообогревом (начало) ТП 901-5-33.85-АП-11 Датчик уровня с электрообогревом (продолжение) ТП 901-5-33.85-АП-12 Датчик уровня с электрообогревом (продолжение) ТП 901-5-33.85-АП-13 Датчик уровня с электрообогревом (продолжение) ТП 901-5-33.85-АП-14 Датчик уровня с электрообогревом (окончание) ТП 901-5-33.85-АП-15 Пример установки датчиков уровня с электрообогревом |
| Разработан: | Латгипросельстрой |
| Утверждён: | 13.08.1984 Госстрой Латвийской ССР (125) |











































