Скачать Типовой проект 902-2-347 Альбом II. Строительная частьДата актуализации: 01.01.2021
|
| Обозначение: | Типовой проект 902-2-347 |
| Обозначение англ: | 902-2-347 |
| Статус: | не действует |
| Название рус.: | Альбом II. Строительная часть |
| Дата добавления в базу: | 01.09.2013 |
| Дата актуализации: | 01.01.2021 |
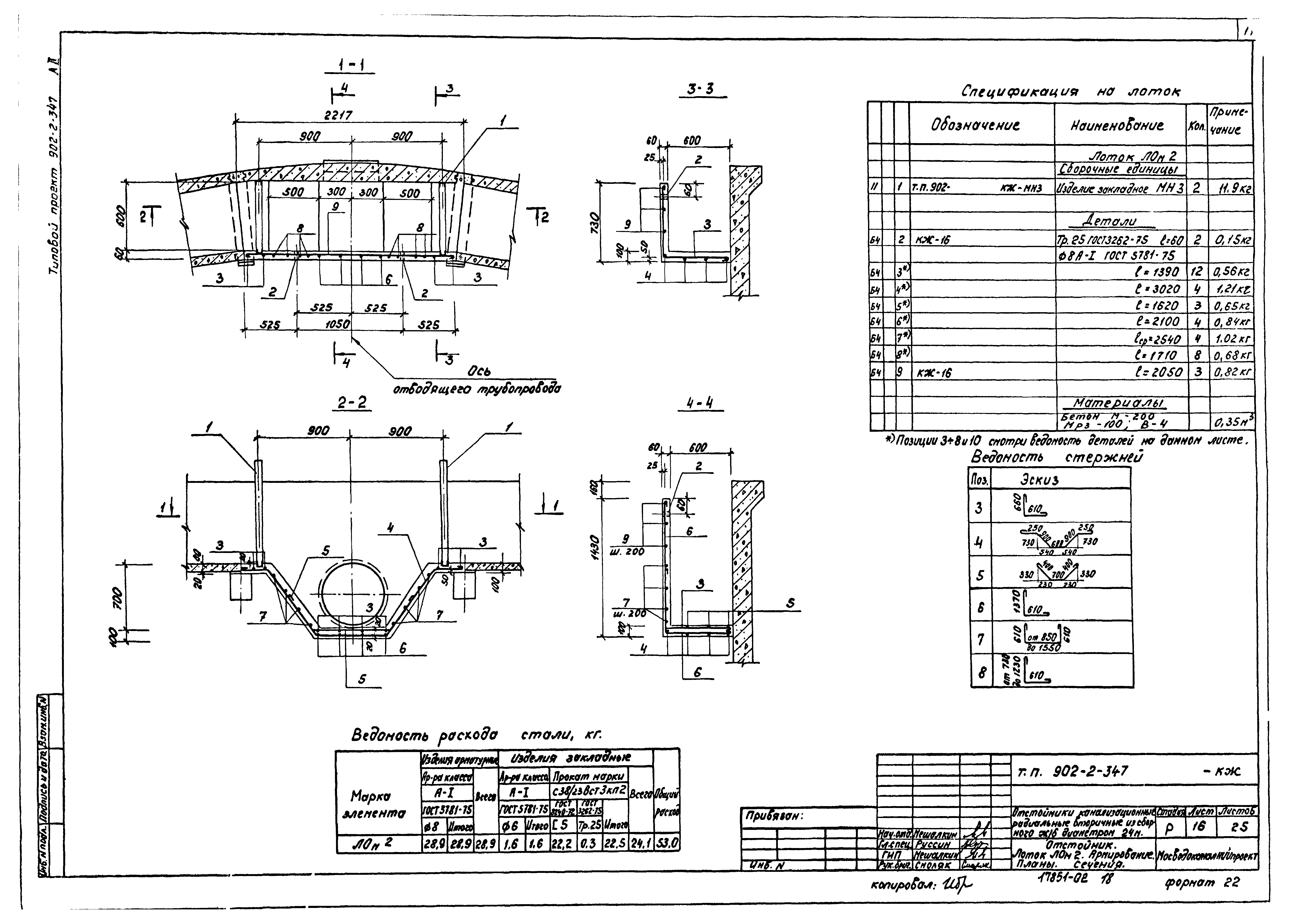
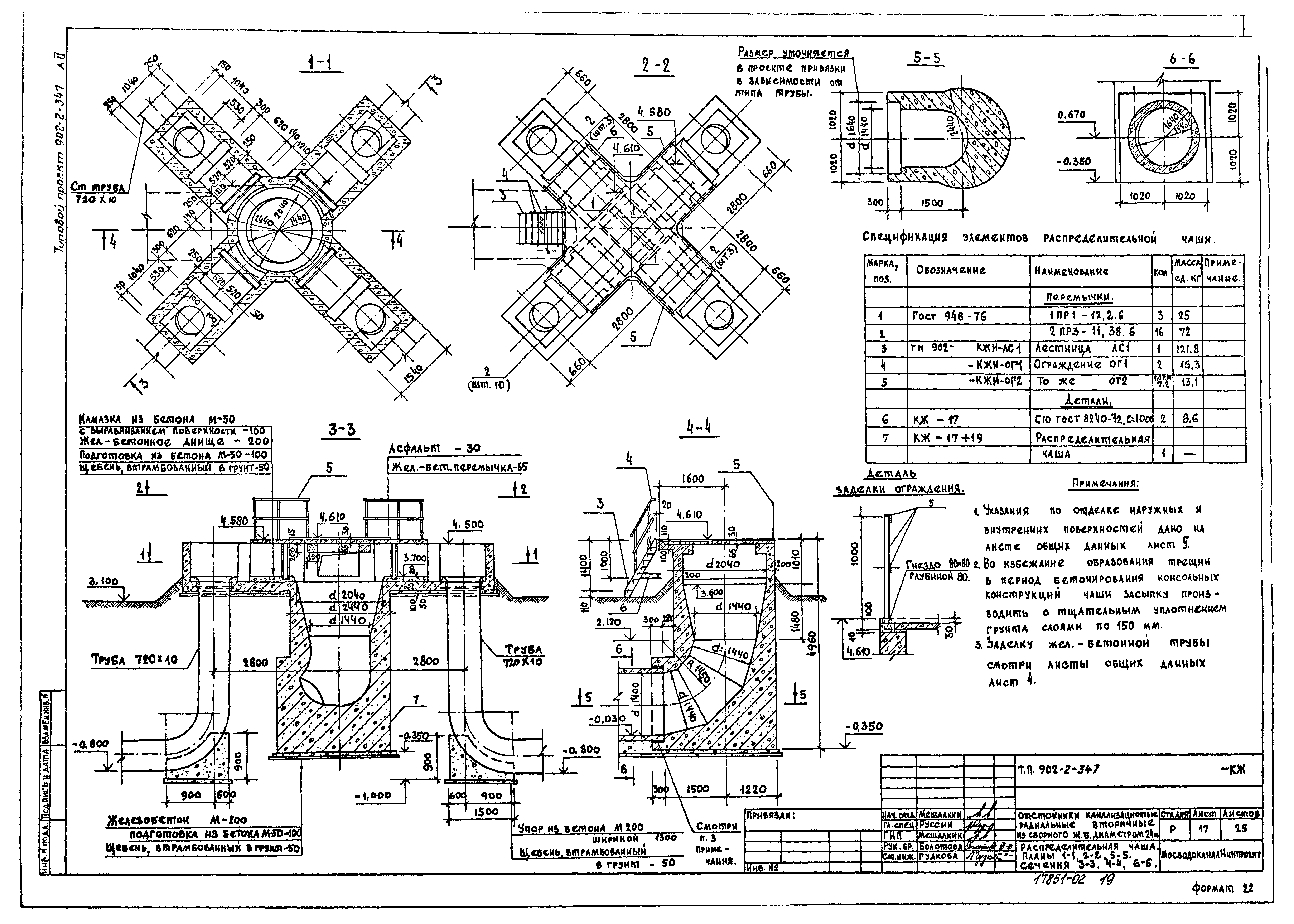
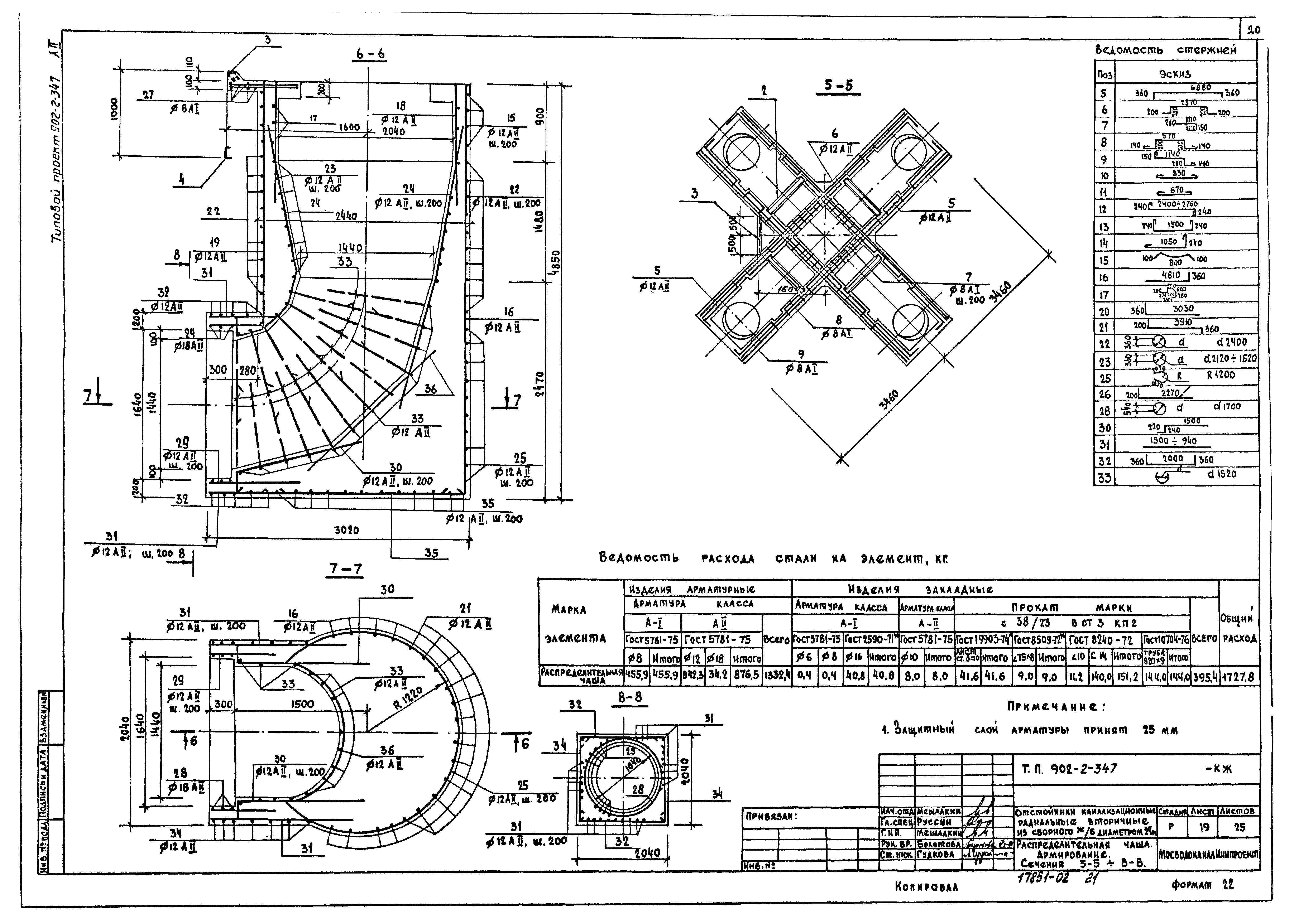
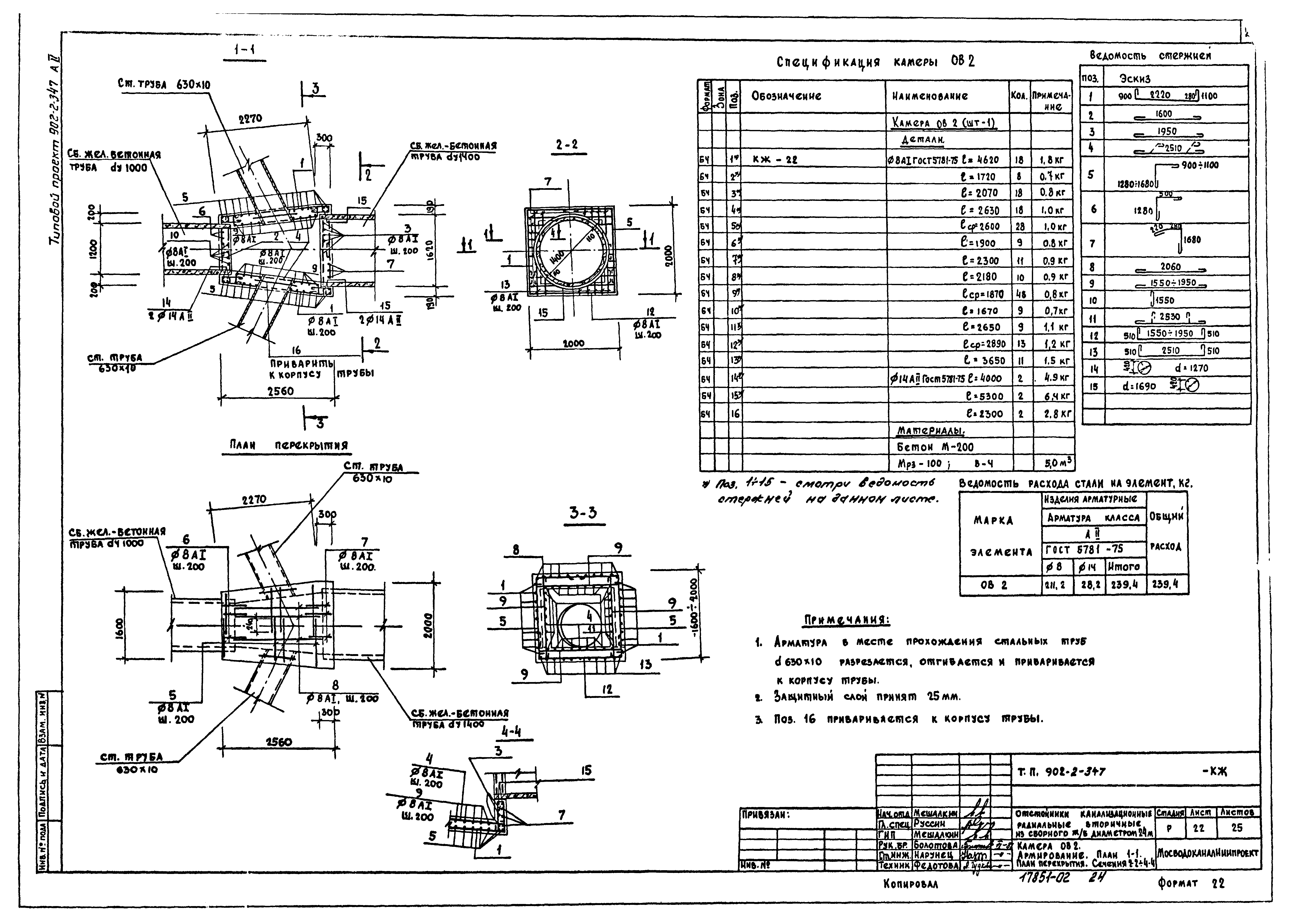
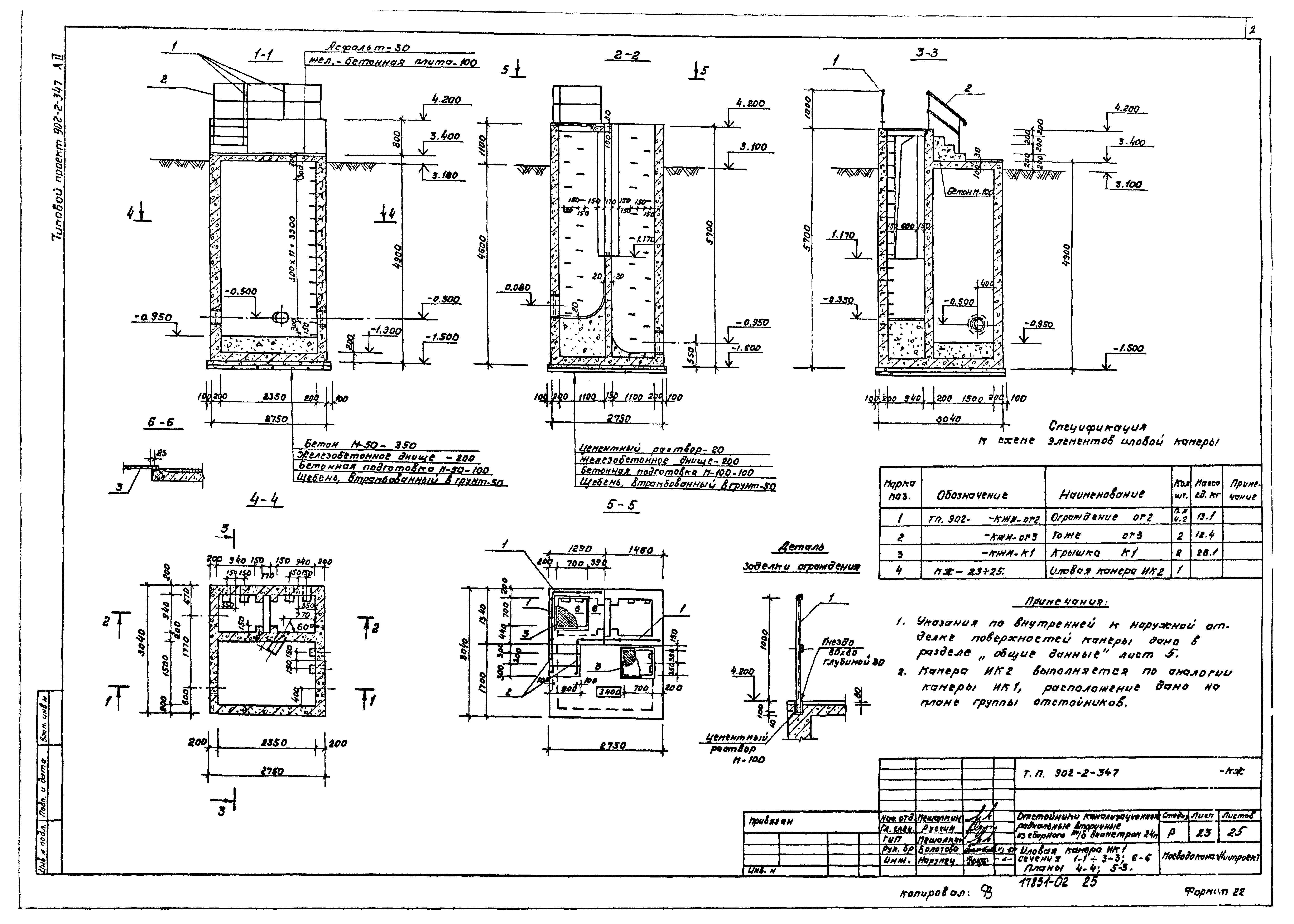
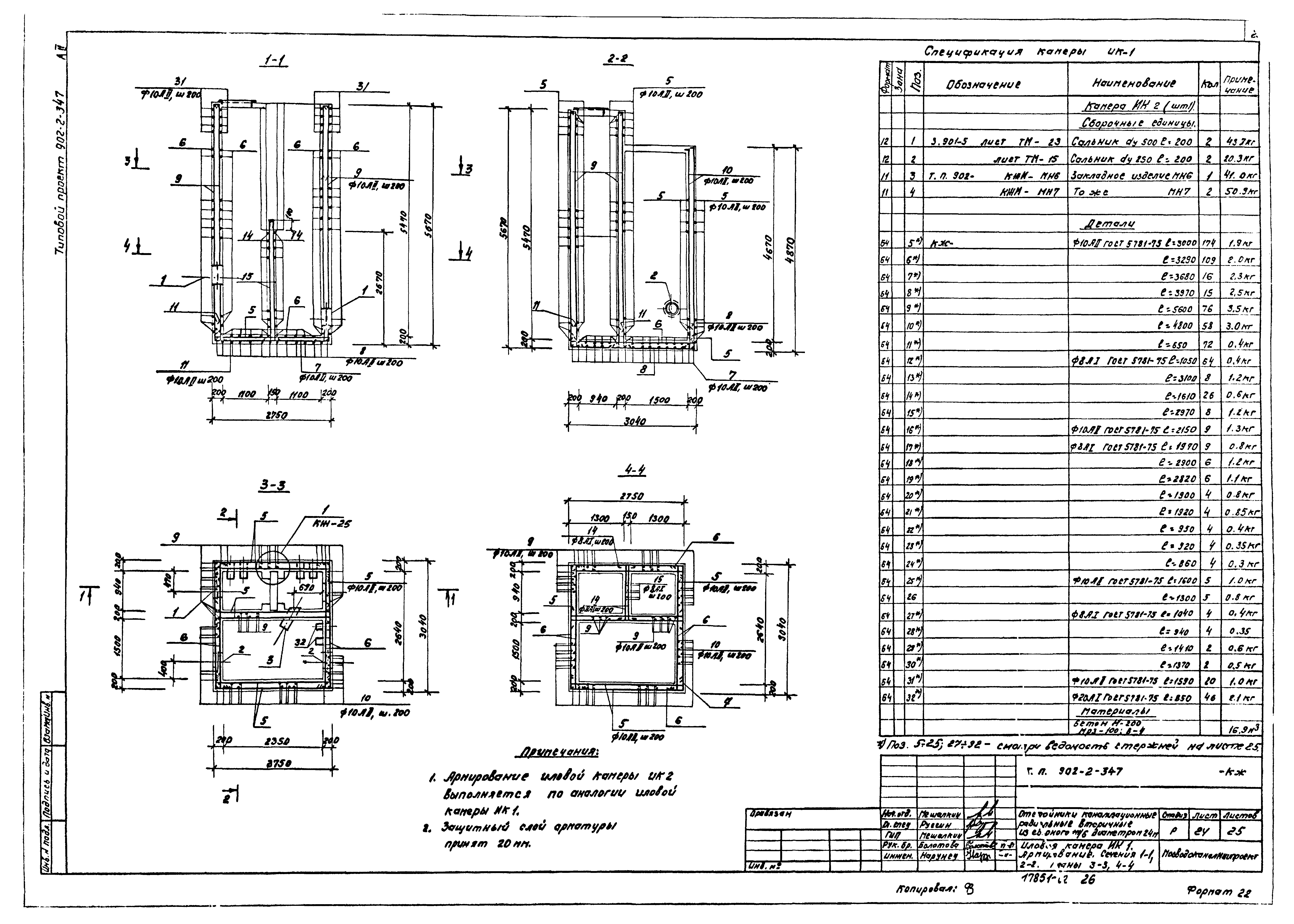
| Оглавление: | ТП 902-2-347-КЖ-1 Общие данные (начало) ТП 902-2-347-КЖ-2-4 Общие данные (продолжение) ТП 902-2-347-КЖ-5 Общие данные (окончание) ТП 902-2-347-КЖ-6 План группы отстойников и коммуникаций ТП 902-2-347-КЖ-7 Отстойник. План 1-1. Сечения 2-2÷4-4 ТП 902-2-347-КЖ-8 Отстойник. Сечения 5-5÷10-10. Деталь бычка ТП 902-2-347-КЖ-9 Отстойник. Сечения 11-11÷13-13. Узел 1 ТП 902-2-347-КЖ-10 Отстойник. Днище. Армирование. Планы. Сечения 1-1,2-2 ТП 902-2-347-КЖ-11 Отстойник. Днище. Армирование. Сечения 3-3÷7-7 ТП 902-2-347-КЖ-12 Отстойник. Схема расположения стеновых панелей. Узлы 1,2. Сечение 1-1 ТП 902-2-347-КЖ-13 Отстойник. Узлы 3,4. Деталь навивки кольцевой арматуры ТП 902-2-347-КЖ-14 Отстойник. Узел 5. Борт отстойника ТП 902-2-347-КЖ-15 Отстойник. Схема расположения лотков. Узлы 6,7. Сечения ТП 902-2-347-КЖ-16 Отстойник. Лоток ЛОМ2. Армирование. Планы. Сечения ТП 902-2-347-КЖ-17 Распределительная чаша. План 1-1,2-2,5-5. Сечения 3-3,4-4÷6-6 ТП 902-2-347-КЖ-81 Распределительная чаша. Армирование. Планы 1-1,4-4. Сечения 2-2,3-3 ТП 902-2-347-КЖ-19 Распределительная чаша. Армирование. Сечения 5-5÷8-8 ТП 902-2-347-КЖ-20 Камеры ОВ1 и ОВ2. Планы, сечения ТП 902-2-347-КЖ-21 Камера ОВ1. Армирование. План 1-1. План перекрытия. Сечения 2-2÷4-4 ТП 902-2-347-КЖ-22 Камера ОВ2. Армирование. План 1-1. План перекрытия. Сечения 2-2÷4-4 ТП 902-2-347-КЖ-23 Иловая камера ИК2. Сечения 1-1÷3-3,6-6. Планы 4-4,5-5 ТП 902-2-347-КЖ-24 Иловая камера ИК2. Армирование. Сечения 1-1,2-2. Планы 3-3,4-4 ТП 902-2-347-КЖ-25 Иловая камера ИК2. Армирование. План перекрытия. Сечения 6-6÷10-10 |
| Разработан: | МосводоканалНИИпроект |
| Утверждён: | 01.10.1981 МосводоканалНИИпроект (204) |


























